Property
Account |
| Property ID: | 34985 | Abbreviated Legal Description: | MONTANA ADDITION BLK 34 LOTS 6 & 8 |
| Parcel # / Geo ID: | 972903406 | Agent Code: | |
| Type: | Real | | |
| Tax Area: | 0110 - C-50F1E1H2 | Land Use Code | 11 |
| Open Space: | N | DFL | N |
| Historic Property: | N | Remodel Property: | N |
| Multi-Family Redevelopment: | N | | |
| Township: | 31N | Section: | 34 |
| Range: | 1W |
Location |
| Address: | 5480 CLEVELAND ST PORT TOWNSEND, WA 98368 | Mapsco: | 082/081 |
| Neighborhood: | MONTANA ADDITION | Map ID: | |
| Neighborhood CD: | 6030 |
Owner |
| Name: | ED & DENISE PARNELL FAMILY TRUST | Owner ID: | 111243 |
| Mailing Address: | PAUL E II & DENISE PARNELL TRUSTEES 1203 BERYL ST SAN DIEGO, CA 92109-2049 | % Ownership: | 100.0000000000% |
| | | Exemptions: | |
Pay Tax Due
Select the appropriate checkbox next to the year to be paid. Multiple years may be selected.
*Convenience Fee not included
Taxes and Assessment Details
Property Tax Information as of
03/12/2026
Click on "Statement Details" to expand or collapse a tax statement.
* Please enter a valid date ** Please enter a valid date *
Statement Details |
| 2026 | 24229 | STATE - STATE LEVY (SCHOOL) | $994.33 | $994.32 | $0.00 | $0.00 | $0.00 | $1988.65 |
| 2026 | 24229 | COUNTY - COUNTY LEVIES (CE, DD, VET, MH) | $397.55 | $397.51 | $0.00 | $0.00 | $0.00 | $795.06 |
| 2026 | 24229 | CONSERVE - CONSERVATION FUTURES | $11.92 | $11.92 | $0.00 | $0.00 | $0.00 | $23.84 |
| 2026 | 24229 | CITYPT - CITY OF PT | $564.26 | $564.25 | $0.00 | $0.00 | $0.00 | $1128.51 |
| 2026 | 24229 | PORTPT - PORT DISTRICT | $160.56 | $160.54 | $0.00 | $0.00 | $0.00 | $321.10 |
| 2026 | 24229 | PUD1 - PUD #1 | $25.86 | $25.86 | $0.00 | $0.00 | $0.00 | $51.72 |
| 2026 | 24229 | HD2 - HOSP DIST #2 | $23.19 | $23.18 | $0.00 | $0.00 | $0.00 | $46.37 |
| 2026 | 24229 | SD50 - SCHOOL DIST #50 | $787.73 | $787.70 | $0.00 | $0.00 | $0.00 | $1575.43 |
| 2026 | 24229 | FD1 - FIRE DISTRICT #1 | $526.42 | $526.42 | $0.00 | $0.00 | $0.00 | $1052.84 |
| 2026 | 24229 | EMS1 - FIRE DIST #1 EMS | $202.40 | $202.40 | $0.00 | $0.00 | $0.00 | $404.80 |
| 2026 | 24229 | JCCD - JC Conservation District | $2.55 | $2.55 | $0.00 | $0.00 | $0.00 | $5.10 |
| 2026 | 24229 | NWA - Noxious Weed Assessment | $2.98 | $2.97 | $0.00 | $0.00 | $0.00 | $5.95 |
| 2026 | 24229 | TOTAL: | $3699.75 | $3699.62 | $0.00 | $0.00 | $0.00 | $7399.37 |
|
| 2026 | 24229 | $3699.75 | $3699.62 | $0.00 | $0.00 | $0.00 | $7399.37 |
Statement Details |
| 2025 | 24294 | STATE - STATE LEVY (SCHOOL) | $999.63 | $999.62 | $0.00 | $0.00 | $1999.25 | $0.00 |
| 2025 | 24294 | COUNTY - COUNTY LEVIES (CE, DD, VET, MH) | $393.11 | $393.08 | $0.00 | $0.00 | $786.19 | $0.00 |
| 2025 | 24294 | CONSERVE - CONSERVATION FUTURES | $11.79 | $11.78 | $0.00 | $0.00 | $23.57 | $0.00 |
| 2025 | 24294 | CITYPT - CITY OF PT | $566.90 | $566.88 | $0.00 | $0.00 | $1133.78 | $0.00 |
| 2025 | 24294 | PORTPT - PORT DISTRICT | $160.41 | $160.41 | $0.00 | $0.00 | $320.82 | $0.00 |
| 2025 | 24294 | PUD1 - PUD #1 | $25.72 | $25.72 | $0.00 | $0.00 | $51.44 | $0.00 |
| 2025 | 24294 | HD2 - HOSP DIST #2 | $22.94 | $22.93 | $0.00 | $0.00 | $45.87 | $0.00 |
| 2025 | 24294 | SD50 - SCHOOL DIST #50 | $730.57 | $730.54 | $0.00 | $0.00 | $1461.11 | $0.00 |
| 2025 | 24294 | FD1 - FIRE DISTRICT #1 | $518.74 | $518.73 | $0.00 | $0.00 | $1037.47 | $0.00 |
| 2025 | 24294 | EMS1 - FIRE DIST #1 EMS | $199.52 | $199.52 | $0.00 | $0.00 | $399.04 | $0.00 |
| 2025 | 24294 | JCCD - JC Conservation District | $2.55 | $2.55 | $0.00 | $0.00 | $5.10 | $0.00 |
| 2025 | 24294 | NWA - Noxious Weed Assessment | $2.15 | $2.15 | $0.00 | $0.00 | $4.30 | $0.00 |
| 2025 | 24294 | TOTAL: | $3634.03 | $3633.91 | $0.00 | $0.00 | $7267.94 | $0.00 |
|
| 2025 | 24294 | $3634.03 | $3633.91 | $0.00 | $0.00 | $7267.94 | $0.00 |
Statement Details |
| 2024 | 24340 | STATE - STATE LEVY (SCHOOL) | $776.76 | $776.75 | $0.00 | $0.00 | $1553.51 | $0.00 |
| 2024 | 24340 | COUNTY - COUNTY LEVIES (CE, DD, VET, MH) | $332.39 | $332.37 | $0.00 | $0.00 | $664.76 | $0.00 |
| 2024 | 24340 | CONSERVE - CONSERVATION FUTURES | $9.97 | $9.96 | $0.00 | $0.00 | $19.93 | $0.00 |
| 2024 | 24340 | CITYPT - CITY OF PT | $474.93 | $474.92 | $0.00 | $0.00 | $949.85 | $0.00 |
| 2024 | 24340 | PORTPT - PORT DISTRICT | $137.29 | $137.28 | $0.00 | $0.00 | $274.57 | $0.00 |
| 2024 | 24340 | PUD1 - PUD #1 | $21.83 | $21.83 | $0.00 | $0.00 | $43.66 | $0.00 |
| 2024 | 24340 | HD2 - HOSP DIST #2 | $19.40 | $19.39 | $0.00 | $0.00 | $38.79 | $0.00 |
| 2024 | 24340 | SD50 - SCHOOL DIST #50 | $628.44 | $628.42 | $0.00 | $0.00 | $1256.86 | $0.00 |
| 2024 | 24340 | FD1 - FIRE DISTRICT #1 | $439.49 | $439.48 | $0.00 | $0.00 | $878.97 | $0.00 |
| 2024 | 24340 | EMS1 - FIRE DIST #1 EMS | $167.87 | $167.87 | $0.00 | $0.00 | $335.74 | $0.00 |
| 2024 | 24340 | JCCD - JC Conservation District | $2.55 | $2.55 | $0.00 | $0.00 | $5.10 | $0.00 |
| 2024 | 24340 | NWA - Noxious Weed Assessment | $2.15 | $2.15 | $0.00 | $0.00 | $4.30 | $0.00 |
| 2024 | 24340 | TOTAL: | $3013.07 | $3012.97 | $0.00 | $0.00 | $6026.04 | $0.00 |
|
| 2024 | 24340 | $3013.07 | $3012.97 | $0.00 | $0.00 | $6026.04 | $0.00 |
Statement Details |
| 2023 | 24379 | STATE - STATE LEVY (SCHOOL) | $784.49 | $784.48 | $0.00 | $0.00 | $1568.97 | $0.00 |
| 2023 | 24379 | COUNTY - COUNTY LEVIES (CE, DD, VET, MH) | $342.34 | $342.32 | $0.00 | $0.00 | $684.66 | $0.00 |
| 2023 | 24379 | CONSERVE - CONSERVATION FUTURES | $10.27 | $10.26 | $0.00 | $0.00 | $20.53 | $0.00 |
| 2023 | 24379 | CITYPT - CITY OF PT | $483.83 | $483.81 | $0.00 | $0.00 | $967.64 | $0.00 |
| 2023 | 24379 | PORTPT - PORT DISTRICT | $144.21 | $144.21 | $0.00 | $0.00 | $288.42 | $0.00 |
| 2023 | 24379 | PUD1 - PUD #1 | $22.69 | $22.69 | $0.00 | $0.00 | $45.38 | $0.00 |
| 2023 | 24379 | HD2 - HOSP DIST #2 | $19.98 | $19.97 | $0.00 | $0.00 | $39.95 | $0.00 |
| 2023 | 24379 | SD50 - SCHOOL DIST #50 | $622.51 | $622.50 | $0.00 | $0.00 | $1245.01 | $0.00 |
| 2023 | 24379 | FD1 - FIRE DISTRICT #1 | $282.01 | $282.01 | $0.00 | $0.00 | $564.02 | $0.00 |
| 2023 | 24379 | EMS1 - FIRE DIST #1 EMS | $119.96 | $119.96 | $0.00 | $0.00 | $239.92 | $0.00 |
| 2023 | 24379 | JCCD - JC Conservation District | $2.55 | $2.55 | $0.00 | $0.00 | $5.10 | $0.00 |
| 2023 | 24379 | NWA - Noxious Weed Assessment | $2.15 | $2.15 | $0.00 | $0.00 | $4.30 | $0.00 |
| 2023 | 24379 | TOTAL: | $2836.99 | $2836.91 | $0.00 | $0.00 | $5673.90 | $0.00 |
|
| 2023 | 24379 | $2836.99 | $2836.91 | $0.00 | $0.00 | $5673.90 | $0.00 |
Values
| (+) Improvement Homesite Value: | + | $645,220 | |
| (+) Improvement Non-Homesite Value: | + | $0 | |
| (+) Land Homesite Value: | + | $219,750 | |
| (+) Land Non-Homesite Value: | + | $0 | |
| (+) Curr Use (HS): | + | $0 | $0 |
| (+) Curr Use (NHS): | + | $0 | $0 |
| | | -------------------------- | |
| (=) Market Value: | = | $864,970 | |
| (–) Productivity Loss: | – | $0 | |
| | | -------------------------- | |
| (=) Subtotal: | = | $864,970 | |
| (+) Senior Appraised Value: | + | $0 | |
| (+) Non-Senior Appraised Value: | + | $864,970 | |
| | | -------------------------- | |
| (=) Total Appraised Value: | = | $864,970 | |
| (–) Senior Exemption Loss: | – | $0 | |
| (–) Exemption Loss: | – | $0 | |
| | | -------------------------- | |
| (=) Taxable Value: | = | $864,970 | |
Taxing Jurisdiction
| Owner: | ED & DENISE PARNELL FAMILY TRUST | | |
| % Ownership: | 100.0000000000% | | |
| Total Value: | $864,970 | | |
| Tax Area: | 0110 - C-50F1E1H2 |
| CE | COUNTY CURRENT EXPENSE | 0.9034619479 | $864,970 | $864,970 | $781.47 | | |
| CNTYDD | DEVELOPMENTAL DISABILITIES | 0.0052121823 | $864,970 | $864,970 | $4.51 | | |
| CNTYVET | VETERANS RELIEF | 0.0052777810 | $864,970 | $864,970 | $4.57 | | |
| MENTAL | MENTAL HEALTH | 0.0052121823 | $864,970 | $864,970 | $4.51 | | |
| PTGEN | CITY OF PT GENERAL | 0.8551967795 | $864,970 | $864,970 | $739.72 | | |
| PTLLL | CITY OF PT - LIBRARY LID LIFT | 0.4010114288 | $864,970 | $864,970 | $346.86 | | |
| PTMVBOND | CITY OF PT MV BOND | 0.0484717981 | $864,970 | $864,970 | $41.93 | | |
| HOSP2CASH | HOSP DIST #2 GENERAL | 0.0536075306 | $864,970 | $864,970 | $46.37 | | |
| SCH50BOND | SCHOOL DIST #50 BOND 2016 | 0.5377451389 | $864,970 | $864,970 | $465.13 | | |
| SCH50CP | SCHOOL DIST #50 CAP PROJ | 0.4573475088 | $864,970 | $864,970 | $395.59 | | |
| SCH50MO | SCHOOL DIST #50 EP & O | 0.8262822886 | $864,970 | $864,970 | $714.71 | | |
| CONSERVE | CONSERVATION FUTURES | 0.0275621078 | $864,970 | $864,970 | $23.84 | | |
| EMS1 | FIRE DIST #1 EMS | 0.4679948282 | $864,970 | $864,970 | $404.80 | | |
| FD1 | FIRE DIST #1 GENERAL | 1.2171942929 | $864,970 | $864,970 | $1,052.84 | | |
| PORTPT | PORT OF PT GENERAL | 0.1134941229 | $864,970 | $864,970 | $98.17 | | |
| PORTPTIDD | PORT OF PT IDD 2019 | 0.2577346692 | $864,970 | $864,970 | $222.93 | | |
| PUD1 | PUD #1 GENERAL | 0.0597888892 | $864,970 | $864,970 | $51.72 | | |
| STATE | STATE SCHOOL PART 1 | 1.4940692947 | $864,970 | $864,970 | $1,292.33 | | |
| STATE2 | STATE SCHOOL PART 2 | 0.8050170049 | $864,970 | $864,970 | $696.32 | | |
| | Total Tax Rate: | 8.5416817766 | | | | | |
| | | | | Taxes w/Current Exemptions: | $7,388.32 | | |
| | | | | Taxes w/o Exemptions: | $7,388.32 | | |
Improvement / Building
| Improvement #1: | Residential Bldg | State Code: | 11 | 2139.2 sqft | Value: | $645,220 |
| Bathrooms (#): | 2 (FULL) | Bathrooms (#): | 2 (HALF) | | Bedrooms (#): | 2 | Exterior Wall: | SI/ST | | Fireplace: | WD ST-GOOD | Floor Construction: | FRAME | | Foundation: | CONPR | Heating/Cooling: | ELBB | | Roof Cover: | COMP |   |   |
|
| | Type | Description | Class CD | Sub Class CD | Year Built | Area |
| | MA | Main Area | 5 | 15SF | 1995 | 1113.2 |
| | MA2 | Second Floor Main Area | 5 | 15SF | 1995 | 1026.0 |
| | HWPOR | House Wood Porch | 5 | * | 1995 | 590.8 |
| | HDECK | House Deck | 5 | * | 1995 | 621.0 |
| | GBLTIN | Builtin Garage | 5 | 15SF | 1995 | 550.0 |
| | OTHER | Other | 5 | * | 1995 | 50.0 |
Sketch
Property Image
Land
| 1 | 6030-1165L | | 0.0000 | 0.00 | 0.00 | 0.00 | 1.00 | $156,500 | $0 |
| 2 | 6030-1165L | | 0.0000 | 0.00 | 0.00 | 0.00 | 1.00 | $63,250 | $0 |
Roll Value History
| 2026 | N/A | N/A | N/A | N/A | N/A |
| 2025 | $645,220 | $219,750 | $0 | $864,970 | $864,970 |
| 2024 | $610,955 | $222,750 | $0 | $833,705 | $833,705 |
| 2023 | $473,970 | $197,500 | $0 | $671,470 | $671,470 |
| 2022 | $473,970 | $192,500 | $0 | $666,470 | $666,470 |
Deed and Sales History
| 1 | 08/07/2024 | SWD | Statutory Warranty Deed | BENJAMIN KOSSICK & MELISSA BRUMER | ED & DENISE PARNELL FAMILY TRUST | | | $875,000.00 | 143029 | |
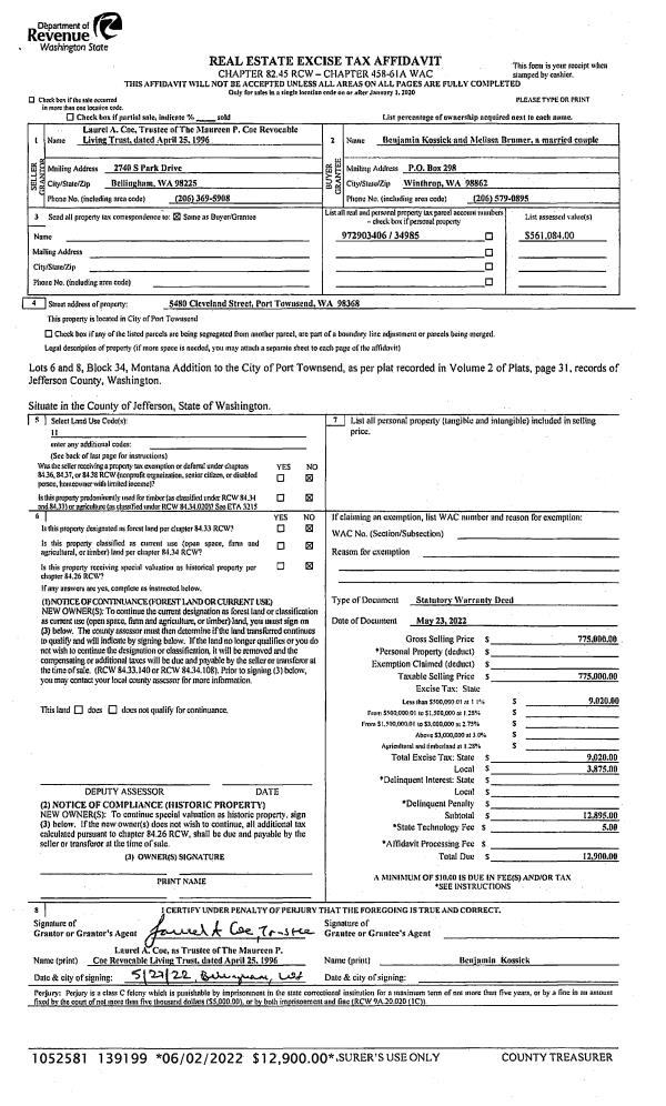
| 2 | 05/23/2022 | SWD | Statutory Warranty Deed | MAUREEN P COE TRUSTEE | BENJAMIN KOSSICK & MELISSA BRUMER | | | $775,000.00 | 139199 | |
| 3 | 04/25/1996 | QCD | Quit Claim Deed | COE, MAUREEN P | COE, MAUREEN P/TRUST | 0 | 0 | $0.00 | 79337 | 0 |
| 4 | 05/26/1995 | SWD | Statutory Warranty Deed | STEVE COOPER CONSTRUCTION | COE, JONATHAN E/MAUREEN P | 0 | 0 | $180,000.00 | 77011 | 0 |
Payout Agreement
| No payout information available.. |