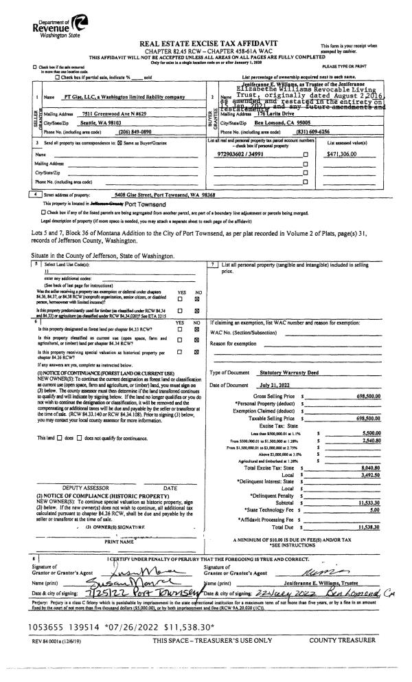
Property
Account |
| Property ID: | 34991 | Abbreviated Legal Description: | MONTANA ADDITION BLK 36 LOTS 5 & 7 LOTS OF REC AFN 504119 |
| Parcel # / Geo ID: | 972903602 | Agent Code: | |
| Type: | Real | | |
| Tax Area: | 0110 - C-50F1E1H2 | Land Use Code | 11 |
| Open Space: | N | DFL | N |
| Historic Property: | N | Remodel Property: | N |
| Multi-Family Redevelopment: | N | | |
| Township: | 31N | Section: | 34 |
| Range: | 1W |
Location |
| Address: | 5408 GISE ST PORT TOWNSEND, WA 98368 | Mapsco: | 082/095 |
| Neighborhood: | MONTANA ADDITION | Map ID: | |
| Neighborhood CD: | 6030 |
Owner |
| Name: | JENIFERANNE E WILLIAMS REVOCABLE LIVING TRUST | Owner ID: | 107391 |
| Mailing Address: | JENIFERANNE WILLIAMS TRUSTEE 5408 GISE ST PORT TOWNSEND, WA 98368-1506 | % Ownership: | 100.0000000000% |
| | | Exemptions: | |
Pay Tax Due
There is currently No Amount Due on this property.
Taxes and Assessment Details
Property Tax Information as of
03/10/2026
Click on "Statement Details" to expand or collapse a tax statement.
* Please enter a valid date ** Please enter a valid date *
Statement Details |
| | TOTAL: | $0.00 | $0.00 | $0.00 | $0.00 | $0.00 | $0.00 |
|
| | $0.00 | $0.00 | $0.00 | $0.00 | $0.00 | $0.00 |
Values
| (+) Improvement Homesite Value: | + | $0 | |
| (+) Improvement Non-Homesite Value: | + | $360,166 | |
| (+) Land Homesite Value: | + | $0 | |
| (+) Land Non-Homesite Value: | + | $330,000 | |
| (+) Curr Use (HS): | + | $0 | $0 |
| (+) Curr Use (NHS): | + | $0 | $0 |
| | | -------------------------- | |
| (=) Market Value: | = | $690,166 | |
| (–) Productivity Loss: | – | $0 | |
| | | -------------------------- | |
| (=) Subtotal: | = | $690,166 | |
| (+) Senior Appraised Value: | + | $0 | |
| (+) Non-Senior Appraised Value: | + | $690,166 | |
| | | -------------------------- | |
| (=) Total Appraised Value: | = | $690,166 | |
| (–) Senior Exemption Loss: | – | $0 | |
| (–) Exemption Loss: | – | $0 | |
| | | -------------------------- | |
| (=) Taxable Value: | = | $690,166 | |
Taxing Jurisdiction
| Owner: | JENIFERANNE E WILLIAMS REVOCABLE LIVING TRUST | | |
| % Ownership: | 100.0000000000% | | |
| Total Value: | $690,166 | | |
| Tax Area: | 0110 - C-50F1E1H2 |
| CE | COUNTY CURRENT EXPENSE | 0.9034619479 | $690,166 | $690,166 | $623.54 | | |
| CNTYDD | DEVELOPMENTAL DISABILITIES | 0.0052121823 | $690,166 | $690,166 | $3.60 | | |
| CNTYVET | VETERANS RELIEF | 0.0052777810 | $690,166 | $690,166 | $3.64 | | |
| MENTAL | MENTAL HEALTH | 0.0052121823 | $690,166 | $690,166 | $3.60 | | |
| PTGEN | CITY OF PT GENERAL | 0.8551967795 | $690,166 | $690,166 | $590.23 | | |
| PTLLL | CITY OF PT - LIBRARY LID LIFT | 0.4010114288 | $690,166 | $690,166 | $276.76 | | |
| PTMVBOND | CITY OF PT MV BOND | 0.0484717981 | $690,166 | $690,166 | $33.45 | | |
| HOSP2CASH | HOSP DIST #2 GENERAL | 0.0536075306 | $690,166 | $690,166 | $37.00 | | |
| SCH50BOND | SCHOOL DIST #50 BOND 2016 | 0.5377451389 | $690,166 | $690,166 | $371.13 | | |
| SCH50CP | SCHOOL DIST #50 CAP PROJ | 0.4573475088 | $690,166 | $690,166 | $315.65 | | |
| SCH50MO | SCHOOL DIST #50 EP & O | 0.8262822886 | $690,166 | $690,166 | $570.27 | | |
| CONSERVE | CONSERVATION FUTURES | 0.0275621078 | $690,166 | $690,166 | $19.02 | | |
| EMS1 | FIRE DIST #1 EMS | 0.4679948282 | $690,166 | $690,166 | $322.99 | | |
| FD1 | FIRE DIST #1 GENERAL | 1.2171942929 | $690,166 | $690,166 | $840.07 | | |
| PORTPT | PORT OF PT GENERAL | 0.1134941229 | $690,166 | $690,166 | $78.33 | | |
| PORTPTIDD | PORT OF PT IDD 2019 | 0.2577346692 | $690,166 | $690,166 | $177.88 | | |
| PUD1 | PUD #1 GENERAL | 0.0597888892 | $690,166 | $690,166 | $41.26 | | |
| STATE | STATE SCHOOL PART 1 | 1.4940692947 | $690,166 | $690,166 | $1,031.16 | | |
| STATE2 | STATE SCHOOL PART 2 | 0.8050170049 | $690,166 | $690,166 | $555.60 | | |
| | Total Tax Rate: | 8.5416817766 | | | | | |
| | | | | Taxes w/Current Exemptions: | $5,895.18 | | |
| | | | | Taxes w/o Exemptions: | $5,895.18 | | |
Improvement / Building
| Improvement #1: | Residential Bldg | State Code: | 11 | 1332.0 sqft | Value: | $360,166 |
| Bathrooms (#): | 2 (FULL) | Bathrooms (#): | 1 (HALF) | | Bedrooms (#): | 3 | Exterior Wall: | SI/ST | | Fireplace: | SIN 1-GOOD | Floor Construction: | FRAME | | Foundation: | CONPR | Heating/Cooling: | ELBB | | Roof Cover: | COMP |   |   |
|
| | Type | Description | Class CD | Sub Class CD | Year Built | Area |
| | MA | Main Area | 4- | 1S | 1979 | 1332.0 |
| | HCPOR | House Concrete Porch | 4 | * | 1979 | 24.0 |
| | HDECK | House Deck | 4 | * | 2019 | 552.0 |
| | GBSMT | Basement Garage | 4 | * | 1979 | 600.0 |
| | SHED | Shed (Table Not Dep) | 3 | * | 1979 | 180.0 |
| | BSMTF | House basement finished | 4 | * | 1979 | 690.0 |
| | CONCD | Concrete Drive | 3 | * | 1979 | 528.0 |
| | PATIO | House Patio | 3 | * | 1979 | 126.5 |
Sketch
Property Image
Land
| 1 | 6030-1155L | Fair-Avg Water View Lots | 0.0000 | 0.00 | 0.00 | 0.00 | 1.00 | $230,000 | $0 |
| 2 | 6030-1155L | Fair-Avg Water View Lots | 0.0000 | 0.00 | 0.00 | 0.00 | 1.00 | $100,000 | $0 |
Roll Value History
| 2026 | N/A | N/A | N/A | N/A | N/A |
| 2025 | $360,166 | $330,000 | $0 | $690,166 | $690,166 |
| 2024 | $321,611 | $346,500 | $0 | $668,111 | $668,111 |
| 2023 | $307,628 | $310,000 | $0 | $617,628 | $617,628 |
| 2022 | $307,628 | $305,000 | $0 | $612,628 | $612,628 |
Deed and Sales History
| 1 | 07/21/2022 | SWD | Statutory Warranty Deed | PT GISE LLC | JENIFERANNE E WILLIAMS REVOCABLE LIVING TRUST | | | $698,500.00 | 139514 | |
| 2 | 02/19/2020 | SWD | Statutory Warranty Deed | BRIT & STEPHANIE YATES | PT GISE LLC | | | $500,000.00 | 134005 | |
| 3 | 07/15/2014 | SWD | Statutory Warranty Deed | JOHN LYNES | BRIT & STEPHANIE YATES | | | $282,000.00 | 121547 | |
| 4 | 10/01/2003 | SWD | Statutory Warranty Deed | BONAR, DALE B/MARJORIE B | LYNES, JOHN M/LISA A | 0 | 0 | $290,000.00 | 98485 | 0 |
Payout Agreement
| No payout information available.. |