Property
Account |
| Property ID: | 35007 | Abbreviated Legal Description: | MONTANA ADDITION BLK 39 LOT 6-- CITY LETTER LUP20-029 |
| Parcel # / Geo ID: | 972903906 | Agent Code: | |
| Type: | Real | | |
| Tax Area: | 0110 - C-50F1E1H2 | Land Use Code | 11 |
| Open Space: | N | DFL | N |
| Historic Property: | N | Remodel Property: | N |
| Multi-Family Redevelopment: | N | | |
| Township: | 31N | Section: | 34 |
| Range: | 1W |
Location |
| Address: | 1069 56TH ST PORT TOWNSEND, WA 98368 | Mapsco: | 082/123 |
| Neighborhood: | MONTANA ADDITION | Map ID: | |
| Neighborhood CD: | 6030 |
Owner |
| Name: | ANGELA GIANGRANDE BRANTLEY | Owner ID: | 105551 |
| Mailing Address: | 700 BECKETT POINT RD PORT TOWNSEND, WA 98368-9027 | % Ownership: | 100.0000000000% |
| | | Exemptions: | |
Pay Tax Due
Select the appropriate checkbox next to the year to be paid. Multiple years may be selected.
*Convenience Fee not included
Taxes and Assessment Details
Property Tax Information as of
03/11/2026
Click on "Statement Details" to expand or collapse a tax statement.
* Please enter a valid date ** Please enter a valid date *
Statement Details |
| 2026 | 24251 | STATE - STATE LEVY (SCHOOL) | $679.37 | $679.35 | $0.00 | $0.00 | $0.00 | $1358.72 |
| 2026 | 24251 | COUNTY - COUNTY LEVIES (CE, DD, VET, MH) | $271.61 | $271.60 | $0.00 | $0.00 | $0.00 | $543.21 |
| 2026 | 24251 | CONSERVE - CONSERVATION FUTURES | $8.15 | $8.14 | $0.00 | $0.00 | $0.00 | $16.29 |
| 2026 | 24251 | CITYPT - CITY OF PT | $385.53 | $385.51 | $0.00 | $0.00 | $0.00 | $771.04 |
| 2026 | 24251 | PORTPT - PORT DISTRICT | $109.70 | $109.69 | $0.00 | $0.00 | $0.00 | $219.39 |
| 2026 | 24251 | PUD1 - PUD #1 | $17.67 | $17.66 | $0.00 | $0.00 | $0.00 | $35.33 |
| 2026 | 24251 | HD2 - HOSP DIST #2 | $15.84 | $15.84 | $0.00 | $0.00 | $0.00 | $31.68 |
| 2026 | 24251 | SD50 - SCHOOL DIST #50 | $538.20 | $538.20 | $0.00 | $0.00 | $0.00 | $1076.40 |
| 2026 | 24251 | FD1 - FIRE DISTRICT #1 | $359.67 | $359.67 | $0.00 | $0.00 | $0.00 | $719.34 |
| 2026 | 24251 | EMS1 - FIRE DIST #1 EMS | $138.29 | $138.29 | $0.00 | $0.00 | $0.00 | $276.58 |
| 2026 | 24251 | FP - DNR Forest Fire Protection Assmt | $8.50 | $8.50 | $0.00 | $0.00 | $0.00 | $17.00 |
| 2026 | 24251 | FPLCA - DNR Landowner Contingency Assmt | $3.00 | $3.00 | $0.00 | $0.00 | $0.00 | $6.00 |
| 2026 | 24251 | JCCD - JC Conservation District | $2.55 | $2.55 | $0.00 | $0.00 | $0.00 | $5.10 |
| 2026 | 24251 | NWA - Noxious Weed Assessment | $2.98 | $2.97 | $0.00 | $0.00 | $0.00 | $5.95 |
| 2026 | 24251 | FP ADMIN - FP ADMIN | $0.50 | $0.00 | $0.00 | $0.00 | $0.00 | $0.50 |
| 2026 | 24251 | TOTAL: | $2541.56 | $2540.97 | $0.00 | $0.00 | $0.00 | $5082.53 |
|
| 2026 | 24251 | $2541.56 | $2540.97 | $0.00 | $0.00 | $0.00 | $5082.53 |
Statement Details |
| 2025 | 24316 | STATE - STATE LEVY (SCHOOL) | $690.26 | $690.24 | $0.00 | $0.00 | $1380.50 | $0.00 |
| 2025 | 24316 | COUNTY - COUNTY LEVIES (CE, DD, VET, MH) | $271.45 | $271.42 | $0.00 | $0.00 | $542.87 | $0.00 |
| 2025 | 24316 | CONSERVE - CONSERVATION FUTURES | $8.14 | $8.14 | $0.00 | $0.00 | $16.28 | $0.00 |
| 2025 | 24316 | CITYPT - CITY OF PT | $391.45 | $391.43 | $0.00 | $0.00 | $782.88 | $0.00 |
| 2025 | 24316 | PORTPT - PORT DISTRICT | $110.77 | $110.75 | $0.00 | $0.00 | $221.52 | $0.00 |
| 2025 | 24316 | PUD1 - PUD #1 | $17.76 | $17.76 | $0.00 | $0.00 | $35.52 | $0.00 |
| 2025 | 24316 | HD2 - HOSP DIST #2 | $15.84 | $15.83 | $0.00 | $0.00 | $31.67 | $0.00 |
| 2025 | 24316 | SD50 - SCHOOL DIST #50 | $504.47 | $504.45 | $0.00 | $0.00 | $1008.92 | $0.00 |
| 2025 | 24316 | FD1 - FIRE DISTRICT #1 | $358.19 | $358.19 | $0.00 | $0.00 | $716.38 | $0.00 |
| 2025 | 24316 | EMS1 - FIRE DIST #1 EMS | $137.77 | $137.77 | $0.00 | $0.00 | $275.54 | $0.00 |
| 2025 | 24316 | FP - DNR Forest Fire Protection Assmt | $8.50 | $8.50 | $0.00 | $0.00 | $17.00 | $0.00 |
| 2025 | 24316 | FPLCA - DNR Landowner Contingency Assmt | $3.00 | $3.00 | $0.00 | $0.00 | $6.00 | $0.00 |
| 2025 | 24316 | JCCD - JC Conservation District | $2.55 | $2.55 | $0.00 | $0.00 | $5.10 | $0.00 |
| 2025 | 24316 | NWA - Noxious Weed Assessment | $2.15 | $2.15 | $0.00 | $0.00 | $4.30 | $0.00 |
| 2025 | 24316 | FP ADMIN - FP ADMIN | $0.50 | $0.00 | $0.00 | $0.00 | $0.50 | $0.00 |
| 2025 | 24316 | TOTAL: | $2522.80 | $2522.18 | $0.00 | $0.00 | $5044.98 | $0.00 |
|
| 2025 | 24316 | $2522.80 | $2522.18 | $0.00 | $0.00 | $5044.98 | $0.00 |
Statement Details |
| 2024 | 24362 | STATE - STATE LEVY (SCHOOL) | $623.97 | $623.96 | $0.00 | $0.00 | $1247.93 | $0.00 |
| 2024 | 24362 | COUNTY - COUNTY LEVIES (CE, DD, VET, MH) | $267.01 | $266.98 | $0.00 | $0.00 | $533.99 | $0.00 |
| 2024 | 24362 | CONSERVE - CONSERVATION FUTURES | $8.01 | $8.00 | $0.00 | $0.00 | $16.01 | $0.00 |
| 2024 | 24362 | CITYPT - CITY OF PT | $381.51 | $381.49 | $0.00 | $0.00 | $763.00 | $0.00 |
| 2024 | 24362 | PORTPT - PORT DISTRICT | $110.29 | $110.28 | $0.00 | $0.00 | $220.57 | $0.00 |
| 2024 | 24362 | PUD1 - PUD #1 | $17.54 | $17.54 | $0.00 | $0.00 | $35.08 | $0.00 |
| 2024 | 24362 | HD2 - HOSP DIST #2 | $15.58 | $15.58 | $0.00 | $0.00 | $31.16 | $0.00 |
| 2024 | 24362 | SD50 - SCHOOL DIST #50 | $504.83 | $504.80 | $0.00 | $0.00 | $1009.63 | $0.00 |
| 2024 | 24362 | FD1 - FIRE DISTRICT #1 | $353.04 | $353.04 | $0.00 | $0.00 | $706.08 | $0.00 |
| 2024 | 24362 | EMS1 - FIRE DIST #1 EMS | $134.85 | $134.85 | $0.00 | $0.00 | $269.70 | $0.00 |
| 2024 | 24362 | FP - DNR Forest Fire Protection Assmt | $8.50 | $8.50 | $0.00 | $0.00 | $17.00 | $0.00 |
| 2024 | 24362 | FPLCA - DNR Landowner Contingency Assmt | $3.00 | $3.00 | $0.00 | $0.00 | $6.00 | $0.00 |
| 2024 | 24362 | JCCD - JC Conservation District | $2.55 | $2.55 | $0.00 | $0.00 | $5.10 | $0.00 |
| 2024 | 24362 | NWA - Noxious Weed Assessment | $2.15 | $2.15 | $0.00 | $0.00 | $4.30 | $0.00 |
| 2024 | 24362 | FP ADMIN - FP ADMIN | $0.50 | $0.00 | $0.00 | $0.00 | $0.50 | $0.00 |
| 2024 | 24362 | TOTAL: | $2433.33 | $2432.72 | $0.00 | $0.00 | $4866.05 | $0.00 |
|
| 2024 | 24362 | $2433.33 | $2432.72 | $0.00 | $0.00 | $4866.05 | $0.00 |
Statement Details |
| 2023 | 24401 | STATE - STATE LEVY (SCHOOL) | $629.03 | $629.01 | $0.00 | $0.00 | $1258.04 | $0.00 |
| 2023 | 24401 | COUNTY - COUNTY LEVIES (CE, DD, VET, MH) | $274.49 | $274.49 | $0.00 | $0.00 | $548.98 | $0.00 |
| 2023 | 24401 | CONSERVE - CONSERVATION FUTURES | $8.23 | $8.23 | $0.00 | $0.00 | $16.46 | $0.00 |
| 2023 | 24401 | CITYPT - CITY OF PT | $387.95 | $387.93 | $0.00 | $0.00 | $775.88 | $0.00 |
| 2023 | 24401 | PORTPT - PORT DISTRICT | $115.63 | $115.62 | $0.00 | $0.00 | $231.25 | $0.00 |
| 2023 | 24401 | PUD1 - PUD #1 | $18.20 | $18.19 | $0.00 | $0.00 | $36.39 | $0.00 |
| 2023 | 24401 | HD2 - HOSP DIST #2 | $16.02 | $16.01 | $0.00 | $0.00 | $32.03 | $0.00 |
| 2023 | 24401 | SD50 - SCHOOL DIST #50 | $499.14 | $499.14 | $0.00 | $0.00 | $998.28 | $0.00 |
| 2023 | 24401 | FD1 - FIRE DISTRICT #1 | $226.12 | $226.12 | $0.00 | $0.00 | $452.24 | $0.00 |
| 2023 | 24401 | EMS1 - FIRE DIST #1 EMS | $96.19 | $96.19 | $0.00 | $0.00 | $192.38 | $0.00 |
| 2023 | 24401 | FP - DNR Forest Fire Protection Assmt | $8.50 | $8.50 | $0.00 | $0.00 | $17.00 | $0.00 |
| 2023 | 24401 | FPLCA - DNR Landowner Contingency Assmt | $3.00 | $3.00 | $0.00 | $0.00 | $6.00 | $0.00 |
| 2023 | 24401 | JCCD - JC Conservation District | $2.55 | $2.55 | $0.00 | $0.00 | $5.10 | $0.00 |
| 2023 | 24401 | NWA - Noxious Weed Assessment | $2.15 | $2.15 | $0.00 | $0.00 | $4.30 | $0.00 |
| 2023 | 24401 | FP ADMIN - FP ADMIN | $0.50 | $0.00 | $0.00 | $0.00 | $0.50 | $0.00 |
| 2023 | 24401 | TOTAL: | $2287.70 | $2287.13 | $0.00 | $0.00 | $4574.83 | $0.00 |
|
| 2023 | 24401 | $2287.70 | $2287.13 | $0.00 | $0.00 | $4574.83 | $0.00 |
Values
| (+) Improvement Homesite Value: | + | $0 | |
| (+) Improvement Non-Homesite Value: | + | $460,980 | |
| (+) Land Homesite Value: | + | $0 | |
| (+) Land Non-Homesite Value: | + | $130,000 | |
| (+) Curr Use (HS): | + | $0 | $0 |
| (+) Curr Use (NHS): | + | $0 | $0 |
| | | -------------------------- | |
| (=) Market Value: | = | $590,980 | |
| (–) Productivity Loss: | – | $0 | |
| | | -------------------------- | |
| (=) Subtotal: | = | $590,980 | |
| (+) Senior Appraised Value: | + | $0 | |
| (+) Non-Senior Appraised Value: | + | $590,980 | |
| | | -------------------------- | |
| (=) Total Appraised Value: | = | $590,980 | |
| (–) Senior Exemption Loss: | – | $0 | |
| (–) Exemption Loss: | – | $0 | |
| | | -------------------------- | |
| (=) Taxable Value: | = | $590,980 | |
Taxing Jurisdiction
| Owner: | ANGELA GIANGRANDE BRANTLEY | | |
| % Ownership: | 100.0000000000% | | |
| Total Value: | $590,980 | | |
| Tax Area: | 0110 - C-50F1E1H2 |
| CE | COUNTY CURRENT EXPENSE | 0.9034619479 | $590,980 | $590,980 | $533.93 | | |
| CNTYDD | DEVELOPMENTAL DISABILITIES | 0.0052121823 | $590,980 | $590,980 | $3.08 | | |
| CNTYVET | VETERANS RELIEF | 0.0052777810 | $590,980 | $590,980 | $3.12 | | |
| MENTAL | MENTAL HEALTH | 0.0052121823 | $590,980 | $590,980 | $3.08 | | |
| PTGEN | CITY OF PT GENERAL | 0.8551967795 | $590,980 | $590,980 | $505.40 | | |
| PTLLL | CITY OF PT - LIBRARY LID LIFT | 0.4010114288 | $590,980 | $590,980 | $236.99 | | |
| PTMVBOND | CITY OF PT MV BOND | 0.0484717981 | $590,980 | $590,980 | $28.65 | | |
| HOSP2CASH | HOSP DIST #2 GENERAL | 0.0536075306 | $590,980 | $590,980 | $31.68 | | |
| SCH50BOND | SCHOOL DIST #50 BOND 2016 | 0.5377451389 | $590,980 | $590,980 | $317.80 | | |
| SCH50CP | SCHOOL DIST #50 CAP PROJ | 0.4573475088 | $590,980 | $590,980 | $270.28 | | |
| SCH50MO | SCHOOL DIST #50 EP & O | 0.8262822886 | $590,980 | $590,980 | $488.32 | | |
| CONSERVE | CONSERVATION FUTURES | 0.0275621078 | $590,980 | $590,980 | $16.29 | | |
| EMS1 | FIRE DIST #1 EMS | 0.4679948282 | $590,980 | $590,980 | $276.58 | | |
| FD1 | FIRE DIST #1 GENERAL | 1.2171942929 | $590,980 | $590,980 | $719.34 | | |
| PORTPT | PORT OF PT GENERAL | 0.1134941229 | $590,980 | $590,980 | $67.07 | | |
| PORTPTIDD | PORT OF PT IDD 2019 | 0.2577346692 | $590,980 | $590,980 | $152.32 | | |
| PUD1 | PUD #1 GENERAL | 0.0597888892 | $590,980 | $590,980 | $35.33 | | |
| STATE | STATE SCHOOL PART 1 | 1.4940692947 | $590,980 | $590,980 | $882.97 | | |
| STATE2 | STATE SCHOOL PART 2 | 0.8050170049 | $590,980 | $590,980 | $475.75 | | |
| | Total Tax Rate: | 8.5416817766 | | | | | |
| | | | | Taxes w/Current Exemptions: | $5,047.98 | | |
| | | | | Taxes w/o Exemptions: | $5,047.98 | | |
Improvement / Building
| Improvement #1: | Residential Bldg | State Code: | 11 | 1924.0 sqft | Value: | $460,980 |
| Bathrooms (#): | 2 (FULL) | Bathrooms (#): | 1 (HALF) | | Bedrooms (#): | 3 | Exterior Wall: | SI/ST | | Floor Construction: | FRAME | Foundation: | CONPR | | Heating/Cooling: | HPUMP | Roof Cover: | COMP |
|
| | Type | Description | Class CD | Sub Class CD | Year Built | Area |
| | MA | Main Area | 4+ | 15SF | 2011 | 1238.0 |
| | MA2 | Second Floor Main Area | 4+ | 15SF | 2011 | 686.0 |
| | HWPOR | House Wood Porch | 4 | * | 2011 | 36.0 |
| | HDECK | House Deck | 4 | * | 2011 | 12.0 |
| | GATT | House Attached Garage | 4 | 15SF | 2011 | 308.0 |
| | CONCD | Concrete Drive | 4 | * | 2011 | 700.0 |
Sketch
Property Image
Land
| 1 | 6030-1175L | | 0.0000 | 0.00 | 0.00 | 0.00 | 1.00 | $130,000 | $0 |
Roll Value History
| 2026 | N/A | N/A | N/A | N/A | N/A |
| 2025 | $460,980 | $130,000 | $0 | $590,980 | $590,980 |
| 2024 | $443,680 | $132,000 | $0 | $575,680 | $575,680 |
| 2023 | $424,390 | $115,000 | $0 | $539,390 | $539,390 |
| 2022 | $424,390 | $110,000 | $0 | $534,390 | $534,390 |
Deed and Sales History
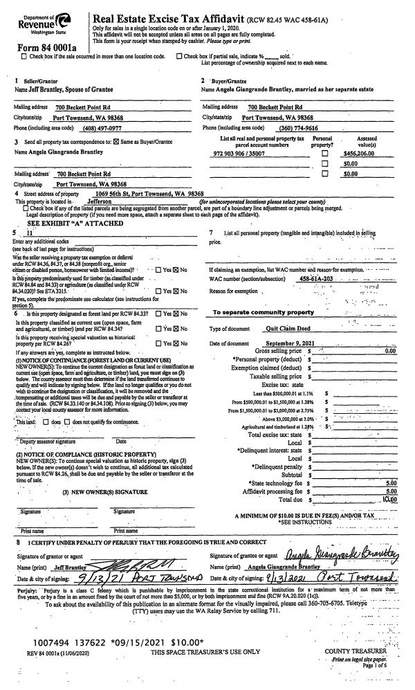
| 1 | 09/09/2021 | SWD | Statutory Warranty Deed | GARY J & MAUREEN R STEBBINS | ANGELA GIANGRANDE BRANTLEY | | | $550,000.00 | 137621 | |
| 2 | 09/09/2021 | QCD | Quit Claim Deed | ANGELA GIANGRANDE-BRANTLEY | ANGELA GIANGRANDE BRANTLEY | | | | 137622 | |
| 3 | 09/08/2020 | SWD | Statutory Warranty Deed | GERALD E & KELLY MA ANTHONY | GARY J & MAUREEN R STEBBINS | | | $485,000.00 | 135051 | |
| 4 | 07/27/1998 | SWD | Statutory Warranty Deed | LINDQUIST, ROSALIE ANN/ET | ANTHONY, GERALD E/KELLY | 0 | 0 | $23,000.00 | 85114 | 0 |
Payout Agreement
| No payout information available.. |