Property
Account |
| Property ID: | 35023 | Abbreviated Legal Description: | MONTANA ADDITION BLK 44 LOT 1 - PARCEL A BND BY LLA#132749 |
| Parcel # / Geo ID: | 972904401 | Agent Code: | |
| Type: | Real | | |
| Tax Area: | 0110 - C-50F1E1H2 | Land Use Code | 11 |
| Open Space: | N | DFL | N |
| Historic Property: | N | Remodel Property: | N |
| Multi-Family Redevelopment: | N | | |
| Township: | 31N | Section: | 34 |
| Range: | 1W |
Location |
| Address: | 1212 56TH ST ` PORT TOWNSEND, WA 98368 | Mapsco: | 083/028 |
| Neighborhood: | MONTANA ADDITION | Map ID: | |
| Neighborhood CD: | 6030 |
Owner |
| Name: | YONG ZHANG | Owner ID: | 96176 |
| Mailing Address: | 2554 HANCOCK ST PORT TOWNSEND, WA 98368-8528 | % Ownership: | 100.0000000000% |
| | | Exemptions: | |
Pay Tax Due
There is currently No Amount Due on this property.
Taxes and Assessment Details
Property Tax Information as of
03/12/2026
Click on "Statement Details" to expand or collapse a tax statement.
* Please enter a valid date ** Please enter a valid date *
Statement Details |
| | TOTAL: | $0.00 | $0.00 | $0.00 | $0.00 | $0.00 | $0.00 |
|
| | $0.00 | $0.00 | $0.00 | $0.00 | $0.00 | $0.00 |
Values
| (+) Improvement Homesite Value: | + | $0 | |
| (+) Improvement Non-Homesite Value: | + | $205,931 | |
| (+) Land Homesite Value: | + | $0 | |
| (+) Land Non-Homesite Value: | + | $130,000 | |
| (+) Curr Use (HS): | + | $0 | $0 |
| (+) Curr Use (NHS): | + | $0 | $0 |
| | | -------------------------- | |
| (=) Market Value: | = | $335,931 | |
| (–) Productivity Loss: | – | $0 | |
| | | -------------------------- | |
| (=) Subtotal: | = | $335,931 | |
| (+) Senior Appraised Value: | + | $0 | |
| (+) Non-Senior Appraised Value: | + | $335,931 | |
| | | -------------------------- | |
| (=) Total Appraised Value: | = | $335,931 | |
| (–) Senior Exemption Loss: | – | $0 | |
| (–) Exemption Loss: | – | $0 | |
| | | -------------------------- | |
| (=) Taxable Value: | = | $335,931 | |
Taxing Jurisdiction
| Owner: | YONG ZHANG | | |
| % Ownership: | 100.0000000000% | | |
| Total Value: | $335,931 | | |
| Tax Area: | 0110 - C-50F1E1H2 |
| CE | COUNTY CURRENT EXPENSE | 0.9034619479 | $335,931 | $335,931 | $303.50 | | |
| CNTYDD | DEVELOPMENTAL DISABILITIES | 0.0052121823 | $335,931 | $335,931 | $1.75 | | |
| CNTYVET | VETERANS RELIEF | 0.0052777810 | $335,931 | $335,931 | $1.77 | | |
| MENTAL | MENTAL HEALTH | 0.0052121823 | $335,931 | $335,931 | $1.75 | | |
| PTGEN | CITY OF PT GENERAL | 0.8551967795 | $335,931 | $335,931 | $287.29 | | |
| PTLLL | CITY OF PT - LIBRARY LID LIFT | 0.4010114288 | $335,931 | $335,931 | $134.71 | | |
| PTMVBOND | CITY OF PT MV BOND | 0.0484717981 | $335,931 | $335,931 | $16.28 | | |
| HOSP2CASH | HOSP DIST #2 GENERAL | 0.0536075306 | $335,931 | $335,931 | $18.01 | | |
| SCH50BOND | SCHOOL DIST #50 BOND 2016 | 0.5377451389 | $335,931 | $335,931 | $180.65 | | |
| SCH50CP | SCHOOL DIST #50 CAP PROJ | 0.4573475088 | $335,931 | $335,931 | $153.64 | | |
| SCH50MO | SCHOOL DIST #50 EP & O | 0.8262822886 | $335,931 | $335,931 | $277.57 | | |
| CONSERVE | CONSERVATION FUTURES | 0.0275621078 | $335,931 | $335,931 | $9.26 | | |
| EMS1 | FIRE DIST #1 EMS | 0.4679948282 | $335,931 | $335,931 | $157.21 | | |
| FD1 | FIRE DIST #1 GENERAL | 1.2171942929 | $335,931 | $335,931 | $408.89 | | |
| PORTPT | PORT OF PT GENERAL | 0.1134941229 | $335,931 | $335,931 | $38.13 | | |
| PORTPTIDD | PORT OF PT IDD 2019 | 0.2577346692 | $335,931 | $335,931 | $86.58 | | |
| PUD1 | PUD #1 GENERAL | 0.0597888892 | $335,931 | $335,931 | $20.08 | | |
| STATE | STATE SCHOOL PART 1 | 1.4940692947 | $335,931 | $335,931 | $501.90 | | |
| STATE2 | STATE SCHOOL PART 2 | 0.8050170049 | $335,931 | $335,931 | $270.43 | | |
| | Total Tax Rate: | 8.5416817766 | | | | | |
| | | | | Taxes w/Current Exemptions: | $2,869.40 | | |
| | | | | Taxes w/o Exemptions: | $2,869.40 | | |
Improvement / Building
| Improvement #1: | Residential Bldg | State Code: | 11 | 999.0 sqft | Value: | $205,931 |
| Bathrooms (#): | 1 (FULL) | Bedrooms (#): | 2 | | Exterior Wall: | SI/ST | Floor Construction: | FRAME | | Foundation: | CONPR | Heating/Cooling: | HPUMP | | Roof Cover: | COMP |   |   |
|
| | Type | Description | Class CD | Sub Class CD | Year Built | Area |
| | MA | Main Area | 3 | 1S | 2022 | 999.0 |
| | HCPOR | House Concrete Porch | 3 | 1S | 2022 | 72.8 |
Sketch
Property Image
Land
| 1 | 6030-1175L | Terr View/Good Qual Lots | 0.0000 | 0.00 | 0.00 | 0.00 | 1.00 | $130,000 | $0 |
Roll Value History
| 2026 | N/A | N/A | N/A | N/A | N/A |
| 2025 | $205,931 | $130,000 | $0 | $335,931 | $335,931 |
| 2024 | $199,826 | $132,000 | $0 | $331,826 | $331,826 |
| 2023 | $191,138 | $110,000 | $0 | $301,138 | $301,138 |
| 2022 | $191,138 | $105,000 | $0 | $296,138 | $296,138 |
Deed and Sales History
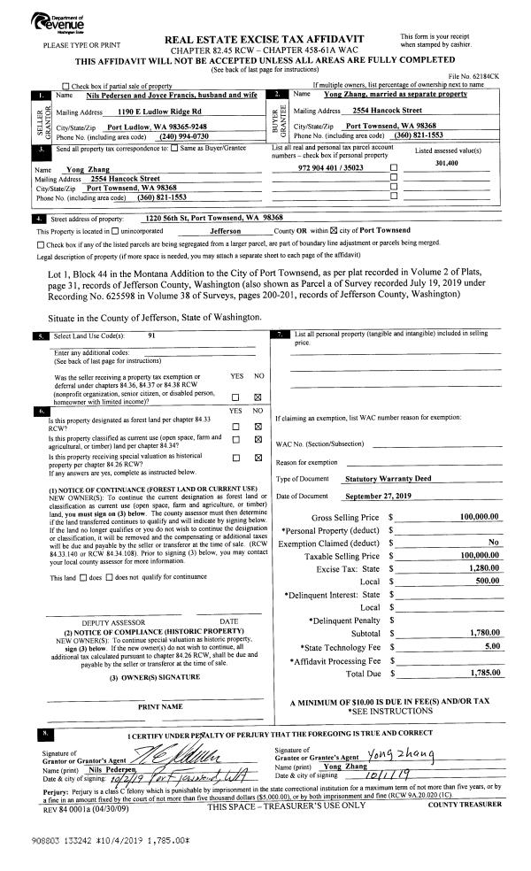
| 1 | 09/27/2019 | QCD | Quit Claim Deed | | | | | | 133243 | |
| 2 | 09/27/2019 | SWD | Statutory Warranty Deed | NILS E PEDERSEN | YONG ZHANG | | | $100,000.00 | 133242 | |
| 3 | 05/29/2019 | BLA | Boundary Line Adjustment | NILS E PEDERSEN | NILS E PEDERSEN | | | | 132749 | |
| 4 | 06/28/2017 | SWD | Statutory Warranty Deed | ROSALIE R LINDQUIST | NILS E PEDERSEN | | | $775,000.00 | 128087 | |
|   | |
| 5 | 05/22/2003 | BLA | Boundary Line Adjustment | LINDQUIST, ELMER G/ROSALI | NELSON, RICHARD M/JOAN P | 0 | 0 | $0.00 | 97343 | 0 |
| 6 | 05/21/2003 | SWD | Statutory Warranty Deed | LINDQUIST, ELMER G/ROSALI | NELSON, RICHARD M/JOAN P | 0 | 0 | $0.00 | 97345 | 0 |
Payout Agreement
| No payout information available.. |