Property
Account |
| Property ID: | 35031 | Abbreviated Legal Description: | MONTANA ADDITION BLK 46 LOTS 6 & 8 |
| Parcel # / Geo ID: | 972904606 | Agent Code: | |
| Type: | Real | | |
| Tax Area: | 0110 - C-50F1E1H2 | Land Use Code | 11 |
| Open Space: | N | DFL | N |
| Historic Property: | N | Remodel Property: | N |
| Multi-Family Redevelopment: | N | | |
| Township: | 31N | Section: | 34 |
| Range: | 1W |
Location |
| Address: | 1077 57TH ST PORT TOWNSEND, WA 98368 | Mapsco: | 083/046 |
| Neighborhood: | MONTANA ADDITION | Map ID: | |
| Neighborhood CD: | 6030 |
Owner |
| Name: | SAMUEL SCHROEDER | Owner ID: | 108404 |
| Mailing Address: | EMILY BUCKNER 1077 57TH ST PORT TOWNSEND, WA 98368-1224 | % Ownership: | 100.0000000000% |
| | | Exemptions: | |
Pay Tax Due
Select the appropriate checkbox next to the year to be paid. Multiple years may be selected.
*Convenience Fee not included
Taxes and Assessment Details
Property Tax Information as of
03/10/2026
Click on "Statement Details" to expand or collapse a tax statement.
* Please enter a valid date ** Please enter a valid date *
Statement Details |
| 2026 | 24275 | STATE - STATE LEVY (SCHOOL) | $657.95 | $657.93 | $0.00 | $0.00 | $0.00 | $1315.88 |
| 2026 | 24275 | COUNTY - COUNTY LEVIES (CE, DD, VET, MH) | $263.04 | $263.04 | $0.00 | $0.00 | $0.00 | $526.08 |
| 2026 | 24275 | CONSERVE - CONSERVATION FUTURES | $7.89 | $7.89 | $0.00 | $0.00 | $0.00 | $15.78 |
| 2026 | 24275 | CITYPT - CITY OF PT | $373.37 | $373.36 | $0.00 | $0.00 | $0.00 | $746.73 |
| 2026 | 24275 | PORTPT - PORT DISTRICT | $106.24 | $106.23 | $0.00 | $0.00 | $0.00 | $212.47 |
| 2026 | 24275 | PUD1 - PUD #1 | $17.11 | $17.11 | $0.00 | $0.00 | $0.00 | $34.22 |
| 2026 | 24275 | HD2 - HOSP DIST #2 | $15.34 | $15.34 | $0.00 | $0.00 | $0.00 | $30.68 |
| 2026 | 24275 | SD50 - SCHOOL DIST #50 | $521.23 | $521.23 | $0.00 | $0.00 | $0.00 | $1042.46 |
| 2026 | 24275 | FD1 - FIRE DISTRICT #1 | $348.33 | $348.33 | $0.00 | $0.00 | $0.00 | $696.66 |
| 2026 | 24275 | EMS1 - FIRE DIST #1 EMS | $133.93 | $133.93 | $0.00 | $0.00 | $0.00 | $267.86 |
| 2026 | 24275 | JCCD - JC Conservation District | $2.55 | $2.55 | $0.00 | $0.00 | $0.00 | $5.10 |
| 2026 | 24275 | NWA - Noxious Weed Assessment | $2.98 | $2.97 | $0.00 | $0.00 | $0.00 | $5.95 |
| 2026 | 24275 | TOTAL: | $2449.96 | $2449.91 | $0.00 | $0.00 | $0.00 | $4899.87 |
|
| 2026 | 24275 | $2449.96 | $2449.91 | $0.00 | $0.00 | $0.00 | $4899.87 |
Statement Details |
| 2025 | 24340 | STATE - STATE LEVY (SCHOOL) | $679.43 | $679.42 | $0.00 | $0.00 | $1358.85 | $0.00 |
| 2025 | 24340 | COUNTY - COUNTY LEVIES (CE, DD, VET, MH) | $267.18 | $267.17 | $0.00 | $0.00 | $534.35 | $0.00 |
| 2025 | 24340 | CONSERVE - CONSERVATION FUTURES | $8.01 | $8.01 | $0.00 | $0.00 | $16.02 | $0.00 |
| 2025 | 24340 | CITYPT - CITY OF PT | $385.31 | $385.29 | $0.00 | $0.00 | $770.60 | $0.00 |
| 2025 | 24340 | PORTPT - PORT DISTRICT | $109.03 | $109.02 | $0.00 | $0.00 | $218.05 | $0.00 |
| 2025 | 24340 | PUD1 - PUD #1 | $17.49 | $17.48 | $0.00 | $0.00 | $34.97 | $0.00 |
| 2025 | 24340 | HD2 - HOSP DIST #2 | $15.59 | $15.59 | $0.00 | $0.00 | $31.18 | $0.00 |
| 2025 | 24340 | SD50 - SCHOOL DIST #50 | $496.56 | $496.53 | $0.00 | $0.00 | $993.09 | $0.00 |
| 2025 | 24340 | FD1 - FIRE DISTRICT #1 | $352.58 | $352.57 | $0.00 | $0.00 | $705.15 | $0.00 |
| 2025 | 24340 | EMS1 - FIRE DIST #1 EMS | $135.61 | $135.61 | $0.00 | $0.00 | $271.22 | $0.00 |
| 2025 | 24340 | JCCD - JC Conservation District | $2.55 | $2.55 | $0.00 | $0.00 | $5.10 | $0.00 |
| 2025 | 24340 | NWA - Noxious Weed Assessment | $2.15 | $2.15 | $0.00 | $0.00 | $4.30 | $0.00 |
| 2025 | 24340 | TOTAL: | $2471.49 | $2471.39 | $0.00 | $0.00 | $4942.88 | $0.00 |
|
| 2025 | 24340 | $2471.49 | $2471.39 | $0.00 | $0.00 | $4942.88 | $0.00 |
Statement Details |
| 2024 | 24386 | STATE - STATE LEVY (SCHOOL) | $608.55 | $608.55 | $0.00 | $0.00 | $1217.10 | $0.00 |
| 2024 | 24386 | COUNTY - COUNTY LEVIES (CE, DD, VET, MH) | $260.41 | $260.40 | $0.00 | $0.00 | $520.81 | $0.00 |
| 2024 | 24386 | CONSERVE - CONSERVATION FUTURES | $7.81 | $7.81 | $0.00 | $0.00 | $15.62 | $0.00 |
| 2024 | 24386 | CITYPT - CITY OF PT | $372.09 | $372.07 | $0.00 | $0.00 | $744.16 | $0.00 |
| 2024 | 24386 | PORTPT - PORT DISTRICT | $107.57 | $107.55 | $0.00 | $0.00 | $215.12 | $0.00 |
| 2024 | 24386 | PUD1 - PUD #1 | $17.11 | $17.10 | $0.00 | $0.00 | $34.21 | $0.00 |
| 2024 | 24386 | HD2 - HOSP DIST #2 | $15.20 | $15.19 | $0.00 | $0.00 | $30.39 | $0.00 |
| 2024 | 24386 | SD50 - SCHOOL DIST #50 | $492.35 | $492.34 | $0.00 | $0.00 | $984.69 | $0.00 |
| 2024 | 24386 | FD1 - FIRE DISTRICT #1 | $344.32 | $344.31 | $0.00 | $0.00 | $688.63 | $0.00 |
| 2024 | 24386 | EMS1 - FIRE DIST #1 EMS | $131.52 | $131.51 | $0.00 | $0.00 | $263.03 | $0.00 |
| 2024 | 24386 | JCCD - JC Conservation District | $2.55 | $2.55 | $0.00 | $0.00 | $5.10 | $0.00 |
| 2024 | 24386 | NWA - Noxious Weed Assessment | $2.15 | $2.15 | $0.00 | $0.00 | $4.30 | $0.00 |
| 2024 | 24386 | TOTAL: | $2361.63 | $2361.53 | $0.00 | $0.00 | $4723.16 | $0.00 |
|
| 2024 | 24386 | $2361.63 | $2361.53 | $0.00 | $0.00 | $4723.16 | $0.00 |
Statement Details |
| 2023 | 24425 | STATE - STATE LEVY (SCHOOL) | $613.34 | $613.32 | $0.00 | $0.00 | $1226.66 | $0.00 |
| 2023 | 24425 | COUNTY - COUNTY LEVIES (CE, DD, VET, MH) | $267.64 | $267.64 | $0.00 | $0.00 | $535.28 | $0.00 |
| 2023 | 24425 | CONSERVE - CONSERVATION FUTURES | $8.03 | $8.02 | $0.00 | $0.00 | $16.05 | $0.00 |
| 2023 | 24425 | CITYPT - CITY OF PT | $378.27 | $378.26 | $0.00 | $0.00 | $756.53 | $0.00 |
| 2023 | 24425 | PORTPT - PORT DISTRICT | $112.75 | $112.73 | $0.00 | $0.00 | $225.48 | $0.00 |
| 2023 | 24425 | PUD1 - PUD #1 | $17.74 | $17.74 | $0.00 | $0.00 | $35.48 | $0.00 |
| 2023 | 24425 | HD2 - HOSP DIST #2 | $15.62 | $15.62 | $0.00 | $0.00 | $31.24 | $0.00 |
| 2023 | 24425 | SD50 - SCHOOL DIST #50 | $486.70 | $486.68 | $0.00 | $0.00 | $973.38 | $0.00 |
| 2023 | 24425 | FD1 - FIRE DISTRICT #1 | $220.48 | $220.48 | $0.00 | $0.00 | $440.96 | $0.00 |
| 2023 | 24425 | EMS1 - FIRE DIST #1 EMS | $93.79 | $93.79 | $0.00 | $0.00 | $187.58 | $0.00 |
| 2023 | 24425 | JCCD - JC Conservation District | $2.55 | $2.55 | $0.00 | $0.00 | $5.10 | $0.00 |
| 2023 | 24425 | NWA - Noxious Weed Assessment | $2.15 | $2.15 | $0.00 | $0.00 | $4.30 | $0.00 |
| 2023 | 24425 | TOTAL: | $2219.06 | $2218.98 | $0.00 | $0.00 | $4438.04 | $0.00 |
|
| 2023 | 24425 | $2219.06 | $2218.98 | $0.00 | $0.00 | $4438.04 | $0.00 |
Values
| (+) Improvement Homesite Value: | + | $0 | |
| (+) Improvement Non-Homesite Value: | + | $342,349 | |
| (+) Land Homesite Value: | + | $0 | |
| (+) Land Non-Homesite Value: | + | $230,000 | |
| (+) Curr Use (HS): | + | $0 | $0 |
| (+) Curr Use (NHS): | + | $0 | $0 |
| | | -------------------------- | |
| (=) Market Value: | = | $572,349 | |
| (–) Productivity Loss: | – | $0 | |
| | | -------------------------- | |
| (=) Subtotal: | = | $572,349 | |
| (+) Senior Appraised Value: | + | $0 | |
| (+) Non-Senior Appraised Value: | + | $572,349 | |
| | | -------------------------- | |
| (=) Total Appraised Value: | = | $572,349 | |
| (–) Senior Exemption Loss: | – | $0 | |
| (–) Exemption Loss: | – | $0 | |
| | | -------------------------- | |
| (=) Taxable Value: | = | $572,349 | |
Taxing Jurisdiction
| Owner: | SAMUEL SCHROEDER | | |
| % Ownership: | 100.0000000000% | | |
| Total Value: | $572,349 | | |
| Tax Area: | 0110 - C-50F1E1H2 |
| CE | COUNTY CURRENT EXPENSE | 0.9034619479 | $572,349 | $572,349 | $517.10 | | |
| CNTYDD | DEVELOPMENTAL DISABILITIES | 0.0052121823 | $572,349 | $572,349 | $2.98 | | |
| CNTYVET | VETERANS RELIEF | 0.0052777810 | $572,349 | $572,349 | $3.02 | | |
| MENTAL | MENTAL HEALTH | 0.0052121823 | $572,349 | $572,349 | $2.98 | | |
| PTGEN | CITY OF PT GENERAL | 0.8551967795 | $572,349 | $572,349 | $489.47 | | |
| PTLLL | CITY OF PT - LIBRARY LID LIFT | 0.4010114288 | $572,349 | $572,349 | $229.52 | | |
| PTMVBOND | CITY OF PT MV BOND | 0.0484717981 | $572,349 | $572,349 | $27.74 | | |
| HOSP2CASH | HOSP DIST #2 GENERAL | 0.0536075306 | $572,349 | $572,349 | $30.68 | | |
| SCH50BOND | SCHOOL DIST #50 BOND 2016 | 0.5377451389 | $572,349 | $572,349 | $307.78 | | |
| SCH50CP | SCHOOL DIST #50 CAP PROJ | 0.4573475088 | $572,349 | $572,349 | $261.76 | | |
| SCH50MO | SCHOOL DIST #50 EP & O | 0.8262822886 | $572,349 | $572,349 | $472.92 | | |
| CONSERVE | CONSERVATION FUTURES | 0.0275621078 | $572,349 | $572,349 | $15.78 | | |
| EMS1 | FIRE DIST #1 EMS | 0.4679948282 | $572,349 | $572,349 | $267.86 | | |
| FD1 | FIRE DIST #1 GENERAL | 1.2171942929 | $572,349 | $572,349 | $696.66 | | |
| PORTPT | PORT OF PT GENERAL | 0.1134941229 | $572,349 | $572,349 | $64.96 | | |
| PORTPTIDD | PORT OF PT IDD 2019 | 0.2577346692 | $572,349 | $572,349 | $147.51 | | |
| PUD1 | PUD #1 GENERAL | 0.0597888892 | $572,349 | $572,349 | $34.22 | | |
| STATE | STATE SCHOOL PART 1 | 1.4940692947 | $572,349 | $572,349 | $855.13 | | |
| STATE2 | STATE SCHOOL PART 2 | 0.8050170049 | $572,349 | $572,349 | $460.75 | | |
| | Total Tax Rate: | 8.5416817766 | | | | | |
| | | | | Taxes w/Current Exemptions: | $4,888.82 | | |
| | | | | Taxes w/o Exemptions: | $4,888.82 | | |
Improvement / Building
| Improvement #1: | Residential Bldg | State Code: | 11 | 1005.0 sqft | Value: | $342,349 |
| Bathrooms (#): | 2 (FULL) | Bedrooms (#): | 1 | | Exterior Wall: | PL/T1 | Fireplace: | PROPS-GOOD | | Floor Construction: | FRAME | Foundation: | CONPR | | Heating/Cooling: | OTHER | Roof Cover: | METAL |
|
| | Type | Description | Class CD | Sub Class CD | Year Built | Area |
| | MA | Main Area | 5- | 15SF | 2005 | 795.0 |
| | MA2 | Second Floor Main Area | 5- | 15SF | 2005 | 210.0 |
| | HBAL | House Balcony | 4 | * | 2005 | 12.0 |
| | HDECK | House Deck | 4 | * | 2005 | 424.0 |
| | HADDN | House Addition | 5 | * | 2005 | 120.0 |
| | HWPOR | House Wood Porch | 4 | * | 2005 | 36.0 |
| | HWPOR | House Wood Porch | 4 | * | 2005 | 52.0 |
| | PATIO | House Patio | 4 | * | 2005 | 120.0 |
| | SHED | Shed (Table Not Dep) | 4 | * | 2005 | 120.0 |
Sketch
Property Image
Land
| 1 | 6030-1175L | | 0.0000 | 0.00 | 0.00 | 0.00 | 2.00 | $230,000 | $0 |
Roll Value History
| 2026 | N/A | N/A | N/A | N/A | N/A |
| 2025 | $342,349 | $230,000 | $0 | $572,349 | $572,349 |
| 2024 | $335,655 | $231,000 | $0 | $566,655 | $566,655 |
| 2023 | $321,061 | $205,000 | $0 | $526,061 | $526,061 |
| 2022 | $321,061 | $200,000 | $0 | $521,061 | $521,061 |
Deed and Sales History
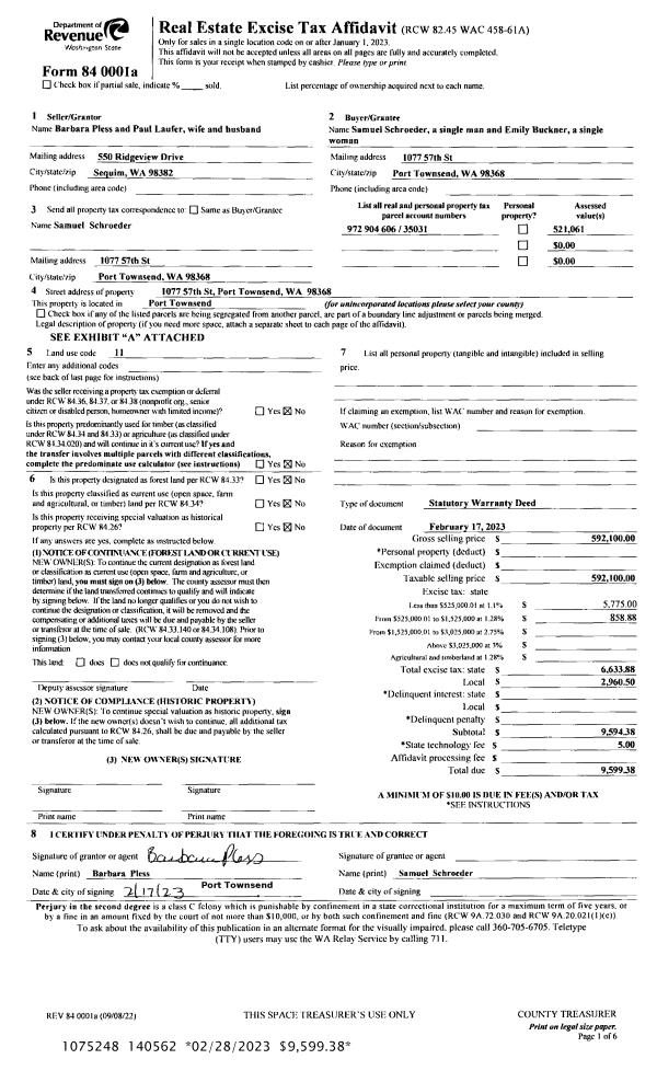
| 1 | 02/17/2023 | SWD | Statutory Warranty Deed | BARBARA PLESS & PAUL LAUFER | SAMUEL SCHROEDER | | | $592,100.00 | 140562 | |
| 2 | 04/21/2021 | SWD | Statutory Warranty Deed | JEAN M TUOHAEL | BARBARA PLESS & PAUL LAUFER | | | $490,000.00 | 136656 | |
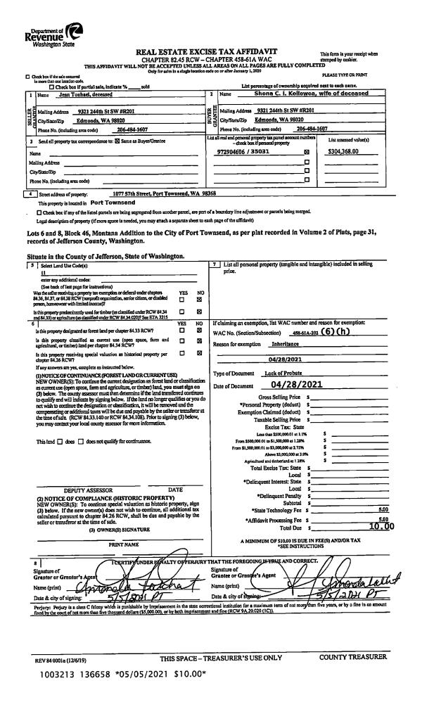
| 3 | 04/28/2021 | SWD | Statutory Warranty Deed | JEAN TUOHAEL | SHENA C I KELLEWEA | | | | 136658 | |
| 4 | 03/29/2005 | SWD | Statutory Warranty Deed | KELLEWEA, SHENA C I | KELLEWEA, SHEANA CI TRUSTEE OF | 0 | 0 | $0.00 | 103090 | 0 |
Payout Agreement
| No payout information available.. |