Property
Account |
| Property ID: | 35148 | Abbreviated Legal Description: | MOUNTAIN VIEW BLK 2 LOTS 3(W10'), 4(ALL) |
| Parcel # / Geo ID: | 974100203 | Agent Code: | |
| Type: | Real | | |
| Tax Area: | 0110 - C-50F1E1H2 | Land Use Code | 11 |
| Open Space: | N | DFL | N |
| Historic Property: | N | Remodel Property: | N |
| Multi-Family Redevelopment: | N | | |
| Township: | 30N | Section: | 2 |
| Range: | 1W |
Location |
| Address: | 1408 ADAMS ST PORT TOWNSEND, WA 98368 | Mapsco: | 084/062 |
| Neighborhood: | MOUNTAIN VIEW 1ST & 2ND PICKETT SP & TX #'S | Map ID: | |
| Neighborhood CD: | 6305 |
Owner |
| Name: | MARY H DUTTON | Owner ID: | 14921 |
| Mailing Address: | 1408 ADAMS ST PORT TOWNSEND, WA 98368-5327 | % Ownership: | 100.0000000000% |
| | | Exemptions: | |
Pay Tax Due
Select the appropriate checkbox next to the year to be paid. Multiple years may be selected.
*Convenience Fee not included
Taxes and Assessment Details
Property Tax Information as of
03/11/2026
Click on "Statement Details" to expand or collapse a tax statement.
* Please enter a valid date ** Please enter a valid date *
Statement Details |
| 2026 | 24390 | STATE - STATE LEVY (SCHOOL) | $831.23 | $831.22 | $0.00 | $0.00 | $0.00 | $1662.45 |
| 2026 | 24390 | COUNTY - COUNTY LEVIES (CE, DD, VET, MH) | $332.34 | $332.31 | $0.00 | $0.00 | $0.00 | $664.65 |
| 2026 | 24390 | CONSERVE - CONSERVATION FUTURES | $9.97 | $9.96 | $0.00 | $0.00 | $0.00 | $19.93 |
| 2026 | 24390 | CITYPT - CITY OF PT | $471.72 | $471.69 | $0.00 | $0.00 | $0.00 | $943.41 |
| 2026 | 24390 | PORTPT - PORT DISTRICT | $134.23 | $134.21 | $0.00 | $0.00 | $0.00 | $268.44 |
| 2026 | 24390 | PUD1 - PUD #1 | $21.62 | $21.61 | $0.00 | $0.00 | $0.00 | $43.23 |
| 2026 | 24390 | HD2 - HOSP DIST #2 | $19.38 | $19.38 | $0.00 | $0.00 | $0.00 | $38.76 |
| 2026 | 24390 | SD50 - SCHOOL DIST #50 | $658.52 | $658.51 | $0.00 | $0.00 | $0.00 | $1317.03 |
| 2026 | 24390 | FD1 - FIRE DISTRICT #1 | $440.08 | $440.07 | $0.00 | $0.00 | $0.00 | $880.15 |
| 2026 | 24390 | EMS1 - FIRE DIST #1 EMS | $169.20 | $169.20 | $0.00 | $0.00 | $0.00 | $338.40 |
| 2026 | 24390 | JCCD - JC Conservation District | $2.55 | $2.55 | $0.00 | $0.00 | $0.00 | $5.10 |
| 2026 | 24390 | NWA - Noxious Weed Assessment | $2.98 | $2.97 | $0.00 | $0.00 | $0.00 | $5.95 |
| 2026 | 24390 | TOTAL: | $3093.82 | $3093.68 | $0.00 | $0.00 | $0.00 | $6187.50 |
|
| 2026 | 24390 | $3093.82 | $3093.68 | $0.00 | $0.00 | $0.00 | $6187.50 |
Statement Details |
| 2025 | 24457 | STATE - STATE LEVY (SCHOOL) | $849.16 | $849.15 | $0.00 | $0.00 | $1698.31 | $0.00 |
| 2025 | 24457 | COUNTY - COUNTY LEVIES (CE, DD, VET, MH) | $333.94 | $333.92 | $0.00 | $0.00 | $667.86 | $0.00 |
| 2025 | 24457 | CONSERVE - CONSERVATION FUTURES | $10.02 | $10.01 | $0.00 | $0.00 | $20.03 | $0.00 |
| 2025 | 24457 | CITYPT - CITY OF PT | $481.56 | $481.55 | $0.00 | $0.00 | $963.11 | $0.00 |
| 2025 | 24457 | PORTPT - PORT DISTRICT | $136.26 | $136.26 | $0.00 | $0.00 | $272.52 | $0.00 |
| 2025 | 24457 | PUD1 - PUD #1 | $21.85 | $21.85 | $0.00 | $0.00 | $43.70 | $0.00 |
| 2025 | 24457 | HD2 - HOSP DIST #2 | $19.48 | $19.48 | $0.00 | $0.00 | $38.96 | $0.00 |
| 2025 | 24457 | SD50 - SCHOOL DIST #50 | $620.60 | $620.59 | $0.00 | $0.00 | $1241.19 | $0.00 |
| 2025 | 24457 | FD1 - FIRE DISTRICT #1 | $440.65 | $440.65 | $0.00 | $0.00 | $881.30 | $0.00 |
| 2025 | 24457 | EMS1 - FIRE DIST #1 EMS | $169.49 | $169.48 | $0.00 | $0.00 | $338.97 | $0.00 |
| 2025 | 24457 | JCCD - JC Conservation District | $2.55 | $2.55 | $0.00 | $0.00 | $5.10 | $0.00 |
| 2025 | 24457 | NWA - Noxious Weed Assessment | $2.15 | $2.15 | $0.00 | $0.00 | $4.30 | $0.00 |
| 2025 | 24457 | TOTAL: | $3087.71 | $3087.64 | $0.00 | $0.00 | $6175.35 | $0.00 |
|
| 2025 | 24457 | $3087.71 | $3087.64 | $0.00 | $0.00 | $6175.35 | $0.00 |
Statement Details |
| 2024 | 24503 | STATE - STATE LEVY (SCHOOL) | $778.60 | $778.60 | $0.00 | $0.00 | $1557.20 | $0.00 |
| 2024 | 24503 | COUNTY - COUNTY LEVIES (CE, DD, VET, MH) | $333.18 | $333.16 | $0.00 | $0.00 | $666.34 | $0.00 |
| 2024 | 24503 | CONSERVE - CONSERVATION FUTURES | $9.99 | $9.99 | $0.00 | $0.00 | $19.98 | $0.00 |
| 2024 | 24503 | CITYPT - CITY OF PT | $476.07 | $476.05 | $0.00 | $0.00 | $952.12 | $0.00 |
| 2024 | 24503 | PORTPT - PORT DISTRICT | $137.62 | $137.61 | $0.00 | $0.00 | $275.23 | $0.00 |
| 2024 | 24503 | PUD1 - PUD #1 | $21.89 | $21.88 | $0.00 | $0.00 | $43.77 | $0.00 |
| 2024 | 24503 | HD2 - HOSP DIST #2 | $19.44 | $19.44 | $0.00 | $0.00 | $38.88 | $0.00 |
| 2024 | 24503 | SD50 - SCHOOL DIST #50 | $629.93 | $629.92 | $0.00 | $0.00 | $1259.85 | $0.00 |
| 2024 | 24503 | FD1 - FIRE DISTRICT #1 | $440.53 | $440.53 | $0.00 | $0.00 | $881.06 | $0.00 |
| 2024 | 24503 | EMS1 - FIRE DIST #1 EMS | $168.27 | $168.26 | $0.00 | $0.00 | $336.53 | $0.00 |
| 2024 | 24503 | JCCD - JC Conservation District | $2.55 | $2.55 | $0.00 | $0.00 | $5.10 | $0.00 |
| 2024 | 24503 | NWA - Noxious Weed Assessment | $2.15 | $2.15 | $0.00 | $0.00 | $4.30 | $0.00 |
| 2024 | 24503 | TOTAL: | $3020.22 | $3020.14 | $0.00 | $0.00 | $6040.36 | $0.00 |
|
| 2024 | 24503 | $3020.22 | $3020.14 | $0.00 | $0.00 | $6040.36 | $0.00 |
Statement Details |
| 2023 | 24542 | STATE - STATE LEVY (SCHOOL) | $731.65 | $731.64 | $0.00 | $0.00 | $1463.29 | $0.00 |
| 2023 | 24542 | COUNTY - COUNTY LEVIES (CE, DD, VET, MH) | $319.27 | $319.26 | $0.00 | $0.00 | $638.53 | $0.00 |
| 2023 | 24542 | CONSERVE - CONSERVATION FUTURES | $9.58 | $9.57 | $0.00 | $0.00 | $19.15 | $0.00 |
| 2023 | 24542 | CITYPT - CITY OF PT | $451.24 | $451.23 | $0.00 | $0.00 | $902.47 | $0.00 |
| 2023 | 24542 | PORTPT - PORT DISTRICT | $134.49 | $134.49 | $0.00 | $0.00 | $268.98 | $0.00 |
| 2023 | 24542 | PUD1 - PUD #1 | $21.17 | $21.16 | $0.00 | $0.00 | $42.33 | $0.00 |
| 2023 | 24542 | HD2 - HOSP DIST #2 | $18.63 | $18.63 | $0.00 | $0.00 | $37.26 | $0.00 |
| 2023 | 24542 | SD50 - SCHOOL DIST #50 | $580.59 | $580.57 | $0.00 | $0.00 | $1161.16 | $0.00 |
| 2023 | 24542 | FD1 - FIRE DISTRICT #1 | $263.02 | $263.01 | $0.00 | $0.00 | $526.03 | $0.00 |
| 2023 | 24542 | EMS1 - FIRE DIST #1 EMS | $111.88 | $111.88 | $0.00 | $0.00 | $223.76 | $0.00 |
| 2023 | 24542 | JCCD - JC Conservation District | $2.55 | $2.55 | $0.00 | $0.00 | $5.10 | $0.00 |
| 2023 | 24542 | NWA - Noxious Weed Assessment | $2.15 | $2.15 | $0.00 | $0.00 | $4.30 | $0.00 |
| 2023 | 24542 | TOTAL: | $2646.22 | $2646.14 | $0.00 | $0.00 | $5292.36 | $0.00 |
|
| 2023 | 24542 | $2646.22 | $2646.14 | $0.00 | $0.00 | $5292.36 | $0.00 |
Values
| (+) Improvement Homesite Value: | + | $0 | |
| (+) Improvement Non-Homesite Value: | + | $440,094 | |
| (+) Land Homesite Value: | + | $0 | |
| (+) Land Non-Homesite Value: | + | $283,000 | |
| (+) Curr Use (HS): | + | $0 | $0 |
| (+) Curr Use (NHS): | + | $0 | $0 |
| | | -------------------------- | |
| (=) Market Value: | = | $723,094 | |
| (–) Productivity Loss: | – | $0 | |
| | | -------------------------- | |
| (=) Subtotal: | = | $723,094 | |
| (+) Senior Appraised Value: | + | $0 | |
| (+) Non-Senior Appraised Value: | + | $723,094 | |
| | | -------------------------- | |
| (=) Total Appraised Value: | = | $723,094 | |
| (–) Senior Exemption Loss: | – | $0 | |
| (–) Exemption Loss: | – | $0 | |
| | | -------------------------- | |
| (=) Taxable Value: | = | $723,094 | |
Taxing Jurisdiction
| Owner: | MARY H DUTTON | | |
| % Ownership: | 100.0000000000% | | |
| Total Value: | $723,094 | | |
| Tax Area: | 0110 - C-50F1E1H2 |
| CE | COUNTY CURRENT EXPENSE | 0.9034619479 | $723,094 | $723,094 | $653.29 | | |
| CNTYDD | DEVELOPMENTAL DISABILITIES | 0.0052121823 | $723,094 | $723,094 | $3.77 | | |
| CNTYVET | VETERANS RELIEF | 0.0052777810 | $723,094 | $723,094 | $3.82 | | |
| MENTAL | MENTAL HEALTH | 0.0052121823 | $723,094 | $723,094 | $3.77 | | |
| PTGEN | CITY OF PT GENERAL | 0.8551967795 | $723,094 | $723,094 | $618.39 | | |
| PTLLL | CITY OF PT - LIBRARY LID LIFT | 0.4010114288 | $723,094 | $723,094 | $289.97 | | |
| PTMVBOND | CITY OF PT MV BOND | 0.0484717981 | $723,094 | $723,094 | $35.05 | | |
| HOSP2CASH | HOSP DIST #2 GENERAL | 0.0536075306 | $723,094 | $723,094 | $38.76 | | |
| SCH50BOND | SCHOOL DIST #50 BOND 2016 | 0.5377451389 | $723,094 | $723,094 | $388.84 | | |
| SCH50CP | SCHOOL DIST #50 CAP PROJ | 0.4573475088 | $723,094 | $723,094 | $330.71 | | |
| SCH50MO | SCHOOL DIST #50 EP & O | 0.8262822886 | $723,094 | $723,094 | $597.48 | | |
| CONSERVE | CONSERVATION FUTURES | 0.0275621078 | $723,094 | $723,094 | $19.93 | | |
| EMS1 | FIRE DIST #1 EMS | 0.4679948282 | $723,094 | $723,094 | $338.40 | | |
| FD1 | FIRE DIST #1 GENERAL | 1.2171942929 | $723,094 | $723,094 | $880.15 | | |
| PORTPT | PORT OF PT GENERAL | 0.1134941229 | $723,094 | $723,094 | $82.07 | | |
| PORTPTIDD | PORT OF PT IDD 2019 | 0.2577346692 | $723,094 | $723,094 | $186.37 | | |
| PUD1 | PUD #1 GENERAL | 0.0597888892 | $723,094 | $723,094 | $43.23 | | |
| STATE | STATE SCHOOL PART 1 | 1.4940692947 | $723,094 | $723,094 | $1,080.35 | | |
| STATE2 | STATE SCHOOL PART 2 | 0.8050170049 | $723,094 | $723,094 | $582.10 | | |
| | Total Tax Rate: | 8.5416817766 | | | | | |
| | | | | Taxes w/Current Exemptions: | $6,176.45 | | |
| | | | | Taxes w/o Exemptions: | $6,176.45 | | |
Improvement / Building
| Improvement #1: | Residential Bldg | State Code: | 11 | 1566.0 sqft | Value: | $440,094 |
| Bathrooms (#): | 2 (FULL) | Bedrooms (#): | 4 | | Exterior Wall: | SI/ST | Fireplace: | SIN 1-GOOD | | Floor Construction: | FRAME | Foundation: | CONBL | | Heating/Cooling: | F/A | Roof Cover: | COMP |
|
| | Type | Description | Class CD | Sub Class CD | Year Built | Area |
| | MA | Main Area | 4+ | 1S | 1959 | 1566.0 |
| | HWPOR | House Wood Porch | 4 | * | 1959 | 80.0 |
| | SHED | Shed (Table Not Dep) | 3 | * | 1959 | 84.0 |
| | SOLAR | Solar Panel | 3 | * | 1959 | 0.0 |
Sketch
Property Image
Land
| 1 | 6305-1145L | | 0.0000 | 0.00 | 0.00 | 0.00 | 1.00 | $260,000 | $0 |
| 2 | 6305-1145L | | 0.0000 | 0.00 | 0.00 | 0.00 | 1.00 | $23,000 | $0 |
Roll Value History
| 2026 | N/A | N/A | N/A | N/A | N/A |
| 2025 | $440,094 | $283,000 | $0 | $723,094 | $723,094 |
| 2024 | $421,113 | $287,100 | $0 | $708,213 | $708,213 |
| 2023 | $404,268 | $268,800 | $0 | $673,068 | $673,068 |
| 2022 | $370,579 | $251,000 | $0 | $621,579 | $621,579 |
Deed and Sales History
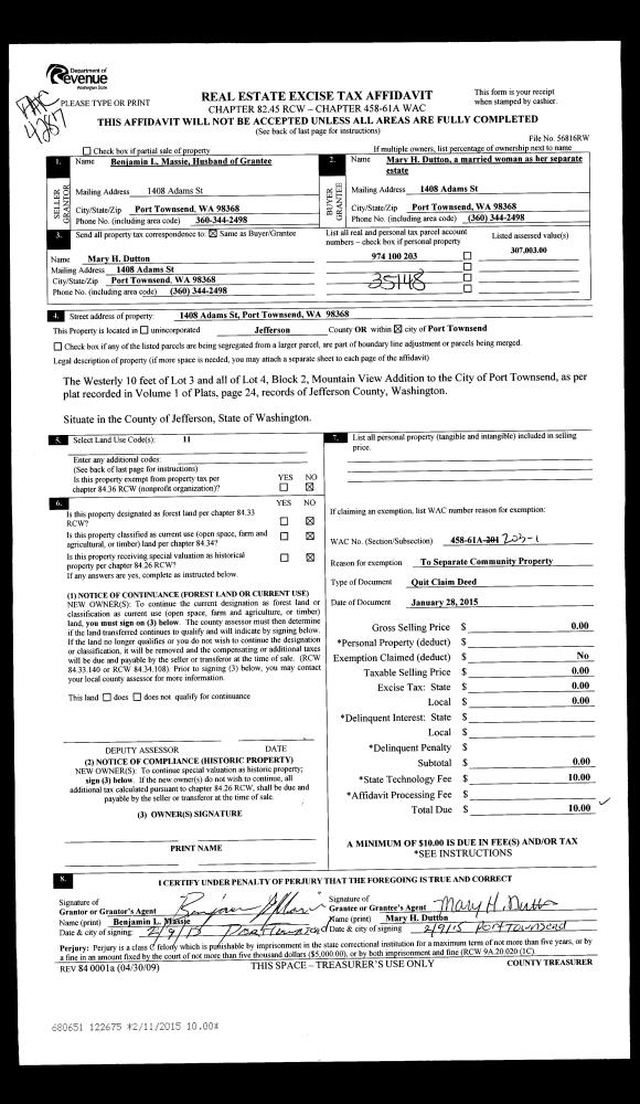
| 1 | 01/28/2015 | QCD | Quit Claim Deed | | | | | | 122675 | |
| 2 | 01/28/2015 | SWD | Statutory Warranty Deed | LORETTA L ATKINS | MARY H DUTTON | | | $339,000.00 | 122674 | |
| 3 | 01/12/2015 | QCD | Quit Claim Deed | | | | | | 122673 | |
| 4 | 08/08/2008 | SWD | Statutory Warranty Deed | BECKER, PAUL K, CROSBY, E | ATKINS, LORETTA/TROLIN, MARTHA | 0 | 0 | $366,600.00 | 111734 | 0 |
| 5 | 02/03/2003 | QCD | Quit Claim Deed | BECKER, PAUL K/CROSBY, EL | BECKER, PAUL K/CROSBY, ELISABE | 0 | 0 | $0.00 | 96554 | 0 |
Payout Agreement
| No payout information available.. |