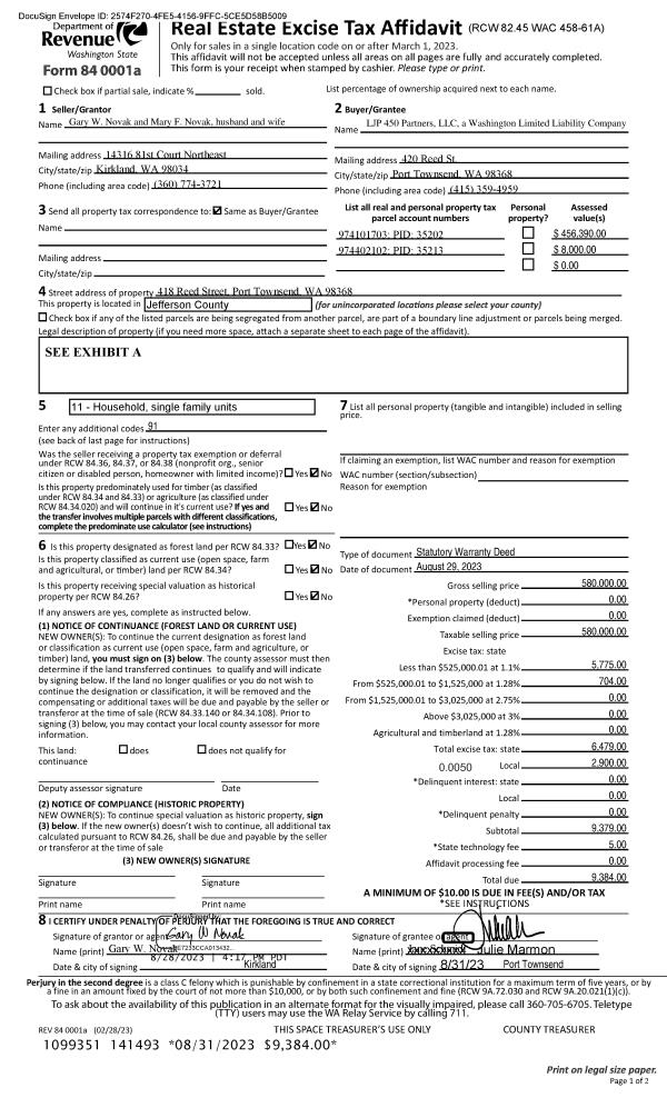
Property
Account |
| Property ID: | 35202 | Abbreviated Legal Description: | MOUNTAIN VIEW BLK 17 LOTS 7 & 8 W/EASE |
| Parcel # / Geo ID: | 974101703 | Agent Code: | |
| Type: | Real | | |
| Tax Area: | 0110 - C-50F1E1H2 | Land Use Code | 11 |
| Open Space: | N | DFL | N |
| Historic Property: | N | Remodel Property: | N |
| Multi-Family Redevelopment: | N | | |
| Township: | 30N | Section: | 2 |
| Range: | 1W |
Location |
| Address: | 418 REED ST PORT TOWNSEND, WA 98368 | Mapsco: | 085/046 |
| Neighborhood: | MOUNTAIN VIEW 1ST & 2ND PICKETT SP & TX #'S | Map ID: | |
| Neighborhood CD: | 6305 |
Owner |
| Name: | LJP 450 PARTNERS LLC | Owner ID: | 109607 |
| Mailing Address: | 420 REED ST PORT TOWNSEND, WA 98368-3905 | % Ownership: | 100.0000000000% |
| | | Exemptions: | |
Pay Tax Due
Select the appropriate checkbox next to the year to be paid. Multiple years may be selected.
*Convenience Fee not included
Taxes and Assessment Details
Property Tax Information as of
03/11/2026
Click on "Statement Details" to expand or collapse a tax statement.
* Please enter a valid date ** Please enter a valid date *
Statement Details |
| 2026 | 24442 | STATE - STATE LEVY (SCHOOL) | $341.83 | $341.82 | $0.00 | $0.00 | $0.00 | $683.65 |
| 2026 | 24442 | COUNTY - COUNTY LEVIES (CE, DD, VET, MH) | $136.68 | $136.64 | $0.00 | $0.00 | $0.00 | $273.32 |
| 2026 | 24442 | CONSERVE - CONSERVATION FUTURES | $4.10 | $4.10 | $0.00 | $0.00 | $0.00 | $8.20 |
| 2026 | 24442 | CITYPT - CITY OF PT | $193.98 | $193.97 | $0.00 | $0.00 | $0.00 | $387.95 |
| 2026 | 24442 | PORTPT - PORT DISTRICT | $55.20 | $55.19 | $0.00 | $0.00 | $0.00 | $110.39 |
| 2026 | 24442 | PUD1 - PUD #1 | $8.89 | $8.89 | $0.00 | $0.00 | $0.00 | $17.78 |
| 2026 | 24442 | HD2 - HOSP DIST #2 | $7.97 | $7.97 | $0.00 | $0.00 | $0.00 | $15.94 |
| 2026 | 24442 | SD50 - SCHOOL DIST #50 | $270.80 | $270.80 | $0.00 | $0.00 | $0.00 | $541.60 |
| 2026 | 24442 | FD1 - FIRE DISTRICT #1 | $180.97 | $180.97 | $0.00 | $0.00 | $0.00 | $361.94 |
| 2026 | 24442 | EMS1 - FIRE DIST #1 EMS | $69.58 | $69.58 | $0.00 | $0.00 | $0.00 | $139.16 |
| 2026 | 24442 | JCCD - JC Conservation District | $2.55 | $2.55 | $0.00 | $0.00 | $0.00 | $5.10 |
| 2026 | 24442 | NWA - Noxious Weed Assessment | $2.98 | $2.97 | $0.00 | $0.00 | $0.00 | $5.95 |
| 2026 | 24442 | TOTAL: | $1275.53 | $1275.45 | $0.00 | $0.00 | $0.00 | $2550.98 |
|
| 2026 | 24442 | $1275.53 | $1275.45 | $0.00 | $0.00 | $0.00 | $2550.98 |
Statement Details |
| 2025 | 24509 | STATE - STATE LEVY (SCHOOL) | $623.80 | $623.79 | $0.00 | $0.00 | $1247.59 | $0.00 |
| 2025 | 24509 | COUNTY - COUNTY LEVIES (CE, DD, VET, MH) | $245.32 | $245.30 | $0.00 | $0.00 | $490.62 | $0.00 |
| 2025 | 24509 | CONSERVE - CONSERVATION FUTURES | $7.36 | $7.35 | $0.00 | $0.00 | $14.71 | $0.00 |
| 2025 | 24509 | CITYPT - CITY OF PT | $353.76 | $353.75 | $0.00 | $0.00 | $707.51 | $0.00 |
| 2025 | 24509 | PORTPT - PORT DISTRICT | $100.10 | $100.10 | $0.00 | $0.00 | $200.20 | $0.00 |
| 2025 | 24509 | PUD1 - PUD #1 | $16.05 | $16.05 | $0.00 | $0.00 | $32.10 | $0.00 |
| 2025 | 24509 | HD2 - HOSP DIST #2 | $14.31 | $14.31 | $0.00 | $0.00 | $28.62 | $0.00 |
| 2025 | 24509 | SD50 - SCHOOL DIST #50 | $455.90 | $455.89 | $0.00 | $0.00 | $911.79 | $0.00 |
| 2025 | 24509 | FD1 - FIRE DISTRICT #1 | $323.71 | $323.70 | $0.00 | $0.00 | $647.41 | $0.00 |
| 2025 | 24509 | EMS1 - FIRE DIST #1 EMS | $124.51 | $124.50 | $0.00 | $0.00 | $249.01 | $0.00 |
| 2025 | 24509 | JCCD - JC Conservation District | $2.55 | $2.55 | $0.00 | $0.00 | $5.10 | $0.00 |
| 2025 | 24509 | NWA - Noxious Weed Assessment | $2.15 | $2.15 | $0.00 | $0.00 | $4.30 | $0.00 |
| 2025 | 24509 | TOTAL: | $2269.52 | $2269.44 | $0.00 | $0.00 | $4538.96 | $0.00 |
|
| 2025 | 24509 | $2269.52 | $2269.44 | $0.00 | $0.00 | $4538.96 | $0.00 |
Statement Details |
| 2024 | 24555 | STATE - STATE LEVY (SCHOOL) | $569.86 | $569.85 | $0.00 | $0.00 | $1139.71 | $0.00 |
| 2024 | 24555 | COUNTY - COUNTY LEVIES (CE, DD, VET, MH) | $243.86 | $243.82 | $0.00 | $0.00 | $487.68 | $0.00 |
| 2024 | 24555 | CONSERVE - CONSERVATION FUTURES | $7.31 | $7.31 | $0.00 | $0.00 | $14.62 | $0.00 |
| 2024 | 24555 | CITYPT - CITY OF PT | $348.43 | $348.42 | $0.00 | $0.00 | $696.85 | $0.00 |
| 2024 | 24555 | PORTPT - PORT DISTRICT | $100.72 | $100.72 | $0.00 | $0.00 | $201.44 | $0.00 |
| 2024 | 24555 | PUD1 - PUD #1 | $16.02 | $16.01 | $0.00 | $0.00 | $32.03 | $0.00 |
| 2024 | 24555 | HD2 - HOSP DIST #2 | $14.23 | $14.23 | $0.00 | $0.00 | $28.46 | $0.00 |
| 2024 | 24555 | SD50 - SCHOOL DIST #50 | $461.04 | $461.04 | $0.00 | $0.00 | $922.08 | $0.00 |
| 2024 | 24555 | FD1 - FIRE DISTRICT #1 | $322.42 | $322.42 | $0.00 | $0.00 | $644.84 | $0.00 |
| 2024 | 24555 | EMS1 - FIRE DIST #1 EMS | $123.16 | $123.15 | $0.00 | $0.00 | $246.31 | $0.00 |
| 2024 | 24555 | JCCD - JC Conservation District | $2.55 | $2.55 | $0.00 | $0.00 | $5.10 | $0.00 |
| 2024 | 24555 | NWA - Noxious Weed Assessment | $2.15 | $2.15 | $0.00 | $0.00 | $4.30 | $0.00 |
| 2024 | 24555 | TOTAL: | $2211.75 | $2211.67 | $0.00 | $0.00 | $4423.42 | $0.00 |
|
| 2024 | 24555 | $2211.75 | $2211.67 | $0.00 | $0.00 | $4423.42 | $0.00 |
Statement Details |
| 2023 | 24594 | STATE - STATE LEVY (SCHOOL) | $537.12 | $537.10 | $0.00 | $0.00 | $1074.22 | $0.00 |
| 2023 | 24594 | COUNTY - COUNTY LEVIES (CE, DD, VET, MH) | $234.38 | $234.37 | $0.00 | $0.00 | $468.75 | $0.00 |
| 2023 | 24594 | CONSERVE - CONSERVATION FUTURES | $7.03 | $7.03 | $0.00 | $0.00 | $14.06 | $0.00 |
| 2023 | 24594 | CITYPT - CITY OF PT | $331.26 | $331.25 | $0.00 | $0.00 | $662.51 | $0.00 |
| 2023 | 24594 | PORTPT - PORT DISTRICT | $98.74 | $98.73 | $0.00 | $0.00 | $197.47 | $0.00 |
| 2023 | 24594 | PUD1 - PUD #1 | $15.54 | $15.53 | $0.00 | $0.00 | $31.07 | $0.00 |
| 2023 | 24594 | HD2 - HOSP DIST #2 | $13.68 | $13.68 | $0.00 | $0.00 | $27.36 | $0.00 |
| 2023 | 24594 | SD50 - SCHOOL DIST #50 | $426.22 | $426.19 | $0.00 | $0.00 | $852.41 | $0.00 |
| 2023 | 24594 | FD1 - FIRE DISTRICT #1 | $193.08 | $193.08 | $0.00 | $0.00 | $386.16 | $0.00 |
| 2023 | 24594 | EMS1 - FIRE DIST #1 EMS | $82.14 | $82.13 | $0.00 | $0.00 | $164.27 | $0.00 |
| 2023 | 24594 | JCCD - JC Conservation District | $2.55 | $2.55 | $0.00 | $0.00 | $5.10 | $0.00 |
| 2023 | 24594 | NWA - Noxious Weed Assessment | $2.15 | $2.15 | $0.00 | $0.00 | $4.30 | $0.00 |
| 2023 | 24594 | TOTAL: | $1943.89 | $1943.79 | $0.00 | $0.00 | $3887.68 | $0.00 |
|
| 2023 | 24594 | $1943.89 | $1943.79 | $0.00 | $0.00 | $3887.68 | $0.00 |
Values
| (+) Improvement Homesite Value: | + | $0 | |
| (+) Improvement Non-Homesite Value: | + | $9,856 | |
| (+) Land Homesite Value: | + | $0 | |
| (+) Land Non-Homesite Value: | + | $287,500 | |
| (+) Curr Use (HS): | + | $0 | $0 |
| (+) Curr Use (NHS): | + | $0 | $0 |
| | | -------------------------- | |
| (=) Market Value: | = | $297,356 | |
| (–) Productivity Loss: | – | $0 | |
| | | -------------------------- | |
| (=) Subtotal: | = | $297,356 | |
| (+) Senior Appraised Value: | + | $0 | |
| (+) Non-Senior Appraised Value: | + | $297,356 | |
| | | -------------------------- | |
| (=) Total Appraised Value: | = | $297,356 | |
| (–) Senior Exemption Loss: | – | $0 | |
| (–) Exemption Loss: | – | $0 | |
| | | -------------------------- | |
| (=) Taxable Value: | = | $297,356 | |
Taxing Jurisdiction
| Owner: | LJP 450 PARTNERS LLC | | |
| % Ownership: | 100.0000000000% | | |
| Total Value: | N/A | | |
| Tax Area: | 0110 - C-50F1E1H2 |
| CE | COUNTY CURRENT EXPENSE | N/A | N/A | N/A | N/A | | |
| CNTYDD | DEVELOPMENTAL DISABILITIES | N/A | N/A | N/A | N/A | | |
| CNTYVET | VETERANS RELIEF | N/A | N/A | N/A | N/A | | |
| MENTAL | MENTAL HEALTH | N/A | N/A | N/A | N/A | | |
| PTGEN | CITY OF PT GENERAL | N/A | N/A | N/A | N/A | | |
| PTLLL | CITY OF PT - LIBRARY LID LIFT | N/A | N/A | N/A | N/A | | |
| PTMVBOND | CITY OF PT MV BOND | N/A | N/A | N/A | N/A | | |
| HOSP2CASH | HOSP DIST #2 GENERAL | N/A | N/A | N/A | N/A | | |
| SCH50BOND | SCHOOL DIST #50 BOND 2016 | N/A | N/A | N/A | N/A | | |
| SCH50CP | SCHOOL DIST #50 CAP PROJ | N/A | N/A | N/A | N/A | | |
| SCH50MO | SCHOOL DIST #50 EP & O | N/A | N/A | N/A | N/A | | |
| CONSERVE | CONSERVATION FUTURES | N/A | N/A | N/A | N/A | | |
| EMS1 | FIRE DIST #1 EMS | N/A | N/A | N/A | N/A | | |
| FD1 | FIRE DIST #1 GENERAL | N/A | N/A | N/A | N/A | | |
| PORTPT | PORT OF PT GENERAL | N/A | N/A | N/A | N/A | | |
| PORTPTIDD | PORT OF PT IDD 2019 | N/A | N/A | N/A | N/A | | |
| PUD1 | PUD #1 GENERAL | N/A | N/A | N/A | N/A | | |
| STATE | STATE SCHOOL PART 1 | N/A | N/A | N/A | N/A | | |
| STATE2 | STATE SCHOOL PART 2 | N/A | N/A | N/A | N/A | | |
| | Total Tax Rate: | N/A | | | | | |
| | | | | Taxes w/Current Exemptions: | N/A | | |
| | | | | Taxes w/o Exemptions: | N/A | | |
Improvement / Building
| Improvement #1: | Residential Bldg | State Code: | 11 | 0.0 sqft | Value: | $9,856 |
| | Type | Description | Class CD | Sub Class CD | Year Built | Area |
| | GARAG | Garage (Table Not Dep) | 1 | * | 1942 | 480.0 |
| | CONCD | Concrete Drive | 2 | * | 1942 | 774.0 |
Sketch
Property Image
Land
| 1 | 6305-1171L | | 0.0000 | 0.00 | 0.00 | 0.00 | 1.00 | $210,000 | $0 |
| 2 | 6305-1173L | | 0.0000 | 0.00 | 0.00 | 0.00 | 1.00 | $77,500 | $0 |
Roll Value History
| 2026 | N/A | N/A | N/A | N/A | N/A |
| 2025 | $9,856 | $287,500 | $0 | $297,356 | $297,356 |
| 2024 | $228,760 | $291,500 | $0 | $520,260 | $520,260 |
| 2023 | $219,610 | $273,000 | $0 | $492,610 | $492,610 |
| 2022 | $201,309 | $255,000 | $0 | $456,309 | $456,309 |
Deed and Sales History
| 1 | 08/29/2023 | SWD | Statutory Warranty Deed | GARY W NOVAK | LJP 450 PARTNERS LLC | | | $580,000.00 | 141493 | |
|   | |
Payout Agreement
| No payout information available.. |