Property
Account |
| Property ID: | 35236 | Abbreviated Legal Description: | MOUNTAIN VIEW VISTA LOT 6 TGTH/WELL EASEMENT #505929 DECL OF REST #505928 |
| Parcel # / Geo ID: | 974600006 | Agent Code: | |
| Type: | Real | | |
| Tax Area: | 0111 - 1-50F1E1H2L1 | Land Use Code | 91 |
| Open Space: | N | DFL | N |
| Historic Property: | N | Remodel Property: | N |
| Multi-Family Redevelopment: | N | | |
| Township: | 29N | Section: | 8 |
| Range: | 1W |
Location |
| Address: | 271 MALAMUTE LN PORT TOWNSEND, WA 98368 | Mapsco: | 058/006 |
| Neighborhood: | S 8 & 9 T29 R1W | Map ID: | |
| Neighborhood CD: | 5220 |
Owner |
| Name: | ROBERT R BROWN | Owner ID: | 111213 |
| Mailing Address: | 1524 MURRAY AVE PITTSBURG, PA 15217-1454 | % Ownership: | 100.0000000000% |
| | | Exemptions: | |
Pay Tax Due
Select the appropriate checkbox next to the year to be paid. Multiple years may be selected.
*Convenience Fee not included
Taxes and Assessment Details
Property Tax Information as of
03/10/2026
Click on "Statement Details" to expand or collapse a tax statement.
* Please enter a valid date ** Please enter a valid date *
Statement Details |
| 2026 | 24474 | STATE - STATE LEVY (SCHOOL) | $226.50 | $226.49 | $0.00 | $0.00 | $0.00 | $452.99 |
| 2026 | 24474 | COUNTY - COUNTY LEVIES (CE, DD, VET, MH) | $90.57 | $90.54 | $0.00 | $0.00 | $0.00 | $181.11 |
| 2026 | 24474 | CONSERVE - CONSERVATION FUTURES | $2.72 | $2.71 | $0.00 | $0.00 | $0.00 | $5.43 |
| 2026 | 24474 | COROADS - COUNTY ROADS (ROADS, DIV TO CE) | $73.05 | $73.05 | $0.00 | $0.00 | $0.00 | $146.10 |
| 2026 | 24474 | PORTPT - PORT DISTRICT | $36.57 | $36.57 | $0.00 | $0.00 | $0.00 | $73.14 |
| 2026 | 24474 | PUD1 - PUD #1 | $5.89 | $5.89 | $0.00 | $0.00 | $0.00 | $11.78 |
| 2026 | 24474 | LIB1 - LIBRARY DIST #1 | $28.27 | $28.26 | $0.00 | $0.00 | $0.00 | $56.53 |
| 2026 | 24474 | HD2 - HOSP DIST #2 | $5.28 | $5.28 | $0.00 | $0.00 | $0.00 | $10.56 |
| 2026 | 24474 | SD50 - SCHOOL DIST #50 | $179.44 | $179.42 | $0.00 | $0.00 | $0.00 | $358.86 |
| 2026 | 24474 | FD1 - FIRE DISTRICT #1 | $119.92 | $119.91 | $0.00 | $0.00 | $0.00 | $239.83 |
| 2026 | 24474 | EMS1 - FIRE DIST #1 EMS | $46.11 | $46.10 | $0.00 | $0.00 | $0.00 | $92.21 |
| 2026 | 24474 | FPLCA - DNR Landowner Contingency Assmt | $3.00 | $3.00 | $0.00 | $0.00 | $0.00 | $6.00 |
| 2026 | 24474 | JCCD - JC Conservation District | $2.65 | $2.65 | $0.00 | $0.00 | $0.00 | $5.30 |
| 2026 | 24474 | NWA - Noxious Weed Assessment | $3.65 | $3.65 | $0.00 | $0.00 | $0.00 | $7.30 |
| 2026 | 24474 | WAT - Clean Water District | $13.00 | $13.00 | $0.00 | $0.00 | $0.00 | $26.00 |
| 2026 | 24474 | TOTAL: | $836.62 | $836.52 | $0.00 | $0.00 | $0.00 | $1673.14 |
|
| 2026 | 24474 | $836.62 | $836.52 | $0.00 | $0.00 | $0.00 | $1673.14 |
Statement Details |
| 2025 | 24541 | STATE - STATE LEVY (SCHOOL) | $236.25 | $236.24 | $0.00 | $0.00 | $472.49 | $0.00 |
| 2025 | 24541 | COUNTY - COUNTY LEVIES (CE, DD, VET, MH) | $92.91 | $92.89 | $0.00 | $0.00 | $185.80 | $0.00 |
| 2025 | 24541 | CONSERVE - CONSERVATION FUTURES | $2.79 | $2.78 | $0.00 | $0.00 | $5.57 | $0.00 |
| 2025 | 24541 | COROADS - COUNTY ROADS (ROADS, DIV TO CE) | $74.44 | $74.42 | $0.00 | $0.00 | $148.86 | $0.00 |
| 2025 | 24541 | PORTPT - PORT DISTRICT | $37.91 | $37.91 | $0.00 | $0.00 | $75.82 | $0.00 |
| 2025 | 24541 | PUD1 - PUD #1 | $6.08 | $6.08 | $0.00 | $0.00 | $12.16 | $0.00 |
| 2025 | 24541 | LIB1 - LIBRARY DIST #1 | $28.80 | $28.79 | $0.00 | $0.00 | $57.59 | $0.00 |
| 2025 | 24541 | HD2 - HOSP DIST #2 | $5.42 | $5.42 | $0.00 | $0.00 | $10.84 | $0.00 |
| 2025 | 24541 | SD50 - SCHOOL DIST #50 | $172.67 | $172.65 | $0.00 | $0.00 | $345.32 | $0.00 |
| 2025 | 24541 | FD1 - FIRE DISTRICT #1 | $122.60 | $122.59 | $0.00 | $0.00 | $245.19 | $0.00 |
| 2025 | 24541 | EMS1 - FIRE DIST #1 EMS | $47.16 | $47.15 | $0.00 | $0.00 | $94.31 | $0.00 |
| 2025 | 24541 | FPLCA - DNR Landowner Contingency Assmt | $3.00 | $3.00 | $0.00 | $0.00 | $6.00 | $0.00 |
| 2025 | 24541 | JCCD - JC Conservation District | $2.65 | $2.65 | $0.00 | $0.00 | $5.30 | $0.00 |
| 2025 | 24541 | NWA - Noxious Weed Assessment | $2.60 | $2.60 | $0.00 | $0.00 | $5.20 | $0.00 |
| 2025 | 24541 | WAT - Clean Water District | $13.00 | $13.00 | $0.00 | $0.00 | $26.00 | $0.00 |
| 2025 | 24541 | TOTAL: | $848.28 | $848.17 | $0.00 | $0.00 | $1696.45 | $0.00 |
|
| 2025 | 24541 | $848.28 | $848.17 | $0.00 | $0.00 | $1696.45 | $0.00 |
Statement Details |
| 2024 | 24587 | STATE - STATE LEVY (SCHOOL) | $217.57 | $217.56 | $0.00 | $0.00 | $435.13 | $0.00 |
| 2024 | 24587 | COUNTY - COUNTY LEVIES (CE, DD, VET, MH) | $93.11 | $93.08 | $0.00 | $0.00 | $186.19 | $0.00 |
| 2024 | 24587 | CONSERVE - CONSERVATION FUTURES | $2.79 | $2.79 | $0.00 | $0.00 | $5.58 | $0.00 |
| 2024 | 24587 | COROADS - COUNTY ROADS (ROADS, DIV TO CE) | $74.92 | $74.91 | $0.00 | $0.00 | $149.83 | $0.00 |
| 2024 | 24587 | PORTPT - PORT DISTRICT | $38.46 | $38.45 | $0.00 | $0.00 | $76.91 | $0.00 |
| 2024 | 24587 | PUD1 - PUD #1 | $6.12 | $6.11 | $0.00 | $0.00 | $12.23 | $0.00 |
| 2024 | 24587 | LIB1 - LIBRARY DIST #1 | $28.99 | $28.98 | $0.00 | $0.00 | $57.97 | $0.00 |
| 2024 | 24587 | HD2 - HOSP DIST #2 | $5.43 | $5.43 | $0.00 | $0.00 | $10.86 | $0.00 |
| 2024 | 24587 | SD50 - SCHOOL DIST #50 | $176.03 | $176.02 | $0.00 | $0.00 | $352.05 | $0.00 |
| 2024 | 24587 | FD1 - FIRE DISTRICT #1 | $123.10 | $123.10 | $0.00 | $0.00 | $246.20 | $0.00 |
| 2024 | 24587 | EMS1 - FIRE DIST #1 EMS | $47.02 | $47.02 | $0.00 | $0.00 | $94.04 | $0.00 |
| 2024 | 24587 | FPLCA - DNR Landowner Contingency Assmt | $3.00 | $3.00 | $0.00 | $0.00 | $6.00 | $0.00 |
| 2024 | 24587 | JCCD - JC Conservation District | $2.65 | $2.65 | $0.00 | $0.00 | $5.30 | $0.00 |
| 2024 | 24587 | NWA - Noxious Weed Assessment | $2.60 | $2.60 | $0.00 | $0.00 | $5.20 | $0.00 |
| 2024 | 24587 | WAT - Clean Water District | $12.50 | $12.50 | $0.00 | $0.00 | $25.00 | $0.00 |
| 2024 | 24587 | TOTAL: | $834.29 | $834.20 | $0.00 | $0.00 | $1668.49 | $0.00 |
|
| 2024 | 24587 | $834.29 | $834.20 | $0.00 | $0.00 | $1668.49 | $0.00 |
Statement Details |
| 2023 | 24626 | STATE - STATE LEVY (SCHOOL) | $205.05 | $205.04 | $0.00 | $0.00 | $410.09 | $0.00 |
| 2023 | 24626 | COUNTY - COUNTY LEVIES (CE, DD, VET, MH) | $89.49 | $89.47 | $0.00 | $0.00 | $178.96 | $0.00 |
| 2023 | 24626 | CONSERVE - CONSERVATION FUTURES | $2.69 | $2.68 | $0.00 | $0.00 | $5.37 | $0.00 |
| 2023 | 24626 | COROADS - COUNTY ROADS (ROADS, DIV TO CE) | $72.40 | $72.39 | $0.00 | $0.00 | $144.79 | $0.00 |
| 2023 | 24626 | PORTPT - PORT DISTRICT | $37.70 | $37.69 | $0.00 | $0.00 | $75.39 | $0.00 |
| 2023 | 24626 | PUD1 - PUD #1 | $5.93 | $5.93 | $0.00 | $0.00 | $11.86 | $0.00 |
| 2023 | 24626 | LIB1 - LIBRARY DIST #1 | $28.01 | $28.01 | $0.00 | $0.00 | $56.02 | $0.00 |
| 2023 | 24626 | HD2 - HOSP DIST #2 | $5.23 | $5.21 | $0.00 | $0.00 | $10.44 | $0.00 |
| 2023 | 24626 | SD50 - SCHOOL DIST #50 | $162.72 | $162.70 | $0.00 | $0.00 | $325.42 | $0.00 |
| 2023 | 24626 | FD1 - FIRE DISTRICT #1 | $73.71 | $73.71 | $0.00 | $0.00 | $147.42 | $0.00 |
| 2023 | 24626 | EMS1 - FIRE DIST #1 EMS | $31.36 | $31.35 | $0.00 | $0.00 | $62.71 | $0.00 |
| 2023 | 24626 | FPLCA - DNR Landowner Contingency Assmt | $3.00 | $3.00 | $0.00 | $0.00 | $6.00 | $0.00 |
| 2023 | 24626 | JCCD - JC Conservation District | $2.65 | $2.65 | $0.00 | $0.00 | $5.30 | $0.00 |
| 2023 | 24626 | NWA - Noxious Weed Assessment | $2.60 | $2.60 | $0.00 | $0.00 | $5.20 | $0.00 |
| 2023 | 24626 | WAT - Clean Water District | $12.00 | $12.00 | $0.00 | $0.00 | $24.00 | $0.00 |
| 2023 | 24626 | TOTAL: | $734.54 | $734.43 | $0.00 | $0.00 | $1468.97 | $0.00 |
|
| 2023 | 24626 | $734.54 | $734.43 | $0.00 | $0.00 | $1468.97 | $0.00 |
Values
| (+) Improvement Homesite Value: | + | $0 | |
| (+) Improvement Non-Homesite Value: | + | $0 | |
| (+) Land Homesite Value: | + | $0 | |
| (+) Land Non-Homesite Value: | + | $197,032 | |
| (+) Curr Use (HS): | + | $0 | $0 |
| (+) Curr Use (NHS): | + | $0 | $0 |
| | | -------------------------- | |
| (=) Market Value: | = | $197,032 | |
| (–) Productivity Loss: | – | $0 | |
| | | -------------------------- | |
| (=) Subtotal: | = | $197,032 | |
| (+) Senior Appraised Value: | + | $0 | |
| (+) Non-Senior Appraised Value: | + | $197,032 | |
| | | -------------------------- | |
| (=) Total Appraised Value: | = | $197,032 | |
| (–) Senior Exemption Loss: | – | $0 | |
| (–) Exemption Loss: | – | $0 | |
| | | -------------------------- | |
| (=) Taxable Value: | = | $197,032 | |
Taxing Jurisdiction
| Owner: | ROBERT R BROWN | | |
| % Ownership: | 100.0000000000% | | |
| Total Value: | $197,032 | | |
| Tax Area: | 0111 - 1-50F1E1H2L1 |
| CE | COUNTY CURRENT EXPENSE | 0.9034619479 | $197,032 | $197,032 | $178.01 | | |
| CNTYDD | DEVELOPMENTAL DISABILITIES | 0.0052121823 | $197,032 | $197,032 | $1.03 | | |
| CNTYVET | VETERANS RELIEF | 0.0052777810 | $197,032 | $197,032 | $1.04 | | |
| MENTAL | MENTAL HEALTH | 0.0052121823 | $197,032 | $197,032 | $1.03 | | |
| ROADS | COUNTY ROADS | 0.7415066410 | $197,032 | $197,032 | $146.10 | | |
| ROADSCU | COUNTY ROADS TO CUR EXP | 0.0000000000 | $197,032 | $197,032 | $0.00 | | |
| HOSP2CASH | HOSP DIST #2 GENERAL | 0.0536075306 | $197,032 | $197,032 | $10.56 | | |
| SCH50BOND | SCHOOL DIST #50 BOND 2016 | 0.5377451389 | $197,032 | $197,032 | $105.95 | | |
| SCH50CP | SCHOOL DIST #50 CAP PROJ | 0.4573475088 | $197,032 | $197,032 | $90.11 | | |
| SCH50MO | SCHOOL DIST #50 EP & O | 0.8262822886 | $197,032 | $197,032 | $162.80 | | |
| CONSERVE | CONSERVATION FUTURES | 0.0275621078 | $197,032 | $197,032 | $5.43 | | |
| EMS1 | FIRE DIST #1 EMS | 0.4679948282 | $197,032 | $197,032 | $92.21 | | |
| FD1 | FIRE DIST #1 GENERAL | 1.2171942929 | $197,032 | $197,032 | $239.83 | | |
| LIB1 | LIBRARY DIST #1 GENERAL | 0.2868827388 | $197,032 | $197,032 | $56.53 | | |
| PORTPT | PORT OF PT GENERAL | 0.1134941229 | $197,032 | $197,032 | $22.36 | | |
| PORTPTIDD | PORT OF PT IDD 2019 | 0.2577346692 | $197,032 | $197,032 | $50.78 | | |
| PUD1 | PUD #1 GENERAL | 0.0597888892 | $197,032 | $197,032 | $11.78 | | |
| STATE | STATE SCHOOL PART 1 | 1.4940692947 | $197,032 | $197,032 | $294.38 | | |
| STATE2 | STATE SCHOOL PART 2 | 0.8050170049 | $197,032 | $197,032 | $158.61 | | |
| | Total Tax Rate: | 8.2653911500 | | | | | |
| | | | | Taxes w/Current Exemptions: | $1,628.54 | | |
| | | | | Taxes w/o Exemptions: | $1,628.54 | | |
Improvement / Building
Sketch
| No sketches available for this property. |
Property Image
Land
| 1 | 5220-1555A | | 2.4600 | 107157.60 | 0.00 | 0.00 | 0.00 | $59,532 | $0 |
| 2 | 5220-1343S | | 1.0000 | 43560.00 | 0.00 | 0.00 | 1.00 | $137,500 | $0 |
Roll Value History
| 2026 | N/A | N/A | N/A | N/A | N/A |
| 2025 | $0 | $197,032 | $0 | $197,032 | $197,032 |
| 2024 | $0 | $197,032 | $0 | $197,032 | $197,032 |
| 2023 | $0 | $188,076 | $0 | $188,076 | $188,076 |
| 2022 | $0 | $174,200 | $0 | $174,200 | $174,200 |
Deed and Sales History
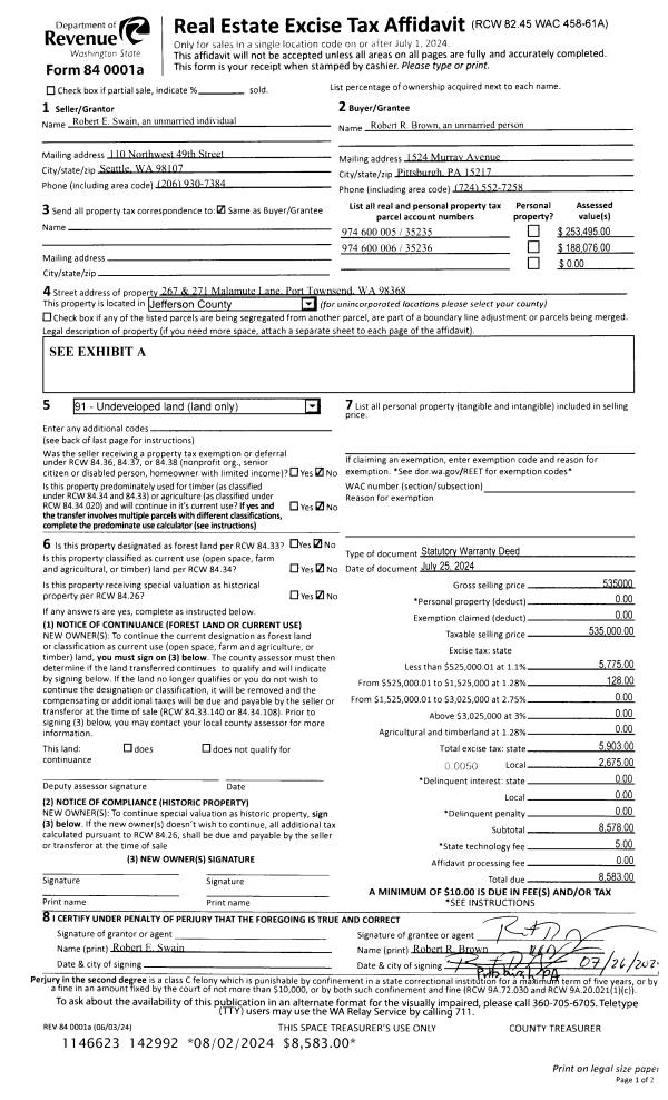
| 1 | 07/25/2024 | SWD | Statutory Warranty Deed | ROBERT E SWAIN | ROBERT R BROWN | | | $535,000.00 | 142992 | |
|   | |
| 2 | 03/28/2017 | SWD | Statutory Warranty Deed | VIRGINIA J LAROCK | ROBERT E SWAIN | | | $130,000.00 | 127522 | |
| 3 | 01/25/2006 | SWD | Statutory Warranty Deed | MALAMUTE ASSOCIATES LLC, | LAROCK, VIRGINIA J/GREGORY J | 0 | 0 | $165,000.00 | 105916 | 0 |
Payout Agreement
| No payout information available.. |