Property
Account |
| Property ID: | 35259 | Abbreviated Legal Description: | NATIONAL CITY #1 ADDITION BLK 3 LOT 4(S92.5') |
| Parcel # / Geo ID: | 974700308 | Agent Code: | |
| Type: | Real | | |
| Tax Area: | 0110 - C-50F1E1H2 | Land Use Code | 62 |
| Open Space: | N | DFL | N |
| Historic Property: | N | Remodel Property: | N |
| Multi-Family Redevelopment: | N | | |
| Township: | 30N | Section: | 9 |
| Range: | 1W |
Location |
| Address: | | Mapsco: | 087/020 |
| Neighborhood: | SIMS WAY BY RAINIER ST / PT BUSINESS PARK COMMERCIAL | Map ID: | |
| Neighborhood CD: | 6190C |
Owner |
| Name: | KHILE ENTERPRISES, LLC | Owner ID: | 108616 |
| Mailing Address: | 1110 WILSON ST PORT TOWNSEND, WA 98368-2964 | % Ownership: | 100.0000000000% |
| | | Exemptions: | |
Pay Tax Due
Select the appropriate checkbox next to the year to be paid. Multiple years may be selected.
*Convenience Fee not included
Taxes and Assessment Details
Property Tax Information as of
03/10/2026
Click on "Statement Details" to expand or collapse a tax statement.
* Please enter a valid date ** Please enter a valid date *
Statement Details |
| 2026 | 24497 | STATE - STATE LEVY (SCHOOL) | $55.35 | $55.35 | $0.00 | $0.00 | $0.00 | $110.70 |
| 2026 | 24497 | COUNTY - COUNTY LEVIES (CE, DD, VET, MH) | $22.14 | $22.11 | $0.00 | $0.00 | $0.00 | $44.25 |
| 2026 | 24497 | CONSERVE - CONSERVATION FUTURES | $0.67 | $0.66 | $0.00 | $0.00 | $0.00 | $1.33 |
| 2026 | 24497 | CITYPT - CITY OF PT | $31.42 | $31.40 | $0.00 | $0.00 | $0.00 | $62.82 |
| 2026 | 24497 | PORTPT - PORT DISTRICT | $8.94 | $8.93 | $0.00 | $0.00 | $0.00 | $17.87 |
| 2026 | 24497 | PUD1 - PUD #1 | $1.44 | $1.44 | $0.00 | $0.00 | $0.00 | $2.88 |
| 2026 | 24497 | HD2 - HOSP DIST #2 | $1.29 | $1.29 | $0.00 | $0.00 | $0.00 | $2.58 |
| 2026 | 24497 | SD50 - SCHOOL DIST #50 | $43.86 | $43.84 | $0.00 | $0.00 | $0.00 | $87.70 |
| 2026 | 24497 | FD1 - FIRE DISTRICT #1 | $29.31 | $29.30 | $0.00 | $0.00 | $0.00 | $58.61 |
| 2026 | 24497 | EMS1 - FIRE DIST #1 EMS | $11.27 | $11.26 | $0.00 | $0.00 | $0.00 | $22.53 |
| 2026 | 24497 | JCCD - JC Conservation District | $2.53 | $2.53 | $0.00 | $0.00 | $0.00 | $5.06 |
| 2026 | 24497 | NWA - Noxious Weed Assessment | $2.98 | $2.97 | $0.00 | $0.00 | $0.00 | $5.95 |
| 2026 | 24497 | WAT - Clean Water District | $13.00 | $13.00 | $0.00 | $0.00 | $0.00 | $26.00 |
| 2026 | 24497 | TOTAL: | $224.20 | $224.08 | $0.00 | $0.00 | $0.00 | $448.28 |
|
| 2026 | 24497 | $224.20 | $224.08 | $0.00 | $0.00 | $0.00 | $448.28 |
Statement Details |
| 2025 | 24564 | STATE - STATE LEVY (SCHOOL) | $28.87 | $28.86 | $0.00 | $0.00 | $57.73 | $0.00 |
| 2025 | 24564 | COUNTY - COUNTY LEVIES (CE, DD, VET, MH) | $11.37 | $11.34 | $0.00 | $0.00 | $22.71 | $0.00 |
| 2025 | 24564 | CONSERVE - CONSERVATION FUTURES | $0.34 | $0.34 | $0.00 | $0.00 | $0.68 | $0.00 |
| 2025 | 24564 | CITYPT - CITY OF PT | $16.38 | $16.36 | $0.00 | $0.00 | $32.74 | $0.00 |
| 2025 | 24564 | PORTPT - PORT DISTRICT | $4.63 | $4.63 | $0.00 | $0.00 | $9.26 | $0.00 |
| 2025 | 24564 | PUD1 - PUD #1 | $0.75 | $0.74 | $0.00 | $0.00 | $1.49 | $0.00 |
| 2025 | 24564 | HD2 - HOSP DIST #2 | $0.66 | $0.66 | $0.00 | $0.00 | $1.32 | $0.00 |
| 2025 | 24564 | SD50 - SCHOOL DIST #50 | $21.11 | $21.09 | $0.00 | $0.00 | $42.20 | $0.00 |
| 2025 | 24564 | FD1 - FIRE DISTRICT #1 | $14.98 | $14.98 | $0.00 | $0.00 | $29.96 | $0.00 |
| 2025 | 24564 | EMS1 - FIRE DIST #1 EMS | $5.76 | $5.76 | $0.00 | $0.00 | $11.52 | $0.00 |
| 2025 | 24564 | JCCD - JC Conservation District | $2.53 | $2.53 | $0.00 | $0.00 | $5.06 | $0.00 |
| 2025 | 24564 | NWA - Noxious Weed Assessment | $2.15 | $2.15 | $0.00 | $0.00 | $4.30 | $0.00 |
| 2025 | 24564 | WAT - Clean Water District | $13.00 | $13.00 | $0.00 | $0.00 | $26.00 | $0.00 |
| 2025 | 24564 | TOTAL: | $122.53 | $122.44 | $0.00 | $0.00 | $244.97 | $0.00 |
|
| 2025 | 24564 | $122.53 | $122.44 | $0.00 | $0.00 | $244.97 | $0.00 |
Statement Details |
| 2024 | 24610 | STATE - STATE LEVY (SCHOOL) | $27.86 | $27.84 | $0.00 | $0.00 | $55.70 | $0.00 |
| 2024 | 24610 | COUNTY - COUNTY LEVIES (CE, DD, VET, MH) | $11.93 | $11.90 | $0.00 | $0.00 | $23.83 | $0.00 |
| 2024 | 24610 | CONSERVE - CONSERVATION FUTURES | $0.36 | $0.35 | $0.00 | $0.00 | $0.71 | $0.00 |
| 2024 | 24610 | CITYPT - CITY OF PT | $17.04 | $17.02 | $0.00 | $0.00 | $34.06 | $0.00 |
| 2024 | 24610 | PORTPT - PORT DISTRICT | $4.92 | $4.92 | $0.00 | $0.00 | $9.84 | $0.00 |
| 2024 | 24610 | PUD1 - PUD #1 | $0.79 | $0.78 | $0.00 | $0.00 | $1.57 | $0.00 |
| 2024 | 24610 | HD2 - HOSP DIST #2 | $0.70 | $0.69 | $0.00 | $0.00 | $1.39 | $0.00 |
| 2024 | 24610 | SD50 - SCHOOL DIST #50 | $22.54 | $22.52 | $0.00 | $0.00 | $45.06 | $0.00 |
| 2024 | 24610 | FD1 - FIRE DISTRICT #1 | $15.76 | $15.75 | $0.00 | $0.00 | $31.51 | $0.00 |
| 2024 | 24610 | EMS1 - FIRE DIST #1 EMS | $6.02 | $6.02 | $0.00 | $0.00 | $12.04 | $0.00 |
| 2024 | 24610 | JCCD - JC Conservation District | $2.53 | $2.53 | $0.00 | $0.00 | $5.06 | $0.00 |
| 2024 | 24610 | NWA - Noxious Weed Assessment | $2.15 | $2.15 | $0.00 | $0.00 | $4.30 | $0.00 |
| 2024 | 24610 | WAT - Clean Water District | $12.50 | $12.50 | $0.00 | $0.00 | $25.00 | $0.00 |
| 2024 | 24610 | TOTAL: | $125.10 | $124.97 | $0.00 | $0.00 | $250.07 | $0.00 |
|
| 2024 | 24610 | $125.10 | $124.97 | $0.00 | $0.00 | $250.07 | $0.00 |
Statement Details |
| 2023 | 24649 | STATE - STATE LEVY (SCHOOL) | $28.35 | $28.33 | $0.00 | $0.00 | $56.68 | $0.00 |
| 2023 | 24649 | COUNTY - COUNTY LEVIES (CE, DD, VET, MH) | $12.37 | $12.36 | $0.00 | $0.00 | $24.73 | $0.00 |
| 2023 | 24649 | CONSERVE - CONSERVATION FUTURES | $0.37 | $0.37 | $0.00 | $0.00 | $0.74 | $0.00 |
| 2023 | 24649 | CITYPT - CITY OF PT | $17.48 | $17.47 | $0.00 | $0.00 | $34.95 | $0.00 |
| 2023 | 24649 | PORTPT - PORT DISTRICT | $5.21 | $5.20 | $0.00 | $0.00 | $10.41 | $0.00 |
| 2023 | 24649 | PUD1 - PUD #1 | $0.82 | $0.82 | $0.00 | $0.00 | $1.64 | $0.00 |
| 2023 | 24649 | HD2 - HOSP DIST #2 | $0.72 | $0.72 | $0.00 | $0.00 | $1.44 | $0.00 |
| 2023 | 24649 | SD50 - SCHOOL DIST #50 | $22.49 | $22.48 | $0.00 | $0.00 | $44.97 | $0.00 |
| 2023 | 24649 | FD1 - FIRE DISTRICT #1 | $10.19 | $10.18 | $0.00 | $0.00 | $20.37 | $0.00 |
| 2023 | 24649 | EMS1 - FIRE DIST #1 EMS | $4.34 | $4.33 | $0.00 | $0.00 | $8.67 | $0.00 |
| 2023 | 24649 | JCCD - JC Conservation District | $2.53 | $2.53 | $0.00 | $0.00 | $5.06 | $0.00 |
| 2023 | 24649 | NWA - Noxious Weed Assessment | $2.15 | $2.15 | $0.00 | $0.00 | $4.30 | $0.00 |
| 2023 | 24649 | WAT - Clean Water District | $12.00 | $12.00 | $0.00 | $0.00 | $24.00 | $0.00 |
| 2023 | 24649 | TOTAL: | $119.02 | $118.94 | $0.00 | $0.00 | $237.96 | $0.00 |
|
| 2023 | 24649 | $119.02 | $118.94 | $0.00 | $0.00 | $237.96 | $0.00 |
Values
| (+) Improvement Homesite Value: | + | $0 | |
| (+) Improvement Non-Homesite Value: | + | $0 | |
| (+) Land Homesite Value: | + | $0 | |
| (+) Land Non-Homesite Value: | + | $48,151 | |
| (+) Curr Use (HS): | + | $0 | $0 |
| (+) Curr Use (NHS): | + | $0 | $0 |
| | | -------------------------- | |
| (=) Market Value: | = | $48,151 | |
| (–) Productivity Loss: | – | $0 | |
| | | -------------------------- | |
| (=) Subtotal: | = | $48,151 | |
| (+) Senior Appraised Value: | + | $0 | |
| (+) Non-Senior Appraised Value: | + | $48,151 | |
| | | -------------------------- | |
| (=) Total Appraised Value: | = | $48,151 | |
| (–) Senior Exemption Loss: | – | $0 | |
| (–) Exemption Loss: | – | $0 | |
| | | -------------------------- | |
| (=) Taxable Value: | = | $48,151 | |
Taxing Jurisdiction
| Owner: | KHILE ENTERPRISES, LLC | | |
| % Ownership: | 100.0000000000% | | |
| Total Value: | N/A | | |
| Tax Area: | 0110 - C-50F1E1H2 |
| CE | COUNTY CURRENT EXPENSE | N/A | N/A | N/A | N/A | | |
| CNTYDD | DEVELOPMENTAL DISABILITIES | N/A | N/A | N/A | N/A | | |
| CNTYVET | VETERANS RELIEF | N/A | N/A | N/A | N/A | | |
| MENTAL | MENTAL HEALTH | N/A | N/A | N/A | N/A | | |
| PTGEN | CITY OF PT GENERAL | N/A | N/A | N/A | N/A | | |
| PTLLL | CITY OF PT - LIBRARY LID LIFT | N/A | N/A | N/A | N/A | | |
| PTMVBOND | CITY OF PT MV BOND | N/A | N/A | N/A | N/A | | |
| HOSP2CASH | HOSP DIST #2 GENERAL | N/A | N/A | N/A | N/A | | |
| SCH50BOND | SCHOOL DIST #50 BOND 2016 | N/A | N/A | N/A | N/A | | |
| SCH50CP | SCHOOL DIST #50 CAP PROJ | N/A | N/A | N/A | N/A | | |
| SCH50MO | SCHOOL DIST #50 EP & O | N/A | N/A | N/A | N/A | | |
| CONSERVE | CONSERVATION FUTURES | N/A | N/A | N/A | N/A | | |
| EMS1 | FIRE DIST #1 EMS | N/A | N/A | N/A | N/A | | |
| FD1 | FIRE DIST #1 GENERAL | N/A | N/A | N/A | N/A | | |
| PORTPT | PORT OF PT GENERAL | N/A | N/A | N/A | N/A | | |
| PORTPTIDD | PORT OF PT IDD 2019 | N/A | N/A | N/A | N/A | | |
| PUD1 | PUD #1 GENERAL | N/A | N/A | N/A | N/A | | |
| STATE | STATE SCHOOL PART 1 | N/A | N/A | N/A | N/A | | |
| STATE2 | STATE SCHOOL PART 2 | N/A | N/A | N/A | N/A | | |
| | Total Tax Rate: | N/A | | | | | |
| | | | | Taxes w/Current Exemptions: | N/A | | |
| | | | | Taxes w/o Exemptions: | N/A | | |
Improvement / Building
Sketch
| No sketches available for this property. |
Property Image
Land
| 1 | 6190-6272Q | | 0.0961 | 4187.00 | 0.00 | 0.00 | 1.00 | $48,151 | $0 |
Roll Value History
| 2026 | N/A | N/A | N/A | N/A | N/A |
| 2025 | $0 | $48,151 | $0 | $48,151 | $48,151 |
| 2024 | $0 | $24,075 | $0 | $24,075 | $24,075 |
| 2023 | $0 | $24,075 | $0 | $24,075 | $24,075 |
| 2022 | $0 | $24,075 | $0 | $24,075 | $24,075 |
Deed and Sales History
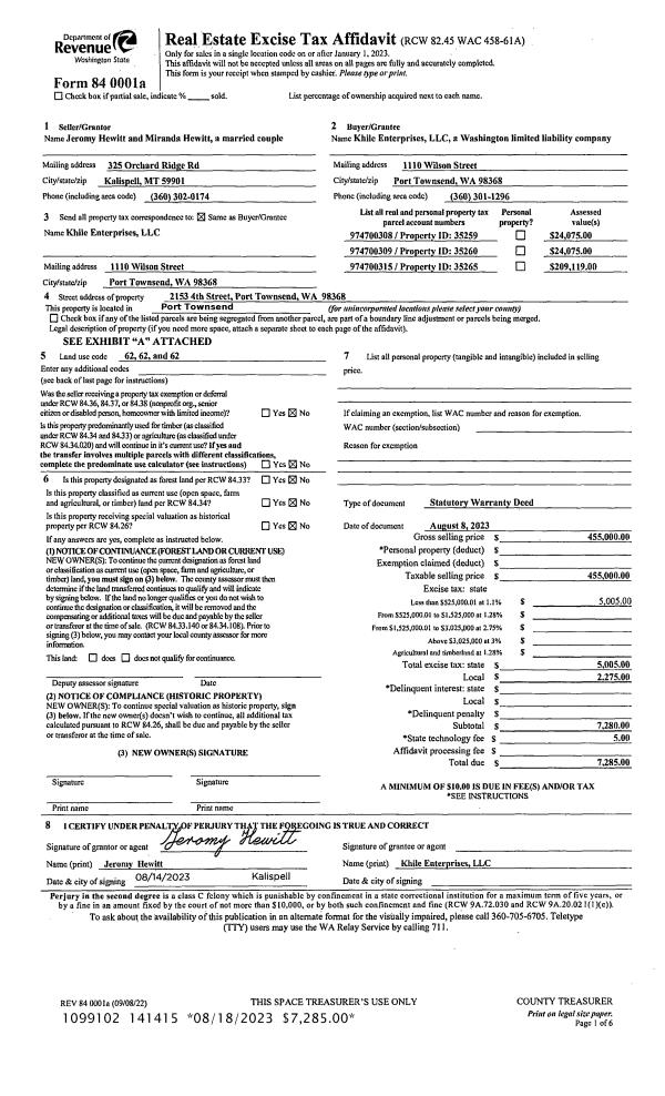
| 1 | 08/08/2023 | SWD | Statutory Warranty Deed | JEROMY R HEWITT | KHILE ENTERPRISES, LLC | | | $455,000.00 | 141415 | |
|   | |
| 2 | 03/17/2020 | SWD | Statutory Warranty Deed | SUPERIOR REFUSE REMOVAL INC | JEROMY R HEWITT | | | $229,000.00 | 134130 | |
|   | |
| 3 | 01/02/1992 | SWD | Statutory Warranty Deed | ANGLIN, EVELYN | SUPERIOR REFUSE REMOVAL INC | 0 | 0 | $28,000.00 | 67435 | 0 |
Payout Agreement
| No payout information available.. |