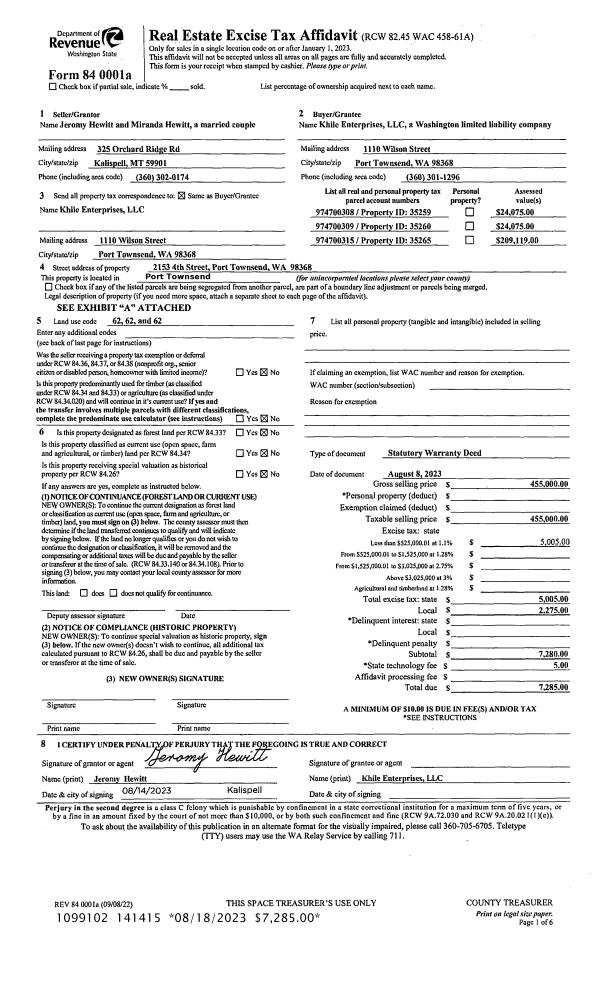
Property
Account |
| Property ID: | 35265 | Abbreviated Legal Description: | NATIONAL CITY #1 ADDITION BLK 3 LOTS 18 & 19 |
| Parcel # / Geo ID: | 974700315 | Agent Code: | |
| Type: | Real | | |
| Tax Area: | 0110 - C-50F1E1H2 | Land Use Code | 62 |
| Open Space: | N | DFL | N |
| Historic Property: | N | Remodel Property: | N |
| Multi-Family Redevelopment: | N | | |
| Township: | 30N | Section: | 9 |
| Range: | 1W |
Location |
| Address: | 2153 4TH ST PORT TOWNSEND, WA 98368 | Mapsco: | 087/028 |
| Neighborhood: | SIMS WAY BY RAINIER ST / PT BUSINESS PARK COMMERCIAL | Map ID: | |
| Neighborhood CD: | 6190C |
Owner |
| Name: | KHILE ENTERPRISES, LLC | Owner ID: | 108616 |
| Mailing Address: | 1110 WILSON ST PORT TOWNSEND, WA 98368-2964 | % Ownership: | 100.0000000000% |
| | | Exemptions: | |
Pay Tax Due
Select the appropriate checkbox next to the year to be paid. Multiple years may be selected.
*Convenience Fee not included
Taxes and Assessment Details
Property Tax Information as of
03/10/2026
Click on "Statement Details" to expand or collapse a tax statement.
* Please enter a valid date ** Please enter a valid date *
Statement Details |
| 2026 | 24503 | STATE - STATE LEVY (SCHOOL) | $343.56 | $343.54 | $0.00 | $0.00 | $0.00 | $687.10 |
| 2026 | 24503 | COUNTY - COUNTY LEVIES (CE, DD, VET, MH) | $137.36 | $137.35 | $0.00 | $0.00 | $0.00 | $274.71 |
| 2026 | 24503 | CONSERVE - CONSERVATION FUTURES | $4.12 | $4.12 | $0.00 | $0.00 | $0.00 | $8.24 |
| 2026 | 24503 | CITYPT - CITY OF PT | $194.97 | $194.95 | $0.00 | $0.00 | $0.00 | $389.92 |
| 2026 | 24503 | PORTPT - PORT DISTRICT | $55.48 | $55.47 | $0.00 | $0.00 | $0.00 | $110.95 |
| 2026 | 24503 | PUD1 - PUD #1 | $8.94 | $8.93 | $0.00 | $0.00 | $0.00 | $17.87 |
| 2026 | 24503 | HD2 - HOSP DIST #2 | $8.01 | $8.01 | $0.00 | $0.00 | $0.00 | $16.02 |
| 2026 | 24503 | SD50 - SCHOOL DIST #50 | $272.17 | $272.16 | $0.00 | $0.00 | $0.00 | $544.33 |
| 2026 | 24503 | FD1 - FIRE DISTRICT #1 | $181.89 | $181.88 | $0.00 | $0.00 | $0.00 | $363.77 |
| 2026 | 24503 | EMS1 - FIRE DIST #1 EMS | $69.93 | $69.93 | $0.00 | $0.00 | $0.00 | $139.86 |
| 2026 | 24503 | JCCD - JC Conservation District | $2.53 | $2.53 | $0.00 | $0.00 | $0.00 | $5.06 |
| 2026 | 24503 | NWA - Noxious Weed Assessment | $2.98 | $2.97 | $0.00 | $0.00 | $0.00 | $5.95 |
| 2026 | 24503 | TOTAL: | $1281.94 | $1281.84 | $0.00 | $0.00 | $0.00 | $2563.78 |
|
| 2026 | 24503 | $1281.94 | $1281.84 | $0.00 | $0.00 | $0.00 | $2563.78 |
Statement Details |
| 2025 | 24570 | STATE - STATE LEVY (SCHOOL) | $345.94 | $345.93 | $0.00 | $0.00 | $691.87 | $0.00 |
| 2025 | 24570 | COUNTY - COUNTY LEVIES (CE, DD, VET, MH) | $136.04 | $136.04 | $0.00 | $0.00 | $272.08 | $0.00 |
| 2025 | 24570 | CONSERVE - CONSERVATION FUTURES | $4.08 | $4.08 | $0.00 | $0.00 | $8.16 | $0.00 |
| 2025 | 24570 | CITYPT - CITY OF PT | $196.18 | $196.18 | $0.00 | $0.00 | $392.36 | $0.00 |
| 2025 | 24570 | PORTPT - PORT DISTRICT | $55.52 | $55.50 | $0.00 | $0.00 | $111.02 | $0.00 |
| 2025 | 24570 | PUD1 - PUD #1 | $8.90 | $8.90 | $0.00 | $0.00 | $17.80 | $0.00 |
| 2025 | 24570 | HD2 - HOSP DIST #2 | $7.94 | $7.93 | $0.00 | $0.00 | $15.87 | $0.00 |
| 2025 | 24570 | SD50 - SCHOOL DIST #50 | $252.83 | $252.82 | $0.00 | $0.00 | $505.65 | $0.00 |
| 2025 | 24570 | FD1 - FIRE DISTRICT #1 | $179.52 | $179.51 | $0.00 | $0.00 | $359.03 | $0.00 |
| 2025 | 24570 | EMS1 - FIRE DIST #1 EMS | $69.05 | $69.04 | $0.00 | $0.00 | $138.09 | $0.00 |
| 2025 | 24570 | JCCD - JC Conservation District | $2.53 | $2.53 | $0.00 | $0.00 | $5.06 | $0.00 |
| 2025 | 24570 | NWA - Noxious Weed Assessment | $2.15 | $2.15 | $0.00 | $0.00 | $4.30 | $0.00 |
| 2025 | 24570 | TOTAL: | $1260.68 | $1260.61 | $0.00 | $0.00 | $2521.29 | $0.00 |
|
| 2025 | 24570 | $1260.68 | $1260.61 | $0.00 | $0.00 | $2521.29 | $0.00 |
Statement Details |
| 2024 | 24616 | STATE - STATE LEVY (SCHOOL) | $261.73 | $261.72 | $0.00 | $0.00 | $523.45 | $0.00 |
| 2024 | 24616 | COUNTY - COUNTY LEVIES (CE, DD, VET, MH) | $111.99 | $111.99 | $0.00 | $0.00 | $223.98 | $0.00 |
| 2024 | 24616 | CONSERVE - CONSERVATION FUTURES | $3.36 | $3.36 | $0.00 | $0.00 | $6.72 | $0.00 |
| 2024 | 24616 | CITYPT - CITY OF PT | $160.03 | $160.02 | $0.00 | $0.00 | $320.05 | $0.00 |
| 2024 | 24616 | PORTPT - PORT DISTRICT | $46.26 | $46.26 | $0.00 | $0.00 | $92.52 | $0.00 |
| 2024 | 24616 | PUD1 - PUD #1 | $7.36 | $7.35 | $0.00 | $0.00 | $14.71 | $0.00 |
| 2024 | 24616 | HD2 - HOSP DIST #2 | $6.54 | $6.53 | $0.00 | $0.00 | $13.07 | $0.00 |
| 2024 | 24616 | SD50 - SCHOOL DIST #50 | $211.75 | $211.74 | $0.00 | $0.00 | $423.49 | $0.00 |
| 2024 | 24616 | FD1 - FIRE DISTRICT #1 | $148.08 | $148.08 | $0.00 | $0.00 | $296.16 | $0.00 |
| 2024 | 24616 | EMS1 - FIRE DIST #1 EMS | $56.56 | $56.56 | $0.00 | $0.00 | $113.12 | $0.00 |
| 2024 | 24616 | JCCD - JC Conservation District | $2.53 | $2.53 | $0.00 | $0.00 | $5.06 | $0.00 |
| 2024 | 24616 | NWA - Noxious Weed Assessment | $2.15 | $2.15 | $0.00 | $0.00 | $4.30 | $0.00 |
| 2024 | 24616 | TOTAL: | $1018.34 | $1018.29 | $0.00 | $0.00 | $2036.63 | $0.00 |
|
| 2024 | 24616 | $1018.34 | $1018.29 | $0.00 | $0.00 | $2036.63 | $0.00 |
Statement Details |
| 2023 | 24655 | STATE - STATE LEVY (SCHOOL) | $246.15 | $246.15 | $0.00 | $0.00 | $492.30 | $0.00 |
| 2023 | 24655 | COUNTY - COUNTY LEVIES (CE, DD, VET, MH) | $107.42 | $107.40 | $0.00 | $0.00 | $214.82 | $0.00 |
| 2023 | 24655 | CONSERVE - CONSERVATION FUTURES | $3.22 | $3.22 | $0.00 | $0.00 | $6.44 | $0.00 |
| 2023 | 24655 | CITYPT - CITY OF PT | $151.81 | $151.80 | $0.00 | $0.00 | $303.61 | $0.00 |
| 2023 | 24655 | PORTPT - PORT DISTRICT | $45.26 | $45.24 | $0.00 | $0.00 | $90.50 | $0.00 |
| 2023 | 24655 | PUD1 - PUD #1 | $7.12 | $7.12 | $0.00 | $0.00 | $14.24 | $0.00 |
| 2023 | 24655 | HD2 - HOSP DIST #2 | $6.27 | $6.27 | $0.00 | $0.00 | $12.54 | $0.00 |
| 2023 | 24655 | SD50 - SCHOOL DIST #50 | $195.32 | $195.32 | $0.00 | $0.00 | $390.64 | $0.00 |
| 2023 | 24655 | FD1 - FIRE DISTRICT #1 | $88.49 | $88.48 | $0.00 | $0.00 | $176.97 | $0.00 |
| 2023 | 24655 | EMS1 - FIRE DIST #1 EMS | $37.64 | $37.64 | $0.00 | $0.00 | $75.28 | $0.00 |
| 2023 | 24655 | JCCD - JC Conservation District | $2.53 | $2.53 | $0.00 | $0.00 | $5.06 | $0.00 |
| 2023 | 24655 | NWA - Noxious Weed Assessment | $2.15 | $2.15 | $0.00 | $0.00 | $4.30 | $0.00 |
| 2023 | 24655 | TOTAL: | $893.38 | $893.32 | $0.00 | $0.00 | $1786.70 | $0.00 |
|
| 2023 | 24655 | $893.38 | $893.32 | $0.00 | $0.00 | $1786.70 | $0.00 |
Values
| (+) Improvement Homesite Value: | + | $0 | |
| (+) Improvement Non-Homesite Value: | + | $163,707 | |
| (+) Land Homesite Value: | + | $0 | |
| (+) Land Non-Homesite Value: | + | $135,151 | |
| (+) Curr Use (HS): | + | $0 | $0 |
| (+) Curr Use (NHS): | + | $0 | $0 |
| | | -------------------------- | |
| (=) Market Value: | = | $298,858 | |
| (–) Productivity Loss: | – | $0 | |
| | | -------------------------- | |
| (=) Subtotal: | = | $298,858 | |
| (+) Senior Appraised Value: | + | $0 | |
| (+) Non-Senior Appraised Value: | + | $298,858 | |
| | | -------------------------- | |
| (=) Total Appraised Value: | = | $298,858 | |
| (–) Senior Exemption Loss: | – | $0 | |
| (–) Exemption Loss: | – | $0 | |
| | | -------------------------- | |
| (=) Taxable Value: | = | $298,858 | |
Taxing Jurisdiction
| Owner: | KHILE ENTERPRISES, LLC | | |
| % Ownership: | 100.0000000000% | | |
| Total Value: | N/A | | |
| Tax Area: | 0110 - C-50F1E1H2 |
| CE | COUNTY CURRENT EXPENSE | N/A | N/A | N/A | N/A | | |
| CNTYDD | DEVELOPMENTAL DISABILITIES | N/A | N/A | N/A | N/A | | |
| CNTYVET | VETERANS RELIEF | N/A | N/A | N/A | N/A | | |
| MENTAL | MENTAL HEALTH | N/A | N/A | N/A | N/A | | |
| PTGEN | CITY OF PT GENERAL | N/A | N/A | N/A | N/A | | |
| PTLLL | CITY OF PT - LIBRARY LID LIFT | N/A | N/A | N/A | N/A | | |
| PTMVBOND | CITY OF PT MV BOND | N/A | N/A | N/A | N/A | | |
| HOSP2CASH | HOSP DIST #2 GENERAL | N/A | N/A | N/A | N/A | | |
| SCH50BOND | SCHOOL DIST #50 BOND 2016 | N/A | N/A | N/A | N/A | | |
| SCH50CP | SCHOOL DIST #50 CAP PROJ | N/A | N/A | N/A | N/A | | |
| SCH50MO | SCHOOL DIST #50 EP & O | N/A | N/A | N/A | N/A | | |
| CONSERVE | CONSERVATION FUTURES | N/A | N/A | N/A | N/A | | |
| EMS1 | FIRE DIST #1 EMS | N/A | N/A | N/A | N/A | | |
| FD1 | FIRE DIST #1 GENERAL | N/A | N/A | N/A | N/A | | |
| PORTPT | PORT OF PT GENERAL | N/A | N/A | N/A | N/A | | |
| PORTPTIDD | PORT OF PT IDD 2019 | N/A | N/A | N/A | N/A | | |
| PUD1 | PUD #1 GENERAL | N/A | N/A | N/A | N/A | | |
| STATE | STATE SCHOOL PART 1 | N/A | N/A | N/A | N/A | | |
| STATE2 | STATE SCHOOL PART 2 | N/A | N/A | N/A | N/A | | |
| | Total Tax Rate: | N/A | | | | | |
| | | | | Taxes w/Current Exemptions: | N/A | | |
| | | | | Taxes w/o Exemptions: | N/A | | |
Improvement / Building
| Improvement #1: | Commercial/Industrial/Government Bldg | State Code: | 62 | 4000.0 sqft | Value: | $163,707 |
| Exterior Wall: | METAL | Floor Construction: | CONCR | | Foundation: | CONPR | Interior Finish: | UNFIN | | Roof Cover: | METAL |   |   |
|
Sketch
Property Image
Land
| 1 | 6190-6272Q | | 0.1899 | 8274.00 | 0.00 | 0.00 | 0.00 | $135,151 | $0 |
Roll Value History
| 2026 | N/A | N/A | N/A | N/A | N/A |
| 2025 | $163,707 | $135,151 | $0 | $298,858 | $298,858 |
| 2024 | $153,368 | $135,151 | $0 | $288,519 | $288,519 |
| 2023 | $96,096 | $130,151 | $0 | $226,247 | $226,247 |
| 2022 | $83,968 | $125,151 | $0 | $209,119 | $209,119 |
Deed and Sales History
| 1 | 08/08/2023 | SWD | Statutory Warranty Deed | JEROMY R HEWITT | KHILE ENTERPRISES, LLC | | | $455,000.00 | 141415 | |
|   | |
| 2 | 03/17/2020 | SWD | Statutory Warranty Deed | SUPERIOR REFUSE REMOVAL CORP | JEROMY R HEWITT | | | $229,000.00 | 134130 | |
|   | |
| 3 | 07/21/2000 | SWD | Statutory Warranty Deed | MELING, GORDON LEE/ELIZAB | SUPERIOR REFUSE REMOVAL CORP | 0 | 0 | $0.00 | 90261 | 0 |
Payout Agreement
| No payout information available.. |