Property
Account |
| Property ID: | 35285 | Abbreviated Legal Description: | NATIONAL CITY #1 TAX 27A |
| Parcel # / Geo ID: | 974700802 | Agent Code: | |
| Type: | Real | | |
| Tax Area: | 0110 - C-50F1E1H2 | Land Use Code | 91 |
| Open Space: | N | DFL | N |
| Historic Property: | N | Remodel Property: | N |
| Multi-Family Redevelopment: | N | | |
| Township: | 30N | Section: | 9 |
| Range: | 1W |
Location |
| Address: | | Mapsco: | 087/066 |
| Neighborhood: | SIMS WAY BY RAINIER ST / PT BUSINESS PARK COMMERCIAL | Map ID: | |
| Neighborhood CD: | 6190C |
Owner |
| Name: | TIMOTHY BEASLEY | Owner ID: | 111155 |
| Mailing Address: | DANIEL FLING JTWROS 2220 SW 112TH ST SEATTLE, WA 98146-1961 | % Ownership: | 100.0000000000% |
| | | Exemptions: | |
Pay Tax Due
Select the appropriate checkbox next to the year to be paid. Multiple years may be selected.
*Convenience Fee not included
Taxes and Assessment Details
Property Tax Information as of
03/10/2026
Click on "Statement Details" to expand or collapse a tax statement.
* Please enter a valid date ** Please enter a valid date *
Statement Details |
| 2026 | 24523 | STATE - STATE LEVY (SCHOOL) | $51.08 | $51.07 | $0.00 | $0.00 | $0.00 | $102.15 |
| 2026 | 24523 | COUNTY - COUNTY LEVIES (CE, DD, VET, MH) | $20.43 | $20.40 | $0.00 | $0.00 | $0.00 | $40.83 |
| 2026 | 24523 | CONSERVE - CONSERVATION FUTURES | $0.61 | $0.61 | $0.00 | $0.00 | $0.00 | $1.22 |
| 2026 | 24523 | CITYPT - CITY OF PT | $28.99 | $28.98 | $0.00 | $0.00 | $0.00 | $57.97 |
| 2026 | 24523 | PORTPT - PORT DISTRICT | $8.25 | $8.24 | $0.00 | $0.00 | $0.00 | $16.49 |
| 2026 | 24523 | PUD1 - PUD #1 | $1.33 | $1.33 | $0.00 | $0.00 | $0.00 | $2.66 |
| 2026 | 24523 | HD2 - HOSP DIST #2 | $1.19 | $1.19 | $0.00 | $0.00 | $0.00 | $2.38 |
| 2026 | 24523 | SD50 - SCHOOL DIST #50 | $40.47 | $40.45 | $0.00 | $0.00 | $0.00 | $80.92 |
| 2026 | 24523 | FD1 - FIRE DISTRICT #1 | $27.04 | $27.04 | $0.00 | $0.00 | $0.00 | $54.08 |
| 2026 | 24523 | EMS1 - FIRE DIST #1 EMS | $10.40 | $10.39 | $0.00 | $0.00 | $0.00 | $20.79 |
| 2026 | 24523 | FP - DNR Forest Fire Protection Assmt | $8.50 | $8.50 | $0.00 | $0.00 | $0.00 | $17.00 |
| 2026 | 24523 | FPLCA - DNR Landowner Contingency Assmt | $3.00 | $3.00 | $0.00 | $0.00 | $0.00 | $6.00 |
| 2026 | 24523 | JCCD - JC Conservation District | $2.57 | $2.57 | $0.00 | $0.00 | $0.00 | $5.14 |
| 2026 | 24523 | NWA - Noxious Weed Assessment | $3.20 | $3.20 | $0.00 | $0.00 | $0.00 | $6.40 |
| 2026 | 24523 | WAT - Clean Water District | $13.00 | $13.00 | $0.00 | $0.00 | $0.00 | $26.00 |
| 2026 | 24523 | FP ADMIN - FP ADMIN | $0.50 | $0.00 | $0.00 | $0.00 | $0.00 | $0.50 |
| 2026 | 24523 | TOTAL: | $220.56 | $219.97 | $0.00 | $0.00 | $0.00 | $440.53 |
|
| 2026 | 24523 | $220.56 | $219.97 | $0.00 | $0.00 | $0.00 | $440.53 |
Statement Details |
| 2025 | 24590 | STATE - STATE LEVY (SCHOOL) | $55.95 | $55.93 | $0.00 | $0.00 | $111.88 | $0.00 |
| 2025 | 24590 | COUNTY - COUNTY LEVIES (CE, DD, VET, MH) | $22.01 | $21.98 | $0.00 | $0.00 | $43.99 | $0.00 |
| 2025 | 24590 | CONSERVE - CONSERVATION FUTURES | $0.66 | $0.66 | $0.00 | $0.00 | $1.32 | $0.00 |
| 2025 | 24590 | CITYPT - CITY OF PT | $31.73 | $31.71 | $0.00 | $0.00 | $63.44 | $0.00 |
| 2025 | 24590 | PORTPT - PORT DISTRICT | $8.98 | $8.97 | $0.00 | $0.00 | $17.95 | $0.00 |
| 2025 | 24590 | PUD1 - PUD #1 | $1.44 | $1.44 | $0.00 | $0.00 | $2.88 | $0.00 |
| 2025 | 24590 | HD2 - HOSP DIST #2 | $1.29 | $1.28 | $0.00 | $0.00 | $2.57 | $0.00 |
| 2025 | 24590 | SD50 - SCHOOL DIST #50 | $40.89 | $40.87 | $0.00 | $0.00 | $81.76 | $0.00 |
| 2025 | 24590 | FD1 - FIRE DISTRICT #1 | $29.03 | $29.03 | $0.00 | $0.00 | $58.06 | $0.00 |
| 2025 | 24590 | EMS1 - FIRE DIST #1 EMS | $11.17 | $11.16 | $0.00 | $0.00 | $22.33 | $0.00 |
| 2025 | 24590 | FP - DNR Forest Fire Protection Assmt | $8.50 | $8.50 | $0.00 | $0.00 | $17.00 | $0.00 |
| 2025 | 24590 | FPLCA - DNR Landowner Contingency Assmt | $3.00 | $3.00 | $0.00 | $0.00 | $6.00 | $0.00 |
| 2025 | 24590 | JCCD - JC Conservation District | $2.57 | $2.57 | $0.00 | $0.00 | $5.14 | $0.00 |
| 2025 | 24590 | NWA - Noxious Weed Assessment | $2.30 | $2.30 | $0.00 | $0.00 | $4.60 | $0.00 |
| 2025 | 24590 | WAT - Clean Water District | $13.00 | $13.00 | $0.00 | $0.00 | $26.00 | $0.00 |
| 2025 | 24590 | FP ADMIN - FP ADMIN | $0.50 | $0.00 | $0.00 | $0.00 | $0.50 | $0.00 |
| 2025 | 24590 | TOTAL: | $233.02 | $232.40 | $0.00 | $0.00 | $465.42 | $0.00 |
|
| 2025 | 24590 | $233.02 | $232.40 | $0.00 | $0.00 | $465.42 | $0.00 |
Statement Details |
| 2024 | 24636 | STATE - STATE LEVY (SCHOOL) | $51.41 | $51.39 | $0.00 | $0.00 | $102.80 | $0.00 |
| 2024 | 24636 | COUNTY - COUNTY LEVIES (CE, DD, VET, MH) | $22.01 | $21.98 | $0.00 | $0.00 | $43.99 | $0.00 |
| 2024 | 24636 | CONSERVE - CONSERVATION FUTURES | $0.66 | $0.66 | $0.00 | $0.00 | $1.32 | $0.00 |
| 2024 | 24636 | CITYPT - CITY OF PT | $31.43 | $31.42 | $0.00 | $0.00 | $62.85 | $0.00 |
| 2024 | 24636 | PORTPT - PORT DISTRICT | $9.09 | $9.08 | $0.00 | $0.00 | $18.17 | $0.00 |
| 2024 | 24636 | PUD1 - PUD #1 | $1.45 | $1.44 | $0.00 | $0.00 | $2.89 | $0.00 |
| 2024 | 24636 | HD2 - HOSP DIST #2 | $1.29 | $1.28 | $0.00 | $0.00 | $2.57 | $0.00 |
| 2024 | 24636 | SD50 - SCHOOL DIST #50 | $41.59 | $41.58 | $0.00 | $0.00 | $83.17 | $0.00 |
| 2024 | 24636 | FD1 - FIRE DISTRICT #1 | $29.08 | $29.08 | $0.00 | $0.00 | $58.16 | $0.00 |
| 2024 | 24636 | EMS1 - FIRE DIST #1 EMS | $11.11 | $11.11 | $0.00 | $0.00 | $22.22 | $0.00 |
| 2024 | 24636 | FP - DNR Forest Fire Protection Assmt | $8.50 | $8.50 | $0.00 | $0.00 | $17.00 | $0.00 |
| 2024 | 24636 | FPLCA - DNR Landowner Contingency Assmt | $3.00 | $3.00 | $0.00 | $0.00 | $6.00 | $0.00 |
| 2024 | 24636 | JCCD - JC Conservation District | $2.57 | $2.57 | $0.00 | $0.00 | $5.14 | $0.00 |
| 2024 | 24636 | NWA - Noxious Weed Assessment | $2.30 | $2.30 | $0.00 | $0.00 | $4.60 | $0.00 |
| 2024 | 24636 | WAT - Clean Water District | $12.50 | $12.50 | $0.00 | $0.00 | $25.00 | $0.00 |
| 2024 | 24636 | FP ADMIN - FP ADMIN | $0.50 | $0.00 | $0.00 | $0.00 | $0.50 | $0.00 |
| 2024 | 24636 | TOTAL: | $228.49 | $227.89 | $0.00 | $0.00 | $456.38 | $0.00 |
|
| 2024 | 24636 | $228.49 | $227.89 | $0.00 | $0.00 | $456.38 | $0.00 |
Statement Details |
| 2023 | 24675 | STATE - STATE LEVY (SCHOOL) | $52.31 | $52.29 | $0.00 | $0.00 | $104.60 | $0.00 |
| 2023 | 24675 | COUNTY - COUNTY LEVIES (CE, DD, VET, MH) | $22.82 | $22.82 | $0.00 | $0.00 | $45.64 | $0.00 |
| 2023 | 24675 | CONSERVE - CONSERVATION FUTURES | $0.69 | $0.68 | $0.00 | $0.00 | $1.37 | $0.00 |
| 2023 | 24675 | CITYPT - CITY OF PT | $32.27 | $32.25 | $0.00 | $0.00 | $64.52 | $0.00 |
| 2023 | 24675 | PORTPT - PORT DISTRICT | $9.62 | $9.61 | $0.00 | $0.00 | $19.23 | $0.00 |
| 2023 | 24675 | PUD1 - PUD #1 | $1.52 | $1.51 | $0.00 | $0.00 | $3.03 | $0.00 |
| 2023 | 24675 | HD2 - HOSP DIST #2 | $1.34 | $1.32 | $0.00 | $0.00 | $2.66 | $0.00 |
| 2023 | 24675 | SD50 - SCHOOL DIST #50 | $41.51 | $41.49 | $0.00 | $0.00 | $83.00 | $0.00 |
| 2023 | 24675 | FD1 - FIRE DISTRICT #1 | $18.80 | $18.80 | $0.00 | $0.00 | $37.60 | $0.00 |
| 2023 | 24675 | EMS1 - FIRE DIST #1 EMS | $8.00 | $7.99 | $0.00 | $0.00 | $15.99 | $0.00 |
| 2023 | 24675 | FP - DNR Forest Fire Protection Assmt | $8.50 | $8.50 | $0.00 | $0.00 | $17.00 | $0.00 |
| 2023 | 24675 | FPLCA - DNR Landowner Contingency Assmt | $3.00 | $3.00 | $0.00 | $0.00 | $6.00 | $0.00 |
| 2023 | 24675 | JCCD - JC Conservation District | $2.57 | $2.57 | $0.00 | $0.00 | $5.14 | $0.00 |
| 2023 | 24675 | NWA - Noxious Weed Assessment | $2.30 | $2.30 | $0.00 | $0.00 | $4.60 | $0.00 |
| 2023 | 24675 | WAT - Clean Water District | $12.00 | $12.00 | $0.00 | $0.00 | $24.00 | $0.00 |
| 2023 | 24675 | FP ADMIN - FP ADMIN | $0.50 | $0.00 | $0.00 | $0.00 | $0.50 | $0.00 |
| 2023 | 24675 | TOTAL: | $217.75 | $217.13 | $0.00 | $0.00 | $434.88 | $0.00 |
|
| 2023 | 24675 | $217.75 | $217.13 | $0.00 | $0.00 | $434.88 | $0.00 |
Values
| (+) Improvement Homesite Value: | + | $0 | |
| (+) Improvement Non-Homesite Value: | + | $0 | |
| (+) Land Homesite Value: | + | $0 | |
| (+) Land Non-Homesite Value: | + | $44,431 | |
| (+) Curr Use (HS): | + | $0 | $0 |
| (+) Curr Use (NHS): | + | $0 | $0 |
| | | -------------------------- | |
| (=) Market Value: | = | $44,431 | |
| (–) Productivity Loss: | – | $0 | |
| | | -------------------------- | |
| (=) Subtotal: | = | $44,431 | |
| (+) Senior Appraised Value: | + | $0 | |
| (+) Non-Senior Appraised Value: | + | $44,431 | |
| | | -------------------------- | |
| (=) Total Appraised Value: | = | $44,431 | |
| (–) Senior Exemption Loss: | – | $0 | |
| (–) Exemption Loss: | – | $0 | |
| | | -------------------------- | |
| (=) Taxable Value: | = | $44,431 | |
Taxing Jurisdiction
| Owner: | TIMOTHY BEASLEY | | |
| % Ownership: | 100.0000000000% | | |
| Total Value: | $44,431 | | |
| Tax Area: | 0110 - C-50F1E1H2 |
| CE | COUNTY CURRENT EXPENSE | 0.9034619479 | $44,431 | $44,431 | $40.14 | | |
| CNTYDD | DEVELOPMENTAL DISABILITIES | 0.0052121823 | $44,431 | $44,431 | $0.23 | | |
| CNTYVET | VETERANS RELIEF | 0.0052777810 | $44,431 | $44,431 | $0.23 | | |
| MENTAL | MENTAL HEALTH | 0.0052121823 | $44,431 | $44,431 | $0.23 | | |
| PTGEN | CITY OF PT GENERAL | 0.8551967795 | $44,431 | $44,431 | $38.00 | | |
| PTLLL | CITY OF PT - LIBRARY LID LIFT | 0.4010114288 | $44,431 | $44,431 | $17.82 | | |
| PTMVBOND | CITY OF PT MV BOND | 0.0484717981 | $44,431 | $44,431 | $2.15 | | |
| HOSP2CASH | HOSP DIST #2 GENERAL | 0.0536075306 | $44,431 | $44,431 | $2.38 | | |
| SCH50BOND | SCHOOL DIST #50 BOND 2016 | 0.5377451389 | $44,431 | $44,431 | $23.89 | | |
| SCH50CP | SCHOOL DIST #50 CAP PROJ | 0.4573475088 | $44,431 | $44,431 | $20.32 | | |
| SCH50MO | SCHOOL DIST #50 EP & O | 0.8262822886 | $44,431 | $44,431 | $36.71 | | |
| CONSERVE | CONSERVATION FUTURES | 0.0275621078 | $44,431 | $44,431 | $1.22 | | |
| EMS1 | FIRE DIST #1 EMS | 0.4679948282 | $44,431 | $44,431 | $20.79 | | |
| FD1 | FIRE DIST #1 GENERAL | 1.2171942929 | $44,431 | $44,431 | $54.08 | | |
| PORTPT | PORT OF PT GENERAL | 0.1134941229 | $44,431 | $44,431 | $5.04 | | |
| PORTPTIDD | PORT OF PT IDD 2019 | 0.2577346692 | $44,431 | $44,431 | $11.45 | | |
| PUD1 | PUD #1 GENERAL | 0.0597888892 | $44,431 | $44,431 | $2.66 | | |
| STATE | STATE SCHOOL PART 1 | 1.4940692947 | $44,431 | $44,431 | $66.38 | | |
| STATE2 | STATE SCHOOL PART 2 | 0.8050170049 | $44,431 | $44,431 | $35.77 | | |
| | Total Tax Rate: | 8.5416817766 | | | | | |
| | | | | Taxes w/Current Exemptions: | $379.49 | | |
| | | | | Taxes w/o Exemptions: | $379.49 | | |
Improvement / Building
Sketch
| No sketches available for this property. |
Property Image
Land
| 1 | 6190-6277Q | | 1.1657 | 50778.00 | 0.00 | 0.00 | 1.00 | $44,431 | $0 |
Roll Value History
| 2026 | N/A | N/A | N/A | N/A | N/A |
| 2025 | $0 | $44,431 | $0 | $44,431 | $44,431 |
| 2024 | $0 | $46,653 | $0 | $46,653 | $46,653 |
| 2023 | $0 | $44,431 | $0 | $44,431 | $44,431 |
| 2022 | $0 | $44,431 | $0 | $44,431 | $44,431 |
Deed and Sales History
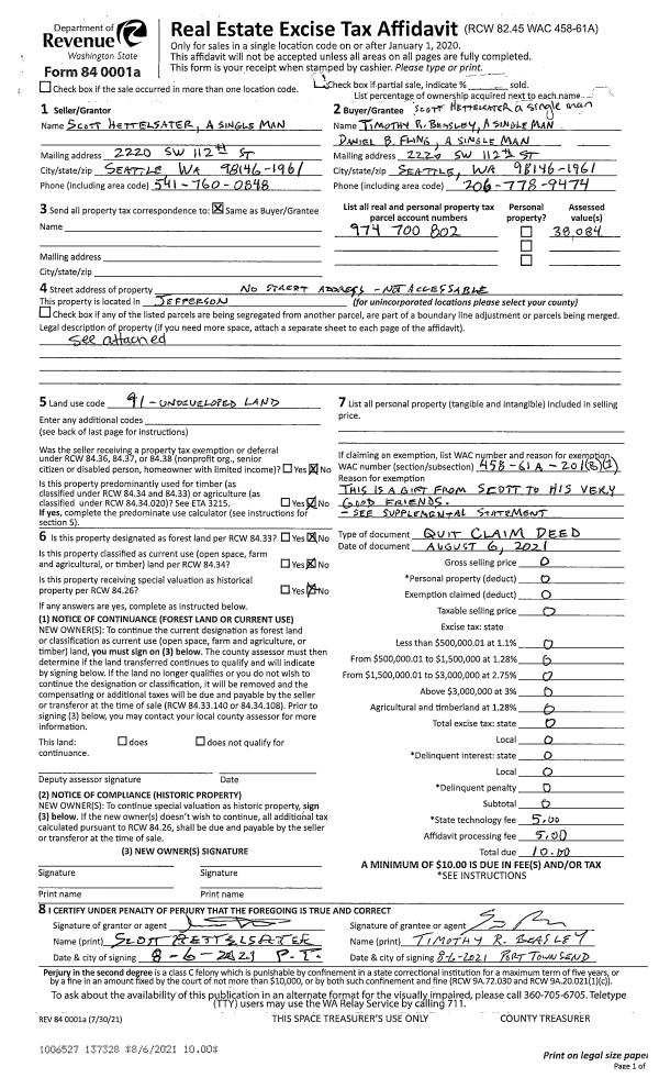
| 1 | 03/08/2024 | DTH CERT | Death Certificate | SCOTT HETTELSATER | | | | | 0 | 666979 |
| 2 | 08/06/2021 | QCD | Quit Claim Deed | SCOTT HETTELSATER | SCOTT HETTELSATER | | | | 137328 | |
| 3 | 12/10/2003 | SWD | Statutory Warranty Deed | MERRIAM, CHARLES/LINDA D | HETTELSATER, SCOTT | 0 | 0 | $20,000.00 | 99180 | 0 |
Payout Agreement
| No payout information available.. |