Property
Account |
| Property ID: | 35296 | Abbreviated Legal Description: | NORTON'S 1ST ADD TO IRONDALE LOT 1 |
| Parcel # / Geo ID: | 975200001 | Agent Code: | |
| Type: | Real | | |
| Tax Area: | 0211 - 1-49F1E1H2L1 | Land Use Code | 11 |
| Open Space: | N | DFL | N |
| Historic Property: | N | Remodel Property: | N |
| Multi-Family Redevelopment: | N | | |
| Township: | 29N | Section: | 3 |
| Range: | 1W |
Location |
| Address: | 121 7TH AVE PORT HADLOCK, WA 98339 | Mapsco: | 069/130 |
| Neighborhood: | SEVENTH AVE T/PITTSBURG/NORTON'S1ST & GIBBONS/ELIASON/POSTON | Map ID: | |
| Neighborhood CD: | 4223 |
Owner |
| Name: | ALYASON B & JENNIFER M MITCHELL | Owner ID: | 105516 |
| Mailing Address: | 2230 W VALLEY RD CHIMACUM, WA 98325-9791 | % Ownership: | 100.0000000000% |
| | | Exemptions: | |
Pay Tax Due
Select the appropriate checkbox next to the year to be paid. Multiple years may be selected.
*Convenience Fee not included
Taxes and Assessment Details
Property Tax Information as of
03/10/2026
Click on "Statement Details" to expand or collapse a tax statement.
* Please enter a valid date ** Please enter a valid date *
Statement Details |
| 2026 | 24534 | STATE - STATE LEVY (SCHOOL) | $665.83 | $665.81 | $0.00 | $0.00 | $0.00 | $1331.64 |
| 2026 | 24534 | COUNTY - COUNTY LEVIES (CE, DD, VET, MH) | $266.20 | $266.19 | $0.00 | $0.00 | $0.00 | $532.39 |
| 2026 | 24534 | CONSERVE - CONSERVATION FUTURES | $7.98 | $7.98 | $0.00 | $0.00 | $0.00 | $15.96 |
| 2026 | 24534 | COROADS - COUNTY ROADS (ROADS, DIV TO CE) | $214.74 | $214.74 | $0.00 | $0.00 | $0.00 | $429.48 |
| 2026 | 24534 | PORTPT - PORT DISTRICT | $107.51 | $107.51 | $0.00 | $0.00 | $0.00 | $215.02 |
| 2026 | 24534 | PUD1 - PUD #1 | $17.32 | $17.31 | $0.00 | $0.00 | $0.00 | $34.63 |
| 2026 | 24534 | LIB1 - LIBRARY DIST #1 | $83.08 | $83.08 | $0.00 | $0.00 | $0.00 | $166.16 |
| 2026 | 24534 | HD2 - HOSP DIST #2 | $15.53 | $15.52 | $0.00 | $0.00 | $0.00 | $31.05 |
| 2026 | 24534 | SD49 - SCHOOL DIST #49 | $366.52 | $366.50 | $0.00 | $0.00 | $0.00 | $733.02 |
| 2026 | 24534 | FD1 - FIRE DISTRICT #1 | $352.50 | $352.50 | $0.00 | $0.00 | $0.00 | $705.00 |
| 2026 | 24534 | EMS1 - FIRE DIST #1 EMS | $135.53 | $135.53 | $0.00 | $0.00 | $0.00 | $271.06 |
| 2026 | 24534 | FP - DNR Forest Fire Protection Assmt | $8.50 | $8.50 | $0.00 | $0.00 | $0.00 | $17.00 |
| 2026 | 24534 | FPLCA - DNR Landowner Contingency Assmt | $3.00 | $3.00 | $0.00 | $0.00 | $0.00 | $6.00 |
| 2026 | 24534 | JCCD - JC Conservation District | $2.55 | $2.55 | $0.00 | $0.00 | $0.00 | $5.10 |
| 2026 | 24534 | NWA - Noxious Weed Assessment | $2.98 | $2.97 | $0.00 | $0.00 | $0.00 | $5.95 |
| 2026 | 24534 | OSS - On Site Septic | $23.10 | $23.10 | $0.00 | $0.00 | $0.00 | $46.20 |
| 2026 | 24534 | WAT - Clean Water District | $13.00 | $13.00 | $0.00 | $0.00 | $0.00 | $26.00 |
| 2026 | 24534 | FP ADMIN - FP ADMIN | $0.50 | $0.00 | $0.00 | $0.00 | $0.00 | $0.50 |
| 2026 | 24534 | TOTAL: | $2286.37 | $2285.79 | $0.00 | $0.00 | $0.00 | $4572.16 |
|
| 2026 | 24534 | $2286.37 | $2285.79 | $0.00 | $0.00 | $0.00 | $4572.16 |
Statement Details |
| 2025 | 24601 | STATE - STATE LEVY (SCHOOL) | $662.91 | $662.90 | $0.00 | $0.00 | $1325.81 | $0.00 |
| 2025 | 24601 | COUNTY - COUNTY LEVIES (CE, DD, VET, MH) | $260.70 | $260.67 | $0.00 | $0.00 | $521.37 | $0.00 |
| 2025 | 24601 | CONSERVE - CONSERVATION FUTURES | $7.82 | $7.81 | $0.00 | $0.00 | $15.63 | $0.00 |
| 2025 | 24601 | COROADS - COUNTY ROADS (ROADS, DIV TO CE) | $208.85 | $208.84 | $0.00 | $0.00 | $417.69 | $0.00 |
| 2025 | 24601 | PORTPT - PORT DISTRICT | $106.38 | $106.37 | $0.00 | $0.00 | $212.75 | $0.00 |
| 2025 | 24601 | PUD1 - PUD #1 | $17.06 | $17.06 | $0.00 | $0.00 | $34.12 | $0.00 |
| 2025 | 24601 | LIB1 - LIBRARY DIST #1 | $80.80 | $80.80 | $0.00 | $0.00 | $161.60 | $0.00 |
| 2025 | 24601 | HD2 - HOSP DIST #2 | $15.21 | $15.21 | $0.00 | $0.00 | $30.42 | $0.00 |
| 2025 | 24601 | SD49 - SCHOOL DIST #49 | $355.28 | $355.27 | $0.00 | $0.00 | $710.55 | $0.00 |
| 2025 | 24601 | FD1 - FIRE DISTRICT #1 | $344.00 | $344.00 | $0.00 | $0.00 | $688.00 | $0.00 |
| 2025 | 24601 | EMS1 - FIRE DIST #1 EMS | $132.31 | $132.31 | $0.00 | $0.00 | $264.62 | $0.00 |
| 2025 | 24601 | FP - DNR Forest Fire Protection Assmt | $8.50 | $8.50 | $0.00 | $0.00 | $17.00 | $0.00 |
| 2025 | 24601 | FPLCA - DNR Landowner Contingency Assmt | $3.00 | $3.00 | $0.00 | $0.00 | $6.00 | $0.00 |
| 2025 | 24601 | JCCD - JC Conservation District | $2.55 | $2.55 | $0.00 | $0.00 | $5.10 | $0.00 |
| 2025 | 24601 | NWA - Noxious Weed Assessment | $2.15 | $2.15 | $0.00 | $0.00 | $4.30 | $0.00 |
| 2025 | 24601 | OSS - On Site Septic | $21.50 | $21.50 | $0.00 | $0.00 | $43.00 | $0.00 |
| 2025 | 24601 | WAT - Clean Water District | $13.00 | $13.00 | $0.00 | $0.00 | $26.00 | $0.00 |
| 2025 | 24601 | FP ADMIN - FP ADMIN | $0.50 | $0.00 | $0.00 | $0.00 | $0.50 | $0.00 |
| 2025 | 24601 | TOTAL: | $2242.52 | $2241.94 | $0.00 | $0.00 | $4484.46 | $0.00 |
|
| 2025 | 24601 | $2242.52 | $2241.94 | $0.00 | $0.00 | $4484.46 | $0.00 |
Statement Details |
| 2024 | 24647 | STATE - STATE LEVY (SCHOOL) | $603.33 | $603.32 | $0.00 | $0.00 | $1206.65 | $0.00 |
| 2024 | 24647 | COUNTY - COUNTY LEVIES (CE, DD, VET, MH) | $258.18 | $258.17 | $0.00 | $0.00 | $516.35 | $0.00 |
| 2024 | 24647 | CONSERVE - CONSERVATION FUTURES | $7.74 | $7.74 | $0.00 | $0.00 | $15.48 | $0.00 |
| 2024 | 24647 | COROADS - COUNTY ROADS (ROADS, DIV TO CE) | $207.74 | $207.74 | $0.00 | $0.00 | $415.48 | $0.00 |
| 2024 | 24647 | PORTPT - PORT DISTRICT | $106.64 | $106.63 | $0.00 | $0.00 | $213.27 | $0.00 |
| 2024 | 24647 | PUD1 - PUD #1 | $16.96 | $16.96 | $0.00 | $0.00 | $33.92 | $0.00 |
| 2024 | 24647 | LIB1 - LIBRARY DIST #1 | $80.38 | $80.37 | $0.00 | $0.00 | $160.75 | $0.00 |
| 2024 | 24647 | HD2 - HOSP DIST #2 | $15.07 | $15.06 | $0.00 | $0.00 | $30.13 | $0.00 |
| 2024 | 24647 | SD49 - SCHOOL DIST #49 | $269.42 | $269.41 | $0.00 | $0.00 | $538.83 | $0.00 |
| 2024 | 24647 | FD1 - FIRE DISTRICT #1 | $341.36 | $341.36 | $0.00 | $0.00 | $682.72 | $0.00 |
| 2024 | 24647 | EMS1 - FIRE DIST #1 EMS | $130.39 | $130.38 | $0.00 | $0.00 | $260.77 | $0.00 |
| 2024 | 24647 | FP - DNR Forest Fire Protection Assmt | $8.50 | $8.50 | $0.00 | $0.00 | $17.00 | $0.00 |
| 2024 | 24647 | FPLCA - DNR Landowner Contingency Assmt | $3.00 | $3.00 | $0.00 | $0.00 | $6.00 | $0.00 |
| 2024 | 24647 | JCCD - JC Conservation District | $2.55 | $2.55 | $0.00 | $0.00 | $5.10 | $0.00 |
| 2024 | 24647 | NWA - Noxious Weed Assessment | $2.15 | $2.15 | $0.00 | $0.00 | $4.30 | $0.00 |
| 2024 | 24647 | OSS - On Site Septic | $21.00 | $21.00 | $0.00 | $0.00 | $42.00 | $0.00 |
| 2024 | 24647 | WAT - Clean Water District | $12.50 | $12.50 | $0.00 | $0.00 | $25.00 | $0.00 |
| 2024 | 24647 | FP ADMIN - FP ADMIN | $0.50 | $0.00 | $0.00 | $0.00 | $0.50 | $0.00 |
| 2024 | 24647 | TOTAL: | $2087.41 | $2086.84 | $0.00 | $0.00 | $4174.25 | $0.00 |
|
| 2024 | 24647 | $2087.41 | $2086.84 | $0.00 | $0.00 | $4174.25 | $0.00 |
Statement Details |
| 2023 | 24686 | STATE - STATE LEVY (SCHOOL) | $582.93 | $582.92 | $0.00 | $0.00 | $1165.85 | $0.00 |
| 2023 | 24686 | COUNTY - COUNTY LEVIES (CE, DD, VET, MH) | $254.38 | $254.36 | $0.00 | $0.00 | $508.74 | $0.00 |
| 2023 | 24686 | CONSERVE - CONSERVATION FUTURES | $7.63 | $7.63 | $0.00 | $0.00 | $15.26 | $0.00 |
| 2023 | 24686 | COROADS - COUNTY ROADS (ROADS, DIV TO CE) | $205.81 | $205.80 | $0.00 | $0.00 | $411.61 | $0.00 |
| 2023 | 24686 | PORTPT - PORT DISTRICT | $107.16 | $107.15 | $0.00 | $0.00 | $214.31 | $0.00 |
| 2023 | 24686 | PUD1 - PUD #1 | $16.86 | $16.86 | $0.00 | $0.00 | $33.72 | $0.00 |
| 2023 | 24686 | LIB1 - LIBRARY DIST #1 | $79.63 | $79.62 | $0.00 | $0.00 | $159.25 | $0.00 |
| 2023 | 24686 | HD2 - HOSP DIST #2 | $14.85 | $14.84 | $0.00 | $0.00 | $29.69 | $0.00 |
| 2023 | 24686 | SD49 - SCHOOL DIST #49 | $272.49 | $272.48 | $0.00 | $0.00 | $544.97 | $0.00 |
| 2023 | 24686 | FD1 - FIRE DISTRICT #1 | $209.55 | $209.55 | $0.00 | $0.00 | $419.10 | $0.00 |
| 2023 | 24686 | EMS1 - FIRE DIST #1 EMS | $89.14 | $89.14 | $0.00 | $0.00 | $178.28 | $0.00 |
| 2023 | 24686 | FP - DNR Forest Fire Protection Assmt | $8.50 | $8.50 | $0.00 | $0.00 | $17.00 | $0.00 |
| 2023 | 24686 | FPLCA - DNR Landowner Contingency Assmt | $3.00 | $3.00 | $0.00 | $0.00 | $6.00 | $0.00 |
| 2023 | 24686 | JCCD - JC Conservation District | $2.55 | $2.55 | $0.00 | $0.00 | $5.10 | $0.00 |
| 2023 | 24686 | NWA - Noxious Weed Assessment | $2.15 | $2.15 | $0.00 | $0.00 | $4.30 | $0.00 |
| 2023 | 24686 | OSS - On Site Septic | $20.50 | $20.50 | $0.00 | $0.00 | $41.00 | $0.00 |
| 2023 | 24686 | WAT - Clean Water District | $12.00 | $12.00 | $0.00 | $0.00 | $24.00 | $0.00 |
| 2023 | 24686 | FP ADMIN - FP ADMIN | $0.50 | $0.00 | $0.00 | $0.00 | $0.50 | $0.00 |
| 2023 | 24686 | TOTAL: | $1889.63 | $1889.05 | $0.00 | $0.00 | $3778.68 | $0.00 |
|
| 2023 | 24686 | $1889.63 | $1889.05 | $0.00 | $0.00 | $3778.68 | $0.00 |
Values
| (+) Improvement Homesite Value: | + | $0 | |
| (+) Improvement Non-Homesite Value: | + | $447,203 | |
| (+) Land Homesite Value: | + | $0 | |
| (+) Land Non-Homesite Value: | + | $132,000 | |
| (+) Curr Use (HS): | + | $0 | $0 |
| (+) Curr Use (NHS): | + | $0 | $0 |
| | | -------------------------- | |
| (=) Market Value: | = | $579,203 | |
| (–) Productivity Loss: | – | $0 | |
| | | -------------------------- | |
| (=) Subtotal: | = | $579,203 | |
| (+) Senior Appraised Value: | + | $0 | |
| (+) Non-Senior Appraised Value: | + | $579,203 | |
| | | -------------------------- | |
| (=) Total Appraised Value: | = | $579,203 | |
| (–) Senior Exemption Loss: | – | $0 | |
| (–) Exemption Loss: | – | $0 | |
| | | -------------------------- | |
| (=) Taxable Value: | = | $579,203 | |
Taxing Jurisdiction
| Owner: | ALYASON B & JENNIFER M MITCHELL | | |
| % Ownership: | 100.0000000000% | | |
| Total Value: | $579,203 | | |
| Tax Area: | 0211 - 1-49F1E1H2L1 |
| CE | COUNTY CURRENT EXPENSE | 0.9034619479 | $579,203 | $579,203 | $523.29 | | |
| CNTYDD | DEVELOPMENTAL DISABILITIES | 0.0052121823 | $579,203 | $579,203 | $3.02 | | |
| CNTYVET | VETERANS RELIEF | 0.0052777810 | $579,203 | $579,203 | $3.06 | | |
| MENTAL | MENTAL HEALTH | 0.0052121823 | $579,203 | $579,203 | $3.02 | | |
| ROADS | COUNTY ROADS | 0.7415066410 | $579,203 | $579,203 | $429.48 | | |
| ROADSCU | COUNTY ROADS TO CUR EXP | 0.0000000000 | $579,203 | $579,203 | $0.00 | | |
| HOSP2CASH | HOSP DIST #2 GENERAL | 0.0536075306 | $579,203 | $579,203 | $31.05 | | |
| SCH49CP | SCHOOL DIST #49 CAP PROJ | 0.6279093905 | $579,203 | $579,203 | $363.69 | | |
| SCH49MO | SCHOOL DIST #49 EP & O | 0.6376483602 | $579,203 | $579,203 | $369.33 | | |
| CONSERVE | CONSERVATION FUTURES | 0.0275621078 | $579,203 | $579,203 | $15.96 | | |
| EMS1 | FIRE DIST #1 EMS | 0.4679948282 | $579,203 | $579,203 | $271.06 | | |
| FD1 | FIRE DIST #1 GENERAL | 1.2171942929 | $579,203 | $579,203 | $705.00 | | |
| LIB1 | LIBRARY DIST #1 GENERAL | 0.2868827388 | $579,203 | $579,203 | $166.16 | | |
| PORTPT | PORT OF PT GENERAL | 0.1134941229 | $579,203 | $579,203 | $65.74 | | |
| PORTPTIDD | PORT OF PT IDD 2019 | 0.2577346692 | $579,203 | $579,203 | $149.28 | | |
| PUD1 | PUD #1 GENERAL | 0.0597888892 | $579,203 | $579,203 | $34.63 | | |
| STATE | STATE SCHOOL PART 1 | 1.4940692947 | $579,203 | $579,203 | $865.37 | | |
| STATE2 | STATE SCHOOL PART 2 | 0.8050170049 | $579,203 | $579,203 | $466.27 | | |
| | Total Tax Rate: | 7.7095739644 | | | | | |
| | | | | Taxes w/Current Exemptions: | $4,465.41 | | |
| | | | | Taxes w/o Exemptions: | $4,465.41 | | |
Improvement / Building
| Improvement #1: | Residential Bldg | State Code: | 11 | 2472.0 sqft | Value: | $447,203 |
| Bathrooms (#): | 2 (FULL) | Bedrooms (#): | 3 | | Exterior Wall: | SI/ST | Fireplace: | WD ST-AVG | | Floor Construction: | FRAME | Foundation: | CONPR | | Heating/Cooling: | F/A | Inside Verify: | YES-FIX | | Roof Cover: | COMP |   |   |
|
| | Type | Description | Class CD | Sub Class CD | Year Built | Area |
| | MA | Main Area | 4 | 2S | 1991 | 1728.0 |
| | MA2 | Second Floor Main Area | 4 | 2S | 1991 | 744.0 |
| | HDECK | House Deck | 4 | * | 1991 | 1168.0 |
| | HENCL | House Enclosure | 4 | * | 1991 | 80.0 |
| | OTHER | Other | 4 | * | 1991 | 0.0 |
Sketch
| No sketches available for this property. |
Property Image
Land
| 1 | 4223-1284S | | 0.0000 | 0.00 | 0.00 | 0.00 | 1.00 | $132,000 | $0 |
Roll Value History
| 2026 | N/A | N/A | N/A | N/A | N/A |
| 2025 | $447,203 | $132,000 | $0 | $579,203 | $579,203 |
| 2024 | $426,875 | $126,000 | $0 | $552,875 | $552,875 |
| 2023 | $406,548 | $115,000 | $0 | $521,548 | $521,548 |
| 2022 | $400,230 | $95,000 | $0 | $495,230 | $495,230 |
Deed and Sales History
| 1 | 08/31/2021 | SWD | Statutory Warranty Deed | GEOFF & CEARRA GALLAWAY | ALYASON B & JENNIFER M MITCHELL | | | $500,000.00 | 137581 | |
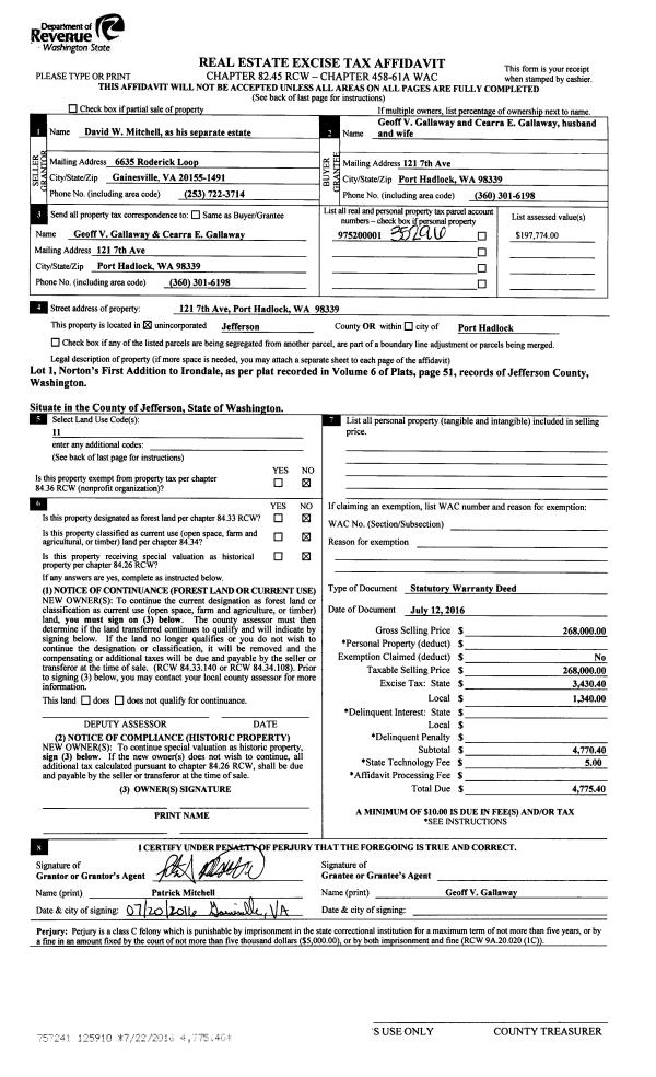
| 2 | 07/12/2016 | SWD | Statutory Warranty Deed | DAVID W MITCHELL | GEOFF & CEARRA GALLAWAY | | | $268,000.00 | 125910 | |
| 3 | 02/09/2005 | BSD | Bargain and Sale Deed | SECRETARY OF VETERANS AFF | MITCHELL, DAVID W | | | $0.00 | 103194 | 0 |
| 4 | 04/23/2004 | WD | Warranty Deed | LANDSAFE TITLE OF WASH | COUNTRY WIDE HOME LOANS INC | 0 | 0 | $0.00 | 100068 | 0 |
| 5 | 04/23/2004 | SWD | Statutory Warranty Deed | COUNTRYWIDE HOME LOANS | SEC OF VETERANS AFFAIRS | 0 | 0 | $0.00 | 100069 | 0 |
| 6 | 12/28/1995 | SWD | Statutory Warranty Deed | SWEET, MICHAEL E/LINDA S | HOHNHOLT, REED B/TONHYA L | 0 | 0 | $172,000.00 | 78553 | 0 |
Payout Agreement
| No payout information available.. |