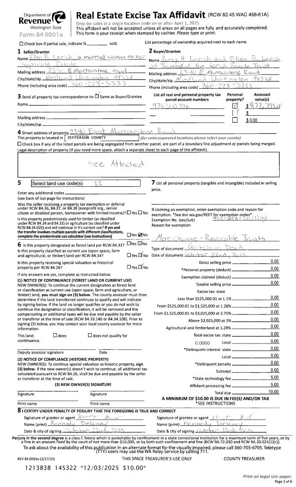
Property
Account |
| Property ID: | 35409 | Abbreviated Legal Description: | R NORDBY SHORT PLAT LOT 4 |
| Parcel # / Geo ID: | 976200706 | Agent Code: | |
| Type: | Real | | |
| Tax Area: | 0211 - 1-49F1E1H2L1 | Land Use Code | 11 |
| Open Space: | N | DFL | N |
| Historic Property: | N | Remodel Property: | N |
| Multi-Family Redevelopment: | N | | |
| Township: | 30N | Section: | 33 |
| Range: | 1E |
Location |
| Address: | 2340 EAST MARROWSTONE RD NORDLAND, WA 98358 | Mapsco: | 238/073 |
| Neighborhood: | NORDLAND INCLUDES NORDBY SP & G NORDBY SP | Map ID: | |
| Neighborhood CD: | 4555 |
Owner |
| Name: | LERICH FAMILY TRUST | Owner ID: | 113734 |
| Mailing Address: | ELLEN B LERICH TRUSTEE BARRY H LERICH TRUSTEE 2340 E MARROWSTONE RD NORDLAND, WA 98358-9522 | % Ownership: | 100.0000000000% |
| | | Exemptions: | |
Pay Tax Due
There is currently No Amount Due on this property.
Taxes and Assessment Details
Property Tax Information as of
03/10/2026
Click on "Statement Details" to expand or collapse a tax statement.
* Please enter a valid date ** Please enter a valid date *
Statement Details |
| | TOTAL: | $0.00 | $0.00 | $0.00 | $0.00 | $0.00 | $0.00 |
|
| | $0.00 | $0.00 | $0.00 | $0.00 | $0.00 | $0.00 |
Values
| (+) Improvement Homesite Value: | + | $0 | |
| (+) Improvement Non-Homesite Value: | + | $571,940 | |
| (+) Land Homesite Value: | + | $0 | |
| (+) Land Non-Homesite Value: | + | $387,182 | |
| (+) Curr Use (HS): | + | $0 | $0 |
| (+) Curr Use (NHS): | + | $0 | $0 |
| | | -------------------------- | |
| (=) Market Value: | = | $959,122 | |
| (–) Productivity Loss: | – | $0 | |
| | | -------------------------- | |
| (=) Subtotal: | = | $959,122 | |
| (+) Senior Appraised Value: | + | $0 | |
| (+) Non-Senior Appraised Value: | + | $959,122 | |
| | | -------------------------- | |
| (=) Total Appraised Value: | = | $959,122 | |
| (–) Senior Exemption Loss: | – | $0 | |
| (–) Exemption Loss: | – | $0 | |
| | | -------------------------- | |
| (=) Taxable Value: | = | $959,122 | |
Taxing Jurisdiction
| Owner: | LERICH FAMILY TRUST | | |
| % Ownership: | 100.0000000000% | | |
| Total Value: | $959,122 | | |
| Tax Area: | 0211 - 1-49F1E1H2L1 |
| CE | COUNTY CURRENT EXPENSE | 0.9034619479 | $959,122 | $959,122 | $866.53 | | |
| CNTYDD | DEVELOPMENTAL DISABILITIES | 0.0052121823 | $959,122 | $959,122 | $5.00 | | |
| CNTYVET | VETERANS RELIEF | 0.0052777810 | $959,122 | $959,122 | $5.06 | | |
| MENTAL | MENTAL HEALTH | 0.0052121823 | $959,122 | $959,122 | $5.00 | | |
| ROADS | COUNTY ROADS | 0.7415066410 | $959,122 | $959,122 | $711.20 | | |
| ROADSCU | COUNTY ROADS TO CUR EXP | 0.0000000000 | $959,122 | $959,122 | $0.00 | | |
| HOSP2CASH | HOSP DIST #2 GENERAL | 0.0536075306 | $959,122 | $959,122 | $51.42 | | |
| SCH49CP | SCHOOL DIST #49 CAP PROJ | 0.6279093905 | $959,122 | $959,122 | $602.24 | | |
| SCH49MO | SCHOOL DIST #49 EP & O | 0.6376483602 | $959,122 | $959,122 | $611.58 | | |
| CONSERVE | CONSERVATION FUTURES | 0.0275621078 | $959,122 | $959,122 | $26.44 | | |
| EMS1 | FIRE DIST #1 EMS | 0.4679948282 | $959,122 | $959,122 | $448.86 | | |
| FD1 | FIRE DIST #1 GENERAL | 1.2171942929 | $959,122 | $959,122 | $1,167.44 | | |
| LIB1 | LIBRARY DIST #1 GENERAL | 0.2868827388 | $959,122 | $959,122 | $275.16 | | |
| PORTPT | PORT OF PT GENERAL | 0.1134941229 | $959,122 | $959,122 | $108.85 | | |
| PORTPTIDD | PORT OF PT IDD 2019 | 0.2577346692 | $959,122 | $959,122 | $247.20 | | |
| PUD1 | PUD #1 GENERAL | 0.0597888892 | $959,122 | $959,122 | $57.34 | | |
| STATE | STATE SCHOOL PART 1 | 1.4940692947 | $959,122 | $959,122 | $1,432.99 | | |
| STATE2 | STATE SCHOOL PART 2 | 0.8050170049 | $959,122 | $959,122 | $772.11 | | |
| | Total Tax Rate: | 7.7095739644 | | | | | |
| | | | | Taxes w/Current Exemptions: | $7,394.42 | | |
| | | | | Taxes w/o Exemptions: | $7,394.42 | | |
Improvement / Building
| Improvement #1: | Residential Bldg | State Code: | 11 | 3163.0 sqft | Value: | $571,940 |
| Bathrooms (#): | 4 (FULL) | Bedrooms (#): | 3 | | Exterior Wall: | PL/T1 | Fireplace: | PROPS-GOOD | | Floor Construction: | FRAME | Foundation: | PO&BL | | Heating/Cooling: | ELBB | Roof Cover: | METAL |
|
| | Type | Description | Class CD | Sub Class CD | Year Built | Area |
| | MA | Main Area | 4- | 15SF | 1990 | 2158.0 |
| | MA2 | Second Floor Main Area | 4- | 15SF | 1990 | 1005.0 |
| | HWPOR | House Wood Porch | 4 | 15SF | 1990 | 18.0 |
| | HBAL | House Balcony | 4 | 15SF | 1990 | 180.0 |
| | HDECK | House Deck | 4 | 15SF | 1990 | 1348.0 |
| | GATT | House Attached Garage | 4 | 15SF | 1990 | 576.0 |
| | HLOFT | House Loft | 4 | 15SF | 1990 | 130.0 |
| | SHED | Shed (Table Not Dep) | 3 | 15SF | 1990 | 0.0 |
Sketch
| No sketches available for this property. |
Property Image
Land
| 1 | 4555-1535F | High Bank Waterfront Marrowstone | 0.0000 | 0.00 | 0.00 | 0.00 | 0.00 | $350,750 | $0 |
| 2 | 4555-1535F | High Bank Waterfront Marrowstone | 0.0000 | 0.00 | 0.00 | 0.00 | 0.00 | $36,432 | $0 |
Roll Value History
| 2026 | N/A | N/A | N/A | N/A | N/A |
| 2025 | $571,940 | $387,182 | $0 | $959,122 | $959,122 |
| 2024 | $524,279 | $353,514 | $0 | $877,793 | $877,793 |
| 2023 | $500,448 | $331,680 | $0 | $832,128 | $832,128 |
| 2022 | $468,146 | $326,680 | $0 | $794,826 | $794,826 |
Deed and Sales History
| 1 | 10/22/2025 | QCD | Quit Claim Deed | ELLEN B LERICH | LERICH FAMILY TRUST | | | | 145322 | |
| 2 | 07/26/2001 | SWD | Statutory Warranty Deed | DONEY III, JOHN H/DONNA M | LERICH, ELLEN B | 0 | 0 | $337,500.00 | 92707 | 0 |
| 3 | 07/20/2001 | QCD | Quit Claim Deed | LERICH, BARRY | LERICH, ELLEN B | 0 | 0 | $0.00 | 92708 | 0 |
Payout Agreement
| No payout information available.. |