Property
Account |
| Property ID: | 35429 | Abbreviated Legal Description: | NORDLAND TAX 48(PTN BLK 7&16) |
| Parcel # / Geo ID: | 976201605 | Agent Code: | |
| Type: | Real | | |
| Tax Area: | 0211 - 1-49F1E1H2L1 | Land Use Code | 11 |
| Open Space: | N | DFL | N |
| Historic Property: | N | Remodel Property: | N |
| Multi-Family Redevelopment: | N | | |
| Township: | 30N | Section: | 33 |
| Range: | 1E |
Location |
| Address: | 2260 EAST MARROWSTONE RD NORDLAND, WA 98358 | Mapsco: | 071/029 |
| Neighborhood: | NORDLAND INCLUDES NORDBY SP & G NORDBY SP | Map ID: | |
| Neighborhood CD: | 4555 |
Owner |
| Name: | ROBERT & MARY WILCOX LIVING TRUST | Owner ID: | 107843 |
| Mailing Address: | ROBERT S WILCOX TRUSTEE MARY E WILCOX TRUSTEE 2260 E MARROWSTONE RD NORDLAND, WA 98358-9637 | % Ownership: | 100.0000000000% |
| | | Exemptions: | |
Pay Tax Due
Select the appropriate checkbox next to the year to be paid. Multiple years may be selected.
*Convenience Fee not included
Taxes and Assessment Details
Property Tax Information as of
03/10/2026
Click on "Statement Details" to expand or collapse a tax statement.
* Please enter a valid date ** Please enter a valid date *
Statement Details |
| 2026 | 24666 | STATE - STATE LEVY (SCHOOL) | $766.46 | $766.45 | $0.00 | $0.00 | $0.00 | $1532.91 |
| 2026 | 24666 | COUNTY - COUNTY LEVIES (CE, DD, VET, MH) | $306.43 | $306.43 | $0.00 | $0.00 | $0.00 | $612.86 |
| 2026 | 24666 | CONSERVE - CONSERVATION FUTURES | $9.19 | $9.19 | $0.00 | $0.00 | $0.00 | $18.38 |
| 2026 | 24666 | COROADS - COUNTY ROADS (ROADS, DIV TO CE) | $247.20 | $247.20 | $0.00 | $0.00 | $0.00 | $494.40 |
| 2026 | 24666 | PORTPT - PORT DISTRICT | $123.76 | $123.75 | $0.00 | $0.00 | $0.00 | $247.51 |
| 2026 | 24666 | PUD1 - PUD #1 | $19.93 | $19.93 | $0.00 | $0.00 | $0.00 | $39.86 |
| 2026 | 24666 | LIB1 - LIBRARY DIST #1 | $95.64 | $95.64 | $0.00 | $0.00 | $0.00 | $191.28 |
| 2026 | 24666 | HD2 - HOSP DIST #2 | $17.87 | $17.87 | $0.00 | $0.00 | $0.00 | $35.74 |
| 2026 | 24666 | SD49 - SCHOOL DIST #49 | $421.91 | $421.90 | $0.00 | $0.00 | $0.00 | $843.81 |
| 2026 | 24666 | FD1 - FIRE DISTRICT #1 | $405.78 | $405.78 | $0.00 | $0.00 | $0.00 | $811.56 |
| 2026 | 24666 | EMS1 - FIRE DIST #1 EMS | $156.02 | $156.02 | $0.00 | $0.00 | $0.00 | $312.04 |
| 2026 | 24666 | FP - DNR Forest Fire Protection Assmt | $8.50 | $8.50 | $0.00 | $0.00 | $0.00 | $17.00 |
| 2026 | 24666 | FPLCA - DNR Landowner Contingency Assmt | $3.00 | $3.00 | $0.00 | $0.00 | $0.00 | $6.00 |
| 2026 | 24666 | JCCD - JC Conservation District | $2.60 | $2.60 | $0.00 | $0.00 | $0.00 | $5.20 |
| 2026 | 24666 | NWA - Noxious Weed Assessment | $3.20 | $3.20 | $0.00 | $0.00 | $0.00 | $6.40 |
| 2026 | 24666 | OSS - On Site Septic | $23.10 | $23.10 | $0.00 | $0.00 | $0.00 | $46.20 |
| 2026 | 24666 | WAT - Clean Water District | $13.00 | $13.00 | $0.00 | $0.00 | $0.00 | $26.00 |
| 2026 | 24666 | FP ADMIN - FP ADMIN | $0.50 | $0.00 | $0.00 | $0.00 | $0.00 | $0.50 |
| 2026 | 24666 | TOTAL: | $2624.09 | $2623.56 | $0.00 | $0.00 | $0.00 | $5247.65 |
|
| 2026 | 24666 | $2624.09 | $2623.56 | $0.00 | $0.00 | $0.00 | $5247.65 |
Statement Details |
| 2025 | 24733 | STATE - STATE LEVY (SCHOOL) | $730.85 | $730.85 | $0.00 | $0.00 | $1461.70 | $0.00 |
| 2025 | 24733 | COUNTY - COUNTY LEVIES (CE, DD, VET, MH) | $287.42 | $287.38 | $0.00 | $0.00 | $574.80 | $0.00 |
| 2025 | 24733 | CONSERVE - CONSERVATION FUTURES | $8.62 | $8.62 | $0.00 | $0.00 | $17.24 | $0.00 |
| 2025 | 24733 | COROADS - COUNTY ROADS (ROADS, DIV TO CE) | $230.26 | $230.25 | $0.00 | $0.00 | $460.51 | $0.00 |
| 2025 | 24733 | PORTPT - PORT DISTRICT | $117.28 | $117.27 | $0.00 | $0.00 | $234.55 | $0.00 |
| 2025 | 24733 | PUD1 - PUD #1 | $18.81 | $18.80 | $0.00 | $0.00 | $37.61 | $0.00 |
| 2025 | 24733 | LIB1 - LIBRARY DIST #1 | $89.09 | $89.08 | $0.00 | $0.00 | $178.17 | $0.00 |
| 2025 | 24733 | HD2 - HOSP DIST #2 | $16.77 | $16.77 | $0.00 | $0.00 | $33.54 | $0.00 |
| 2025 | 24733 | SD49 - SCHOOL DIST #49 | $391.69 | $391.69 | $0.00 | $0.00 | $783.38 | $0.00 |
| 2025 | 24733 | FD1 - FIRE DISTRICT #1 | $379.26 | $379.26 | $0.00 | $0.00 | $758.52 | $0.00 |
| 2025 | 24733 | EMS1 - FIRE DIST #1 EMS | $145.88 | $145.87 | $0.00 | $0.00 | $291.75 | $0.00 |
| 2025 | 24733 | FP - DNR Forest Fire Protection Assmt | $8.50 | $8.50 | $0.00 | $0.00 | $17.00 | $0.00 |
| 2025 | 24733 | FPLCA - DNR Landowner Contingency Assmt | $3.00 | $3.00 | $0.00 | $0.00 | $6.00 | $0.00 |
| 2025 | 24733 | JCCD - JC Conservation District | $2.60 | $2.60 | $0.00 | $0.00 | $5.20 | $0.00 |
| 2025 | 24733 | NWA - Noxious Weed Assessment | $2.30 | $2.30 | $0.00 | $0.00 | $4.60 | $0.00 |
| 2025 | 24733 | OSS - On Site Septic | $21.50 | $21.50 | $0.00 | $0.00 | $43.00 | $0.00 |
| 2025 | 24733 | WAT - Clean Water District | $13.00 | $13.00 | $0.00 | $0.00 | $26.00 | $0.00 |
| 2025 | 24733 | FP ADMIN - FP ADMIN | $0.50 | $0.00 | $0.00 | $0.00 | $0.50 | $0.00 |
| 2025 | 24733 | TOTAL: | $2467.33 | $2466.74 | $0.00 | $0.00 | $4934.07 | $0.00 |
|
| 2025 | 24733 | $2467.33 | $2466.74 | $0.00 | $0.00 | $4934.07 | $0.00 |
Statement Details |
| 2024 | 24779 | STATE - STATE LEVY (SCHOOL) | $666.26 | $666.24 | $0.00 | $0.00 | $1332.50 | $0.00 |
| 2024 | 24779 | COUNTY - COUNTY LEVIES (CE, DD, VET, MH) | $285.10 | $285.09 | $0.00 | $0.00 | $570.19 | $0.00 |
| 2024 | 24779 | CONSERVE - CONSERVATION FUTURES | $8.55 | $8.55 | $0.00 | $0.00 | $17.10 | $0.00 |
| 2024 | 24779 | COROADS - COUNTY ROADS (ROADS, DIV TO CE) | $229.41 | $229.40 | $0.00 | $0.00 | $458.81 | $0.00 |
| 2024 | 24779 | PORTPT - PORT DISTRICT | $117.76 | $117.75 | $0.00 | $0.00 | $235.51 | $0.00 |
| 2024 | 24779 | PUD1 - PUD #1 | $18.73 | $18.72 | $0.00 | $0.00 | $37.45 | $0.00 |
| 2024 | 24779 | LIB1 - LIBRARY DIST #1 | $88.76 | $88.75 | $0.00 | $0.00 | $177.51 | $0.00 |
| 2024 | 24779 | HD2 - HOSP DIST #2 | $16.64 | $16.63 | $0.00 | $0.00 | $33.27 | $0.00 |
| 2024 | 24779 | SD49 - SCHOOL DIST #49 | $297.52 | $297.51 | $0.00 | $0.00 | $595.03 | $0.00 |
| 2024 | 24779 | FD1 - FIRE DISTRICT #1 | $376.96 | $376.96 | $0.00 | $0.00 | $753.92 | $0.00 |
| 2024 | 24779 | EMS1 - FIRE DIST #1 EMS | $143.99 | $143.98 | $0.00 | $0.00 | $287.97 | $0.00 |
| 2024 | 24779 | JCCD - JC Conservation District | $2.60 | $2.60 | $0.00 | $0.00 | $5.20 | $0.00 |
| 2024 | 24779 | NWA - Noxious Weed Assessment | $2.30 | $2.30 | $0.00 | $0.00 | $4.60 | $0.00 |
| 2024 | 24779 | OSS - On Site Septic | $21.00 | $21.00 | $0.00 | $0.00 | $42.00 | $0.00 |
| 2024 | 24779 | WAT - Clean Water District | $12.50 | $12.50 | $0.00 | $0.00 | $25.00 | $0.00 |
| 2024 | 24779 | TOTAL: | $2288.08 | $2287.98 | $0.00 | $0.00 | $4576.06 | $0.00 |
|
| 2024 | 24779 | $2288.08 | $2287.98 | $0.00 | $0.00 | $4576.06 | $0.00 |
Statement Details |
| 2023 | 24818 | STATE - STATE LEVY (SCHOOL) | $566.35 | $566.34 | $0.00 | $0.00 | $1132.69 | $0.00 |
| 2023 | 24818 | COUNTY - COUNTY LEVIES (CE, DD, VET, MH) | $247.15 | $247.13 | $0.00 | $0.00 | $494.28 | $0.00 |
| 2023 | 24818 | CONSERVE - CONSERVATION FUTURES | $7.41 | $7.41 | $0.00 | $0.00 | $14.82 | $0.00 |
| 2023 | 24818 | COROADS - COUNTY ROADS (ROADS, DIV TO CE) | $199.96 | $199.94 | $0.00 | $0.00 | $399.90 | $0.00 |
| 2023 | 24818 | PORTPT - PORT DISTRICT | $104.11 | $104.10 | $0.00 | $0.00 | $208.21 | $0.00 |
| 2023 | 24818 | PUD1 - PUD #1 | $16.38 | $16.38 | $0.00 | $0.00 | $32.76 | $0.00 |
| 2023 | 24818 | LIB1 - LIBRARY DIST #1 | $77.36 | $77.36 | $0.00 | $0.00 | $154.72 | $0.00 |
| 2023 | 24818 | HD2 - HOSP DIST #2 | $14.42 | $14.42 | $0.00 | $0.00 | $28.84 | $0.00 |
| 2023 | 24818 | SD49 - SCHOOL DIST #49 | $264.74 | $264.73 | $0.00 | $0.00 | $529.47 | $0.00 |
| 2023 | 24818 | FD1 - FIRE DISTRICT #1 | $203.59 | $203.59 | $0.00 | $0.00 | $407.18 | $0.00 |
| 2023 | 24818 | EMS1 - FIRE DIST #1 EMS | $86.61 | $86.60 | $0.00 | $0.00 | $173.21 | $0.00 |
| 2023 | 24818 | JCCD - JC Conservation District | $2.60 | $2.60 | $0.00 | $0.00 | $5.20 | $0.00 |
| 2023 | 24818 | NWA - Noxious Weed Assessment | $2.30 | $2.30 | $0.00 | $0.00 | $4.60 | $0.00 |
| 2023 | 24818 | OSS - On Site Septic | $20.50 | $20.50 | $0.00 | $0.00 | $41.00 | $0.00 |
| 2023 | 24818 | WAT - Clean Water District | $12.00 | $12.00 | $0.00 | $0.00 | $24.00 | $0.00 |
| 2023 | 24818 | TOTAL: | $1825.48 | $1825.40 | $0.00 | $0.00 | $3650.88 | $0.00 |
|
| 2023 | 24818 | $1825.48 | $1825.40 | $0.00 | $0.00 | $3650.88 | $0.00 |
Values
| (+) Improvement Homesite Value: | + | $0 | |
| (+) Improvement Non-Homesite Value: | + | $213,439 | |
| (+) Land Homesite Value: | + | $0 | |
| (+) Land Non-Homesite Value: | + | $453,310 | |
| (+) Curr Use (HS): | + | $0 | $0 |
| (+) Curr Use (NHS): | + | $0 | $0 |
| | | -------------------------- | |
| (=) Market Value: | = | $666,749 | |
| (–) Productivity Loss: | – | $0 | |
| | | -------------------------- | |
| (=) Subtotal: | = | $666,749 | |
| (+) Senior Appraised Value: | + | $0 | |
| (+) Non-Senior Appraised Value: | + | $666,749 | |
| | | -------------------------- | |
| (=) Total Appraised Value: | = | $666,749 | |
| (–) Senior Exemption Loss: | – | $0 | |
| (–) Exemption Loss: | – | $0 | |
| | | -------------------------- | |
| (=) Taxable Value: | = | $666,749 | |
Taxing Jurisdiction
| Owner: | ROBERT & MARY WILCOX LIVING TRUST | | |
| % Ownership: | 100.0000000000% | | |
| Total Value: | $666,749 | | |
| Tax Area: | 0211 - 1-49F1E1H2L1 |
| CE | COUNTY CURRENT EXPENSE | 0.9034619479 | $666,749 | $666,749 | $602.38 | | |
| CNTYDD | DEVELOPMENTAL DISABILITIES | 0.0052121823 | $666,749 | $666,749 | $3.48 | | |
| CNTYVET | VETERANS RELIEF | 0.0052777810 | $666,749 | $666,749 | $3.52 | | |
| MENTAL | MENTAL HEALTH | 0.0052121823 | $666,749 | $666,749 | $3.48 | | |
| ROADS | COUNTY ROADS | 0.7415066410 | $666,749 | $666,749 | $494.40 | | |
| ROADSCU | COUNTY ROADS TO CUR EXP | 0.0000000000 | $666,749 | $666,749 | $0.00 | | |
| HOSP2CASH | HOSP DIST #2 GENERAL | 0.0536075306 | $666,749 | $666,749 | $35.74 | | |
| SCH49CP | SCHOOL DIST #49 CAP PROJ | 0.6279093905 | $666,749 | $666,749 | $418.66 | | |
| SCH49MO | SCHOOL DIST #49 EP & O | 0.6376483602 | $666,749 | $666,749 | $425.15 | | |
| CONSERVE | CONSERVATION FUTURES | 0.0275621078 | $666,749 | $666,749 | $18.38 | | |
| EMS1 | FIRE DIST #1 EMS | 0.4679948282 | $666,749 | $666,749 | $312.04 | | |
| FD1 | FIRE DIST #1 GENERAL | 1.2171942929 | $666,749 | $666,749 | $811.56 | | |
| LIB1 | LIBRARY DIST #1 GENERAL | 0.2868827388 | $666,749 | $666,749 | $191.28 | | |
| PORTPT | PORT OF PT GENERAL | 0.1134941229 | $666,749 | $666,749 | $75.67 | | |
| PORTPTIDD | PORT OF PT IDD 2019 | 0.2577346692 | $666,749 | $666,749 | $171.84 | | |
| PUD1 | PUD #1 GENERAL | 0.0597888892 | $666,749 | $666,749 | $39.86 | | |
| STATE | STATE SCHOOL PART 1 | 1.4940692947 | $666,749 | $666,749 | $996.17 | | |
| STATE2 | STATE SCHOOL PART 2 | 0.8050170049 | $666,749 | $666,749 | $536.74 | | |
| | Total Tax Rate: | 7.7095739644 | | | | | |
| | | | | Taxes w/Current Exemptions: | $5,140.35 | | |
| | | | | Taxes w/o Exemptions: | $5,140.35 | | |
Improvement / Building
| Improvement #1: | Residential Bldg | State Code: | 11 | 759.0 sqft | Value: | $213,439 |
| Exterior Wall: | PL/T1 | Fireplace: | WD ST-GOOD | | Floor Construction: | FRAME | Foundation: | CONPR | | Heating/Cooling: | ELBB | Roof Cover: | METAL |
|
| | Type | Description | Class CD | Sub Class CD | Year Built | Area |
| | MA | Main Area | 3+ | 1S | 1989 | 759.0 |
| | HDECK | House Deck | 3 | 1S | 1989 | 440.0 |
| | GDET | Detached Garage | 3 | 1S | 1989 | 720.0 |
Sketch
Property Image
Land
| 1 | 4555-1535F | | 0.0000 | 0.00 | 0.00 | 0.00 | 0.00 | $350,750 | $0 |
| 2 | 4555-1535F | | 0.0000 | 0.00 | 0.00 | 0.00 | 0.00 | $102,560 | $0 |
Roll Value History
| 2026 | N/A | N/A | N/A | N/A | N/A |
| 2025 | $213,439 | $453,310 | $0 | $666,749 | $666,749 |
| 2024 | $195,653 | $413,892 | $0 | $609,545 | $609,545 |
| 2023 | $186,759 | $389,183 | $0 | $575,942 | $575,942 |
| 2022 | $96,962 | $384,183 | $0 | $481,145 | $481,145 |
Deed and Sales History
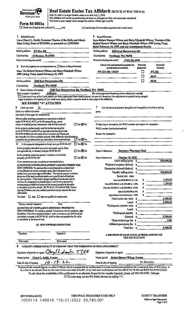
| 1 | 10/14/2022 | SWD | Statutory Warranty Deed | KELLY & GLORIA HAYS LIVING TRUST | ROBERT & MARY WILCOX LIVING TRUST | | | $600,000.00 | 140016 | |
| 2 | 10/14/2022 | QCD | Quit Claim Deed | CHERYL SMITH HEIR OF GLORIA & M KELLY HAYS | KELLY & GLORIA HAYS LIVING TRUST | | | | 140015 | |
| 3 | 09/20/2006 | WD | Warranty Deed | BENDICKSEN, RICHARD W EST | HAYS, GLORIA/M KELLY | 0 | 0 | $0.00 | 107685 | 0 |
Payout Agreement
| No payout information available.. |