Property
Account |
| Property ID: | 35439 | Abbreviated Legal Description: | NORDLAND BUILDING CONDOMINIUM UNIT 201 |
| Parcel # / Geo ID: | 976300201 | Agent Code: | |
| Type: | Real | | |
| Tax Area: | 0110 - C-50F1E1H2 | Land Use Code | 14 |
| Open Space: | N | DFL | N |
| Historic Property: | N | Remodel Property: | N |
| Multi-Family Redevelopment: | N | | |
| Township: | 30N | Section: | 2 |
| Range: | 1W |
Location |
| Address: | | Mapsco: | 086/254 |
| Neighborhood: | CYCLE 6 CONDOMINIUMS - PORT TOWNSEND | Map ID: | |
| Neighborhood CD: | 6900 |
Owner |
| Name: | FAIRBANK REVOCABLE LIVING TRUST | Owner ID: | 15442 |
| Mailing Address: | SARAH K FAIRBANK TRUSTEE OWEN N FAIRBANK TRUSTEE 1215 LAWRENCE STREET #201 PORT TOWNSEND, WA 98368 | % Ownership: | 100.0000000000% |
| | | Exemptions: | |
Pay Tax Due
Select the appropriate checkbox next to the year to be paid. Multiple years may be selected.
*Convenience Fee not included
Taxes and Assessment Details
Property Tax Information as of
03/12/2026
Click on "Statement Details" to expand or collapse a tax statement.
* Please enter a valid date ** Please enter a valid date *
Statement Details |
| 2026 | 24676 | STATE - STATE LEVY (SCHOOL) | $719.62 | $719.61 | $0.00 | $0.00 | $0.00 | $1439.23 |
| 2026 | 24676 | COUNTY - COUNTY LEVIES (CE, DD, VET, MH) | $287.70 | $287.69 | $0.00 | $0.00 | $0.00 | $575.39 |
| 2026 | 24676 | CONSERVE - CONSERVATION FUTURES | $8.63 | $8.62 | $0.00 | $0.00 | $0.00 | $17.25 |
| 2026 | 24676 | CITYPT - CITY OF PT | $408.37 | $408.35 | $0.00 | $0.00 | $0.00 | $816.72 |
| 2026 | 24676 | PORTPT - PORT DISTRICT | $116.20 | $116.19 | $0.00 | $0.00 | $0.00 | $232.39 |
| 2026 | 24676 | PUD1 - PUD #1 | $18.72 | $18.71 | $0.00 | $0.00 | $0.00 | $37.43 |
| 2026 | 24676 | HD2 - HOSP DIST #2 | $16.78 | $16.78 | $0.00 | $0.00 | $0.00 | $33.56 |
| 2026 | 24676 | SD50 - SCHOOL DIST #50 | $570.10 | $570.08 | $0.00 | $0.00 | $0.00 | $1140.18 |
| 2026 | 24676 | FD1 - FIRE DISTRICT #1 | $380.98 | $380.98 | $0.00 | $0.00 | $0.00 | $761.96 |
| 2026 | 24676 | EMS1 - FIRE DIST #1 EMS | $146.48 | $146.48 | $0.00 | $0.00 | $0.00 | $292.96 |
| 2026 | 24676 | JCCD - JC Conservation District | $2.55 | $2.55 | $0.00 | $0.00 | $0.00 | $5.10 |
| 2026 | 24676 | NWA - Noxious Weed Assessment | $2.98 | $2.97 | $0.00 | $0.00 | $0.00 | $5.95 |
| 2026 | 24676 | TOTAL: | $2679.11 | $2679.01 | $0.00 | $0.00 | $0.00 | $5358.12 |
|
| 2026 | 24676 | $2679.11 | $2679.01 | $0.00 | $0.00 | $0.00 | $5358.12 |
Statement Details |
| 2025 | 24743 | STATE - STATE LEVY (SCHOOL) | $670.20 | $670.20 | $0.00 | $0.00 | $1340.40 | $0.00 |
| 2025 | 24743 | COUNTY - COUNTY LEVIES (CE, DD, VET, MH) | $263.55 | $263.55 | $0.00 | $0.00 | $527.10 | $0.00 |
| 2025 | 24743 | CONSERVE - CONSERVATION FUTURES | $7.91 | $7.90 | $0.00 | $0.00 | $15.81 | $0.00 |
| 2025 | 24743 | CITYPT - CITY OF PT | $380.08 | $380.07 | $0.00 | $0.00 | $760.15 | $0.00 |
| 2025 | 24743 | PORTPT - PORT DISTRICT | $107.54 | $107.54 | $0.00 | $0.00 | $215.08 | $0.00 |
| 2025 | 24743 | PUD1 - PUD #1 | $17.25 | $17.24 | $0.00 | $0.00 | $34.49 | $0.00 |
| 2025 | 24743 | HD2 - HOSP DIST #2 | $15.38 | $15.37 | $0.00 | $0.00 | $30.75 | $0.00 |
| 2025 | 24743 | SD50 - SCHOOL DIST #50 | $489.82 | $489.79 | $0.00 | $0.00 | $979.61 | $0.00 |
| 2025 | 24743 | FD1 - FIRE DISTRICT #1 | $347.79 | $347.78 | $0.00 | $0.00 | $695.57 | $0.00 |
| 2025 | 24743 | EMS1 - FIRE DIST #1 EMS | $133.77 | $133.77 | $0.00 | $0.00 | $267.54 | $0.00 |
| 2025 | 24743 | JCCD - JC Conservation District | $2.55 | $2.55 | $0.00 | $0.00 | $5.10 | $0.00 |
| 2025 | 24743 | NWA - Noxious Weed Assessment | $2.15 | $2.15 | $0.00 | $0.00 | $4.30 | $0.00 |
| 2025 | 24743 | TOTAL: | $2437.99 | $2437.91 | $0.00 | $0.00 | $4875.90 | $0.00 |
|
| 2025 | 24743 | $2437.99 | $2437.91 | $0.00 | $0.00 | $4875.90 | $0.00 |
Statement Details |
| 2024 | 24789 | STATE - STATE LEVY (SCHOOL) | $584.05 | $584.04 | $0.00 | $0.00 | $1168.09 | $0.00 |
| 2024 | 24789 | COUNTY - COUNTY LEVIES (CE, DD, VET, MH) | $249.92 | $249.91 | $0.00 | $0.00 | $499.83 | $0.00 |
| 2024 | 24789 | CONSERVE - CONSERVATION FUTURES | $7.50 | $7.49 | $0.00 | $0.00 | $14.99 | $0.00 |
| 2024 | 24789 | CITYPT - CITY OF PT | $357.11 | $357.09 | $0.00 | $0.00 | $714.20 | $0.00 |
| 2024 | 24789 | PORTPT - PORT DISTRICT | $103.23 | $103.23 | $0.00 | $0.00 | $206.46 | $0.00 |
| 2024 | 24789 | PUD1 - PUD #1 | $16.42 | $16.41 | $0.00 | $0.00 | $32.83 | $0.00 |
| 2024 | 24789 | HD2 - HOSP DIST #2 | $14.58 | $14.58 | $0.00 | $0.00 | $29.16 | $0.00 |
| 2024 | 24789 | SD50 - SCHOOL DIST #50 | $472.53 | $472.51 | $0.00 | $0.00 | $945.04 | $0.00 |
| 2024 | 24789 | FD1 - FIRE DISTRICT #1 | $330.45 | $330.45 | $0.00 | $0.00 | $660.90 | $0.00 |
| 2024 | 24789 | EMS1 - FIRE DIST #1 EMS | $126.22 | $126.22 | $0.00 | $0.00 | $252.44 | $0.00 |
| 2024 | 24789 | JCCD - JC Conservation District | $2.55 | $2.55 | $0.00 | $0.00 | $5.10 | $0.00 |
| 2024 | 24789 | NWA - Noxious Weed Assessment | $2.15 | $2.15 | $0.00 | $0.00 | $4.30 | $0.00 |
| 2024 | 24789 | TOTAL: | $2266.71 | $2266.63 | $0.00 | $0.00 | $4533.34 | $0.00 |
|
| 2024 | 24789 | $2266.71 | $2266.63 | $0.00 | $0.00 | $4533.34 | $0.00 |
Statement Details |
| 2023 | 24828 | STATE - STATE LEVY (SCHOOL) | $587.60 | $587.60 | $0.00 | $0.00 | $1175.20 | $0.00 |
| 2023 | 24828 | COUNTY - COUNTY LEVIES (CE, DD, VET, MH) | $256.43 | $256.39 | $0.00 | $0.00 | $512.82 | $0.00 |
| 2023 | 24828 | CONSERVE - CONSERVATION FUTURES | $7.69 | $7.69 | $0.00 | $0.00 | $15.38 | $0.00 |
| 2023 | 24828 | CITYPT - CITY OF PT | $362.40 | $362.39 | $0.00 | $0.00 | $724.79 | $0.00 |
| 2023 | 24828 | PORTPT - PORT DISTRICT | $108.02 | $108.01 | $0.00 | $0.00 | $216.03 | $0.00 |
| 2023 | 24828 | PUD1 - PUD #1 | $17.00 | $16.99 | $0.00 | $0.00 | $33.99 | $0.00 |
| 2023 | 24828 | HD2 - HOSP DIST #2 | $14.97 | $14.96 | $0.00 | $0.00 | $29.93 | $0.00 |
| 2023 | 24828 | SD50 - SCHOOL DIST #50 | $466.28 | $466.27 | $0.00 | $0.00 | $932.55 | $0.00 |
| 2023 | 24828 | FD1 - FIRE DISTRICT #1 | $211.23 | $211.23 | $0.00 | $0.00 | $422.46 | $0.00 |
| 2023 | 24828 | EMS1 - FIRE DIST #1 EMS | $89.86 | $89.85 | $0.00 | $0.00 | $179.71 | $0.00 |
| 2023 | 24828 | JCCD - JC Conservation District | $2.55 | $2.55 | $0.00 | $0.00 | $5.10 | $0.00 |
| 2023 | 24828 | NWA - Noxious Weed Assessment | $2.15 | $2.15 | $0.00 | $0.00 | $4.30 | $0.00 |
| 2023 | 24828 | TOTAL: | $2126.18 | $2126.08 | $0.00 | $0.00 | $4252.26 | $0.00 |
|
| 2023 | 24828 | $2126.18 | $2126.08 | $0.00 | $0.00 | $4252.26 | $0.00 |
Values
| (+) Improvement Homesite Value: | + | $0 | |
| (+) Improvement Non-Homesite Value: | + | $426,000 | |
| (+) Land Homesite Value: | + | $0 | |
| (+) Land Non-Homesite Value: | + | $200,000 | |
| (+) Curr Use (HS): | + | $0 | $0 |
| (+) Curr Use (NHS): | + | $0 | $0 |
| | | -------------------------- | |
| (=) Market Value: | = | $626,000 | |
| (–) Productivity Loss: | – | $0 | |
| | | -------------------------- | |
| (=) Subtotal: | = | $626,000 | |
| (+) Senior Appraised Value: | + | $0 | |
| (+) Non-Senior Appraised Value: | + | $626,000 | |
| | | -------------------------- | |
| (=) Total Appraised Value: | = | $626,000 | |
| (–) Senior Exemption Loss: | – | $0 | |
| (–) Exemption Loss: | – | $0 | |
| | | -------------------------- | |
| (=) Taxable Value: | = | $626,000 | |
Taxing Jurisdiction
| Owner: | FAIRBANK REVOCABLE LIVING TRUST | | |
| % Ownership: | 100.0000000000% | | |
| Total Value: | $626,000 | | |
| Tax Area: | 0110 - C-50F1E1H2 |
| CE | COUNTY CURRENT EXPENSE | 0.9034619479 | $626,000 | $626,000 | $565.57 | | |
| CNTYDD | DEVELOPMENTAL DISABILITIES | 0.0052121823 | $626,000 | $626,000 | $3.26 | | |
| CNTYVET | VETERANS RELIEF | 0.0052777810 | $626,000 | $626,000 | $3.30 | | |
| MENTAL | MENTAL HEALTH | 0.0052121823 | $626,000 | $626,000 | $3.26 | | |
| PTGEN | CITY OF PT GENERAL | 0.8551967795 | $626,000 | $626,000 | $535.35 | | |
| PTLLL | CITY OF PT - LIBRARY LID LIFT | 0.4010114288 | $626,000 | $626,000 | $251.03 | | |
| PTMVBOND | CITY OF PT MV BOND | 0.0484717981 | $626,000 | $626,000 | $30.34 | | |
| HOSP2CASH | HOSP DIST #2 GENERAL | 0.0536075306 | $626,000 | $626,000 | $33.56 | | |
| SCH50BOND | SCHOOL DIST #50 BOND 2016 | 0.5377451389 | $626,000 | $626,000 | $336.63 | | |
| SCH50CP | SCHOOL DIST #50 CAP PROJ | 0.4573475088 | $626,000 | $626,000 | $286.30 | | |
| SCH50MO | SCHOOL DIST #50 EP & O | 0.8262822886 | $626,000 | $626,000 | $517.25 | | |
| CONSERVE | CONSERVATION FUTURES | 0.0275621078 | $626,000 | $626,000 | $17.25 | | |
| EMS1 | FIRE DIST #1 EMS | 0.4679948282 | $626,000 | $626,000 | $292.96 | | |
| FD1 | FIRE DIST #1 GENERAL | 1.2171942929 | $626,000 | $626,000 | $761.96 | | |
| PORTPT | PORT OF PT GENERAL | 0.1134941229 | $626,000 | $626,000 | $71.05 | | |
| PORTPTIDD | PORT OF PT IDD 2019 | 0.2577346692 | $626,000 | $626,000 | $161.34 | | |
| PUD1 | PUD #1 GENERAL | 0.0597888892 | $626,000 | $626,000 | $37.43 | | |
| STATE | STATE SCHOOL PART 1 | 1.4940692947 | $626,000 | $626,000 | $935.29 | | |
| STATE2 | STATE SCHOOL PART 2 | 0.8050170049 | $626,000 | $626,000 | $503.94 | | |
| | Total Tax Rate: | 8.5416817766 | | | | | |
| | | | | Taxes w/Current Exemptions: | $5,347.07 | | |
| | | | | Taxes w/o Exemptions: | $5,347.07 | | |
Improvement / Building
| Improvement #1: | Residential Bldg | State Code: | 14 | 1136.0 sqft | Value: | $426,000 |
Sketch
| No sketches available for this property. |
Property Image
Land
| 1 | 9763-4113S | | 0.0000 | 0.00 | 0.00 | 0.00 | 1.00 | $200,000 | $0 |
Roll Value History
| 2026 | N/A | N/A | N/A | N/A | N/A |
| 2025 | $426,000 | $200,000 | $0 | $626,000 | $626,000 |
| 2024 | $408,960 | $150,000 | $0 | $558,960 | $558,960 |
| 2023 | $374,880 | $130,000 | $0 | $504,880 | $504,880 |
| 2022 | $369,200 | $130,000 | $0 | $499,200 | $499,200 |
Deed and Sales History
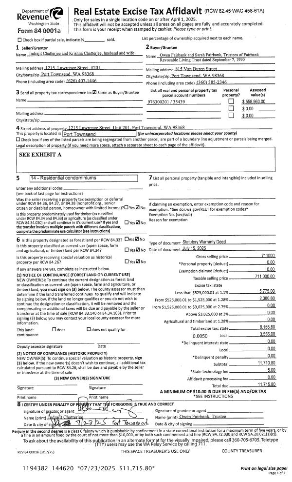
| 1 | 07/15/2025 | SWD | Statutory Warranty Deed | INDRAJIT & KRISHNA CHATTERJEE | FAIRBANK REVOCABLE LIVING TRUST | | | $711,000.00 | 144620 | |
| 2 | 06/08/2013 | SWD | Statutory Warranty Deed | NORDLAND CONSTRUCTION NW INC | INDRAJIT & KRISHNA CHATTERJEE | | | $330,000.00 | 119536 | |
Payout Agreement
| No payout information available.. |