Property
Account |
| Property ID: | 35441 | Abbreviated Legal Description: | NORDLAND BUILDING CONDOMINIUM UNIT 301 |
| Parcel # / Geo ID: | 976300301 | Agent Code: | |
| Type: | Real | | |
| Tax Area: | 0110 - C-50F1E1H2 | Land Use Code | 14 |
| Open Space: | N | DFL | N |
| Historic Property: | N | Remodel Property: | N |
| Multi-Family Redevelopment: | N | | |
| Township: | 30N | Section: | 2 |
| Range: | 1W |
Location |
| Address: | | Mapsco: | 086/256 |
| Neighborhood: | CYCLE 6 CONDOMINIUMS - PORT TOWNSEND | Map ID: | |
| Neighborhood CD: | 6900 |
Owner |
| Name: | TRUDY A JAYCOX TRUST | Owner ID: | 90207 |
| Mailing Address: | TRUDY JAYCOX TRUSTEE RANDALL JAYCOX TRUSTEE 1215 LAWRENCE ST #301 PORT TOWNSEND, WA 98368-6559 | % Ownership: | 100.0000000000% |
| | | Exemptions: | |
Pay Tax Due
Select the appropriate checkbox next to the year to be paid. Multiple years may be selected.
*Convenience Fee not included
Taxes and Assessment Details
Property Tax Information as of
03/10/2026
Click on "Statement Details" to expand or collapse a tax statement.
* Please enter a valid date ** Please enter a valid date *
Statement Details |
| 2026 | 24678 | STATE - STATE LEVY (SCHOOL) | $777.10 | $777.08 | $0.00 | $0.00 | $0.00 | $1554.18 |
| 2026 | 24678 | COUNTY - COUNTY LEVIES (CE, DD, VET, MH) | $310.68 | $310.67 | $0.00 | $0.00 | $0.00 | $621.35 |
| 2026 | 24678 | CONSERVE - CONSERVATION FUTURES | $9.32 | $9.31 | $0.00 | $0.00 | $0.00 | $18.63 |
| 2026 | 24678 | CITYPT - CITY OF PT | $440.99 | $440.97 | $0.00 | $0.00 | $0.00 | $881.96 |
| 2026 | 24678 | PORTPT - PORT DISTRICT | $125.48 | $125.47 | $0.00 | $0.00 | $0.00 | $250.95 |
| 2026 | 24678 | PUD1 - PUD #1 | $20.21 | $20.21 | $0.00 | $0.00 | $0.00 | $40.42 |
| 2026 | 24678 | HD2 - HOSP DIST #2 | $18.12 | $18.12 | $0.00 | $0.00 | $0.00 | $36.24 |
| 2026 | 24678 | SD50 - SCHOOL DIST #50 | $615.64 | $615.62 | $0.00 | $0.00 | $0.00 | $1231.26 |
| 2026 | 24678 | FD1 - FIRE DISTRICT #1 | $411.41 | $411.41 | $0.00 | $0.00 | $0.00 | $822.82 |
| 2026 | 24678 | EMS1 - FIRE DIST #1 EMS | $158.18 | $158.18 | $0.00 | $0.00 | $0.00 | $316.36 |
| 2026 | 24678 | JCCD - JC Conservation District | $2.55 | $2.55 | $0.00 | $0.00 | $0.00 | $5.10 |
| 2026 | 24678 | NWA - Noxious Weed Assessment | $2.98 | $2.97 | $0.00 | $0.00 | $0.00 | $5.95 |
| 2026 | 24678 | TOTAL: | $2892.66 | $2892.56 | $0.00 | $0.00 | $0.00 | $5785.22 |
|
| 2026 | 24678 | $2892.66 | $2892.56 | $0.00 | $0.00 | $0.00 | $5785.22 |
Statement Details |
| 2025 | 24745 | STATE - STATE LEVY (SCHOOL) | $730.16 | $730.14 | $0.00 | $0.00 | $1460.30 | $0.00 |
| 2025 | 24745 | COUNTY - COUNTY LEVIES (CE, DD, VET, MH) | $287.15 | $287.11 | $0.00 | $0.00 | $574.26 | $0.00 |
| 2025 | 24745 | CONSERVE - CONSERVATION FUTURES | $8.61 | $8.61 | $0.00 | $0.00 | $17.22 | $0.00 |
| 2025 | 24745 | CITYPT - CITY OF PT | $414.08 | $414.05 | $0.00 | $0.00 | $828.13 | $0.00 |
| 2025 | 24745 | PORTPT - PORT DISTRICT | $117.17 | $117.16 | $0.00 | $0.00 | $234.33 | $0.00 |
| 2025 | 24745 | PUD1 - PUD #1 | $18.79 | $18.79 | $0.00 | $0.00 | $37.58 | $0.00 |
| 2025 | 24745 | HD2 - HOSP DIST #2 | $16.75 | $16.75 | $0.00 | $0.00 | $33.50 | $0.00 |
| 2025 | 24745 | SD50 - SCHOOL DIST #50 | $533.62 | $533.61 | $0.00 | $0.00 | $1067.23 | $0.00 |
| 2025 | 24745 | FD1 - FIRE DISTRICT #1 | $378.90 | $378.89 | $0.00 | $0.00 | $757.79 | $0.00 |
| 2025 | 24745 | EMS1 - FIRE DIST #1 EMS | $145.74 | $145.73 | $0.00 | $0.00 | $291.47 | $0.00 |
| 2025 | 24745 | JCCD - JC Conservation District | $2.55 | $2.55 | $0.00 | $0.00 | $5.10 | $0.00 |
| 2025 | 24745 | NWA - Noxious Weed Assessment | $2.15 | $2.15 | $0.00 | $0.00 | $4.30 | $0.00 |
| 2025 | 24745 | TOTAL: | $2655.67 | $2655.54 | $0.00 | $0.00 | $5311.21 | $0.00 |
|
| 2025 | 24745 | $2655.67 | $2655.54 | $0.00 | $0.00 | $5311.21 | $0.00 |
Statement Details |
| 2024 | 24791 | STATE - STATE LEVY (SCHOOL) | $607.18 | $607.18 | $0.00 | $0.00 | $1214.36 | $0.00 |
| 2024 | 24791 | COUNTY - COUNTY LEVIES (CE, DD, VET, MH) | $259.83 | $259.80 | $0.00 | $0.00 | $519.63 | $0.00 |
| 2024 | 24791 | CONSERVE - CONSERVATION FUTURES | $7.79 | $7.79 | $0.00 | $0.00 | $15.58 | $0.00 |
| 2024 | 24791 | CITYPT - CITY OF PT | $371.26 | $371.23 | $0.00 | $0.00 | $742.49 | $0.00 |
| 2024 | 24791 | PORTPT - PORT DISTRICT | $107.32 | $107.31 | $0.00 | $0.00 | $214.63 | $0.00 |
| 2024 | 24791 | PUD1 - PUD #1 | $17.07 | $17.06 | $0.00 | $0.00 | $34.13 | $0.00 |
| 2024 | 24791 | HD2 - HOSP DIST #2 | $15.16 | $15.16 | $0.00 | $0.00 | $30.32 | $0.00 |
| 2024 | 24791 | SD50 - SCHOOL DIST #50 | $491.24 | $491.23 | $0.00 | $0.00 | $982.47 | $0.00 |
| 2024 | 24791 | FD1 - FIRE DISTRICT #1 | $343.54 | $343.54 | $0.00 | $0.00 | $687.08 | $0.00 |
| 2024 | 24791 | EMS1 - FIRE DIST #1 EMS | $131.22 | $131.22 | $0.00 | $0.00 | $262.44 | $0.00 |
| 2024 | 24791 | JCCD - JC Conservation District | $2.55 | $2.55 | $0.00 | $0.00 | $5.10 | $0.00 |
| 2024 | 24791 | NWA - Noxious Weed Assessment | $2.15 | $2.15 | $0.00 | $0.00 | $4.30 | $0.00 |
| 2024 | 24791 | TOTAL: | $2356.31 | $2356.22 | $0.00 | $0.00 | $4712.53 | $0.00 |
|
| 2024 | 24791 | $2356.31 | $2356.22 | $0.00 | $0.00 | $4712.53 | $0.00 |
Statement Details |
| 2023 | 24830 | STATE - STATE LEVY (SCHOOL) | $611.14 | $611.14 | $0.00 | $0.00 | $1222.28 | $0.00 |
| 2023 | 24830 | COUNTY - COUNTY LEVIES (CE, DD, VET, MH) | $266.70 | $266.67 | $0.00 | $0.00 | $533.37 | $0.00 |
| 2023 | 24830 | CONSERVE - CONSERVATION FUTURES | $8.00 | $7.99 | $0.00 | $0.00 | $15.99 | $0.00 |
| 2023 | 24830 | CITYPT - CITY OF PT | $376.92 | $376.90 | $0.00 | $0.00 | $753.82 | $0.00 |
| 2023 | 24830 | PORTPT - PORT DISTRICT | $112.35 | $112.34 | $0.00 | $0.00 | $224.69 | $0.00 |
| 2023 | 24830 | PUD1 - PUD #1 | $17.68 | $17.67 | $0.00 | $0.00 | $35.35 | $0.00 |
| 2023 | 24830 | HD2 - HOSP DIST #2 | $15.57 | $15.56 | $0.00 | $0.00 | $31.13 | $0.00 |
| 2023 | 24830 | SD50 - SCHOOL DIST #50 | $484.96 | $484.94 | $0.00 | $0.00 | $969.90 | $0.00 |
| 2023 | 24830 | FD1 - FIRE DISTRICT #1 | $219.70 | $219.69 | $0.00 | $0.00 | $439.39 | $0.00 |
| 2023 | 24830 | EMS1 - FIRE DIST #1 EMS | $93.46 | $93.45 | $0.00 | $0.00 | $186.91 | $0.00 |
| 2023 | 24830 | JCCD - JC Conservation District | $2.55 | $2.55 | $0.00 | $0.00 | $5.10 | $0.00 |
| 2023 | 24830 | NWA - Noxious Weed Assessment | $2.15 | $2.15 | $0.00 | $0.00 | $4.30 | $0.00 |
| 2023 | 24830 | TOTAL: | $2211.18 | $2211.05 | $0.00 | $0.00 | $4422.23 | $0.00 |
|
| 2023 | 24830 | $2211.18 | $2211.05 | $0.00 | $0.00 | $4422.23 | $0.00 |
Values
| (+) Improvement Homesite Value: | + | $0 | |
| (+) Improvement Non-Homesite Value: | + | $426,000 | |
| (+) Land Homesite Value: | + | $0 | |
| (+) Land Non-Homesite Value: | + | $250,000 | |
| (+) Curr Use (HS): | + | $0 | $0 |
| (+) Curr Use (NHS): | + | $0 | $0 |
| | | -------------------------- | |
| (=) Market Value: | = | $676,000 | |
| (–) Productivity Loss: | – | $0 | |
| | | -------------------------- | |
| (=) Subtotal: | = | $676,000 | |
| (+) Senior Appraised Value: | + | $0 | |
| (+) Non-Senior Appraised Value: | + | $676,000 | |
| | | -------------------------- | |
| (=) Total Appraised Value: | = | $676,000 | |
| (–) Senior Exemption Loss: | – | $0 | |
| (–) Exemption Loss: | – | $0 | |
| | | -------------------------- | |
| (=) Taxable Value: | = | $676,000 | |
Taxing Jurisdiction
| Owner: | TRUDY A JAYCOX TRUST | | |
| % Ownership: | 100.0000000000% | | |
| Total Value: | $676,000 | | |
| Tax Area: | 0110 - C-50F1E1H2 |
| CE | COUNTY CURRENT EXPENSE | 0.9034619479 | $676,000 | $676,000 | $610.74 | | |
| CNTYDD | DEVELOPMENTAL DISABILITIES | 0.0052121823 | $676,000 | $676,000 | $3.52 | | |
| CNTYVET | VETERANS RELIEF | 0.0052777810 | $676,000 | $676,000 | $3.57 | | |
| MENTAL | MENTAL HEALTH | 0.0052121823 | $676,000 | $676,000 | $3.52 | | |
| PTGEN | CITY OF PT GENERAL | 0.8551967795 | $676,000 | $676,000 | $578.11 | | |
| PTLLL | CITY OF PT - LIBRARY LID LIFT | 0.4010114288 | $676,000 | $676,000 | $271.08 | | |
| PTMVBOND | CITY OF PT MV BOND | 0.0484717981 | $676,000 | $676,000 | $32.77 | | |
| HOSP2CASH | HOSP DIST #2 GENERAL | 0.0536075306 | $676,000 | $676,000 | $36.24 | | |
| SCH50BOND | SCHOOL DIST #50 BOND 2016 | 0.5377451389 | $676,000 | $676,000 | $363.52 | | |
| SCH50CP | SCHOOL DIST #50 CAP PROJ | 0.4573475088 | $676,000 | $676,000 | $309.17 | | |
| SCH50MO | SCHOOL DIST #50 EP & O | 0.8262822886 | $676,000 | $676,000 | $558.57 | | |
| CONSERVE | CONSERVATION FUTURES | 0.0275621078 | $676,000 | $676,000 | $18.63 | | |
| EMS1 | FIRE DIST #1 EMS | 0.4679948282 | $676,000 | $676,000 | $316.36 | | |
| FD1 | FIRE DIST #1 GENERAL | 1.2171942929 | $676,000 | $676,000 | $822.82 | | |
| PORTPT | PORT OF PT GENERAL | 0.1134941229 | $676,000 | $676,000 | $76.72 | | |
| PORTPTIDD | PORT OF PT IDD 2019 | 0.2577346692 | $676,000 | $676,000 | $174.23 | | |
| PUD1 | PUD #1 GENERAL | 0.0597888892 | $676,000 | $676,000 | $40.42 | | |
| STATE | STATE SCHOOL PART 1 | 1.4940692947 | $676,000 | $676,000 | $1,009.99 | | |
| STATE2 | STATE SCHOOL PART 2 | 0.8050170049 | $676,000 | $676,000 | $544.19 | | |
| | Total Tax Rate: | 8.5416817766 | | | | | |
| | | | | Taxes w/Current Exemptions: | $5,774.17 | | |
| | | | | Taxes w/o Exemptions: | $5,774.17 | | |
Improvement / Building
| Improvement #1: | Residential Bldg | State Code: | 14 | 1136.0 sqft | Value: | $426,000 |
Sketch
| No sketches available for this property. |
Property Image
Land
| 1 | 9763-4113S | | 0.0000 | 0.00 | 0.00 | 0.00 | 1.00 | $250,000 | $0 |
Roll Value History
| 2026 | N/A | N/A | N/A | N/A | N/A |
| 2025 | $426,000 | $250,000 | $0 | $676,000 | $676,000 |
| 2024 | $408,960 | $200,000 | $0 | $608,960 | $608,960 |
| 2023 | $374,880 | $150,000 | $0 | $524,880 | $524,880 |
| 2022 | $369,200 | $150,000 | $0 | $519,200 | $519,200 |
Deed and Sales History
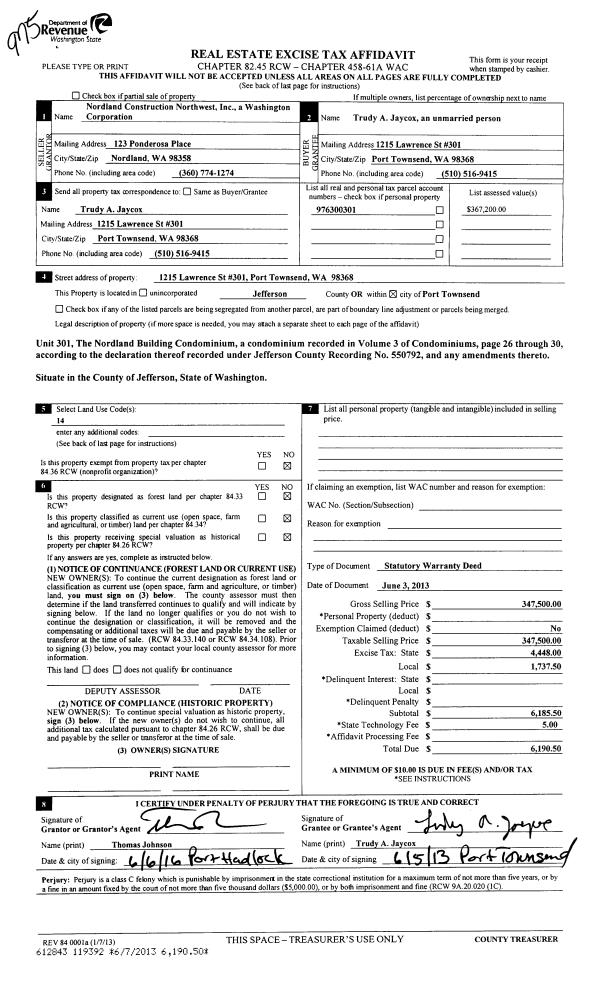
| 1 | 07/19/2013 | QCD | Quit Claim Deed | TRUDY A JAYCOX | TRUDY A JAYCOX TRUST | | | | 119633 | |
| 2 | 06/07/2013 | SWD | Statutory Warranty Deed | NORDLAND CONSTRUCTION NW INC | TRUDY A JAYCOX | | | $347,500.00 | 119392 | |
Payout Agreement
| No payout information available.. |