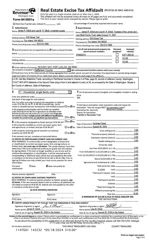
Property
Account |
| Property ID: | 35471 | Abbreviated Legal Description: | OAK BAY WATERFRONT TRACTS LOT 28 |
| Parcel # / Geo ID: | 976800014 | Agent Code: | |
| Type: | Real | | |
| Tax Area: | 0213 - 1-49F1E1H2L1 | Land Use Code | 11 |
| Open Space: | N | DFL | N |
| Historic Property: | N | Remodel Property: | N |
| Multi-Family Redevelopment: | N | | |
| Township: | 29N | Section: | 29 |
| Range: | 1E |
Location |
| Address: | 150 N BAY WAY PORT LUDLOW, WA 98365 | Mapsco: | 074/016 |
| Neighborhood: | S28 & S29 T29N R1E & OAK BAY WTRF TRTS & OLELE POINT | Map ID: | |
| Neighborhood CD: | 3280 |
Owner |
| Name: | JAMES & LISA ELLIOTT FAMILY TRUST | Owner ID: | 111469 |
| Mailing Address: | JAMES R & LISA M R ELLIOTT TRUSTEES 816 KIOWA TRL FOX ISLAND, WA 98333-9685 | % Ownership: | 100.0000000000% |
| | | Exemptions: | |
Pay Tax Due
There is currently No Amount Due on this property.
Taxes and Assessment Details
Property Tax Information as of
03/10/2026
Click on "Statement Details" to expand or collapse a tax statement.
* Please enter a valid date ** Please enter a valid date *
Statement Details |
| | TOTAL: | $0.00 | $0.00 | $0.00 | $0.00 | $0.00 | $0.00 |
|
| | $0.00 | $0.00 | $0.00 | $0.00 | $0.00 | $0.00 |
Values
| (+) Improvement Homesite Value: | + | $0 | |
| (+) Improvement Non-Homesite Value: | + | $494,678 | |
| (+) Land Homesite Value: | + | $0 | |
| (+) Land Non-Homesite Value: | + | $257,025 | |
| (+) Curr Use (HS): | + | $0 | $0 |
| (+) Curr Use (NHS): | + | $0 | $0 |
| | | -------------------------- | |
| (=) Market Value: | = | $751,703 | |
| (–) Productivity Loss: | – | $0 | |
| | | -------------------------- | |
| (=) Subtotal: | = | $751,703 | |
| (+) Senior Appraised Value: | + | $0 | |
| (+) Non-Senior Appraised Value: | + | $751,703 | |
| | | -------------------------- | |
| (=) Total Appraised Value: | = | $751,703 | |
| (–) Senior Exemption Loss: | – | $0 | |
| (–) Exemption Loss: | – | $0 | |
| | | -------------------------- | |
| (=) Taxable Value: | = | $751,703 | |
Taxing Jurisdiction
| Owner: | JAMES & LISA ELLIOTT FAMILY TRUST | | |
| % Ownership: | 100.0000000000% | | |
| Total Value: | $751,703 | | |
| Tax Area: | 0213 - 1-49F1E1H2L1 |
| CE | COUNTY CURRENT EXPENSE | 0.9034619479 | $751,703 | $751,703 | $679.14 | | |
| CNTYDD | DEVELOPMENTAL DISABILITIES | 0.0052121823 | $751,703 | $751,703 | $3.92 | | |
| CNTYVET | VETERANS RELIEF | 0.0052777810 | $751,703 | $751,703 | $3.97 | | |
| MENTAL | MENTAL HEALTH | 0.0052121823 | $751,703 | $751,703 | $3.92 | | |
| ROADS | COUNTY ROADS | 0.7415066410 | $751,703 | $751,703 | $557.39 | | |
| ROADSCU | COUNTY ROADS TO CUR EXP | 0.0000000000 | $751,703 | $751,703 | $0.00 | | |
| HOSP2CASH | HOSP DIST #2 GENERAL | 0.0536075306 | $751,703 | $751,703 | $40.30 | | |
| SCH49CP | SCHOOL DIST #49 CAP PROJ | 0.6279093905 | $751,703 | $751,703 | $472.00 | | |
| SCH49MO | SCHOOL DIST #49 EP & O | 0.6376483602 | $751,703 | $751,703 | $479.32 | | |
| CONSERVE | CONSERVATION FUTURES | 0.0275621078 | $751,703 | $751,703 | $20.72 | | |
| EMS1 | FIRE DIST #1 EMS | 0.4679948282 | $751,703 | $751,703 | $351.79 | | |
| FD1 | FIRE DIST #1 GENERAL | 1.2171942929 | $751,703 | $751,703 | $914.97 | | |
| LIB1 | LIBRARY DIST #1 GENERAL | 0.2868827388 | $751,703 | $751,703 | $215.65 | | |
| PORTPT | PORT OF PT GENERAL | 0.1134941229 | $751,703 | $751,703 | $85.31 | | |
| PORTPTIDD | PORT OF PT IDD 2019 | 0.2577346692 | $751,703 | $751,703 | $193.74 | | |
| PUD1 | PUD #1 GENERAL | 0.0597888892 | $751,703 | $751,703 | $44.94 | | |
| STATE | STATE SCHOOL PART 1 | 1.4940692947 | $751,703 | $751,703 | $1,123.10 | | |
| STATE2 | STATE SCHOOL PART 2 | 0.8050170049 | $751,703 | $751,703 | $605.13 | | |
| | Total Tax Rate: | 7.7095739644 | | | | | |
| | | | | Taxes w/Current Exemptions: | $5,795.31 | | |
| | | | | Taxes w/o Exemptions: | $5,795.31 | | |
Improvement / Building
| Improvement #1: | Residential Bldg | State Code: | 11 | 1418.0 sqft | Value: | $494,678 |
| Bathrooms (#): | 1 (FULL) | Bedrooms (#): | 2 | | Exterior Wall: | SI/ST | Fireplace: | WD ST-GOOD | | Floor Construction: | FRAME | Foundation: | CONPR | | Heating/Cooling: | ELBB | Inside Verify: | YES-FIX | | Roof Cover: | COMP |   |   |
|
| | Type | Description | Class CD | Sub Class CD | Year Built | Area |
| | MA | Main Area | 5- | 1S | 0 | 1418.0 |
| | PATIO | House Patio | 5 | * | 0 | 300.0 |
| | HDECK | House Deck | 5 | * | 0 | 681.0 |
| | ADDN | Addition (Table Not Dep) | 4 | * | 0 | 240.0 |
| | BSMTF | House basement finished | 5 | * | 0 | 224.0 |
| | HRPO | House Roof Patio | 5 | * | 0 | 212.0 |
| | BSMTU | House basement unfinished | 5 | * | 0 | 224.0 |
| | OTHER | Other | 3 | * | 0 | 0.0 |
Sketch
Property Image
Land
| 1 | 3280-1135F | High Bank Wtrfrt along Oak Bay | 0.0000 | 0.00 | 0.00 | 0.00 | 0.00 | $255,300 | $0 |
| 2 | 9301F | Tidelands | 0.0000 | 0.00 | 0.00 | 0.00 | 0.00 | $1,725 | $0 |
Roll Value History
| 2026 | N/A | N/A | N/A | N/A | N/A |
| 2025 | $494,678 | $257,025 | $0 | $751,703 | $751,703 |
| 2024 | $474,067 | $245,850 | $0 | $719,917 | $719,917 |
| 2023 | $453,455 | $218,500 | $0 | $671,955 | $671,955 |
| 2022 | $432,844 | $213,500 | $0 | $646,344 | $646,344 |
Deed and Sales History
| 1 | 08/30/2024 | QCD | Quit Claim Deed | LISA M & JAMES R ELLIOTT | JAMES & LISA ELLIOTT FAMILY TRUST | | | | 143232 | |
| 2 | 06/22/2017 | SWD | Statutory Warranty Deed | CHERYL L LA MAINE | LISA M & JAMES R ELLIOTT | | | $495,000.00 | 127973 | |
| 3 | 04/27/2005 | WD | Warranty Deed | LAMAINE, JEFFREY A ESTATE | LAMAINE, CHERYL L | 0 | 0 | $0.00 | 104430 | 0 |
Payout Agreement
| No payout information available.. |