Property
Account |
| Property ID: | 35561 | Abbreviated Legal Description: | OCEAN GROVE ESTATES BLK 2, LOT 19 INC PTN VAC HARRY ST ADJ |
| Parcel # / Geo ID: | 977100217 | Agent Code: | |
| Type: | Real | | |
| Tax Area: | 0111 - 1-50F1E1H2L1 | Land Use Code | 11 |
| Open Space: | N | DFL | N |
| Historic Property: | N | Remodel Property: | N |
| Multi-Family Redevelopment: | N | | |
| Township: | 30N | Section: | 24 |
| Range: | 2W |
Location |
| Address: | 5042 CAPE GEORGE RD PORT TOWNSEND, WA 98368 | Mapsco: | 058/056 |
| Neighborhood: | OCEANGROVE | Map ID: | |
| Neighborhood CD: | 5560 |
Owner |
| Name: | BUMGARNER HOLDINGS LLC | Owner ID: | 105841 |
| Mailing Address: | 3037 GOLF COURSE DR STE 6 VENTURA, CA 93303-7608 | % Ownership: | 100.0000000000% |
| | | Exemptions: | |
Pay Tax Due
There is currently No Amount Due on this property.
Taxes and Assessment Details
Property Tax Information as of
03/10/2026
Click on "Statement Details" to expand or collapse a tax statement.
* Please enter a valid date ** Please enter a valid date *
Statement Details |
| 2026 | 24798 | STATE - STATE LEVY (SCHOOL) | $818.38 | $818.37 | $0.00 | $0.00 | $1636.75 | $0.00 |
| 2026 | 24798 | COUNTY - COUNTY LEVIES (CE, DD, VET, MH) | $327.20 | $327.17 | $0.00 | $0.00 | $654.37 | $0.00 |
| 2026 | 24798 | CONSERVE - CONSERVATION FUTURES | $9.81 | $9.81 | $0.00 | $0.00 | $19.62 | $0.00 |
| 2026 | 24798 | COROADS - COUNTY ROADS (ROADS, DIV TO CE) | $263.95 | $263.94 | $0.00 | $0.00 | $527.89 | $0.00 |
| 2026 | 24798 | PORTPT - PORT DISTRICT | $132.15 | $132.14 | $0.00 | $0.00 | $264.29 | $0.00 |
| 2026 | 24798 | PUD1 - PUD #1 | $21.28 | $21.28 | $0.00 | $0.00 | $42.56 | $0.00 |
| 2026 | 24798 | LIB1 - LIBRARY DIST #1 | $102.12 | $102.12 | $0.00 | $0.00 | $204.24 | $0.00 |
| 2026 | 24798 | HD2 - HOSP DIST #2 | $19.08 | $19.08 | $0.00 | $0.00 | $38.16 | $0.00 |
| 2026 | 24798 | SD50 - SCHOOL DIST #50 | $648.34 | $648.32 | $0.00 | $0.00 | $1296.66 | $0.00 |
| 2026 | 24798 | FD1 - FIRE DISTRICT #1 | $433.27 | $433.27 | $0.00 | $0.00 | $866.54 | $0.00 |
| 2026 | 24798 | EMS1 - FIRE DIST #1 EMS | $166.59 | $166.58 | $0.00 | $0.00 | $333.17 | $0.00 |
| 2026 | 24798 | JCCD - JC Conservation District | $2.55 | $2.55 | $0.00 | $0.00 | $5.10 | $0.00 |
| 2026 | 24798 | NWA - Noxious Weed Assessment | $2.98 | $2.97 | $0.00 | $0.00 | $5.95 | $0.00 |
| 2026 | 24798 | OSS - On Site Septic | $23.10 | $23.10 | $0.00 | $0.00 | $46.20 | $0.00 |
| 2026 | 24798 | WAT - Clean Water District | $13.00 | $13.00 | $0.00 | $0.00 | $26.00 | $0.00 |
| 2026 | 24798 | TOTAL: | $2983.80 | $2983.70 | $0.00 | $0.00 | $5967.50 | $0.00 |
|
| 2026 | 24798 | $2983.80 | $2983.70 | $0.00 | $0.00 | $5967.50 | $0.00 |
Statement Details |
| 2025 | 24865 | STATE - STATE LEVY (SCHOOL) | $894.81 | $894.81 | $0.00 | $0.00 | $1789.62 | $0.00 |
| 2025 | 24865 | COUNTY - COUNTY LEVIES (CE, DD, VET, MH) | $351.88 | $351.87 | $0.00 | $0.00 | $703.75 | $0.00 |
| 2025 | 24865 | CONSERVE - CONSERVATION FUTURES | $10.55 | $10.55 | $0.00 | $0.00 | $21.10 | $0.00 |
| 2025 | 24865 | COROADS - COUNTY ROADS (ROADS, DIV TO CE) | $281.92 | $281.91 | $0.00 | $0.00 | $563.83 | $0.00 |
| 2025 | 24865 | PORTPT - PORT DISTRICT | $143.59 | $143.59 | $0.00 | $0.00 | $287.18 | $0.00 |
| 2025 | 24865 | PUD1 - PUD #1 | $23.03 | $23.02 | $0.00 | $0.00 | $46.05 | $0.00 |
| 2025 | 24865 | LIB1 - LIBRARY DIST #1 | $109.07 | $109.07 | $0.00 | $0.00 | $218.14 | $0.00 |
| 2025 | 24865 | HD2 - HOSP DIST #2 | $20.53 | $20.53 | $0.00 | $0.00 | $41.06 | $0.00 |
| 2025 | 24865 | SD50 - SCHOOL DIST #50 | $653.97 | $653.95 | $0.00 | $0.00 | $1307.92 | $0.00 |
| 2025 | 24865 | FD1 - FIRE DISTRICT #1 | $464.35 | $464.34 | $0.00 | $0.00 | $928.69 | $0.00 |
| 2025 | 24865 | EMS1 - FIRE DIST #1 EMS | $178.60 | $178.60 | $0.00 | $0.00 | $357.20 | $0.00 |
| 2025 | 24865 | JCCD - JC Conservation District | $2.55 | $2.55 | $0.00 | $0.00 | $5.10 | $0.00 |
| 2025 | 24865 | NWA - Noxious Weed Assessment | $2.15 | $2.15 | $0.00 | $0.00 | $4.30 | $0.00 |
| 2025 | 24865 | OSS - On Site Septic | $21.50 | $21.50 | $0.00 | $0.00 | $43.00 | $0.00 |
| 2025 | 24865 | WAT - Clean Water District | $13.00 | $13.00 | $0.00 | $0.00 | $26.00 | $0.00 |
| 2025 | 24865 | TOTAL: | $3171.50 | $3171.44 | $0.00 | $0.00 | $6342.94 | $0.00 |
|
| 2025 | 24865 | $3171.50 | $3171.44 | $0.00 | $0.00 | $6342.94 | $0.00 |
Statement Details |
| 2024 | 24911 | STATE - STATE LEVY (SCHOOL) | $806.75 | $806.73 | $0.00 | $0.00 | $1613.48 | $0.00 |
| 2024 | 24911 | COUNTY - COUNTY LEVIES (CE, DD, VET, MH) | $345.22 | $345.21 | $0.00 | $0.00 | $690.43 | $0.00 |
| 2024 | 24911 | CONSERVE - CONSERVATION FUTURES | $10.35 | $10.35 | $0.00 | $0.00 | $20.70 | $0.00 |
| 2024 | 24911 | COROADS - COUNTY ROADS (ROADS, DIV TO CE) | $277.79 | $277.78 | $0.00 | $0.00 | $555.57 | $0.00 |
| 2024 | 24911 | PORTPT - PORT DISTRICT | $142.59 | $142.58 | $0.00 | $0.00 | $285.17 | $0.00 |
| 2024 | 24911 | PUD1 - PUD #1 | $22.68 | $22.67 | $0.00 | $0.00 | $45.35 | $0.00 |
| 2024 | 24911 | LIB1 - LIBRARY DIST #1 | $107.47 | $107.47 | $0.00 | $0.00 | $214.94 | $0.00 |
| 2024 | 24911 | HD2 - HOSP DIST #2 | $20.14 | $20.14 | $0.00 | $0.00 | $40.28 | $0.00 |
| 2024 | 24911 | SD50 - SCHOOL DIST #50 | $652.70 | $652.68 | $0.00 | $0.00 | $1305.38 | $0.00 |
| 2024 | 24911 | FD1 - FIRE DISTRICT #1 | $456.45 | $456.45 | $0.00 | $0.00 | $912.90 | $0.00 |
| 2024 | 24911 | EMS1 - FIRE DIST #1 EMS | $174.35 | $174.35 | $0.00 | $0.00 | $348.70 | $0.00 |
| 2024 | 24911 | JCCD - JC Conservation District | $2.55 | $2.55 | $0.00 | $0.00 | $5.10 | $0.00 |
| 2024 | 24911 | NWA - Noxious Weed Assessment | $2.15 | $2.15 | $0.00 | $0.00 | $4.30 | $0.00 |
| 2024 | 24911 | OSS - On Site Septic | $21.00 | $21.00 | $0.00 | $0.00 | $42.00 | $0.00 |
| 2024 | 24911 | WAT - Clean Water District | $12.50 | $12.50 | $0.00 | $0.00 | $25.00 | $0.00 |
| 2024 | 24911 | TOTAL: | $3054.69 | $3054.61 | $0.00 | $0.00 | $6109.30 | $0.00 |
|
| 2024 | 24911 | $3054.69 | $3054.61 | $0.00 | $0.00 | $6109.30 | $0.00 |
Statement Details |
| 2023 | 24950 | STATE - STATE LEVY (SCHOOL) | $815.01 | $814.99 | $0.00 | $0.00 | $1630.00 | $0.00 |
| 2023 | 24950 | COUNTY - COUNTY LEVIES (CE, DD, VET, MH) | $355.65 | $355.63 | $0.00 | $0.00 | $711.28 | $0.00 |
| 2023 | 24950 | CONSERVE - CONSERVATION FUTURES | $10.67 | $10.66 | $0.00 | $0.00 | $21.33 | $0.00 |
| 2023 | 24950 | COROADS - COUNTY ROADS (ROADS, DIV TO CE) | $287.75 | $287.73 | $0.00 | $0.00 | $575.48 | $0.00 |
| 2023 | 24950 | PORTPT - PORT DISTRICT | $149.82 | $149.81 | $0.00 | $0.00 | $299.63 | $0.00 |
| 2023 | 24950 | PUD1 - PUD #1 | $23.58 | $23.57 | $0.00 | $0.00 | $47.15 | $0.00 |
| 2023 | 24950 | LIB1 - LIBRARY DIST #1 | $111.33 | $111.32 | $0.00 | $0.00 | $222.65 | $0.00 |
| 2023 | 24950 | HD2 - HOSP DIST #2 | $20.76 | $20.74 | $0.00 | $0.00 | $41.50 | $0.00 |
| 2023 | 24950 | SD50 - SCHOOL DIST #50 | $646.72 | $646.71 | $0.00 | $0.00 | $1293.43 | $0.00 |
| 2023 | 24950 | FD1 - FIRE DISTRICT #1 | $292.98 | $292.97 | $0.00 | $0.00 | $585.95 | $0.00 |
| 2023 | 24950 | EMS1 - FIRE DIST #1 EMS | $124.63 | $124.62 | $0.00 | $0.00 | $249.25 | $0.00 |
| 2023 | 24950 | JCCD - JC Conservation District | $2.55 | $2.55 | $0.00 | $0.00 | $5.10 | $0.00 |
| 2023 | 24950 | NWA - Noxious Weed Assessment | $2.15 | $2.15 | $0.00 | $0.00 | $4.30 | $0.00 |
| 2023 | 24950 | OSS - On Site Septic | $20.50 | $20.50 | $0.00 | $0.00 | $41.00 | $0.00 |
| 2023 | 24950 | WAT - Clean Water District | $12.00 | $12.00 | $0.00 | $0.00 | $24.00 | $0.00 |
| 2023 | 24950 | TOTAL: | $2876.10 | $2875.95 | $0.00 | $0.00 | $5752.05 | $0.00 |
|
| 2023 | 24950 | $2876.10 | $2875.95 | $0.00 | $0.00 | $5752.05 | $0.00 |
Values
| (+) Improvement Homesite Value: | + | $0 | |
| (+) Improvement Non-Homesite Value: | + | $511,915 | |
| (+) Land Homesite Value: | + | $0 | |
| (+) Land Non-Homesite Value: | + | $200,000 | |
| (+) Curr Use (HS): | + | $0 | $0 |
| (+) Curr Use (NHS): | + | $0 | $0 |
| | | -------------------------- | |
| (=) Market Value: | = | $711,915 | |
| (–) Productivity Loss: | – | $0 | |
| | | -------------------------- | |
| (=) Subtotal: | = | $711,915 | |
| (+) Senior Appraised Value: | + | $0 | |
| (+) Non-Senior Appraised Value: | + | $711,915 | |
| | | -------------------------- | |
| (=) Total Appraised Value: | = | $711,915 | |
| (–) Senior Exemption Loss: | – | $0 | |
| (–) Exemption Loss: | – | $0 | |
| | | -------------------------- | |
| (=) Taxable Value: | = | $711,915 | |
Taxing Jurisdiction
| Owner: | BUMGARNER HOLDINGS LLC | | |
| % Ownership: | 100.0000000000% | | |
| Total Value: | $711,915 | | |
| Tax Area: | 0111 - 1-50F1E1H2L1 |
| CE | COUNTY CURRENT EXPENSE | 0.9034619479 | $711,915 | $711,915 | $643.19 | | |
| CNTYDD | DEVELOPMENTAL DISABILITIES | 0.0052121823 | $711,915 | $711,915 | $3.71 | | |
| CNTYVET | VETERANS RELIEF | 0.0052777810 | $711,915 | $711,915 | $3.76 | | |
| MENTAL | MENTAL HEALTH | 0.0052121823 | $711,915 | $711,915 | $3.71 | | |
| ROADS | COUNTY ROADS | 0.7415066410 | $711,915 | $711,915 | $527.89 | | |
| ROADSCU | COUNTY ROADS TO CUR EXP | 0.0000000000 | $711,915 | $711,915 | $0.00 | | |
| HOSP2CASH | HOSP DIST #2 GENERAL | 0.0536075306 | $711,915 | $711,915 | $38.16 | | |
| SCH50BOND | SCHOOL DIST #50 BOND 2016 | 0.5377451389 | $711,915 | $711,915 | $382.83 | | |
| SCH50CP | SCHOOL DIST #50 CAP PROJ | 0.4573475088 | $711,915 | $711,915 | $325.59 | | |
| SCH50MO | SCHOOL DIST #50 EP & O | 0.8262822886 | $711,915 | $711,915 | $588.24 | | |
| CONSERVE | CONSERVATION FUTURES | 0.0275621078 | $711,915 | $711,915 | $19.62 | | |
| EMS1 | FIRE DIST #1 EMS | 0.4679948282 | $711,915 | $711,915 | $333.17 | | |
| FD1 | FIRE DIST #1 GENERAL | 1.2171942929 | $711,915 | $711,915 | $866.54 | | |
| LIB1 | LIBRARY DIST #1 GENERAL | 0.2868827388 | $711,915 | $711,915 | $204.24 | | |
| PORTPT | PORT OF PT GENERAL | 0.1134941229 | $711,915 | $711,915 | $80.80 | | |
| PORTPTIDD | PORT OF PT IDD 2019 | 0.2577346692 | $711,915 | $711,915 | $183.49 | | |
| PUD1 | PUD #1 GENERAL | 0.0597888892 | $711,915 | $711,915 | $42.56 | | |
| STATE | STATE SCHOOL PART 1 | 1.4940692947 | $711,915 | $711,915 | $1,063.65 | | |
| STATE2 | STATE SCHOOL PART 2 | 0.8050170049 | $711,915 | $711,915 | $573.10 | | |
| | Total Tax Rate: | 8.2653911500 | | | | | |
| | | | | Taxes w/Current Exemptions: | $5,884.25 | | |
| | | | | Taxes w/o Exemptions: | $5,884.25 | | |
Improvement / Building
| Improvement #1: | Residential Bldg | State Code: | 11 | 1412.0 sqft | Value: | $511,915 |
| Bathrooms (#): | 1 (FULL) | Bathrooms (#): | 1 (HALF) | | Bedrooms (#): | 2 | Exterior Wall: | SI/ST | | Fireplace: | SIN 2-GOOD | Floor Construction: | FRAME | | Foundation: | CONPR | Heating/Cooling: | F/A | | Roof Cover: | COMP |   |   |
|
| | Type | Description | Class CD | Sub Class CD | Year Built | Area |
| | MA | Main Area | 6- | 15SF | 2005 | 864.0 |
| | MA2 | Second Floor Main Area | 6- | 15SF | 2005 | 548.0 |
| | HWPOR | House Wood Porch | 6 | * | 2005 | 60.0 |
| | HDECK | House Deck | 6 | * | 2005 | 290.0 |
| | GBSMT | Basement Garage | 6 | 15SF | 2005 | 650.0 |
Sketch
Property Image
Land
| 1 | 5560-1137L | | 0.0000 | 0.00 | 0.00 | 0.00 | 1.00 | $35,000 | $0 |
| 2 | 5560-1135L | | 0.0000 | 0.00 | 0.00 | 0.00 | 1.00 | $165,000 | $0 |
Roll Value History
| 2026 | N/A | N/A | N/A | N/A | N/A |
| 2025 | $511,915 | $200,000 | $0 | $711,915 | $711,915 |
| 2024 | $536,292 | $210,000 | $0 | $746,292 | $746,292 |
| 2023 | $502,390 | $195,000 | $0 | $697,390 | $697,390 |
| 2022 | $502,390 | $190,000 | $0 | $692,390 | $692,390 |
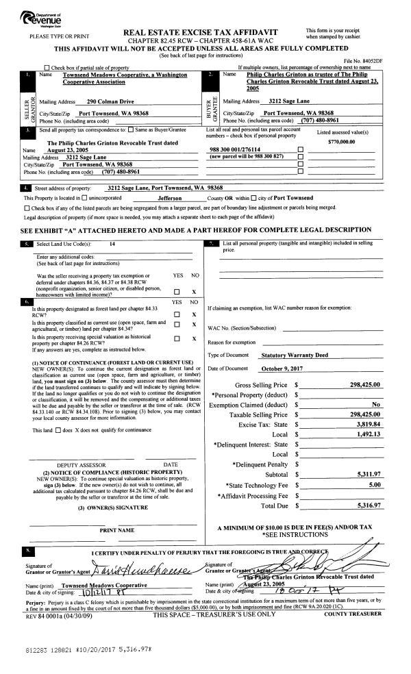
Deed and Sales History
| 1 | 10/13/2021 | QCD | Quit Claim Deed | CHRISTOPHER J & KERREY D BUMGARNER | BUMGARNER HOLDINGS LLC | | | | 137870 | |
| 2 | 05/19/2021 | SWD | Statutory Warranty Deed | KEVIN S PETERS & SALLY A GADOW | CHRISTOPHER J & KERREY D BUMGARNER | | | $710,000.00 | 136782 | |
| 3 | 01/26/2018 | QCD | Quit Claim Deed | | | | | | 129487 | |
| 4 | 12/07/2017 | SWD | Statutory Warranty Deed | ALICE J LANE | KEVIN S PETERS & SALLY A GADOW | | | $525,000.00 | 129216 | |
| 5 | 04/17/2002 | SWD | Statutory Warranty Deed | | | | | | 0 | |
| 6 | 04/17/2002 | SWD | Statutory Warranty Deed | | | | | | 129025 | |
| 7 | 04/17/2002 | SWD | Statutory Warranty Deed | LAUGHLIN, LINDA A/JAMES | LANE, ALICE J | 0 | 0 | $75,880.00 | 94463 | 0 |
Payout Agreement
| No payout information available.. |