Property
Account |
| Property ID: | 35565 | Abbreviated Legal Description: | OCEAN GROVE ESTATES BLK 3 LOT 21 |
| Parcel # / Geo ID: | 977100306 | Agent Code: | |
| Type: | Real | | |
| Tax Area: | 0111 - 1-50F1E1H2L1 | Land Use Code | 11 |
| Open Space: | N | DFL | N |
| Historic Property: | N | Remodel Property: | N |
| Multi-Family Redevelopment: | N | | |
| Township: | 30N | Section: | 24 |
| Range: | 2W |
Location |
| Address: | 163 MYRTLE ST PORT TOWNSEND, WA 98368 | Mapsco: | 058/065 |
| Neighborhood: | OCEANGROVE | Map ID: | |
| Neighborhood CD: | 5560 |
Owner |
| Name: | FRANCES L OPPENHEIMER REVOCABLE TRUST | Owner ID: | 110796 |
| Mailing Address: | FRANCES L OPPENHEIMER TRUSTEE 163 MYRTLE ST PORT TOWNSEND, WA 98368-9223 | % Ownership: | 100.0000000000% |
| | | Exemptions: | |
Pay Tax Due
There is currently No Amount Due on this property.
Taxes and Assessment Details
Property Tax Information as of
03/11/2026
Click on "Statement Details" to expand or collapse a tax statement.
* Please enter a valid date ** Please enter a valid date *
Statement Details |
| 2026 | 24802 | STATE - STATE LEVY (SCHOOL) | $750.20 | $750.20 | $0.00 | $0.00 | $1500.40 | $0.00 |
| 2026 | 24802 | COUNTY - COUNTY LEVIES (CE, DD, VET, MH) | $299.92 | $299.92 | $0.00 | $0.00 | $599.84 | $0.00 |
| 2026 | 24802 | CONSERVE - CONSERVATION FUTURES | $9.00 | $8.99 | $0.00 | $0.00 | $17.99 | $0.00 |
| 2026 | 24802 | COROADS - COUNTY ROADS (ROADS, DIV TO CE) | $241.96 | $241.95 | $0.00 | $0.00 | $483.91 | $0.00 |
| 2026 | 24802 | PORTPT - PORT DISTRICT | $121.14 | $121.13 | $0.00 | $0.00 | $242.27 | $0.00 |
| 2026 | 24802 | PUD1 - PUD #1 | $19.51 | $19.51 | $0.00 | $0.00 | $39.02 | $0.00 |
| 2026 | 24802 | LIB1 - LIBRARY DIST #1 | $93.61 | $93.61 | $0.00 | $0.00 | $187.22 | $0.00 |
| 2026 | 24802 | HD2 - HOSP DIST #2 | $17.49 | $17.49 | $0.00 | $0.00 | $34.98 | $0.00 |
| 2026 | 24802 | SD50 - SCHOOL DIST #50 | $594.33 | $594.32 | $0.00 | $0.00 | $1188.65 | $0.00 |
| 2026 | 24802 | FD1 - FIRE DISTRICT #1 | $397.18 | $397.17 | $0.00 | $0.00 | $794.35 | $0.00 |
| 2026 | 24802 | EMS1 - FIRE DIST #1 EMS | $152.71 | $152.71 | $0.00 | $0.00 | $305.42 | $0.00 |
| 2026 | 24802 | JCCD - JC Conservation District | $2.55 | $2.55 | $0.00 | $0.00 | $5.10 | $0.00 |
| 2026 | 24802 | NWA - Noxious Weed Assessment | $2.98 | $2.97 | $0.00 | $0.00 | $5.95 | $0.00 |
| 2026 | 24802 | OSS - On Site Septic | $23.10 | $23.10 | $0.00 | $0.00 | $46.20 | $0.00 |
| 2026 | 24802 | WAT - Clean Water District | $13.00 | $13.00 | $0.00 | $0.00 | $26.00 | $0.00 |
| 2026 | 24802 | TOTAL: | $2738.68 | $2738.62 | $0.00 | $0.00 | $5477.30 | $0.00 |
|
| 2026 | 24802 | $2738.68 | $2738.62 | $0.00 | $0.00 | $5477.30 | $0.00 |
Statement Details |
| 2025 | 24869 | STATE - STATE LEVY (SCHOOL) | $820.04 | $820.02 | $0.00 | $0.00 | $1640.06 | $0.00 |
| 2025 | 24869 | COUNTY - COUNTY LEVIES (CE, DD, VET, MH) | $322.49 | $322.45 | $0.00 | $0.00 | $644.94 | $0.00 |
| 2025 | 24869 | CONSERVE - CONSERVATION FUTURES | $9.67 | $9.67 | $0.00 | $0.00 | $19.34 | $0.00 |
| 2025 | 24869 | COROADS - COUNTY ROADS (ROADS, DIV TO CE) | $258.36 | $258.34 | $0.00 | $0.00 | $516.70 | $0.00 |
| 2025 | 24869 | PORTPT - PORT DISTRICT | $131.59 | $131.58 | $0.00 | $0.00 | $263.17 | $0.00 |
| 2025 | 24869 | PUD1 - PUD #1 | $21.10 | $21.10 | $0.00 | $0.00 | $42.20 | $0.00 |
| 2025 | 24869 | LIB1 - LIBRARY DIST #1 | $99.96 | $99.95 | $0.00 | $0.00 | $199.91 | $0.00 |
| 2025 | 24869 | HD2 - HOSP DIST #2 | $18.82 | $18.81 | $0.00 | $0.00 | $37.63 | $0.00 |
| 2025 | 24869 | SD50 - SCHOOL DIST #50 | $599.31 | $599.29 | $0.00 | $0.00 | $1198.60 | $0.00 |
| 2025 | 24869 | FD1 - FIRE DISTRICT #1 | $425.54 | $425.53 | $0.00 | $0.00 | $851.07 | $0.00 |
| 2025 | 24869 | EMS1 - FIRE DIST #1 EMS | $163.67 | $163.67 | $0.00 | $0.00 | $327.34 | $0.00 |
| 2025 | 24869 | JCCD - JC Conservation District | $2.55 | $2.55 | $0.00 | $0.00 | $5.10 | $0.00 |
| 2025 | 24869 | NWA - Noxious Weed Assessment | $2.15 | $2.15 | $0.00 | $0.00 | $4.30 | $0.00 |
| 2025 | 24869 | OSS - On Site Septic | $21.50 | $21.50 | $0.00 | $0.00 | $43.00 | $0.00 |
| 2025 | 24869 | WAT - Clean Water District | $13.00 | $13.00 | $0.00 | $0.00 | $26.00 | $0.00 |
| 2025 | 24869 | TOTAL: | $2909.75 | $2909.61 | $0.00 | $0.00 | $5819.36 | $0.00 |
|
| 2025 | 24869 | $2909.75 | $2909.61 | $0.00 | $0.00 | $5819.36 | $0.00 |
Statement Details |
| 2024 | 24915 | STATE - STATE LEVY (SCHOOL) | $645.27 | $645.26 | $0.00 | $0.00 | $1290.53 | $0.00 |
| 2024 | 24915 | COUNTY - COUNTY LEVIES (CE, DD, VET, MH) | $276.12 | $276.12 | $0.00 | $0.00 | $552.24 | $0.00 |
| 2024 | 24915 | CONSERVE - CONSERVATION FUTURES | $8.28 | $8.28 | $0.00 | $0.00 | $16.56 | $0.00 |
| 2024 | 24915 | COROADS - COUNTY ROADS (ROADS, DIV TO CE) | $222.19 | $222.18 | $0.00 | $0.00 | $444.37 | $0.00 |
| 2024 | 24915 | PORTPT - PORT DISTRICT | $114.06 | $114.04 | $0.00 | $0.00 | $228.10 | $0.00 |
| 2024 | 24915 | PUD1 - PUD #1 | $18.14 | $18.13 | $0.00 | $0.00 | $36.27 | $0.00 |
| 2024 | 24915 | LIB1 - LIBRARY DIST #1 | $85.96 | $85.96 | $0.00 | $0.00 | $171.92 | $0.00 |
| 2024 | 24915 | HD2 - HOSP DIST #2 | $16.11 | $16.11 | $0.00 | $0.00 | $32.22 | $0.00 |
| 2024 | 24915 | SD50 - SCHOOL DIST #50 | $522.06 | $522.04 | $0.00 | $0.00 | $1044.10 | $0.00 |
| 2024 | 24915 | FD1 - FIRE DISTRICT #1 | $365.09 | $365.09 | $0.00 | $0.00 | $730.18 | $0.00 |
| 2024 | 24915 | EMS1 - FIRE DIST #1 EMS | $139.45 | $139.45 | $0.00 | $0.00 | $278.90 | $0.00 |
| 2024 | 24915 | JCCD - JC Conservation District | $2.55 | $2.55 | $0.00 | $0.00 | $5.10 | $0.00 |
| 2024 | 24915 | NWA - Noxious Weed Assessment | $2.15 | $2.15 | $0.00 | $0.00 | $4.30 | $0.00 |
| 2024 | 24915 | OSS - On Site Septic | $21.00 | $21.00 | $0.00 | $0.00 | $42.00 | $0.00 |
| 2024 | 24915 | WAT - Clean Water District | $12.50 | $12.50 | $0.00 | $0.00 | $25.00 | $0.00 |
| 2024 | 24915 | TOTAL: | $2450.93 | $2450.86 | $0.00 | $0.00 | $4901.79 | $0.00 |
|
| 2024 | 24915 | $2450.93 | $2450.86 | $0.00 | $0.00 | $4901.79 | $0.00 |
Statement Details |
| 2023 | 24954 | STATE - STATE LEVY (SCHOOL) | $650.70 | $650.68 | $0.00 | $0.00 | $1301.38 | $0.00 |
| 2023 | 24954 | COUNTY - COUNTY LEVIES (CE, DD, VET, MH) | $283.94 | $283.93 | $0.00 | $0.00 | $567.87 | $0.00 |
| 2023 | 24954 | CONSERVE - CONSERVATION FUTURES | $8.52 | $8.51 | $0.00 | $0.00 | $17.03 | $0.00 |
| 2023 | 24954 | COROADS - COUNTY ROADS (ROADS, DIV TO CE) | $229.73 | $229.72 | $0.00 | $0.00 | $459.45 | $0.00 |
| 2023 | 24954 | PORTPT - PORT DISTRICT | $119.61 | $119.61 | $0.00 | $0.00 | $239.22 | $0.00 |
| 2023 | 24954 | PUD1 - PUD #1 | $18.82 | $18.82 | $0.00 | $0.00 | $37.64 | $0.00 |
| 2023 | 24954 | LIB1 - LIBRARY DIST #1 | $88.88 | $88.88 | $0.00 | $0.00 | $177.76 | $0.00 |
| 2023 | 24954 | HD2 - HOSP DIST #2 | $16.57 | $16.57 | $0.00 | $0.00 | $33.14 | $0.00 |
| 2023 | 24954 | SD50 - SCHOOL DIST #50 | $516.34 | $516.33 | $0.00 | $0.00 | $1032.67 | $0.00 |
| 2023 | 24954 | FD1 - FIRE DISTRICT #1 | $233.91 | $233.91 | $0.00 | $0.00 | $467.82 | $0.00 |
| 2023 | 24954 | EMS1 - FIRE DIST #1 EMS | $99.50 | $99.50 | $0.00 | $0.00 | $199.00 | $0.00 |
| 2023 | 24954 | JCCD - JC Conservation District | $2.55 | $2.55 | $0.00 | $0.00 | $5.10 | $0.00 |
| 2023 | 24954 | NWA - Noxious Weed Assessment | $2.15 | $2.15 | $0.00 | $0.00 | $4.30 | $0.00 |
| 2023 | 24954 | OSS - On Site Septic | $20.50 | $20.50 | $0.00 | $0.00 | $41.00 | $0.00 |
| 2023 | 24954 | WAT - Clean Water District | $12.00 | $12.00 | $0.00 | $0.00 | $24.00 | $0.00 |
| 2023 | 24954 | TOTAL: | $2303.72 | $2303.66 | $0.00 | $0.00 | $4607.38 | $0.00 |
|
| 2023 | 24954 | $2303.72 | $2303.66 | $0.00 | $0.00 | $4607.38 | $0.00 |
Values
| (+) Improvement Homesite Value: | + | $0 | |
| (+) Improvement Non-Homesite Value: | + | $552,605 | |
| (+) Land Homesite Value: | + | $0 | |
| (+) Land Non-Homesite Value: | + | $100,000 | |
| (+) Curr Use (HS): | + | $0 | $0 |
| (+) Curr Use (NHS): | + | $0 | $0 |
| | | -------------------------- | |
| (=) Market Value: | = | $652,605 | |
| (–) Productivity Loss: | – | $0 | |
| | | -------------------------- | |
| (=) Subtotal: | = | $652,605 | |
| (+) Senior Appraised Value: | + | $0 | |
| (+) Non-Senior Appraised Value: | + | $652,605 | |
| | | -------------------------- | |
| (=) Total Appraised Value: | = | $652,605 | |
| (–) Senior Exemption Loss: | – | $0 | |
| (–) Exemption Loss: | – | $0 | |
| | | -------------------------- | |
| (=) Taxable Value: | = | $652,605 | |
Taxing Jurisdiction
| Owner: | FRANCES L OPPENHEIMER REVOCABLE TRUST | | |
| % Ownership: | 100.0000000000% | | |
| Total Value: | $652,605 | | |
| Tax Area: | 0111 - 1-50F1E1H2L1 |
| CE | COUNTY CURRENT EXPENSE | 0.9034619479 | $652,605 | $652,605 | $589.60 | | |
| CNTYDD | DEVELOPMENTAL DISABILITIES | 0.0052121823 | $652,605 | $652,605 | $3.40 | | |
| CNTYVET | VETERANS RELIEF | 0.0052777810 | $652,605 | $652,605 | $3.44 | | |
| MENTAL | MENTAL HEALTH | 0.0052121823 | $652,605 | $652,605 | $3.40 | | |
| ROADS | COUNTY ROADS | 0.7415066410 | $652,605 | $652,605 | $483.91 | | |
| ROADSCU | COUNTY ROADS TO CUR EXP | 0.0000000000 | $652,605 | $652,605 | $0.00 | | |
| HOSP2CASH | HOSP DIST #2 GENERAL | 0.0536075306 | $652,605 | $652,605 | $34.98 | | |
| SCH50BOND | SCHOOL DIST #50 BOND 2016 | 0.5377451389 | $652,605 | $652,605 | $350.94 | | |
| SCH50CP | SCHOOL DIST #50 CAP PROJ | 0.4573475088 | $652,605 | $652,605 | $298.47 | | |
| SCH50MO | SCHOOL DIST #50 EP & O | 0.8262822886 | $652,605 | $652,605 | $539.24 | | |
| CONSERVE | CONSERVATION FUTURES | 0.0275621078 | $652,605 | $652,605 | $17.99 | | |
| EMS1 | FIRE DIST #1 EMS | 0.4679948282 | $652,605 | $652,605 | $305.42 | | |
| FD1 | FIRE DIST #1 GENERAL | 1.2171942929 | $652,605 | $652,605 | $794.35 | | |
| LIB1 | LIBRARY DIST #1 GENERAL | 0.2868827388 | $652,605 | $652,605 | $187.22 | | |
| PORTPT | PORT OF PT GENERAL | 0.1134941229 | $652,605 | $652,605 | $74.07 | | |
| PORTPTIDD | PORT OF PT IDD 2019 | 0.2577346692 | $652,605 | $652,605 | $168.20 | | |
| PUD1 | PUD #1 GENERAL | 0.0597888892 | $652,605 | $652,605 | $39.02 | | |
| STATE | STATE SCHOOL PART 1 | 1.4940692947 | $652,605 | $652,605 | $975.04 | | |
| STATE2 | STATE SCHOOL PART 2 | 0.8050170049 | $652,605 | $652,605 | $525.36 | | |
| | Total Tax Rate: | 8.2653911500 | | | | | |
| | | | | Taxes w/Current Exemptions: | $5,394.05 | | |
| | | | | Taxes w/o Exemptions: | $5,394.05 | | |
Improvement / Building
| Improvement #1: | Residential Bldg | State Code: | 11 | 1490.0 sqft | Value: | $552,605 |
| Bathrooms (#): | 2 (FULL) | Bedrooms (#): | 3 | | Exterior Wall: | SI/ST | Fireplace: | SIN 2-GOOD | | Floor Construction: | FRAME | Foundation: | CONPR | | Heating/Cooling: | HPUMP | Roof Cover: | COMP |
|
| | Type | Description | Class CD | Sub Class CD | Year Built | Area |
| | MA | Main Area | 5+ | HSPL | 1998 | 1490.0 |
| | HBAL | House Balcony | 5 | * | 1998 | 312.0 |
| | CARPTF | Carport W/Floor | 5 | * | 1998 | 312.0 |
| | GBLTIN | Builtin Garage | 5 | HSPL | 1998 | 688.0 |
| | SHED | Shed (Table Not Dep) | 5 | * | 1998 | 192.0 |
| | OTHER | Other | 5 | * | 1998 | 0.0 |
| | CONCD | Concrete Drive | 5 | * | 1998 | 2500.0 |
| | GARAG | Garage (Table Not Dep) | 5 | * | 1998 | 404.0 |
| | HCPOR | House Concrete Porch | 5 | * | 1998 | 21.0 |
| | PATIO | House Patio | 5 | * | 1998 | 24.0 |
| | HWPOR | House Wood Porch | 5 | * | 1998 | 24.0 |
| | HDECK | House Deck | 5 | * | 1998 | 30.0 |
Sketch
Property Image
Land
| 1 | 5560-1175L | | 0.0000 | 0.00 | 0.00 | 0.00 | 1.00 | $100,000 | $0 |
Roll Value History
| 2026 | N/A | N/A | N/A | N/A | N/A |
| 2025 | $552,605 | $100,000 | $0 | $652,605 | $652,605 |
| 2024 | $578,919 | $105,000 | $0 | $683,919 | $683,919 |
| 2023 | $462,801 | $95,000 | $0 | $557,801 | $557,801 |
| 2022 | $462,801 | $90,000 | $0 | $552,801 | $552,801 |
Deed and Sales History
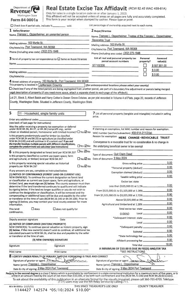
| 1 | 05/09/2024 | QCD | Quit Claim Deed | FRANCES OPPENHEIMER | FRANCES L OPPENHEIMER REVOCABLE TRUST | | | | 142574 | |
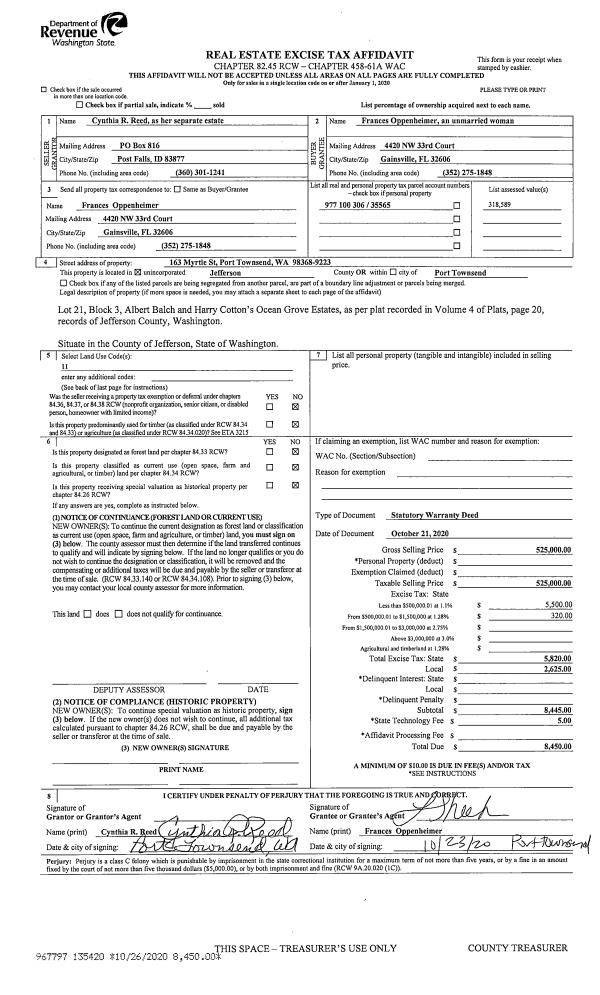
| 2 | 10/21/2020 | SWD | Statutory Warranty Deed | HARRY E REED | FRANCES OPPENHEIMER | | | $525,000.00 | 135420 | |
| 3 | 02/20/1996 | SWD | Statutory Warranty Deed | TWELVES, WILLIAM NEAL | REED, HARRY E/CYNTHIA R | 0 | 0 | $8,550.00 | 78973 | 0 |
Payout Agreement
| No payout information available.. |