Property
Account |
| Property ID: | 35580 | Abbreviated Legal Description: | OCEAN GROVE ESTATES #2 BLK 4 LOTS 13 & 22 BOUND TGTH BY BLA |
| Parcel # / Geo ID: | 977100410 | Agent Code: | |
| Type: | Real | | |
| Tax Area: | 0111 - 1-50F1E1H2L1 | Land Use Code | 11 |
| Open Space: | N | DFL | N |
| Historic Property: | N | Remodel Property: | N |
| Multi-Family Redevelopment: | N | | |
| Township: | 30N | Section: | 24 |
| Range: | 2W |
Location |
| Address: | 140 COMBS ST PORT TOWNSEND, WA 98368 | Mapsco: | 059/013 |
| Neighborhood: | OCEANGROVE | Map ID: | |
| Neighborhood CD: | 5560 |
Owner |
| Name: | CHRISTINE & JOEL SCANNELL | Owner ID: | 96707 |
| Mailing Address: | 140 COMBS ST PORT TOWNSEND, WA 98368-9626 | % Ownership: | 100.0000000000% |
| | | Exemptions: | |
Pay Tax Due
Select the appropriate checkbox next to the year to be paid. Multiple years may be selected.
*Convenience Fee not included
Taxes and Assessment Details
Property Tax Information as of
03/11/2026
Click on "Statement Details" to expand or collapse a tax statement.
* Please enter a valid date ** Please enter a valid date *
Statement Details |
| 2026 | 24816 | STATE - STATE LEVY (SCHOOL) | $538.69 | $538.69 | $0.00 | $0.00 | $0.00 | $1077.38 |
| 2026 | 24816 | COUNTY - COUNTY LEVIES (CE, DD, VET, MH) | $215.37 | $215.35 | $0.00 | $0.00 | $0.00 | $430.72 |
| 2026 | 24816 | CONSERVE - CONSERVATION FUTURES | $6.46 | $6.46 | $0.00 | $0.00 | $0.00 | $12.92 |
| 2026 | 24816 | COROADS - COUNTY ROADS (ROADS, DIV TO CE) | $173.74 | $173.74 | $0.00 | $0.00 | $0.00 | $347.48 |
| 2026 | 24816 | PORTPT - PORT DISTRICT | $86.98 | $86.98 | $0.00 | $0.00 | $0.00 | $173.96 |
| 2026 | 24816 | PUD1 - PUD #1 | $14.01 | $14.01 | $0.00 | $0.00 | $0.00 | $28.02 |
| 2026 | 24816 | LIB1 - LIBRARY DIST #1 | $67.22 | $67.22 | $0.00 | $0.00 | $0.00 | $134.44 |
| 2026 | 24816 | HD2 - HOSP DIST #2 | $12.56 | $12.56 | $0.00 | $0.00 | $0.00 | $25.12 |
| 2026 | 24816 | SD50 - SCHOOL DIST #50 | $426.77 | $426.75 | $0.00 | $0.00 | $0.00 | $853.52 |
| 2026 | 24816 | FD1 - FIRE DISTRICT #1 | $285.20 | $285.19 | $0.00 | $0.00 | $0.00 | $570.39 |
| 2026 | 24816 | EMS1 - FIRE DIST #1 EMS | $109.66 | $109.65 | $0.00 | $0.00 | $0.00 | $219.31 |
| 2026 | 24816 | JCCD - JC Conservation District | $2.55 | $2.55 | $0.00 | $0.00 | $0.00 | $5.10 |
| 2026 | 24816 | NWA - Noxious Weed Assessment | $2.98 | $2.97 | $0.00 | $0.00 | $0.00 | $5.95 |
| 2026 | 24816 | OSS - On Site Septic | $23.10 | $23.10 | $0.00 | $0.00 | $0.00 | $46.20 |
| 2026 | 24816 | WAT - Clean Water District | $13.00 | $13.00 | $0.00 | $0.00 | $0.00 | $26.00 |
| 2026 | 24816 | TOTAL: | $1978.29 | $1978.22 | $0.00 | $0.00 | $0.00 | $3956.51 |
|
| 2026 | 24816 | $1978.29 | $1978.22 | $0.00 | $0.00 | $0.00 | $3956.51 |
Statement Details |
| 2025 | 24884 | STATE - STATE LEVY (SCHOOL) | $589.12 | $589.11 | $0.00 | $0.00 | $1178.23 | $0.00 |
| 2025 | 24884 | COUNTY - COUNTY LEVIES (CE, DD, VET, MH) | $231.67 | $231.65 | $0.00 | $0.00 | $463.32 | $0.00 |
| 2025 | 24884 | CONSERVE - CONSERVATION FUTURES | $6.95 | $6.94 | $0.00 | $0.00 | $13.89 | $0.00 |
| 2025 | 24884 | COROADS - COUNTY ROADS (ROADS, DIV TO CE) | $185.61 | $185.59 | $0.00 | $0.00 | $371.20 | $0.00 |
| 2025 | 24884 | PORTPT - PORT DISTRICT | $94.54 | $94.53 | $0.00 | $0.00 | $189.07 | $0.00 |
| 2025 | 24884 | PUD1 - PUD #1 | $15.16 | $15.16 | $0.00 | $0.00 | $30.32 | $0.00 |
| 2025 | 24884 | LIB1 - LIBRARY DIST #1 | $71.81 | $71.80 | $0.00 | $0.00 | $143.61 | $0.00 |
| 2025 | 24884 | HD2 - HOSP DIST #2 | $13.52 | $13.51 | $0.00 | $0.00 | $27.03 | $0.00 |
| 2025 | 24884 | SD50 - SCHOOL DIST #50 | $430.55 | $430.54 | $0.00 | $0.00 | $861.09 | $0.00 |
| 2025 | 24884 | FD1 - FIRE DISTRICT #1 | $305.71 | $305.70 | $0.00 | $0.00 | $611.41 | $0.00 |
| 2025 | 24884 | EMS1 - FIRE DIST #1 EMS | $117.59 | $117.58 | $0.00 | $0.00 | $235.17 | $0.00 |
| 2025 | 24884 | JCCD - JC Conservation District | $2.55 | $2.55 | $0.00 | $0.00 | $5.10 | $0.00 |
| 2025 | 24884 | NWA - Noxious Weed Assessment | $2.15 | $2.15 | $0.00 | $0.00 | $4.30 | $0.00 |
| 2025 | 24884 | OSS - On Site Septic | $21.50 | $21.50 | $0.00 | $0.00 | $43.00 | $0.00 |
| 2025 | 24884 | WAT - Clean Water District | $13.00 | $13.00 | $0.00 | $0.00 | $26.00 | $0.00 |
| 2025 | 24884 | TOTAL: | $2101.43 | $2101.31 | $0.00 | $0.00 | $4202.74 | $0.00 |
|
| 2025 | 24884 | $2101.43 | $2101.31 | $0.00 | $0.00 | $4202.74 | $0.00 |
Statement Details |
| 2024 | 24930 | STATE - STATE LEVY (SCHOOL) | $547.83 | $547.81 | $0.00 | $0.00 | $1095.64 | $0.00 |
| 2024 | 24930 | COUNTY - COUNTY LEVIES (CE, DD, VET, MH) | $234.43 | $234.41 | $0.00 | $0.00 | $468.84 | $0.00 |
| 2024 | 24930 | CONSERVE - CONSERVATION FUTURES | $7.03 | $7.03 | $0.00 | $0.00 | $14.06 | $0.00 |
| 2024 | 24930 | COROADS - COUNTY ROADS (ROADS, DIV TO CE) | $188.63 | $188.62 | $0.00 | $0.00 | $377.25 | $0.00 |
| 2024 | 24930 | PORTPT - PORT DISTRICT | $96.83 | $96.82 | $0.00 | $0.00 | $193.65 | $0.00 |
| 2024 | 24930 | PUD1 - PUD #1 | $15.40 | $15.39 | $0.00 | $0.00 | $30.79 | $0.00 |
| 2024 | 24930 | LIB1 - LIBRARY DIST #1 | $72.98 | $72.98 | $0.00 | $0.00 | $145.96 | $0.00 |
| 2024 | 24930 | HD2 - HOSP DIST #2 | $13.68 | $13.68 | $0.00 | $0.00 | $27.36 | $0.00 |
| 2024 | 24930 | SD50 - SCHOOL DIST #50 | $443.22 | $443.20 | $0.00 | $0.00 | $886.42 | $0.00 |
| 2024 | 24930 | FD1 - FIRE DISTRICT #1 | $309.96 | $309.95 | $0.00 | $0.00 | $619.91 | $0.00 |
| 2024 | 24930 | EMS1 - FIRE DIST #1 EMS | $118.39 | $118.39 | $0.00 | $0.00 | $236.78 | $0.00 |
| 2024 | 24930 | JCCD - JC Conservation District | $2.55 | $2.55 | $0.00 | $0.00 | $5.10 | $0.00 |
| 2024 | 24930 | NWA - Noxious Weed Assessment | $2.15 | $2.15 | $0.00 | $0.00 | $4.30 | $0.00 |
| 2024 | 24930 | OSS - On Site Septic | $21.00 | $21.00 | $0.00 | $0.00 | $42.00 | $0.00 |
| 2024 | 24930 | WAT - Clean Water District | $12.50 | $12.50 | $0.00 | $0.00 | $25.00 | $0.00 |
| 2024 | 24930 | TOTAL: | $2086.58 | $2086.48 | $0.00 | $0.00 | $4173.06 | $0.00 |
|
| 2024 | 24930 | $2086.58 | $2086.48 | $0.00 | $0.00 | $4173.06 | $0.00 |
Statement Details |
| 2023 | 24969 | STATE - STATE LEVY (SCHOOL) | $551.54 | $551.53 | $0.00 | $0.00 | $1103.07 | $0.00 |
| 2023 | 24969 | COUNTY - COUNTY LEVIES (CE, DD, VET, MH) | $240.69 | $240.66 | $0.00 | $0.00 | $481.35 | $0.00 |
| 2023 | 24969 | CONSERVE - CONSERVATION FUTURES | $7.22 | $7.21 | $0.00 | $0.00 | $14.43 | $0.00 |
| 2023 | 24969 | COROADS - COUNTY ROADS (ROADS, DIV TO CE) | $194.72 | $194.72 | $0.00 | $0.00 | $389.44 | $0.00 |
| 2023 | 24969 | PORTPT - PORT DISTRICT | $101.39 | $101.38 | $0.00 | $0.00 | $202.77 | $0.00 |
| 2023 | 24969 | PUD1 - PUD #1 | $15.96 | $15.95 | $0.00 | $0.00 | $31.91 | $0.00 |
| 2023 | 24969 | LIB1 - LIBRARY DIST #1 | $75.34 | $75.33 | $0.00 | $0.00 | $150.67 | $0.00 |
| 2023 | 24969 | HD2 - HOSP DIST #2 | $14.05 | $14.04 | $0.00 | $0.00 | $28.09 | $0.00 |
| 2023 | 24969 | SD50 - SCHOOL DIST #50 | $437.67 | $437.65 | $0.00 | $0.00 | $875.32 | $0.00 |
| 2023 | 24969 | FD1 - FIRE DISTRICT #1 | $198.27 | $198.27 | $0.00 | $0.00 | $396.54 | $0.00 |
| 2023 | 24969 | EMS1 - FIRE DIST #1 EMS | $84.34 | $84.34 | $0.00 | $0.00 | $168.68 | $0.00 |
| 2023 | 24969 | JCCD - JC Conservation District | $2.55 | $2.55 | $0.00 | $0.00 | $5.10 | $0.00 |
| 2023 | 24969 | NWA - Noxious Weed Assessment | $2.15 | $2.15 | $0.00 | $0.00 | $4.30 | $0.00 |
| 2023 | 24969 | OSS - On Site Septic | $20.50 | $20.50 | $0.00 | $0.00 | $41.00 | $0.00 |
| 2023 | 24969 | WAT - Clean Water District | $12.00 | $12.00 | $0.00 | $0.00 | $24.00 | $0.00 |
| 2023 | 24969 | TOTAL: | $1958.39 | $1958.28 | $0.00 | $0.00 | $3916.67 | $0.00 |
|
| 2023 | 24969 | $1958.39 | $1958.28 | $0.00 | $0.00 | $3916.67 | $0.00 |
Values
| (+) Improvement Homesite Value: | + | $298,612 | |
| (+) Improvement Non-Homesite Value: | + | $0 | |
| (+) Land Homesite Value: | + | $170,000 | |
| (+) Land Non-Homesite Value: | + | $0 | |
| (+) Curr Use (HS): | + | $0 | $0 |
| (+) Curr Use (NHS): | + | $0 | $0 |
| | | -------------------------- | |
| (=) Market Value: | = | $468,612 | |
| (–) Productivity Loss: | – | $0 | |
| | | -------------------------- | |
| (=) Subtotal: | = | $468,612 | |
| (+) Senior Appraised Value: | + | $0 | |
| (+) Non-Senior Appraised Value: | + | $468,612 | |
| | | -------------------------- | |
| (=) Total Appraised Value: | = | $468,612 | |
| (–) Senior Exemption Loss: | – | $0 | |
| (–) Exemption Loss: | – | $0 | |
| | | -------------------------- | |
| (=) Taxable Value: | = | $468,612 | |
Taxing Jurisdiction
| Owner: | CHRISTINE & JOEL SCANNELL | | |
| % Ownership: | 100.0000000000% | | |
| Total Value: | $468,612 | | |
| Tax Area: | 0111 - 1-50F1E1H2L1 |
| CE | COUNTY CURRENT EXPENSE | 0.9034619479 | $468,612 | $468,612 | $423.37 | | |
| CNTYDD | DEVELOPMENTAL DISABILITIES | 0.0052121823 | $468,612 | $468,612 | $2.44 | | |
| CNTYVET | VETERANS RELIEF | 0.0052777810 | $468,612 | $468,612 | $2.47 | | |
| MENTAL | MENTAL HEALTH | 0.0052121823 | $468,612 | $468,612 | $2.44 | | |
| ROADS | COUNTY ROADS | 0.7415066410 | $468,612 | $468,612 | $347.48 | | |
| ROADSCU | COUNTY ROADS TO CUR EXP | 0.0000000000 | $468,612 | $468,612 | $0.00 | | |
| HOSP2CASH | HOSP DIST #2 GENERAL | 0.0536075306 | $468,612 | $468,612 | $25.12 | | |
| SCH50BOND | SCHOOL DIST #50 BOND 2016 | 0.5377451389 | $468,612 | $468,612 | $251.99 | | |
| SCH50CP | SCHOOL DIST #50 CAP PROJ | 0.4573475088 | $468,612 | $468,612 | $214.32 | | |
| SCH50MO | SCHOOL DIST #50 EP & O | 0.8262822886 | $468,612 | $468,612 | $387.21 | | |
| CONSERVE | CONSERVATION FUTURES | 0.0275621078 | $468,612 | $468,612 | $12.92 | | |
| EMS1 | FIRE DIST #1 EMS | 0.4679948282 | $468,612 | $468,612 | $219.31 | | |
| FD1 | FIRE DIST #1 GENERAL | 1.2171942929 | $468,612 | $468,612 | $570.39 | | |
| LIB1 | LIBRARY DIST #1 GENERAL | 0.2868827388 | $468,612 | $468,612 | $134.44 | | |
| PORTPT | PORT OF PT GENERAL | 0.1134941229 | $468,612 | $468,612 | $53.18 | | |
| PORTPTIDD | PORT OF PT IDD 2019 | 0.2577346692 | $468,612 | $468,612 | $120.78 | | |
| PUD1 | PUD #1 GENERAL | 0.0597888892 | $468,612 | $468,612 | $28.02 | | |
| STATE | STATE SCHOOL PART 1 | 1.4940692947 | $468,612 | $468,612 | $700.14 | | |
| STATE2 | STATE SCHOOL PART 2 | 0.8050170049 | $468,612 | $468,612 | $377.24 | | |
| | Total Tax Rate: | 8.2653911500 | | | | | |
| | | | | Taxes w/Current Exemptions: | $3,873.26 | | |
| | | | | Taxes w/o Exemptions: | $3,873.26 | | |
Improvement / Building
| Improvement #1: | Residential Bldg | State Code: | 11 | 1486.0 sqft | Value: | $240,640 |
| Bathrooms (#): | 2 (FULL) | Bedrooms (#): | 1 | | Exterior Wall: | PL/T1 | Fireplace: | SIN 1-GOOD | | Floor Construction: | FRAME | Foundation: | CONPR | | Heating/Cooling: | HPUMP | Roof Cover: | COMP |
|
| | Type | Description | Class CD | Sub Class CD | Year Built | Area |
| | MA | Main Area | 4+ | 15SF | 1979 | 938.0 |
| | MA2 | Second Floor Main Area | 4+ | 15SF | 1979 | 548.0 |
| | HDECK | House Deck | 4 | * | 1979 | 328.0 |
| | SHED | Shed (Table Not Dep) | 3 | * | 1979 | 128.0 |
| Improvement #2: | Residential Bldg | State Code: | 11 | 0.0 sqft | Value: | $57,972 |
| | Type | Description | Class CD | Sub Class CD | Year Built | Area |
| | HDECK | House Deck | 3 | * | 1982 | 120.0 |
| | HWPOR | House Wood Porch | 3 | * | 1982 | 96.0 |
| | GBLTIN | Builtin Garage | 3 | 1S | 1982 | 1128.0 |
| | BSMTU | House basement unfinished | 3 | * | 1982 | 624.0 |
Sketch
Property Image
Land
| 1 | 5560-1147L | | 0.0000 | 0.00 | 0.00 | 0.00 | 1.00 | $50,000 | $0 |
| 2 | 5560-1145L | | 0.0000 | 0.00 | 0.00 | 0.00 | 1.00 | $120,000 | $0 |
Roll Value History
| 2026 | N/A | N/A | N/A | N/A | N/A |
| 2025 | $298,612 | $170,000 | $0 | $468,612 | $468,612 |
| 2024 | $312,831 | $178,500 | $0 | $491,331 | $491,331 |
| 2023 | $308,565 | $165,000 | $0 | $473,565 | $473,565 |
| 2022 | $308,565 | $160,000 | $0 | $468,565 | $468,565 |
Deed and Sales History
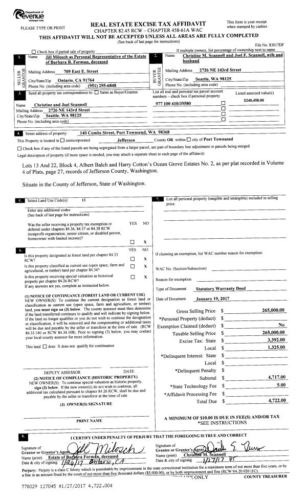
| 1 | 01/19/2017 | SWD | Statutory Warranty Deed | BARBARA B FORMAN | CHRISTINE & JOEL SCANNELL | | | $265,000.00 | 127045 | |
Payout Agreement
| No payout information available.. |