Property
Account |
| Property ID: | 35589 | Abbreviated Legal Description: | OCEAN GROVE ESTATES #2 BLK 4 LOTS 8 & 9 BND TGTH THRU LOT CONSOL THRU SDR2025-00037 |
| Parcel # / Geo ID: | 977100419 | Agent Code: | |
| Type: | Real | | |
| Tax Area: | 0111 - 1-50F1E1H2L1 | Land Use Code | 11 |
| Open Space: | N | DFL | N |
| Historic Property: | N | Remodel Property: | N |
| Multi-Family Redevelopment: | N | | |
| Township: | 30N | Section: | 24 |
| Range: | 2W |
Location |
| Address: | 204 COMBS ST PORT TOWNSEND, WA 98368 | Mapsco: | 059/008 |
| Neighborhood: | OCEANGROVE | Map ID: | |
| Neighborhood CD: | 5560 |
Owner |
| Name: | PAMELA & BRIAN WILCOX | Owner ID: | 111896 |
| Mailing Address: | 204 COMBS ST PORT TOWNSEND, WA 98368-9210 | % Ownership: | 100.0000000000% |
| | | Exemptions: | |
Pay Tax Due
Select the appropriate checkbox next to the year to be paid. Multiple years may be selected.
*Convenience Fee not included
Taxes and Assessment Details
Property Tax Information as of
03/12/2026
Click on "Statement Details" to expand or collapse a tax statement.
* Please enter a valid date ** Please enter a valid date *
Statement Details |
| 2026 | 24825 | STATE - STATE LEVY (SCHOOL) | $801.73 | $801.72 | $0.00 | $0.00 | $0.00 | $1603.45 |
| 2026 | 24825 | COUNTY - COUNTY LEVIES (CE, DD, VET, MH) | $320.53 | $320.53 | $0.00 | $0.00 | $0.00 | $641.06 |
| 2026 | 24825 | CONSERVE - CONSERVATION FUTURES | $9.61 | $9.61 | $0.00 | $0.00 | $0.00 | $19.22 |
| 2026 | 24825 | COROADS - COUNTY ROADS (ROADS, DIV TO CE) | $258.58 | $258.57 | $0.00 | $0.00 | $0.00 | $517.15 |
| 2026 | 24825 | PORTPT - PORT DISTRICT | $129.46 | $129.44 | $0.00 | $0.00 | $0.00 | $258.90 |
| 2026 | 24825 | PUD1 - PUD #1 | $20.85 | $20.85 | $0.00 | $0.00 | $0.00 | $41.70 |
| 2026 | 24825 | LIB1 - LIBRARY DIST #1 | $100.04 | $100.04 | $0.00 | $0.00 | $0.00 | $200.08 |
| 2026 | 24825 | HD2 - HOSP DIST #2 | $18.70 | $18.69 | $0.00 | $0.00 | $0.00 | $37.39 |
| 2026 | 24825 | SD50 - SCHOOL DIST #50 | $635.15 | $635.13 | $0.00 | $0.00 | $0.00 | $1270.28 |
| 2026 | 24825 | FD1 - FIRE DISTRICT #1 | $424.46 | $424.45 | $0.00 | $0.00 | $0.00 | $848.91 |
| 2026 | 24825 | EMS1 - FIRE DIST #1 EMS | $163.20 | $163.19 | $0.00 | $0.00 | $0.00 | $326.39 |
| 2026 | 24825 | FP - DNR Forest Fire Protection Assmt | $8.50 | $8.50 | $0.00 | $0.00 | $0.00 | $17.00 |
| 2026 | 24825 | FPLCA - DNR Landowner Contingency Assmt | $3.00 | $3.00 | $0.00 | $0.00 | $0.00 | $6.00 |
| 2026 | 24825 | JCCD - JC Conservation District | $2.55 | $2.55 | $0.00 | $0.00 | $0.00 | $5.10 |
| 2026 | 24825 | NWA - Noxious Weed Assessment | $2.98 | $2.97 | $0.00 | $0.00 | $0.00 | $5.95 |
| 2026 | 24825 | OSS - On Site Septic | $23.10 | $23.10 | $0.00 | $0.00 | $0.00 | $46.20 |
| 2026 | 24825 | WAT - Clean Water District | $13.00 | $13.00 | $0.00 | $0.00 | $0.00 | $26.00 |
| 2026 | 24825 | FP ADMIN - FP ADMIN | $0.50 | $0.00 | $0.00 | $0.00 | $0.00 | $0.50 |
| 2026 | 24825 | TOTAL: | $2935.94 | $2935.34 | $0.00 | $0.00 | $0.00 | $5871.28 |
|
| 2026 | 24825 | $2935.94 | $2935.34 | $0.00 | $0.00 | $0.00 | $5871.28 |
Statement Details |
| 2025 | 24893 | STATE - STATE LEVY (SCHOOL) | $854.51 | $854.51 | $0.00 | $0.00 | $1709.02 | $0.00 |
| 2025 | 24893 | COUNTY - COUNTY LEVIES (CE, DD, VET, MH) | $336.04 | $336.02 | $0.00 | $0.00 | $672.06 | $0.00 |
| 2025 | 24893 | CONSERVE - CONSERVATION FUTURES | $10.08 | $10.07 | $0.00 | $0.00 | $20.15 | $0.00 |
| 2025 | 24893 | COROADS - COUNTY ROADS (ROADS, DIV TO CE) | $269.22 | $269.21 | $0.00 | $0.00 | $538.43 | $0.00 |
| 2025 | 24893 | PORTPT - PORT DISTRICT | $137.12 | $137.12 | $0.00 | $0.00 | $274.24 | $0.00 |
| 2025 | 24893 | PUD1 - PUD #1 | $21.99 | $21.99 | $0.00 | $0.00 | $43.98 | $0.00 |
| 2025 | 24893 | LIB1 - LIBRARY DIST #1 | $104.16 | $104.15 | $0.00 | $0.00 | $208.31 | $0.00 |
| 2025 | 24893 | HD2 - HOSP DIST #2 | $19.61 | $19.60 | $0.00 | $0.00 | $39.21 | $0.00 |
| 2025 | 24893 | SD50 - SCHOOL DIST #50 | $624.51 | $624.50 | $0.00 | $0.00 | $1249.01 | $0.00 |
| 2025 | 24893 | FD1 - FIRE DISTRICT #1 | $443.43 | $443.43 | $0.00 | $0.00 | $886.86 | $0.00 |
| 2025 | 24893 | EMS1 - FIRE DIST #1 EMS | $170.56 | $170.55 | $0.00 | $0.00 | $341.11 | $0.00 |
| 2025 | 24893 | JCCD - JC Conservation District | $2.55 | $2.55 | $0.00 | $0.00 | $5.10 | $0.00 |
| 2025 | 24893 | NWA - Noxious Weed Assessment | $2.15 | $2.15 | $0.00 | $0.00 | $4.30 | $0.00 |
| 2025 | 24893 | WAT - Clean Water District | $13.00 | $13.00 | $0.00 | $0.00 | $26.00 | $0.00 |
| 2025 | 24893 | TOTAL: | $3008.93 | $3008.85 | $0.00 | $0.00 | $6017.78 | $0.00 |
|
| 2025 | 24893 | $3008.93 | $3008.85 | $0.00 | $0.00 | $6017.78 | $0.00 |
Statement Details |
| 2024 | 24939 | STATE - STATE LEVY (SCHOOL) | $762.10 | $762.09 | $0.00 | $0.00 | $1524.19 | $0.00 |
| 2024 | 24939 | COUNTY - COUNTY LEVIES (CE, DD, VET, MH) | $326.11 | $326.10 | $0.00 | $0.00 | $652.21 | $0.00 |
| 2024 | 24939 | CONSERVE - CONSERVATION FUTURES | $9.78 | $9.78 | $0.00 | $0.00 | $19.56 | $0.00 |
| 2024 | 24939 | COROADS - COUNTY ROADS (ROADS, DIV TO CE) | $262.41 | $262.41 | $0.00 | $0.00 | $524.82 | $0.00 |
| 2024 | 24939 | PORTPT - PORT DISTRICT | $134.70 | $134.69 | $0.00 | $0.00 | $269.39 | $0.00 |
| 2024 | 24939 | PUD1 - PUD #1 | $21.42 | $21.42 | $0.00 | $0.00 | $42.84 | $0.00 |
| 2024 | 24939 | LIB1 - LIBRARY DIST #1 | $101.53 | $101.52 | $0.00 | $0.00 | $203.05 | $0.00 |
| 2024 | 24939 | HD2 - HOSP DIST #2 | $19.03 | $19.03 | $0.00 | $0.00 | $38.06 | $0.00 |
| 2024 | 24939 | SD50 - SCHOOL DIST #50 | $616.58 | $616.57 | $0.00 | $0.00 | $1233.15 | $0.00 |
| 2024 | 24939 | FD1 - FIRE DISTRICT #1 | $431.19 | $431.19 | $0.00 | $0.00 | $862.38 | $0.00 |
| 2024 | 24939 | EMS1 - FIRE DIST #1 EMS | $164.70 | $164.70 | $0.00 | $0.00 | $329.40 | $0.00 |
| 2024 | 24939 | JCCD - JC Conservation District | $2.55 | $2.55 | $0.00 | $0.00 | $5.10 | $0.00 |
| 2024 | 24939 | NWA - Noxious Weed Assessment | $2.15 | $2.15 | $0.00 | $0.00 | $4.30 | $0.00 |
| 2024 | 24939 | WAT - Clean Water District | $12.50 | $12.50 | $0.00 | $0.00 | $25.00 | $0.00 |
| 2024 | 24939 | TOTAL: | $2866.75 | $2866.70 | $0.00 | $0.00 | $5733.45 | $0.00 |
|
| 2024 | 24939 | $2866.75 | $2866.70 | $0.00 | $0.00 | $5733.45 | $0.00 |
Statement Details |
| 2023 | 24978 | STATE - STATE LEVY (SCHOOL) | $769.58 | $769.57 | $0.00 | $0.00 | $1539.15 | $0.00 |
| 2023 | 24978 | COUNTY - COUNTY LEVIES (CE, DD, VET, MH) | $335.83 | $335.80 | $0.00 | $0.00 | $671.63 | $0.00 |
| 2023 | 24978 | CONSERVE - CONSERVATION FUTURES | $10.07 | $10.07 | $0.00 | $0.00 | $20.14 | $0.00 |
| 2023 | 24978 | COROADS - COUNTY ROADS (ROADS, DIV TO CE) | $271.71 | $271.69 | $0.00 | $0.00 | $543.40 | $0.00 |
| 2023 | 24978 | PORTPT - PORT DISTRICT | $141.47 | $141.46 | $0.00 | $0.00 | $282.93 | $0.00 |
| 2023 | 24978 | PUD1 - PUD #1 | $22.26 | $22.26 | $0.00 | $0.00 | $44.52 | $0.00 |
| 2023 | 24978 | LIB1 - LIBRARY DIST #1 | $105.12 | $105.12 | $0.00 | $0.00 | $210.24 | $0.00 |
| 2023 | 24978 | HD2 - HOSP DIST #2 | $19.60 | $19.59 | $0.00 | $0.00 | $39.19 | $0.00 |
| 2023 | 24978 | SD50 - SCHOOL DIST #50 | $610.68 | $610.66 | $0.00 | $0.00 | $1221.34 | $0.00 |
| 2023 | 24978 | FD1 - FIRE DISTRICT #1 | $276.65 | $276.64 | $0.00 | $0.00 | $553.29 | $0.00 |
| 2023 | 24978 | EMS1 - FIRE DIST #1 EMS | $117.68 | $117.68 | $0.00 | $0.00 | $235.36 | $0.00 |
| 2023 | 24978 | JCCD - JC Conservation District | $2.55 | $2.55 | $0.00 | $0.00 | $5.10 | $0.00 |
| 2023 | 24978 | NWA - Noxious Weed Assessment | $2.15 | $2.15 | $0.00 | $0.00 | $4.30 | $0.00 |
| 2023 | 24978 | WAT - Clean Water District | $12.00 | $12.00 | $0.00 | $0.00 | $24.00 | $0.00 |
| 2023 | 24978 | TOTAL: | $2697.35 | $2697.24 | $0.00 | $0.00 | $5394.59 | $0.00 |
|
| 2023 | 24978 | $2697.35 | $2697.24 | $0.00 | $0.00 | $5394.59 | $0.00 |
Values
| (+) Improvement Homesite Value: | + | $0 | |
| (+) Improvement Non-Homesite Value: | + | $527,428 | |
| (+) Land Homesite Value: | + | $0 | |
| (+) Land Non-Homesite Value: | + | $170,000 | |
| (+) Curr Use (HS): | + | $0 | $0 |
| (+) Curr Use (NHS): | + | $0 | $0 |
| | | -------------------------- | |
| (=) Market Value: | = | $697,428 | |
| (–) Productivity Loss: | – | $0 | |
| | | -------------------------- | |
| (=) Subtotal: | = | $697,428 | |
| (+) Senior Appraised Value: | + | $0 | |
| (+) Non-Senior Appraised Value: | + | $697,428 | |
| | | -------------------------- | |
| (=) Total Appraised Value: | = | $697,428 | |
| (–) Senior Exemption Loss: | – | $0 | |
| (–) Exemption Loss: | – | $0 | |
| | | -------------------------- | |
| (=) Taxable Value: | = | $697,428 | |
Taxing Jurisdiction
| Owner: | PAMELA & BRIAN WILCOX | | |
| % Ownership: | 100.0000000000% | | |
| Total Value: | $697,428 | | |
| Tax Area: | 0111 - 1-50F1E1H2L1 |
| CE | COUNTY CURRENT EXPENSE | 0.9034619479 | $697,428 | $697,428 | $630.10 | | |
| CNTYDD | DEVELOPMENTAL DISABILITIES | 0.0052121823 | $697,428 | $697,428 | $3.64 | | |
| CNTYVET | VETERANS RELIEF | 0.0052777810 | $697,428 | $697,428 | $3.68 | | |
| MENTAL | MENTAL HEALTH | 0.0052121823 | $697,428 | $697,428 | $3.64 | | |
| ROADS | COUNTY ROADS | 0.7415066410 | $697,428 | $697,428 | $517.15 | | |
| ROADSCU | COUNTY ROADS TO CUR EXP | 0.0000000000 | $697,428 | $697,428 | $0.00 | | |
| HOSP2CASH | HOSP DIST #2 GENERAL | 0.0536075306 | $697,428 | $697,428 | $37.39 | | |
| SCH50BOND | SCHOOL DIST #50 BOND 2016 | 0.5377451389 | $697,428 | $697,428 | $375.04 | | |
| SCH50CP | SCHOOL DIST #50 CAP PROJ | 0.4573475088 | $697,428 | $697,428 | $318.97 | | |
| SCH50MO | SCHOOL DIST #50 EP & O | 0.8262822886 | $697,428 | $697,428 | $576.27 | | |
| CONSERVE | CONSERVATION FUTURES | 0.0275621078 | $697,428 | $697,428 | $19.22 | | |
| EMS1 | FIRE DIST #1 EMS | 0.4679948282 | $697,428 | $697,428 | $326.39 | | |
| FD1 | FIRE DIST #1 GENERAL | 1.2171942929 | $697,428 | $697,428 | $848.91 | | |
| LIB1 | LIBRARY DIST #1 GENERAL | 0.2868827388 | $697,428 | $697,428 | $200.08 | | |
| PORTPT | PORT OF PT GENERAL | 0.1134941229 | $697,428 | $697,428 | $79.15 | | |
| PORTPTIDD | PORT OF PT IDD 2019 | 0.2577346692 | $697,428 | $697,428 | $179.75 | | |
| PUD1 | PUD #1 GENERAL | 0.0597888892 | $697,428 | $697,428 | $41.70 | | |
| STATE | STATE SCHOOL PART 1 | 1.4940692947 | $697,428 | $697,428 | $1,042.01 | | |
| STATE2 | STATE SCHOOL PART 2 | 0.8050170049 | $697,428 | $697,428 | $561.44 | | |
| | Total Tax Rate: | 8.2653911500 | | | | | |
| | | | | Taxes w/Current Exemptions: | $5,764.53 | | |
| | | | | Taxes w/o Exemptions: | $5,764.53 | | |
Improvement / Building
| Improvement #1: | Residential Bldg | State Code: | 11 | 3099.6 sqft | Value: | $527,428 |
| Bathrooms (#): | 3 (FULL) | Bedrooms (#): | 3 | | Exterior Wall: | SI/ST | Fireplace: | WD ST-GOOD | | Floor Construction: | FRAME | Foundation: | CONPR | | Heating/Cooling: | HPUMP | Roof Cover: | COMP |
|
| | Type | Description | Class CD | Sub Class CD | Year Built | Area |
| | MA | Main Area | 4 | 1S | 2000 | 1427.6 |
| | MA2 | Second Floor Main Area | 4 | 1S | 1993 | 1672.0 |
| | HBAL | House Balcony | 4 | * | 1993 | 692.0 |
| | HDECK | House Deck | 4 | * | 1993 | 120.0 |
| | GBLTIN | Builtin Garage | 3 | 1S | 1993 | 992.0 |
| | HWPOR | House Wood Porch | 4 | * | 2000 | 30.0 |
Sketch
Property Image
Land
| 1 | 5560-1145L | | 0.0000 | 0.00 | 0.00 | 0.00 | 1.00 | $120,000 | $0 |
| 2 | 5560-1147L | | 0.0000 | 0.00 | 0.00 | 0.00 | 1.00 | $50,000 | $0 |
Roll Value History
| 2026 | N/A | N/A | N/A | N/A | N/A |
| 2025 | $527,428 | $170,000 | $0 | $697,428 | $697,428 |
| 2024 | $586,680 | $126,000 | $0 | $712,680 | $712,680 |
| 2023 | $543,796 | $115,000 | $0 | $658,796 | $658,796 |
| 2022 | $543,796 | $110,000 | $0 | $653,796 | $653,796 |
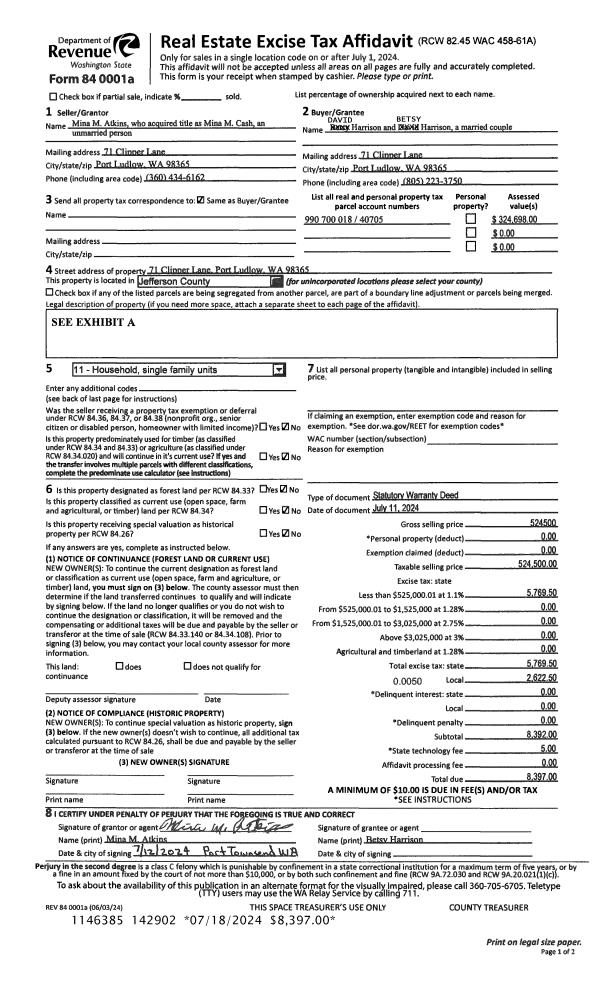
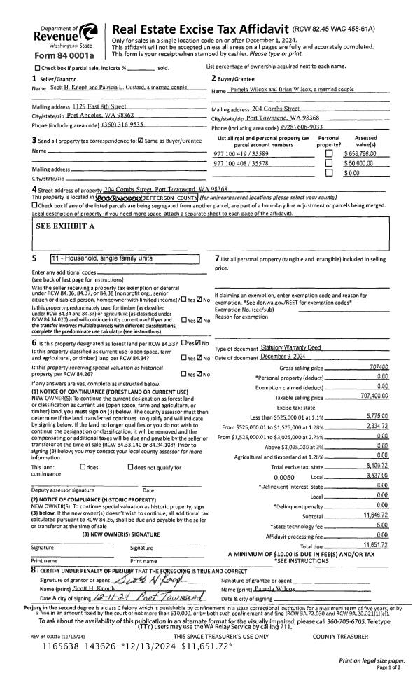
Deed and Sales History
| 1 | 04/15/2025 | LOT CERT | LOT CERTIFICATION | PAMELA & BRIAN WILCOX | PAMELA & BRIAN WILCOX | | | | 0 | AF#670912 |
| 2 | 12/09/2024 | SWD | Statutory Warranty Deed | SCOTT H KNOPH | PAMELA & BRIAN WILCOX | | | $707,400.00 | 143626 | |
| 3 | 12/14/2023 | QCD | Quit Claim Deed | SCOTT H KNOPH | SCOTT H KNOPH | | | | 142037 | |
| 4 | 04/16/2021 | SWD | Statutory Warranty Deed | KNOPH FAMILY TRUST | SCOTT H KNOPH | | | | 136643 | |
| 5 | 05/12/2014 | SWD | Statutory Warranty Deed | SCOTT H KNOPH | KNOPH FAMILY TRUST | | | | 121170 | |
| 6 | 08/29/2012 | QCD | Quit Claim Deed | KNOPH, DARLENE P | KNOPH, SCOTT H | 0 | 0 | $0.00 | 118008 | 0 |
| 7 | 03/15/2010 | QCD | Quit Claim Deed | KNOPH, CECELIA JA A ESTAT | KNOPH, SCOTT H | 0 | 0 | $0.00 | 114147 | 0 |
| 8 | 02/10/1993 | SWD | Statutory Warranty Deed | CROPLEY, MALCOLM/DORTHY | KNOPH, SCOTT/CECELIA | 0 | 0 | $0.00 | 70430 | 0 |
Payout Agreement
| No payout information available.. |