Property
Account |
| Property ID: | 35642 | Abbreviated Legal Description: | OCEAN GROVE ESTATES #2 BLK 7 LOT 24 |
| Parcel # / Geo ID: | 977100709 | Agent Code: | |
| Type: | Real | | |
| Tax Area: | 0111 - 1-50F1E1H2L1 | Land Use Code | 91 |
| Open Space: | N | DFL | N |
| Historic Property: | N | Remodel Property: | N |
| Multi-Family Redevelopment: | N | | |
| Township: | 30N | Section: | 24 |
| Range: | 2W |
Location |
| Address: | | Mapsco: | 060/048 |
| Neighborhood: | OCEANGROVE | Map ID: | |
| Neighborhood CD: | 5560 |
Owner |
| Name: | MMMM REVOCABLE LIVING TRUST | Owner ID: | 102278 |
| Mailing Address: | EVELEEN T MUEHLETHALER TRUSTEE KARMEN MEIER TRUSTEE 114 BECKER ST PORT TOWNSEND, WA 98368-9266 | % Ownership: | 100.0000000000% |
| | | Exemptions: | |
Pay Tax Due
Select the appropriate checkbox next to the year to be paid. Multiple years may be selected.
*Convenience Fee not included
Taxes and Assessment Details
Property Tax Information as of
03/11/2026
Click on "Statement Details" to expand or collapse a tax statement.
* Please enter a valid date ** Please enter a valid date *
Statement Details |
| 2026 | 24878 | STATE - STATE LEVY (SCHOOL) | $22.99 | $22.99 | $0.00 | $0.00 | $22.99 | $22.99 |
| 2026 | 24878 | COUNTY - COUNTY LEVIES (CE, DD, VET, MH) | $9.20 | $9.18 | $0.00 | $0.00 | $9.20 | $9.18 |
| 2026 | 24878 | CONSERVE - CONSERVATION FUTURES | $0.28 | $0.27 | $0.00 | $0.00 | $0.28 | $0.27 |
| 2026 | 24878 | COROADS - COUNTY ROADS (ROADS, DIV TO CE) | $7.42 | $7.41 | $0.00 | $0.00 | $7.42 | $7.41 |
| 2026 | 24878 | PORTPT - PORT DISTRICT | $3.72 | $3.70 | $0.00 | $0.00 | $3.72 | $3.70 |
| 2026 | 24878 | PUD1 - PUD #1 | $0.60 | $0.60 | $0.00 | $0.00 | $0.60 | $0.60 |
| 2026 | 24878 | LIB1 - LIBRARY DIST #1 | $2.87 | $2.87 | $0.00 | $0.00 | $2.87 | $2.87 |
| 2026 | 24878 | HD2 - HOSP DIST #2 | $0.54 | $0.53 | $0.00 | $0.00 | $0.54 | $0.53 |
| 2026 | 24878 | SD50 - SCHOOL DIST #50 | $18.23 | $18.20 | $0.00 | $0.00 | $18.23 | $18.20 |
| 2026 | 24878 | FD1 - FIRE DISTRICT #1 | $12.17 | $12.17 | $0.00 | $0.00 | $12.17 | $12.17 |
| 2026 | 24878 | EMS1 - FIRE DIST #1 EMS | $4.68 | $4.68 | $0.00 | $0.00 | $4.68 | $4.68 |
| 2026 | 24878 | FP - DNR Forest Fire Protection Assmt | $8.50 | $8.50 | $0.00 | $0.00 | $8.50 | $8.50 |
| 2026 | 24878 | FPLCA - DNR Landowner Contingency Assmt | $3.00 | $3.00 | $0.00 | $0.00 | $3.00 | $3.00 |
| 2026 | 24878 | JCCD - JC Conservation District | $2.53 | $2.53 | $0.00 | $0.00 | $2.53 | $2.53 |
| 2026 | 24878 | NWA - Noxious Weed Assessment | $2.98 | $2.97 | $0.00 | $0.00 | $2.98 | $2.97 |
| 2026 | 24878 | WAT - Clean Water District | $13.00 | $13.00 | $0.00 | $0.00 | $13.00 | $13.00 |
| 2026 | 24878 | FP ADMIN - FP ADMIN | $0.50 | $0.00 | $0.00 | $0.00 | $0.50 | $0.00 |
| 2026 | 24878 | TOTAL: | $113.21 | $112.60 | $0.00 | $0.00 | $113.21 | $112.60 |
|
| 2026 | 24878 | $113.21 | $112.60 | $0.00 | $0.00 | $113.21 | $112.60 |
Statement Details |
| 2025 | 24946 | STATE - STATE LEVY (SCHOOL) | $25.18 | $25.18 | $0.00 | $0.00 | $50.36 | $0.00 |
| 2025 | 24946 | COUNTY - COUNTY LEVIES (CE, DD, VET, MH) | $9.92 | $9.88 | $0.00 | $0.00 | $19.80 | $0.00 |
| 2025 | 24946 | CONSERVE - CONSERVATION FUTURES | $0.30 | $0.29 | $0.00 | $0.00 | $0.59 | $0.00 |
| 2025 | 24946 | COROADS - COUNTY ROADS (ROADS, DIV TO CE) | $7.94 | $7.93 | $0.00 | $0.00 | $15.87 | $0.00 |
| 2025 | 24946 | PORTPT - PORT DISTRICT | $4.05 | $4.04 | $0.00 | $0.00 | $8.09 | $0.00 |
| 2025 | 24946 | PUD1 - PUD #1 | $0.65 | $0.65 | $0.00 | $0.00 | $1.30 | $0.00 |
| 2025 | 24946 | LIB1 - LIBRARY DIST #1 | $3.07 | $3.07 | $0.00 | $0.00 | $6.14 | $0.00 |
| 2025 | 24946 | HD2 - HOSP DIST #2 | $0.58 | $0.58 | $0.00 | $0.00 | $1.16 | $0.00 |
| 2025 | 24946 | SD50 - SCHOOL DIST #50 | $18.40 | $18.40 | $0.00 | $0.00 | $36.80 | $0.00 |
| 2025 | 24946 | FD1 - FIRE DISTRICT #1 | $13.07 | $13.06 | $0.00 | $0.00 | $26.13 | $0.00 |
| 2025 | 24946 | EMS1 - FIRE DIST #1 EMS | $5.03 | $5.02 | $0.00 | $0.00 | $10.05 | $0.00 |
| 2025 | 24946 | FP - DNR Forest Fire Protection Assmt | $8.50 | $8.50 | $0.00 | $0.00 | $17.00 | $0.00 |
| 2025 | 24946 | FPLCA - DNR Landowner Contingency Assmt | $3.00 | $3.00 | $0.00 | $0.00 | $6.00 | $0.00 |
| 2025 | 24946 | JCCD - JC Conservation District | $2.53 | $2.53 | $0.00 | $0.00 | $5.06 | $0.00 |
| 2025 | 24946 | NWA - Noxious Weed Assessment | $2.15 | $2.15 | $0.00 | $0.00 | $4.30 | $0.00 |
| 2025 | 24946 | WAT - Clean Water District | $13.00 | $13.00 | $0.00 | $0.00 | $26.00 | $0.00 |
| 2025 | 24946 | FP ADMIN - FP ADMIN | $0.50 | $0.00 | $0.00 | $0.00 | $0.50 | $0.00 |
| 2025 | 24946 | TOTAL: | $117.87 | $117.28 | $0.00 | $0.00 | $235.15 | $0.00 |
|
| 2025 | 24946 | $117.87 | $117.28 | $0.00 | $0.00 | $235.15 | $0.00 |
Statement Details |
| 2024 | 24992 | STATE - STATE LEVY (SCHOOL) | $23.14 | $23.14 | $0.00 | $0.00 | $46.28 | $0.00 |
| 2024 | 24992 | COUNTY - COUNTY LEVIES (CE, DD, VET, MH) | $9.91 | $9.88 | $0.00 | $0.00 | $19.79 | $0.00 |
| 2024 | 24992 | CONSERVE - CONSERVATION FUTURES | $0.30 | $0.29 | $0.00 | $0.00 | $0.59 | $0.00 |
| 2024 | 24992 | COROADS - COUNTY ROADS (ROADS, DIV TO CE) | $7.97 | $7.96 | $0.00 | $0.00 | $15.93 | $0.00 |
| 2024 | 24992 | PORTPT - PORT DISTRICT | $4.09 | $4.08 | $0.00 | $0.00 | $8.17 | $0.00 |
| 2024 | 24992 | PUD1 - PUD #1 | $0.65 | $0.65 | $0.00 | $0.00 | $1.30 | $0.00 |
| 2024 | 24992 | LIB1 - LIBRARY DIST #1 | $3.08 | $3.08 | $0.00 | $0.00 | $6.16 | $0.00 |
| 2024 | 24992 | HD2 - HOSP DIST #2 | $0.58 | $0.58 | $0.00 | $0.00 | $1.16 | $0.00 |
| 2024 | 24992 | SD50 - SCHOOL DIST #50 | $18.72 | $18.71 | $0.00 | $0.00 | $37.43 | $0.00 |
| 2024 | 24992 | FD1 - FIRE DISTRICT #1 | $13.09 | $13.09 | $0.00 | $0.00 | $26.18 | $0.00 |
| 2024 | 24992 | EMS1 - FIRE DIST #1 EMS | $5.00 | $5.00 | $0.00 | $0.00 | $10.00 | $0.00 |
| 2024 | 24992 | FP - DNR Forest Fire Protection Assmt | $8.50 | $8.50 | $0.00 | $0.00 | $17.00 | $0.00 |
| 2024 | 24992 | FPLCA - DNR Landowner Contingency Assmt | $3.00 | $3.00 | $0.00 | $0.00 | $6.00 | $0.00 |
| 2024 | 24992 | JCCD - JC Conservation District | $2.53 | $2.53 | $0.00 | $0.00 | $5.06 | $0.00 |
| 2024 | 24992 | NWA - Noxious Weed Assessment | $2.15 | $2.15 | $0.00 | $0.00 | $4.30 | $0.00 |
| 2024 | 24992 | WAT - Clean Water District | $12.50 | $12.50 | $0.00 | $0.00 | $25.00 | $0.00 |
| 2024 | 24992 | FP ADMIN - FP ADMIN | $0.50 | $0.00 | $0.00 | $0.00 | $0.50 | $0.00 |
| 2024 | 24992 | TOTAL: | $115.71 | $115.14 | $0.00 | $0.00 | $230.85 | $0.00 |
|
| 2024 | 24992 | $115.71 | $115.14 | $0.00 | $0.00 | $230.85 | $0.00 |
Statement Details |
| 2023 | 25031 | STATE - STATE LEVY (SCHOOL) | $23.55 | $23.54 | $0.00 | $0.00 | $47.09 | $0.00 |
| 2023 | 25031 | COUNTY - COUNTY LEVIES (CE, DD, VET, MH) | $10.28 | $10.27 | $0.00 | $0.00 | $20.55 | $0.00 |
| 2023 | 25031 | CONSERVE - CONSERVATION FUTURES | $0.31 | $0.31 | $0.00 | $0.00 | $0.62 | $0.00 |
| 2023 | 25031 | COROADS - COUNTY ROADS (ROADS, DIV TO CE) | $8.31 | $8.31 | $0.00 | $0.00 | $16.62 | $0.00 |
| 2023 | 25031 | PORTPT - PORT DISTRICT | $4.33 | $4.33 | $0.00 | $0.00 | $8.66 | $0.00 |
| 2023 | 25031 | PUD1 - PUD #1 | $0.68 | $0.68 | $0.00 | $0.00 | $1.36 | $0.00 |
| 2023 | 25031 | LIB1 - LIBRARY DIST #1 | $3.22 | $3.21 | $0.00 | $0.00 | $6.43 | $0.00 |
| 2023 | 25031 | HD2 - HOSP DIST #2 | $0.60 | $0.60 | $0.00 | $0.00 | $1.20 | $0.00 |
| 2023 | 25031 | SD50 - SCHOOL DIST #50 | $18.69 | $18.68 | $0.00 | $0.00 | $37.37 | $0.00 |
| 2023 | 25031 | FD1 - FIRE DISTRICT #1 | $8.47 | $8.46 | $0.00 | $0.00 | $16.93 | $0.00 |
| 2023 | 25031 | EMS1 - FIRE DIST #1 EMS | $3.60 | $3.60 | $0.00 | $0.00 | $7.20 | $0.00 |
| 2023 | 25031 | FP - DNR Forest Fire Protection Assmt | $8.50 | $8.50 | $0.00 | $0.00 | $17.00 | $0.00 |
| 2023 | 25031 | FPLCA - DNR Landowner Contingency Assmt | $3.00 | $3.00 | $0.00 | $0.00 | $6.00 | $0.00 |
| 2023 | 25031 | JCCD - JC Conservation District | $2.53 | $2.53 | $0.00 | $0.00 | $5.06 | $0.00 |
| 2023 | 25031 | NWA - Noxious Weed Assessment | $2.15 | $2.15 | $0.00 | $0.00 | $4.30 | $0.00 |
| 2023 | 25031 | WAT - Clean Water District | $12.00 | $12.00 | $0.00 | $0.00 | $24.00 | $0.00 |
| 2023 | 25031 | FP ADMIN - FP ADMIN | $0.50 | $0.00 | $0.00 | $0.00 | $0.50 | $0.00 |
| 2023 | 25031 | TOTAL: | $110.72 | $110.17 | $0.00 | $0.00 | $220.89 | $0.00 |
|
| 2023 | 25031 | $110.72 | $110.17 | $0.00 | $0.00 | $220.89 | $0.00 |
Values
| (+) Improvement Homesite Value: | + | $0 | |
| (+) Improvement Non-Homesite Value: | + | $0 | |
| (+) Land Homesite Value: | + | $0 | |
| (+) Land Non-Homesite Value: | + | $20,000 | |
| (+) Curr Use (HS): | + | $0 | $0 |
| (+) Curr Use (NHS): | + | $0 | $0 |
| | | -------------------------- | |
| (=) Market Value: | = | $20,000 | |
| (–) Productivity Loss: | – | $0 | |
| | | -------------------------- | |
| (=) Subtotal: | = | $20,000 | |
| (+) Senior Appraised Value: | + | $0 | |
| (+) Non-Senior Appraised Value: | + | $20,000 | |
| | | -------------------------- | |
| (=) Total Appraised Value: | = | $20,000 | |
| (–) Senior Exemption Loss: | – | $0 | |
| (–) Exemption Loss: | – | $0 | |
| | | -------------------------- | |
| (=) Taxable Value: | = | $20,000 | |
Taxing Jurisdiction
| Owner: | MMMM REVOCABLE LIVING TRUST | | |
| % Ownership: | 100.0000000000% | | |
| Total Value: | $20,000 | | |
| Tax Area: | 0111 - 1-50F1E1H2L1 |
| CE | COUNTY CURRENT EXPENSE | 0.9034619479 | $20,000 | $20,000 | $18.07 | | |
| CNTYDD | DEVELOPMENTAL DISABILITIES | 0.0052121823 | $20,000 | $20,000 | $0.10 | | |
| CNTYVET | VETERANS RELIEF | 0.0052777810 | $20,000 | $20,000 | $0.11 | | |
| MENTAL | MENTAL HEALTH | 0.0052121823 | $20,000 | $20,000 | $0.10 | | |
| ROADS | COUNTY ROADS | 0.7415066410 | $20,000 | $20,000 | $14.83 | | |
| ROADSCU | COUNTY ROADS TO CUR EXP | 0.0000000000 | $20,000 | $20,000 | $0.00 | | |
| HOSP2CASH | HOSP DIST #2 GENERAL | 0.0536075306 | $20,000 | $20,000 | $1.07 | | |
| SCH50BOND | SCHOOL DIST #50 BOND 2016 | 0.5377451389 | $20,000 | $20,000 | $10.75 | | |
| SCH50CP | SCHOOL DIST #50 CAP PROJ | 0.4573475088 | $20,000 | $20,000 | $9.15 | | |
| SCH50MO | SCHOOL DIST #50 EP & O | 0.8262822886 | $20,000 | $20,000 | $16.53 | | |
| CONSERVE | CONSERVATION FUTURES | 0.0275621078 | $20,000 | $20,000 | $0.55 | | |
| EMS1 | FIRE DIST #1 EMS | 0.4679948282 | $20,000 | $20,000 | $9.36 | | |
| FD1 | FIRE DIST #1 GENERAL | 1.2171942929 | $20,000 | $20,000 | $24.34 | | |
| LIB1 | LIBRARY DIST #1 GENERAL | 0.2868827388 | $20,000 | $20,000 | $5.74 | | |
| PORTPT | PORT OF PT GENERAL | 0.1134941229 | $20,000 | $20,000 | $2.27 | | |
| PORTPTIDD | PORT OF PT IDD 2019 | 0.2577346692 | $20,000 | $20,000 | $5.15 | | |
| PUD1 | PUD #1 GENERAL | 0.0597888892 | $20,000 | $20,000 | $1.20 | | |
| STATE | STATE SCHOOL PART 1 | 1.4940692947 | $20,000 | $20,000 | $29.88 | | |
| STATE2 | STATE SCHOOL PART 2 | 0.8050170049 | $20,000 | $20,000 | $16.10 | | |
| | Total Tax Rate: | 8.2653911500 | | | | | |
| | | | | Taxes w/Current Exemptions: | $165.30 | | |
| | | | | Taxes w/o Exemptions: | $165.30 | | |
Improvement / Building
Sketch
| No sketches available for this property. |
Property Image
Land
| 1 | 5560-1185L | | 0.0000 | 0.00 | 0.00 | 0.00 | 1.00 | $20,000 | $0 |
Roll Value History
| 2026 | N/A | N/A | N/A | N/A | N/A |
| 2025 | $0 | $20,000 | $0 | $20,000 | $20,000 |
| 2024 | $0 | $21,000 | $0 | $21,000 | $21,000 |
| 2023 | $0 | $20,000 | $0 | $20,000 | $20,000 |
| 2022 | $0 | $20,000 | $0 | $20,000 | $20,000 |
Deed and Sales History
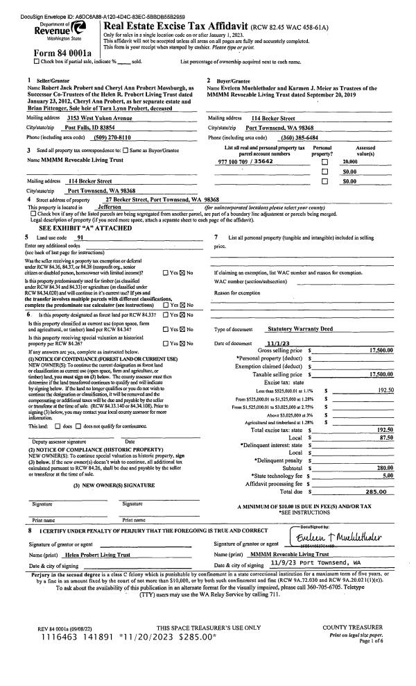
| 1 | 11/01/2023 | SWD | Statutory Warranty Deed | HELEN R PROBERT TRUSTEE | MMMM REVOCABLE LIVING TRUST | | | $17,500.00 | 141891 | |
| 2 | 01/23/2012 | SWD | Statutory Warranty Deed | PROBERT, HELEN R | PROBERT, HELEN R TRUSTEE OF TH | 0 | 0 | $0.00 | 117089 | 0 |
Payout Agreement
| No payout information available.. |