Property
Account |
| Property ID: | 35647 | Abbreviated Legal Description: | OCEAN GROVE ESTATES #2 BLK 7 LOT 2 SUBJ TO EASE V52/P899 |
| Parcel # / Geo ID: | 977100715 | Agent Code: | |
| Type: | Real | | |
| Tax Area: | 0111 - 1-50F1E1H2L1 | Land Use Code | 91 |
| Open Space: | N | DFL | N |
| Historic Property: | N | Remodel Property: | N |
| Multi-Family Redevelopment: | N | | |
| Township: | 30N | Section: | 24 |
| Range: | 2W |
Location |
| Address: | 325 MYRTLE ST PORT TOWNSEND, WA 98368 | Mapsco: | 060/027 |
| Neighborhood: | OCEANGROVE | Map ID: | |
| Neighborhood CD: | 5560 |
Owner |
| Name: | DEBORAH J & DAVID F THOMSON | Owner ID: | 112145 |
| Mailing Address: | 325 MYRTLE ST PORT TOWNSEND, WA 98368-9234 | % Ownership: | 100.0000000000% |
| | | Exemptions: | |
Pay Tax Due
Select the appropriate checkbox next to the year to be paid. Multiple years may be selected.
*Convenience Fee not included
Taxes and Assessment Details
Property Tax Information as of
03/11/2026
Click on "Statement Details" to expand or collapse a tax statement.
* Please enter a valid date ** Please enter a valid date *
Statement Details |
| 2026 | 24883 | STATE - STATE LEVY (SCHOOL) | $51.74 | $51.72 | $0.00 | $0.00 | $0.00 | $103.46 |
| 2026 | 24883 | COUNTY - COUNTY LEVIES (CE, DD, VET, MH) | $20.69 | $20.67 | $0.00 | $0.00 | $0.00 | $41.36 |
| 2026 | 24883 | CONSERVE - CONSERVATION FUTURES | $0.62 | $0.62 | $0.00 | $0.00 | $0.00 | $1.24 |
| 2026 | 24883 | COROADS - COUNTY ROADS (ROADS, DIV TO CE) | $16.69 | $16.68 | $0.00 | $0.00 | $0.00 | $33.37 |
| 2026 | 24883 | PORTPT - PORT DISTRICT | $8.36 | $8.35 | $0.00 | $0.00 | $0.00 | $16.71 |
| 2026 | 24883 | PUD1 - PUD #1 | $1.35 | $1.34 | $0.00 | $0.00 | $0.00 | $2.69 |
| 2026 | 24883 | LIB1 - LIBRARY DIST #1 | $6.46 | $6.45 | $0.00 | $0.00 | $0.00 | $12.91 |
| 2026 | 24883 | HD2 - HOSP DIST #2 | $1.21 | $1.20 | $0.00 | $0.00 | $0.00 | $2.41 |
| 2026 | 24883 | SD50 - SCHOOL DIST #50 | $40.98 | $40.98 | $0.00 | $0.00 | $0.00 | $81.96 |
| 2026 | 24883 | FD1 - FIRE DISTRICT #1 | $27.39 | $27.38 | $0.00 | $0.00 | $0.00 | $54.77 |
| 2026 | 24883 | EMS1 - FIRE DIST #1 EMS | $10.53 | $10.53 | $0.00 | $0.00 | $0.00 | $21.06 |
| 2026 | 24883 | FP - DNR Forest Fire Protection Assmt | $8.50 | $8.50 | $0.00 | $0.00 | $0.00 | $17.00 |
| 2026 | 24883 | FPLCA - DNR Landowner Contingency Assmt | $3.00 | $3.00 | $0.00 | $0.00 | $0.00 | $6.00 |
| 2026 | 24883 | JCCD - JC Conservation District | $2.53 | $2.53 | $0.00 | $0.00 | $0.00 | $5.06 |
| 2026 | 24883 | NWA - Noxious Weed Assessment | $2.98 | $2.97 | $0.00 | $0.00 | $0.00 | $5.95 |
| 2026 | 24883 | OSS - On Site Septic | $23.10 | $23.10 | $0.00 | $0.00 | $0.00 | $46.20 |
| 2026 | 24883 | WAT - Clean Water District | $13.00 | $13.00 | $0.00 | $0.00 | $0.00 | $26.00 |
| 2026 | 24883 | FP ADMIN - FP ADMIN | $0.50 | $0.00 | $0.00 | $0.00 | $0.00 | $0.50 |
| 2026 | 24883 | TOTAL: | $239.63 | $239.02 | $0.00 | $0.00 | $0.00 | $478.65 |
|
| 2026 | 24883 | $239.63 | $239.02 | $0.00 | $0.00 | $0.00 | $478.65 |
Statement Details |
| 2025 | 24951 | STATE - STATE LEVY (SCHOOL) | $56.66 | $56.65 | $0.00 | $0.00 | $113.31 | $0.00 |
| 2025 | 24951 | COUNTY - COUNTY LEVIES (CE, DD, VET, MH) | $22.29 | $22.27 | $0.00 | $0.00 | $44.56 | $0.00 |
| 2025 | 24951 | CONSERVE - CONSERVATION FUTURES | $0.67 | $0.67 | $0.00 | $0.00 | $1.34 | $0.00 |
| 2025 | 24951 | COROADS - COUNTY ROADS (ROADS, DIV TO CE) | $17.85 | $17.85 | $0.00 | $0.00 | $35.70 | $0.00 |
| 2025 | 24951 | PORTPT - PORT DISTRICT | $9.09 | $9.09 | $0.00 | $0.00 | $18.18 | $0.00 |
| 2025 | 24951 | PUD1 - PUD #1 | $1.46 | $1.46 | $0.00 | $0.00 | $2.92 | $0.00 |
| 2025 | 24951 | LIB1 - LIBRARY DIST #1 | $6.91 | $6.90 | $0.00 | $0.00 | $13.81 | $0.00 |
| 2025 | 24951 | HD2 - HOSP DIST #2 | $1.30 | $1.30 | $0.00 | $0.00 | $2.60 | $0.00 |
| 2025 | 24951 | SD50 - SCHOOL DIST #50 | $41.42 | $41.39 | $0.00 | $0.00 | $82.81 | $0.00 |
| 2025 | 24951 | FD1 - FIRE DISTRICT #1 | $29.40 | $29.40 | $0.00 | $0.00 | $58.80 | $0.00 |
| 2025 | 24951 | EMS1 - FIRE DIST #1 EMS | $11.31 | $11.31 | $0.00 | $0.00 | $22.62 | $0.00 |
| 2025 | 24951 | FP - DNR Forest Fire Protection Assmt | $8.50 | $8.50 | $0.00 | $0.00 | $17.00 | $0.00 |
| 2025 | 24951 | FPLCA - DNR Landowner Contingency Assmt | $3.00 | $3.00 | $0.00 | $0.00 | $6.00 | $0.00 |
| 2025 | 24951 | JCCD - JC Conservation District | $2.53 | $2.53 | $0.00 | $0.00 | $5.06 | $0.00 |
| 2025 | 24951 | NWA - Noxious Weed Assessment | $2.15 | $2.15 | $0.00 | $0.00 | $4.30 | $0.00 |
| 2025 | 24951 | OSS - On Site Septic | $21.50 | $21.50 | $0.00 | $0.00 | $43.00 | $0.00 |
| 2025 | 24951 | WAT - Clean Water District | $13.00 | $13.00 | $0.00 | $0.00 | $26.00 | $0.00 |
| 2025 | 24951 | FP ADMIN - FP ADMIN | $0.50 | $0.00 | $0.00 | $0.00 | $0.50 | $0.00 |
| 2025 | 24951 | TOTAL: | $249.54 | $248.97 | $0.00 | $0.00 | $498.51 | $0.00 |
|
| 2025 | 24951 | $249.54 | $248.97 | $0.00 | $0.00 | $498.51 | $0.00 |
Statement Details |
| 2024 | 24997 | STATE - STATE LEVY (SCHOOL) | $52.06 | $52.05 | $0.00 | $0.00 | $104.11 | $0.00 |
| 2024 | 24997 | COUNTY - COUNTY LEVIES (CE, DD, VET, MH) | $22.29 | $22.25 | $0.00 | $0.00 | $44.54 | $0.00 |
| 2024 | 24997 | CONSERVE - CONSERVATION FUTURES | $0.67 | $0.67 | $0.00 | $0.00 | $1.34 | $0.00 |
| 2024 | 24997 | COROADS - COUNTY ROADS (ROADS, DIV TO CE) | $17.93 | $17.92 | $0.00 | $0.00 | $35.85 | $0.00 |
| 2024 | 24997 | PORTPT - PORT DISTRICT | $9.20 | $9.20 | $0.00 | $0.00 | $18.40 | $0.00 |
| 2024 | 24997 | PUD1 - PUD #1 | $1.47 | $1.46 | $0.00 | $0.00 | $2.93 | $0.00 |
| 2024 | 24997 | LIB1 - LIBRARY DIST #1 | $6.94 | $6.93 | $0.00 | $0.00 | $13.87 | $0.00 |
| 2024 | 24997 | HD2 - HOSP DIST #2 | $1.30 | $1.30 | $0.00 | $0.00 | $2.60 | $0.00 |
| 2024 | 24997 | SD50 - SCHOOL DIST #50 | $42.12 | $42.11 | $0.00 | $0.00 | $84.23 | $0.00 |
| 2024 | 24997 | FD1 - FIRE DISTRICT #1 | $29.46 | $29.45 | $0.00 | $0.00 | $58.91 | $0.00 |
| 2024 | 24997 | EMS1 - FIRE DIST #1 EMS | $11.25 | $11.25 | $0.00 | $0.00 | $22.50 | $0.00 |
| 2024 | 24997 | FP - DNR Forest Fire Protection Assmt | $8.50 | $8.50 | $0.00 | $0.00 | $17.00 | $0.00 |
| 2024 | 24997 | FPLCA - DNR Landowner Contingency Assmt | $3.00 | $3.00 | $0.00 | $0.00 | $6.00 | $0.00 |
| 2024 | 24997 | JCCD - JC Conservation District | $2.53 | $2.53 | $0.00 | $0.00 | $5.06 | $0.00 |
| 2024 | 24997 | NWA - Noxious Weed Assessment | $2.15 | $2.15 | $0.00 | $0.00 | $4.30 | $0.00 |
| 2024 | 24997 | WAT - Clean Water District | $12.50 | $12.50 | $0.00 | $0.00 | $25.00 | $0.00 |
| 2024 | 24997 | FP ADMIN - FP ADMIN | $0.50 | $0.00 | $0.00 | $0.00 | $0.50 | $0.00 |
| 2024 | 24997 | TOTAL: | $223.87 | $223.27 | $0.00 | $0.00 | $447.14 | $0.00 |
|
| 2024 | 24997 | $223.87 | $223.27 | $0.00 | $0.00 | $447.14 | $0.00 |
Statement Details |
| 2023 | 25036 | STATE - STATE LEVY (SCHOOL) | $52.97 | $52.97 | $0.00 | $0.00 | $105.94 | $0.00 |
| 2023 | 25036 | COUNTY - COUNTY LEVIES (CE, DD, VET, MH) | $23.12 | $23.11 | $0.00 | $0.00 | $46.23 | $0.00 |
| 2023 | 25036 | CONSERVE - CONSERVATION FUTURES | $0.70 | $0.69 | $0.00 | $0.00 | $1.39 | $0.00 |
| 2023 | 25036 | COROADS - COUNTY ROADS (ROADS, DIV TO CE) | $18.71 | $18.70 | $0.00 | $0.00 | $37.41 | $0.00 |
| 2023 | 25036 | PORTPT - PORT DISTRICT | $9.75 | $9.73 | $0.00 | $0.00 | $19.48 | $0.00 |
| 2023 | 25036 | PUD1 - PUD #1 | $1.53 | $1.53 | $0.00 | $0.00 | $3.06 | $0.00 |
| 2023 | 25036 | LIB1 - LIBRARY DIST #1 | $7.24 | $7.23 | $0.00 | $0.00 | $14.47 | $0.00 |
| 2023 | 25036 | HD2 - HOSP DIST #2 | $1.36 | $1.34 | $0.00 | $0.00 | $2.70 | $0.00 |
| 2023 | 25036 | SD50 - SCHOOL DIST #50 | $42.04 | $42.02 | $0.00 | $0.00 | $84.06 | $0.00 |
| 2023 | 25036 | FD1 - FIRE DISTRICT #1 | $19.04 | $19.04 | $0.00 | $0.00 | $38.08 | $0.00 |
| 2023 | 25036 | EMS1 - FIRE DIST #1 EMS | $8.10 | $8.10 | $0.00 | $0.00 | $16.20 | $0.00 |
| 2023 | 25036 | FP - DNR Forest Fire Protection Assmt | $8.50 | $8.50 | $0.00 | $0.00 | $17.00 | $0.00 |
| 2023 | 25036 | FPLCA - DNR Landowner Contingency Assmt | $3.00 | $3.00 | $0.00 | $0.00 | $6.00 | $0.00 |
| 2023 | 25036 | JCCD - JC Conservation District | $2.53 | $2.53 | $0.00 | $0.00 | $5.06 | $0.00 |
| 2023 | 25036 | NWA - Noxious Weed Assessment | $2.15 | $2.15 | $0.00 | $0.00 | $4.30 | $0.00 |
| 2023 | 25036 | WAT - Clean Water District | $12.00 | $12.00 | $0.00 | $0.00 | $24.00 | $0.00 |
| 2023 | 25036 | FP ADMIN - FP ADMIN | $0.50 | $0.00 | $0.00 | $0.00 | $0.50 | $0.00 |
| 2023 | 25036 | TOTAL: | $213.24 | $212.64 | $0.00 | $0.00 | $425.88 | $0.00 |
|
| 2023 | 25036 | $213.24 | $212.64 | $0.00 | $0.00 | $425.88 | $0.00 |
Values
| (+) Improvement Homesite Value: | + | $0 | |
| (+) Improvement Non-Homesite Value: | + | $0 | |
| (+) Land Homesite Value: | + | $0 | |
| (+) Land Non-Homesite Value: | + | $45,000 | |
| (+) Curr Use (HS): | + | $0 | $0 |
| (+) Curr Use (NHS): | + | $0 | $0 |
| | | -------------------------- | |
| (=) Market Value: | = | $45,000 | |
| (–) Productivity Loss: | – | $0 | |
| | | -------------------------- | |
| (=) Subtotal: | = | $45,000 | |
| (+) Senior Appraised Value: | + | $0 | |
| (+) Non-Senior Appraised Value: | + | $45,000 | |
| | | -------------------------- | |
| (=) Total Appraised Value: | = | $45,000 | |
| (–) Senior Exemption Loss: | – | $0 | |
| (–) Exemption Loss: | – | $0 | |
| | | -------------------------- | |
| (=) Taxable Value: | = | $45,000 | |
Taxing Jurisdiction
| Owner: | DEBORAH J & DAVID F THOMSON | | |
| % Ownership: | 100.0000000000% | | |
| Total Value: | $45,000 | | |
| Tax Area: | 0111 - 1-50F1E1H2L1 |
| CE | COUNTY CURRENT EXPENSE | 0.9034619479 | $45,000 | $45,000 | $40.66 | | |
| CNTYDD | DEVELOPMENTAL DISABILITIES | 0.0052121823 | $45,000 | $45,000 | $0.23 | | |
| CNTYVET | VETERANS RELIEF | 0.0052777810 | $45,000 | $45,000 | $0.24 | | |
| MENTAL | MENTAL HEALTH | 0.0052121823 | $45,000 | $45,000 | $0.23 | | |
| ROADS | COUNTY ROADS | 0.7415066410 | $45,000 | $45,000 | $33.37 | | |
| ROADSCU | COUNTY ROADS TO CUR EXP | 0.0000000000 | $45,000 | $45,000 | $0.00 | | |
| HOSP2CASH | HOSP DIST #2 GENERAL | 0.0536075306 | $45,000 | $45,000 | $2.41 | | |
| SCH50BOND | SCHOOL DIST #50 BOND 2016 | 0.5377451389 | $45,000 | $45,000 | $24.20 | | |
| SCH50CP | SCHOOL DIST #50 CAP PROJ | 0.4573475088 | $45,000 | $45,000 | $20.58 | | |
| SCH50MO | SCHOOL DIST #50 EP & O | 0.8262822886 | $45,000 | $45,000 | $37.18 | | |
| CONSERVE | CONSERVATION FUTURES | 0.0275621078 | $45,000 | $45,000 | $1.24 | | |
| EMS1 | FIRE DIST #1 EMS | 0.4679948282 | $45,000 | $45,000 | $21.06 | | |
| FD1 | FIRE DIST #1 GENERAL | 1.2171942929 | $45,000 | $45,000 | $54.77 | | |
| LIB1 | LIBRARY DIST #1 GENERAL | 0.2868827388 | $45,000 | $45,000 | $12.91 | | |
| PORTPT | PORT OF PT GENERAL | 0.1134941229 | $45,000 | $45,000 | $5.11 | | |
| PORTPTIDD | PORT OF PT IDD 2019 | 0.2577346692 | $45,000 | $45,000 | $11.60 | | |
| PUD1 | PUD #1 GENERAL | 0.0597888892 | $45,000 | $45,000 | $2.69 | | |
| STATE | STATE SCHOOL PART 1 | 1.4940692947 | $45,000 | $45,000 | $67.23 | | |
| STATE2 | STATE SCHOOL PART 2 | 0.8050170049 | $45,000 | $45,000 | $36.23 | | |
| | Total Tax Rate: | 8.2653911500 | | | | | |
| | | | | Taxes w/Current Exemptions: | $371.94 | | |
| | | | | Taxes w/o Exemptions: | $371.94 | | |
Improvement / Building
Sketch
| No sketches available for this property. |
Property Image
Land
| 1 | 5560-1157L | | 0.0000 | 0.00 | 0.00 | 0.00 | 1.00 | $45,000 | $0 |
Roll Value History
| 2026 | N/A | N/A | N/A | N/A | N/A |
| 2025 | $0 | $45,000 | $0 | $45,000 | $45,000 |
| 2024 | $0 | $47,250 | $0 | $47,250 | $47,250 |
| 2023 | $0 | $45,000 | $0 | $45,000 | $45,000 |
| 2022 | $0 | $45,000 | $0 | $45,000 | $45,000 |
Deed and Sales History
| 1 | 02/11/2025 | SWD | Statutory Warranty Deed | ROGER A & ELIZABETH A LEE | DEBORAH J & DAVID F THOMSON | | | $825,000.00 | 143889 | |
|   | |
| 2 | 04/12/2024 | SWD | Statutory Warranty Deed | CRAY CONSTRUCTION LLC | ROGER A & ELIZABETH A LEE | | | $730,000.00 | 142502 | |
|   | |
| 3 | 10/14/2021 | QCD | Quit Claim Deed | ADAM & CHRISTINE CRAY | CRAY CONSTRUCTION LLC | | | | 137851 | |
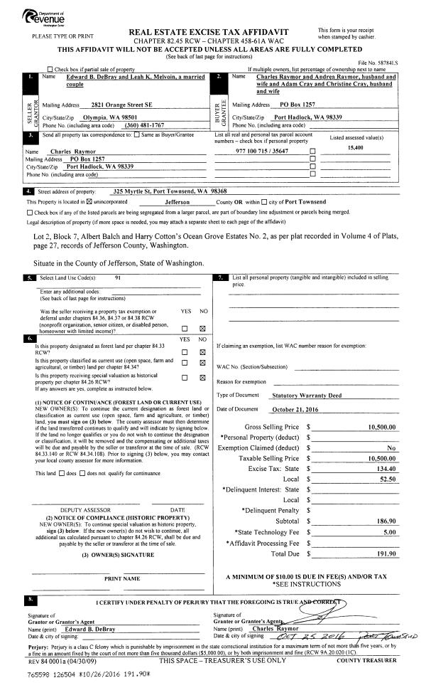
| 4 | 10/21/2016 | SWD | Statutory Warranty Deed | EDWARD B DEBRAY | ADAM & CHRISTINE CRAY | | | $10,500.00 | 126504 | |
| 5 | 03/23/2015 | QCD | Quit Claim Deed | AGNES D DE BRA | EDWARD B DEBRAY | | | | 123022 | |
| 6 | 04/21/2004 | SWD | Statutory Warranty Deed | MOUGEL-FUJITA, GILES/JEAN | DEBRA, AGNES D | 0 | 0 | $35,000.00 | 100076 | 0 |
|   | |
| 7 | 04/21/2004 | QCD | Quit Claim Deed | DEBRA, DON WILLIAM/AGNES | DEBRA, AGNES D | 0 | 0 | $0.00 | 100077 | 0 |
| 8 | 01/09/1998 | SWD | Statutory Warranty Deed | OCEAN GROVE TRUST | MOUGEL, GILLES/JEANNETTE | 0 | 0 | $14,000.00 | 83619 | 0 |
|   | |
Payout Agreement
| No payout information available.. |