Property
Account |
| Property ID: | 35668 | Abbreviated Legal Description: | OCEAN GROVE ESTATES #2 BLK 8 LOT 45 |
| Parcel # / Geo ID: | 977100809 | Agent Code: | |
| Type: | Real | | |
| Tax Area: | 0111 - 1-50F1E1H2L1 | Land Use Code | 11 |
| Open Space: | N | DFL | N |
| Historic Property: | N | Remodel Property: | N |
| Multi-Family Redevelopment: | N | | |
| Township: | 30N | Section: | 24 |
| Range: | 2W |
Location |
| Address: | | Mapsco: | 061/043 |
| Neighborhood: | OCEANGROVE | Map ID: | |
| Neighborhood CD: | 5560 |
Owner |
| Name: | NATHAN & KIMBERLY L A O'NEIL | Owner ID: | 111262 |
| Mailing Address: | 41 KRUSE ST PORT TOWNSEND, WA 98368-8860 | % Ownership: | 100.0000000000% |
| | | Exemptions: | |
Pay Tax Due
Select the appropriate checkbox next to the year to be paid. Multiple years may be selected.
*Convenience Fee not included
Taxes and Assessment Details
Property Tax Information as of
03/12/2026
Click on "Statement Details" to expand or collapse a tax statement.
* Please enter a valid date ** Please enter a valid date *
Statement Details |
| 2026 | 24904 | STATE - STATE LEVY (SCHOOL) | $861.64 | $861.64 | $0.00 | $0.00 | $0.00 | $1723.28 |
| 2026 | 24904 | COUNTY - COUNTY LEVIES (CE, DD, VET, MH) | $344.50 | $344.47 | $0.00 | $0.00 | $0.00 | $688.97 |
| 2026 | 24904 | CONSERVE - CONSERVATION FUTURES | $10.33 | $10.33 | $0.00 | $0.00 | $0.00 | $20.66 |
| 2026 | 24904 | COROADS - COUNTY ROADS (ROADS, DIV TO CE) | $277.90 | $277.90 | $0.00 | $0.00 | $0.00 | $555.80 |
| 2026 | 24904 | PORTPT - PORT DISTRICT | $139.14 | $139.12 | $0.00 | $0.00 | $0.00 | $278.26 |
| 2026 | 24904 | PUD1 - PUD #1 | $22.41 | $22.40 | $0.00 | $0.00 | $0.00 | $44.81 |
| 2026 | 24904 | LIB1 - LIBRARY DIST #1 | $107.52 | $107.51 | $0.00 | $0.00 | $0.00 | $215.03 |
| 2026 | 24904 | HD2 - HOSP DIST #2 | $20.09 | $20.09 | $0.00 | $0.00 | $0.00 | $40.18 |
| 2026 | 24904 | SD50 - SCHOOL DIST #50 | $682.62 | $682.60 | $0.00 | $0.00 | $0.00 | $1365.22 |
| 2026 | 24904 | FD1 - FIRE DISTRICT #1 | $456.18 | $456.17 | $0.00 | $0.00 | $0.00 | $912.35 |
| 2026 | 24904 | EMS1 - FIRE DIST #1 EMS | $175.40 | $175.39 | $0.00 | $0.00 | $0.00 | $350.79 |
| 2026 | 24904 | FP - DNR Forest Fire Protection Assmt | $8.50 | $8.50 | $0.00 | $0.00 | $0.00 | $17.00 |
| 2026 | 24904 | FPLCA - DNR Landowner Contingency Assmt | $3.00 | $3.00 | $0.00 | $0.00 | $0.00 | $6.00 |
| 2026 | 24904 | JCCD - JC Conservation District | $2.55 | $2.55 | $0.00 | $0.00 | $0.00 | $5.10 |
| 2026 | 24904 | NWA - Noxious Weed Assessment | $2.98 | $2.97 | $0.00 | $0.00 | $0.00 | $5.95 |
| 2026 | 24904 | WAT - Clean Water District | $13.00 | $13.00 | $0.00 | $0.00 | $0.00 | $26.00 |
| 2026 | 24904 | FP ADMIN - FP ADMIN | $0.50 | $0.00 | $0.00 | $0.00 | $0.00 | $0.50 |
| 2026 | 24904 | TOTAL: | $3128.26 | $3127.64 | $0.00 | $0.00 | $0.00 | $6255.90 |
|
| 2026 | 24904 | $3128.26 | $3127.64 | $0.00 | $0.00 | $0.00 | $6255.90 |
Statement Details |
| 2025 | 24972 | STATE - STATE LEVY (SCHOOL) | $941.82 | $941.82 | $0.00 | $0.00 | $1883.64 | $0.00 |
| 2025 | 24972 | COUNTY - COUNTY LEVIES (CE, DD, VET, MH) | $370.37 | $370.35 | $0.00 | $0.00 | $740.72 | $0.00 |
| 2025 | 24972 | CONSERVE - CONSERVATION FUTURES | $11.11 | $11.10 | $0.00 | $0.00 | $22.21 | $0.00 |
| 2025 | 24972 | COROADS - COUNTY ROADS (ROADS, DIV TO CE) | $296.72 | $296.72 | $0.00 | $0.00 | $593.44 | $0.00 |
| 2025 | 24972 | PORTPT - PORT DISTRICT | $151.13 | $151.13 | $0.00 | $0.00 | $302.26 | $0.00 |
| 2025 | 24972 | PUD1 - PUD #1 | $24.24 | $24.23 | $0.00 | $0.00 | $48.47 | $0.00 |
| 2025 | 24972 | LIB1 - LIBRARY DIST #1 | $114.80 | $114.80 | $0.00 | $0.00 | $229.60 | $0.00 |
| 2025 | 24972 | HD2 - HOSP DIST #2 | $21.61 | $21.61 | $0.00 | $0.00 | $43.22 | $0.00 |
| 2025 | 24972 | SD50 - SCHOOL DIST #50 | $688.32 | $688.31 | $0.00 | $0.00 | $1376.63 | $0.00 |
| 2025 | 24972 | FD1 - FIRE DISTRICT #1 | $488.74 | $488.73 | $0.00 | $0.00 | $977.47 | $0.00 |
| 2025 | 24972 | EMS1 - FIRE DIST #1 EMS | $187.98 | $187.98 | $0.00 | $0.00 | $375.96 | $0.00 |
| 2025 | 24972 | FP - DNR Forest Fire Protection Assmt | $8.50 | $8.50 | $0.00 | $0.00 | $17.00 | $0.00 |
| 2025 | 24972 | FPLCA - DNR Landowner Contingency Assmt | $3.00 | $3.00 | $0.00 | $0.00 | $6.00 | $0.00 |
| 2025 | 24972 | JCCD - JC Conservation District | $2.55 | $2.55 | $0.00 | $0.00 | $5.10 | $0.00 |
| 2025 | 24972 | NWA - Noxious Weed Assessment | $2.15 | $2.15 | $0.00 | $0.00 | $4.30 | $0.00 |
| 2025 | 24972 | WAT - Clean Water District | $13.00 | $13.00 | $0.00 | $0.00 | $26.00 | $0.00 |
| 2025 | 24972 | FP ADMIN - FP ADMIN | $0.50 | $0.00 | $0.00 | $0.00 | $0.50 | $0.00 |
| 2025 | 24972 | TOTAL: | $3326.54 | $3325.98 | $0.00 | $0.00 | $6652.52 | $0.00 |
|
| 2025 | 24972 | $3326.54 | $3325.98 | $0.00 | $0.00 | $6652.52 | $0.00 |
Statement Details |
| 2024 | 25018 | STATE - STATE LEVY (SCHOOL) | $1110.06 | $1110.05 | $0.00 | $0.00 | $2220.11 | $0.00 |
| 2024 | 25018 | COUNTY - COUNTY LEVIES (CE, DD, VET, MH) | $475.01 | $474.99 | $0.00 | $0.00 | $950.00 | $0.00 |
| 2024 | 25018 | CONSERVE - CONSERVATION FUTURES | $14.25 | $14.24 | $0.00 | $0.00 | $28.49 | $0.00 |
| 2024 | 25018 | COROADS - COUNTY ROADS (ROADS, DIV TO CE) | $382.23 | $382.22 | $0.00 | $0.00 | $764.45 | $0.00 |
| 2024 | 25018 | PORTPT - PORT DISTRICT | $196.20 | $196.19 | $0.00 | $0.00 | $392.39 | $0.00 |
| 2024 | 25018 | PUD1 - PUD #1 | $31.20 | $31.20 | $0.00 | $0.00 | $62.40 | $0.00 |
| 2024 | 25018 | LIB1 - LIBRARY DIST #1 | $147.88 | $147.88 | $0.00 | $0.00 | $295.76 | $0.00 |
| 2024 | 25018 | HD2 - HOSP DIST #2 | $27.72 | $27.71 | $0.00 | $0.00 | $55.43 | $0.00 |
| 2024 | 25018 | SD50 - SCHOOL DIST #50 | $898.10 | $898.08 | $0.00 | $0.00 | $1796.18 | $0.00 |
| 2024 | 25018 | FD1 - FIRE DISTRICT #1 | $628.07 | $628.07 | $0.00 | $0.00 | $1256.14 | $0.00 |
| 2024 | 25018 | EMS1 - FIRE DIST #1 EMS | $239.90 | $239.90 | $0.00 | $0.00 | $479.80 | $0.00 |
| 2024 | 25018 | FP - DNR Forest Fire Protection Assmt | $8.50 | $8.50 | $0.00 | $0.00 | $17.00 | $0.00 |
| 2024 | 25018 | FPLCA - DNR Landowner Contingency Assmt | $3.00 | $3.00 | $0.00 | $0.00 | $6.00 | $0.00 |
| 2024 | 25018 | JCCD - JC Conservation District | $2.55 | $2.55 | $0.00 | $0.00 | $5.10 | $0.00 |
| 2024 | 25018 | NWA - Noxious Weed Assessment | $2.15 | $2.15 | $0.00 | $0.00 | $4.30 | $0.00 |
| 2024 | 25018 | WAT - Clean Water District | $12.50 | $12.50 | $0.00 | $0.00 | $25.00 | $0.00 |
| 2024 | 25018 | FP ADMIN - FP ADMIN | $0.50 | $0.00 | $0.00 | $0.00 | $0.50 | $0.00 |
| 2024 | 25018 | TOTAL: | $4179.82 | $4179.23 | $0.00 | $0.00 | $8359.05 | $0.00 |
|
| 2024 | 25018 | $4179.82 | $4179.23 | $0.00 | $0.00 | $8359.05 | $0.00 |
Statement Details |
| 2023 | 25057 | STATE - STATE LEVY (SCHOOL) | $1123.64 | $1123.63 | $0.00 | $0.00 | $2247.27 | $0.00 |
| 2023 | 25057 | COUNTY - COUNTY LEVIES (CE, DD, VET, MH) | $490.34 | $490.31 | $0.00 | $0.00 | $980.65 | $0.00 |
| 2023 | 25057 | CONSERVE - CONSERVATION FUTURES | $14.71 | $14.70 | $0.00 | $0.00 | $29.41 | $0.00 |
| 2023 | 25057 | COROADS - COUNTY ROADS (ROADS, DIV TO CE) | $396.71 | $396.70 | $0.00 | $0.00 | $793.41 | $0.00 |
| 2023 | 25057 | PORTPT - PORT DISTRICT | $206.55 | $206.54 | $0.00 | $0.00 | $413.09 | $0.00 |
| 2023 | 25057 | PUD1 - PUD #1 | $32.50 | $32.50 | $0.00 | $0.00 | $65.00 | $0.00 |
| 2023 | 25057 | LIB1 - LIBRARY DIST #1 | $153.48 | $153.48 | $0.00 | $0.00 | $306.96 | $0.00 |
| 2023 | 25057 | HD2 - HOSP DIST #2 | $28.61 | $28.61 | $0.00 | $0.00 | $57.22 | $0.00 |
| 2023 | 25057 | SD50 - SCHOOL DIST #50 | $891.64 | $891.61 | $0.00 | $0.00 | $1783.25 | $0.00 |
| 2023 | 25057 | FD1 - FIRE DISTRICT #1 | $403.93 | $403.92 | $0.00 | $0.00 | $807.85 | $0.00 |
| 2023 | 25057 | EMS1 - FIRE DIST #1 EMS | $171.82 | $171.82 | $0.00 | $0.00 | $343.64 | $0.00 |
| 2023 | 25057 | FP - DNR Forest Fire Protection Assmt | $8.50 | $8.50 | $0.00 | $0.00 | $17.00 | $0.00 |
| 2023 | 25057 | FPLCA - DNR Landowner Contingency Assmt | $3.00 | $3.00 | $0.00 | $0.00 | $6.00 | $0.00 |
| 2023 | 25057 | JCCD - JC Conservation District | $2.55 | $2.55 | $0.00 | $0.00 | $5.10 | $0.00 |
| 2023 | 25057 | NWA - Noxious Weed Assessment | $2.15 | $2.15 | $0.00 | $0.00 | $4.30 | $0.00 |
| 2023 | 25057 | WAT - Clean Water District | $12.00 | $12.00 | $0.00 | $0.00 | $24.00 | $0.00 |
| 2023 | 25057 | FP ADMIN - FP ADMIN | $0.50 | $0.00 | $0.00 | $0.00 | $0.50 | $0.00 |
| 2023 | 25057 | TOTAL: | $3942.63 | $3942.02 | $0.00 | $0.00 | $7884.65 | $0.00 |
|
| 2023 | 25057 | $3942.63 | $3942.02 | $0.00 | $0.00 | $7884.65 | $0.00 |
Values
| (+) Improvement Homesite Value: | + | $0 | |
| (+) Improvement Non-Homesite Value: | + | $644,552 | |
| (+) Land Homesite Value: | + | $0 | |
| (+) Land Non-Homesite Value: | + | $105,000 | |
| (+) Curr Use (HS): | + | $0 | $0 |
| (+) Curr Use (NHS): | + | $0 | $0 |
| | | -------------------------- | |
| (=) Market Value: | = | $749,552 | |
| (–) Productivity Loss: | – | $0 | |
| | | -------------------------- | |
| (=) Subtotal: | = | $749,552 | |
| (+) Senior Appraised Value: | + | $0 | |
| (+) Non-Senior Appraised Value: | + | $749,552 | |
| | | -------------------------- | |
| (=) Total Appraised Value: | = | $749,552 | |
| (–) Senior Exemption Loss: | – | $0 | |
| (–) Exemption Loss: | – | $0 | |
| | | -------------------------- | |
| (=) Taxable Value: | = | $749,552 | |
Taxing Jurisdiction
| Owner: | NATHAN & KIMBERLY L A O'NEIL | | |
| % Ownership: | 100.0000000000% | | |
| Total Value: | $749,552 | | |
| Tax Area: | 0111 - 1-50F1E1H2L1 |
| CE | COUNTY CURRENT EXPENSE | 0.9034619479 | $749,552 | $749,552 | $677.19 | | |
| CNTYDD | DEVELOPMENTAL DISABILITIES | 0.0052121823 | $749,552 | $749,552 | $3.91 | | |
| CNTYVET | VETERANS RELIEF | 0.0052777810 | $749,552 | $749,552 | $3.96 | | |
| MENTAL | MENTAL HEALTH | 0.0052121823 | $749,552 | $749,552 | $3.91 | | |
| ROADS | COUNTY ROADS | 0.7415066410 | $749,552 | $749,552 | $555.80 | | |
| ROADSCU | COUNTY ROADS TO CUR EXP | 0.0000000000 | $749,552 | $749,552 | $0.00 | | |
| HOSP2CASH | HOSP DIST #2 GENERAL | 0.0536075306 | $749,552 | $749,552 | $40.18 | | |
| SCH50BOND | SCHOOL DIST #50 BOND 2016 | 0.5377451389 | $749,552 | $749,552 | $403.07 | | |
| SCH50CP | SCHOOL DIST #50 CAP PROJ | 0.4573475088 | $749,552 | $749,552 | $342.81 | | |
| SCH50MO | SCHOOL DIST #50 EP & O | 0.8262822886 | $749,552 | $749,552 | $619.34 | | |
| CONSERVE | CONSERVATION FUTURES | 0.0275621078 | $749,552 | $749,552 | $20.66 | | |
| EMS1 | FIRE DIST #1 EMS | 0.4679948282 | $749,552 | $749,552 | $350.79 | | |
| FD1 | FIRE DIST #1 GENERAL | 1.2171942929 | $749,552 | $749,552 | $912.35 | | |
| LIB1 | LIBRARY DIST #1 GENERAL | 0.2868827388 | $749,552 | $749,552 | $215.03 | | |
| PORTPT | PORT OF PT GENERAL | 0.1134941229 | $749,552 | $749,552 | $85.07 | | |
| PORTPTIDD | PORT OF PT IDD 2019 | 0.2577346692 | $749,552 | $749,552 | $193.19 | | |
| PUD1 | PUD #1 GENERAL | 0.0597888892 | $749,552 | $749,552 | $44.81 | | |
| STATE | STATE SCHOOL PART 1 | 1.4940692947 | $749,552 | $749,552 | $1,119.88 | | |
| STATE2 | STATE SCHOOL PART 2 | 0.8050170049 | $749,552 | $749,552 | $603.40 | | |
| | Total Tax Rate: | 8.2653911500 | | | | | |
| | | | | Taxes w/Current Exemptions: | $6,195.35 | | |
| | | | | Taxes w/o Exemptions: | $6,195.35 | | |
Improvement / Building
| Improvement #1: | Residential Bldg | State Code: | 11 | 2191.0 sqft | Value: | $644,552 |
| Bathrooms (#): | 2 (FULL) | Bedrooms (#): | 2 | | Exterior Wall: | SI/ST | Fireplace: | SIN 2-GOOD | | Floor Construction: | FRAME | Foundation: | CONPR | | Heating/Cooling: | F/A | Roof Cover: | COMP |
|
| | Type | Description | Class CD | Sub Class CD | Year Built | Area |
| | MA | Main Area | 5 | 1S | 2003 | 1715.0 |
| | MA2 | Second Floor Main Area | 5 | 1S | 2003 | 476.0 |
| | HWPOR | House Wood Porch | 5 | * | 2003 | 578.0 |
| | HDECK | House Deck | 5 | * | 2003 | 144.0 |
| | GATT | House Attached Garage | 5 | 1S | 2003 | 700.0 |
| | CONCD | Concrete Drive | 5 | * | 2003 | 1000.0 |
Sketch
Property Image
Land
| 1 | 5560-1155L | | 0.0000 | 0.00 | 0.00 | 0.00 | 1.00 | $105,000 | $0 |
Roll Value History
| 2026 | N/A | N/A | N/A | N/A | N/A |
| 2025 | $644,552 | $105,000 | $0 | $749,552 | $749,552 |
| 2024 | $675,245 | $110,250 | $0 | $785,495 | $785,495 |
| 2023 | $859,595 | $100,000 | $0 | $959,595 | $959,595 |
| 2022 | $859,595 | $95,000 | $0 | $954,595 | $954,595 |
Deed and Sales History
| 1 | 08/06/2024 | SWD | Statutory Warranty Deed | CHARLES & MICHELLE STAEDLER | NATHAN & KIMBERLY L A O'NEIL | | | $899,000.00 | 143035 | |
|   | |
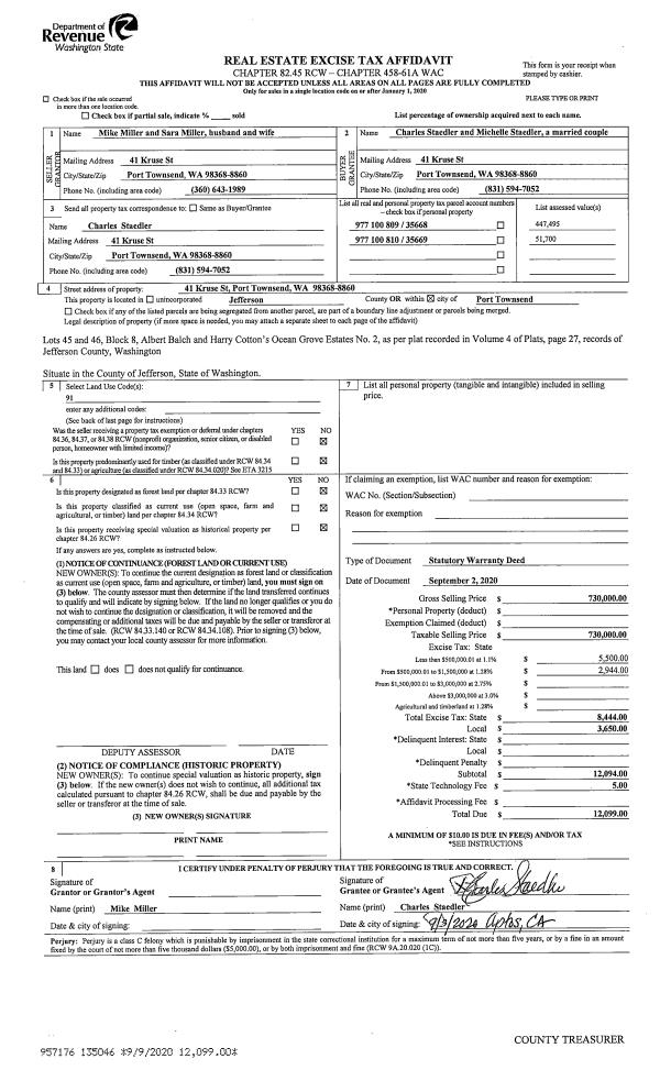
| 2 | 09/02/2020 | SWD | Statutory Warranty Deed | MIKE MILLER | CHARLES & MICHELLE STAEDLER | | | $730,000.00 | 135046 | |
|   | |
| 3 | 11/10/2011 | SWD | Statutory Warranty Deed | LISKE JR, RICHARD A/KELLY | MILLER, MIKE/SARA | 0 | 0 | $0.00 | 116788 | 0 |
| 4 | 11/12/1999 | SWD | Statutory Warranty Deed | HAFNER, HAROLD D | LISKE, RICHARD A JR & KELLY A | 0 | 0 | $12,500.00 | 88347 | 0 |
Payout Agreement
| No payout information available.. |