Property
Account |
| Property ID: | 35692 | Abbreviated Legal Description: | OCEAN GROVE ESTATES #2 BLK 8 LOT 33 |
| Parcel # / Geo ID: | 977100835 | Agent Code: | |
| Type: | Real | | |
| Tax Area: | 0111 - 1-50F1E1H2L1 | Land Use Code | 11 |
| Open Space: | N | DFL | N |
| Historic Property: | N | Remodel Property: | N |
| Multi-Family Redevelopment: | N | | |
| Township: | 30N | Section: | 24 |
| Range: | 2W |
Location |
| Address: | 340 HUNTINGFORD ST PORT TOWNSEND, WA 98368 | Mapsco: | 061/031 |
| Neighborhood: | OCEANGROVE | Map ID: | |
| Neighborhood CD: | 5560 |
Owner |
| Name: | PAMELA R ATOR | Owner ID: | 107341 |
| Mailing Address: | 56 BAYVIEW LN PORT TOWNSEND, WA 98368-9617 | % Ownership: | 100.0000000000% |
| | | Exemptions: | |
Pay Tax Due
Select the appropriate checkbox next to the year to be paid. Multiple years may be selected.
*Convenience Fee not included
Taxes and Assessment Details
Property Tax Information as of
03/12/2026
Click on "Statement Details" to expand or collapse a tax statement.
* Please enter a valid date ** Please enter a valid date *
Statement Details |
| 2026 | 24928 | STATE - STATE LEVY (SCHOOL) | $731.01 | $731.01 | $0.00 | $0.00 | $0.00 | $1462.02 |
| 2026 | 24928 | COUNTY - COUNTY LEVIES (CE, DD, VET, MH) | $292.26 | $292.24 | $0.00 | $0.00 | $0.00 | $584.50 |
| 2026 | 24928 | CONSERVE - CONSERVATION FUTURES | $8.77 | $8.76 | $0.00 | $0.00 | $0.00 | $17.53 |
| 2026 | 24928 | COROADS - COUNTY ROADS (ROADS, DIV TO CE) | $235.77 | $235.76 | $0.00 | $0.00 | $0.00 | $471.53 |
| 2026 | 24928 | PORTPT - PORT DISTRICT | $118.04 | $118.03 | $0.00 | $0.00 | $0.00 | $236.07 |
| 2026 | 24928 | PUD1 - PUD #1 | $19.01 | $19.01 | $0.00 | $0.00 | $0.00 | $38.02 |
| 2026 | 24928 | LIB1 - LIBRARY DIST #1 | $91.22 | $91.21 | $0.00 | $0.00 | $0.00 | $182.43 |
| 2026 | 24928 | HD2 - HOSP DIST #2 | $17.05 | $17.04 | $0.00 | $0.00 | $0.00 | $34.09 |
| 2026 | 24928 | SD50 - SCHOOL DIST #50 | $579.12 | $579.11 | $0.00 | $0.00 | $0.00 | $1158.23 |
| 2026 | 24928 | FD1 - FIRE DISTRICT #1 | $387.02 | $387.01 | $0.00 | $0.00 | $0.00 | $774.03 |
| 2026 | 24928 | EMS1 - FIRE DIST #1 EMS | $148.80 | $148.80 | $0.00 | $0.00 | $0.00 | $297.60 |
| 2026 | 24928 | FP - DNR Forest Fire Protection Assmt | $8.50 | $8.50 | $0.00 | $0.00 | $0.00 | $17.00 |
| 2026 | 24928 | FPLCA - DNR Landowner Contingency Assmt | $3.00 | $3.00 | $0.00 | $0.00 | $0.00 | $6.00 |
| 2026 | 24928 | JCCD - JC Conservation District | $2.55 | $2.55 | $0.00 | $0.00 | $0.00 | $5.10 |
| 2026 | 24928 | NWA - Noxious Weed Assessment | $2.98 | $2.97 | $0.00 | $0.00 | $0.00 | $5.95 |
| 2026 | 24928 | OSS - On Site Septic | $23.10 | $23.10 | $0.00 | $0.00 | $0.00 | $46.20 |
| 2026 | 24928 | WAT - Clean Water District | $13.00 | $13.00 | $0.00 | $0.00 | $0.00 | $26.00 |
| 2026 | 24928 | FP ADMIN - FP ADMIN | $0.50 | $0.00 | $0.00 | $0.00 | $0.00 | $0.50 |
| 2026 | 24928 | TOTAL: | $2681.70 | $2681.10 | $0.00 | $0.00 | $0.00 | $5362.80 |
|
| 2026 | 24928 | $2681.70 | $2681.10 | $0.00 | $0.00 | $0.00 | $5362.80 |
Statement Details |
| 2025 | 24996 | STATE - STATE LEVY (SCHOOL) | $798.98 | $798.98 | $0.00 | $0.00 | $1597.96 | $0.00 |
| 2025 | 24996 | COUNTY - COUNTY LEVIES (CE, DD, VET, MH) | $314.20 | $314.19 | $0.00 | $0.00 | $628.39 | $0.00 |
| 2025 | 24996 | CONSERVE - CONSERVATION FUTURES | $9.42 | $9.42 | $0.00 | $0.00 | $18.84 | $0.00 |
| 2025 | 24996 | COROADS - COUNTY ROADS (ROADS, DIV TO CE) | $251.73 | $251.71 | $0.00 | $0.00 | $503.44 | $0.00 |
| 2025 | 24996 | PORTPT - PORT DISTRICT | $128.22 | $128.20 | $0.00 | $0.00 | $256.42 | $0.00 |
| 2025 | 24996 | PUD1 - PUD #1 | $20.56 | $20.56 | $0.00 | $0.00 | $41.12 | $0.00 |
| 2025 | 24996 | LIB1 - LIBRARY DIST #1 | $97.39 | $97.38 | $0.00 | $0.00 | $194.77 | $0.00 |
| 2025 | 24996 | HD2 - HOSP DIST #2 | $18.33 | $18.33 | $0.00 | $0.00 | $36.66 | $0.00 |
| 2025 | 24996 | SD50 - SCHOOL DIST #50 | $583.92 | $583.92 | $0.00 | $0.00 | $1167.84 | $0.00 |
| 2025 | 24996 | FD1 - FIRE DISTRICT #1 | $414.61 | $414.61 | $0.00 | $0.00 | $829.22 | $0.00 |
| 2025 | 24996 | EMS1 - FIRE DIST #1 EMS | $159.47 | $159.47 | $0.00 | $0.00 | $318.94 | $0.00 |
| 2025 | 24996 | FP - DNR Forest Fire Protection Assmt | $8.50 | $8.50 | $0.00 | $0.00 | $17.00 | $0.00 |
| 2025 | 24996 | FPLCA - DNR Landowner Contingency Assmt | $3.00 | $3.00 | $0.00 | $0.00 | $6.00 | $0.00 |
| 2025 | 24996 | JCCD - JC Conservation District | $2.55 | $2.55 | $0.00 | $0.00 | $5.10 | $0.00 |
| 2025 | 24996 | NWA - Noxious Weed Assessment | $2.15 | $2.15 | $0.00 | $0.00 | $4.30 | $0.00 |
| 2025 | 24996 | OSS - On Site Septic | $21.50 | $21.50 | $0.00 | $0.00 | $43.00 | $0.00 |
| 2025 | 24996 | WAT - Clean Water District | $13.00 | $13.00 | $0.00 | $0.00 | $26.00 | $0.00 |
| 2025 | 24996 | FP ADMIN - FP ADMIN | $0.50 | $0.00 | $0.00 | $0.00 | $0.50 | $0.00 |
| 2025 | 24996 | TOTAL: | $2848.03 | $2847.47 | $0.00 | $0.00 | $5695.50 | $0.00 |
|
| 2025 | 24996 | $2848.03 | $2847.47 | $0.00 | $0.00 | $5695.50 | $0.00 |
Statement Details |
| 2024 | 25042 | STATE - STATE LEVY (SCHOOL) | $713.20 | $713.19 | $0.00 | $0.00 | $1426.39 | $0.00 |
| 2024 | 25042 | COUNTY - COUNTY LEVIES (CE, DD, VET, MH) | $305.20 | $305.17 | $0.00 | $0.00 | $610.37 | $0.00 |
| 2024 | 25042 | CONSERVE - CONSERVATION FUTURES | $9.15 | $9.15 | $0.00 | $0.00 | $18.30 | $0.00 |
| 2024 | 25042 | COROADS - COUNTY ROADS (ROADS, DIV TO CE) | $245.58 | $245.56 | $0.00 | $0.00 | $491.14 | $0.00 |
| 2024 | 25042 | PORTPT - PORT DISTRICT | $126.06 | $126.05 | $0.00 | $0.00 | $252.11 | $0.00 |
| 2024 | 25042 | PUD1 - PUD #1 | $20.05 | $20.04 | $0.00 | $0.00 | $40.09 | $0.00 |
| 2024 | 25042 | LIB1 - LIBRARY DIST #1 | $95.01 | $95.01 | $0.00 | $0.00 | $190.02 | $0.00 |
| 2024 | 25042 | HD2 - HOSP DIST #2 | $17.81 | $17.80 | $0.00 | $0.00 | $35.61 | $0.00 |
| 2024 | 25042 | SD50 - SCHOOL DIST #50 | $577.02 | $577.00 | $0.00 | $0.00 | $1154.02 | $0.00 |
| 2024 | 25042 | FD1 - FIRE DISTRICT #1 | $403.53 | $403.52 | $0.00 | $0.00 | $807.05 | $0.00 |
| 2024 | 25042 | EMS1 - FIRE DIST #1 EMS | $154.13 | $154.13 | $0.00 | $0.00 | $308.26 | $0.00 |
| 2024 | 25042 | FP - DNR Forest Fire Protection Assmt | $8.50 | $8.50 | $0.00 | $0.00 | $17.00 | $0.00 |
| 2024 | 25042 | FPLCA - DNR Landowner Contingency Assmt | $3.00 | $3.00 | $0.00 | $0.00 | $6.00 | $0.00 |
| 2024 | 25042 | JCCD - JC Conservation District | $2.55 | $2.55 | $0.00 | $0.00 | $5.10 | $0.00 |
| 2024 | 25042 | NWA - Noxious Weed Assessment | $2.15 | $2.15 | $0.00 | $0.00 | $4.30 | $0.00 |
| 2024 | 25042 | OSS - On Site Septic | $21.00 | $21.00 | $0.00 | $0.00 | $42.00 | $0.00 |
| 2024 | 25042 | WAT - Clean Water District | $12.50 | $12.50 | $0.00 | $0.00 | $25.00 | $0.00 |
| 2024 | 25042 | FP ADMIN - FP ADMIN | $0.50 | $0.00 | $0.00 | $0.00 | $0.50 | $0.00 |
| 2024 | 25042 | TOTAL: | $2716.94 | $2716.32 | $0.00 | $0.00 | $5433.26 | $0.00 |
|
| 2024 | 25042 | $2716.94 | $2716.32 | $0.00 | $0.00 | $5433.26 | $0.00 |
Statement Details |
| 2023 | 25081 | STATE - STATE LEVY (SCHOOL) | $719.82 | $719.81 | $0.00 | $0.00 | $1439.63 | $0.00 |
| 2023 | 25081 | COUNTY - COUNTY LEVIES (CE, DD, VET, MH) | $314.12 | $314.09 | $0.00 | $0.00 | $628.21 | $0.00 |
| 2023 | 25081 | CONSERVE - CONSERVATION FUTURES | $9.42 | $9.42 | $0.00 | $0.00 | $18.84 | $0.00 |
| 2023 | 25081 | COROADS - COUNTY ROADS (ROADS, DIV TO CE) | $254.14 | $254.13 | $0.00 | $0.00 | $508.27 | $0.00 |
| 2023 | 25081 | PORTPT - PORT DISTRICT | $132.33 | $132.31 | $0.00 | $0.00 | $264.64 | $0.00 |
| 2023 | 25081 | PUD1 - PUD #1 | $20.82 | $20.82 | $0.00 | $0.00 | $41.64 | $0.00 |
| 2023 | 25081 | LIB1 - LIBRARY DIST #1 | $98.32 | $98.32 | $0.00 | $0.00 | $196.64 | $0.00 |
| 2023 | 25081 | HD2 - HOSP DIST #2 | $18.33 | $18.33 | $0.00 | $0.00 | $36.66 | $0.00 |
| 2023 | 25081 | SD50 - SCHOOL DIST #50 | $571.20 | $571.17 | $0.00 | $0.00 | $1142.37 | $0.00 |
| 2023 | 25081 | FD1 - FIRE DISTRICT #1 | $258.76 | $258.76 | $0.00 | $0.00 | $517.52 | $0.00 |
| 2023 | 25081 | EMS1 - FIRE DIST #1 EMS | $110.07 | $110.07 | $0.00 | $0.00 | $220.14 | $0.00 |
| 2023 | 25081 | FP - DNR Forest Fire Protection Assmt | $8.50 | $8.50 | $0.00 | $0.00 | $17.00 | $0.00 |
| 2023 | 25081 | FPLCA - DNR Landowner Contingency Assmt | $3.00 | $3.00 | $0.00 | $0.00 | $6.00 | $0.00 |
| 2023 | 25081 | JCCD - JC Conservation District | $2.55 | $2.55 | $0.00 | $0.00 | $5.10 | $0.00 |
| 2023 | 25081 | NWA - Noxious Weed Assessment | $2.15 | $2.15 | $0.00 | $0.00 | $4.30 | $0.00 |
| 2023 | 25081 | OSS - On Site Septic | $20.50 | $20.50 | $0.00 | $0.00 | $41.00 | $0.00 |
| 2023 | 25081 | WAT - Clean Water District | $12.00 | $12.00 | $0.00 | $0.00 | $24.00 | $0.00 |
| 2023 | 25081 | FP ADMIN - FP ADMIN | $0.50 | $0.00 | $0.00 | $0.00 | $0.50 | $0.00 |
| 2023 | 25081 | TOTAL: | $2556.53 | $2555.93 | $0.00 | $0.00 | $5112.46 | $0.00 |
|
| 2023 | 25081 | $2556.53 | $2555.93 | $0.00 | $0.00 | $5112.46 | $0.00 |
Values
| (+) Improvement Homesite Value: | + | $0 | |
| (+) Improvement Non-Homesite Value: | + | $565,913 | |
| (+) Land Homesite Value: | + | $0 | |
| (+) Land Non-Homesite Value: | + | $70,000 | |
| (+) Curr Use (HS): | + | $0 | $0 |
| (+) Curr Use (NHS): | + | $0 | $0 |
| | | -------------------------- | |
| (=) Market Value: | = | $635,913 | |
| (–) Productivity Loss: | – | $0 | |
| | | -------------------------- | |
| (=) Subtotal: | = | $635,913 | |
| (+) Senior Appraised Value: | + | $0 | |
| (+) Non-Senior Appraised Value: | + | $635,913 | |
| | | -------------------------- | |
| (=) Total Appraised Value: | = | $635,913 | |
| (–) Senior Exemption Loss: | – | $0 | |
| (–) Exemption Loss: | – | $0 | |
| | | -------------------------- | |
| (=) Taxable Value: | = | $635,913 | |
Taxing Jurisdiction
| Owner: | PAMELA R ATOR | | |
| % Ownership: | 100.0000000000% | | |
| Total Value: | N/A | | |
| Tax Area: | 0111 - 1-50F1E1H2L1 |
| CE | COUNTY CURRENT EXPENSE | N/A | N/A | N/A | N/A | | |
| CNTYDD | DEVELOPMENTAL DISABILITIES | N/A | N/A | N/A | N/A | | |
| CNTYVET | VETERANS RELIEF | N/A | N/A | N/A | N/A | | |
| MENTAL | MENTAL HEALTH | N/A | N/A | N/A | N/A | | |
| ROADS | COUNTY ROADS | N/A | N/A | N/A | N/A | | |
| HOSP2CASH | HOSP DIST #2 GENERAL | N/A | N/A | N/A | N/A | | |
| SCH50BOND | SCHOOL DIST #50 BOND 2016 | N/A | N/A | N/A | N/A | | |
| SCH50CP | SCHOOL DIST #50 CAP PROJ | N/A | N/A | N/A | N/A | | |
| SCH50MO | SCHOOL DIST #50 EP & O | N/A | N/A | N/A | N/A | | |
| CONSERVE | CONSERVATION FUTURES | N/A | N/A | N/A | N/A | | |
| EMS1 | FIRE DIST #1 EMS | N/A | N/A | N/A | N/A | | |
| FD1 | FIRE DIST #1 GENERAL | N/A | N/A | N/A | N/A | | |
| LIB1 | LIBRARY DIST #1 GENERAL | N/A | N/A | N/A | N/A | | |
| PORTPT | PORT OF PT GENERAL | N/A | N/A | N/A | N/A | | |
| PORTPTIDD | PORT OF PT IDD 2019 | N/A | N/A | N/A | N/A | | |
| PUD1 | PUD #1 GENERAL | N/A | N/A | N/A | N/A | | |
| STATE | STATE SCHOOL PART 1 | N/A | N/A | N/A | N/A | | |
| STATE2 | STATE SCHOOL PART 2 | N/A | N/A | N/A | N/A | | |
| | Total Tax Rate: | N/A | | | | | |
| | | | | Taxes w/Current Exemptions: | N/A | | |
| | | | | Taxes w/o Exemptions: | N/A | | |
Improvement / Building
| Improvement #1: | Residential Bldg | State Code: | 11 | 1723.0 sqft | Value: | $565,913 |
| Bathrooms (#): | 2 (FULL) | Bedrooms (#): | 2 | | Exterior Wall: | PL/T1 | Fireplace: | SIN 1-GOOD | | Floor Construction: | FRAME | Foundation: | CONPR | | Heating/Cooling: | HPUMP | Roof Cover: | COMP |
|
| | Type | Description | Class CD | Sub Class CD | Year Built | Area |
| | MA | Main Area | 5+ | 1S | 2021 | 1723.0 |
| | GATT | House Attached Garage | 5 | 1S | 2021 | 484.0 |
| | HWPOR | House Wood Porch | 5 | * | 2021 | 315.0 |
| | CONCD | Concrete Drive | 5 | 1S | 2021 | 1011.0 |
Sketch
Property Image
Land
| 1 | 5560-1185L | | 0.0000 | 0.00 | 0.00 | 0.00 | 1.00 | $70,000 | $0 |
Roll Value History
| 2026 | N/A | N/A | N/A | N/A | N/A |
| 2025 | $565,913 | $70,000 | $0 | $635,913 | $635,913 |
| 2024 | $592,862 | $73,500 | $0 | $666,362 | $666,362 |
| 2023 | $551,525 | $65,000 | $0 | $616,525 | $616,525 |
| 2022 | $551,525 | $60,000 | $0 | $611,525 | $611,525 |
Deed and Sales History
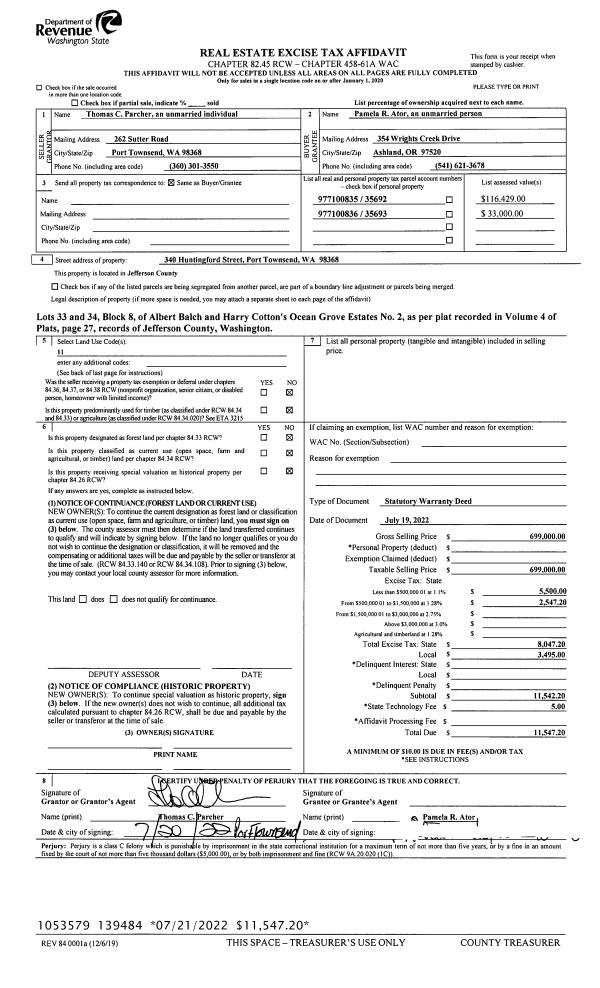
| 1 | 07/19/2022 | SWD | Statutory Warranty Deed | THOMAS C PARCHER | PAMELA R ATOR | | | $699,000.00 | 139484 | |
|   | |
| 2 | 01/19/2021 | QCD | Quit Claim Deed | KELLI S PARCHER | THOMAS C PARCHER | | | | 135946 | |
| 3 | 05/13/2021 | QCD | Quit Claim Deed | | | | | | 136722 | SEE NOTES |
| 4 | 09/04/2019 | SWD | Statutory Warranty Deed | OCEAN GROVE LOT OWNERS ASSOC | THOMAS C PARCHER | | | $55,000.00 | 133101 | |
|   | |
| 5 | 06/18/1999 | QCD | Quit Claim Deed | OCEAN GROVE TRUST | OCEAN GROVE LOT OWNERS ASSOC | 0 | 0 | $0.00 | 87245 | 0 |
Payout Agreement
| No payout information available.. |