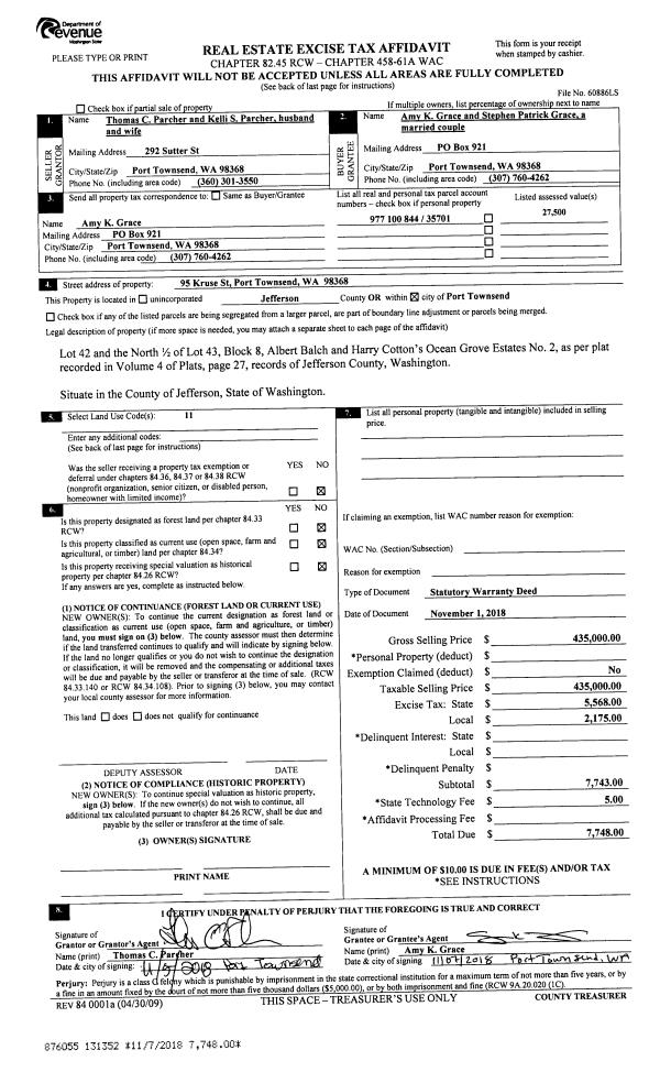
| 1 | 11/01/2018 | SWD | Statutory Warranty Deed | THOMAS C PARCHER | AMY K & STEPHEN P GRACE | | | $435,000.00 | 131352 | |
| 2 | 09/24/2018 | QCD | Quit Claim Deed | JAMES D & SUSAN K CARLSON | THOMAS C PARCHER | | | $60,000.00 | 131083 | |
| 3 | 05/26/2017 | BLA | Boundary Line Adjustment | JAMES D & SUSAN K CARLSON | JAMES D & SUSAN K CARLSON | | | | 128839 | |
| 4 | 05/27/2016 | SWD | Statutory Warranty Deed | DUBOIS CARY LAW GROUP PLLC | JAMES D & SUSAN K CARLSON | | | $50,000.00 | 125548 | |
|   | |
| 5 | 07/31/2013 | QCD | Quit Claim Deed | NERIS M PALUNAS | DUBOIS CARY LAW GROUP PLLC | | | $40,000.00 | 120033 | |
|   | |
| 6 | 04/12/2013 | QCD | Quit Claim Deed | ANDREW PALUNAS | NERIS M PALUNAS | | | | 119625 | |
| 7 | 05/17/1994 | SWD | Statutory Warranty Deed | OCEAN GROVE TRUST | PALUNAS, ANDREW/NERIS M | 0 | 0 | $0.00 | 74268 | 0 |