Property
Account |
| Property ID: | 35723 | Abbreviated Legal Description: | OCEAN GROVE ESTATES #3 BLK G LOT 3 |
| Parcel # / Geo ID: | 977101003 | Agent Code: | |
| Type: | Real | | |
| Tax Area: | 0111 - 1-50F1E1H2L1 | Land Use Code | 11 |
| Open Space: | N | DFL | N |
| Historic Property: | N | Remodel Property: | N |
| Multi-Family Redevelopment: | N | | |
| Township: | 30N | Section: | 24 |
| Range: | 2W |
Location |
| Address: | 104 HILLCREST AVE PORT TOWNSEND, WA 98368 | Mapsco: | 061/064 |
| Neighborhood: | OCEANGROVE | Map ID: | |
| Neighborhood CD: | 5560 |
Owner |
| Name: | JARED J HASKINS | Owner ID: | 90899 |
| Mailing Address: | STACIA C STEPHENS JTWROS 104 HILLCREST AVE PORT TOWNSEND, WA 98368-9659 | % Ownership: | 100.0000000000% |
| | | Exemptions: | |
Pay Tax Due
Select the appropriate checkbox next to the year to be paid. Multiple years may be selected.
*Convenience Fee not included
Taxes and Assessment Details
Property Tax Information as of
03/10/2026
Click on "Statement Details" to expand or collapse a tax statement.
* Please enter a valid date ** Please enter a valid date *
Statement Details |
| 2026 | 24958 | STATE - STATE LEVY (SCHOOL) | $609.95 | $609.94 | $0.00 | $0.00 | $0.00 | $1219.89 |
| 2026 | 24958 | COUNTY - COUNTY LEVIES (CE, DD, VET, MH) | $243.87 | $243.85 | $0.00 | $0.00 | $0.00 | $487.72 |
| 2026 | 24958 | CONSERVE - CONSERVATION FUTURES | $7.31 | $7.31 | $0.00 | $0.00 | $0.00 | $14.62 |
| 2026 | 24958 | COROADS - COUNTY ROADS (ROADS, DIV TO CE) | $196.72 | $196.72 | $0.00 | $0.00 | $0.00 | $393.44 |
| 2026 | 24958 | PORTPT - PORT DISTRICT | $98.49 | $98.48 | $0.00 | $0.00 | $0.00 | $196.97 |
| 2026 | 24958 | PUD1 - PUD #1 | $15.86 | $15.86 | $0.00 | $0.00 | $0.00 | $31.72 |
| 2026 | 24958 | LIB1 - LIBRARY DIST #1 | $76.11 | $76.11 | $0.00 | $0.00 | $0.00 | $152.22 |
| 2026 | 24958 | HD2 - HOSP DIST #2 | $14.22 | $14.22 | $0.00 | $0.00 | $0.00 | $28.44 |
| 2026 | 24958 | SD50 - SCHOOL DIST #50 | $483.23 | $483.20 | $0.00 | $0.00 | $0.00 | $966.43 |
| 2026 | 24958 | FD1 - FIRE DISTRICT #1 | $322.92 | $322.92 | $0.00 | $0.00 | $0.00 | $645.84 |
| 2026 | 24958 | EMS1 - FIRE DIST #1 EMS | $124.16 | $124.16 | $0.00 | $0.00 | $0.00 | $248.32 |
| 2026 | 24958 | JCCD - JC Conservation District | $2.55 | $2.55 | $0.00 | $0.00 | $0.00 | $5.10 |
| 2026 | 24958 | NWA - Noxious Weed Assessment | $2.98 | $2.97 | $0.00 | $0.00 | $0.00 | $5.95 |
| 2026 | 24958 | OSS - On Site Septic | $23.10 | $23.10 | $0.00 | $0.00 | $0.00 | $46.20 |
| 2026 | 24958 | WAT - Clean Water District | $13.00 | $13.00 | $0.00 | $0.00 | $0.00 | $26.00 |
| 2026 | 24958 | TOTAL: | $2234.47 | $2234.39 | $0.00 | $0.00 | $0.00 | $4468.86 |
|
| 2026 | 24958 | $2234.47 | $2234.39 | $0.00 | $0.00 | $0.00 | $4468.86 |
Statement Details |
| 2025 | 25026 | STATE - STATE LEVY (SCHOOL) | $666.80 | $666.78 | $0.00 | $0.00 | $1333.58 | $0.00 |
| 2025 | 25026 | COUNTY - COUNTY LEVIES (CE, DD, VET, MH) | $262.22 | $262.20 | $0.00 | $0.00 | $524.42 | $0.00 |
| 2025 | 25026 | CONSERVE - CONSERVATION FUTURES | $7.87 | $7.86 | $0.00 | $0.00 | $15.73 | $0.00 |
| 2025 | 25026 | COROADS - COUNTY ROADS (ROADS, DIV TO CE) | $210.08 | $210.07 | $0.00 | $0.00 | $420.15 | $0.00 |
| 2025 | 25026 | PORTPT - PORT DISTRICT | $107.00 | $106.99 | $0.00 | $0.00 | $213.99 | $0.00 |
| 2025 | 25026 | PUD1 - PUD #1 | $17.16 | $17.16 | $0.00 | $0.00 | $34.32 | $0.00 |
| 2025 | 25026 | LIB1 - LIBRARY DIST #1 | $81.28 | $81.27 | $0.00 | $0.00 | $162.55 | $0.00 |
| 2025 | 25026 | HD2 - HOSP DIST #2 | $15.30 | $15.30 | $0.00 | $0.00 | $30.60 | $0.00 |
| 2025 | 25026 | SD50 - SCHOOL DIST #50 | $487.32 | $487.31 | $0.00 | $0.00 | $974.63 | $0.00 |
| 2025 | 25026 | FD1 - FIRE DISTRICT #1 | $346.02 | $346.01 | $0.00 | $0.00 | $692.03 | $0.00 |
| 2025 | 25026 | EMS1 - FIRE DIST #1 EMS | $133.09 | $133.08 | $0.00 | $0.00 | $266.17 | $0.00 |
| 2025 | 25026 | JCCD - JC Conservation District | $2.55 | $2.55 | $0.00 | $0.00 | $5.10 | $0.00 |
| 2025 | 25026 | NWA - Noxious Weed Assessment | $2.15 | $2.15 | $0.00 | $0.00 | $4.30 | $0.00 |
| 2025 | 25026 | OSS - On Site Septic | $21.50 | $21.50 | $0.00 | $0.00 | $43.00 | $0.00 |
| 2025 | 25026 | WAT - Clean Water District | $13.00 | $13.00 | $0.00 | $0.00 | $26.00 | $0.00 |
| 2025 | 25026 | TOTAL: | $2373.34 | $2373.23 | $0.00 | $0.00 | $4746.57 | $0.00 |
|
| 2025 | 25026 | $2373.34 | $2373.23 | $0.00 | $0.00 | $4746.57 | $0.00 |
Statement Details |
| 2024 | 25072 | STATE - STATE LEVY (SCHOOL) | $554.85 | $554.85 | $0.00 | $0.00 | $1109.70 | $0.00 |
| 2024 | 25072 | COUNTY - COUNTY LEVIES (CE, DD, VET, MH) | $237.43 | $237.41 | $0.00 | $0.00 | $474.84 | $0.00 |
| 2024 | 25072 | CONSERVE - CONSERVATION FUTURES | $7.12 | $7.12 | $0.00 | $0.00 | $14.24 | $0.00 |
| 2024 | 25072 | COROADS - COUNTY ROADS (ROADS, DIV TO CE) | $191.05 | $191.04 | $0.00 | $0.00 | $382.09 | $0.00 |
| 2024 | 25072 | PORTPT - PORT DISTRICT | $98.07 | $98.06 | $0.00 | $0.00 | $196.13 | $0.00 |
| 2024 | 25072 | PUD1 - PUD #1 | $15.60 | $15.59 | $0.00 | $0.00 | $31.19 | $0.00 |
| 2024 | 25072 | LIB1 - LIBRARY DIST #1 | $73.92 | $73.91 | $0.00 | $0.00 | $147.83 | $0.00 |
| 2024 | 25072 | HD2 - HOSP DIST #2 | $13.86 | $13.85 | $0.00 | $0.00 | $27.71 | $0.00 |
| 2024 | 25072 | SD50 - SCHOOL DIST #50 | $448.91 | $448.89 | $0.00 | $0.00 | $897.80 | $0.00 |
| 2024 | 25072 | FD1 - FIRE DISTRICT #1 | $313.93 | $313.93 | $0.00 | $0.00 | $627.86 | $0.00 |
| 2024 | 25072 | EMS1 - FIRE DIST #1 EMS | $119.91 | $119.91 | $0.00 | $0.00 | $239.82 | $0.00 |
| 2024 | 25072 | JCCD - JC Conservation District | $2.55 | $2.55 | $0.00 | $0.00 | $5.10 | $0.00 |
| 2024 | 25072 | NWA - Noxious Weed Assessment | $2.15 | $2.15 | $0.00 | $0.00 | $4.30 | $0.00 |
| 2024 | 25072 | OSS - On Site Septic | $21.00 | $21.00 | $0.00 | $0.00 | $42.00 | $0.00 |
| 2024 | 25072 | WAT - Clean Water District | $12.50 | $12.50 | $0.00 | $0.00 | $25.00 | $0.00 |
| 2024 | 25072 | TOTAL: | $2112.85 | $2112.76 | $0.00 | $0.00 | $4225.61 | $0.00 |
|
| 2024 | 25072 | $2112.85 | $2112.76 | $0.00 | $0.00 | $4225.61 | $0.00 |
Statement Details |
| 2023 | 25111 | STATE - STATE LEVY (SCHOOL) | $558.70 | $558.68 | $0.00 | $0.00 | $1117.38 | $0.00 |
| 2023 | 25111 | COUNTY - COUNTY LEVIES (CE, DD, VET, MH) | $243.81 | $243.78 | $0.00 | $0.00 | $487.59 | $0.00 |
| 2023 | 25111 | CONSERVE - CONSERVATION FUTURES | $7.31 | $7.31 | $0.00 | $0.00 | $14.62 | $0.00 |
| 2023 | 25111 | COROADS - COUNTY ROADS (ROADS, DIV TO CE) | $197.25 | $197.25 | $0.00 | $0.00 | $394.50 | $0.00 |
| 2023 | 25111 | PORTPT - PORT DISTRICT | $102.71 | $102.69 | $0.00 | $0.00 | $205.40 | $0.00 |
| 2023 | 25111 | PUD1 - PUD #1 | $16.16 | $16.16 | $0.00 | $0.00 | $32.32 | $0.00 |
| 2023 | 25111 | LIB1 - LIBRARY DIST #1 | $76.32 | $76.31 | $0.00 | $0.00 | $152.63 | $0.00 |
| 2023 | 25111 | HD2 - HOSP DIST #2 | $14.23 | $14.22 | $0.00 | $0.00 | $28.45 | $0.00 |
| 2023 | 25111 | SD50 - SCHOOL DIST #50 | $443.33 | $443.33 | $0.00 | $0.00 | $886.66 | $0.00 |
| 2023 | 25111 | FD1 - FIRE DISTRICT #1 | $200.84 | $200.84 | $0.00 | $0.00 | $401.68 | $0.00 |
| 2023 | 25111 | EMS1 - FIRE DIST #1 EMS | $85.44 | $85.43 | $0.00 | $0.00 | $170.87 | $0.00 |
| 2023 | 25111 | JCCD - JC Conservation District | $2.55 | $2.55 | $0.00 | $0.00 | $5.10 | $0.00 |
| 2023 | 25111 | NWA - Noxious Weed Assessment | $2.15 | $2.15 | $0.00 | $0.00 | $4.30 | $0.00 |
| 2023 | 25111 | OSS - On Site Septic | $20.50 | $20.50 | $0.00 | $0.00 | $41.00 | $0.00 |
| 2023 | 25111 | WAT - Clean Water District | $12.00 | $12.00 | $0.00 | $0.00 | $24.00 | $0.00 |
| 2023 | 25111 | TOTAL: | $1983.30 | $1983.20 | $0.00 | $0.00 | $3966.50 | $0.00 |
|
| 2023 | 25111 | $1983.30 | $1983.20 | $0.00 | $0.00 | $3966.50 | $0.00 |
Values
| (+) Improvement Homesite Value: | + | $0 | |
| (+) Improvement Non-Homesite Value: | + | $425,600 | |
| (+) Land Homesite Value: | + | $0 | |
| (+) Land Non-Homesite Value: | + | $105,000 | |
| (+) Curr Use (HS): | + | $0 | $0 |
| (+) Curr Use (NHS): | + | $0 | $0 |
| | | -------------------------- | |
| (=) Market Value: | = | $530,600 | |
| (–) Productivity Loss: | – | $0 | |
| | | -------------------------- | |
| (=) Subtotal: | = | $530,600 | |
| (+) Senior Appraised Value: | + | $0 | |
| (+) Non-Senior Appraised Value: | + | $530,600 | |
| | | -------------------------- | |
| (=) Total Appraised Value: | = | $530,600 | |
| (–) Senior Exemption Loss: | – | $0 | |
| (–) Exemption Loss: | – | $0 | |
| | | -------------------------- | |
| (=) Taxable Value: | = | $530,600 | |
Taxing Jurisdiction
| Owner: | JARED J HASKINS | | |
| % Ownership: | 100.0000000000% | | |
| Total Value: | $530,600 | | |
| Tax Area: | 0111 - 1-50F1E1H2L1 |
| CE | COUNTY CURRENT EXPENSE | 0.9034619479 | $530,600 | $530,600 | $479.38 | | |
| CNTYDD | DEVELOPMENTAL DISABILITIES | 0.0052121823 | $530,600 | $530,600 | $2.77 | | |
| CNTYVET | VETERANS RELIEF | 0.0052777810 | $530,600 | $530,600 | $2.80 | | |
| MENTAL | MENTAL HEALTH | 0.0052121823 | $530,600 | $530,600 | $2.77 | | |
| ROADS | COUNTY ROADS | 0.7415066410 | $530,600 | $530,600 | $393.44 | | |
| ROADSCU | COUNTY ROADS TO CUR EXP | 0.0000000000 | $530,600 | $530,600 | $0.00 | | |
| HOSP2CASH | HOSP DIST #2 GENERAL | 0.0536075306 | $530,600 | $530,600 | $28.44 | | |
| SCH50BOND | SCHOOL DIST #50 BOND 2016 | 0.5377451389 | $530,600 | $530,600 | $285.33 | | |
| SCH50CP | SCHOOL DIST #50 CAP PROJ | 0.4573475088 | $530,600 | $530,600 | $242.67 | | |
| SCH50MO | SCHOOL DIST #50 EP & O | 0.8262822886 | $530,600 | $530,600 | $438.43 | | |
| CONSERVE | CONSERVATION FUTURES | 0.0275621078 | $530,600 | $530,600 | $14.62 | | |
| EMS1 | FIRE DIST #1 EMS | 0.4679948282 | $530,600 | $530,600 | $248.32 | | |
| FD1 | FIRE DIST #1 GENERAL | 1.2171942929 | $530,600 | $530,600 | $645.84 | | |
| LIB1 | LIBRARY DIST #1 GENERAL | 0.2868827388 | $530,600 | $530,600 | $152.22 | | |
| PORTPT | PORT OF PT GENERAL | 0.1134941229 | $530,600 | $530,600 | $60.22 | | |
| PORTPTIDD | PORT OF PT IDD 2019 | 0.2577346692 | $530,600 | $530,600 | $136.75 | | |
| PUD1 | PUD #1 GENERAL | 0.0597888892 | $530,600 | $530,600 | $31.72 | | |
| STATE | STATE SCHOOL PART 1 | 1.4940692947 | $530,600 | $530,600 | $792.75 | | |
| STATE2 | STATE SCHOOL PART 2 | 0.8050170049 | $530,600 | $530,600 | $427.14 | | |
| | Total Tax Rate: | 8.2653911500 | | | | | |
| | | | | Taxes w/Current Exemptions: | $4,385.61 | | |
| | | | | Taxes w/o Exemptions: | $4,385.61 | | |
Improvement / Building
| Improvement #1: | Residential Bldg | State Code: | 11 | 1843.0 sqft | Value: | $425,600 |
| Bathrooms (#): | 2 (FULL) | Bathrooms (#): | 1 (HALF) | | Bedrooms (#): | 3 | Exterior Wall: | SI/ST | | Fireplace: | PROPS-GOOD | Floor Construction: | FRAME | | Foundation: | CONPR | Heating/Cooling: | F/A | | Roof Cover: | COMP |   |   |
|
| | Type | Description | Class CD | Sub Class CD | Year Built | Area |
| | MA | Main Area | 4+ | 2S | 1998 | 555.0 |
| | MA2 | Second Floor Main Area | 4+ | 2S | 1998 | 1288.0 |
| | HRPO | House Roof Patio | 4 | * | 1998 | 120.0 |
| | HWPOR | House Wood Porch | 4 | * | 1998 | 28.0 |
| | HDECK | House Deck | 4 | * | 1998 | 383.0 |
| | GBLTIN | Builtin Garage | 4 | 2S | 1998 | 624.0 |
Sketch
Property Image
Land
| 1 | 5560-1155L | | 0.0000 | 0.00 | 0.00 | 0.00 | 1.00 | $105,000 | $0 |
Roll Value History
| 2026 | N/A | N/A | N/A | N/A | N/A |
| 2025 | $425,600 | $105,000 | $0 | $530,600 | $530,600 |
| 2024 | $445,866 | $110,250 | $0 | $556,116 | $556,116 |
| 2023 | $379,641 | $100,000 | $0 | $479,641 | $479,641 |
| 2022 | $379,641 | $95,000 | $0 | $474,641 | $474,641 |
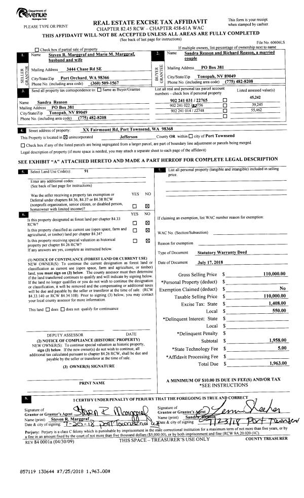
Deed and Sales History
| 1 | 10/18/2013 | SWD | Statutory Warranty Deed | JOE D HASKINS | JARED J HASKINS | | | $250,000.00 | 120210 | |
|   | |
| 2 | 11/18/1997 | SWD | Statutory Warranty Deed | BISHOP LOGGING COMPANY | HASKINS, JOE D/NANCY B | 0 | 0 | $28,000.00 | 83223 | 0 |
|   | |
Payout Agreement
| No payout information available.. |