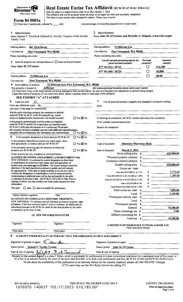
Property
Account |
| Property ID: | 35731 | Abbreviated Legal Description: | OCEAN GROVE ESTATES #3 BLK G LOT 12 |
| Parcel # / Geo ID: | 977101013 | Agent Code: | |
| Type: | Real | | |
| Tax Area: | 0111 - 1-50F1E1H2L1 | Land Use Code | 11 |
| Open Space: | N | DFL | N |
| Historic Property: | N | Remodel Property: | N |
| Multi-Family Redevelopment: | N | | |
| Township: | 30N | Section: | 24 |
| Range: | 2W |
Location |
| Address: | 72 HILLCREST AVE PORT TOWNSEND, WA 98368 | Mapsco: | 061/072 |
| Neighborhood: | OCEANGROVE | Map ID: | |
| Neighborhood CD: | 5560 |
Owner |
| Name: | JOHN M O'CONNOR | Owner ID: | 108540 |
| Mailing Address: | MICHELLE A DELGADO 72 HILLCREST AVE PORT TOWNSEND, WA 98368-9697 | % Ownership: | 100.0000000000% |
| | | Exemptions: | |
Pay Tax Due
Select the appropriate checkbox next to the year to be paid. Multiple years may be selected.
*Convenience Fee not included
Taxes and Assessment Details
Property Tax Information as of
03/13/2026
Click on "Statement Details" to expand or collapse a tax statement.
* Please enter a valid date ** Please enter a valid date *
Statement Details |
| 2026 | 24966 | STATE - STATE LEVY (SCHOOL) | $675.91 | $675.89 | $0.00 | $0.00 | $0.00 | $1351.80 |
| 2026 | 24966 | COUNTY - COUNTY LEVIES (CE, DD, VET, MH) | $270.22 | $270.21 | $0.00 | $0.00 | $0.00 | $540.43 |
| 2026 | 24966 | CONSERVE - CONSERVATION FUTURES | $8.11 | $8.10 | $0.00 | $0.00 | $0.00 | $16.21 |
| 2026 | 24966 | COROADS - COUNTY ROADS (ROADS, DIV TO CE) | $218.00 | $217.99 | $0.00 | $0.00 | $0.00 | $435.99 |
| 2026 | 24966 | PORTPT - PORT DISTRICT | $109.14 | $109.13 | $0.00 | $0.00 | $0.00 | $218.27 |
| 2026 | 24966 | PUD1 - PUD #1 | $17.58 | $17.57 | $0.00 | $0.00 | $0.00 | $35.15 |
| 2026 | 24966 | LIB1 - LIBRARY DIST #1 | $84.34 | $84.34 | $0.00 | $0.00 | $0.00 | $168.68 |
| 2026 | 24966 | HD2 - HOSP DIST #2 | $15.76 | $15.76 | $0.00 | $0.00 | $0.00 | $31.52 |
| 2026 | 24966 | SD50 - SCHOOL DIST #50 | $535.47 | $535.45 | $0.00 | $0.00 | $0.00 | $1070.92 |
| 2026 | 24966 | FD1 - FIRE DISTRICT #1 | $357.84 | $357.84 | $0.00 | $0.00 | $0.00 | $715.68 |
| 2026 | 24966 | EMS1 - FIRE DIST #1 EMS | $137.59 | $137.58 | $0.00 | $0.00 | $0.00 | $275.17 |
| 2026 | 24966 | JCCD - JC Conservation District | $2.55 | $2.55 | $0.00 | $0.00 | $0.00 | $5.10 |
| 2026 | 24966 | NWA - Noxious Weed Assessment | $2.98 | $2.97 | $0.00 | $0.00 | $0.00 | $5.95 |
| 2026 | 24966 | OSS - On Site Septic | $23.10 | $23.10 | $0.00 | $0.00 | $0.00 | $46.20 |
| 2026 | 24966 | WAT - Clean Water District | $13.00 | $13.00 | $0.00 | $0.00 | $0.00 | $26.00 |
| 2026 | 24966 | TOTAL: | $2471.59 | $2471.48 | $0.00 | $0.00 | $0.00 | $4943.07 |
|
| 2026 | 24966 | $2471.59 | $2471.48 | $0.00 | $0.00 | $0.00 | $4943.07 |
Statement Details |
| 2025 | 25034 | STATE - STATE LEVY (SCHOOL) | $738.86 | $738.85 | $0.00 | $0.00 | $1477.71 | $0.00 |
| 2025 | 25034 | COUNTY - COUNTY LEVIES (CE, DD, VET, MH) | $290.57 | $290.54 | $0.00 | $0.00 | $581.11 | $0.00 |
| 2025 | 25034 | CONSERVE - CONSERVATION FUTURES | $8.71 | $8.71 | $0.00 | $0.00 | $17.42 | $0.00 |
| 2025 | 25034 | COROADS - COUNTY ROADS (ROADS, DIV TO CE) | $232.79 | $232.77 | $0.00 | $0.00 | $465.56 | $0.00 |
| 2025 | 25034 | PORTPT - PORT DISTRICT | $118.57 | $118.55 | $0.00 | $0.00 | $237.12 | $0.00 |
| 2025 | 25034 | PUD1 - PUD #1 | $19.01 | $19.01 | $0.00 | $0.00 | $38.02 | $0.00 |
| 2025 | 25034 | LIB1 - LIBRARY DIST #1 | $90.06 | $90.06 | $0.00 | $0.00 | $180.12 | $0.00 |
| 2025 | 25034 | HD2 - HOSP DIST #2 | $16.95 | $16.95 | $0.00 | $0.00 | $33.90 | $0.00 |
| 2025 | 25034 | SD50 - SCHOOL DIST #50 | $539.99 | $539.98 | $0.00 | $0.00 | $1079.97 | $0.00 |
| 2025 | 25034 | FD1 - FIRE DISTRICT #1 | $383.42 | $383.41 | $0.00 | $0.00 | $766.83 | $0.00 |
| 2025 | 25034 | EMS1 - FIRE DIST #1 EMS | $147.47 | $147.47 | $0.00 | $0.00 | $294.94 | $0.00 |
| 2025 | 25034 | JCCD - JC Conservation District | $2.55 | $2.55 | $0.00 | $0.00 | $5.10 | $0.00 |
| 2025 | 25034 | NWA - Noxious Weed Assessment | $2.15 | $2.15 | $0.00 | $0.00 | $4.30 | $0.00 |
| 2025 | 25034 | OSS - On Site Septic | $21.50 | $21.50 | $0.00 | $0.00 | $43.00 | $0.00 |
| 2025 | 25034 | WAT - Clean Water District | $13.00 | $13.00 | $0.00 | $0.00 | $26.00 | $0.00 |
| 2025 | 25034 | TOTAL: | $2625.60 | $2625.50 | $0.00 | $0.00 | $5251.10 | $0.00 |
|
| 2025 | 25034 | $2625.60 | $2625.50 | $0.00 | $0.00 | $5251.10 | $0.00 |
Statement Details |
| 2024 | 25080 | STATE - STATE LEVY (SCHOOL) | $601.30 | $601.28 | $0.00 | $0.00 | $1202.58 | $0.00 |
| 2024 | 25080 | COUNTY - COUNTY LEVIES (CE, DD, VET, MH) | $257.31 | $257.29 | $0.00 | $0.00 | $514.60 | $0.00 |
| 2024 | 25080 | CONSERVE - CONSERVATION FUTURES | $7.72 | $7.71 | $0.00 | $0.00 | $15.43 | $0.00 |
| 2024 | 25080 | COROADS - COUNTY ROADS (ROADS, DIV TO CE) | $207.04 | $207.03 | $0.00 | $0.00 | $414.07 | $0.00 |
| 2024 | 25080 | PORTPT - PORT DISTRICT | $106.28 | $106.27 | $0.00 | $0.00 | $212.55 | $0.00 |
| 2024 | 25080 | PUD1 - PUD #1 | $16.90 | $16.90 | $0.00 | $0.00 | $33.80 | $0.00 |
| 2024 | 25080 | LIB1 - LIBRARY DIST #1 | $80.10 | $80.10 | $0.00 | $0.00 | $160.20 | $0.00 |
| 2024 | 25080 | HD2 - HOSP DIST #2 | $15.02 | $15.01 | $0.00 | $0.00 | $30.03 | $0.00 |
| 2024 | 25080 | SD50 - SCHOOL DIST #50 | $486.48 | $486.46 | $0.00 | $0.00 | $972.94 | $0.00 |
| 2024 | 25080 | FD1 - FIRE DISTRICT #1 | $340.21 | $340.20 | $0.00 | $0.00 | $680.41 | $0.00 |
| 2024 | 25080 | EMS1 - FIRE DIST #1 EMS | $129.95 | $129.94 | $0.00 | $0.00 | $259.89 | $0.00 |
| 2024 | 25080 | JCCD - JC Conservation District | $2.55 | $2.55 | $0.00 | $0.00 | $5.10 | $0.00 |
| 2024 | 25080 | NWA - Noxious Weed Assessment | $2.15 | $2.15 | $0.00 | $0.00 | $4.30 | $0.00 |
| 2024 | 25080 | OSS - On Site Septic | $21.00 | $21.00 | $0.00 | $0.00 | $42.00 | $0.00 |
| 2024 | 25080 | WAT - Clean Water District | $12.50 | $12.50 | $0.00 | $0.00 | $25.00 | $0.00 |
| 2024 | 25080 | TOTAL: | $2286.51 | $2286.39 | $0.00 | $0.00 | $4572.90 | $0.00 |
|
| 2024 | 25080 | $2286.51 | $2286.39 | $0.00 | $0.00 | $4572.90 | $0.00 |
Statement Details |
| 2023 | 25119 | STATE - STATE LEVY (SCHOOL) | $605.94 | $605.94 | $0.00 | $0.00 | $1211.88 | $0.00 |
| 2023 | 25119 | COUNTY - COUNTY LEVIES (CE, DD, VET, MH) | $264.41 | $264.41 | $0.00 | $0.00 | $528.82 | $0.00 |
| 2023 | 25119 | CONSERVE - CONSERVATION FUTURES | $7.93 | $7.93 | $0.00 | $0.00 | $15.86 | $0.00 |
| 2023 | 25119 | COROADS - COUNTY ROADS (ROADS, DIV TO CE) | $213.94 | $213.93 | $0.00 | $0.00 | $427.87 | $0.00 |
| 2023 | 25119 | PORTPT - PORT DISTRICT | $111.39 | $111.38 | $0.00 | $0.00 | $222.77 | $0.00 |
| 2023 | 25119 | PUD1 - PUD #1 | $17.53 | $17.52 | $0.00 | $0.00 | $35.05 | $0.00 |
| 2023 | 25119 | LIB1 - LIBRARY DIST #1 | $82.77 | $82.77 | $0.00 | $0.00 | $165.54 | $0.00 |
| 2023 | 25119 | HD2 - HOSP DIST #2 | $15.44 | $15.42 | $0.00 | $0.00 | $30.86 | $0.00 |
| 2023 | 25119 | SD50 - SCHOOL DIST #50 | $480.84 | $480.82 | $0.00 | $0.00 | $961.66 | $0.00 |
| 2023 | 25119 | FD1 - FIRE DISTRICT #1 | $217.83 | $217.82 | $0.00 | $0.00 | $435.65 | $0.00 |
| 2023 | 25119 | EMS1 - FIRE DIST #1 EMS | $92.66 | $92.66 | $0.00 | $0.00 | $185.32 | $0.00 |
| 2023 | 25119 | JCCD - JC Conservation District | $2.55 | $2.55 | $0.00 | $0.00 | $5.10 | $0.00 |
| 2023 | 25119 | NWA - Noxious Weed Assessment | $2.15 | $2.15 | $0.00 | $0.00 | $4.30 | $0.00 |
| 2023 | 25119 | OSS - On Site Septic | $20.50 | $20.50 | $0.00 | $0.00 | $41.00 | $0.00 |
| 2023 | 25119 | WAT - Clean Water District | $12.00 | $12.00 | $0.00 | $0.00 | $24.00 | $0.00 |
| 2023 | 25119 | TOTAL: | $2147.88 | $2147.80 | $0.00 | $0.00 | $4295.68 | $0.00 |
|
| 2023 | 25119 | $2147.88 | $2147.80 | $0.00 | $0.00 | $4295.68 | $0.00 |
Values
| (+) Improvement Homesite Value: | + | $0 | |
| (+) Improvement Non-Homesite Value: | + | $482,974 | |
| (+) Land Homesite Value: | + | $0 | |
| (+) Land Non-Homesite Value: | + | $105,000 | |
| (+) Curr Use (HS): | + | $0 | $0 |
| (+) Curr Use (NHS): | + | $0 | $0 |
| | | -------------------------- | |
| (=) Market Value: | = | $587,974 | |
| (–) Productivity Loss: | – | $0 | |
| | | -------------------------- | |
| (=) Subtotal: | = | $587,974 | |
| (+) Senior Appraised Value: | + | $0 | |
| (+) Non-Senior Appraised Value: | + | $587,974 | |
| | | -------------------------- | |
| (=) Total Appraised Value: | = | $587,974 | |
| (–) Senior Exemption Loss: | – | $0 | |
| (–) Exemption Loss: | – | $0 | |
| | | -------------------------- | |
| (=) Taxable Value: | = | $587,974 | |
Taxing Jurisdiction
| Owner: | JOHN M O'CONNOR | | |
| % Ownership: | 100.0000000000% | | |
| Total Value: | N/A | | |
| Tax Area: | 0111 - 1-50F1E1H2L1 |
| CE | COUNTY CURRENT EXPENSE | N/A | N/A | N/A | N/A | | |
| CNTYDD | DEVELOPMENTAL DISABILITIES | N/A | N/A | N/A | N/A | | |
| CNTYVET | VETERANS RELIEF | N/A | N/A | N/A | N/A | | |
| MENTAL | MENTAL HEALTH | N/A | N/A | N/A | N/A | | |
| ROADS | COUNTY ROADS | N/A | N/A | N/A | N/A | | |
| HOSP2CASH | HOSP DIST #2 GENERAL | N/A | N/A | N/A | N/A | | |
| SCH50BOND | SCHOOL DIST #50 BOND 2016 | N/A | N/A | N/A | N/A | | |
| SCH50CP | SCHOOL DIST #50 CAP PROJ | N/A | N/A | N/A | N/A | | |
| SCH50MO | SCHOOL DIST #50 EP & O | N/A | N/A | N/A | N/A | | |
| CONSERVE | CONSERVATION FUTURES | N/A | N/A | N/A | N/A | | |
| EMS1 | FIRE DIST #1 EMS | N/A | N/A | N/A | N/A | | |
| FD1 | FIRE DIST #1 GENERAL | N/A | N/A | N/A | N/A | | |
| LIB1 | LIBRARY DIST #1 GENERAL | N/A | N/A | N/A | N/A | | |
| PORTPT | PORT OF PT GENERAL | N/A | N/A | N/A | N/A | | |
| PORTPTIDD | PORT OF PT IDD 2019 | N/A | N/A | N/A | N/A | | |
| PUD1 | PUD #1 GENERAL | N/A | N/A | N/A | N/A | | |
| STATE | STATE SCHOOL PART 1 | N/A | N/A | N/A | N/A | | |
| STATE2 | STATE SCHOOL PART 2 | N/A | N/A | N/A | N/A | | |
| | Total Tax Rate: | N/A | | | | | |
| | | | | Taxes w/Current Exemptions: | N/A | | |
| | | | | Taxes w/o Exemptions: | N/A | | |
Improvement / Building
| Improvement #1: | Residential Bldg | State Code: | 11 | 1676.0 sqft | Value: | $482,974 |
| Bathrooms (#): | 2 (FULL) | Bathrooms (#): | 1 (HALF) | | Bedrooms (#): | 3 | Exterior Wall: | SI/ST | | Fireplace: | WD ST-GOOD | Floor Construction: | FRAME | | Foundation: | CONPR | Heating/Cooling: | ELBB | | Roof Cover: | COMP |   |   |
|
| | Type | Description | Class CD | Sub Class CD | Year Built | Area |
| | MA | Main Area | 4+ | HSPL | 1993 | 562.0 |
| | MA2 | Second Floor Main Area | 4+ | HSPL | 1993 | 315.0 |
| | MA3 | Third Floor Main Area | 4+ | HSPL | 1993 | 799.0 |
| | HWPOR | House Wood Porch | 4 | * | 1993 | 104.0 |
| | HDECK | House Deck | 4 | * | 1993 | 842.0 |
| | GBLTIN | Builtin Garage | 4 | HSPL | 1993 | 483.0 |
| | BSMTF | House basement finished | 4 | * | 1993 | 562.0 |
| | SHED | Shed (Table Not Dep) | 3 | * | 1993 | 120.0 |
Sketch
Property Image
Land
| 1 | 5560-1155L | | 0.0000 | 0.00 | 0.00 | 0.00 | 1.00 | $105,000 | $0 |
Roll Value History
| 2026 | N/A | N/A | N/A | N/A | N/A |
| 2025 | $482,974 | $105,000 | $0 | $587,974 | $587,974 |
| 2024 | $505,973 | $110,250 | $0 | $616,223 | $616,223 |
| 2023 | $419,785 | $100,000 | $0 | $519,785 | $519,785 |
| 2022 | $419,785 | $95,000 | $0 | $514,785 | $514,785 |
Deed and Sales History
| 1 | 03/09/2023 | SWD | Statutory Warranty Deed | NEVILLE FAMILY TRUST | JOHN M O'CONNOR | | | $625,000.00 | 140637 | |
|   | |
| 2 | 03/06/2019 | QCD | Quit Claim Deed | SAMUEL F NEVILLE | NEVILLE FAMILY TRUST | | | | 131903 | |
| 3 | 02/23/2005 | SWD | Statutory Warranty Deed | MASON, WILLIAM J TRUSTEE | NEVILLE, SAMUEL F/DEBORAH K | 0 | 0 | $295,000.00 | 102811 | 0 |
| 4 | 07/17/2001 | QCD | Quit Claim Deed | MASON, WILLIAM J | MASON FAMILY TRUST, WILLIAM J | 0 | 0 | $0.00 | 92926 | 0 |
| 5 | 07/17/2001 | QCD | Quit Claim Deed | MASON, WILLIAM J | MASON FAMILY TRUST, MASON, WIL | 0 | 0 | $0.00 | 92643 | 0 |
| 6 | 12/21/1998 | SWD | Statutory Warranty Deed | WILDER, MARGERY M/TRUST | MASON FAMILY TRUST | 0 | 0 | $170,000.00 | 85930 | 0 |
| 7 | 11/25/1996 | SWD | Statutory Warranty Deed | MINDER, PATRICK H/DONNA L | WILDER, MARGERY M/TRUST | 0 | 0 | $163,500.00 | 80857 | 0 |
| 8 | 11/18/1996 | QCD | Quit Claim Deed | WILDER, EDWIN | WILDER, MARGERY M/TRUST | 0 | 0 | $0.00 | 80858 | 0 |
Payout Agreement
| No payout information available.. |