Property
Account |
| Property ID: | 35796 | Abbreviated Legal Description: | OLSON & HAMBLETON'S 12 (LESS W 2216.19') |
| Parcel # / Geo ID: | 977700037 | Agent Code: | |
| Type: | Real | | |
| Tax Area: | 0211 - 1-49F1E1H2L1 | Land Use Code | 11 |
| Open Space: | N | DFL | N |
| Historic Property: | N | Remodel Property: | N |
| Multi-Family Redevelopment: | N | | |
| Township: | 29N | Section: | 9 |
| Range: | 1E |
Location |
| Address: | 698 EAST MARROWSTONE RD NORDLAND, WA 98358 | Mapsco: | 076/047 |
| Neighborhood: | OLSON & HAMBLETONS LP RUES1&2,JANSEN,HOYT,FORD,EM WRIGHT SP | Map ID: | |
| Neighborhood CD: | 4615 |
Owner |
| Name: | KELLY & DEBRA DEAN | Owner ID: | 96760 |
| Mailing Address: | 698 E MARROWSTONE RD NORDLAND, WA 98358 | % Ownership: | 100.0000000000% |
| | | Exemptions: | |
Pay Tax Due
There is currently No Amount Due on this property.
Taxes and Assessment Details
Property Tax Information as of
03/12/2026
Click on "Statement Details" to expand or collapse a tax statement.
* Please enter a valid date ** Please enter a valid date *
Statement Details |
| | TOTAL: | $0.00 | $0.00 | $0.00 | $0.00 | $0.00 | $0.00 |
|
| | $0.00 | $0.00 | $0.00 | $0.00 | $0.00 | $0.00 |
Values
| (+) Improvement Homesite Value: | + | $0 | |
| (+) Improvement Non-Homesite Value: | + | $1,117,483 | |
| (+) Land Homesite Value: | + | $0 | |
| (+) Land Non-Homesite Value: | + | $642,758 | |
| (+) Curr Use (HS): | + | $0 | $0 |
| (+) Curr Use (NHS): | + | $0 | $0 |
| | | -------------------------- | |
| (=) Market Value: | = | $1,760,241 | |
| (–) Productivity Loss: | – | $0 | |
| | | -------------------------- | |
| (=) Subtotal: | = | $1,760,241 | |
| (+) Senior Appraised Value: | + | $0 | |
| (+) Non-Senior Appraised Value: | + | $1,760,241 | |
| | | -------------------------- | |
| (=) Total Appraised Value: | = | $1,760,241 | |
| (–) Senior Exemption Loss: | – | $0 | |
| (–) Exemption Loss: | – | $0 | |
| | | -------------------------- | |
| (=) Taxable Value: | = | $1,760,241 | |
Taxing Jurisdiction
| Owner: | KELLY & DEBRA DEAN | | |
| % Ownership: | 100.0000000000% | | |
| Total Value: | $1,760,241 | | |
| Tax Area: | 0211 - 1-49F1E1H2L1 |
| CE | COUNTY CURRENT EXPENSE | 0.9034619479 | $1,760,241 | $1,760,241 | $1,590.31 | | |
| CNTYDD | DEVELOPMENTAL DISABILITIES | 0.0052121823 | $1,760,241 | $1,760,241 | $9.17 | | |
| CNTYVET | VETERANS RELIEF | 0.0052777810 | $1,760,241 | $1,760,241 | $9.29 | | |
| MENTAL | MENTAL HEALTH | 0.0052121823 | $1,760,241 | $1,760,241 | $9.17 | | |
| ROADS | COUNTY ROADS | 0.7415066410 | $1,760,241 | $1,760,241 | $1,305.23 | | |
| ROADSCU | COUNTY ROADS TO CUR EXP | 0.0000000000 | $1,760,241 | $1,760,241 | $0.00 | | |
| HOSP2CASH | HOSP DIST #2 GENERAL | 0.0536075306 | $1,760,241 | $1,760,241 | $94.36 | | |
| SCH49CP | SCHOOL DIST #49 CAP PROJ | 0.6279093905 | $1,760,241 | $1,760,241 | $1,105.27 | | |
| SCH49MO | SCHOOL DIST #49 EP & O | 0.6376483602 | $1,760,241 | $1,760,241 | $1,122.41 | | |
| CONSERVE | CONSERVATION FUTURES | 0.0275621078 | $1,760,241 | $1,760,241 | $48.52 | | |
| EMS1 | FIRE DIST #1 EMS | 0.4679948282 | $1,760,241 | $1,760,241 | $823.78 | | |
| FD1 | FIRE DIST #1 GENERAL | 1.2171942929 | $1,760,241 | $1,760,241 | $2,142.56 | | |
| LIB1 | LIBRARY DIST #1 GENERAL | 0.2868827388 | $1,760,241 | $1,760,241 | $504.98 | | |
| PORTPT | PORT OF PT GENERAL | 0.1134941229 | $1,760,241 | $1,760,241 | $199.78 | | |
| PORTPTIDD | PORT OF PT IDD 2019 | 0.2577346692 | $1,760,241 | $1,760,241 | $453.68 | | |
| PUD1 | PUD #1 GENERAL | 0.0597888892 | $1,760,241 | $1,760,241 | $105.24 | | |
| STATE | STATE SCHOOL PART 1 | 1.4940692947 | $1,760,241 | $1,760,241 | $2,629.92 | | |
| STATE2 | STATE SCHOOL PART 2 | 0.8050170049 | $1,760,241 | $1,760,241 | $1,417.02 | | |
| | Total Tax Rate: | 7.7095739644 | | | | | |
| | | | | Taxes w/Current Exemptions: | $13,570.69 | | |
| | | | | Taxes w/o Exemptions: | $13,570.69 | | |
Improvement / Building
| Improvement #1: | Residential Bldg | State Code: | 11 | 5706.0 sqft | Value: | $1,117,483 |
| Bathrooms (#): | 2 (FULL) | Bathrooms (#): | 1 (HALF) | | Bedrooms (#): | 3 | Exterior Wall: | SI/ST | | Fireplace: | SIN 1-GOOD | Fireplace: | WD ST-GOOD | | Floor Construction: | FRAME | Foundation: | CONPR | | Heating/Cooling: | HTWTR | Roof Cover: | TILE |
|
| | Type | Description | Class CD | Sub Class CD | Year Built | Area |
| | MA | Main Area | 4+ | 15SF | 1992 | 3470.0 |
| | MA2 | Second Floor Main Area | 4+ | 15SF | 1992 | 2236.0 |
| | PATIO | House Patio | 4 | 15SF | 1992 | 900.0 |
| | HBAL | House Balcony | 4 | 15SF | 1992 | 132.0 |
| | HDECK | House Deck | 4 | 15SF | 1992 | 848.0 |
| | GBLTIN | Builtin Garage | 4 | 15SF | 1992 | 1152.0 |
| | SHED | Shed (Table Not Dep) | 4 | 15SF | 1992 | 392.0 |
| | CONCD | Concrete Drive | 4 | 15SF | 1992 | 1400.0 |
Sketch
| No sketches available for this property. |
Property Image
Land
| 1 | 4615-1535F | High Bank Waterfront Marrowstone | 0.0000 | 0.00 | 0.00 | 0.00 | 0.00 | $294,250 | $0 |
| 2 | 4615-1535F | High Bank Waterfront Marrowstone | 0.0000 | 0.00 | 0.00 | 0.00 | 0.00 | $348,508 | $0 |
Roll Value History
| 2026 | N/A | N/A | N/A | N/A | N/A |
| 2025 | $1,117,483 | $642,758 | $0 | $1,760,241 | $1,760,241 |
| 2024 | $1,068,896 | $613,541 | $0 | $1,682,437 | $1,682,437 |
| 2023 | $1,020,310 | $579,325 | $0 | $1,599,635 | $1,599,635 |
| 2022 | $902,159 | $574,325 | $0 | $1,476,484 | $1,476,484 |
Deed and Sales History
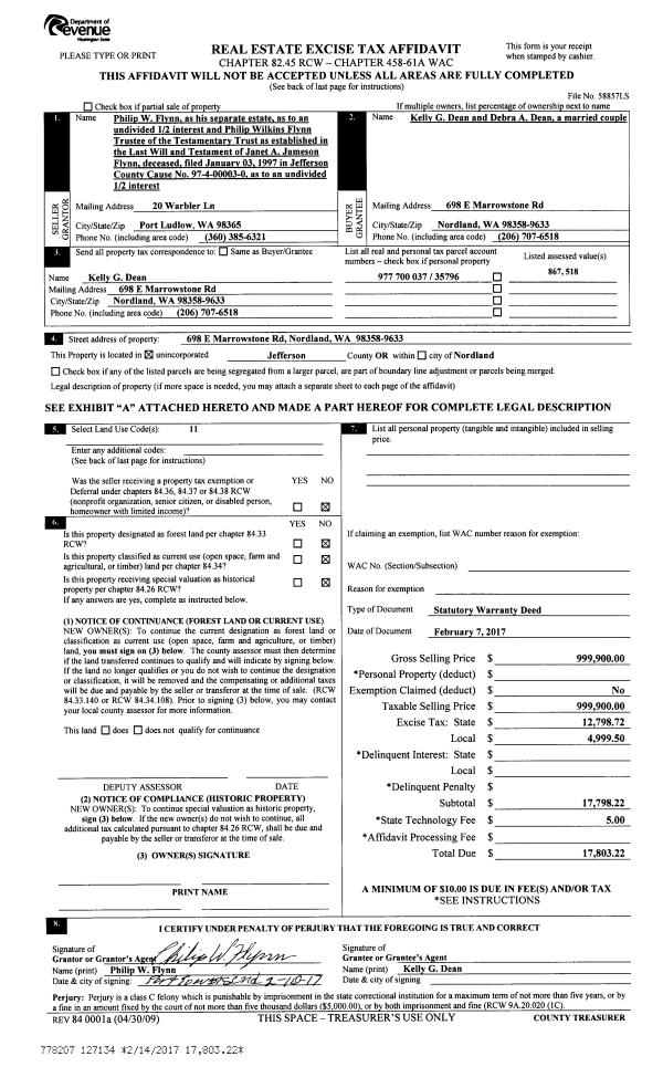
| 1 | 02/07/2017 | SWD | Statutory Warranty Deed | PHILIP W FLYNN | KELLY & DEBRA DEAN | | | $999,900.00 | 127134 | |
Payout Agreement
| No payout information available.. |