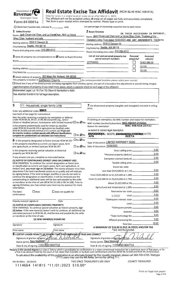
Property
Account |
| Property ID: | 35811 | Abbreviated Legal Description: | OLSON & HAMBLETON'S 16 (TAX NO. 15) |
| Parcel # / Geo ID: | 977700053 | Agent Code: | |
| Type: | Real | | |
| Tax Area: | 0211 - 1-49F1E1H2L1 | Land Use Code | 11 |
| Open Space: | N | DFL | N |
| Historic Property: | N | Remodel Property: | N |
| Multi-Family Redevelopment: | N | | |
| Township: | 29N | Section: | 9 |
| Range: | 1E |
Location |
| Address: | 363 MOEN RD NORDLAND, WA 98358 | Mapsco: | 077/012 |
| Neighborhood: | OLSON & HAMBLETONS LP RUES1&2,JANSEN,HOYT,FORD,EM WRIGHT SP | Map ID: | |
| Neighborhood CD: | 4615 |
Owner |
| Name: | JACK & LA VERNE CHEN | Owner ID: | 103430 |
| Mailing Address: | 5530 S DAWSON ST SEATTLE, WA 98118-2157 | % Ownership: | 100.0000000000% |
| | | Exemptions: | |
Pay Tax Due
Select the appropriate checkbox next to the year to be paid. Multiple years may be selected.
*Convenience Fee not included
Taxes and Assessment Details
Property Tax Information as of
03/11/2026
Click on "Statement Details" to expand or collapse a tax statement.
* Please enter a valid date ** Please enter a valid date *
Statement Details |
| 2026 | 25044 | STATE - STATE LEVY (SCHOOL) | $1163.36 | $1163.34 | $0.00 | $0.00 | $0.00 | $2326.70 |
| 2026 | 25044 | COUNTY - COUNTY LEVIES (CE, DD, VET, MH) | $465.11 | $465.08 | $0.00 | $0.00 | $0.00 | $930.19 |
| 2026 | 25044 | CONSERVE - CONSERVATION FUTURES | $13.95 | $13.94 | $0.00 | $0.00 | $0.00 | $27.89 |
| 2026 | 25044 | COROADS - COUNTY ROADS (ROADS, DIV TO CE) | $375.21 | $375.20 | $0.00 | $0.00 | $0.00 | $750.41 |
| 2026 | 25044 | PORTPT - PORT DISTRICT | $187.85 | $187.84 | $0.00 | $0.00 | $0.00 | $375.69 |
| 2026 | 25044 | PUD1 - PUD #1 | $30.26 | $30.25 | $0.00 | $0.00 | $0.00 | $60.51 |
| 2026 | 25044 | LIB1 - LIBRARY DIST #1 | $145.17 | $145.16 | $0.00 | $0.00 | $0.00 | $290.33 |
| 2026 | 25044 | HD2 - HOSP DIST #2 | $27.13 | $27.12 | $0.00 | $0.00 | $0.00 | $54.25 |
| 2026 | 25044 | SD49 - SCHOOL DIST #49 | $640.39 | $640.37 | $0.00 | $0.00 | $0.00 | $1280.76 |
| 2026 | 25044 | FD1 - FIRE DISTRICT #1 | $615.91 | $615.90 | $0.00 | $0.00 | $0.00 | $1231.81 |
| 2026 | 25044 | EMS1 - FIRE DIST #1 EMS | $236.81 | $236.81 | $0.00 | $0.00 | $0.00 | $473.62 |
| 2026 | 25044 | FP - DNR Forest Fire Protection Assmt | $8.50 | $8.50 | $0.00 | $0.00 | $0.00 | $17.00 |
| 2026 | 25044 | FPLCA - DNR Landowner Contingency Assmt | $3.00 | $3.00 | $0.00 | $0.00 | $0.00 | $6.00 |
| 2026 | 25044 | JCCD - JC Conservation District | $2.55 | $2.55 | $0.00 | $0.00 | $0.00 | $5.10 |
| 2026 | 25044 | NWA - Noxious Weed Assessment | $2.98 | $2.97 | $0.00 | $0.00 | $0.00 | $5.95 |
| 2026 | 25044 | OSS - On Site Septic | $23.10 | $23.10 | $0.00 | $0.00 | $0.00 | $46.20 |
| 2026 | 25044 | WAT - Clean Water District | $13.00 | $13.00 | $0.00 | $0.00 | $0.00 | $26.00 |
| 2026 | 25044 | FP ADMIN - FP ADMIN | $0.50 | $0.00 | $0.00 | $0.00 | $0.00 | $0.50 |
| 2026 | 25044 | TOTAL: | $3954.78 | $3954.13 | $0.00 | $0.00 | $0.00 | $7908.91 |
|
| 2026 | 25044 | $3954.78 | $3954.13 | $0.00 | $0.00 | $0.00 | $7908.91 |
Statement Details |
| 2025 | 25112 | STATE - STATE LEVY (SCHOOL) | $1160.13 | $1160.12 | $0.00 | $0.00 | $2320.25 | $0.00 |
| 2025 | 25112 | COUNTY - COUNTY LEVIES (CE, DD, VET, MH) | $456.22 | $456.20 | $0.00 | $0.00 | $912.42 | $0.00 |
| 2025 | 25112 | CONSERVE - CONSERVATION FUTURES | $13.68 | $13.68 | $0.00 | $0.00 | $27.36 | $0.00 |
| 2025 | 25112 | COROADS - COUNTY ROADS (ROADS, DIV TO CE) | $365.50 | $365.49 | $0.00 | $0.00 | $730.99 | $0.00 |
| 2025 | 25112 | PORTPT - PORT DISTRICT | $186.16 | $186.16 | $0.00 | $0.00 | $372.32 | $0.00 |
| 2025 | 25112 | PUD1 - PUD #1 | $29.85 | $29.85 | $0.00 | $0.00 | $59.70 | $0.00 |
| 2025 | 25112 | LIB1 - LIBRARY DIST #1 | $141.41 | $141.41 | $0.00 | $0.00 | $282.82 | $0.00 |
| 2025 | 25112 | HD2 - HOSP DIST #2 | $26.62 | $26.61 | $0.00 | $0.00 | $53.23 | $0.00 |
| 2025 | 25112 | SD49 - SCHOOL DIST #49 | $621.75 | $621.75 | $0.00 | $0.00 | $1243.50 | $0.00 |
| 2025 | 25112 | FD1 - FIRE DISTRICT #1 | $602.02 | $602.02 | $0.00 | $0.00 | $1204.04 | $0.00 |
| 2025 | 25112 | EMS1 - FIRE DIST #1 EMS | $231.56 | $231.55 | $0.00 | $0.00 | $463.11 | $0.00 |
| 2025 | 25112 | FP - DNR Forest Fire Protection Assmt | $8.50 | $8.50 | $0.00 | $0.00 | $17.00 | $0.00 |
| 2025 | 25112 | FPLCA - DNR Landowner Contingency Assmt | $3.00 | $3.00 | $0.00 | $0.00 | $6.00 | $0.00 |
| 2025 | 25112 | JCCD - JC Conservation District | $2.55 | $2.55 | $0.00 | $0.00 | $5.10 | $0.00 |
| 2025 | 25112 | NWA - Noxious Weed Assessment | $2.15 | $2.15 | $0.00 | $0.00 | $4.30 | $0.00 |
| 2025 | 25112 | OSS - On Site Septic | $21.50 | $21.50 | $0.00 | $0.00 | $43.00 | $0.00 |
| 2025 | 25112 | WAT - Clean Water District | $13.00 | $13.00 | $0.00 | $0.00 | $26.00 | $0.00 |
| 2025 | 25112 | FP ADMIN - FP ADMIN | $0.50 | $0.00 | $0.00 | $0.00 | $0.50 | $0.00 |
| 2025 | 25112 | TOTAL: | $3886.10 | $3885.54 | $0.00 | $0.00 | $7771.64 | $0.00 |
|
| 2025 | 25112 | $3886.10 | $3885.54 | $0.00 | $0.00 | $7771.64 | $0.00 |
Statement Details |
| 2024 | 25158 | STATE - STATE LEVY (SCHOOL) | $1062.09 | $1062.07 | $0.00 | $0.00 | $2124.16 | $0.00 |
| 2024 | 25158 | COUNTY - COUNTY LEVIES (CE, DD, VET, MH) | $454.49 | $454.46 | $0.00 | $0.00 | $908.95 | $0.00 |
| 2024 | 25158 | CONSERVE - CONSERVATION FUTURES | $13.63 | $13.63 | $0.00 | $0.00 | $27.26 | $0.00 |
| 2024 | 25158 | COROADS - COUNTY ROADS (ROADS, DIV TO CE) | $365.71 | $365.69 | $0.00 | $0.00 | $731.40 | $0.00 |
| 2024 | 25158 | PORTPT - PORT DISTRICT | $187.72 | $187.71 | $0.00 | $0.00 | $375.43 | $0.00 |
| 2024 | 25158 | PUD1 - PUD #1 | $29.85 | $29.85 | $0.00 | $0.00 | $59.70 | $0.00 |
| 2024 | 25158 | LIB1 - LIBRARY DIST #1 | $141.49 | $141.48 | $0.00 | $0.00 | $282.97 | $0.00 |
| 2024 | 25158 | HD2 - HOSP DIST #2 | $26.52 | $26.51 | $0.00 | $0.00 | $53.03 | $0.00 |
| 2024 | 25158 | SD49 - SCHOOL DIST #49 | $474.27 | $474.26 | $0.00 | $0.00 | $948.53 | $0.00 |
| 2024 | 25158 | FD1 - FIRE DISTRICT #1 | $600.92 | $600.92 | $0.00 | $0.00 | $1201.84 | $0.00 |
| 2024 | 25158 | EMS1 - FIRE DIST #1 EMS | $229.53 | $229.53 | $0.00 | $0.00 | $459.06 | $0.00 |
| 2024 | 25158 | FP - DNR Forest Fire Protection Assmt | $8.50 | $8.50 | $0.00 | $0.00 | $17.00 | $0.00 |
| 2024 | 25158 | FPLCA - DNR Landowner Contingency Assmt | $3.00 | $3.00 | $0.00 | $0.00 | $6.00 | $0.00 |
| 2024 | 25158 | JCCD - JC Conservation District | $2.55 | $2.55 | $0.00 | $0.00 | $5.10 | $0.00 |
| 2024 | 25158 | NWA - Noxious Weed Assessment | $2.15 | $2.15 | $0.00 | $0.00 | $4.30 | $0.00 |
| 2024 | 25158 | OSS - On Site Septic | $21.00 | $21.00 | $0.00 | $0.00 | $42.00 | $0.00 |
| 2024 | 25158 | WAT - Clean Water District | $12.50 | $12.50 | $0.00 | $0.00 | $25.00 | $0.00 |
| 2024 | 25158 | FP ADMIN - FP ADMIN | $0.50 | $0.00 | $0.00 | $0.00 | $0.50 | $0.00 |
| 2024 | 25158 | TOTAL: | $3636.42 | $3635.81 | $0.00 | $0.00 | $7272.23 | $0.00 |
|
| 2024 | 25158 | $3636.42 | $3635.81 | $0.00 | $0.00 | $7272.23 | $0.00 |
Statement Details |
| 2023 | 25199 | STATE - STATE LEVY (SCHOOL) | $1061.83 | $1061.83 | $0.00 | $0.00 | $2123.66 | $0.00 |
| 2023 | 25199 | COUNTY - COUNTY LEVIES (CE, DD, VET, MH) | $463.36 | $463.34 | $0.00 | $0.00 | $926.70 | $0.00 |
| 2023 | 25199 | CONSERVE - CONSERVATION FUTURES | $13.90 | $13.89 | $0.00 | $0.00 | $27.79 | $0.00 |
| 2023 | 25199 | COROADS - COUNTY ROADS (ROADS, DIV TO CE) | $374.89 | $374.88 | $0.00 | $0.00 | $749.77 | $0.00 |
| 2023 | 25199 | PORTPT - PORT DISTRICT | $195.19 | $195.18 | $0.00 | $0.00 | $390.37 | $0.00 |
| 2023 | 25199 | PUD1 - PUD #1 | $30.72 | $30.71 | $0.00 | $0.00 | $61.43 | $0.00 |
| 2023 | 25199 | LIB1 - LIBRARY DIST #1 | $145.04 | $145.04 | $0.00 | $0.00 | $290.08 | $0.00 |
| 2023 | 25199 | HD2 - HOSP DIST #2 | $27.04 | $27.03 | $0.00 | $0.00 | $54.07 | $0.00 |
| 2023 | 25199 | SD49 - SCHOOL DIST #49 | $496.36 | $496.34 | $0.00 | $0.00 | $992.70 | $0.00 |
| 2023 | 25199 | FD1 - FIRE DISTRICT #1 | $381.71 | $381.70 | $0.00 | $0.00 | $763.41 | $0.00 |
| 2023 | 25199 | EMS1 - FIRE DIST #1 EMS | $162.37 | $162.37 | $0.00 | $0.00 | $324.74 | $0.00 |
| 2023 | 25199 | FP - DNR Forest Fire Protection Assmt | $8.50 | $8.50 | $0.00 | $0.00 | $17.00 | $0.00 |
| 2023 | 25199 | FPLCA - DNR Landowner Contingency Assmt | $3.00 | $3.00 | $0.00 | $0.00 | $6.00 | $0.00 |
| 2023 | 25199 | JCCD - JC Conservation District | $2.55 | $2.55 | $0.00 | $0.00 | $5.10 | $0.00 |
| 2023 | 25199 | NWA - Noxious Weed Assessment | $2.15 | $2.15 | $0.00 | $0.00 | $4.30 | $0.00 |
| 2023 | 25199 | OSS - On Site Septic | $20.50 | $20.50 | $0.00 | $0.00 | $41.00 | $0.00 |
| 2023 | 25199 | WAT - Clean Water District | $12.00 | $12.00 | $0.00 | $0.00 | $24.00 | $0.00 |
| 2023 | 25199 | FP ADMIN - FP ADMIN | $0.50 | $0.00 | $0.00 | $0.00 | $0.50 | $0.00 |
| 2023 | 25199 | TOTAL: | $3401.61 | $3401.01 | $0.00 | $0.00 | $6802.62 | $0.00 |
|
| 2023 | 25199 | $3401.61 | $3401.01 | $0.00 | $0.00 | $6802.62 | $0.00 |
Values
| (+) Improvement Homesite Value: | + | $0 | |
| (+) Improvement Non-Homesite Value: | + | $786,511 | |
| (+) Land Homesite Value: | + | $0 | |
| (+) Land Non-Homesite Value: | + | $225,500 | |
| (+) Curr Use (HS): | + | $0 | $0 |
| (+) Curr Use (NHS): | + | $0 | $0 |
| | | -------------------------- | |
| (=) Market Value: | = | $1,012,011 | |
| (–) Productivity Loss: | – | $0 | |
| | | -------------------------- | |
| (=) Subtotal: | = | $1,012,011 | |
| (+) Senior Appraised Value: | + | $0 | |
| (+) Non-Senior Appraised Value: | + | $1,012,011 | |
| | | -------------------------- | |
| (=) Total Appraised Value: | = | $1,012,011 | |
| (–) Senior Exemption Loss: | – | $0 | |
| (–) Exemption Loss: | – | $0 | |
| | | -------------------------- | |
| (=) Taxable Value: | = | $1,012,011 | |
Taxing Jurisdiction
| Owner: | JACK & LA VERNE CHEN | | |
| % Ownership: | 100.0000000000% | | |
| Total Value: | $1,012,011 | | |
| Tax Area: | 0211 - 1-49F1E1H2L1 |
| CE | COUNTY CURRENT EXPENSE | 0.9034619479 | $1,012,011 | $1,012,011 | $914.31 | | |
| CNTYDD | DEVELOPMENTAL DISABILITIES | 0.0052121823 | $1,012,011 | $1,012,011 | $5.27 | | |
| CNTYVET | VETERANS RELIEF | 0.0052777810 | $1,012,011 | $1,012,011 | $5.34 | | |
| MENTAL | MENTAL HEALTH | 0.0052121823 | $1,012,011 | $1,012,011 | $5.27 | | |
| ROADS | COUNTY ROADS | 0.7415066410 | $1,012,011 | $1,012,011 | $750.41 | | |
| ROADSCU | COUNTY ROADS TO CUR EXP | 0.0000000000 | $1,012,011 | $1,012,011 | $0.00 | | |
| HOSP2CASH | HOSP DIST #2 GENERAL | 0.0536075306 | $1,012,011 | $1,012,011 | $54.25 | | |
| SCH49CP | SCHOOL DIST #49 CAP PROJ | 0.6279093905 | $1,012,011 | $1,012,011 | $635.45 | | |
| SCH49MO | SCHOOL DIST #49 EP & O | 0.6376483602 | $1,012,011 | $1,012,011 | $645.31 | | |
| CONSERVE | CONSERVATION FUTURES | 0.0275621078 | $1,012,011 | $1,012,011 | $27.89 | | |
| EMS1 | FIRE DIST #1 EMS | 0.4679948282 | $1,012,011 | $1,012,011 | $473.62 | | |
| FD1 | FIRE DIST #1 GENERAL | 1.2171942929 | $1,012,011 | $1,012,011 | $1,231.81 | | |
| LIB1 | LIBRARY DIST #1 GENERAL | 0.2868827388 | $1,012,011 | $1,012,011 | $290.33 | | |
| PORTPT | PORT OF PT GENERAL | 0.1134941229 | $1,012,011 | $1,012,011 | $114.86 | | |
| PORTPTIDD | PORT OF PT IDD 2019 | 0.2577346692 | $1,012,011 | $1,012,011 | $260.83 | | |
| PUD1 | PUD #1 GENERAL | 0.0597888892 | $1,012,011 | $1,012,011 | $60.51 | | |
| STATE | STATE SCHOOL PART 1 | 1.4940692947 | $1,012,011 | $1,012,011 | $1,512.01 | | |
| STATE2 | STATE SCHOOL PART 2 | 0.8050170049 | $1,012,011 | $1,012,011 | $814.69 | | |
| | Total Tax Rate: | 7.7095739644 | | | | | |
| | | | | Taxes w/Current Exemptions: | $7,802.16 | | |
| | | | | Taxes w/o Exemptions: | $7,802.16 | | |
Improvement / Building
| Improvement #1: | Residential Bldg | State Code: | 11 | 2170.0 sqft | Value: | $786,511 |
| Bathrooms (#): | 2 (FULL) | Bathrooms (#): | 1 (HALF) | | Bedrooms (#): | 3 | Exterior Wall: | SI/ST | | Fireplace: | PROPS-GOOD | Floor Construction: | FRAME | | Foundation: | CONPR | Heating/Cooling: | F/A | | Roof Cover: | BLTUP |   |   |
|
| | Type | Description | Class CD | Sub Class CD | Year Built | Area |
| | MA | Main Area | 6- | 2S | 2014 | 1220.0 |
| | MA2 | Second Floor Main Area | 6- | 2S | 2014 | 950.0 |
| | GDET | Detached Garage | 5 | 2S | 2014 | 550.0 |
| | HDECK | House Deck | 5 | 2S | 2014 | 698.0 |
| | HBAL | House Balcony | 5 | 2S | 2014 | 346.0 |
Sketch
Property Image
Land
| 1 | 4615-1535F | | 0.0000 | 0.00 | 0.00 | 0.00 | 0.00 | $225,500 | $0 |
Roll Value History
| 2026 | N/A | N/A | N/A | N/A | N/A |
| 2025 | $786,511 | $225,500 | $0 | $1,012,011 | $1,012,011 |
| 2024 | $752,315 | $215,250 | $0 | $967,565 | $967,565 |
| 2023 | $718,119 | $200,000 | $0 | $918,119 | $918,119 |
| 2022 | $707,086 | $195,000 | $0 | $902,086 | $902,086 |
Deed and Sales History
| 1 | 10/20/2023 | SLWD | Special Limited Warranty Deed | JACK & LA VERNE CHEN | OUBAITORI LIVING TRUST | | | | 141815 | |
| 2 | 10/20/2023 | SLWD | Special Limited Warranty Deed | JACK & LA VERNE CHEN | | | | | 141770 | |
| 3 | 09/28/2020 | SWD | Statutory Warranty Deed | TERI L & DOUG B WALKER | JACK & LA VERNE CHEN | | | $936,000.00 | 135257 | |
| 4 | 09/23/2016 | SWD | Statutory Warranty Deed | DONALD S MC MAHAN | TERI L & DOUG B WALKER | | | $640,000.00 | 126390 | |
| 5 | 05/23/2012 | SWD | Statutory Warranty Deed | LOHSE, RADJA ANDRE/CHARLO | MCMAHAN, DONALD/JANIE | 0 | 0 | $165,000.00 | 117594 | 0 |
| 6 | 11/02/2004 | SWD | Statutory Warranty Deed | ROTH, RICHARD H/JOYCE P | LOHSE, RADJA ANDRE/PATRICIA CH | 0 | 0 | $125,000.00 | 101960 | 0 |
Payout Agreement
| No payout information available.. |