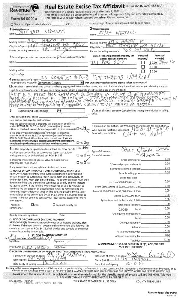
Property
Account |
| Property ID: | 35827 | Abbreviated Legal Description: | RUE'S SHORT PLAT LOT 2 4.91A SUBJ/REST COVT#555612 |
| Parcel # / Geo ID: | 977700069 | Agent Code: | |
| Type: | Real | | |
| Tax Area: | 0211 - 1-49F1E1H2L1 | Land Use Code | 11 |
| Open Space: | N | DFL | N |
| Historic Property: | N | Remodel Property: | N |
| Multi-Family Redevelopment: | N | | |
| Township: | 29N | Section: | 4 |
| Range: | 1E |
Location |
| Address: | 415 MEADE RD NORDLAND, WA 98358 | Mapsco: | 241/046 |
| Neighborhood: | OLSON & HAMBLETONS LP RUES1&2,JANSEN,HOYT,FORD,EM WRIGHT SP | Map ID: | |
| Neighborhood CD: | 4615 |
Owner |
| Name: | KENNETH R & JUDITH G COLLINS | Owner ID: | 13481 |
| Mailing Address: | 400 REINIER RD NORDLAND, WA 98358-9675 | % Ownership: | 100.0000000000% |
| | | Exemptions: | |
Pay Tax Due
Select the appropriate checkbox next to the year to be paid. Multiple years may be selected.
*Convenience Fee not included
Taxes and Assessment Details
Property Tax Information as of
03/11/2026
Click on "Statement Details" to expand or collapse a tax statement.
* Please enter a valid date ** Please enter a valid date *
Statement Details |
| 2026 | 25060 | STATE - STATE LEVY (SCHOOL) | $1337.29 | $1337.28 | $0.00 | $0.00 | $0.00 | $2674.57 |
| 2026 | 25060 | COUNTY - COUNTY LEVIES (CE, DD, VET, MH) | $534.64 | $534.63 | $0.00 | $0.00 | $0.00 | $1069.27 |
| 2026 | 25060 | CONSERVE - CONSERVATION FUTURES | $16.03 | $16.03 | $0.00 | $0.00 | $0.00 | $32.06 |
| 2026 | 25060 | COROADS - COUNTY ROADS (ROADS, DIV TO CE) | $431.31 | $431.30 | $0.00 | $0.00 | $0.00 | $862.61 |
| 2026 | 25060 | PORTPT - PORT DISTRICT | $215.94 | $215.92 | $0.00 | $0.00 | $0.00 | $431.86 |
| 2026 | 25060 | PUD1 - PUD #1 | $34.78 | $34.77 | $0.00 | $0.00 | $0.00 | $69.55 |
| 2026 | 25060 | LIB1 - LIBRARY DIST #1 | $166.87 | $166.87 | $0.00 | $0.00 | $0.00 | $333.74 |
| 2026 | 25060 | HD2 - HOSP DIST #2 | $31.18 | $31.18 | $0.00 | $0.00 | $0.00 | $62.36 |
| 2026 | 25060 | SD49 - SCHOOL DIST #49 | $736.13 | $736.12 | $0.00 | $0.00 | $0.00 | $1472.25 |
| 2026 | 25060 | FD1 - FIRE DISTRICT #1 | $707.99 | $707.99 | $0.00 | $0.00 | $0.00 | $1415.98 |
| 2026 | 25060 | EMS1 - FIRE DIST #1 EMS | $272.22 | $272.21 | $0.00 | $0.00 | $0.00 | $544.43 |
| 2026 | 25060 | FP - DNR Forest Fire Protection Assmt | $8.50 | $8.50 | $0.00 | $0.00 | $0.00 | $17.00 |
| 2026 | 25060 | FPLCA - DNR Landowner Contingency Assmt | $3.00 | $3.00 | $0.00 | $0.00 | $0.00 | $6.00 |
| 2026 | 25060 | JCCD - JC Conservation District | $2.75 | $2.75 | $0.00 | $0.00 | $0.00 | $5.50 |
| 2026 | 25060 | NWA - Noxious Weed Assessment | $3.88 | $3.87 | $0.00 | $0.00 | $0.00 | $7.75 |
| 2026 | 25060 | OSS - On Site Septic | $23.10 | $23.10 | $0.00 | $0.00 | $0.00 | $46.20 |
| 2026 | 25060 | WAT - Clean Water District | $13.00 | $13.00 | $0.00 | $0.00 | $0.00 | $26.00 |
| 2026 | 25060 | FP ADMIN - FP ADMIN | $0.50 | $0.00 | $0.00 | $0.00 | $0.00 | $0.50 |
| 2026 | 25060 | TOTAL: | $4539.11 | $4538.52 | $0.00 | $0.00 | $0.00 | $9077.63 |
|
| 2026 | 25060 | $4539.11 | $4538.52 | $0.00 | $0.00 | $0.00 | $9077.63 |
Statement Details |
| 2025 | 25128 | STATE - STATE LEVY (SCHOOL) | $1333.40 | $1333.39 | $0.00 | $0.00 | $2666.79 | $0.00 |
| 2025 | 25128 | COUNTY - COUNTY LEVIES (CE, DD, VET, MH) | $524.36 | $524.33 | $0.00 | $0.00 | $1048.69 | $0.00 |
| 2025 | 25128 | CONSERVE - CONSERVATION FUTURES | $15.73 | $15.72 | $0.00 | $0.00 | $31.45 | $0.00 |
| 2025 | 25128 | COROADS - COUNTY ROADS (ROADS, DIV TO CE) | $420.09 | $420.08 | $0.00 | $0.00 | $840.17 | $0.00 |
| 2025 | 25128 | PORTPT - PORT DISTRICT | $213.97 | $213.96 | $0.00 | $0.00 | $427.93 | $0.00 |
| 2025 | 25128 | PUD1 - PUD #1 | $34.31 | $34.31 | $0.00 | $0.00 | $68.62 | $0.00 |
| 2025 | 25128 | LIB1 - LIBRARY DIST #1 | $162.53 | $162.53 | $0.00 | $0.00 | $325.06 | $0.00 |
| 2025 | 25128 | HD2 - HOSP DIST #2 | $30.59 | $30.59 | $0.00 | $0.00 | $61.18 | $0.00 |
| 2025 | 25128 | SD49 - SCHOOL DIST #49 | $714.62 | $714.61 | $0.00 | $0.00 | $1429.23 | $0.00 |
| 2025 | 25128 | FD1 - FIRE DISTRICT #1 | $691.94 | $691.93 | $0.00 | $0.00 | $1383.87 | $0.00 |
| 2025 | 25128 | EMS1 - FIRE DIST #1 EMS | $266.14 | $266.13 | $0.00 | $0.00 | $532.27 | $0.00 |
| 2025 | 25128 | FP - DNR Forest Fire Protection Assmt | $8.50 | $8.50 | $0.00 | $0.00 | $17.00 | $0.00 |
| 2025 | 25128 | FPLCA - DNR Landowner Contingency Assmt | $3.00 | $3.00 | $0.00 | $0.00 | $6.00 | $0.00 |
| 2025 | 25128 | JCCD - JC Conservation District | $2.75 | $2.75 | $0.00 | $0.00 | $5.50 | $0.00 |
| 2025 | 25128 | NWA - Noxious Weed Assessment | $2.75 | $2.75 | $0.00 | $0.00 | $5.50 | $0.00 |
| 2025 | 25128 | OSS - On Site Septic | $21.50 | $21.50 | $0.00 | $0.00 | $43.00 | $0.00 |
| 2025 | 25128 | WAT - Clean Water District | $13.00 | $13.00 | $0.00 | $0.00 | $26.00 | $0.00 |
| 2025 | 25128 | FP ADMIN - FP ADMIN | $0.50 | $0.00 | $0.00 | $0.00 | $0.50 | $0.00 |
| 2025 | 25128 | TOTAL: | $4459.68 | $4459.08 | $0.00 | $0.00 | $8918.76 | $0.00 |
|
| 2025 | 25128 | $4459.68 | $4459.08 | $0.00 | $0.00 | $8918.76 | $0.00 |
Statement Details |
| 2024 | 25174 | STATE - STATE LEVY (SCHOOL) | $1221.39 | $1221.38 | $0.00 | $0.00 | $2442.77 | $0.00 |
| 2024 | 25174 | COUNTY - COUNTY LEVIES (CE, DD, VET, MH) | $522.65 | $522.64 | $0.00 | $0.00 | $1045.29 | $0.00 |
| 2024 | 25174 | CONSERVE - CONSERVATION FUTURES | $15.67 | $15.67 | $0.00 | $0.00 | $31.34 | $0.00 |
| 2024 | 25174 | COROADS - COUNTY ROADS (ROADS, DIV TO CE) | $420.55 | $420.55 | $0.00 | $0.00 | $841.10 | $0.00 |
| 2024 | 25174 | PORTPT - PORT DISTRICT | $215.88 | $215.87 | $0.00 | $0.00 | $431.75 | $0.00 |
| 2024 | 25174 | PUD1 - PUD #1 | $34.33 | $34.33 | $0.00 | $0.00 | $68.66 | $0.00 |
| 2024 | 25174 | LIB1 - LIBRARY DIST #1 | $162.71 | $162.71 | $0.00 | $0.00 | $325.42 | $0.00 |
| 2024 | 25174 | HD2 - HOSP DIST #2 | $30.50 | $30.49 | $0.00 | $0.00 | $60.99 | $0.00 |
| 2024 | 25174 | SD49 - SCHOOL DIST #49 | $545.41 | $545.40 | $0.00 | $0.00 | $1090.81 | $0.00 |
| 2024 | 25174 | FD1 - FIRE DISTRICT #1 | $691.06 | $691.05 | $0.00 | $0.00 | $1382.11 | $0.00 |
| 2024 | 25174 | EMS1 - FIRE DIST #1 EMS | $263.96 | $263.96 | $0.00 | $0.00 | $527.92 | $0.00 |
| 2024 | 25174 | FPLCA - DNR Landowner Contingency Assmt | $3.00 | $3.00 | $0.00 | $0.00 | $6.00 | $0.00 |
| 2024 | 25174 | JCCD - JC Conservation District | $2.75 | $2.75 | $0.00 | $0.00 | $5.50 | $0.00 |
| 2024 | 25174 | NWA - Noxious Weed Assessment | $2.75 | $2.75 | $0.00 | $0.00 | $5.50 | $0.00 |
| 2024 | 25174 | OSS - On Site Septic | $21.00 | $21.00 | $0.00 | $0.00 | $42.00 | $0.00 |
| 2024 | 25174 | WAT - Clean Water District | $12.50 | $12.50 | $0.00 | $0.00 | $25.00 | $0.00 |
| 2024 | 25174 | TOTAL: | $4166.11 | $4166.05 | $0.00 | $0.00 | $8332.16 | $0.00 |
|
| 2024 | 25174 | $4166.11 | $4166.05 | $0.00 | $0.00 | $8332.16 | $0.00 |
Statement Details |
| 2023 | 25215 | STATE - STATE LEVY (SCHOOL) | $1143.66 | $1143.65 | $0.00 | $0.00 | $2287.31 | $0.00 |
| 2023 | 25215 | COUNTY - COUNTY LEVIES (CE, DD, VET, MH) | $499.07 | $499.05 | $0.00 | $0.00 | $998.12 | $0.00 |
| 2023 | 25215 | CONSERVE - CONSERVATION FUTURES | $14.97 | $14.96 | $0.00 | $0.00 | $29.93 | $0.00 |
| 2023 | 25215 | COROADS - COUNTY ROADS (ROADS, DIV TO CE) | $403.78 | $403.77 | $0.00 | $0.00 | $807.55 | $0.00 |
| 2023 | 25215 | PORTPT - PORT DISTRICT | $210.23 | $210.23 | $0.00 | $0.00 | $420.46 | $0.00 |
| 2023 | 25215 | PUD1 - PUD #1 | $33.08 | $33.08 | $0.00 | $0.00 | $66.16 | $0.00 |
| 2023 | 25215 | LIB1 - LIBRARY DIST #1 | $156.22 | $156.21 | $0.00 | $0.00 | $312.43 | $0.00 |
| 2023 | 25215 | HD2 - HOSP DIST #2 | $29.12 | $29.12 | $0.00 | $0.00 | $58.24 | $0.00 |
| 2023 | 25215 | SD49 - SCHOOL DIST #49 | $534.60 | $534.59 | $0.00 | $0.00 | $1069.19 | $0.00 |
| 2023 | 25215 | FD1 - FIRE DISTRICT #1 | $411.12 | $411.12 | $0.00 | $0.00 | $822.24 | $0.00 |
| 2023 | 25215 | EMS1 - FIRE DIST #1 EMS | $174.89 | $174.88 | $0.00 | $0.00 | $349.77 | $0.00 |
| 2023 | 25215 | FPLCA - DNR Landowner Contingency Assmt | $3.00 | $3.00 | $0.00 | $0.00 | $6.00 | $0.00 |
| 2023 | 25215 | JCCD - JC Conservation District | $2.75 | $2.75 | $0.00 | $0.00 | $5.50 | $0.00 |
| 2023 | 25215 | NWA - Noxious Weed Assessment | $2.75 | $2.75 | $0.00 | $0.00 | $5.50 | $0.00 |
| 2023 | 25215 | OSS - On Site Septic | $20.50 | $20.50 | $0.00 | $0.00 | $41.00 | $0.00 |
| 2023 | 25215 | WAT - Clean Water District | $12.00 | $12.00 | $0.00 | $0.00 | $24.00 | $0.00 |
| 2023 | 25215 | TOTAL: | $3651.74 | $3651.66 | $0.00 | $0.00 | $7303.40 | $0.00 |
|
| 2023 | 25215 | $3651.74 | $3651.66 | $0.00 | $0.00 | $7303.40 | $0.00 |
Values
| (+) Improvement Homesite Value: | + | $0 | |
| (+) Improvement Non-Homesite Value: | + | $827,685 | |
| (+) Land Homesite Value: | + | $0 | |
| (+) Land Non-Homesite Value: | + | $335,632 | |
| (+) Curr Use (HS): | + | $0 | $0 |
| (+) Curr Use (NHS): | + | $0 | $0 |
| | | -------------------------- | |
| (=) Market Value: | = | $1,163,317 | |
| (–) Productivity Loss: | – | $0 | |
| | | -------------------------- | |
| (=) Subtotal: | = | $1,163,317 | |
| (+) Senior Appraised Value: | + | $0 | |
| (+) Non-Senior Appraised Value: | + | $1,163,317 | |
| | | -------------------------- | |
| (=) Total Appraised Value: | = | $1,163,317 | |
| (–) Senior Exemption Loss: | – | $0 | |
| (–) Exemption Loss: | – | $0 | |
| | | -------------------------- | |
| (=) Taxable Value: | = | $1,163,317 | |
Taxing Jurisdiction
| Owner: | KENNETH R & JUDITH G COLLINS | | |
| % Ownership: | 100.0000000000% | | |
| Total Value: | $1,163,317 | | |
| Tax Area: | 0211 - 1-49F1E1H2L1 |
| CE | COUNTY CURRENT EXPENSE | 0.9034619479 | $1,163,317 | $1,163,317 | $1,051.01 | | |
| CNTYDD | DEVELOPMENTAL DISABILITIES | 0.0052121823 | $1,163,317 | $1,163,317 | $6.06 | | |
| CNTYVET | VETERANS RELIEF | 0.0052777810 | $1,163,317 | $1,163,317 | $6.14 | | |
| MENTAL | MENTAL HEALTH | 0.0052121823 | $1,163,317 | $1,163,317 | $6.06 | | |
| ROADS | COUNTY ROADS | 0.7415066410 | $1,163,317 | $1,163,317 | $862.61 | | |
| ROADSCU | COUNTY ROADS TO CUR EXP | 0.0000000000 | $1,163,317 | $1,163,317 | $0.00 | | |
| HOSP2CASH | HOSP DIST #2 GENERAL | 0.0536075306 | $1,163,317 | $1,163,317 | $62.36 | | |
| SCH49CP | SCHOOL DIST #49 CAP PROJ | 0.6279093905 | $1,163,317 | $1,163,317 | $730.46 | | |
| SCH49MO | SCHOOL DIST #49 EP & O | 0.6376483602 | $1,163,317 | $1,163,317 | $741.79 | | |
| CONSERVE | CONSERVATION FUTURES | 0.0275621078 | $1,163,317 | $1,163,317 | $32.06 | | |
| EMS1 | FIRE DIST #1 EMS | 0.4679948282 | $1,163,317 | $1,163,317 | $544.43 | | |
| FD1 | FIRE DIST #1 GENERAL | 1.2171942929 | $1,163,317 | $1,163,317 | $1,415.98 | | |
| LIB1 | LIBRARY DIST #1 GENERAL | 0.2868827388 | $1,163,317 | $1,163,317 | $333.74 | | |
| PORTPT | PORT OF PT GENERAL | 0.1134941229 | $1,163,317 | $1,163,317 | $132.03 | | |
| PORTPTIDD | PORT OF PT IDD 2019 | 0.2577346692 | $1,163,317 | $1,163,317 | $299.83 | | |
| PUD1 | PUD #1 GENERAL | 0.0597888892 | $1,163,317 | $1,163,317 | $69.55 | | |
| STATE | STATE SCHOOL PART 1 | 1.4940692947 | $1,163,317 | $1,163,317 | $1,738.08 | | |
| STATE2 | STATE SCHOOL PART 2 | 0.8050170049 | $1,163,317 | $1,163,317 | $936.49 | | |
| | Total Tax Rate: | 7.7095739644 | | | | | |
| | | | | Taxes w/Current Exemptions: | $8,968.68 | | |
| | | | | Taxes w/o Exemptions: | $8,968.68 | | |
Improvement / Building
| Improvement #1: | Residential Bldg | State Code: | 11 | 1917.0 sqft | Value: | $827,685 |
| Bathrooms (#): | 2 (FULL) | Bathrooms (#): | 1 (HALF) | | Bedrooms (#): | 2 | Exterior Wall: | SI/ST | | Fireplace: | DBL 2-GOOD | Floor Construction: | FRAME | | Foundation: | CONPR | Heating/Cooling: | HTWTR | | Roof Cover: | METAL |   |   |
|
| | Type | Description | Class CD | Sub Class CD | Year Built | Area |
| | MA | Main Area | 4 | 1S | 1995 | 1917.0 |
| | PATIO | House Patio | 4 | 1S | 1995 | 128.3 |
| | HWPOR | House Wood Porch | 4 | 1S | 1995 | 80.0 |
| | HDECK | House Deck | 4 | 1S | 1995 | 1893.0 |
| | BARN | Barn (Table Not Dep) | 6 | 1S | 1995 | 2592.0 |
| | GDET | Detached Garage | 3 | 1S | 1995 | 1500.0 |
| | BSMTF | House basement finished | 4 | 1S | 1995 | 1956.0 |
Sketch
Property Image
Land
| 1 | 4615-1555A | | 3.9100 | 170319.60 | 0.00 | 0.00 | 0.00 | $137,632 | $0 |
| 2 | 4615-1355S | | 1.0000 | 43560.00 | 0.00 | 0.00 | 1.00 | $198,000 | $0 |
Roll Value History
| 2026 | N/A | N/A | N/A | N/A | N/A |
| 2025 | $827,685 | $335,632 | $0 | $1,163,317 | $1,163,317 |
| 2024 | $791,699 | $320,376 | $0 | $1,112,075 | $1,112,075 |
| 2023 | $755,712 | $300,120 | $0 | $1,055,832 | $1,055,832 |
| 2022 | $684,302 | $287,300 | $0 | $971,602 | $971,602 |
Deed and Sales History
| 1 | 03/09/2006 | SWD | Statutory Warranty Deed | KOESTER, PAUL F/JEANNE M | COLLINS, KENNETH R/JUDITH G | | | $770,000.00 | 106753 | 0 |
| 2 | 02/28/1994 | SWD | Statutory Warranty Deed | O'HARA, CHARLES W/SHARON | KOESTER, PAUL F/JEANNE M | 0 | 0 | $80,000.00 | 73476 | 0 |
Payout Agreement
| No payout information available.. |