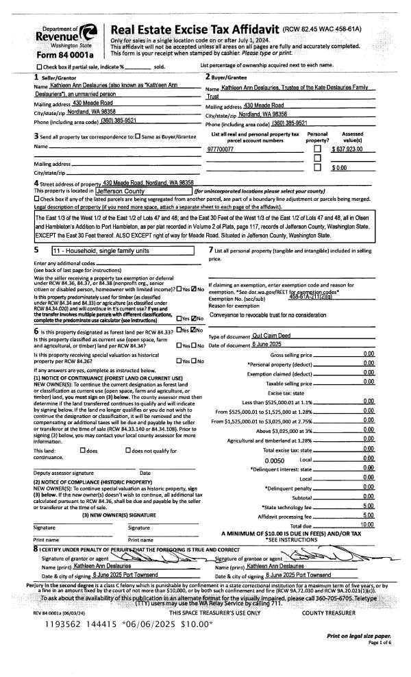
Property
Account |
| Property ID: | 35833 | Abbreviated Legal Description: | OLSON & HAMBLETON'S LOTS 47 & 48(TAX 117) |
| Parcel # / Geo ID: | 977700077 | Agent Code: | |
| Type: | Real | | |
| Tax Area: | 0211 - 1-49F1E1H2L1 | Land Use Code | 11 |
| Open Space: | N | DFL | N |
| Historic Property: | N | Remodel Property: | N |
| Multi-Family Redevelopment: | N | | |
| Township: | 29N | Section: | 4 |
| Range: | 1E |
Location |
| Address: | 430 MEADE RD NORDLAND, WA 98358 | Mapsco: | 077/030 |
| Neighborhood: | OLSON & HAMBLETONS LP RUES1&2,JANSEN,HOYT,FORD,EM WRIGHT SP | Map ID: | |
| Neighborhood CD: | 4615 |
Owner |
| Name: | KATE DESLAURIES FAMILY TRUST | Owner ID: | 112731 |
| Mailing Address: | KATHLEEN A DESLAURIES TRUST 430 MEADE RD NORDLAND, WA 98358-9618 | % Ownership: | 100.0000000000% |
| | | Exemptions: | |
Pay Tax Due
Select the appropriate checkbox next to the year to be paid. Multiple years may be selected.
*Convenience Fee not included
Taxes and Assessment Details
Property Tax Information as of
03/14/2026
Click on "Statement Details" to expand or collapse a tax statement.
* Please enter a valid date ** Please enter a valid date *
Statement Details |
| 2026 | 25066 | STATE - STATE LEVY (SCHOOL) | $767.16 | $767.14 | $0.00 | $0.00 | $0.00 | $1534.30 |
| 2026 | 25066 | COUNTY - COUNTY LEVIES (CE, DD, VET, MH) | $306.70 | $306.70 | $0.00 | $0.00 | $0.00 | $613.40 |
| 2026 | 25066 | CONSERVE - CONSERVATION FUTURES | $9.20 | $9.19 | $0.00 | $0.00 | $0.00 | $18.39 |
| 2026 | 25066 | COROADS - COUNTY ROADS (ROADS, DIV TO CE) | $247.42 | $247.42 | $0.00 | $0.00 | $0.00 | $494.84 |
| 2026 | 25066 | PORTPT - PORT DISTRICT | $123.87 | $123.87 | $0.00 | $0.00 | $0.00 | $247.74 |
| 2026 | 25066 | PUD1 - PUD #1 | $19.95 | $19.95 | $0.00 | $0.00 | $0.00 | $39.90 |
| 2026 | 25066 | LIB1 - LIBRARY DIST #1 | $95.73 | $95.72 | $0.00 | $0.00 | $0.00 | $191.45 |
| 2026 | 25066 | HD2 - HOSP DIST #2 | $17.89 | $17.88 | $0.00 | $0.00 | $0.00 | $35.77 |
| 2026 | 25066 | SD49 - SCHOOL DIST #49 | $422.29 | $422.27 | $0.00 | $0.00 | $0.00 | $844.56 |
| 2026 | 25066 | FD1 - FIRE DISTRICT #1 | $406.15 | $406.14 | $0.00 | $0.00 | $0.00 | $812.29 |
| 2026 | 25066 | EMS1 - FIRE DIST #1 EMS | $156.16 | $156.16 | $0.00 | $0.00 | $0.00 | $312.32 |
| 2026 | 25066 | FP - DNR Forest Fire Protection Assmt | $8.50 | $8.50 | $0.00 | $0.00 | $0.00 | $17.00 |
| 2026 | 25066 | FPLCA - DNR Landowner Contingency Assmt | $3.00 | $3.00 | $0.00 | $0.00 | $0.00 | $6.00 |
| 2026 | 25066 | JCCD - JC Conservation District | $2.60 | $2.60 | $0.00 | $0.00 | $0.00 | $5.20 |
| 2026 | 25066 | NWA - Noxious Weed Assessment | $3.20 | $3.20 | $0.00 | $0.00 | $0.00 | $6.40 |
| 2026 | 25066 | OSS - On Site Septic | $23.10 | $23.10 | $0.00 | $0.00 | $0.00 | $46.20 |
| 2026 | 25066 | WAT - Clean Water District | $13.00 | $13.00 | $0.00 | $0.00 | $0.00 | $26.00 |
| 2026 | 25066 | FP ADMIN - FP ADMIN | $0.50 | $0.00 | $0.00 | $0.00 | $0.00 | $0.50 |
| 2026 | 25066 | TOTAL: | $2626.42 | $2625.84 | $0.00 | $0.00 | $0.00 | $5252.26 |
|
| 2026 | 25066 | $2626.42 | $2625.84 | $0.00 | $0.00 | $0.00 | $5252.26 |
Statement Details |
| 2025 | 25134 | STATE - STATE LEVY (SCHOOL) | $764.88 | $764.87 | $0.00 | $0.00 | $1529.75 | $0.00 |
| 2025 | 25134 | COUNTY - COUNTY LEVIES (CE, DD, VET, MH) | $300.79 | $300.77 | $0.00 | $0.00 | $601.56 | $0.00 |
| 2025 | 25134 | CONSERVE - CONSERVATION FUTURES | $9.02 | $9.02 | $0.00 | $0.00 | $18.04 | $0.00 |
| 2025 | 25134 | COROADS - COUNTY ROADS (ROADS, DIV TO CE) | $240.98 | $240.97 | $0.00 | $0.00 | $481.95 | $0.00 |
| 2025 | 25134 | PORTPT - PORT DISTRICT | $122.74 | $122.74 | $0.00 | $0.00 | $245.48 | $0.00 |
| 2025 | 25134 | PUD1 - PUD #1 | $19.68 | $19.68 | $0.00 | $0.00 | $39.36 | $0.00 |
| 2025 | 25134 | LIB1 - LIBRARY DIST #1 | $93.23 | $93.23 | $0.00 | $0.00 | $186.46 | $0.00 |
| 2025 | 25134 | HD2 - HOSP DIST #2 | $17.55 | $17.55 | $0.00 | $0.00 | $35.10 | $0.00 |
| 2025 | 25134 | SD49 - SCHOOL DIST #49 | $409.94 | $409.92 | $0.00 | $0.00 | $819.86 | $0.00 |
| 2025 | 25134 | FD1 - FIRE DISTRICT #1 | $396.92 | $396.91 | $0.00 | $0.00 | $793.83 | $0.00 |
| 2025 | 25134 | EMS1 - FIRE DIST #1 EMS | $152.67 | $152.66 | $0.00 | $0.00 | $305.33 | $0.00 |
| 2025 | 25134 | FP - DNR Forest Fire Protection Assmt | $8.50 | $8.50 | $0.00 | $0.00 | $17.00 | $0.00 |
| 2025 | 25134 | FPLCA - DNR Landowner Contingency Assmt | $3.00 | $3.00 | $0.00 | $0.00 | $6.00 | $0.00 |
| 2025 | 25134 | JCCD - JC Conservation District | $2.60 | $2.60 | $0.00 | $0.00 | $5.20 | $0.00 |
| 2025 | 25134 | NWA - Noxious Weed Assessment | $2.30 | $2.30 | $0.00 | $0.00 | $4.60 | $0.00 |
| 2025 | 25134 | OSS - On Site Septic | $21.50 | $21.50 | $0.00 | $0.00 | $43.00 | $0.00 |
| 2025 | 25134 | WAT - Clean Water District | $13.00 | $13.00 | $0.00 | $0.00 | $26.00 | $0.00 |
| 2025 | 25134 | FP ADMIN - FP ADMIN | $0.50 | $0.00 | $0.00 | $0.00 | $0.50 | $0.00 |
| 2025 | 25134 | TOTAL: | $2579.80 | $2579.22 | $0.00 | $0.00 | $5159.02 | $0.00 |
|
| 2025 | 25134 | $2579.80 | $2579.22 | $0.00 | $0.00 | $5159.02 | $0.00 |
Statement Details |
| 2024 | 25180 | STATE - STATE LEVY (SCHOOL) | $697.55 | $697.54 | $0.00 | $0.00 | $1395.09 | $0.00 |
| 2024 | 25180 | COUNTY - COUNTY LEVIES (CE, DD, VET, MH) | $298.50 | $298.47 | $0.00 | $0.00 | $596.97 | $0.00 |
| 2024 | 25180 | CONSERVE - CONSERVATION FUTURES | $8.95 | $8.95 | $0.00 | $0.00 | $17.90 | $0.00 |
| 2024 | 25180 | COROADS - COUNTY ROADS (ROADS, DIV TO CE) | $240.19 | $240.18 | $0.00 | $0.00 | $480.37 | $0.00 |
| 2024 | 25180 | PORTPT - PORT DISTRICT | $123.29 | $123.28 | $0.00 | $0.00 | $246.57 | $0.00 |
| 2024 | 25180 | PUD1 - PUD #1 | $19.61 | $19.60 | $0.00 | $0.00 | $39.21 | $0.00 |
| 2024 | 25180 | LIB1 - LIBRARY DIST #1 | $92.93 | $92.92 | $0.00 | $0.00 | $185.85 | $0.00 |
| 2024 | 25180 | HD2 - HOSP DIST #2 | $17.42 | $17.41 | $0.00 | $0.00 | $34.83 | $0.00 |
| 2024 | 25180 | SD49 - SCHOOL DIST #49 | $311.50 | $311.48 | $0.00 | $0.00 | $622.98 | $0.00 |
| 2024 | 25180 | FD1 - FIRE DISTRICT #1 | $394.67 | $394.67 | $0.00 | $0.00 | $789.34 | $0.00 |
| 2024 | 25180 | EMS1 - FIRE DIST #1 EMS | $150.75 | $150.75 | $0.00 | $0.00 | $301.50 | $0.00 |
| 2024 | 25180 | JCCD - JC Conservation District | $2.60 | $2.60 | $0.00 | $0.00 | $5.20 | $0.00 |
| 2024 | 25180 | NWA - Noxious Weed Assessment | $2.30 | $2.30 | $0.00 | $0.00 | $4.60 | $0.00 |
| 2024 | 25180 | OSS - On Site Septic | $21.00 | $21.00 | $0.00 | $0.00 | $42.00 | $0.00 |
| 2024 | 25180 | WAT - Clean Water District | $12.50 | $12.50 | $0.00 | $0.00 | $25.00 | $0.00 |
| 2024 | 25180 | TOTAL: | $2393.76 | $2393.65 | $0.00 | $0.00 | $4787.41 | $0.00 |
|
| 2024 | 25180 | $2393.76 | $2393.65 | $0.00 | $0.00 | $4787.41 | $0.00 |
Statement Details |
| 2023 | 25221 | STATE - STATE LEVY (SCHOOL) | $681.73 | $681.72 | $0.00 | $0.00 | $1363.45 | $0.00 |
| 2023 | 25221 | COUNTY - COUNTY LEVIES (CE, DD, VET, MH) | $297.49 | $297.48 | $0.00 | $0.00 | $594.97 | $0.00 |
| 2023 | 25221 | CONSERVE - CONSERVATION FUTURES | $8.92 | $8.92 | $0.00 | $0.00 | $17.84 | $0.00 |
| 2023 | 25221 | COROADS - COUNTY ROADS (ROADS, DIV TO CE) | $240.69 | $240.68 | $0.00 | $0.00 | $481.37 | $0.00 |
| 2023 | 25221 | PORTPT - PORT DISTRICT | $125.32 | $125.31 | $0.00 | $0.00 | $250.63 | $0.00 |
| 2023 | 25221 | PUD1 - PUD #1 | $19.72 | $19.72 | $0.00 | $0.00 | $39.44 | $0.00 |
| 2023 | 25221 | LIB1 - LIBRARY DIST #1 | $93.12 | $93.12 | $0.00 | $0.00 | $186.24 | $0.00 |
| 2023 | 25221 | HD2 - HOSP DIST #2 | $17.36 | $17.36 | $0.00 | $0.00 | $34.72 | $0.00 |
| 2023 | 25221 | SD49 - SCHOOL DIST #49 | $318.67 | $318.67 | $0.00 | $0.00 | $637.34 | $0.00 |
| 2023 | 25221 | FD1 - FIRE DISTRICT #1 | $245.07 | $245.06 | $0.00 | $0.00 | $490.13 | $0.00 |
| 2023 | 25221 | EMS1 - FIRE DIST #1 EMS | $104.25 | $104.24 | $0.00 | $0.00 | $208.49 | $0.00 |
| 2023 | 25221 | JCCD - JC Conservation District | $2.60 | $2.60 | $0.00 | $0.00 | $5.20 | $0.00 |
| 2023 | 25221 | NWA - Noxious Weed Assessment | $2.30 | $2.30 | $0.00 | $0.00 | $4.60 | $0.00 |
| 2023 | 25221 | OSS - On Site Septic | $20.50 | $20.50 | $0.00 | $0.00 | $41.00 | $0.00 |
| 2023 | 25221 | WAT - Clean Water District | $12.00 | $12.00 | $0.00 | $0.00 | $24.00 | $0.00 |
| 2023 | 25221 | TOTAL: | $2189.74 | $2189.68 | $0.00 | $0.00 | $4379.42 | $0.00 |
|
| 2023 | 25221 | $2189.74 | $2189.68 | $0.00 | $0.00 | $4379.42 | $0.00 |
Values
| (+) Improvement Homesite Value: | + | $0 | |
| (+) Improvement Non-Homesite Value: | + | $459,449 | |
| (+) Land Homesite Value: | + | $0 | |
| (+) Land Non-Homesite Value: | + | $207,900 | |
| (+) Curr Use (HS): | + | $0 | $0 |
| (+) Curr Use (NHS): | + | $0 | $0 |
| | | -------------------------- | |
| (=) Market Value: | = | $667,349 | |
| (–) Productivity Loss: | – | $0 | |
| | | -------------------------- | |
| (=) Subtotal: | = | $667,349 | |
| (+) Senior Appraised Value: | + | $0 | |
| (+) Non-Senior Appraised Value: | + | $667,349 | |
| | | -------------------------- | |
| (=) Total Appraised Value: | = | $667,349 | |
| (–) Senior Exemption Loss: | – | $0 | |
| (–) Exemption Loss: | – | $0 | |
| | | -------------------------- | |
| (=) Taxable Value: | = | $667,349 | |
Taxing Jurisdiction
| Owner: | KATE DESLAURIES FAMILY TRUST | | |
| % Ownership: | 100.0000000000% | | |
| Total Value: | $667,349 | | |
| Tax Area: | 0211 - 1-49F1E1H2L1 |
| CE | COUNTY CURRENT EXPENSE | 0.9034619479 | $667,349 | $667,349 | $602.92 | | |
| CNTYDD | DEVELOPMENTAL DISABILITIES | 0.0052121823 | $667,349 | $667,349 | $3.48 | | |
| CNTYVET | VETERANS RELIEF | 0.0052777810 | $667,349 | $667,349 | $3.52 | | |
| MENTAL | MENTAL HEALTH | 0.0052121823 | $667,349 | $667,349 | $3.48 | | |
| ROADS | COUNTY ROADS | 0.7415066410 | $667,349 | $667,349 | $494.84 | | |
| ROADSCU | COUNTY ROADS TO CUR EXP | 0.0000000000 | $667,349 | $667,349 | $0.00 | | |
| HOSP2CASH | HOSP DIST #2 GENERAL | 0.0536075306 | $667,349 | $667,349 | $35.77 | | |
| SCH49CP | SCHOOL DIST #49 CAP PROJ | 0.6279093905 | $667,349 | $667,349 | $419.03 | | |
| SCH49MO | SCHOOL DIST #49 EP & O | 0.6376483602 | $667,349 | $667,349 | $425.53 | | |
| CONSERVE | CONSERVATION FUTURES | 0.0275621078 | $667,349 | $667,349 | $18.39 | | |
| EMS1 | FIRE DIST #1 EMS | 0.4679948282 | $667,349 | $667,349 | $312.32 | | |
| FD1 | FIRE DIST #1 GENERAL | 1.2171942929 | $667,349 | $667,349 | $812.29 | | |
| LIB1 | LIBRARY DIST #1 GENERAL | 0.2868827388 | $667,349 | $667,349 | $191.45 | | |
| PORTPT | PORT OF PT GENERAL | 0.1134941229 | $667,349 | $667,349 | $75.74 | | |
| PORTPTIDD | PORT OF PT IDD 2019 | 0.2577346692 | $667,349 | $667,349 | $172.00 | | |
| PUD1 | PUD #1 GENERAL | 0.0597888892 | $667,349 | $667,349 | $39.90 | | |
| STATE | STATE SCHOOL PART 1 | 1.4940692947 | $667,349 | $667,349 | $997.07 | | |
| STATE2 | STATE SCHOOL PART 2 | 0.8050170049 | $667,349 | $667,349 | $537.23 | | |
| | Total Tax Rate: | 7.7095739644 | | | | | |
| | | | | Taxes w/Current Exemptions: | $5,144.96 | | |
| | | | | Taxes w/o Exemptions: | $5,144.96 | | |
Improvement / Building
| Improvement #1: | Residential Bldg | State Code: | 11 | 2450.0 sqft | Value: | $459,449 |
| Bathrooms (#): | 2 (FULL) | Bedrooms (#): | 2 | | Exterior Wall: | PL/T1 | Fireplace: | SIN 1-GOOD | | Floor Construction: | FRAME | Foundation: | CONBL | | Heating/Cooling: | HPUMP | Roof Cover: | METAL |
|
| | Type | Description | Class CD | Sub Class CD | Year Built | Area |
| | MA | Main Area | 4- | 1S | 1971 | 2450.0 |
| | PATIO | House Patio | 4 | 1S | 1971 | 671.0 |
| | HCPOR | House Concrete Porch | 4 | 1S | 1971 | 35.0 |
| | GATT | House Attached Garage | 4 | 1S | 1971 | 809.0 |
| | SHED | Shed (Table Not Dep) | 2 | 1S | 1971 | 0.0 |
| | CONCD | Concrete Drive | 4 | 1S | 1971 | 400.0 |
Sketch
| No sketches available for this property. |
Property Image
Land
| 1 | 4615-1355S | | 1.0000 | 43560.00 | 0.00 | 0.00 | 1.00 | $198,000 | $0 |
| 2 | 1572A | | 0.5000 | 21780.00 | 0.00 | 0.00 | 0.00 | $9,900 | $0 |
Roll Value History
| 2026 | N/A | N/A | N/A | N/A | N/A |
| 2025 | $459,449 | $207,900 | $0 | $667,349 | $667,349 |
| 2024 | $439,473 | $198,450 | $0 | $637,923 | $637,923 |
| 2023 | $419,497 | $183,500 | $0 | $602,997 | $602,997 |
| 2022 | $401,666 | $177,500 | $0 | $579,166 | $579,166 |
Deed and Sales History
| 1 | 06/06/2025 | QCD | Quit Claim Deed | KATHLEEN A DES LAURIERS | KATE DESLAURIES FAMILY TRUST | | | | 144415 | |
| 2 | 12/05/2006 | SWD | Statutory Warranty Deed | ALKIRE, GEORGE & CLAIRE T | DES LAURIERS, KATHLEEN | 0 | 0 | $488,000.00 | 108236 | 0 |
| 3 | 01/09/1998 | SWD | Statutory Warranty Deed | DAVIS, PEARL M | ALKIRE, G C/JR & C M/TRUST | 0 | 0 | $105,000.00 | 83676 | 0 |
Payout Agreement
| No payout information available.. |