Property
Account |
| Property ID: | 35870 | Abbreviated Legal Description: | OLYMPIC VIEW TERRACE CONDO BLDG A UNIT 39 |
| Parcel # / Geo ID: | 978200139 | Agent Code: | |
| Type: | Real | | |
| Tax Area: | 0110 - C-50F1E1H2 | Land Use Code | 14 |
| Open Space: | N | DFL | N |
| Historic Property: | N | Remodel Property: | N |
| Multi-Family Redevelopment: | N | | |
| Township: | 30N | Section: | 11 |
| Range: | 1W |
Location |
| Address: | 1930 LAWRENCE ST # 39 PORT TOWNSEND, WA 98368 | Mapsco: | 088/067 |
| Neighborhood: | CYCLE 6 CONDOMINIUMS - PORT TOWNSEND | Map ID: | |
| Neighborhood CD: | 6900 |
Owner |
| Name: | JANE F PATRICK | Owner ID: | 110025 |
| Mailing Address: | 1930 LAWRENCE ST UNIT A39 PORT TOWNSEND, WA 98368-7939 | % Ownership: | 100.0000000000% |
| | | Exemptions: | SNR/DSBL |
Pay Tax Due
Select the appropriate checkbox next to the year to be paid. Multiple years may be selected.
*Convenience Fee not included
Taxes and Assessment Details
Property Tax Information as of
03/10/2026
Click on "Statement Details" to expand or collapse a tax statement.
* Please enter a valid date ** Please enter a valid date *
Statement Details |
| 2026 | 25103 | STATE - STATE LEVY (SCHOOL) | $75.18 | $75.17 | $0.00 | $0.00 | $0.00 | $150.35 |
| 2026 | 25103 | COUNTY - COUNTY LEVIES (CE, DD, VET, MH) | $46.25 | $46.24 | $0.00 | $0.00 | $0.00 | $92.49 |
| 2026 | 25103 | CONSERVE - CONSERVATION FUTURES | $1.39 | $1.38 | $0.00 | $0.00 | $0.00 | $2.77 |
| 2026 | 25103 | CITYPT - CITY OF PT | $63.21 | $63.21 | $0.00 | $0.00 | $0.00 | $126.42 |
| 2026 | 25103 | PORTPT - PORT DISTRICT | $18.68 | $18.68 | $0.00 | $0.00 | $0.00 | $37.36 |
| 2026 | 25103 | PUD1 - PUD #1 | $3.01 | $3.01 | $0.00 | $0.00 | $0.00 | $6.02 |
| 2026 | 25103 | HD2 - HOSP DIST #2 | $2.70 | $2.69 | $0.00 | $0.00 | $0.00 | $5.39 |
| 2026 | 25103 | SD50 - SCHOOL DIST #50 | $0.00 | $0.00 | $0.00 | $0.00 | $0.00 | $0.00 |
| 2026 | 25103 | FD1 - FIRE DISTRICT #1 | $61.25 | $61.24 | $0.00 | $0.00 | $0.00 | $122.49 |
| 2026 | 25103 | EMS1 - FIRE DIST #1 EMS | $23.55 | $23.55 | $0.00 | $0.00 | $0.00 | $47.10 |
| 2026 | 25103 | TOTAL: | $295.22 | $295.17 | $0.00 | $0.00 | $0.00 | $590.39 |
|
| 2026 | 25103 | $295.22 | $295.17 | $0.00 | $0.00 | $0.00 | $590.39 |
Statement Details |
| 2025 | 25171 | STATE - STATE LEVY (SCHOOL) | $78.44 | $78.44 | $0.00 | $0.00 | $156.88 | $0.00 |
| 2025 | 25171 | COUNTY - COUNTY LEVIES (CE, DD, VET, MH) | $47.45 | $47.45 | $0.00 | $0.00 | $94.90 | $0.00 |
| 2025 | 25171 | CONSERVE - CONSERVATION FUTURES | $1.43 | $1.42 | $0.00 | $0.00 | $2.85 | $0.00 |
| 2025 | 25171 | CITYPT - CITY OF PT | $65.86 | $65.85 | $0.00 | $0.00 | $131.71 | $0.00 |
| 2025 | 25171 | PORTPT - PORT DISTRICT | $19.37 | $19.36 | $0.00 | $0.00 | $38.73 | $0.00 |
| 2025 | 25171 | PUD1 - PUD #1 | $3.11 | $3.10 | $0.00 | $0.00 | $6.21 | $0.00 |
| 2025 | 25171 | HD2 - HOSP DIST #2 | $2.77 | $2.77 | $0.00 | $0.00 | $5.54 | $0.00 |
| 2025 | 25171 | SD50 - SCHOOL DIST #50 | $0.00 | $0.00 | $0.00 | $0.00 | $0.00 | $0.00 |
| 2025 | 25171 | FD1 - FIRE DISTRICT #1 | $62.62 | $62.61 | $0.00 | $0.00 | $125.23 | $0.00 |
| 2025 | 25171 | EMS1 - FIRE DIST #1 EMS | $24.09 | $24.08 | $0.00 | $0.00 | $48.17 | $0.00 |
| 2025 | 25171 | JCCD - JC Conservation District | $2.55 | $2.55 | $0.00 | $0.00 | $5.10 | $0.00 |
| 2025 | 25171 | NWA - Noxious Weed Assessment | $2.15 | $2.15 | $0.00 | $0.00 | $4.30 | $0.00 |
| 2025 | 25171 | TOTAL: | $309.84 | $309.78 | $0.00 | $0.00 | $619.62 | $0.00 |
|
| 2025 | 25171 | $309.84 | $309.78 | $0.00 | $0.00 | $619.62 | $0.00 |
Statement Details |
| 2024 | 25217 | STATE - STATE LEVY (SCHOOL) | $254.39 | $254.37 | $0.00 | $0.00 | $508.76 | $0.00 |
| 2024 | 25217 | COUNTY - COUNTY LEVIES (CE, DD, VET, MH) | $108.86 | $108.84 | $0.00 | $0.00 | $217.70 | $0.00 |
| 2024 | 25217 | CONSERVE - CONSERVATION FUTURES | $3.27 | $3.26 | $0.00 | $0.00 | $6.53 | $0.00 |
| 2024 | 25217 | CITYPT - CITY OF PT | $155.54 | $155.52 | $0.00 | $0.00 | $311.06 | $0.00 |
| 2024 | 25217 | PORTPT - PORT DISTRICT | $44.96 | $44.96 | $0.00 | $0.00 | $89.92 | $0.00 |
| 2024 | 25217 | PUD1 - PUD #1 | $7.15 | $7.15 | $0.00 | $0.00 | $14.30 | $0.00 |
| 2024 | 25217 | HD2 - HOSP DIST #2 | $6.35 | $6.35 | $0.00 | $0.00 | $12.70 | $0.00 |
| 2024 | 25217 | SD50 - SCHOOL DIST #50 | $205.81 | $205.79 | $0.00 | $0.00 | $411.60 | $0.00 |
| 2024 | 25217 | FD1 - FIRE DISTRICT #1 | $143.93 | $143.92 | $0.00 | $0.00 | $287.85 | $0.00 |
| 2024 | 25217 | EMS1 - FIRE DIST #1 EMS | $54.98 | $54.97 | $0.00 | $0.00 | $109.95 | $0.00 |
| 2024 | 25217 | JCCD - JC Conservation District | $2.55 | $2.55 | $0.00 | $0.00 | $5.10 | $0.00 |
| 2024 | 25217 | NWA - Noxious Weed Assessment | $2.15 | $2.15 | $0.00 | $0.00 | $4.30 | $0.00 |
| 2024 | 25217 | TOTAL: | $989.94 | $989.83 | $0.00 | $0.00 | $1979.77 | $0.00 |
|
| 2024 | 25217 | $989.94 | $989.83 | $0.00 | $0.00 | $1979.77 | $0.00 |
Statement Details |
| 2023 | 25258 | STATE - STATE LEVY (SCHOOL) | $232.74 | $232.73 | $0.00 | $0.00 | $465.47 | $0.00 |
| 2023 | 25258 | COUNTY - COUNTY LEVIES (CE, DD, VET, MH) | $101.57 | $101.54 | $0.00 | $0.00 | $203.11 | $0.00 |
| 2023 | 25258 | CONSERVE - CONSERVATION FUTURES | $3.05 | $3.04 | $0.00 | $0.00 | $6.09 | $0.00 |
| 2023 | 25258 | CITYPT - CITY OF PT | $143.55 | $143.52 | $0.00 | $0.00 | $287.07 | $0.00 |
| 2023 | 25258 | PORTPT - PORT DISTRICT | $42.78 | $42.78 | $0.00 | $0.00 | $85.56 | $0.00 |
| 2023 | 25258 | PUD1 - PUD #1 | $6.73 | $6.73 | $0.00 | $0.00 | $13.46 | $0.00 |
| 2023 | 25258 | HD2 - HOSP DIST #2 | $5.93 | $5.92 | $0.00 | $0.00 | $11.85 | $0.00 |
| 2023 | 25258 | SD50 - SCHOOL DIST #50 | $184.69 | $184.67 | $0.00 | $0.00 | $369.36 | $0.00 |
| 2023 | 25258 | FD1 - FIRE DISTRICT #1 | $83.67 | $83.66 | $0.00 | $0.00 | $167.33 | $0.00 |
| 2023 | 25258 | EMS1 - FIRE DIST #1 EMS | $35.59 | $35.59 | $0.00 | $0.00 | $71.18 | $0.00 |
| 2023 | 25258 | JCCD - JC Conservation District | $2.55 | $2.55 | $0.00 | $0.00 | $5.10 | $0.00 |
| 2023 | 25258 | NWA - Noxious Weed Assessment | $2.15 | $2.15 | $0.00 | $0.00 | $4.30 | $0.00 |
| 2023 | 25258 | TOTAL: | $845.00 | $844.88 | $0.00 | $0.00 | $1689.88 | $0.00 |
|
| 2023 | 25258 | $845.00 | $844.88 | $0.00 | $0.00 | $1689.88 | $0.00 |
Values
| (+) Improvement Homesite Value: | + | $131,586 | |
| (+) Improvement Non-Homesite Value: | + | $0 | |
| (+) Land Homesite Value: | + | $120,000 | |
| (+) Land Non-Homesite Value: | + | $0 | |
| (+) Curr Use (HS): | + | $0 | $0 |
| (+) Curr Use (NHS): | + | $0 | $0 |
| | | -------------------------- | |
| (=) Market Value: | = | $251,586 | |
| (–) Productivity Loss: | – | $0 | |
| | | -------------------------- | |
| (=) Subtotal: | = | $251,586 | |
| (+) Senior Appraised Value: | + | $251,586 | |
| (+) Non-Senior Appraised Value: | + | $0 | |
| | | -------------------------- | |
| (=) Total Appraised Value: | = | $251,586 | |
| (–) Senior Exemption Loss: | – | $150,952 | |
| (–) Exemption Loss: | – | $0 | |
| | | -------------------------- | |
| (=) Taxable Value: | = | $100,634 | |
Taxing Jurisdiction
| Owner: | JANE F PATRICK | | |
| % Ownership: | 100.0000000000% | | |
| Total Value: | $251,586 | | |
| Tax Area: | 0110 - C-50F1E1H2 |
| CE | COUNTY CURRENT EXPENSE | 0.9034619479 | $251,586 | $100,634 | $90.92 | | |
| CNTYDD | DEVELOPMENTAL DISABILITIES | 0.0052121823 | $251,586 | $100,634 | $0.52 | | |
| CNTYVET | VETERANS RELIEF | 0.0052777810 | $251,586 | $100,634 | $0.53 | | |
| MENTAL | MENTAL HEALTH | 0.0052121823 | $251,586 | $100,634 | $0.52 | | |
| PTGEN | CITY OF PT GENERAL | 0.8551967795 | $251,586 | $100,634 | $86.06 | | |
| PTLLL | CITY OF PT - LIBRARY LID LIFT | 0.4010114288 | $251,586 | $100,634 | $40.36 | | |
| PTMVBOND | CITY OF PT MV BOND | 0.0000000000 | $251,586 | $0 | $0.00 | | |
| HOSP2CASH | HOSP DIST #2 GENERAL | 0.0536075306 | $251,586 | $100,634 | $5.39 | | |
| SCH50BOND | SCHOOL DIST #50 BOND 2016 | 0.0000000000 | $251,586 | $0 | $0.00 | | |
| SCH50CP | SCHOOL DIST #50 CAP PROJ | 0.0000000000 | $251,586 | $0 | $0.00 | | |
| SCH50MO | SCHOOL DIST #50 EP & O | 0.0000000000 | $251,586 | $0 | $0.00 | | |
| CONSERVE | CONSERVATION FUTURES | 0.0275621078 | $251,586 | $100,634 | $2.77 | | |
| EMS1 | FIRE DIST #1 EMS | 0.4679948282 | $251,586 | $100,634 | $47.10 | | |
| FD1 | FIRE DIST #1 GENERAL | 1.2171942929 | $251,586 | $100,634 | $122.49 | | |
| PORTPT | PORT OF PT GENERAL | 0.1134941229 | $251,586 | $100,634 | $11.42 | | |
| PORTPTIDD | PORT OF PT IDD 2019 | 0.2577346692 | $251,586 | $100,634 | $25.94 | | |
| PUD1 | PUD #1 GENERAL | 0.0597888892 | $251,586 | $100,634 | $6.02 | | |
| STATE | STATE SCHOOL PART 1 | 1.4940692947 | $251,586 | $100,634 | $150.35 | | |
| STATE2 | STATE SCHOOL PART 2 | 0.0000000000 | $251,586 | $0 | $0.00 | | |
| | Total Tax Rate: | 5.8668180373 | | | | | |
| | | | | Taxes w/Current Exemptions: | $590.39 | | |
| | | | | Taxes w/o Exemptions: | $2,148.96 | | |
Improvement / Building
| Improvement #1: | Residential Bldg | State Code: | 14 | 482.0 sqft | Value: | $131,586 |
Sketch
| No sketches available for this property. |
Property Image
Land
| 1 | 9782-4115S | | 0.0000 | 0.00 | 0.00 | 0.00 | 1.00 | $120,000 | $0 |
Roll Value History
| 2026 | N/A | N/A | N/A | N/A | N/A |
| 2025 | $131,586 | $120,000 | $0 | $251,586 | $100,634 |
| 2024 | $131,586 | $120,000 | $0 | $251,586 | $100,634 |
| 2023 | $109,896 | $110,000 | $0 | $219,896 | $219,896 |
| 2022 | $87,724 | $110,000 | $0 | $197,724 | $197,724 |
Deed and Sales History
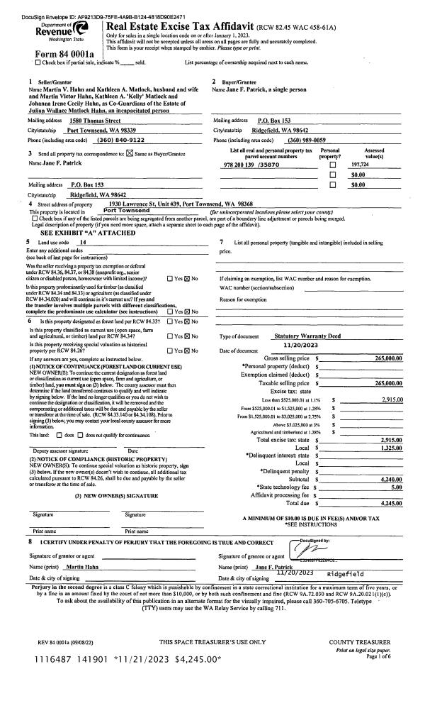
| 1 | 11/20/2023 | SWD | Statutory Warranty Deed | JULIAN W M HAHN | JANE F PATRICK | | | $265,000.00 | 141901 | |
| 2 | 10/08/2015 | SWD | Statutory Warranty Deed | MC CULLOUGH REAL ESTATE LLC | JULIAN W M HAHN | | | $107,000.00 | 124193 | |
Payout Agreement
| No payout information available.. |