Property
Account |
| Property ID: | 35891 | Abbreviated Legal Description: | OLYMPIC VIEW TERRACE CONDO BLDG C UNIT 2 |
| Parcel # / Geo ID: | 978200302 | Agent Code: | |
| Type: | Real | | |
| Tax Area: | 0110 - C-50F1E1H2 | Land Use Code | 14 |
| Open Space: | N | DFL | N |
| Historic Property: | N | Remodel Property: | N |
| Multi-Family Redevelopment: | N | | |
| Township: | 30N | Section: | 11 |
| Range: | 1W |
Location |
| Address: | 1930 LAWRENCE ST #2 PORT TOWNSEND, WA 98368 | Mapsco: | 088/032 |
| Neighborhood: | CYCLE 6 CONDOMINIUMS - PORT TOWNSEND | Map ID: | |
| Neighborhood CD: | 6900 |
Owner |
| Name: | SYLVIA P BOWMAN | Owner ID: | 36313 |
| Mailing Address: | 514 SCOTT ST PORT TOWNSEND, WA 98368-6924 | % Ownership: | 100.0000000000% |
| | | Exemptions: | |
Pay Tax Due
There is currently No Amount Due on this property.
Taxes and Assessment Details
Property Tax Information as of
03/11/2026
Click on "Statement Details" to expand or collapse a tax statement.
* Please enter a valid date ** Please enter a valid date *
Statement Details |
| | TOTAL: | $0.00 | $0.00 | $0.00 | $0.00 | $0.00 | $0.00 |
|
| | $0.00 | $0.00 | $0.00 | $0.00 | $0.00 | $0.00 |
Values
| (+) Improvement Homesite Value: | + | $0 | |
| (+) Improvement Non-Homesite Value: | + | $160,524 | |
| (+) Land Homesite Value: | + | $0 | |
| (+) Land Non-Homesite Value: | + | $120,000 | |
| (+) Curr Use (HS): | + | $0 | $0 |
| (+) Curr Use (NHS): | + | $0 | $0 |
| | | -------------------------- | |
| (=) Market Value: | = | $280,524 | |
| (–) Productivity Loss: | – | $0 | |
| | | -------------------------- | |
| (=) Subtotal: | = | $280,524 | |
| (+) Senior Appraised Value: | + | $0 | |
| (+) Non-Senior Appraised Value: | + | $280,524 | |
| | | -------------------------- | |
| (=) Total Appraised Value: | = | $280,524 | |
| (–) Senior Exemption Loss: | – | $0 | |
| (–) Exemption Loss: | – | $0 | |
| | | -------------------------- | |
| (=) Taxable Value: | = | $280,524 | |
Taxing Jurisdiction
| Owner: | SYLVIA P BOWMAN | | |
| % Ownership: | 100.0000000000% | | |
| Total Value: | $280,524 | | |
| Tax Area: | 0110 - C-50F1E1H2 |
| CE | COUNTY CURRENT EXPENSE | 0.9034619479 | $280,524 | $280,524 | $253.44 | | |
| CNTYDD | DEVELOPMENTAL DISABILITIES | 0.0052121823 | $280,524 | $280,524 | $1.46 | | |
| CNTYVET | VETERANS RELIEF | 0.0052777810 | $280,524 | $280,524 | $1.48 | | |
| MENTAL | MENTAL HEALTH | 0.0052121823 | $280,524 | $280,524 | $1.46 | | |
| PTGEN | CITY OF PT GENERAL | 0.8551967795 | $280,524 | $280,524 | $239.90 | | |
| PTLLL | CITY OF PT - LIBRARY LID LIFT | 0.4010114288 | $280,524 | $280,524 | $112.49 | | |
| PTMVBOND | CITY OF PT MV BOND | 0.0484717981 | $280,524 | $280,524 | $13.60 | | |
| HOSP2CASH | HOSP DIST #2 GENERAL | 0.0536075306 | $280,524 | $280,524 | $15.04 | | |
| SCH50BOND | SCHOOL DIST #50 BOND 2016 | 0.5377451389 | $280,524 | $280,524 | $150.85 | | |
| SCH50CP | SCHOOL DIST #50 CAP PROJ | 0.4573475088 | $280,524 | $280,524 | $128.30 | | |
| SCH50MO | SCHOOL DIST #50 EP & O | 0.8262822886 | $280,524 | $280,524 | $231.79 | | |
| CONSERVE | CONSERVATION FUTURES | 0.0275621078 | $280,524 | $280,524 | $7.73 | | |
| EMS1 | FIRE DIST #1 EMS | 0.4679948282 | $280,524 | $280,524 | $131.28 | | |
| FD1 | FIRE DIST #1 GENERAL | 1.2171942929 | $280,524 | $280,524 | $341.45 | | |
| PORTPT | PORT OF PT GENERAL | 0.1134941229 | $280,524 | $280,524 | $31.84 | | |
| PORTPTIDD | PORT OF PT IDD 2019 | 0.2577346692 | $280,524 | $280,524 | $72.30 | | |
| PUD1 | PUD #1 GENERAL | 0.0597888892 | $280,524 | $280,524 | $16.77 | | |
| STATE | STATE SCHOOL PART 1 | 1.4940692947 | $280,524 | $280,524 | $419.12 | | |
| STATE2 | STATE SCHOOL PART 2 | 0.8050170049 | $280,524 | $280,524 | $225.83 | | |
| | Total Tax Rate: | 8.5416817766 | | | | | |
| | | | | Taxes w/Current Exemptions: | $2,396.13 | | |
| | | | | Taxes w/o Exemptions: | $2,396.13 | | |
Improvement / Building
| Improvement #1: | Residential Bldg | State Code: | 14 | 588.0 sqft | Value: | $160,524 |
Sketch
| No sketches available for this property. |
Property Image
Land
| 1 | 9782-4115S | Olympic View Terrace Condo Site | 0.0000 | 0.00 | 0.00 | 0.00 | 1.00 | $120,000 | $0 |
Roll Value History
| 2026 | N/A | N/A | N/A | N/A | N/A |
| 2025 | $160,524 | $120,000 | $0 | $280,524 | $280,524 |
| 2024 | $160,524 | $120,000 | $0 | $280,524 | $280,524 |
| 2023 | $134,064 | $110,000 | $0 | $244,064 | $244,064 |
| 2022 | $107,016 | $110,000 | $0 | $217,016 | $217,016 |
Deed and Sales History
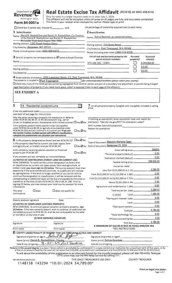
| 1 | 09/23/2024 | SWD | Statutory Warranty Deed | DAVID & RACHEL ROCKAFELLOW REVOCABLE TRUST | SYLVIA P BOWMAN | | | $299,000.00 | 143294 | |
| 2 | 01/21/2020 | SWD | Statutory Warranty Deed | TOMMIE ALFORD | DAVID & RACHEL ROCKAFELLOW REVOCABLE TRUST | | | $194,000.00 | 133867 | |
| 3 | 03/02/2017 | SWD | Statutory Warranty Deed | MARTIN HUNTER FAMILY TRUST | TOMMIE ALFORD | | | $162,800.00 | 127261 | |
| 4 | 11/12/2014 | SWD | Statutory Warranty Deed | PATRICIA STROMBERG | MARTIN HUNTER FAMILY TRUST | | | $98,300.00 | 122259 | |
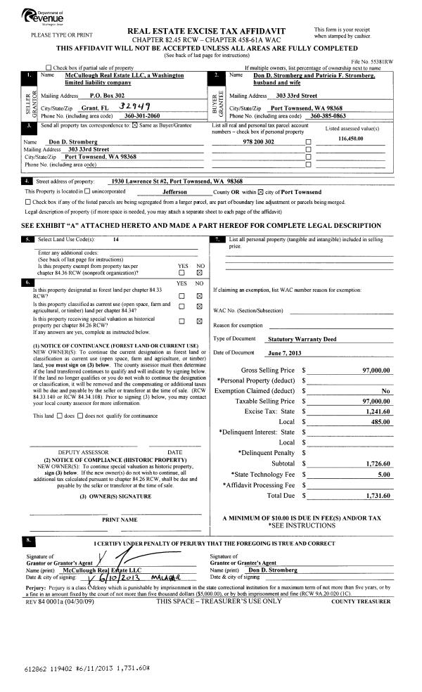
| 5 | 06/11/2013 | SWD | Statutory Warranty Deed | MC CULLOUGH REAL ESTATE LLC | PATRICIA STROMBERG | | | $97,000.00 | 119402 | |
Payout Agreement
| No payout information available.. |