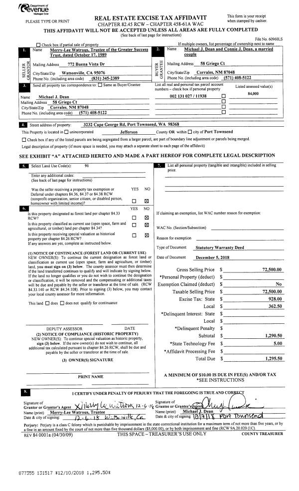
Property
Account |
| Property ID: | 35966 | Abbreviated Legal Description: | OLYMPIC MOBILE VILLAGE IMPS ONLY SPACE 35 |
| Parcel # / Geo ID: | 978706035 | Agent Code: | |
| Type: | Real | | |
| Tax Area: | 0111 - 1-50F1E1H2L1 | Land Use Code | 11M |
| Open Space: | N | DFL | N |
| Historic Property: | N | Remodel Property: | N |
| Multi-Family Redevelopment: | N | | |
| Township: | 30N | Section: | 33 |
| Range: | 1W |
Location |
| Address: | 6062 HIGHWAY 20 SP#35 PORT TOWNSEND, WA 98368 | Mapsco: | 148/035 |
| Neighborhood: | OLYMPIC MOBILE VILLAGE & MOORE'S MOBILE MANOR | Map ID: | |
| Neighborhood CD: | 5382 |
Owner |
| Name: | OLYMPIC VILLAGE MHP LLC | Owner ID: | 94146 |
| Mailing Address: | PO BOX 9 SEQUIM, WA 98382-4300 | % Ownership: | 100.0000000000% |
| | | Exemptions: | |
Pay Tax Due
Select the appropriate checkbox next to the year to be paid. Multiple years may be selected.
*Convenience Fee not included
Taxes and Assessment Details
Property Tax Information as of
03/10/2026
Click on "Statement Details" to expand or collapse a tax statement.
* Please enter a valid date ** Please enter a valid date *
Statement Details |
| 2026 | 25199 | STATE - STATE LEVY (SCHOOL) | $90.99 | $90.97 | $0.00 | $0.00 | $0.00 | $181.96 |
| 2026 | 25199 | COUNTY - COUNTY LEVIES (CE, DD, VET, MH) | $36.39 | $36.36 | $0.00 | $0.00 | $0.00 | $72.75 |
| 2026 | 25199 | CONSERVE - CONSERVATION FUTURES | $1.09 | $1.09 | $0.00 | $0.00 | $0.00 | $2.18 |
| 2026 | 25199 | COROADS - COUNTY ROADS (ROADS, DIV TO CE) | $29.35 | $29.34 | $0.00 | $0.00 | $0.00 | $58.69 |
| 2026 | 25199 | PORTPT - PORT DISTRICT | $14.69 | $14.69 | $0.00 | $0.00 | $0.00 | $29.38 |
| 2026 | 25199 | PUD1 - PUD #1 | $2.37 | $2.36 | $0.00 | $0.00 | $0.00 | $4.73 |
| 2026 | 25199 | LIB1 - LIBRARY DIST #1 | $11.36 | $11.35 | $0.00 | $0.00 | $0.00 | $22.71 |
| 2026 | 25199 | HD2 - HOSP DIST #2 | $2.12 | $2.12 | $0.00 | $0.00 | $0.00 | $4.24 |
| 2026 | 25199 | SD50 - SCHOOL DIST #50 | $72.08 | $72.08 | $0.00 | $0.00 | $0.00 | $144.16 |
| 2026 | 25199 | FD1 - FIRE DISTRICT #1 | $48.17 | $48.17 | $0.00 | $0.00 | $0.00 | $96.34 |
| 2026 | 25199 | EMS1 - FIRE DIST #1 EMS | $18.52 | $18.52 | $0.00 | $0.00 | $0.00 | $37.04 |
| 2026 | 25199 | WAT - Clean Water District | $13.00 | $13.00 | $0.00 | $0.00 | $0.00 | $26.00 |
| 2026 | 25199 | TOTAL: | $340.13 | $340.05 | $0.00 | $0.00 | $0.00 | $680.18 |
|
| 2026 | 25199 | $340.13 | $340.05 | $0.00 | $0.00 | $0.00 | $680.18 |
Statement Details |
| 2025 | 25267 | STATE - STATE LEVY (SCHOOL) | $0.00 | $0.00 | $0.00 | $0.00 | $0.00 | $0.00 |
| 2025 | 25267 | COUNTY - COUNTY LEVIES (CE, DD, VET, MH) | $0.00 | $0.00 | $0.00 | $0.00 | $0.00 | $0.00 |
| 2025 | 25267 | CONSERVE - CONSERVATION FUTURES | $0.00 | $0.00 | $0.00 | $0.00 | $0.00 | $0.00 |
| 2025 | 25267 | COROADS - COUNTY ROADS (ROADS, DIV TO CE) | $0.00 | $0.00 | $0.00 | $0.00 | $0.00 | $0.00 |
| 2025 | 25267 | PORTPT - PORT DISTRICT | $0.00 | $0.00 | $0.00 | $0.00 | $0.00 | $0.00 |
| 2025 | 25267 | PUD1 - PUD #1 | $0.00 | $0.00 | $0.00 | $0.00 | $0.00 | $0.00 |
| 2025 | 25267 | LIB1 - LIBRARY DIST #1 | $0.00 | $0.00 | $0.00 | $0.00 | $0.00 | $0.00 |
| 2025 | 25267 | HD2 - HOSP DIST #2 | $0.00 | $0.00 | $0.00 | $0.00 | $0.00 | $0.00 |
| 2025 | 25267 | SD50 - SCHOOL DIST #50 | $0.00 | $0.00 | $0.00 | $0.00 | $0.00 | $0.00 |
| 2025 | 25267 | FD1 - FIRE DISTRICT #1 | $0.00 | $0.00 | $0.00 | $0.00 | $0.00 | $0.00 |
| 2025 | 25267 | EMS1 - FIRE DIST #1 EMS | $0.00 | $0.00 | $0.00 | $0.00 | $0.00 | $0.00 |
| 2025 | 25267 | TOTAL: | $0.00 | $0.00 | $0.00 | $0.00 | $0.00 | $0.00 |
|
| 2025 | 25267 | $0.00 | $0.00 | $0.00 | $0.00 | $0.00 | $0.00 |
Statement Details |
| 2024 | 25313 | STATE - STATE LEVY (SCHOOL) | $0.00 | $0.00 | $0.00 | $0.00 | $0.00 | $0.00 |
| 2024 | 25313 | COUNTY - COUNTY LEVIES (CE, DD, VET, MH) | $0.00 | $0.00 | $0.00 | $0.00 | $0.00 | $0.00 |
| 2024 | 25313 | CONSERVE - CONSERVATION FUTURES | $0.00 | $0.00 | $0.00 | $0.00 | $0.00 | $0.00 |
| 2024 | 25313 | COROADS - COUNTY ROADS (ROADS, DIV TO CE) | $0.00 | $0.00 | $0.00 | $0.00 | $0.00 | $0.00 |
| 2024 | 25313 | PORTPT - PORT DISTRICT | $0.00 | $0.00 | $0.00 | $0.00 | $0.00 | $0.00 |
| 2024 | 25313 | PUD1 - PUD #1 | $0.00 | $0.00 | $0.00 | $0.00 | $0.00 | $0.00 |
| 2024 | 25313 | LIB1 - LIBRARY DIST #1 | $0.00 | $0.00 | $0.00 | $0.00 | $0.00 | $0.00 |
| 2024 | 25313 | HD2 - HOSP DIST #2 | $0.00 | $0.00 | $0.00 | $0.00 | $0.00 | $0.00 |
| 2024 | 25313 | SD50 - SCHOOL DIST #50 | $0.00 | $0.00 | $0.00 | $0.00 | $0.00 | $0.00 |
| 2024 | 25313 | FD1 - FIRE DISTRICT #1 | $0.00 | $0.00 | $0.00 | $0.00 | $0.00 | $0.00 |
| 2024 | 25313 | EMS1 - FIRE DIST #1 EMS | $0.00 | $0.00 | $0.00 | $0.00 | $0.00 | $0.00 |
| 2024 | 25313 | WAT - Clean Water District | $0.00 | $0.00 | $0.00 | $0.00 | $0.00 | $0.00 |
| 2024 | 25313 | TOTAL: | $0.00 | $0.00 | $0.00 | $0.00 | $0.00 | $0.00 |
|
| 2024 | 25313 | $0.00 | $0.00 | $0.00 | $0.00 | $0.00 | $0.00 |
Statement Details |
| 2023 | 25354 | STATE - STATE LEVY (SCHOOL) | $0.00 | $0.00 | $0.00 | $0.00 | $0.00 | $0.00 |
| 2023 | 25354 | COUNTY - COUNTY LEVIES (CE, DD, VET, MH) | $0.00 | $0.00 | $0.00 | $0.00 | $0.00 | $0.00 |
| 2023 | 25354 | CONSERVE - CONSERVATION FUTURES | $0.00 | $0.00 | $0.00 | $0.00 | $0.00 | $0.00 |
| 2023 | 25354 | COROADS - COUNTY ROADS (ROADS, DIV TO CE) | $0.00 | $0.00 | $0.00 | $0.00 | $0.00 | $0.00 |
| 2023 | 25354 | PORTPT - PORT DISTRICT | $0.00 | $0.00 | $0.00 | $0.00 | $0.00 | $0.00 |
| 2023 | 25354 | PUD1 - PUD #1 | $0.00 | $0.00 | $0.00 | $0.00 | $0.00 | $0.00 |
| 2023 | 25354 | LIB1 - LIBRARY DIST #1 | $0.00 | $0.00 | $0.00 | $0.00 | $0.00 | $0.00 |
| 2023 | 25354 | HD2 - HOSP DIST #2 | $0.00 | $0.00 | $0.00 | $0.00 | $0.00 | $0.00 |
| 2023 | 25354 | SD50 - SCHOOL DIST #50 | $0.00 | $0.00 | $0.00 | $0.00 | $0.00 | $0.00 |
| 2023 | 25354 | FD1 - FIRE DISTRICT #1 | $0.00 | $0.00 | $0.00 | $0.00 | $0.00 | $0.00 |
| 2023 | 25354 | EMS1 - FIRE DIST #1 EMS | $0.00 | $0.00 | $0.00 | $0.00 | $0.00 | $0.00 |
| 2023 | 25354 | WAT - Clean Water District | $0.00 | $0.00 | $0.00 | $0.00 | $0.00 | $0.00 |
| 2023 | 25354 | TOTAL: | $0.00 | $0.00 | $0.00 | $0.00 | $0.00 | $0.00 |
|
| 2023 | 25354 | $0.00 | $0.00 | $0.00 | $0.00 | $0.00 | $0.00 |
Values
| (+) Improvement Homesite Value: | + | $0 | |
| (+) Improvement Non-Homesite Value: | + | $79,146 | |
| (+) Land Homesite Value: | + | $0 | |
| (+) Land Non-Homesite Value: | + | $0 | |
| (+) Curr Use (HS): | + | $0 | $0 |
| (+) Curr Use (NHS): | + | $0 | $0 |
| | | -------------------------- | |
| (=) Market Value: | = | $79,146 | |
| (–) Productivity Loss: | – | $0 | |
| | | -------------------------- | |
| (=) Subtotal: | = | $79,146 | |
| (+) Senior Appraised Value: | + | $0 | |
| (+) Non-Senior Appraised Value: | + | $79,146 | |
| | | -------------------------- | |
| (=) Total Appraised Value: | = | $79,146 | |
| (–) Senior Exemption Loss: | – | $0 | |
| (–) Exemption Loss: | – | $0 | |
| | | -------------------------- | |
| (=) Taxable Value: | = | $79,146 | |
Taxing Jurisdiction
| Owner: | OLYMPIC VILLAGE MHP LLC | | |
| % Ownership: | 100.0000000000% | | |
| Total Value: | $79,146 | | |
| Tax Area: | 0111 - 1-50F1E1H2L1 |
| CE | COUNTY CURRENT EXPENSE | 0.9034619479 | $79,146 | $79,146 | $71.51 | | |
| CNTYDD | DEVELOPMENTAL DISABILITIES | 0.0052121823 | $79,146 | $79,146 | $0.41 | | |
| CNTYVET | VETERANS RELIEF | 0.0052777810 | $79,146 | $79,146 | $0.42 | | |
| MENTAL | MENTAL HEALTH | 0.0052121823 | $79,146 | $79,146 | $0.41 | | |
| ROADS | COUNTY ROADS | 0.7415066410 | $79,146 | $79,146 | $58.69 | | |
| ROADSCU | COUNTY ROADS TO CUR EXP | 0.0000000000 | $79,146 | $79,146 | $0.00 | | |
| HOSP2CASH | HOSP DIST #2 GENERAL | 0.0536075306 | $79,146 | $79,146 | $4.24 | | |
| SCH50BOND | SCHOOL DIST #50 BOND 2016 | 0.5377451389 | $79,146 | $79,146 | $42.56 | | |
| SCH50CP | SCHOOL DIST #50 CAP PROJ | 0.4573475088 | $79,146 | $79,146 | $36.20 | | |
| SCH50MO | SCHOOL DIST #50 EP & O | 0.8262822886 | $79,146 | $79,146 | $65.40 | | |
| CONSERVE | CONSERVATION FUTURES | 0.0275621078 | $79,146 | $79,146 | $2.18 | | |
| EMS1 | FIRE DIST #1 EMS | 0.4679948282 | $79,146 | $79,146 | $37.04 | | |
| FD1 | FIRE DIST #1 GENERAL | 1.2171942929 | $79,146 | $79,146 | $96.34 | | |
| LIB1 | LIBRARY DIST #1 GENERAL | 0.2868827388 | $79,146 | $79,146 | $22.71 | | |
| PORTPT | PORT OF PT GENERAL | 0.1134941229 | $79,146 | $79,146 | $8.98 | | |
| PORTPTIDD | PORT OF PT IDD 2019 | 0.2577346692 | $79,146 | $79,146 | $20.40 | | |
| PUD1 | PUD #1 GENERAL | 0.0597888892 | $79,146 | $79,146 | $4.73 | | |
| STATE | STATE SCHOOL PART 1 | 1.4940692947 | $79,146 | $79,146 | $118.25 | | |
| STATE2 | STATE SCHOOL PART 2 | 0.8050170049 | $79,146 | $79,146 | $63.71 | | |
| | Total Tax Rate: | 8.2653911500 | | | | | |
| | | | | Taxes w/Current Exemptions: | $654.18 | | |
| | | | | Taxes w/o Exemptions: | $654.18 | | |
Improvement / Building
| Improvement #1: | Manufactured Home | State Code: | 11M | 396.5 sqft | Value: | $79,146 |
| Bathrooms (#): | 1 (FULL) | Bedrooms (#): | 1 | | Exterior Wall: | SI/ST | Foundation: | PO&BL | | Inside Verify: | NO | Roof Cover: | COMP |
|
| | Type | Description | Class CD | Sub Class CD | Year Built | Area |
| | MA | Main Area | 3+ | MPARK | 0 | 396.5 |
| | MRPO | MH Roof Porch | 3 | MPARK | 0 | 122.0 |
Sketch
Property Image
Land
No land segments exist for this property.
Roll Value History
| 2026 | N/A | N/A | N/A | N/A | N/A |
| 2025 | $79,146 | $0 | $0 | $79,146 | $79,146 |
| 2024 | $16,425 | $0 | $0 | $16,425 | $0 |
| 2023 | $0 | $0 | $0 | $0 | $0 |
| 2022 | $0 | $0 | $0 | $0 | $0 |
Deed and Sales History
| 1 | 07/31/2018 | MH | Mobile Home | JEAN KITSON | VANESSA MILLER | | | $18,900.00 | 130685 | |
| 2 | 09/18/2012 | MH | Mobile Home | DAVIS, MICHAEL KIM | KITSON, JEAN | 0 | 0 | $4,400.00 | 118062 | 0 |
| 3 | 04/09/2004 | MH | Mobile Home | AREY, WALTER/PATRICIA | DAVIS, MICHAEL K | 0 | 0 | $4,000.00 | 100073 | 0 |
Payout Agreement
| No payout information available.. |