Property
Account |
| Property ID: | 36053 | Abbreviated Legal Description: | OLYMPIC TERRACE DIV 2 PH 1 LOT 7 SUBJ TO EASE/REST OF RECORD |
| Parcel # / Geo ID: | 978802007 | Agent Code: | |
| Type: | Real | | |
| Tax Area: | 0213 - 1-49F1E1H2L1 | Land Use Code | 11 |
| Open Space: | N | DFL | N |
| Historic Property: | N | Remodel Property: | N |
| Multi-Family Redevelopment: | N | | |
| Township: | 28N | Section: | 21 |
| Range: | 1E |
Location |
| Address: | 490 MT CONSTANCE WAY PORT LUDLOW, WA 98365 | Mapsco: | 080/007 |
| Neighborhood: | S20-23 T 28N R1E, OLYMPIC TERRACE | Map ID: | |
| Neighborhood CD: | 3350 |
Owner |
| Name: | HOLLY GRAHAM | Owner ID: | 113768 |
| Mailing Address: | PO BOX 983 PORT TOWNSEND, WA 98368-0007 | % Ownership: | 100.0000000000% |
| | | Exemptions: | |
Pay Tax Due
There is currently No Amount Due on this property.
Taxes and Assessment Details
Property Tax Information as of
03/11/2026
Click on "Statement Details" to expand or collapse a tax statement.
* Please enter a valid date ** Please enter a valid date *
Statement Details |
| | TOTAL: | $0.00 | $0.00 | $0.00 | $0.00 | $0.00 | $0.00 |
|
| | $0.00 | $0.00 | $0.00 | $0.00 | $0.00 | $0.00 |
Values
| (+) Improvement Homesite Value: | + | $0 | |
| (+) Improvement Non-Homesite Value: | + | $558,400 | |
| (+) Land Homesite Value: | + | $0 | |
| (+) Land Non-Homesite Value: | + | $110,250 | |
| (+) Curr Use (HS): | + | $0 | $0 |
| (+) Curr Use (NHS): | + | $0 | $0 |
| | | -------------------------- | |
| (=) Market Value: | = | $668,650 | |
| (–) Productivity Loss: | – | $0 | |
| | | -------------------------- | |
| (=) Subtotal: | = | $668,650 | |
| (+) Senior Appraised Value: | + | $0 | |
| (+) Non-Senior Appraised Value: | + | $668,650 | |
| | | -------------------------- | |
| (=) Total Appraised Value: | = | $668,650 | |
| (–) Senior Exemption Loss: | – | $0 | |
| (–) Exemption Loss: | – | $0 | |
| | | -------------------------- | |
| (=) Taxable Value: | = | $668,650 | |
Taxing Jurisdiction
| Owner: | HOLLY GRAHAM | | |
| % Ownership: | 100.0000000000% | | |
| Total Value: | $668,650 | | |
| Tax Area: | 0213 - 1-49F1E1H2L1 |
| CE | COUNTY CURRENT EXPENSE | 0.9034619479 | $668,650 | $668,650 | $604.10 | | |
| CNTYDD | DEVELOPMENTAL DISABILITIES | 0.0052121823 | $668,650 | $668,650 | $3.49 | | |
| CNTYVET | VETERANS RELIEF | 0.0052777810 | $668,650 | $668,650 | $3.53 | | |
| MENTAL | MENTAL HEALTH | 0.0052121823 | $668,650 | $668,650 | $3.49 | | |
| ROADS | COUNTY ROADS | 0.7415066410 | $668,650 | $668,650 | $495.81 | | |
| ROADSCU | COUNTY ROADS TO CUR EXP | 0.0000000000 | $668,650 | $668,650 | $0.00 | | |
| HOSP2CASH | HOSP DIST #2 GENERAL | 0.0536075306 | $668,650 | $668,650 | $35.84 | | |
| SCH49CP | SCHOOL DIST #49 CAP PROJ | 0.6279093905 | $668,650 | $668,650 | $419.85 | | |
| SCH49MO | SCHOOL DIST #49 EP & O | 0.6376483602 | $668,650 | $668,650 | $426.36 | | |
| CONSERVE | CONSERVATION FUTURES | 0.0275621078 | $668,650 | $668,650 | $18.43 | | |
| EMS1 | FIRE DIST #1 EMS | 0.4679948282 | $668,650 | $668,650 | $312.92 | | |
| FD1 | FIRE DIST #1 GENERAL | 1.2171942929 | $668,650 | $668,650 | $813.88 | | |
| LIB1 | LIBRARY DIST #1 GENERAL | 0.2868827388 | $668,650 | $668,650 | $191.82 | | |
| PORTPT | PORT OF PT GENERAL | 0.1134941229 | $668,650 | $668,650 | $75.89 | | |
| PORTPTIDD | PORT OF PT IDD 2019 | 0.2577346692 | $668,650 | $668,650 | $172.33 | | |
| PUD1 | PUD #1 GENERAL | 0.0597888892 | $668,650 | $668,650 | $39.98 | | |
| STATE | STATE SCHOOL PART 1 | 1.4940692947 | $668,650 | $668,650 | $999.01 | | |
| STATE2 | STATE SCHOOL PART 2 | 0.8050170049 | $668,650 | $668,650 | $538.27 | | |
| | Total Tax Rate: | 7.7095739644 | | | | | |
| | | | | Taxes w/Current Exemptions: | $5,155.00 | | |
| | | | | Taxes w/o Exemptions: | $5,155.00 | | |
Improvement / Building
| Improvement #1: | Residential Bldg | State Code: | 11 | 1913.5 sqft | Value: | $558,400 |
| Bathrooms (#): | 3 (FULL) | Bedrooms (#): | 3 | | Exterior Wall: | SI/ST | Fireplace: | SIN 1-GOOD | | Floor Construction: | FRAME | Foundation: | CONPR | | Heating/Cooling: | HPUMP | Inside Verify: | NO | | Roof Cover: | COMP |   |   |
|
| | Type | Description | Class CD | Sub Class CD | Year Built | Area |
| | MA | Main Area | 5 | 15SF | 2016 | 1340.5 |
| | MA2 | Second Floor Main Area | 5 | 15SF | 2016 | 573.0 |
| | HCPOR | House Concrete Porch | 5 | 15SF | 2016 | 141.0 |
| | HWPOR | House Wood Porch | 5 | 15SF | 2016 | 60.0 |
| | GATT | House Attached Garage | 5 | 15SF | 2016 | 463.0 |
| | CONCD | Concrete Drive | 5 | 15SF | 2016 | 726.0 |
Sketch
Property Image
Land
| 1 | 3350-1285L | No View Lots Olympic Terrace | 0.0000 | 0.00 | 0.00 | 0.00 | 1.00 | $110,250 | $0 |
Roll Value History
| 2026 | N/A | N/A | N/A | N/A | N/A |
| 2025 | $558,400 | $110,250 | $0 | $668,650 | $668,650 |
| 2024 | $558,400 | $110,250 | $0 | $668,650 | $668,650 |
| 2023 | $534,122 | $100,000 | $0 | $634,122 | $634,122 |
| 2022 | $534,121 | $95,000 | $0 | $629,121 | $629,121 |
Deed and Sales History
| 1 | 12/02/2025 | SWD | Statutory Warranty Deed | GREGORY & REBECCA LAWSON | HOLLY GRAHAM | | | $620,000.00 | 145340 | |
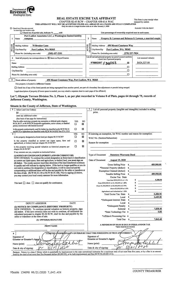
| 2 | 08/15/2020 | SWD | Statutory Warranty Deed | PORT LUDLOW ASSOCIATES LLC | GREGORY & REBECCA LAWSON | | | $489,900.00 | 134898 | |
Payout Agreement
| No payout information available.. |