Property
Account |
| Property ID: | 36056 | Abbreviated Legal Description: | OLYMPIC TERRACE DIV 2 PH 1 LOT 10 SUBJ TO EASE/REST OF RCRD |
| Parcel # / Geo ID: | 978802010 | Agent Code: | |
| Type: | Real | | |
| Tax Area: | 0213 - 1-49F1E1H2L1 | Land Use Code | 11 |
| Open Space: | N | DFL | N |
| Historic Property: | N | Remodel Property: | N |
| Multi-Family Redevelopment: | N | | |
| Township: | 28N | Section: | 21 |
| Range: | 1E |
Location |
| Address: | 570 MT CONSTANCE WAY PORT LUDLOW, WA 98365 | Mapsco: | 080/010 |
| Neighborhood: | S20-23 T 28N R1E, OLYMPIC TERRACE | Map ID: | |
| Neighborhood CD: | 3350 |
Owner |
| Name: | WILLIAM DENNIS JR & MONICA MARCOUX | Owner ID: | 99863 |
| Mailing Address: | 570 MOUNT CONSTANCE WAY PORT LUDLOW, WA 98365 | % Ownership: | 100.0000000000% |
| | | Exemptions: | |
Pay Tax Due
There is currently No Amount Due on this property.
Taxes and Assessment Details
Property Tax Information as of
03/11/2026
Click on "Statement Details" to expand or collapse a tax statement.
* Please enter a valid date ** Please enter a valid date *
Statement Details |
| 2026 | 25289 | STATE - STATE LEVY (SCHOOL) | $908.90 | $908.88 | $0.00 | $0.00 | $1817.78 | $0.00 |
| 2026 | 25289 | COUNTY - COUNTY LEVIES (CE, DD, VET, MH) | $363.38 | $363.36 | $0.00 | $0.00 | $726.74 | $0.00 |
| 2026 | 25289 | CONSERVE - CONSERVATION FUTURES | $10.90 | $10.89 | $0.00 | $0.00 | $21.79 | $0.00 |
| 2026 | 25289 | COROADS - COUNTY ROADS (ROADS, DIV TO CE) | $293.14 | $293.14 | $0.00 | $0.00 | $586.28 | $0.00 |
| 2026 | 25289 | PORTPT - PORT DISTRICT | $146.76 | $146.75 | $0.00 | $0.00 | $293.51 | $0.00 |
| 2026 | 25289 | PUD1 - PUD #1 | $23.64 | $23.63 | $0.00 | $0.00 | $47.27 | $0.00 |
| 2026 | 25289 | LIB1 - LIBRARY DIST #1 | $113.42 | $113.41 | $0.00 | $0.00 | $226.83 | $0.00 |
| 2026 | 25289 | HD2 - HOSP DIST #2 | $21.20 | $21.19 | $0.00 | $0.00 | $42.39 | $0.00 |
| 2026 | 25289 | SD49 - SCHOOL DIST #49 | $500.31 | $500.31 | $0.00 | $0.00 | $1000.62 | $0.00 |
| 2026 | 25289 | FD1 - FIRE DISTRICT #1 | $481.19 | $481.19 | $0.00 | $0.00 | $962.38 | $0.00 |
| 2026 | 25289 | EMS1 - FIRE DIST #1 EMS | $185.01 | $185.01 | $0.00 | $0.00 | $370.02 | $0.00 |
| 2026 | 25289 | FP - DNR Forest Fire Protection Assmt | $8.50 | $8.50 | $0.00 | $0.00 | $17.00 | $0.00 |
| 2026 | 25289 | FPLCA - DNR Landowner Contingency Assmt | $3.00 | $3.00 | $0.00 | $0.00 | $6.00 | $0.00 |
| 2026 | 25289 | JCCD - JC Conservation District | $2.55 | $2.55 | $0.00 | $0.00 | $5.10 | $0.00 |
| 2026 | 25289 | NWA - Noxious Weed Assessment | $2.98 | $2.97 | $0.00 | $0.00 | $5.95 | $0.00 |
| 2026 | 25289 | FP ADMIN - FP ADMIN | $0.50 | $0.00 | $0.00 | $0.00 | $0.50 | $0.00 |
| 2026 | 25289 | TOTAL: | $3065.38 | $3064.78 | $0.00 | $0.00 | $6130.16 | $0.00 |
|
| 2026 | 25289 | $3065.38 | $3064.78 | $0.00 | $0.00 | $6130.16 | $0.00 |
Statement Details |
| 2025 | 25357 | STATE - STATE LEVY (SCHOOL) | $948.01 | $948.00 | $0.00 | $0.00 | $1896.01 | $0.00 |
| 2025 | 25357 | COUNTY - COUNTY LEVIES (CE, DD, VET, MH) | $372.81 | $372.79 | $0.00 | $0.00 | $745.60 | $0.00 |
| 2025 | 25357 | CONSERVE - CONSERVATION FUTURES | $11.18 | $11.18 | $0.00 | $0.00 | $22.36 | $0.00 |
| 2025 | 25357 | COROADS - COUNTY ROADS (ROADS, DIV TO CE) | $298.67 | $298.67 | $0.00 | $0.00 | $597.34 | $0.00 |
| 2025 | 25357 | PORTPT - PORT DISTRICT | $152.12 | $152.12 | $0.00 | $0.00 | $304.24 | $0.00 |
| 2025 | 25357 | PUD1 - PUD #1 | $24.40 | $24.39 | $0.00 | $0.00 | $48.79 | $0.00 |
| 2025 | 25357 | LIB1 - LIBRARY DIST #1 | $115.56 | $115.55 | $0.00 | $0.00 | $231.11 | $0.00 |
| 2025 | 25357 | HD2 - HOSP DIST #2 | $21.75 | $21.75 | $0.00 | $0.00 | $43.50 | $0.00 |
| 2025 | 25357 | SD49 - SCHOOL DIST #49 | $508.08 | $508.06 | $0.00 | $0.00 | $1016.14 | $0.00 |
| 2025 | 25357 | FD1 - FIRE DISTRICT #1 | $491.95 | $491.94 | $0.00 | $0.00 | $983.89 | $0.00 |
| 2025 | 25357 | EMS1 - FIRE DIST #1 EMS | $189.22 | $189.21 | $0.00 | $0.00 | $378.43 | $0.00 |
| 2025 | 25357 | FP - DNR Forest Fire Protection Assmt | $8.50 | $8.50 | $0.00 | $0.00 | $17.00 | $0.00 |
| 2025 | 25357 | FPLCA - DNR Landowner Contingency Assmt | $3.00 | $3.00 | $0.00 | $0.00 | $6.00 | $0.00 |
| 2025 | 25357 | JCCD - JC Conservation District | $2.55 | $2.55 | $0.00 | $0.00 | $5.10 | $0.00 |
| 2025 | 25357 | NWA - Noxious Weed Assessment | $2.15 | $2.15 | $0.00 | $0.00 | $4.30 | $0.00 |
| 2025 | 25357 | FP ADMIN - FP ADMIN | $0.50 | $0.00 | $0.00 | $0.00 | $0.50 | $0.00 |
| 2025 | 25357 | TOTAL: | $3150.45 | $3149.86 | $0.00 | $0.00 | $6300.31 | $0.00 |
|
| 2025 | 25357 | $3150.45 | $3149.86 | $0.00 | $0.00 | $6300.31 | $0.00 |
Statement Details |
| 2024 | 25403 | STATE - STATE LEVY (SCHOOL) | $868.56 | $868.54 | $0.00 | $0.00 | $1737.10 | $0.00 |
| 2024 | 25403 | COUNTY - COUNTY LEVIES (CE, DD, VET, MH) | $371.67 | $371.66 | $0.00 | $0.00 | $743.33 | $0.00 |
| 2024 | 25403 | CONSERVE - CONSERVATION FUTURES | $11.15 | $11.14 | $0.00 | $0.00 | $22.29 | $0.00 |
| 2024 | 25403 | COROADS - COUNTY ROADS (ROADS, DIV TO CE) | $299.07 | $299.06 | $0.00 | $0.00 | $598.13 | $0.00 |
| 2024 | 25403 | PORTPT - PORT DISTRICT | $153.51 | $153.51 | $0.00 | $0.00 | $307.02 | $0.00 |
| 2024 | 25403 | PUD1 - PUD #1 | $24.41 | $24.41 | $0.00 | $0.00 | $48.82 | $0.00 |
| 2024 | 25403 | LIB1 - LIBRARY DIST #1 | $115.71 | $115.70 | $0.00 | $0.00 | $231.41 | $0.00 |
| 2024 | 25403 | HD2 - HOSP DIST #2 | $21.69 | $21.68 | $0.00 | $0.00 | $43.37 | $0.00 |
| 2024 | 25403 | SD49 - SCHOOL DIST #49 | $387.85 | $387.85 | $0.00 | $0.00 | $775.70 | $0.00 |
| 2024 | 25403 | FD1 - FIRE DISTRICT #1 | $491.43 | $491.42 | $0.00 | $0.00 | $982.85 | $0.00 |
| 2024 | 25403 | EMS1 - FIRE DIST #1 EMS | $187.71 | $187.70 | $0.00 | $0.00 | $375.41 | $0.00 |
| 2024 | 25403 | FP - DNR Forest Fire Protection Assmt | $8.50 | $8.50 | $0.00 | $0.00 | $17.00 | $0.00 |
| 2024 | 25403 | FPLCA - DNR Landowner Contingency Assmt | $3.00 | $3.00 | $0.00 | $0.00 | $6.00 | $0.00 |
| 2024 | 25403 | JCCD - JC Conservation District | $2.55 | $2.55 | $0.00 | $0.00 | $5.10 | $0.00 |
| 2024 | 25403 | NWA - Noxious Weed Assessment | $2.15 | $2.15 | $0.00 | $0.00 | $4.30 | $0.00 |
| 2024 | 25403 | FP ADMIN - FP ADMIN | $0.50 | $0.00 | $0.00 | $0.00 | $0.50 | $0.00 |
| 2024 | 25403 | TOTAL: | $2949.46 | $2948.87 | $0.00 | $0.00 | $5898.33 | $0.00 |
|
| 2024 | 25403 | $2949.46 | $2948.87 | $0.00 | $0.00 | $5898.33 | $0.00 |
Statement Details |
| 2023 | 25444 | STATE - STATE LEVY (SCHOOL) | $877.89 | $877.89 | $0.00 | $0.00 | $1755.78 | $0.00 |
| 2023 | 25444 | COUNTY - COUNTY LEVIES (CE, DD, VET, MH) | $383.10 | $383.07 | $0.00 | $0.00 | $766.17 | $0.00 |
| 2023 | 25444 | CONSERVE - CONSERVATION FUTURES | $11.49 | $11.48 | $0.00 | $0.00 | $22.97 | $0.00 |
| 2023 | 25444 | COROADS - COUNTY ROADS (ROADS, DIV TO CE) | $309.95 | $309.94 | $0.00 | $0.00 | $619.89 | $0.00 |
| 2023 | 25444 | PORTPT - PORT DISTRICT | $161.38 | $161.37 | $0.00 | $0.00 | $322.75 | $0.00 |
| 2023 | 25444 | PUD1 - PUD #1 | $25.40 | $25.39 | $0.00 | $0.00 | $50.79 | $0.00 |
| 2023 | 25444 | LIB1 - LIBRARY DIST #1 | $119.92 | $119.91 | $0.00 | $0.00 | $239.83 | $0.00 |
| 2023 | 25444 | HD2 - HOSP DIST #2 | $22.36 | $22.35 | $0.00 | $0.00 | $44.71 | $0.00 |
| 2023 | 25444 | SD49 - SCHOOL DIST #49 | $410.37 | $410.37 | $0.00 | $0.00 | $820.74 | $0.00 |
| 2023 | 25444 | FD3 - FIRE DISTRICT #3 | $381.12 | $381.11 | $0.00 | $0.00 | $762.23 | $0.00 |
| 2023 | 25444 | EMS3 - FIRE DIST #3 EMS | $136.25 | $136.25 | $0.00 | $0.00 | $272.50 | $0.00 |
| 2023 | 25444 | FP - DNR Forest Fire Protection Assmt | $8.50 | $8.50 | $0.00 | $0.00 | $17.00 | $0.00 |
| 2023 | 25444 | FPLCA - DNR Landowner Contingency Assmt | $3.00 | $3.00 | $0.00 | $0.00 | $6.00 | $0.00 |
| 2023 | 25444 | JCCD - JC Conservation District | $2.55 | $2.55 | $0.00 | $0.00 | $5.10 | $0.00 |
| 2023 | 25444 | NWA - Noxious Weed Assessment | $2.15 | $2.15 | $0.00 | $0.00 | $4.30 | $0.00 |
| 2023 | 25444 | FP ADMIN - FP ADMIN | $0.50 | $0.00 | $0.00 | $0.00 | $0.50 | $0.00 |
| 2023 | 25444 | TOTAL: | $2855.93 | $2855.33 | $0.00 | $0.00 | $5711.26 | $0.00 |
|
| 2023 | 25444 | $2855.93 | $2855.33 | $0.00 | $0.00 | $5711.26 | $0.00 |
Values
| (+) Improvement Homesite Value: | + | $0 | |
| (+) Improvement Non-Homesite Value: | + | $680,406 | |
| (+) Land Homesite Value: | + | $0 | |
| (+) Land Non-Homesite Value: | + | $110,250 | |
| (+) Curr Use (HS): | + | $0 | $0 |
| (+) Curr Use (NHS): | + | $0 | $0 |
| | | -------------------------- | |
| (=) Market Value: | = | $790,656 | |
| (–) Productivity Loss: | – | $0 | |
| | | -------------------------- | |
| (=) Subtotal: | = | $790,656 | |
| (+) Senior Appraised Value: | + | $0 | |
| (+) Non-Senior Appraised Value: | + | $790,656 | |
| | | -------------------------- | |
| (=) Total Appraised Value: | = | $790,656 | |
| (–) Senior Exemption Loss: | – | $0 | |
| (–) Exemption Loss: | – | $0 | |
| | | -------------------------- | |
| (=) Taxable Value: | = | $790,656 | |
Taxing Jurisdiction
| Owner: | WILLIAM DENNIS JR & MONICA MARCOUX | | |
| % Ownership: | 100.0000000000% | | |
| Total Value: | $790,656 | | |
| Tax Area: | 0213 - 1-49F1E1H2L1 |
| CE | COUNTY CURRENT EXPENSE | 0.9034619479 | $790,656 | $790,656 | $714.33 | | |
| CNTYDD | DEVELOPMENTAL DISABILITIES | 0.0052121823 | $790,656 | $790,656 | $4.12 | | |
| CNTYVET | VETERANS RELIEF | 0.0052777810 | $790,656 | $790,656 | $4.17 | | |
| MENTAL | MENTAL HEALTH | 0.0052121823 | $790,656 | $790,656 | $4.12 | | |
| ROADS | COUNTY ROADS | 0.7415066410 | $790,656 | $790,656 | $586.28 | | |
| ROADSCU | COUNTY ROADS TO CUR EXP | 0.0000000000 | $790,656 | $790,656 | $0.00 | | |
| HOSP2CASH | HOSP DIST #2 GENERAL | 0.0536075306 | $790,656 | $790,656 | $42.39 | | |
| SCH49CP | SCHOOL DIST #49 CAP PROJ | 0.6279093905 | $790,656 | $790,656 | $496.46 | | |
| SCH49MO | SCHOOL DIST #49 EP & O | 0.6376483602 | $790,656 | $790,656 | $504.16 | | |
| CONSERVE | CONSERVATION FUTURES | 0.0275621078 | $790,656 | $790,656 | $21.79 | | |
| EMS1 | FIRE DIST #1 EMS | 0.4679948282 | $790,656 | $790,656 | $370.02 | | |
| FD1 | FIRE DIST #1 GENERAL | 1.2171942929 | $790,656 | $790,656 | $962.38 | | |
| LIB1 | LIBRARY DIST #1 GENERAL | 0.2868827388 | $790,656 | $790,656 | $226.83 | | |
| PORTPT | PORT OF PT GENERAL | 0.1134941229 | $790,656 | $790,656 | $89.73 | | |
| PORTPTIDD | PORT OF PT IDD 2019 | 0.2577346692 | $790,656 | $790,656 | $203.78 | | |
| PUD1 | PUD #1 GENERAL | 0.0597888892 | $790,656 | $790,656 | $47.27 | | |
| STATE | STATE SCHOOL PART 1 | 1.4940692947 | $790,656 | $790,656 | $1,181.29 | | |
| STATE2 | STATE SCHOOL PART 2 | 0.8050170049 | $790,656 | $790,656 | $636.49 | | |
| | Total Tax Rate: | 7.7095739644 | | | | | |
| | | | | Taxes w/Current Exemptions: | $6,095.61 | | |
| | | | | Taxes w/o Exemptions: | $6,095.61 | | |
Improvement / Building
| Improvement #1: | Residential Bldg | State Code: | 11 | 3157.0 sqft | Value: | $680,406 |
| Bathrooms (#): | 3 (FULL) | Bedrooms (#): | 3 | | Exterior Wall: | SI/ST | Fireplace: | SIN 1-GOOD | | Floor Construction: | FRAME | Foundation: | CONPR | | Heating/Cooling: | HPUMP | Inside Verify: | NO | | Roof Cover: | COMP |   |   |
|
| | Type | Description | Class CD | Sub Class CD | Year Built | Area |
| | MA | Main Area | 4+ | 15SF | 2007 | 2306.0 |
| | MA2 | Second Floor Main Area | 4+ | 15SF | 2007 | 851.0 |
| | HCPOR | House Concrete Porch | 5 | 15SF | 2007 | 118.0 |
| | PATIO | House Patio | 5 | 15SF | 2007 | 70.0 |
| | GATT | House Attached Garage | 5 | 15SF | 2007 | 482.0 |
| | CONCD | Concrete Drive | 5 | 15SF | 2007 | 726.0 |
Sketch
| No sketches available for this property. |
Property Image
Land
| 1 | 3350-1285L | | 0.0000 | 0.00 | 0.00 | 0.00 | 1.00 | $110,250 | $0 |
Roll Value History
| 2026 | N/A | N/A | N/A | N/A | N/A |
| 2025 | $680,406 | $110,250 | $0 | $790,656 | $790,656 |
| 2024 | $680,406 | $110,250 | $0 | $790,656 | $790,656 |
| 2023 | $650,823 | $100,000 | $0 | $750,823 | $750,823 |
| 2022 | $650,823 | $95,000 | $0 | $745,823 | $745,823 |
Deed and Sales History
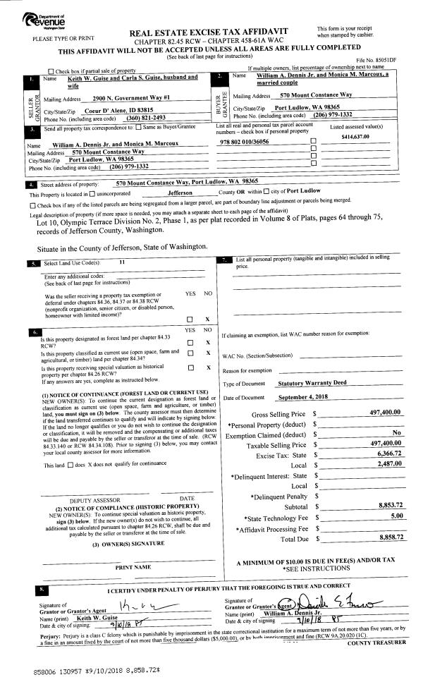
| 1 | 08/04/2018 | SWD | Statutory Warranty Deed | KEITH & CARLA GUISE | WILLIAM DENNIS JR & MONICA MARCOUX | | | $497,400.00 | 130957 | |
| 2 | 07/05/2016 | SWD | Statutory Warranty Deed | DANIEL L & ALLISON D NEEDLES | KEITH & CARLA GUISE | | | $443,000.00 | 125788 | |
| 3 | 02/25/2014 | SWD | Statutory Warranty Deed | CRAIG E DOWNS | DANIEL L & ALLISON D NEEDLES | | | $390,000.00 | 120811 | |
| 4 | 09/19/2011 | SWD | Statutory Warranty Deed | PORT LUDLOW ASSOCIATES LL | DOWNS, CRAIG/DEBORAH R | 0 | 0 | $375,000.00 | 116546 | 0 |
Payout Agreement
| No payout information available.. |