Property
Account |
| Property ID: | 36099 | Abbreviated Legal Description: | OLYMPUS BEACH 11 & 12 TL TAX LL 1.52CH |
| Parcel # / Geo ID: | 978900007 | Agent Code: | |
| Type: | Real | | |
| Tax Area: | 0213 - 1-49F1E1H2L1 | Land Use Code | 11 |
| Open Space: | N | DFL | N |
| Historic Property: | N | Remodel Property: | N |
| Multi-Family Redevelopment: | N | | |
| Township: | 28N | Section: | 4 |
| Range: | 1E |
Location |
| Address: | 590 OLYMPUS BLVD PORT LUDLOW, WA 98365 | Mapsco: | 081/010 |
| Neighborhood: | BASALT BCH,N LUDLOW BCH,OLYMPUS BCH; EDSALL/GREEN/BERNARD SP | Map ID: | |
| Neighborhood CD: | 3310 |
Owner |
| Name: | HOLLY A GJERSEE | Owner ID: | 105800 |
| Mailing Address: | 19704 135TH AVE E GRAHAM, WA 98338-1309 | % Ownership: | 100.0000000000% |
| | | Exemptions: | |
Pay Tax Due
Select the appropriate checkbox next to the year to be paid. Multiple years may be selected.
*Convenience Fee not included
Taxes and Assessment Details
Property Tax Information as of
03/09/2026
Click on "Statement Details" to expand or collapse a tax statement.
* Please enter a valid date ** Please enter a valid date *
Statement Details |
| 2026 | 25327 | STATE - STATE LEVY (SCHOOL) | $1119.70 | $1119.70 | $0.00 | $0.00 | $0.00 | $2239.40 |
| 2026 | 25327 | COUNTY - COUNTY LEVIES (CE, DD, VET, MH) | $447.66 | $447.65 | $0.00 | $0.00 | $0.00 | $895.31 |
| 2026 | 25327 | CONSERVE - CONSERVATION FUTURES | $13.43 | $13.42 | $0.00 | $0.00 | $0.00 | $26.85 |
| 2026 | 25327 | COROADS - COUNTY ROADS (ROADS, DIV TO CE) | $361.13 | $361.12 | $0.00 | $0.00 | $0.00 | $722.25 |
| 2026 | 25327 | PORTPT - PORT DISTRICT | $180.80 | $180.79 | $0.00 | $0.00 | $0.00 | $361.59 |
| 2026 | 25327 | PUD1 - PUD #1 | $29.12 | $29.12 | $0.00 | $0.00 | $0.00 | $58.24 |
| 2026 | 25327 | LIB1 - LIBRARY DIST #1 | $139.72 | $139.71 | $0.00 | $0.00 | $0.00 | $279.43 |
| 2026 | 25327 | HD2 - HOSP DIST #2 | $26.11 | $26.11 | $0.00 | $0.00 | $0.00 | $52.22 |
| 2026 | 25327 | SD49 - SCHOOL DIST #49 | $616.36 | $616.34 | $0.00 | $0.00 | $0.00 | $1232.70 |
| 2026 | 25327 | FD1 - FIRE DISTRICT #1 | $592.80 | $592.79 | $0.00 | $0.00 | $0.00 | $1185.59 |
| 2026 | 25327 | EMS1 - FIRE DIST #1 EMS | $227.92 | $227.92 | $0.00 | $0.00 | $0.00 | $455.84 |
| 2026 | 25327 | JCCD - JC Conservation District | $2.55 | $2.55 | $0.00 | $0.00 | $0.00 | $5.10 |
| 2026 | 25327 | NWA - Noxious Weed Assessment | $2.98 | $2.97 | $0.00 | $0.00 | $0.00 | $5.95 |
| 2026 | 25327 | OSS - On Site Septic | $23.10 | $23.10 | $0.00 | $0.00 | $0.00 | $46.20 |
| 2026 | 25327 | WAT - Clean Water District | $13.00 | $13.00 | $0.00 | $0.00 | $0.00 | $26.00 |
| 2026 | 25327 | TOTAL: | $3796.38 | $3796.29 | $0.00 | $0.00 | $0.00 | $7592.67 |
|
| 2026 | 25327 | $3796.38 | $3796.29 | $0.00 | $0.00 | $0.00 | $7592.67 |
Statement Details |
| 2025 | 25395 | STATE - STATE LEVY (SCHOOL) | $1118.20 | $1118.19 | $0.00 | $0.00 | $2236.39 | $0.00 |
| 2025 | 25395 | COUNTY - COUNTY LEVIES (CE, DD, VET, MH) | $439.73 | $439.72 | $0.00 | $0.00 | $879.45 | $0.00 |
| 2025 | 25395 | CONSERVE - CONSERVATION FUTURES | $13.19 | $13.18 | $0.00 | $0.00 | $26.37 | $0.00 |
| 2025 | 25395 | COROADS - COUNTY ROADS (ROADS, DIV TO CE) | $352.29 | $352.28 | $0.00 | $0.00 | $704.57 | $0.00 |
| 2025 | 25395 | PORTPT - PORT DISTRICT | $179.44 | $179.42 | $0.00 | $0.00 | $358.86 | $0.00 |
| 2025 | 25395 | PUD1 - PUD #1 | $28.78 | $28.77 | $0.00 | $0.00 | $57.55 | $0.00 |
| 2025 | 25395 | LIB1 - LIBRARY DIST #1 | $136.30 | $136.29 | $0.00 | $0.00 | $272.59 | $0.00 |
| 2025 | 25395 | HD2 - HOSP DIST #2 | $25.66 | $25.65 | $0.00 | $0.00 | $51.31 | $0.00 |
| 2025 | 25395 | SD49 - SCHOOL DIST #49 | $599.28 | $599.28 | $0.00 | $0.00 | $1198.56 | $0.00 |
| 2025 | 25395 | FD1 - FIRE DISTRICT #1 | $580.26 | $580.26 | $0.00 | $0.00 | $1160.52 | $0.00 |
| 2025 | 25395 | EMS1 - FIRE DIST #1 EMS | $223.19 | $223.18 | $0.00 | $0.00 | $446.37 | $0.00 |
| 2025 | 25395 | JCCD - JC Conservation District | $2.55 | $2.55 | $0.00 | $0.00 | $5.10 | $0.00 |
| 2025 | 25395 | NWA - Noxious Weed Assessment | $2.15 | $2.15 | $0.00 | $0.00 | $4.30 | $0.00 |
| 2025 | 25395 | OSS - On Site Septic | $21.50 | $21.50 | $0.00 | $0.00 | $43.00 | $0.00 |
| 2025 | 25395 | WAT - Clean Water District | $13.00 | $13.00 | $0.00 | $0.00 | $26.00 | $0.00 |
| 2025 | 25395 | TOTAL: | $3735.52 | $3735.42 | $0.00 | $0.00 | $7470.94 | $0.00 |
|
| 2025 | 25395 | $3735.52 | $3735.42 | $0.00 | $0.00 | $7470.94 | $0.00 |
Statement Details |
| 2024 | 25446 | STATE - STATE LEVY (SCHOOL) | $1001.24 | $1001.23 | $0.00 | $0.00 | $2002.47 | $0.00 |
| 2024 | 25446 | COUNTY - COUNTY LEVIES (CE, DD, VET, MH) | $428.44 | $428.44 | $0.00 | $0.00 | $856.88 | $0.00 |
| 2024 | 25446 | CONSERVE - CONSERVATION FUTURES | $12.85 | $12.84 | $0.00 | $0.00 | $25.69 | $0.00 |
| 2024 | 25446 | COROADS - COUNTY ROADS (ROADS, DIV TO CE) | $344.75 | $344.75 | $0.00 | $0.00 | $689.50 | $0.00 |
| 2024 | 25446 | PORTPT - PORT DISTRICT | $176.96 | $176.96 | $0.00 | $0.00 | $353.92 | $0.00 |
| 2024 | 25446 | PUD1 - PUD #1 | $28.14 | $28.14 | $0.00 | $0.00 | $56.28 | $0.00 |
| 2024 | 25446 | LIB1 - LIBRARY DIST #1 | $133.38 | $133.38 | $0.00 | $0.00 | $266.76 | $0.00 |
| 2024 | 25446 | HD2 - HOSP DIST #2 | $25.00 | $25.00 | $0.00 | $0.00 | $50.00 | $0.00 |
| 2024 | 25446 | SD49 - SCHOOL DIST #49 | $447.10 | $447.10 | $0.00 | $0.00 | $894.20 | $0.00 |
| 2024 | 25446 | FD1 - FIRE DISTRICT #1 | $566.50 | $566.50 | $0.00 | $0.00 | $1133.00 | $0.00 |
| 2024 | 25446 | EMS1 - FIRE DIST #1 EMS | $216.38 | $216.38 | $0.00 | $0.00 | $432.76 | $0.00 |
| 2024 | 25446 | JCCD - JC Conservation District | $2.55 | $2.55 | $0.00 | $0.00 | $5.10 | $0.00 |
| 2024 | 25446 | NWA - Noxious Weed Assessment | $2.15 | $2.15 | $0.00 | $0.00 | $4.30 | $0.00 |
| 2024 | 25446 | OSS - On Site Septic | $21.00 | $21.00 | $0.00 | $0.00 | $42.00 | $0.00 |
| 2024 | 25446 | WAT - Clean Water District | $12.50 | $12.50 | $0.00 | $0.00 | $25.00 | $0.00 |
| 2024 | 25446 | TOTAL: | $3418.94 | $3418.92 | $0.00 | $0.00 | $6837.86 | $0.00 |
|
| 2024 | 25446 | $3418.94 | $3418.92 | $0.00 | $0.00 | $6837.86 | $0.00 |
Statement Details |
| 2023 | 25487 | STATE - STATE LEVY (SCHOOL) | $988.40 | $988.40 | $0.00 | $0.00 | $1976.80 | $0.00 |
| 2023 | 25487 | COUNTY - COUNTY LEVIES (CE, DD, VET, MH) | $431.31 | $431.31 | $0.00 | $0.00 | $862.62 | $0.00 |
| 2023 | 25487 | CONSERVE - CONSERVATION FUTURES | $12.94 | $12.93 | $0.00 | $0.00 | $25.87 | $0.00 |
| 2023 | 25487 | COROADS - COUNTY ROADS (ROADS, DIV TO CE) | $348.96 | $348.95 | $0.00 | $0.00 | $697.91 | $0.00 |
| 2023 | 25487 | PORTPT - PORT DISTRICT | $181.70 | $181.68 | $0.00 | $0.00 | $363.38 | $0.00 |
| 2023 | 25487 | PUD1 - PUD #1 | $28.59 | $28.59 | $0.00 | $0.00 | $57.18 | $0.00 |
| 2023 | 25487 | LIB1 - LIBRARY DIST #1 | $135.01 | $135.01 | $0.00 | $0.00 | $270.02 | $0.00 |
| 2023 | 25487 | HD2 - HOSP DIST #2 | $25.18 | $25.16 | $0.00 | $0.00 | $50.34 | $0.00 |
| 2023 | 25487 | SD49 - SCHOOL DIST #49 | $462.03 | $462.02 | $0.00 | $0.00 | $924.05 | $0.00 |
| 2023 | 25487 | FD3 - FIRE DISTRICT #3 | $429.09 | $429.09 | $0.00 | $0.00 | $858.18 | $0.00 |
| 2023 | 25487 | EMS3 - FIRE DIST #3 EMS | $153.40 | $153.40 | $0.00 | $0.00 | $306.80 | $0.00 |
| 2023 | 25487 | JCCD - JC Conservation District | $2.55 | $2.55 | $0.00 | $0.00 | $5.10 | $0.00 |
| 2023 | 25487 | NWA - Noxious Weed Assessment | $2.15 | $2.15 | $0.00 | $0.00 | $4.30 | $0.00 |
| 2023 | 25487 | OSS - On Site Septic | $20.50 | $20.50 | $0.00 | $0.00 | $41.00 | $0.00 |
| 2023 | 25487 | WAT - Clean Water District | $12.00 | $12.00 | $0.00 | $0.00 | $24.00 | $0.00 |
| 2023 | 25487 | TOTAL: | $3233.81 | $3233.74 | $0.00 | $0.00 | $6467.55 | $0.00 |
|
| 2023 | 25487 | $3233.81 | $3233.74 | $0.00 | $0.00 | $6467.55 | $0.00 |
Values
| (+) Improvement Homesite Value: | + | $0 | |
| (+) Improvement Non-Homesite Value: | + | $499,662 | |
| (+) Land Homesite Value: | + | $0 | |
| (+) Land Non-Homesite Value: | + | $474,375 | |
| (+) Curr Use (HS): | + | $0 | $0 |
| (+) Curr Use (NHS): | + | $0 | $0 |
| | | -------------------------- | |
| (=) Market Value: | = | $974,037 | |
| (–) Productivity Loss: | – | $0 | |
| | | -------------------------- | |
| (=) Subtotal: | = | $974,037 | |
| (+) Senior Appraised Value: | + | $0 | |
| (+) Non-Senior Appraised Value: | + | $974,037 | |
| | | -------------------------- | |
| (=) Total Appraised Value: | = | $974,037 | |
| (–) Senior Exemption Loss: | – | $0 | |
| (–) Exemption Loss: | – | $0 | |
| | | -------------------------- | |
| (=) Taxable Value: | = | $974,037 | |
Taxing Jurisdiction
| Owner: | HOLLY A GJERSEE | | |
| % Ownership: | 100.0000000000% | | |
| Total Value: | $974,037 | | |
| Tax Area: | 0213 - 1-49F1E1H2L1 |
| CE | COUNTY CURRENT EXPENSE | 0.9034619479 | $974,037 | $974,037 | $880.01 | | |
| CNTYDD | DEVELOPMENTAL DISABILITIES | 0.0052121823 | $974,037 | $974,037 | $5.08 | | |
| CNTYVET | VETERANS RELIEF | 0.0052777810 | $974,037 | $974,037 | $5.14 | | |
| MENTAL | MENTAL HEALTH | 0.0052121823 | $974,037 | $974,037 | $5.08 | | |
| ROADS | COUNTY ROADS | 0.7415066410 | $974,037 | $974,037 | $722.25 | | |
| ROADSCU | COUNTY ROADS TO CUR EXP | 0.0000000000 | $974,037 | $974,037 | $0.00 | | |
| HOSP2CASH | HOSP DIST #2 GENERAL | 0.0536075306 | $974,037 | $974,037 | $52.22 | | |
| SCH49CP | SCHOOL DIST #49 CAP PROJ | 0.6279093905 | $974,037 | $974,037 | $611.61 | | |
| SCH49MO | SCHOOL DIST #49 EP & O | 0.6376483602 | $974,037 | $974,037 | $621.09 | | |
| CONSERVE | CONSERVATION FUTURES | 0.0275621078 | $974,037 | $974,037 | $26.85 | | |
| EMS1 | FIRE DIST #1 EMS | 0.4679948282 | $974,037 | $974,037 | $455.84 | | |
| FD1 | FIRE DIST #1 GENERAL | 1.2171942929 | $974,037 | $974,037 | $1,185.59 | | |
| LIB1 | LIBRARY DIST #1 GENERAL | 0.2868827388 | $974,037 | $974,037 | $279.43 | | |
| PORTPT | PORT OF PT GENERAL | 0.1134941229 | $974,037 | $974,037 | $110.55 | | |
| PORTPTIDD | PORT OF PT IDD 2019 | 0.2577346692 | $974,037 | $974,037 | $251.04 | | |
| PUD1 | PUD #1 GENERAL | 0.0597888892 | $974,037 | $974,037 | $58.24 | | |
| STATE | STATE SCHOOL PART 1 | 1.4940692947 | $974,037 | $974,037 | $1,455.28 | | |
| STATE2 | STATE SCHOOL PART 2 | 0.8050170049 | $974,037 | $974,037 | $784.12 | | |
| | Total Tax Rate: | 7.7095739644 | | | | | |
| | | | | Taxes w/Current Exemptions: | $7,509.42 | | |
| | | | | Taxes w/o Exemptions: | $7,509.42 | | |
Improvement / Building
| Improvement #1: | Residential Bldg | State Code: | 11 | 0.0 sqft | Value: | $16,700 |
| Improvement #2: | Residential Bldg | State Code: | 11 | 1678.0 sqft | Value: | $482,962 |
| Bathrooms (#): | 2 (FULL) | Bedrooms (#): | 2 | | Exterior Wall: | SI/ST | Foundation: | CONPR | | Heating/Cooling: | HPUMP | Roof Cover: | METAL |
|
| | Type | Description | Class CD | Sub Class CD | Year Built | Area |
| | MA | Main Area | 5- | 2S | 2021 | 1118.0 |
| | MA2 | Second Floor Main Area | 5- | 2S | 2021 | 560.0 |
| | HWPOR | House Wood Porch | 3 | * | 2021 | 256.0 |
Sketch
| No sketches available for this property. |
Property Image
Land
| 1 | 9301F | | 0.0000 | 0.00 | 0.00 | 0.00 | 0.00 | $2,875 | $0 |
| 2 | 3310-1115F | | 0.0000 | 0.00 | 0.00 | 0.00 | 0.00 | $471,500 | $0 |
Roll Value History
| 2026 | N/A | N/A | N/A | N/A | N/A |
| 2025 | $499,662 | $474,375 | $0 | $974,037 | $974,037 |
| 2024 | $478,843 | $453,750 | $0 | $932,593 | $932,593 |
| 2023 | $458,024 | $407,500 | $0 | $865,524 | $865,524 |
| 2022 | $437,204 | $402,500 | $0 | $839,704 | $839,704 |
Deed and Sales History
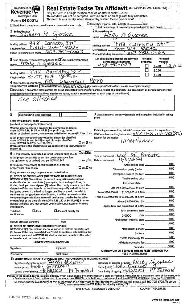
| 1 | 10/12/2021 | LOP | Lack of Probate | WILLIAM M GJERSEE | HOLLY A GJERSEE | | | | 137824 | |
| 2 | 08/09/2011 | QCD | Quit Claim Deed | GJERSEE, DORIS ELIZABETH | GJERSE, WILLIAM MAME | 0 | 0 | $0.00 | 116401 | 0 |
| 3 | 08/30/1999 | QCD | Quit Claim Deed | GJERSEE, HAROLD MARINIUS/ | GJERSEE, DORIS ELIZABETH | 0 | 0 | $0.00 | 87880 | 0 |
Payout Agreement
| No payout information available.. |