Property
Account |
| Property ID: | 36104 | Abbreviated Legal Description: | OLYMPUS BEACH 17 & TL TX Y(S1/2) (.76CH) |
| Parcel # / Geo ID: | 978900012 | Agent Code: | |
| Type: | Real | | |
| Tax Area: | 0213 - 1-49F1E1H2L1 | Land Use Code | 11 |
| Open Space: | N | DFL | N |
| Historic Property: | N | Remodel Property: | N |
| Multi-Family Redevelopment: | N | | |
| Township: | 28N | Section: | 4 |
| Range: | 1E |
Location |
| Address: | 536 OLYMPUS BLVD PORT LUDLOW, WA 98365 | Mapsco: | 081/015 |
| Neighborhood: | BASALT BCH,N LUDLOW BCH,OLYMPUS BCH; EDSALL/GREEN/BERNARD SP | Map ID: | |
| Neighborhood CD: | 3310 |
Owner |
| Name: | JULIE A BINGHAM | Owner ID: | 108586 |
| Mailing Address: | 536 OLYMPUS BLVD PORT LUDLOW, WA 98365-9434 | % Ownership: | 100.0000000000% |
| | | Exemptions: | |
Pay Tax Due
Select the appropriate checkbox next to the year to be paid. Multiple years may be selected.
*Convenience Fee not included
Taxes and Assessment Details
Property Tax Information as of
03/10/2026
Click on "Statement Details" to expand or collapse a tax statement.
* Please enter a valid date ** Please enter a valid date *
Statement Details |
| 2026 | 25332 | STATE - STATE LEVY (SCHOOL) | $1159.08 | $1159.07 | $0.00 | $0.00 | $0.00 | $2318.15 |
| 2026 | 25332 | COUNTY - COUNTY LEVIES (CE, DD, VET, MH) | $463.40 | $463.40 | $0.00 | $0.00 | $0.00 | $926.80 |
| 2026 | 25332 | CONSERVE - CONSERVATION FUTURES | $13.90 | $13.89 | $0.00 | $0.00 | $0.00 | $27.79 |
| 2026 | 25332 | COROADS - COUNTY ROADS (ROADS, DIV TO CE) | $373.83 | $373.83 | $0.00 | $0.00 | $0.00 | $747.66 |
| 2026 | 25332 | PORTPT - PORT DISTRICT | $187.16 | $187.15 | $0.00 | $0.00 | $0.00 | $374.31 |
| 2026 | 25332 | PUD1 - PUD #1 | $30.14 | $30.14 | $0.00 | $0.00 | $0.00 | $60.28 |
| 2026 | 25332 | LIB1 - LIBRARY DIST #1 | $144.63 | $144.63 | $0.00 | $0.00 | $0.00 | $289.26 |
| 2026 | 25332 | HD2 - HOSP DIST #2 | $27.03 | $27.02 | $0.00 | $0.00 | $0.00 | $54.05 |
| 2026 | 25332 | SD49 - SCHOOL DIST #49 | $638.03 | $638.03 | $0.00 | $0.00 | $0.00 | $1276.06 |
| 2026 | 25332 | FD1 - FIRE DISTRICT #1 | $613.65 | $613.64 | $0.00 | $0.00 | $0.00 | $1227.29 |
| 2026 | 25332 | EMS1 - FIRE DIST #1 EMS | $235.94 | $235.94 | $0.00 | $0.00 | $0.00 | $471.88 |
| 2026 | 25332 | JCCD - JC Conservation District | $2.55 | $2.55 | $0.00 | $0.00 | $0.00 | $5.10 |
| 2026 | 25332 | NWA - Noxious Weed Assessment | $2.98 | $2.97 | $0.00 | $0.00 | $0.00 | $5.95 |
| 2026 | 25332 | OSS - On Site Septic | $23.10 | $23.10 | $0.00 | $0.00 | $0.00 | $46.20 |
| 2026 | 25332 | WAT - Clean Water District | $13.00 | $13.00 | $0.00 | $0.00 | $0.00 | $26.00 |
| 2026 | 25332 | TOTAL: | $3928.42 | $3928.36 | $0.00 | $0.00 | $0.00 | $7856.78 |
|
| 2026 | 25332 | $3928.42 | $3928.36 | $0.00 | $0.00 | $0.00 | $7856.78 |
Statement Details |
| 2025 | 25400 | STATE - STATE LEVY (SCHOOL) | $1158.04 | $1158.02 | $0.00 | $0.00 | $2316.06 | $0.00 |
| 2025 | 25400 | COUNTY - COUNTY LEVIES (CE, DD, VET, MH) | $455.40 | $455.37 | $0.00 | $0.00 | $910.77 | $0.00 |
| 2025 | 25400 | CONSERVE - CONSERVATION FUTURES | $13.66 | $13.65 | $0.00 | $0.00 | $27.31 | $0.00 |
| 2025 | 25400 | COROADS - COUNTY ROADS (ROADS, DIV TO CE) | $364.84 | $364.83 | $0.00 | $0.00 | $729.67 | $0.00 |
| 2025 | 25400 | PORTPT - PORT DISTRICT | $185.83 | $185.82 | $0.00 | $0.00 | $371.65 | $0.00 |
| 2025 | 25400 | PUD1 - PUD #1 | $29.80 | $29.80 | $0.00 | $0.00 | $59.60 | $0.00 |
| 2025 | 25400 | LIB1 - LIBRARY DIST #1 | $141.16 | $141.15 | $0.00 | $0.00 | $282.31 | $0.00 |
| 2025 | 25400 | HD2 - HOSP DIST #2 | $26.57 | $26.57 | $0.00 | $0.00 | $53.14 | $0.00 |
| 2025 | 25400 | SD49 - SCHOOL DIST #49 | $620.64 | $620.63 | $0.00 | $0.00 | $1241.27 | $0.00 |
| 2025 | 25400 | FD1 - FIRE DISTRICT #1 | $600.94 | $600.93 | $0.00 | $0.00 | $1201.87 | $0.00 |
| 2025 | 25400 | EMS1 - FIRE DIST #1 EMS | $231.14 | $231.13 | $0.00 | $0.00 | $462.27 | $0.00 |
| 2025 | 25400 | JCCD - JC Conservation District | $2.55 | $2.55 | $0.00 | $0.00 | $5.10 | $0.00 |
| 2025 | 25400 | NWA - Noxious Weed Assessment | $2.15 | $2.15 | $0.00 | $0.00 | $4.30 | $0.00 |
| 2025 | 25400 | OSS - On Site Septic | $21.50 | $21.50 | $0.00 | $0.00 | $43.00 | $0.00 |
| 2025 | 25400 | WAT - Clean Water District | $13.00 | $13.00 | $0.00 | $0.00 | $26.00 | $0.00 |
| 2025 | 25400 | TOTAL: | $3867.22 | $3867.10 | $0.00 | $0.00 | $7734.32 | $0.00 |
|
| 2025 | 25400 | $3867.22 | $3867.10 | $0.00 | $0.00 | $7734.32 | $0.00 |
Statement Details |
| 2024 | 25451 | STATE - STATE LEVY (SCHOOL) | $1049.55 | $1049.54 | $0.00 | $0.00 | $2099.09 | $0.00 |
| 2024 | 25451 | COUNTY - COUNTY LEVIES (CE, DD, VET, MH) | $449.12 | $449.10 | $0.00 | $0.00 | $898.22 | $0.00 |
| 2024 | 25451 | CONSERVE - CONSERVATION FUTURES | $13.47 | $13.46 | $0.00 | $0.00 | $26.93 | $0.00 |
| 2024 | 25451 | COROADS - COUNTY ROADS (ROADS, DIV TO CE) | $361.39 | $361.37 | $0.00 | $0.00 | $722.76 | $0.00 |
| 2024 | 25451 | PORTPT - PORT DISTRICT | $185.51 | $185.49 | $0.00 | $0.00 | $371.00 | $0.00 |
| 2024 | 25451 | PUD1 - PUD #1 | $29.50 | $29.50 | $0.00 | $0.00 | $59.00 | $0.00 |
| 2024 | 25451 | LIB1 - LIBRARY DIST #1 | $139.82 | $139.81 | $0.00 | $0.00 | $279.63 | $0.00 |
| 2024 | 25451 | HD2 - HOSP DIST #2 | $26.21 | $26.20 | $0.00 | $0.00 | $52.41 | $0.00 |
| 2024 | 25451 | SD49 - SCHOOL DIST #49 | $468.68 | $468.67 | $0.00 | $0.00 | $937.35 | $0.00 |
| 2024 | 25451 | FD1 - FIRE DISTRICT #1 | $593.83 | $593.83 | $0.00 | $0.00 | $1187.66 | $0.00 |
| 2024 | 25451 | EMS1 - FIRE DIST #1 EMS | $226.82 | $226.82 | $0.00 | $0.00 | $453.64 | $0.00 |
| 2024 | 25451 | JCCD - JC Conservation District | $2.55 | $2.55 | $0.00 | $0.00 | $5.10 | $0.00 |
| 2024 | 25451 | NWA - Noxious Weed Assessment | $2.15 | $2.15 | $0.00 | $0.00 | $4.30 | $0.00 |
| 2024 | 25451 | OSS - On Site Septic | $21.00 | $21.00 | $0.00 | $0.00 | $42.00 | $0.00 |
| 2024 | 25451 | WAT - Clean Water District | $12.50 | $12.50 | $0.00 | $0.00 | $25.00 | $0.00 |
| 2024 | 25451 | TOTAL: | $3582.10 | $3581.99 | $0.00 | $0.00 | $7164.09 | $0.00 |
|
| 2024 | 25451 | $3582.10 | $3581.99 | $0.00 | $0.00 | $7164.09 | $0.00 |
Statement Details |
| 2023 | 25492 | STATE - STATE LEVY (SCHOOL) | $1025.09 | $1025.08 | $0.00 | $0.00 | $2050.17 | $0.00 |
| 2023 | 25492 | COUNTY - COUNTY LEVIES (CE, DD, VET, MH) | $447.32 | $447.31 | $0.00 | $0.00 | $894.63 | $0.00 |
| 2023 | 25492 | CONSERVE - CONSERVATION FUTURES | $13.42 | $13.41 | $0.00 | $0.00 | $26.83 | $0.00 |
| 2023 | 25492 | COROADS - COUNTY ROADS (ROADS, DIV TO CE) | $361.92 | $361.90 | $0.00 | $0.00 | $723.82 | $0.00 |
| 2023 | 25492 | PORTPT - PORT DISTRICT | $188.44 | $188.43 | $0.00 | $0.00 | $376.87 | $0.00 |
| 2023 | 25492 | PUD1 - PUD #1 | $29.65 | $29.65 | $0.00 | $0.00 | $59.30 | $0.00 |
| 2023 | 25492 | LIB1 - LIBRARY DIST #1 | $140.02 | $140.02 | $0.00 | $0.00 | $280.04 | $0.00 |
| 2023 | 25492 | HD2 - HOSP DIST #2 | $26.11 | $26.10 | $0.00 | $0.00 | $52.21 | $0.00 |
| 2023 | 25492 | SD49 - SCHOOL DIST #49 | $479.18 | $479.16 | $0.00 | $0.00 | $958.34 | $0.00 |
| 2023 | 25492 | FD3 - FIRE DISTRICT #3 | $445.02 | $445.02 | $0.00 | $0.00 | $890.04 | $0.00 |
| 2023 | 25492 | EMS3 - FIRE DIST #3 EMS | $159.10 | $159.09 | $0.00 | $0.00 | $318.19 | $0.00 |
| 2023 | 25492 | JCCD - JC Conservation District | $2.55 | $2.55 | $0.00 | $0.00 | $5.10 | $0.00 |
| 2023 | 25492 | NWA - Noxious Weed Assessment | $2.15 | $2.15 | $0.00 | $0.00 | $4.30 | $0.00 |
| 2023 | 25492 | OSS - On Site Septic | $20.50 | $20.50 | $0.00 | $0.00 | $41.00 | $0.00 |
| 2023 | 25492 | WAT - Clean Water District | $12.00 | $12.00 | $0.00 | $0.00 | $24.00 | $0.00 |
| 2023 | 25492 | TOTAL: | $3352.47 | $3352.37 | $0.00 | $0.00 | $6704.84 | $0.00 |
|
| 2023 | 25492 | $3352.47 | $3352.37 | $0.00 | $0.00 | $6704.84 | $0.00 |
Values
| (+) Improvement Homesite Value: | + | $0 | |
| (+) Improvement Non-Homesite Value: | + | $753,856 | |
| (+) Land Homesite Value: | + | $0 | |
| (+) Land Non-Homesite Value: | + | $254,438 | |
| (+) Curr Use (HS): | + | $0 | $0 |
| (+) Curr Use (NHS): | + | $0 | $0 |
| | | -------------------------- | |
| (=) Market Value: | = | $1,008,294 | |
| (–) Productivity Loss: | – | $0 | |
| | | -------------------------- | |
| (=) Subtotal: | = | $1,008,294 | |
| (+) Senior Appraised Value: | + | $0 | |
| (+) Non-Senior Appraised Value: | + | $1,008,294 | |
| | | -------------------------- | |
| (=) Total Appraised Value: | = | $1,008,294 | |
| (–) Senior Exemption Loss: | – | $0 | |
| (–) Exemption Loss: | – | $0 | |
| | | -------------------------- | |
| (=) Taxable Value: | = | $1,008,294 | |
Taxing Jurisdiction
| Owner: | JULIE A BINGHAM | | |
| % Ownership: | 100.0000000000% | | |
| Total Value: | $1,008,294 | | |
| Tax Area: | 0213 - 1-49F1E1H2L1 |
| CE | COUNTY CURRENT EXPENSE | 0.9034619479 | $1,008,294 | $1,008,294 | $910.96 | | |
| CNTYDD | DEVELOPMENTAL DISABILITIES | 0.0052121823 | $1,008,294 | $1,008,294 | $5.26 | | |
| CNTYVET | VETERANS RELIEF | 0.0052777810 | $1,008,294 | $1,008,294 | $5.32 | | |
| MENTAL | MENTAL HEALTH | 0.0052121823 | $1,008,294 | $1,008,294 | $5.26 | | |
| ROADS | COUNTY ROADS | 0.7415066410 | $1,008,294 | $1,008,294 | $747.66 | | |
| ROADSCU | COUNTY ROADS TO CUR EXP | 0.0000000000 | $1,008,294 | $1,008,294 | $0.00 | | |
| HOSP2CASH | HOSP DIST #2 GENERAL | 0.0536075306 | $1,008,294 | $1,008,294 | $54.05 | | |
| SCH49CP | SCHOOL DIST #49 CAP PROJ | 0.6279093905 | $1,008,294 | $1,008,294 | $633.12 | | |
| SCH49MO | SCHOOL DIST #49 EP & O | 0.6376483602 | $1,008,294 | $1,008,294 | $642.94 | | |
| CONSERVE | CONSERVATION FUTURES | 0.0275621078 | $1,008,294 | $1,008,294 | $27.79 | | |
| EMS1 | FIRE DIST #1 EMS | 0.4679948282 | $1,008,294 | $1,008,294 | $471.88 | | |
| FD1 | FIRE DIST #1 GENERAL | 1.2171942929 | $1,008,294 | $1,008,294 | $1,227.29 | | |
| LIB1 | LIBRARY DIST #1 GENERAL | 0.2868827388 | $1,008,294 | $1,008,294 | $289.26 | | |
| PORTPT | PORT OF PT GENERAL | 0.1134941229 | $1,008,294 | $1,008,294 | $114.44 | | |
| PORTPTIDD | PORT OF PT IDD 2019 | 0.2577346692 | $1,008,294 | $1,008,294 | $259.87 | | |
| PUD1 | PUD #1 GENERAL | 0.0597888892 | $1,008,294 | $1,008,294 | $60.28 | | |
| STATE | STATE SCHOOL PART 1 | 1.4940692947 | $1,008,294 | $1,008,294 | $1,506.46 | | |
| STATE2 | STATE SCHOOL PART 2 | 0.8050170049 | $1,008,294 | $1,008,294 | $811.69 | | |
| | Total Tax Rate: | 7.7095739644 | | | | | |
| | | | | Taxes w/Current Exemptions: | $7,773.53 | | |
| | | | | Taxes w/o Exemptions: | $7,773.53 | | |
Improvement / Building
| Improvement #1: | Residential Bldg | State Code: | 11 | 2455.0 sqft | Value: | $753,856 |
| Bathrooms (#): | 3 (FULL) | Bedrooms (#): | 2 | | Exterior Wall: | SI/ST | Floor Construction: | FRAME | | Foundation: | CONPR | Heating/Cooling: | F/A | | Inside Verify: | YES-FIX | Roof Cover: | COMP |
|
| | Type | Description | Class CD | Sub Class CD | Year Built | Area |
| | MA | Main Area | 5+ | 15SF | 1996 | 1721.0 |
| | MA2 | Second Floor Main Area | 5+ | 15SF | 1996 | 734.0 |
| | HDECK | House Deck | 4 | * | 1996 | 1124.0 |
| | GATT | House Attached Garage | 4 | 15SF | 1996 | 780.0 |
| | OTHER | Other | * | * | 1996 | 0.0 |
| | CONCD | Concrete Drive | 3 | * | 1996 | 720.0 |
Sketch
Property Image
Land
| 1 | 3310-1115F | | 0.0000 | 0.00 | 0.00 | 0.00 | 0.00 | $253,000 | $0 |
| 2 | 9301F | | 0.0000 | 0.00 | 0.00 | 0.00 | 0.00 | $1,438 | $0 |
Roll Value History
| 2026 | N/A | N/A | N/A | N/A | N/A |
| 2025 | $753,856 | $254,438 | $0 | $1,008,294 | $1,008,294 |
| 2024 | $722,445 | $243,375 | $0 | $965,820 | $965,820 |
| 2023 | $691,034 | $216,250 | $0 | $907,284 | $907,284 |
| 2022 | $659,624 | $211,250 | $0 | $870,874 | $870,874 |
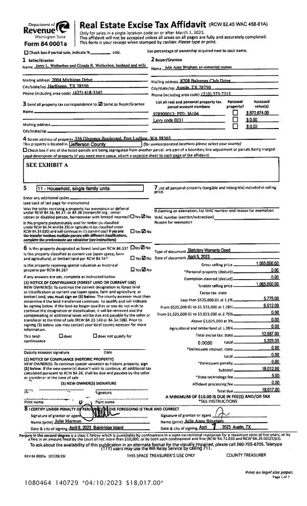
Deed and Sales History
| 1 | 04/05/2023 | SWD | Statutory Warranty Deed | JERRY L WETHERBEE | JULIE A BINGHAM | | | $1,065,000.00 | 140729 | |
| 2 | 11/19/1999 | SWD | Statutory Warranty Deed | PETRICK, GARRON J | WETHERBEE, JERRY/GLENDA | 0 | 0 | $225,000.00 | 88438 | 0 |
| 3 | 12/31/1996 | QCD | Quit Claim Deed | PETRICK, GARRON J/GEORGIA | PETRICK, GARRON J | 0 | 0 | $0.00 | 81106 | 0 |
| 4 | 06/23/1993 | SWD | Statutory Warranty Deed | INGALLS/KRIENS/INGALLS TR | PETRICK, GARRON/GEORGIA | 0 | 0 | $75,000.00 | 71519 | 0 |
| 5 | 06/08/1993 | WD | Warranty Deed | INGALLS, LARRY L | INGALLS, Y/KRIENS, D | 0 | 0 | $0.00 | 71391 | 0 |
Payout Agreement
| No payout information available.. |