Property
Account |
| Property ID: | 36106 | Abbreviated Legal Description: | OLYMPUS BEACH LOTS 20 & 21 AND TL TAX OO FRTG |
| Parcel # / Geo ID: | 978900014 | Agent Code: | |
| Type: | Real | | |
| Tax Area: | 0213 - 1-49F1E1H2L1 | Land Use Code | 11 |
| Open Space: | N | DFL | N |
| Historic Property: | N | Remodel Property: | N |
| Multi-Family Redevelopment: | N | | |
| Township: | 28N | Section: | 4 |
| Range: | 1E |
Location |
| Address: | 500 OLYMPUS BLVD PORT LUDLOW, WA 98365 | Mapsco: | 081/017 |
| Neighborhood: | BASALT BCH,N LUDLOW BCH,OLYMPUS BCH; EDSALL/GREEN/BERNARD SP | Map ID: | |
| Neighborhood CD: | 3310 |
Owner |
| Name: | JORDAN C THOMAS | Owner ID: | 98185 |
| Mailing Address: | AUSTEN C THOMAS JTWROS 500 OLYMPUS BLVD PORT LUDLOW, WA 98365-9434 | % Ownership: | 100.0000000000% |
| | | Exemptions: | |
Pay Tax Due
Select the appropriate checkbox next to the year to be paid. Multiple years may be selected.
*Convenience Fee not included
Taxes and Assessment Details
Property Tax Information as of
03/10/2026
Click on "Statement Details" to expand or collapse a tax statement.
* Please enter a valid date ** Please enter a valid date *
Statement Details |
| 2026 | 25334 | STATE - STATE LEVY (SCHOOL) | $804.51 | $804.50 | $0.00 | $0.00 | $0.00 | $1609.01 |
| 2026 | 25334 | COUNTY - COUNTY LEVIES (CE, DD, VET, MH) | $321.65 | $321.62 | $0.00 | $0.00 | $0.00 | $643.27 |
| 2026 | 25334 | CONSERVE - CONSERVATION FUTURES | $9.65 | $9.64 | $0.00 | $0.00 | $0.00 | $19.29 |
| 2026 | 25334 | COROADS - COUNTY ROADS (ROADS, DIV TO CE) | $259.47 | $259.47 | $0.00 | $0.00 | $0.00 | $518.94 |
| 2026 | 25334 | PORTPT - PORT DISTRICT | $129.91 | $129.89 | $0.00 | $0.00 | $0.00 | $259.80 |
| 2026 | 25334 | PUD1 - PUD #1 | $20.92 | $20.92 | $0.00 | $0.00 | $0.00 | $41.84 |
| 2026 | 25334 | LIB1 - LIBRARY DIST #1 | $100.39 | $100.38 | $0.00 | $0.00 | $0.00 | $200.77 |
| 2026 | 25334 | HD2 - HOSP DIST #2 | $18.76 | $18.76 | $0.00 | $0.00 | $0.00 | $37.52 |
| 2026 | 25334 | SD49 - SCHOOL DIST #49 | $442.85 | $442.85 | $0.00 | $0.00 | $0.00 | $885.70 |
| 2026 | 25334 | FD1 - FIRE DISTRICT #1 | $425.93 | $425.92 | $0.00 | $0.00 | $0.00 | $851.85 |
| 2026 | 25334 | EMS1 - FIRE DIST #1 EMS | $163.76 | $163.76 | $0.00 | $0.00 | $0.00 | $327.52 |
| 2026 | 25334 | JCCD - JC Conservation District | $2.55 | $2.55 | $0.00 | $0.00 | $0.00 | $5.10 |
| 2026 | 25334 | NWA - Noxious Weed Assessment | $2.98 | $2.97 | $0.00 | $0.00 | $0.00 | $5.95 |
| 2026 | 25334 | OSS - On Site Septic | $23.10 | $23.10 | $0.00 | $0.00 | $0.00 | $46.20 |
| 2026 | 25334 | WAT - Clean Water District | $13.00 | $13.00 | $0.00 | $0.00 | $0.00 | $26.00 |
| 2026 | 25334 | TOTAL: | $2739.43 | $2739.33 | $0.00 | $0.00 | $0.00 | $5478.76 |
|
| 2026 | 25334 | $2739.43 | $2739.33 | $0.00 | $0.00 | $0.00 | $5478.76 |
Statement Details |
| 2025 | 25402 | STATE - STATE LEVY (SCHOOL) | $803.13 | $803.12 | $0.00 | $0.00 | $1606.25 | $0.00 |
| 2025 | 25402 | COUNTY - COUNTY LEVIES (CE, DD, VET, MH) | $315.83 | $315.81 | $0.00 | $0.00 | $631.64 | $0.00 |
| 2025 | 25402 | CONSERVE - CONSERVATION FUTURES | $9.47 | $9.47 | $0.00 | $0.00 | $18.94 | $0.00 |
| 2025 | 25402 | COROADS - COUNTY ROADS (ROADS, DIV TO CE) | $253.03 | $253.02 | $0.00 | $0.00 | $506.05 | $0.00 |
| 2025 | 25402 | PORTPT - PORT DISTRICT | $128.88 | $128.87 | $0.00 | $0.00 | $257.75 | $0.00 |
| 2025 | 25402 | PUD1 - PUD #1 | $20.67 | $20.66 | $0.00 | $0.00 | $41.33 | $0.00 |
| 2025 | 25402 | LIB1 - LIBRARY DIST #1 | $97.90 | $97.89 | $0.00 | $0.00 | $195.79 | $0.00 |
| 2025 | 25402 | HD2 - HOSP DIST #2 | $18.43 | $18.42 | $0.00 | $0.00 | $36.85 | $0.00 |
| 2025 | 25402 | SD49 - SCHOOL DIST #49 | $430.44 | $430.42 | $0.00 | $0.00 | $860.86 | $0.00 |
| 2025 | 25402 | FD1 - FIRE DISTRICT #1 | $416.77 | $416.76 | $0.00 | $0.00 | $833.53 | $0.00 |
| 2025 | 25402 | EMS1 - FIRE DIST #1 EMS | $160.30 | $160.30 | $0.00 | $0.00 | $320.60 | $0.00 |
| 2025 | 25402 | JCCD - JC Conservation District | $2.55 | $2.55 | $0.00 | $0.00 | $5.10 | $0.00 |
| 2025 | 25402 | NWA - Noxious Weed Assessment | $2.15 | $2.15 | $0.00 | $0.00 | $4.30 | $0.00 |
| 2025 | 25402 | OSS - On Site Septic | $21.50 | $21.50 | $0.00 | $0.00 | $43.00 | $0.00 |
| 2025 | 25402 | WAT - Clean Water District | $13.00 | $13.00 | $0.00 | $0.00 | $26.00 | $0.00 |
| 2025 | 25402 | TOTAL: | $2694.05 | $2693.94 | $0.00 | $0.00 | $5387.99 | $0.00 |
|
| 2025 | 25402 | $2694.05 | $2693.94 | $0.00 | $0.00 | $5387.99 | $0.00 |
Statement Details |
| 2024 | 25453 | STATE - STATE LEVY (SCHOOL) | $710.41 | $710.40 | $0.00 | $0.00 | $1420.81 | $0.00 |
| 2024 | 25453 | COUNTY - COUNTY LEVIES (CE, DD, VET, MH) | $304.00 | $303.98 | $0.00 | $0.00 | $607.98 | $0.00 |
| 2024 | 25453 | CONSERVE - CONSERVATION FUTURES | $9.12 | $9.11 | $0.00 | $0.00 | $18.23 | $0.00 |
| 2024 | 25453 | COROADS - COUNTY ROADS (ROADS, DIV TO CE) | $244.61 | $244.61 | $0.00 | $0.00 | $489.22 | $0.00 |
| 2024 | 25453 | PORTPT - PORT DISTRICT | $125.57 | $125.55 | $0.00 | $0.00 | $251.12 | $0.00 |
| 2024 | 25453 | PUD1 - PUD #1 | $19.97 | $19.96 | $0.00 | $0.00 | $39.93 | $0.00 |
| 2024 | 25453 | LIB1 - LIBRARY DIST #1 | $94.64 | $94.64 | $0.00 | $0.00 | $189.28 | $0.00 |
| 2024 | 25453 | HD2 - HOSP DIST #2 | $17.74 | $17.73 | $0.00 | $0.00 | $35.47 | $0.00 |
| 2024 | 25453 | SD49 - SCHOOL DIST #49 | $317.24 | $317.22 | $0.00 | $0.00 | $634.46 | $0.00 |
| 2024 | 25453 | FD1 - FIRE DISTRICT #1 | $401.95 | $401.94 | $0.00 | $0.00 | $803.89 | $0.00 |
| 2024 | 25453 | EMS1 - FIRE DIST #1 EMS | $153.53 | $153.53 | $0.00 | $0.00 | $307.06 | $0.00 |
| 2024 | 25453 | JCCD - JC Conservation District | $2.55 | $2.55 | $0.00 | $0.00 | $5.10 | $0.00 |
| 2024 | 25453 | NWA - Noxious Weed Assessment | $2.15 | $2.15 | $0.00 | $0.00 | $4.30 | $0.00 |
| 2024 | 25453 | OSS - On Site Septic | $21.00 | $21.00 | $0.00 | $0.00 | $42.00 | $0.00 |
| 2024 | 25453 | WAT - Clean Water District | $12.50 | $12.50 | $0.00 | $0.00 | $25.00 | $0.00 |
| 2024 | 25453 | TOTAL: | $2436.98 | $2436.87 | $0.00 | $0.00 | $4873.85 | $0.00 |
|
| 2024 | 25453 | $2436.98 | $2436.87 | $0.00 | $0.00 | $4873.85 | $0.00 |
Statement Details |
| 2023 | 25494 | STATE - STATE LEVY (SCHOOL) | $706.00 | $705.98 | $0.00 | $0.00 | $1411.98 | $0.00 |
| 2023 | 25494 | COUNTY - COUNTY LEVIES (CE, DD, VET, MH) | $308.07 | $308.07 | $0.00 | $0.00 | $616.14 | $0.00 |
| 2023 | 25494 | CONSERVE - CONSERVATION FUTURES | $9.24 | $9.24 | $0.00 | $0.00 | $18.48 | $0.00 |
| 2023 | 25494 | COROADS - COUNTY ROADS (ROADS, DIV TO CE) | $249.25 | $249.25 | $0.00 | $0.00 | $498.50 | $0.00 |
| 2023 | 25494 | PORTPT - PORT DISTRICT | $129.78 | $129.77 | $0.00 | $0.00 | $259.55 | $0.00 |
| 2023 | 25494 | PUD1 - PUD #1 | $20.42 | $20.42 | $0.00 | $0.00 | $40.84 | $0.00 |
| 2023 | 25494 | LIB1 - LIBRARY DIST #1 | $96.44 | $96.43 | $0.00 | $0.00 | $192.87 | $0.00 |
| 2023 | 25494 | HD2 - HOSP DIST #2 | $17.98 | $17.97 | $0.00 | $0.00 | $35.95 | $0.00 |
| 2023 | 25494 | SD49 - SCHOOL DIST #49 | $330.02 | $330.00 | $0.00 | $0.00 | $660.02 | $0.00 |
| 2023 | 25494 | FD3 - FIRE DISTRICT #3 | $306.49 | $306.49 | $0.00 | $0.00 | $612.98 | $0.00 |
| 2023 | 25494 | EMS3 - FIRE DIST #3 EMS | $109.57 | $109.57 | $0.00 | $0.00 | $219.14 | $0.00 |
| 2023 | 25494 | JCCD - JC Conservation District | $2.55 | $2.55 | $0.00 | $0.00 | $5.10 | $0.00 |
| 2023 | 25494 | NWA - Noxious Weed Assessment | $2.15 | $2.15 | $0.00 | $0.00 | $4.30 | $0.00 |
| 2023 | 25494 | OSS - On Site Septic | $20.50 | $20.50 | $0.00 | $0.00 | $41.00 | $0.00 |
| 2023 | 25494 | WAT - Clean Water District | $12.00 | $12.00 | $0.00 | $0.00 | $24.00 | $0.00 |
| 2023 | 25494 | TOTAL: | $2320.46 | $2320.39 | $0.00 | $0.00 | $4640.85 | $0.00 |
|
| 2023 | 25494 | $2320.46 | $2320.39 | $0.00 | $0.00 | $4640.85 | $0.00 |
Values
| (+) Improvement Homesite Value: | + | $224,033 | |
| (+) Improvement Non-Homesite Value: | + | $0 | |
| (+) Land Homesite Value: | + | $475,813 | |
| (+) Land Non-Homesite Value: | + | $0 | |
| (+) Curr Use (HS): | + | $0 | $0 |
| (+) Curr Use (NHS): | + | $0 | $0 |
| | | -------------------------- | |
| (=) Market Value: | = | $699,846 | |
| (–) Productivity Loss: | – | $0 | |
| | | -------------------------- | |
| (=) Subtotal: | = | $699,846 | |
| (+) Senior Appraised Value: | + | $0 | |
| (+) Non-Senior Appraised Value: | + | $699,846 | |
| | | -------------------------- | |
| (=) Total Appraised Value: | = | $699,846 | |
| (–) Senior Exemption Loss: | – | $0 | |
| (–) Exemption Loss: | – | $0 | |
| | | -------------------------- | |
| (=) Taxable Value: | = | $699,846 | |
Taxing Jurisdiction
| Owner: | JORDAN C THOMAS | | |
| % Ownership: | 100.0000000000% | | |
| Total Value: | $699,846 | | |
| Tax Area: | 0213 - 1-49F1E1H2L1 |
| CE | COUNTY CURRENT EXPENSE | 0.9034619479 | $699,846 | $699,846 | $632.28 | | |
| CNTYDD | DEVELOPMENTAL DISABILITIES | 0.0052121823 | $699,846 | $699,846 | $3.65 | | |
| CNTYVET | VETERANS RELIEF | 0.0052777810 | $699,846 | $699,846 | $3.69 | | |
| MENTAL | MENTAL HEALTH | 0.0052121823 | $699,846 | $699,846 | $3.65 | | |
| ROADS | COUNTY ROADS | 0.7415066410 | $699,846 | $699,846 | $518.94 | | |
| ROADSCU | COUNTY ROADS TO CUR EXP | 0.0000000000 | $699,846 | $699,846 | $0.00 | | |
| HOSP2CASH | HOSP DIST #2 GENERAL | 0.0536075306 | $699,846 | $699,846 | $37.52 | | |
| SCH49CP | SCHOOL DIST #49 CAP PROJ | 0.6279093905 | $699,846 | $699,846 | $439.44 | | |
| SCH49MO | SCHOOL DIST #49 EP & O | 0.6376483602 | $699,846 | $699,846 | $446.26 | | |
| CONSERVE | CONSERVATION FUTURES | 0.0275621078 | $699,846 | $699,846 | $19.29 | | |
| EMS1 | FIRE DIST #1 EMS | 0.4679948282 | $699,846 | $699,846 | $327.52 | | |
| FD1 | FIRE DIST #1 GENERAL | 1.2171942929 | $699,846 | $699,846 | $851.85 | | |
| LIB1 | LIBRARY DIST #1 GENERAL | 0.2868827388 | $699,846 | $699,846 | $200.77 | | |
| PORTPT | PORT OF PT GENERAL | 0.1134941229 | $699,846 | $699,846 | $79.43 | | |
| PORTPTIDD | PORT OF PT IDD 2019 | 0.2577346692 | $699,846 | $699,846 | $180.37 | | |
| PUD1 | PUD #1 GENERAL | 0.0597888892 | $699,846 | $699,846 | $41.84 | | |
| STATE | STATE SCHOOL PART 1 | 1.4940692947 | $699,846 | $699,846 | $1,045.62 | | |
| STATE2 | STATE SCHOOL PART 2 | 0.8050170049 | $699,846 | $699,846 | $563.39 | | |
| | Total Tax Rate: | 7.7095739644 | | | | | |
| | | | | Taxes w/Current Exemptions: | $5,395.51 | | |
| | | | | Taxes w/o Exemptions: | $5,395.51 | | |
Improvement / Building
| Improvement #1: | Residential Bldg | State Code: | 11 | 1326.0 sqft | Value: | $224,033 |
| Bathrooms (#): | 1 (FULL) | Bedrooms (#): | 2 | | Exterior Wall: | SI/ST | Fireplace: | WD ST-FAIR | | Floor Construction: | FRAME | Foundation: | CONBL | | Heating/Cooling: | F/A | Roof Cover: | BLTUP |
|
| | Type | Description | Class CD | Sub Class CD | Year Built | Area |
| | MA | Main Area | 3+ | 1S | 1955 | 1326.0 |
| | SHED | Shed (Table Not Dep) | 1 | * | 1955 | 600.0 |
| | BSMTU | House basement unfinished | 3 | * | 1955 | 1638.0 |
| | HDECK | House Deck | 3 | * | 1955 | 291.0 |
Sketch
Property Image
Land
| 1 | 3310-1115F | | 0.0000 | 0.00 | 0.00 | 0.00 | 0.00 | $471,500 | $0 |
| 2 | 9301F | | 0.0000 | 0.00 | 0.00 | 0.00 | 0.00 | $4,313 | $0 |
Roll Value History
| 2026 | N/A | N/A | N/A | N/A | N/A |
| 2025 | $224,033 | $475,813 | $0 | $699,846 | $699,846 |
| 2024 | $214,698 | $455,125 | $0 | $669,823 | $669,823 |
| 2023 | $205,363 | $408,750 | $0 | $614,113 | $614,113 |
| 2022 | $196,029 | $403,750 | $0 | $599,779 | $599,779 |
Deed and Sales History
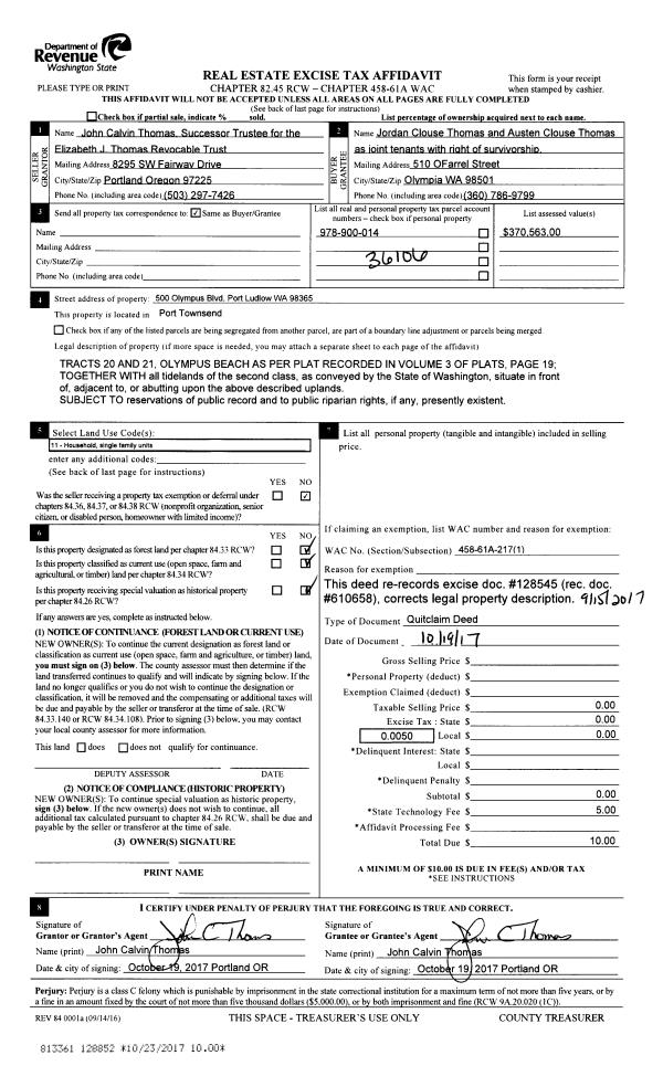
| 1 | 08/15/2017 | QCD | Quit Claim Deed | ELIZABETH J THOMAS TRUSTEE | JORDAN C THOMAS | | | | 128545 | |
| 2 | 10/19/2017 | QCD | Quit Claim Deed | JORDAN C THOMAS | | | | | 0 | |
| 3 | 12/06/1994 | QCD | Quit Claim Deed | THOMAS, ELIZABETH | THOMAS, ELIZABETH J/TRUST | 0 | 0 | $0.00 | 76185 | 0 |
Payout Agreement
| No payout information available.. |