Property
Account |
| Property ID: | 36186 | Abbreviated Legal Description: | OLYMPUS BEACH LOTS 95 & 96 & TL TX BB-1 (1.55A) |
| Parcel # / Geo ID: | 978900096 | Agent Code: | |
| Type: | Real | | |
| Tax Area: | 0213 - 1-49F1E1H2L1 | Land Use Code | 91 |
| Open Space: | N | DFL | N |
| Historic Property: | N | Remodel Property: | N |
| Multi-Family Redevelopment: | N | | |
| Township: | 28N | Section: | 4 |
| Range: | 1E |
Location |
| Address: | | Mapsco: | 083/038 |
| Neighborhood: | BASALT BCH,N LUDLOW BCH,OLYMPUS BCH; EDSALL/GREEN/BERNARD SP | Map ID: | |
| Neighborhood CD: | 3310 |
Owner |
| Name: | PAULA R & DANIEL J CALLAHAN | Owner ID: | 107495 |
| Mailing Address: | PO BOX 65427 PORT LUDLOW, WA 98365-0427 | % Ownership: | 100.0000000000% |
| | | Exemptions: | |
Pay Tax Due
Select the appropriate checkbox next to the year to be paid. Multiple years may be selected.
*Convenience Fee not included
Taxes and Assessment Details
Property Tax Information as of
03/10/2026
Click on "Statement Details" to expand or collapse a tax statement.
* Please enter a valid date ** Please enter a valid date *
Statement Details |
| 2026 | 25414 | STATE - STATE LEVY (SCHOOL) | $85.64 | $85.63 | $0.00 | $0.00 | $0.00 | $171.27 |
| 2026 | 25414 | COUNTY - COUNTY LEVIES (CE, DD, VET, MH) | $34.25 | $34.22 | $0.00 | $0.00 | $0.00 | $68.47 |
| 2026 | 25414 | CONSERVE - CONSERVATION FUTURES | $1.03 | $1.02 | $0.00 | $0.00 | $0.00 | $2.05 |
| 2026 | 25414 | COROADS - COUNTY ROADS (ROADS, DIV TO CE) | $27.62 | $27.62 | $0.00 | $0.00 | $0.00 | $55.24 |
| 2026 | 25414 | PORTPT - PORT DISTRICT | $13.83 | $13.82 | $0.00 | $0.00 | $0.00 | $27.65 |
| 2026 | 25414 | PUD1 - PUD #1 | $2.23 | $2.22 | $0.00 | $0.00 | $0.00 | $4.45 |
| 2026 | 25414 | LIB1 - LIBRARY DIST #1 | $10.69 | $10.68 | $0.00 | $0.00 | $0.00 | $21.37 |
| 2026 | 25414 | HD2 - HOSP DIST #2 | $2.00 | $1.99 | $0.00 | $0.00 | $0.00 | $3.99 |
| 2026 | 25414 | SD49 - SCHOOL DIST #49 | $47.14 | $47.13 | $0.00 | $0.00 | $0.00 | $94.27 |
| 2026 | 25414 | FD1 - FIRE DISTRICT #1 | $45.34 | $45.33 | $0.00 | $0.00 | $0.00 | $90.67 |
| 2026 | 25414 | EMS1 - FIRE DIST #1 EMS | $17.43 | $17.43 | $0.00 | $0.00 | $0.00 | $34.86 |
| 2026 | 25414 | FP - DNR Forest Fire Protection Assmt | $8.50 | $8.50 | $0.00 | $0.00 | $0.00 | $17.00 |
| 2026 | 25414 | FPLCA - DNR Landowner Contingency Assmt | $3.00 | $3.00 | $0.00 | $0.00 | $0.00 | $6.00 |
| 2026 | 25414 | JCCD - JC Conservation District | $2.53 | $2.53 | $0.00 | $0.00 | $0.00 | $5.06 |
| 2026 | 25414 | NWA - Noxious Weed Assessment | $2.98 | $2.97 | $0.00 | $0.00 | $0.00 | $5.95 |
| 2026 | 25414 | WAT - Clean Water District | $13.00 | $13.00 | $0.00 | $0.00 | $0.00 | $26.00 |
| 2026 | 25414 | FP ADMIN - FP ADMIN | $0.50 | $0.00 | $0.00 | $0.00 | $0.00 | $0.50 |
| 2026 | 25414 | TOTAL: | $317.71 | $317.09 | $0.00 | $0.00 | $0.00 | $634.80 |
|
| 2026 | 25414 | $317.71 | $317.09 | $0.00 | $0.00 | $0.00 | $634.80 |
Statement Details |
| 2025 | 25482 | STATE - STATE LEVY (SCHOOL) | $85.44 | $85.43 | $0.00 | $0.00 | $170.87 | $0.00 |
| 2025 | 25482 | COUNTY - COUNTY LEVIES (CE, DD, VET, MH) | $33.60 | $33.59 | $0.00 | $0.00 | $67.19 | $0.00 |
| 2025 | 25482 | CONSERVE - CONSERVATION FUTURES | $1.01 | $1.00 | $0.00 | $0.00 | $2.01 | $0.00 |
| 2025 | 25482 | COROADS - COUNTY ROADS (ROADS, DIV TO CE) | $26.92 | $26.91 | $0.00 | $0.00 | $53.83 | $0.00 |
| 2025 | 25482 | PORTPT - PORT DISTRICT | $13.71 | $13.71 | $0.00 | $0.00 | $27.42 | $0.00 |
| 2025 | 25482 | PUD1 - PUD #1 | $2.20 | $2.20 | $0.00 | $0.00 | $4.40 | $0.00 |
| 2025 | 25482 | LIB1 - LIBRARY DIST #1 | $10.42 | $10.41 | $0.00 | $0.00 | $20.83 | $0.00 |
| 2025 | 25482 | HD2 - HOSP DIST #2 | $1.96 | $1.96 | $0.00 | $0.00 | $3.92 | $0.00 |
| 2025 | 25482 | SD49 - SCHOOL DIST #49 | $45.79 | $45.79 | $0.00 | $0.00 | $91.58 | $0.00 |
| 2025 | 25482 | FD1 - FIRE DISTRICT #1 | $44.34 | $44.33 | $0.00 | $0.00 | $88.67 | $0.00 |
| 2025 | 25482 | EMS1 - FIRE DIST #1 EMS | $17.05 | $17.05 | $0.00 | $0.00 | $34.10 | $0.00 |
| 2025 | 25482 | FP - DNR Forest Fire Protection Assmt | $8.50 | $8.50 | $0.00 | $0.00 | $17.00 | $0.00 |
| 2025 | 25482 | FPLCA - DNR Landowner Contingency Assmt | $3.00 | $3.00 | $0.00 | $0.00 | $6.00 | $0.00 |
| 2025 | 25482 | JCCD - JC Conservation District | $2.53 | $2.53 | $0.00 | $0.00 | $5.06 | $0.00 |
| 2025 | 25482 | NWA - Noxious Weed Assessment | $2.15 | $2.15 | $0.00 | $0.00 | $4.30 | $0.00 |
| 2025 | 25482 | WAT - Clean Water District | $13.00 | $13.00 | $0.00 | $0.00 | $26.00 | $0.00 |
| 2025 | 25482 | FP ADMIN - FP ADMIN | $0.50 | $0.00 | $0.00 | $0.00 | $0.50 | $0.00 |
| 2025 | 25482 | TOTAL: | $312.12 | $311.56 | $0.00 | $0.00 | $623.68 | $0.00 |
|
| 2025 | 25482 | $312.12 | $311.56 | $0.00 | $0.00 | $623.68 | $0.00 |
Statement Details |
| 2024 | 25533 | STATE - STATE LEVY (SCHOOL) | $74.93 | $74.93 | $0.00 | $0.00 | $149.86 | $0.00 |
| 2024 | 25533 | COUNTY - COUNTY LEVIES (CE, DD, VET, MH) | $32.07 | $32.06 | $0.00 | $0.00 | $64.13 | $0.00 |
| 2024 | 25533 | CONSERVE - CONSERVATION FUTURES | $0.96 | $0.96 | $0.00 | $0.00 | $1.92 | $0.00 |
| 2024 | 25533 | COROADS - COUNTY ROADS (ROADS, DIV TO CE) | $25.81 | $25.79 | $0.00 | $0.00 | $51.60 | $0.00 |
| 2024 | 25533 | PORTPT - PORT DISTRICT | $13.25 | $13.24 | $0.00 | $0.00 | $26.49 | $0.00 |
| 2024 | 25533 | PUD1 - PUD #1 | $2.11 | $2.10 | $0.00 | $0.00 | $4.21 | $0.00 |
| 2024 | 25533 | LIB1 - LIBRARY DIST #1 | $9.98 | $9.98 | $0.00 | $0.00 | $19.96 | $0.00 |
| 2024 | 25533 | HD2 - HOSP DIST #2 | $1.87 | $1.87 | $0.00 | $0.00 | $3.74 | $0.00 |
| 2024 | 25533 | SD49 - SCHOOL DIST #49 | $33.46 | $33.46 | $0.00 | $0.00 | $66.92 | $0.00 |
| 2024 | 25533 | FD1 - FIRE DISTRICT #1 | $42.40 | $42.39 | $0.00 | $0.00 | $84.79 | $0.00 |
| 2024 | 25533 | EMS1 - FIRE DIST #1 EMS | $16.20 | $16.19 | $0.00 | $0.00 | $32.39 | $0.00 |
| 2024 | 25533 | FP - DNR Forest Fire Protection Assmt | $8.50 | $8.50 | $0.00 | $0.00 | $17.00 | $0.00 |
| 2024 | 25533 | FPLCA - DNR Landowner Contingency Assmt | $3.00 | $3.00 | $0.00 | $0.00 | $6.00 | $0.00 |
| 2024 | 25533 | JCCD - JC Conservation District | $2.53 | $2.53 | $0.00 | $0.00 | $5.06 | $0.00 |
| 2024 | 25533 | NWA - Noxious Weed Assessment | $2.15 | $2.15 | $0.00 | $0.00 | $4.30 | $0.00 |
| 2024 | 25533 | WAT - Clean Water District | $12.50 | $12.50 | $0.00 | $0.00 | $25.00 | $0.00 |
| 2024 | 25533 | FP ADMIN - FP ADMIN | $0.50 | $0.00 | $0.00 | $0.00 | $0.50 | $0.00 |
| 2024 | 25533 | TOTAL: | $282.22 | $281.65 | $0.00 | $0.00 | $563.87 | $0.00 |
|
| 2024 | 25533 | $282.22 | $281.65 | $0.00 | $0.00 | $563.87 | $0.00 |
Statement Details |
| 2023 | 25574 | STATE - STATE LEVY (SCHOOL) | $76.25 | $76.24 | $0.00 | $0.00 | $152.49 | $0.00 |
| 2023 | 25574 | COUNTY - COUNTY LEVIES (CE, DD, VET, MH) | $33.28 | $33.27 | $0.00 | $0.00 | $66.55 | $0.00 |
| 2023 | 25574 | CONSERVE - CONSERVATION FUTURES | $1.00 | $1.00 | $0.00 | $0.00 | $2.00 | $0.00 |
| 2023 | 25574 | COROADS - COUNTY ROADS (ROADS, DIV TO CE) | $26.92 | $26.91 | $0.00 | $0.00 | $53.83 | $0.00 |
| 2023 | 25574 | PORTPT - PORT DISTRICT | $14.02 | $14.02 | $0.00 | $0.00 | $28.04 | $0.00 |
| 2023 | 25574 | PUD1 - PUD #1 | $2.21 | $2.20 | $0.00 | $0.00 | $4.41 | $0.00 |
| 2023 | 25574 | LIB1 - LIBRARY DIST #1 | $10.42 | $10.41 | $0.00 | $0.00 | $20.83 | $0.00 |
| 2023 | 25574 | HD2 - HOSP DIST #2 | $1.95 | $1.94 | $0.00 | $0.00 | $3.89 | $0.00 |
| 2023 | 25574 | SD49 - SCHOOL DIST #49 | $35.65 | $35.63 | $0.00 | $0.00 | $71.28 | $0.00 |
| 2023 | 25574 | FD3 - FIRE DISTRICT #3 | $33.10 | $33.10 | $0.00 | $0.00 | $66.20 | $0.00 |
| 2023 | 25574 | EMS3 - FIRE DIST #3 EMS | $11.84 | $11.83 | $0.00 | $0.00 | $23.67 | $0.00 |
| 2023 | 25574 | FP - DNR Forest Fire Protection Assmt | $8.50 | $8.50 | $0.00 | $0.00 | $17.00 | $0.00 |
| 2023 | 25574 | FPLCA - DNR Landowner Contingency Assmt | $3.00 | $3.00 | $0.00 | $0.00 | $6.00 | $0.00 |
| 2023 | 25574 | JCCD - JC Conservation District | $2.53 | $2.53 | $0.00 | $0.00 | $5.06 | $0.00 |
| 2023 | 25574 | NWA - Noxious Weed Assessment | $2.15 | $2.15 | $0.00 | $0.00 | $4.30 | $0.00 |
| 2023 | 25574 | WAT - Clean Water District | $12.00 | $12.00 | $0.00 | $0.00 | $24.00 | $0.00 |
| 2023 | 25574 | FP ADMIN - FP ADMIN | $0.50 | $0.00 | $0.00 | $0.00 | $0.50 | $0.00 |
| 2023 | 25574 | TOTAL: | $275.32 | $274.73 | $0.00 | $0.00 | $550.05 | $0.00 |
|
| 2023 | 25574 | $275.32 | $274.73 | $0.00 | $0.00 | $550.05 | $0.00 |
Values
| (+) Improvement Homesite Value: | + | $0 | |
| (+) Improvement Non-Homesite Value: | + | $0 | |
| (+) Land Homesite Value: | + | $0 | |
| (+) Land Non-Homesite Value: | + | $74,492 | |
| (+) Curr Use (HS): | + | $0 | $0 |
| (+) Curr Use (NHS): | + | $0 | $0 |
| | | -------------------------- | |
| (=) Market Value: | = | $74,492 | |
| (–) Productivity Loss: | – | $0 | |
| | | -------------------------- | |
| (=) Subtotal: | = | $74,492 | |
| (+) Senior Appraised Value: | + | $0 | |
| (+) Non-Senior Appraised Value: | + | $74,492 | |
| | | -------------------------- | |
| (=) Total Appraised Value: | = | $74,492 | |
| (–) Senior Exemption Loss: | – | $0 | |
| (–) Exemption Loss: | – | $0 | |
| | | -------------------------- | |
| (=) Taxable Value: | = | $74,492 | |
Taxing Jurisdiction
| Owner: | PAULA R & DANIEL J CALLAHAN | | |
| % Ownership: | 100.0000000000% | | |
| Total Value: | $74,492 | | |
| Tax Area: | 0213 - 1-49F1E1H2L1 |
| CE | COUNTY CURRENT EXPENSE | 0.9034619479 | $74,492 | $74,492 | $67.30 | | |
| CNTYDD | DEVELOPMENTAL DISABILITIES | 0.0052121823 | $74,492 | $74,492 | $0.39 | | |
| CNTYVET | VETERANS RELIEF | 0.0052777810 | $74,492 | $74,492 | $0.39 | | |
| MENTAL | MENTAL HEALTH | 0.0052121823 | $74,492 | $74,492 | $0.39 | | |
| ROADS | COUNTY ROADS | 0.7415066410 | $74,492 | $74,492 | $55.24 | | |
| ROADSCU | COUNTY ROADS TO CUR EXP | 0.0000000000 | $74,492 | $74,492 | $0.00 | | |
| HOSP2CASH | HOSP DIST #2 GENERAL | 0.0536075306 | $74,492 | $74,492 | $3.99 | | |
| SCH49CP | SCHOOL DIST #49 CAP PROJ | 0.6279093905 | $74,492 | $74,492 | $46.77 | | |
| SCH49MO | SCHOOL DIST #49 EP & O | 0.6376483602 | $74,492 | $74,492 | $47.50 | | |
| CONSERVE | CONSERVATION FUTURES | 0.0275621078 | $74,492 | $74,492 | $2.05 | | |
| EMS1 | FIRE DIST #1 EMS | 0.4679948282 | $74,492 | $74,492 | $34.86 | | |
| FD1 | FIRE DIST #1 GENERAL | 1.2171942929 | $74,492 | $74,492 | $90.67 | | |
| LIB1 | LIBRARY DIST #1 GENERAL | 0.2868827388 | $74,492 | $74,492 | $21.37 | | |
| PORTPT | PORT OF PT GENERAL | 0.1134941229 | $74,492 | $74,492 | $8.45 | | |
| PORTPTIDD | PORT OF PT IDD 2019 | 0.2577346692 | $74,492 | $74,492 | $19.20 | | |
| PUD1 | PUD #1 GENERAL | 0.0597888892 | $74,492 | $74,492 | $4.45 | | |
| STATE | STATE SCHOOL PART 1 | 1.4940692947 | $74,492 | $74,492 | $111.30 | | |
| STATE2 | STATE SCHOOL PART 2 | 0.8050170049 | $74,492 | $74,492 | $59.97 | | |
| | Total Tax Rate: | 7.7095739644 | | | | | |
| | | | | Taxes w/Current Exemptions: | $574.29 | | |
| | | | | Taxes w/o Exemptions: | $574.29 | | |
Improvement / Building
Sketch
| No sketches available for this property. |
Property Image
Land
| 1 | 3310-1125F | | 0.0000 | 0.00 | 0.00 | 0.00 | 0.00 | $62,100 | $0 |
| 2 | 3310-1125F | | 0.0000 | 0.00 | 0.00 | 0.00 | 0.00 | $8,942 | $0 |
| 3 | 9301F | | 0.0000 | 0.00 | 0.00 | 0.00 | 0.00 | $3,450 | $0 |
Roll Value History
| 2026 | N/A | N/A | N/A | N/A | N/A |
| 2025 | $0 | $74,492 | $0 | $74,492 | $74,492 |
| 2024 | $0 | $71,254 | $0 | $71,254 | $71,254 |
| 2023 | $0 | $64,776 | $0 | $64,776 | $64,776 |
| 2022 | $0 | $64,776 | $0 | $64,776 | $64,776 |
Deed and Sales History
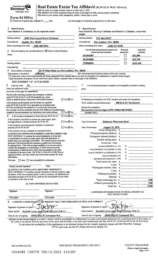
| 1 | 08/15/2022 | SWD | Statutory Warranty Deed | | PAULA R & DANIEL J CALLAHAN | | | | 139779 | |
| 2 | 08/15/2022 | SWD | Statutory Warranty Deed | ROBERT A FRIEDMAN | PAULA R & DANIEL J CALLAHAN | | | $127,500.00 | 139663 | |
|   | |
| 3 | 09/01/2005 | QCD | Quit Claim Deed | SCHMIDT, E J | FRIEDMAN, ROBERT A | 0 | 0 | $0.00 | 104668 | 0 |
Payout Agreement
| No payout information available.. |