Property
Account |
| Property ID: | 36534 | Abbreviated Legal Description: | OIL CITY FIRST ADDITION BLK 34 LOT 1 |
| Parcel # / Geo ID: | 979503401 | Agent Code: | |
| Type: | Real | | |
| Tax Area: | 0601 - 1-402H1L1 | Land Use Code | 91 |
| Open Space: | N | DFL | N |
| Historic Property: | N | Remodel Property: | N |
| Multi-Family Redevelopment: | N | | |
| Township: | 26N | Section: | 18 |
| Range: | 13W |
Location |
| Address: | | Mapsco: | 905/007 |
| Neighborhood: | OIL CITY & OIL CITY 1ST ADDITION | Map ID: | |
| Neighborhood CD: | 1785 |
Owner |
| Name: | COBY R ARMSTRONG | Owner ID: | 10597 |
| Mailing Address: | 2112 TOM EVANS RD NE OLYMPIA, WA 98506-5901 | % Ownership: | 100.0000000000% |
| | | Exemptions: | |
Pay Tax Due
Select the appropriate checkbox next to the year to be paid. Multiple years may be selected.
*Convenience Fee not included
Taxes and Assessment Details
Property Tax Information as of
03/11/2026
Click on "Statement Details" to expand or collapse a tax statement.
* Please enter a valid date ** Please enter a valid date *
Statement Details |
| 2026 | 25761 | STATE - STATE LEVY (SCHOOL) | $6.90 | $6.89 | $0.00 | $0.00 | $0.00 | $13.79 |
| 2026 | 25761 | COUNTY - COUNTY LEVIES (CE, DD, VET, MH) | $2.77 | $2.74 | $0.00 | $0.00 | $0.00 | $5.51 |
| 2026 | 25761 | CONSERVE - CONSERVATION FUTURES | $0.09 | $0.08 | $0.00 | $0.00 | $0.00 | $0.17 |
| 2026 | 25761 | COROADS - COUNTY ROADS (ROADS, DIV TO CE) | $2.23 | $2.22 | $0.00 | $0.00 | $0.00 | $4.45 |
| 2026 | 25761 | PORTPT - PORT DISTRICT | $1.12 | $1.11 | $0.00 | $0.00 | $0.00 | $2.23 |
| 2026 | 25761 | PUD1 - PUD #1 | $0.18 | $0.18 | $0.00 | $0.00 | $0.00 | $0.36 |
| 2026 | 25761 | LIB1 - LIBRARY DIST #1 | $0.86 | $0.86 | $0.00 | $0.00 | $0.00 | $1.72 |
| 2026 | 25761 | HD1 - HOSP DIST #1 | $1.65 | $1.65 | $0.00 | $0.00 | $0.00 | $3.30 |
| 2026 | 25761 | SD402 - SCHOOL DIST #402 | $8.57 | $8.56 | $0.00 | $0.00 | $0.00 | $17.13 |
| 2026 | 25761 | FP - DNR Forest Fire Protection Assmt | $8.50 | $8.50 | $0.00 | $0.00 | $0.00 | $17.00 |
| 2026 | 25761 | FPLCA - DNR Landowner Contingency Assmt | $3.00 | $3.00 | $0.00 | $0.00 | $0.00 | $6.00 |
| 2026 | 25761 | JCCD - JC Conservation District | $2.53 | $2.53 | $0.00 | $0.00 | $0.00 | $5.06 |
| 2026 | 25761 | NWA - Noxious Weed Assessment | $2.98 | $2.97 | $0.00 | $0.00 | $0.00 | $5.95 |
| 2026 | 25761 | FP ADMIN - FP ADMIN | $0.50 | $0.00 | $0.00 | $0.00 | $0.00 | $0.50 |
| 2026 | 25761 | TOTAL: | $41.88 | $41.29 | $0.00 | $0.00 | $0.00 | $83.17 |
|
| 2026 | 25761 | $41.88 | $41.29 | $0.00 | $0.00 | $0.00 | $83.17 |
Statement Details |
| 2025 | 25829 | STATE - STATE LEVY (SCHOOL) | $7.20 | $7.18 | $0.00 | $0.00 | $14.38 | $0.00 |
| 2025 | 25829 | COUNTY - COUNTY LEVIES (CE, DD, VET, MH) | $2.84 | $2.81 | $0.00 | $0.00 | $5.65 | $0.00 |
| 2025 | 25829 | CONSERVE - CONSERVATION FUTURES | $0.09 | $0.08 | $0.00 | $0.00 | $0.17 | $0.00 |
| 2025 | 25829 | COROADS - COUNTY ROADS (ROADS, DIV TO CE) | $2.27 | $2.27 | $0.00 | $0.00 | $4.54 | $0.00 |
| 2025 | 25829 | PORTPT - PORT DISTRICT | $1.16 | $1.15 | $0.00 | $0.00 | $2.31 | $0.00 |
| 2025 | 25829 | PUD1 - PUD #1 | $0.19 | $0.18 | $0.00 | $0.00 | $0.37 | $0.00 |
| 2025 | 25829 | LIB1 - LIBRARY DIST #1 | $0.88 | $0.87 | $0.00 | $0.00 | $1.75 | $0.00 |
| 2025 | 25829 | HD1 - HOSP DIST #1 | $1.70 | $1.69 | $0.00 | $0.00 | $3.39 | $0.00 |
| 2025 | 25829 | SD402 - SCHOOL DIST #402 | $6.54 | $6.53 | $0.00 | $0.00 | $13.07 | $0.00 |
| 2025 | 25829 | FP - DNR Forest Fire Protection Assmt | $8.50 | $8.50 | $0.00 | $0.00 | $17.00 | $0.00 |
| 2025 | 25829 | FPLCA - DNR Landowner Contingency Assmt | $3.00 | $3.00 | $0.00 | $0.00 | $6.00 | $0.00 |
| 2025 | 25829 | JCCD - JC Conservation District | $2.53 | $2.53 | $0.00 | $0.00 | $5.06 | $0.00 |
| 2025 | 25829 | NWA - Noxious Weed Assessment | $2.15 | $2.15 | $0.00 | $0.00 | $4.30 | $0.00 |
| 2025 | 25829 | FP ADMIN - FP ADMIN | $0.50 | $0.00 | $0.00 | $0.00 | $0.50 | $0.00 |
| 2025 | 25829 | TOTAL: | $39.55 | $38.94 | $0.00 | $0.00 | $78.49 | $0.00 |
|
| 2025 | 25829 | $39.55 | $38.94 | $0.00 | $0.00 | $78.49 | $0.00 |
Statement Details |
| 2024 | 25880 | STATE - STATE LEVY (SCHOOL) | $6.95 | $6.93 | $0.00 | $0.00 | $13.88 | $0.00 |
| 2024 | 25880 | COUNTY - COUNTY LEVIES (CE, DD, VET, MH) | $2.98 | $2.95 | $0.00 | $0.00 | $5.93 | $0.00 |
| 2024 | 25880 | CONSERVE - CONSERVATION FUTURES | $0.09 | $0.09 | $0.00 | $0.00 | $0.18 | $0.00 |
| 2024 | 25880 | COROADS - COUNTY ROADS (ROADS, DIV TO CE) | $2.39 | $2.39 | $0.00 | $0.00 | $4.78 | $0.00 |
| 2024 | 25880 | PORTPT - PORT DISTRICT | $1.23 | $1.22 | $0.00 | $0.00 | $2.45 | $0.00 |
| 2024 | 25880 | PUD1 - PUD #1 | $0.20 | $0.19 | $0.00 | $0.00 | $0.39 | $0.00 |
| 2024 | 25880 | LIB1 - LIBRARY DIST #1 | $0.93 | $0.92 | $0.00 | $0.00 | $1.85 | $0.00 |
| 2024 | 25880 | HD1 - HOSP DIST #1 | $1.77 | $1.76 | $0.00 | $0.00 | $3.53 | $0.00 |
| 2024 | 25880 | SD402 - SCHOOL DIST #402 | $6.17 | $6.16 | $0.00 | $0.00 | $12.33 | $0.00 |
| 2024 | 25880 | FP - DNR Forest Fire Protection Assmt | $8.50 | $8.50 | $0.00 | $0.00 | $17.00 | $0.00 |
| 2024 | 25880 | FPLCA - DNR Landowner Contingency Assmt | $3.00 | $3.00 | $0.00 | $0.00 | $6.00 | $0.00 |
| 2024 | 25880 | JCCD - JC Conservation District | $2.53 | $2.53 | $0.00 | $0.00 | $5.06 | $0.00 |
| 2024 | 25880 | NWA - Noxious Weed Assessment | $2.15 | $2.15 | $0.00 | $0.00 | $4.30 | $0.00 |
| 2024 | 25880 | FP ADMIN - FP ADMIN | $0.50 | $0.00 | $0.00 | $0.00 | $0.50 | $0.00 |
| 2024 | 25880 | TOTAL: | $39.39 | $38.79 | $0.00 | $0.00 | $78.18 | $0.00 |
|
| 2024 | 25880 | $39.39 | $38.79 | $0.00 | $0.00 | $78.18 | $0.00 |
Statement Details |
| 2023 | 25921 | STATE - STATE LEVY (SCHOOL) | $7.06 | $7.06 | $0.00 | $0.00 | $14.12 | $0.00 |
| 2023 | 25921 | COUNTY - COUNTY LEVIES (CE, DD, VET, MH) | $3.09 | $3.07 | $0.00 | $0.00 | $6.16 | $0.00 |
| 2023 | 25921 | CONSERVE - CONSERVATION FUTURES | $0.09 | $0.09 | $0.00 | $0.00 | $0.18 | $0.00 |
| 2023 | 25921 | COROADS - COUNTY ROADS (ROADS, DIV TO CE) | $2.49 | $2.49 | $0.00 | $0.00 | $4.98 | $0.00 |
| 2023 | 25921 | PORTPT - PORT DISTRICT | $1.30 | $1.30 | $0.00 | $0.00 | $2.60 | $0.00 |
| 2023 | 25921 | PUD1 - PUD #1 | $0.21 | $0.20 | $0.00 | $0.00 | $0.41 | $0.00 |
| 2023 | 25921 | LIB1 - LIBRARY DIST #1 | $0.97 | $0.96 | $0.00 | $0.00 | $1.93 | $0.00 |
| 2023 | 25921 | HD1 - HOSP DIST #1 | $1.78 | $1.78 | $0.00 | $0.00 | $3.56 | $0.00 |
| 2023 | 25921 | SD402 - SCHOOL DIST #402 | $6.94 | $6.92 | $0.00 | $0.00 | $13.86 | $0.00 |
| 2023 | 25921 | FP - DNR Forest Fire Protection Assmt | $8.50 | $8.50 | $0.00 | $0.00 | $17.00 | $0.00 |
| 2023 | 25921 | FPLCA - DNR Landowner Contingency Assmt | $3.00 | $3.00 | $0.00 | $0.00 | $6.00 | $0.00 |
| 2023 | 25921 | JCCD - JC Conservation District | $2.53 | $2.53 | $0.00 | $0.00 | $5.06 | $0.00 |
| 2023 | 25921 | NWA - Noxious Weed Assessment | $2.15 | $2.15 | $0.00 | $0.00 | $4.30 | $0.00 |
| 2023 | 25921 | FP ADMIN - FP ADMIN | $0.50 | $0.00 | $0.00 | $0.00 | $0.50 | $0.00 |
| 2023 | 25921 | TOTAL: | $40.61 | $40.05 | $0.00 | $0.00 | $80.66 | $0.00 |
|
| 2023 | 25921 | $40.61 | $40.05 | $0.00 | $0.00 | $80.66 | $0.00 |
Values
| (+) Improvement Homesite Value: | + | $0 | |
| (+) Improvement Non-Homesite Value: | + | $0 | |
| (+) Land Homesite Value: | + | $0 | |
| (+) Land Non-Homesite Value: | + | $6,000 | |
| (+) Curr Use (HS): | + | $0 | $0 |
| (+) Curr Use (NHS): | + | $0 | $0 |
| | | -------------------------- | |
| (=) Market Value: | = | $6,000 | |
| (–) Productivity Loss: | – | $0 | |
| | | -------------------------- | |
| (=) Subtotal: | = | $6,000 | |
| (+) Senior Appraised Value: | + | $0 | |
| (+) Non-Senior Appraised Value: | + | $6,000 | |
| | | -------------------------- | |
| (=) Total Appraised Value: | = | $6,000 | |
| (–) Senior Exemption Loss: | – | $0 | |
| (–) Exemption Loss: | – | $0 | |
| | | -------------------------- | |
| (=) Taxable Value: | = | $6,000 | |
Taxing Jurisdiction
| Owner: | COBY R ARMSTRONG | | |
| % Ownership: | 100.0000000000% | | |
| Total Value: | $6,000 | | |
| Tax Area: | 0601 - 1-402H1L1 |
| CE | COUNTY CURRENT EXPENSE | 0.9034619479 | $6,000 | $6,000 | $5.42 | | |
| CNTYDD | DEVELOPMENTAL DISABILITIES | 0.0052121823 | $6,000 | $6,000 | $0.03 | | |
| CNTYVET | VETERANS RELIEF | 0.0052777810 | $6,000 | $6,000 | $0.03 | | |
| MENTAL | MENTAL HEALTH | 0.0052121823 | $6,000 | $6,000 | $0.03 | | |
| ROADS | COUNTY ROADS | 0.7415066410 | $6,000 | $6,000 | $4.45 | | |
| ROADSCU | COUNTY ROADS TO CUR EXP | 0.0000000000 | $6,000 | $6,000 | $0.00 | | |
| HOS1GEN | HOSP DIST #1 GENERAL | 0.5503668747 | $6,000 | $6,000 | $3.30 | | |
| SCH402BOND | SCHOOL DIST #402 BOND | 1.2974778650 | $6,000 | $6,000 | $7.78 | | |
| SCH402MO | SCHOOL DIST #402 EP & O | 1.5579855743 | $6,000 | $6,000 | $9.35 | | |
| CONSERVE | CONSERVATION FUTURES | 0.0275621078 | $6,000 | $6,000 | $0.17 | | |
| LIB1 | LIBRARY DIST #1 GENERAL | 0.2868827388 | $6,000 | $6,000 | $1.72 | | |
| PORTPT | PORT OF PT GENERAL | 0.1134941229 | $6,000 | $6,000 | $0.68 | | |
| PORTPTIDD | PORT OF PT IDD 2019 | 0.2577346692 | $6,000 | $6,000 | $1.55 | | |
| PUD1 | PUD #1 GENERAL | 0.0597888892 | $6,000 | $6,000 | $0.36 | | |
| STATE | STATE SCHOOL PART 1 | 1.4940692947 | $6,000 | $6,000 | $8.96 | | |
| STATE2 | STATE SCHOOL PART 2 | 0.8050170049 | $6,000 | $6,000 | $4.83 | | |
| | Total Tax Rate: | 8.1110498760 | | | | | |
| | | | | Taxes w/Current Exemptions: | $48.66 | | |
| | | | | Taxes w/o Exemptions: | $48.66 | | |
Improvement / Building
Sketch
| No sketches available for this property. |
Property Image
Land
| 1 | WEST-7175L | | 0.0000 | 0.00 | 0.00 | 0.00 | 1.00 | $6,000 | $0 |
Roll Value History
| 2026 | N/A | N/A | N/A | N/A | N/A |
| 2025 | $0 | $6,000 | $0 | $6,000 | $6,000 |
| 2024 | $0 | $6,000 | $0 | $6,000 | $6,000 |
| 2023 | $0 | $6,000 | $0 | $6,000 | $6,000 |
| 2022 | $0 | $6,000 | $0 | $6,000 | $6,000 |
Deed and Sales History
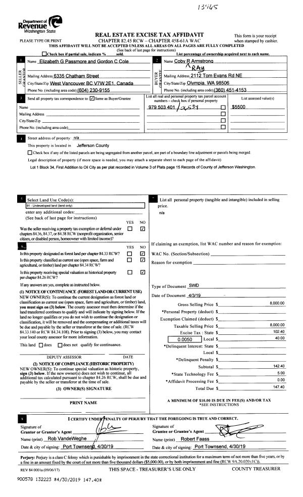
| 1 | 04/03/2019 | SWD | Statutory Warranty Deed | ELIZABETH PASSMORE | COBY R ARMSTRONG | | | $8,000.00 | 132223 | |
| 2 | 07/19/2010 | SWD | Statutory Warranty Deed | VANDEWEGHE, ROBERTUS/JACO | PASSMORE,ELIZABETH/COLE,GORDON | | | $6,300.00 | 114649 | 0 |
| 3 | 03/02/1998 | SWD | Statutory Warranty Deed | THOMPSON, MARY JANE | RYAN, WILLIAM F/III | 0 | 0 | $300.00 | 83911 | 0 |
Payout Agreement
| No payout information available.. |