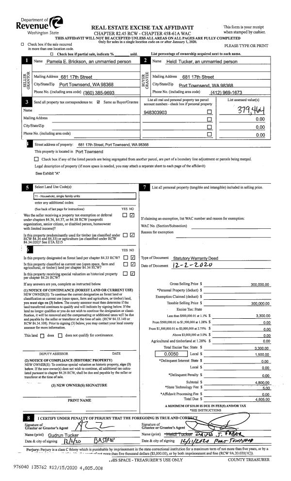
Property
Account |
| Property ID: | 36592 | Abbreviated Legal Description: | OIL CITY FIRST ADDITION BLK 41 LTS 17 THRU 20 & PTN VAC ALLEY ADJ AFN 552994 |
| Parcel # / Geo ID: | 979504117 | Agent Code: | |
| Type: | Real | | |
| Tax Area: | 0601 - 1-402H1L1 | Land Use Code | 19 |
| Open Space: | N | DFL | N |
| Historic Property: | N | Remodel Property: | N |
| Multi-Family Redevelopment: | N | | |
| Township: | 26N | Section: | 18 |
| Range: | 13W |
Location |
| Address: | | Mapsco: | 906/007 |
| Neighborhood: | OIL CITY & OIL CITY 1ST ADDITION | Map ID: | |
| Neighborhood CD: | 1785 |
Owner |
| Name: | JASMINE BAY | Owner ID: | 110751 |
| Mailing Address: | 12942 DOGWOOD AVE NW POULSBO, WA 98370-8131 | % Ownership: | 100.0000000000% |
| | | Exemptions: | |
Pay Tax Due
Select the appropriate checkbox next to the year to be paid. Multiple years may be selected.
*Convenience Fee not included
Taxes and Assessment Details
Property Tax Information as of
03/10/2026
Click on "Statement Details" to expand or collapse a tax statement.
* Please enter a valid date ** Please enter a valid date *
Statement Details |
| 2026 | 25819 | STATE - STATE LEVY (SCHOOL) | $39.09 | $39.08 | $0.00 | $0.00 | $0.00 | $78.17 |
| 2026 | 25819 | COUNTY - COUNTY LEVIES (CE, DD, VET, MH) | $15.63 | $15.63 | $0.00 | $0.00 | $0.00 | $31.26 |
| 2026 | 25819 | CONSERVE - CONSERVATION FUTURES | $0.47 | $0.47 | $0.00 | $0.00 | $0.00 | $0.94 |
| 2026 | 25819 | COROADS - COUNTY ROADS (ROADS, DIV TO CE) | $12.61 | $12.60 | $0.00 | $0.00 | $0.00 | $25.21 |
| 2026 | 25819 | PORTPT - PORT DISTRICT | $6.31 | $6.31 | $0.00 | $0.00 | $0.00 | $12.62 |
| 2026 | 25819 | PUD1 - PUD #1 | $1.02 | $1.01 | $0.00 | $0.00 | $0.00 | $2.03 |
| 2026 | 25819 | LIB1 - LIBRARY DIST #1 | $4.88 | $4.87 | $0.00 | $0.00 | $0.00 | $9.75 |
| 2026 | 25819 | HD1 - HOSP DIST #1 | $9.36 | $9.35 | $0.00 | $0.00 | $0.00 | $18.71 |
| 2026 | 25819 | SD402 - SCHOOL DIST #402 | $48.55 | $48.53 | $0.00 | $0.00 | $0.00 | $97.08 |
| 2026 | 25819 | FP - DNR Forest Fire Protection Assmt | $8.50 | $8.50 | $0.00 | $0.00 | $0.00 | $17.00 |
| 2026 | 25819 | FPLCA - DNR Landowner Contingency Assmt | $3.00 | $3.00 | $0.00 | $0.00 | $0.00 | $6.00 |
| 2026 | 25819 | JCCD - JC Conservation District | $2.55 | $2.55 | $0.00 | $0.00 | $0.00 | $5.10 |
| 2026 | 25819 | NWA - Noxious Weed Assessment | $2.98 | $2.97 | $0.00 | $0.00 | $0.00 | $5.95 |
| 2026 | 25819 | FP ADMIN - FP ADMIN | $0.50 | $0.00 | $0.00 | $0.00 | $0.00 | $0.50 |
| 2026 | 25819 | TOTAL: | $155.45 | $154.87 | $0.00 | $0.00 | $0.00 | $310.32 |
|
| 2026 | 25819 | $155.45 | $154.87 | $0.00 | $0.00 | $0.00 | $310.32 |
Statement Details |
| 2025 | 25887 | STATE - STATE LEVY (SCHOOL) | $40.77 | $40.76 | $0.00 | $0.00 | $81.53 | $0.00 |
| 2025 | 25887 | COUNTY - COUNTY LEVIES (CE, DD, VET, MH) | $16.03 | $16.03 | $0.00 | $0.00 | $32.06 | $0.00 |
| 2025 | 25887 | CONSERVE - CONSERVATION FUTURES | $0.48 | $0.48 | $0.00 | $0.00 | $0.96 | $0.00 |
| 2025 | 25887 | COROADS - COUNTY ROADS (ROADS, DIV TO CE) | $12.85 | $12.84 | $0.00 | $0.00 | $25.69 | $0.00 |
| 2025 | 25887 | PORTPT - PORT DISTRICT | $6.54 | $6.54 | $0.00 | $0.00 | $13.08 | $0.00 |
| 2025 | 25887 | PUD1 - PUD #1 | $1.05 | $1.05 | $0.00 | $0.00 | $2.10 | $0.00 |
| 2025 | 25887 | LIB1 - LIBRARY DIST #1 | $4.97 | $4.97 | $0.00 | $0.00 | $9.94 | $0.00 |
| 2025 | 25887 | HD1 - HOSP DIST #1 | $9.60 | $9.59 | $0.00 | $0.00 | $19.19 | $0.00 |
| 2025 | 25887 | SD402 - SCHOOL DIST #402 | $37.04 | $37.03 | $0.00 | $0.00 | $74.07 | $0.00 |
| 2025 | 25887 | FP - DNR Forest Fire Protection Assmt | $8.50 | $8.50 | $0.00 | $0.00 | $17.00 | $0.00 |
| 2025 | 25887 | FPLCA - DNR Landowner Contingency Assmt | $3.00 | $3.00 | $0.00 | $0.00 | $6.00 | $0.00 |
| 2025 | 25887 | JCCD - JC Conservation District | $2.55 | $2.55 | $0.00 | $0.00 | $5.10 | $0.00 |
| 2025 | 25887 | NWA - Noxious Weed Assessment | $2.15 | $2.15 | $0.00 | $0.00 | $4.30 | $0.00 |
| 2025 | 25887 | FP ADMIN - FP ADMIN | $0.50 | $0.00 | $0.00 | $0.00 | $0.50 | $0.00 |
| 2025 | 25887 | TOTAL: | $146.03 | $145.49 | $0.00 | $0.00 | $291.52 | $0.00 |
|
| 2025 | 25887 | $146.03 | $145.49 | $0.00 | $0.00 | $291.52 | $0.00 |
Statement Details |
| 2024 | 25938 | STATE - STATE LEVY (SCHOOL) | $27.42 | $27.41 | $0.00 | $0.00 | $54.83 | $0.00 |
| 2024 | 25938 | COUNTY - COUNTY LEVIES (CE, DD, VET, MH) | $11.74 | $11.71 | $0.00 | $0.00 | $23.45 | $0.00 |
| 2024 | 25938 | CONSERVE - CONSERVATION FUTURES | $0.35 | $0.35 | $0.00 | $0.00 | $0.70 | $0.00 |
| 2024 | 25938 | COROADS - COUNTY ROADS (ROADS, DIV TO CE) | $9.44 | $9.44 | $0.00 | $0.00 | $18.88 | $0.00 |
| 2024 | 25938 | PORTPT - PORT DISTRICT | $4.85 | $4.84 | $0.00 | $0.00 | $9.69 | $0.00 |
| 2024 | 25938 | PUD1 - PUD #1 | $0.77 | $0.77 | $0.00 | $0.00 | $1.54 | $0.00 |
| 2024 | 25938 | LIB1 - LIBRARY DIST #1 | $3.65 | $3.65 | $0.00 | $0.00 | $7.30 | $0.00 |
| 2024 | 25938 | HD1 - HOSP DIST #1 | $6.97 | $6.97 | $0.00 | $0.00 | $13.94 | $0.00 |
| 2024 | 25938 | SD402 - SCHOOL DIST #402 | $24.36 | $24.34 | $0.00 | $0.00 | $48.70 | $0.00 |
| 2024 | 25938 | FP - DNR Forest Fire Protection Assmt | $8.50 | $8.50 | $0.00 | $0.00 | $17.00 | $0.00 |
| 2024 | 25938 | FPLCA - DNR Landowner Contingency Assmt | $3.00 | $3.00 | $0.00 | $0.00 | $6.00 | $0.00 |
| 2024 | 25938 | JCCD - JC Conservation District | $2.55 | $2.55 | $0.00 | $0.00 | $5.10 | $0.00 |
| 2024 | 25938 | NWA - Noxious Weed Assessment | $2.15 | $2.15 | $0.00 | $0.00 | $4.30 | $0.00 |
| 2024 | 25938 | FP ADMIN - FP ADMIN | $0.50 | $0.00 | $0.00 | $0.00 | $0.50 | $0.00 |
| 2024 | 25938 | TOTAL: | $106.25 | $105.68 | $0.00 | $0.00 | $211.93 | $0.00 |
|
| 2024 | 25938 | $106.25 | $105.68 | $0.00 | $0.00 | $211.93 | $0.00 |
Statement Details |
| 2023 | 25979 | STATE - STATE LEVY (SCHOOL) | $27.90 | $27.89 | $0.00 | $0.00 | $55.79 | $0.00 |
| 2023 | 25979 | COUNTY - COUNTY LEVIES (CE, DD, VET, MH) | $12.18 | $12.17 | $0.00 | $0.00 | $24.35 | $0.00 |
| 2023 | 25979 | CONSERVE - CONSERVATION FUTURES | $0.37 | $0.36 | $0.00 | $0.00 | $0.73 | $0.00 |
| 2023 | 25979 | COROADS - COUNTY ROADS (ROADS, DIV TO CE) | $9.86 | $9.84 | $0.00 | $0.00 | $19.70 | $0.00 |
| 2023 | 25979 | PORTPT - PORT DISTRICT | $5.14 | $5.12 | $0.00 | $0.00 | $10.26 | $0.00 |
| 2023 | 25979 | PUD1 - PUD #1 | $0.81 | $0.80 | $0.00 | $0.00 | $1.61 | $0.00 |
| 2023 | 25979 | LIB1 - LIBRARY DIST #1 | $3.81 | $3.81 | $0.00 | $0.00 | $7.62 | $0.00 |
| 2023 | 25979 | HD1 - HOSP DIST #1 | $7.03 | $7.03 | $0.00 | $0.00 | $14.06 | $0.00 |
| 2023 | 25979 | SD402 - SCHOOL DIST #402 | $27.38 | $27.37 | $0.00 | $0.00 | $54.75 | $0.00 |
| 2023 | 25979 | FP - DNR Forest Fire Protection Assmt | $8.50 | $8.50 | $0.00 | $0.00 | $17.00 | $0.00 |
| 2023 | 25979 | FPLCA - DNR Landowner Contingency Assmt | $3.00 | $3.00 | $0.00 | $0.00 | $6.00 | $0.00 |
| 2023 | 25979 | JCCD - JC Conservation District | $2.55 | $2.55 | $0.00 | $0.00 | $5.10 | $0.00 |
| 2023 | 25979 | NWA - Noxious Weed Assessment | $2.15 | $2.15 | $0.00 | $0.00 | $4.30 | $0.00 |
| 2023 | 25979 | FP ADMIN - FP ADMIN | $0.50 | $0.00 | $0.00 | $0.00 | $0.50 | $0.00 |
| 2023 | 25979 | TOTAL: | $111.18 | $110.59 | $0.00 | $0.00 | $221.77 | $0.00 |
|
| 2023 | 25979 | $111.18 | $110.59 | $0.00 | $0.00 | $221.77 | $0.00 |
Values
| (+) Improvement Homesite Value: | + | $0 | |
| (+) Improvement Non-Homesite Value: | + | $10,000 | |
| (+) Land Homesite Value: | + | $0 | |
| (+) Land Non-Homesite Value: | + | $24,000 | |
| (+) Curr Use (HS): | + | $0 | $0 |
| (+) Curr Use (NHS): | + | $0 | $0 |
| | | -------------------------- | |
| (=) Market Value: | = | $34,000 | |
| (–) Productivity Loss: | – | $0 | |
| | | -------------------------- | |
| (=) Subtotal: | = | $34,000 | |
| (+) Senior Appraised Value: | + | $0 | |
| (+) Non-Senior Appraised Value: | + | $34,000 | |
| | | -------------------------- | |
| (=) Total Appraised Value: | = | $34,000 | |
| (–) Senior Exemption Loss: | – | $0 | |
| (–) Exemption Loss: | – | $0 | |
| | | -------------------------- | |
| (=) Taxable Value: | = | $34,000 | |
Taxing Jurisdiction
| Owner: | JASMINE BAY | | |
| % Ownership: | 100.0000000000% | | |
| Total Value: | $34,000 | | |
| Tax Area: | 0601 - 1-402H1L1 |
| CE | COUNTY CURRENT EXPENSE | 0.9034619479 | $34,000 | $34,000 | $30.72 | | |
| CNTYDD | DEVELOPMENTAL DISABILITIES | 0.0052121823 | $34,000 | $34,000 | $0.18 | | |
| CNTYVET | VETERANS RELIEF | 0.0052777810 | $34,000 | $34,000 | $0.18 | | |
| MENTAL | MENTAL HEALTH | 0.0052121823 | $34,000 | $34,000 | $0.18 | | |
| ROADS | COUNTY ROADS | 0.7415066410 | $34,000 | $34,000 | $25.21 | | |
| ROADSCU | COUNTY ROADS TO CUR EXP | 0.0000000000 | $34,000 | $34,000 | $0.00 | | |
| HOS1GEN | HOSP DIST #1 GENERAL | 0.5503668747 | $34,000 | $34,000 | $18.71 | | |
| SCH402BOND | SCHOOL DIST #402 BOND | 1.2974778650 | $34,000 | $34,000 | $44.11 | | |
| SCH402MO | SCHOOL DIST #402 EP & O | 1.5579855743 | $34,000 | $34,000 | $52.97 | | |
| CONSERVE | CONSERVATION FUTURES | 0.0275621078 | $34,000 | $34,000 | $0.94 | | |
| LIB1 | LIBRARY DIST #1 GENERAL | 0.2868827388 | $34,000 | $34,000 | $9.75 | | |
| PORTPT | PORT OF PT GENERAL | 0.1134941229 | $34,000 | $34,000 | $3.86 | | |
| PORTPTIDD | PORT OF PT IDD 2019 | 0.2577346692 | $34,000 | $34,000 | $8.76 | | |
| PUD1 | PUD #1 GENERAL | 0.0597888892 | $34,000 | $34,000 | $2.03 | | |
| STATE | STATE SCHOOL PART 1 | 1.4940692947 | $34,000 | $34,000 | $50.80 | | |
| STATE2 | STATE SCHOOL PART 2 | 0.8050170049 | $34,000 | $34,000 | $27.37 | | |
| | Total Tax Rate: | 8.1110498760 | | | | | |
| | | | | Taxes w/Current Exemptions: | $275.77 | | |
| | | | | Taxes w/o Exemptions: | $275.77 | | |
Improvement / Building
| Improvement #1: | Residential Bldg | State Code: | 19 | 0.0 sqft | Value: | $10,000 |
Sketch
| No sketches available for this property. |
Property Image
Land
| 1 | WEST-7175L | | 0.0000 | 0.00 | 0.00 | 0.00 | 4.00 | $24,000 | $0 |
Roll Value History
| 2026 | N/A | N/A | N/A | N/A | N/A |
| 2025 | $10,000 | $24,000 | $0 | $34,000 | $34,000 |
| 2024 | $10,000 | $24,000 | $0 | $34,000 | $34,000 |
| 2023 | $3,300 | $20,400 | $0 | $23,700 | $23,700 |
| 2022 | $3,300 | $20,400 | $0 | $23,700 | $23,700 |
Deed and Sales History
| 1 | 05/08/2024 | SWD | Statutory Warranty Deed | ROBERTUS M & JACOBA VANDEWEGHE | ANNA A BELLUZ | | | | 142533 | |
| 2 | 04/26/2024 | SWD | Statutory Warranty Deed | ANNA A BELLUZ | JASMINE BAY | | | $75,000.00 | 142534 | |
| 3 | 04/25/2011 | SWD | Statutory Warranty Deed | VANDEWEGHE, ROBERTUS/JACO | BELLUZ, ANNA A | | | $14,000.00 | 115946 | 0 |
Payout Agreement
| No payout information available.. |