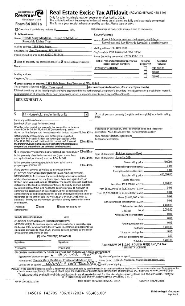
Property
Account |
| Property ID: | 36597 | Abbreviated Legal Description: | OIL CITY FIRST ADDITION BLK 42 LOTS 13 & 14 |
| Parcel # / Geo ID: | 979504205 | Agent Code: | |
| Type: | Real | | |
| Tax Area: | 0601 - 1-402H1L1 | Land Use Code | 91 |
| Open Space: | N | DFL | N |
| Historic Property: | N | Remodel Property: | N |
| Multi-Family Redevelopment: | N | | |
| Township: | 26N | Section: | 18 |
| Range: | 13W |
Location |
| Address: | | Mapsco: | 906/014 |
| Neighborhood: | OIL CITY & OIL CITY 1ST ADDITION | Map ID: | |
| Neighborhood CD: | 1785 |
Owner |
| Name: | RON & ANA FLERCHINGER TRUST | Owner ID: | 110628 |
| Mailing Address: | RONALD J & ANA RAE FLERCHINGER TRUSTEES 2448 24TH ST CLARKSTON, WA 99403-1415 | % Ownership: | 100.0000000000% |
| | | Exemptions: | |
Pay Tax Due
There is currently No Amount Due on this property.
Taxes and Assessment Details
Property Tax Information as of
03/10/2026
Click on "Statement Details" to expand or collapse a tax statement.
* Please enter a valid date ** Please enter a valid date *
Statement Details |
| 2026 | 25824 | STATE - STATE LEVY (SCHOOL) | $11.04 | $11.03 | $0.00 | $0.00 | $22.07 | $0.00 |
| 2026 | 25824 | COUNTY - COUNTY LEVIES (CE, DD, VET, MH) | $4.43 | $4.39 | $0.00 | $0.00 | $8.82 | $0.00 |
| 2026 | 25824 | CONSERVE - CONSERVATION FUTURES | $0.13 | $0.13 | $0.00 | $0.00 | $0.26 | $0.00 |
| 2026 | 25824 | COROADS - COUNTY ROADS (ROADS, DIV TO CE) | $3.56 | $3.56 | $0.00 | $0.00 | $7.12 | $0.00 |
| 2026 | 25824 | PORTPT - PORT DISTRICT | $1.79 | $1.77 | $0.00 | $0.00 | $3.56 | $0.00 |
| 2026 | 25824 | PUD1 - PUD #1 | $0.29 | $0.28 | $0.00 | $0.00 | $0.57 | $0.00 |
| 2026 | 25824 | LIB1 - LIBRARY DIST #1 | $1.38 | $1.37 | $0.00 | $0.00 | $2.75 | $0.00 |
| 2026 | 25824 | HD1 - HOSP DIST #1 | $2.64 | $2.64 | $0.00 | $0.00 | $5.28 | $0.00 |
| 2026 | 25824 | SD402 - SCHOOL DIST #402 | $13.71 | $13.71 | $0.00 | $0.00 | $27.42 | $0.00 |
| 2026 | 25824 | FP - DNR Forest Fire Protection Assmt | $8.50 | $8.50 | $0.00 | $0.00 | $17.00 | $0.00 |
| 2026 | 25824 | FPLCA - DNR Landowner Contingency Assmt | $3.00 | $3.00 | $0.00 | $0.00 | $6.00 | $0.00 |
| 2026 | 25824 | JCCD - JC Conservation District | $2.53 | $2.53 | $0.00 | $0.00 | $5.06 | $0.00 |
| 2026 | 25824 | NWA - Noxious Weed Assessment | $2.98 | $2.97 | $0.00 | $0.00 | $5.95 | $0.00 |
| 2026 | 25824 | FP ADMIN - FP ADMIN | $0.50 | $0.00 | $0.00 | $0.00 | $0.50 | $0.00 |
| 2026 | 25824 | TOTAL: | $56.48 | $55.88 | $0.00 | $0.00 | $112.36 | $0.00 |
|
| 2026 | 25824 | $56.48 | $55.88 | $0.00 | $0.00 | $112.36 | $0.00 |
Statement Details |
| 2025 | 25892 | STATE - STATE LEVY (SCHOOL) | $11.52 | $11.51 | $0.00 | $0.00 | $23.03 | $0.00 |
| 2025 | 25892 | COUNTY - COUNTY LEVIES (CE, DD, VET, MH) | $4.54 | $4.51 | $0.00 | $0.00 | $9.05 | $0.00 |
| 2025 | 25892 | CONSERVE - CONSERVATION FUTURES | $0.14 | $0.13 | $0.00 | $0.00 | $0.27 | $0.00 |
| 2025 | 25892 | COROADS - COUNTY ROADS (ROADS, DIV TO CE) | $3.63 | $3.62 | $0.00 | $0.00 | $7.25 | $0.00 |
| 2025 | 25892 | PORTPT - PORT DISTRICT | $1.85 | $1.85 | $0.00 | $0.00 | $3.70 | $0.00 |
| 2025 | 25892 | PUD1 - PUD #1 | $0.30 | $0.29 | $0.00 | $0.00 | $0.59 | $0.00 |
| 2025 | 25892 | LIB1 - LIBRARY DIST #1 | $1.41 | $1.40 | $0.00 | $0.00 | $2.81 | $0.00 |
| 2025 | 25892 | HD1 - HOSP DIST #1 | $2.71 | $2.71 | $0.00 | $0.00 | $5.42 | $0.00 |
| 2025 | 25892 | SD402 - SCHOOL DIST #402 | $10.46 | $10.46 | $0.00 | $0.00 | $20.92 | $0.00 |
| 2025 | 25892 | FP - DNR Forest Fire Protection Assmt | $8.50 | $8.50 | $0.00 | $0.00 | $17.00 | $0.00 |
| 2025 | 25892 | FPLCA - DNR Landowner Contingency Assmt | $3.00 | $3.00 | $0.00 | $0.00 | $6.00 | $0.00 |
| 2025 | 25892 | JCCD - JC Conservation District | $2.53 | $2.53 | $0.00 | $0.00 | $5.06 | $0.00 |
| 2025 | 25892 | NWA - Noxious Weed Assessment | $2.15 | $2.15 | $0.00 | $0.00 | $4.30 | $0.00 |
| 2025 | 25892 | FP ADMIN - FP ADMIN | $0.50 | $0.00 | $0.00 | $0.00 | $0.50 | $0.00 |
| 2025 | 25892 | TOTAL: | $53.24 | $52.66 | $0.00 | $0.00 | $105.90 | $0.00 |
|
| 2025 | 25892 | $53.24 | $52.66 | $0.00 | $0.00 | $105.90 | $0.00 |
Statement Details |
| 2024 | 25943 | STATE - STATE LEVY (SCHOOL) | $11.11 | $11.10 | $0.00 | $0.00 | $22.21 | $0.00 |
| 2024 | 25943 | COUNTY - COUNTY LEVIES (CE, DD, VET, MH) | $4.76 | $4.73 | $0.00 | $0.00 | $9.49 | $0.00 |
| 2024 | 25943 | CONSERVE - CONSERVATION FUTURES | $0.14 | $0.14 | $0.00 | $0.00 | $0.28 | $0.00 |
| 2024 | 25943 | COROADS - COUNTY ROADS (ROADS, DIV TO CE) | $3.83 | $3.82 | $0.00 | $0.00 | $7.65 | $0.00 |
| 2024 | 25943 | PORTPT - PORT DISTRICT | $1.97 | $1.95 | $0.00 | $0.00 | $3.92 | $0.00 |
| 2024 | 25943 | PUD1 - PUD #1 | $0.31 | $0.31 | $0.00 | $0.00 | $0.62 | $0.00 |
| 2024 | 25943 | LIB1 - LIBRARY DIST #1 | $1.48 | $1.48 | $0.00 | $0.00 | $2.96 | $0.00 |
| 2024 | 25943 | HD1 - HOSP DIST #1 | $2.83 | $2.82 | $0.00 | $0.00 | $5.65 | $0.00 |
| 2024 | 25943 | SD402 - SCHOOL DIST #402 | $9.86 | $9.86 | $0.00 | $0.00 | $19.72 | $0.00 |
| 2024 | 25943 | FP - DNR Forest Fire Protection Assmt | $8.50 | $8.50 | $0.00 | $0.00 | $17.00 | $0.00 |
| 2024 | 25943 | FPLCA - DNR Landowner Contingency Assmt | $3.00 | $3.00 | $0.00 | $0.00 | $6.00 | $0.00 |
| 2024 | 25943 | JCCD - JC Conservation District | $2.53 | $2.53 | $0.00 | $0.00 | $5.06 | $0.00 |
| 2024 | 25943 | NWA - Noxious Weed Assessment | $2.15 | $2.15 | $0.00 | $0.00 | $4.30 | $0.00 |
| 2024 | 25943 | FP ADMIN - FP ADMIN | $0.50 | $0.00 | $0.00 | $0.00 | $0.50 | $0.00 |
| 2024 | 25943 | TOTAL: | $52.97 | $52.39 | $0.00 | $0.00 | $105.36 | $0.00 |
|
| 2024 | 25943 | $52.97 | $52.39 | $0.00 | $0.00 | $105.36 | $0.00 |
Statement Details |
| 2023 | 25984 | STATE - STATE LEVY (SCHOOL) | $11.30 | $11.30 | $0.00 | $0.00 | $22.60 | $0.00 |
| 2023 | 25984 | COUNTY - COUNTY LEVIES (CE, DD, VET, MH) | $4.94 | $4.93 | $0.00 | $0.00 | $9.87 | $0.00 |
| 2023 | 25984 | CONSERVE - CONSERVATION FUTURES | $0.15 | $0.15 | $0.00 | $0.00 | $0.30 | $0.00 |
| 2023 | 25984 | COROADS - COUNTY ROADS (ROADS, DIV TO CE) | $3.99 | $3.99 | $0.00 | $0.00 | $7.98 | $0.00 |
| 2023 | 25984 | PORTPT - PORT DISTRICT | $2.08 | $2.08 | $0.00 | $0.00 | $4.16 | $0.00 |
| 2023 | 25984 | PUD1 - PUD #1 | $0.33 | $0.32 | $0.00 | $0.00 | $0.65 | $0.00 |
| 2023 | 25984 | LIB1 - LIBRARY DIST #1 | $1.55 | $1.54 | $0.00 | $0.00 | $3.09 | $0.00 |
| 2023 | 25984 | HD1 - HOSP DIST #1 | $2.85 | $2.84 | $0.00 | $0.00 | $5.69 | $0.00 |
| 2023 | 25984 | SD402 - SCHOOL DIST #402 | $11.09 | $11.08 | $0.00 | $0.00 | $22.17 | $0.00 |
| 2023 | 25984 | FP - DNR Forest Fire Protection Assmt | $8.50 | $8.50 | $0.00 | $0.00 | $17.00 | $0.00 |
| 2023 | 25984 | FPLCA - DNR Landowner Contingency Assmt | $3.00 | $3.00 | $0.00 | $0.00 | $6.00 | $0.00 |
| 2023 | 25984 | JCCD - JC Conservation District | $2.53 | $2.53 | $0.00 | $0.00 | $5.06 | $0.00 |
| 2023 | 25984 | NWA - Noxious Weed Assessment | $2.15 | $2.15 | $0.00 | $0.00 | $4.30 | $0.00 |
| 2023 | 25984 | FP ADMIN - FP ADMIN | $0.50 | $0.00 | $0.00 | $0.00 | $0.50 | $0.00 |
| 2023 | 25984 | TOTAL: | $54.96 | $54.41 | $0.00 | $0.00 | $109.37 | $0.00 |
|
| 2023 | 25984 | $54.96 | $54.41 | $0.00 | $0.00 | $109.37 | $0.00 |
Values
| (+) Improvement Homesite Value: | + | $0 | |
| (+) Improvement Non-Homesite Value: | + | $0 | |
| (+) Land Homesite Value: | + | $0 | |
| (+) Land Non-Homesite Value: | + | $9,600 | |
| (+) Curr Use (HS): | + | $0 | $0 |
| (+) Curr Use (NHS): | + | $0 | $0 |
| | | -------------------------- | |
| (=) Market Value: | = | $9,600 | |
| (–) Productivity Loss: | – | $0 | |
| | | -------------------------- | |
| (=) Subtotal: | = | $9,600 | |
| (+) Senior Appraised Value: | + | $0 | |
| (+) Non-Senior Appraised Value: | + | $9,600 | |
| | | -------------------------- | |
| (=) Total Appraised Value: | = | $9,600 | |
| (–) Senior Exemption Loss: | – | $0 | |
| (–) Exemption Loss: | – | $0 | |
| | | -------------------------- | |
| (=) Taxable Value: | = | $9,600 | |
Taxing Jurisdiction
| Owner: | RON & ANA FLERCHINGER TRUST | | |
| % Ownership: | 100.0000000000% | | |
| Total Value: | $9,600 | | |
| Tax Area: | 0601 - 1-402H1L1 |
| CE | COUNTY CURRENT EXPENSE | 0.9034619479 | $9,600 | $9,600 | $8.67 | | |
| CNTYDD | DEVELOPMENTAL DISABILITIES | 0.0052121823 | $9,600 | $9,600 | $0.05 | | |
| CNTYVET | VETERANS RELIEF | 0.0052777810 | $9,600 | $9,600 | $0.05 | | |
| MENTAL | MENTAL HEALTH | 0.0052121823 | $9,600 | $9,600 | $0.05 | | |
| ROADS | COUNTY ROADS | 0.7415066410 | $9,600 | $9,600 | $7.12 | | |
| ROADSCU | COUNTY ROADS TO CUR EXP | 0.0000000000 | $9,600 | $9,600 | $0.00 | | |
| HOS1GEN | HOSP DIST #1 GENERAL | 0.5503668747 | $9,600 | $9,600 | $5.28 | | |
| SCH402BOND | SCHOOL DIST #402 BOND | 1.2974778650 | $9,600 | $9,600 | $12.46 | | |
| SCH402MO | SCHOOL DIST #402 EP & O | 1.5579855743 | $9,600 | $9,600 | $14.96 | | |
| CONSERVE | CONSERVATION FUTURES | 0.0275621078 | $9,600 | $9,600 | $0.26 | | |
| LIB1 | LIBRARY DIST #1 GENERAL | 0.2868827388 | $9,600 | $9,600 | $2.75 | | |
| PORTPT | PORT OF PT GENERAL | 0.1134941229 | $9,600 | $9,600 | $1.09 | | |
| PORTPTIDD | PORT OF PT IDD 2019 | 0.2577346692 | $9,600 | $9,600 | $2.47 | | |
| PUD1 | PUD #1 GENERAL | 0.0597888892 | $9,600 | $9,600 | $0.57 | | |
| STATE | STATE SCHOOL PART 1 | 1.4940692947 | $9,600 | $9,600 | $14.34 | | |
| STATE2 | STATE SCHOOL PART 2 | 0.8050170049 | $9,600 | $9,600 | $7.73 | | |
| | Total Tax Rate: | 8.1110498760 | | | | | |
| | | | | Taxes w/Current Exemptions: | $77.85 | | |
| | | | | Taxes w/o Exemptions: | $77.85 | | |
Improvement / Building
Sketch
| No sketches available for this property. |
Property Image
Land
| 1 | WEST-7175L | | 0.0000 | 0.00 | 0.00 | 0.00 | 2.00 | $9,600 | $0 |
Roll Value History
| 2026 | N/A | N/A | N/A | N/A | N/A |
| 2025 | $0 | $9,600 | $0 | $9,600 | $9,600 |
| 2024 | $0 | $9,600 | $0 | $9,600 | $9,600 |
| 2023 | $0 | $9,600 | $0 | $9,600 | $9,600 |
| 2022 | $0 | $9,600 | $0 | $9,600 | $9,600 |
Deed and Sales History
| 1 | 04/09/2024 | SWD | Statutory Warranty Deed | RONALD J & ANA RAE FLERCHINGER | RON & ANA FLERCHINGER TRUST | | | | 142436 | |
| 2 | 04/09/2024 | SWD | Statutory Warranty Deed | ANA RAE FLERCHINGER | RONALD J & ANA RAE FLERCHINGER | | | | 142435 | |
| 3 | 01/19/1995 | WD | Warranty Deed | STICKNEY, WENDELL F/EST | FLERCHINGER, ANA RAE | 0 | 0 | $0.00 | 76243 | 0 |
Payout Agreement
| No payout information available.. |