Property
Account |
| Property ID: | 36793 | Abbreviated Legal Description: | OLYMPIC CANAL ADDITION 1 BLK 1 LOT 3 |
| Parcel # / Geo ID: | 980100102 | Agent Code: | |
| Type: | Real | | |
| Tax Area: | 0441 - 1-46F4E4H2C1L1P2 | Land Use Code | 11 |
| Open Space: | N | DFL | N |
| Historic Property: | N | Remodel Property: | N |
| Multi-Family Redevelopment: | N | | |
| Township: | 25N | Section: | 21 |
| Range: | 2W |
Location |
| Address: | | Mapsco: | 011/002 |
| Neighborhood: | OLYMPIC CANAL TRACTS | Map ID: | |
| Neighborhood CD: | 1250 |
Owner |
| Name: | KARL L SPRINGER | Owner ID: | 27932 |
| Mailing Address: | ROBIN S SPRINGER PO BOX 132 BRINNON, WA 98320-0132 | % Ownership: | 100.0000000000% |
| | | Exemptions: | |
Pay Tax Due
Select the appropriate checkbox next to the year to be paid. Multiple years may be selected.
*Convenience Fee not included
Taxes and Assessment Details
Property Tax Information as of
03/11/2026
Click on "Statement Details" to expand or collapse a tax statement.
* Please enter a valid date ** Please enter a valid date *
Statement Details |
| 2026 | 26009 | STATE - STATE LEVY (SCHOOL) | $16.62 | $16.62 | $0.00 | $0.00 | $0.00 | $33.24 |
| 2026 | 26009 | COUNTY - COUNTY LEVIES (CE, DD, VET, MH) | $6.65 | $6.65 | $0.00 | $0.00 | $0.00 | $13.30 |
| 2026 | 26009 | CONSERVE - CONSERVATION FUTURES | $0.20 | $0.20 | $0.00 | $0.00 | $0.00 | $0.40 |
| 2026 | 26009 | COROADS - COUNTY ROADS (ROADS, DIV TO CE) | $5.36 | $5.36 | $0.00 | $0.00 | $0.00 | $10.72 |
| 2026 | 26009 | PORTPT - PORT DISTRICT | $2.69 | $2.68 | $0.00 | $0.00 | $0.00 | $5.37 |
| 2026 | 26009 | PUD1 - PUD #1 | $0.43 | $0.43 | $0.00 | $0.00 | $0.00 | $0.86 |
| 2026 | 26009 | LIB1 - LIBRARY DIST #1 | $2.08 | $2.07 | $0.00 | $0.00 | $0.00 | $4.15 |
| 2026 | 26009 | HD2 - HOSP DIST #2 | $0.39 | $0.39 | $0.00 | $0.00 | $0.00 | $0.78 |
| 2026 | 26009 | SD46 - SCHOOL DIST #46 | $4.98 | $4.98 | $0.00 | $0.00 | $0.00 | $9.96 |
| 2026 | 26009 | FD4 - FIRE DISTRICT #4 | $12.07 | $12.06 | $0.00 | $0.00 | $0.00 | $24.13 |
| 2026 | 26009 | EMS4 - FIRE DIST #4 EMS | $3.36 | $3.36 | $0.00 | $0.00 | $0.00 | $6.72 |
| 2026 | 26009 | CEM1 - CEMETERY DIST #1 | $0.08 | $0.07 | $0.00 | $0.00 | $0.00 | $0.15 |
| 2026 | 26009 | FPLCA - DNR Landowner Contingency Assmt | $3.00 | $3.00 | $0.00 | $0.00 | $0.00 | $6.00 |
| 2026 | 26009 | JCCD - JC Conservation District | $2.55 | $2.55 | $0.00 | $0.00 | $0.00 | $5.10 |
| 2026 | 26009 | NWA - Noxious Weed Assessment | $2.98 | $2.97 | $0.00 | $0.00 | $0.00 | $5.95 |
| 2026 | 26009 | WAT - Clean Water District | $13.00 | $13.00 | $0.00 | $0.00 | $0.00 | $26.00 |
| 2026 | 26009 | TOTAL: | $76.44 | $76.39 | $0.00 | $0.00 | $0.00 | $152.83 |
|
| 2026 | 26009 | $76.44 | $76.39 | $0.00 | $0.00 | $0.00 | $152.83 |
Statement Details |
| 2025 | 26077 | STATE - STATE LEVY (SCHOOL) | $12.85 | $12.84 | $0.00 | $0.00 | $25.69 | $0.00 |
| 2025 | 26077 | COUNTY - COUNTY LEVIES (CE, DD, VET, MH) | $5.06 | $5.05 | $0.00 | $0.00 | $10.11 | $0.00 |
| 2025 | 26077 | CONSERVE - CONSERVATION FUTURES | $0.15 | $0.15 | $0.00 | $0.00 | $0.30 | $0.00 |
| 2025 | 26077 | COROADS - COUNTY ROADS (ROADS, DIV TO CE) | $4.05 | $4.05 | $0.00 | $0.00 | $8.10 | $0.00 |
| 2025 | 26077 | PORTPT - PORT DISTRICT | $2.07 | $2.05 | $0.00 | $0.00 | $4.12 | $0.00 |
| 2025 | 26077 | PUD1 - PUD #1 | $0.33 | $0.33 | $0.00 | $0.00 | $0.66 | $0.00 |
| 2025 | 26077 | LIB1 - LIBRARY DIST #1 | $1.57 | $1.56 | $0.00 | $0.00 | $3.13 | $0.00 |
| 2025 | 26077 | HD2 - HOSP DIST #2 | $0.30 | $0.29 | $0.00 | $0.00 | $0.59 | $0.00 |
| 2025 | 26077 | SD46 - SCHOOL DIST #46 | $3.40 | $3.39 | $0.00 | $0.00 | $6.79 | $0.00 |
| 2025 | 26077 | FD4 - FIRE DISTRICT #4 | $9.41 | $9.41 | $0.00 | $0.00 | $18.82 | $0.00 |
| 2025 | 26077 | EMS4 - FIRE DIST #4 EMS | $2.61 | $2.61 | $0.00 | $0.00 | $5.22 | $0.00 |
| 2025 | 26077 | CEM1 - CEMETERY DIST #1 | $0.06 | $0.06 | $0.00 | $0.00 | $0.12 | $0.00 |
| 2025 | 26077 | FPLCA - DNR Landowner Contingency Assmt | $3.00 | $3.00 | $0.00 | $0.00 | $6.00 | $0.00 |
| 2025 | 26077 | JCCD - JC Conservation District | $2.55 | $2.55 | $0.00 | $0.00 | $5.10 | $0.00 |
| 2025 | 26077 | NWA - Noxious Weed Assessment | $2.15 | $2.15 | $0.00 | $0.00 | $4.30 | $0.00 |
| 2025 | 26077 | WAT - Clean Water District | $13.00 | $13.00 | $0.00 | $0.00 | $26.00 | $0.00 |
| 2025 | 26077 | TOTAL: | $62.56 | $62.49 | $0.00 | $0.00 | $125.05 | $0.00 |
|
| 2025 | 26077 | $62.56 | $62.49 | $0.00 | $0.00 | $125.05 | $0.00 |
Statement Details |
| 2024 | 26128 | STATE - STATE LEVY (SCHOOL) | $12.40 | $12.38 | $0.00 | $0.00 | $24.78 | $0.00 |
| 2024 | 26128 | COUNTY - COUNTY LEVIES (CE, DD, VET, MH) | $5.30 | $5.30 | $0.00 | $0.00 | $10.60 | $0.00 |
| 2024 | 26128 | CONSERVE - CONSERVATION FUTURES | $0.16 | $0.16 | $0.00 | $0.00 | $0.32 | $0.00 |
| 2024 | 26128 | COROADS - COUNTY ROADS (ROADS, DIV TO CE) | $4.27 | $4.26 | $0.00 | $0.00 | $8.53 | $0.00 |
| 2024 | 26128 | PORTPT - PORT DISTRICT | $2.20 | $2.18 | $0.00 | $0.00 | $4.38 | $0.00 |
| 2024 | 26128 | PUD1 - PUD #1 | $0.35 | $0.35 | $0.00 | $0.00 | $0.70 | $0.00 |
| 2024 | 26128 | LIB1 - LIBRARY DIST #1 | $1.65 | $1.65 | $0.00 | $0.00 | $3.30 | $0.00 |
| 2024 | 26128 | HD2 - HOSP DIST #2 | $0.31 | $0.31 | $0.00 | $0.00 | $0.62 | $0.00 |
| 2024 | 26128 | SD46 - SCHOOL DIST #46 | $3.72 | $3.72 | $0.00 | $0.00 | $7.44 | $0.00 |
| 2024 | 26128 | FD4 - FIRE DISTRICT #4 | $9.62 | $9.60 | $0.00 | $0.00 | $19.22 | $0.00 |
| 2024 | 26128 | EMS4 - FIRE DIST #4 EMS | $2.68 | $2.68 | $0.00 | $0.00 | $5.36 | $0.00 |
| 2024 | 26128 | CEM1 - CEMETERY DIST #1 | $0.07 | $0.06 | $0.00 | $0.00 | $0.13 | $0.00 |
| 2024 | 26128 | FP - DNR Forest Fire Protection Assmt | $8.50 | $8.50 | $0.00 | $0.00 | $17.00 | $0.00 |
| 2024 | 26128 | FPLCA - DNR Landowner Contingency Assmt | $3.00 | $3.00 | $0.00 | $0.00 | $6.00 | $0.00 |
| 2024 | 26128 | JCCD - JC Conservation District | $2.55 | $2.55 | $0.00 | $0.00 | $5.10 | $0.00 |
| 2024 | 26128 | NWA - Noxious Weed Assessment | $2.15 | $2.15 | $0.00 | $0.00 | $4.30 | $0.00 |
| 2024 | 26128 | WAT - Clean Water District | $12.50 | $12.50 | $0.00 | $0.00 | $25.00 | $0.00 |
| 2024 | 26128 | FP ADMIN - FP ADMIN | $0.50 | $0.00 | $0.00 | $0.00 | $0.50 | $0.00 |
| 2024 | 26128 | TOTAL: | $71.93 | $71.35 | $0.00 | $0.00 | $143.28 | $0.00 |
|
| 2024 | 26128 | $71.93 | $71.35 | $0.00 | $0.00 | $143.28 | $0.00 |
Statement Details |
| 2023 | 26169 | STATE - STATE LEVY (SCHOOL) | $12.62 | $12.60 | $0.00 | $0.00 | $25.22 | $0.00 |
| 2023 | 26169 | COUNTY - COUNTY LEVIES (CE, DD, VET, MH) | $5.50 | $5.49 | $0.00 | $0.00 | $10.99 | $0.00 |
| 2023 | 26169 | CONSERVE - CONSERVATION FUTURES | $0.17 | $0.16 | $0.00 | $0.00 | $0.33 | $0.00 |
| 2023 | 26169 | COROADS - COUNTY ROADS (ROADS, DIV TO CE) | $4.46 | $4.45 | $0.00 | $0.00 | $8.91 | $0.00 |
| 2023 | 26169 | PORTPT - PORT DISTRICT | $2.32 | $2.32 | $0.00 | $0.00 | $4.64 | $0.00 |
| 2023 | 26169 | PUD1 - PUD #1 | $0.37 | $0.36 | $0.00 | $0.00 | $0.73 | $0.00 |
| 2023 | 26169 | LIB1 - LIBRARY DIST #1 | $1.72 | $1.72 | $0.00 | $0.00 | $3.44 | $0.00 |
| 2023 | 26169 | HD2 - HOSP DIST #2 | $0.32 | $0.32 | $0.00 | $0.00 | $0.64 | $0.00 |
| 2023 | 26169 | SD46 - SCHOOL DIST #46 | $4.12 | $4.11 | $0.00 | $0.00 | $8.23 | $0.00 |
| 2023 | 26169 | FD4 - FIRE DISTRICT #4 | $6.84 | $6.84 | $0.00 | $0.00 | $13.68 | $0.00 |
| 2023 | 26169 | EMS4 - FIRE DIST #4 EMS | $1.95 | $1.94 | $0.00 | $0.00 | $3.89 | $0.00 |
| 2023 | 26169 | CEM1 - CEMETERY DIST #1 | $0.07 | $0.07 | $0.00 | $0.00 | $0.14 | $0.00 |
| 2023 | 26169 | FP - DNR Forest Fire Protection Assmt | $8.50 | $8.50 | $0.00 | $0.00 | $17.00 | $0.00 |
| 2023 | 26169 | FPLCA - DNR Landowner Contingency Assmt | $3.00 | $3.00 | $0.00 | $0.00 | $6.00 | $0.00 |
| 2023 | 26169 | JCCD - JC Conservation District | $2.53 | $2.53 | $0.00 | $0.00 | $5.06 | $0.00 |
| 2023 | 26169 | NWA - Noxious Weed Assessment | $2.15 | $2.15 | $0.00 | $0.00 | $4.30 | $0.00 |
| 2023 | 26169 | WAT - Clean Water District | $12.00 | $12.00 | $0.00 | $0.00 | $24.00 | $0.00 |
| 2023 | 26169 | FP ADMIN - FP ADMIN | $0.50 | $0.00 | $0.00 | $0.00 | $0.50 | $0.00 |
| 2023 | 26169 | TOTAL: | $69.14 | $68.56 | $0.00 | $0.00 | $137.70 | $0.00 |
|
| 2023 | 26169 | $69.14 | $68.56 | $0.00 | $0.00 | $137.70 | $0.00 |
Values
| (+) Improvement Homesite Value: | + | $0 | |
| (+) Improvement Non-Homesite Value: | + | $0 | |
| (+) Land Homesite Value: | + | $0 | |
| (+) Land Non-Homesite Value: | + | $16,065 | |
| (+) Curr Use (HS): | + | $0 | $0 |
| (+) Curr Use (NHS): | + | $0 | $0 |
| | | -------------------------- | |
| (=) Market Value: | = | $16,065 | |
| (–) Productivity Loss: | – | $0 | |
| | | -------------------------- | |
| (=) Subtotal: | = | $16,065 | |
| (+) Senior Appraised Value: | + | $0 | |
| (+) Non-Senior Appraised Value: | + | $16,065 | |
| | | -------------------------- | |
| (=) Total Appraised Value: | = | $16,065 | |
| (–) Senior Exemption Loss: | – | $0 | |
| (–) Exemption Loss: | – | $0 | |
| | | -------------------------- | |
| (=) Taxable Value: | = | $16,065 | |
Taxing Jurisdiction
| Owner: | KARL L SPRINGER | | |
| % Ownership: | 100.0000000000% | | |
| Total Value: | N/A | | |
| Tax Area: | 0441 - 1-46F4E4H2C1L1P2 |
| CE | COUNTY CURRENT EXPENSE | N/A | N/A | N/A | N/A | | |
| CNTYDD | DEVELOPMENTAL DISABILITIES | N/A | N/A | N/A | N/A | | |
| CNTYVET | VETERANS RELIEF | N/A | N/A | N/A | N/A | | |
| MENTAL | MENTAL HEALTH | N/A | N/A | N/A | N/A | | |
| ROADS | COUNTY ROADS | N/A | N/A | N/A | N/A | | |
| HOSP2CASH | HOSP DIST #2 GENERAL | N/A | N/A | N/A | N/A | | |
| SCH46MO | SCHOOL DIST #46 EP & O | N/A | N/A | N/A | N/A | | |
| CEM1 | CEMETERY DIST #1 GENERAL | N/A | N/A | N/A | N/A | | |
| CONSERVE | CONSERVATION FUTURES | N/A | N/A | N/A | N/A | | |
| EMS4 | FIRE DIST #4 EMS | N/A | N/A | N/A | N/A | | |
| FD4 | FIRE DIST #4 GENERAL | N/A | N/A | N/A | N/A | | |
| FD4BOND | FIRE DIST #4 BOND 2019 | N/A | N/A | N/A | N/A | | |
| LIB1 | LIBRARY DIST #1 GENERAL | N/A | N/A | N/A | N/A | | |
| PORTPT | PORT OF PT GENERAL | N/A | N/A | N/A | N/A | | |
| PORTPTIDD | PORT OF PT IDD 2019 | N/A | N/A | N/A | N/A | | |
| PUD1 | PUD #1 GENERAL | N/A | N/A | N/A | N/A | | |
| STATE | STATE SCHOOL PART 1 | N/A | N/A | N/A | N/A | | |
| STATE2 | STATE SCHOOL PART 2 | N/A | N/A | N/A | N/A | | |
| | Total Tax Rate: | N/A | | | | | |
| | | | | Taxes w/Current Exemptions: | N/A | | |
| | | | | Taxes w/o Exemptions: | N/A | | |
Improvement / Building
Sketch
| No sketches available for this property. |
Property Image
Land
| 1 | 1250-1165L | | 0.0000 | 0.00 | 0.00 | 0.00 | 1.00 | $16,065 | $0 |
Roll Value History
| 2026 | N/A | N/A | N/A | N/A | N/A |
| 2025 | $0 | $14,459 | $0 | $14,459 | $14,459 |
| 2024 | $0 | $10,710 | $0 | $10,710 | $10,710 |
| 2023 | $0 | $10,710 | $0 | $10,710 | $10,710 |
| 2022 | $0 | $10,710 | $0 | $10,710 | $10,710 |
Deed and Sales History
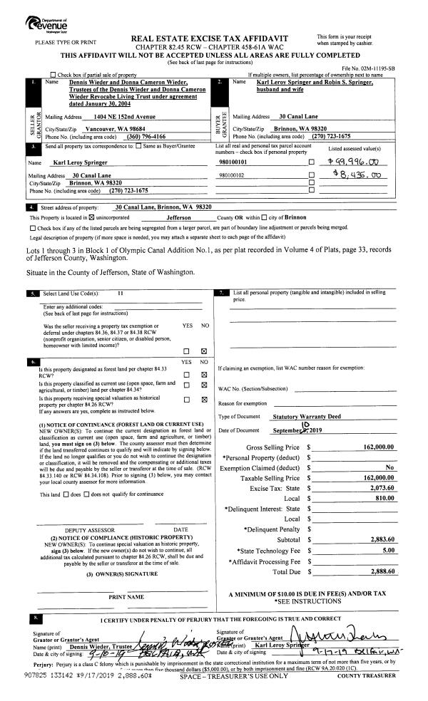
| 1 | 09/10/2019 | SWD | Statutory Warranty Deed | DENNIS C WIEDER TRSTEE | KARL L SPRINGER | | | $162,000.00 | 133142 | |
|   | |
| 2 | 04/05/2004 | MISC | MISC | WIEDER, DENNIS C & DONNA | WIEDER JOINT TRUST | 0 | 0 | $0.00 | 99924 | 0 |
| 3 | 01/02/1998 | QCD | Quit Claim Deed | WIEDER, DENNIS C | WIEDER, DENNIS C/DONNA M | 0 | 0 | $0.00 | 83594 | 0 |
Payout Agreement
| No payout information available.. |