Property
Account |
| Property ID: | 36794 | Abbreviated Legal Description: | OLYMPIC CANAL ADDITION 1 BLK 1 LOT 5 |
| Parcel # / Geo ID: | 980100103 | Agent Code: | |
| Type: | Real | | |
| Tax Area: | 0441 - 1-46F4E4H2C1L1P2 | Land Use Code | 91 |
| Open Space: | N | DFL | N |
| Historic Property: | N | Remodel Property: | N |
| Multi-Family Redevelopment: | N | | |
| Township: | 25N | Section: | 21 |
| Range: | 2W |
Location |
| Address: | | Mapsco: | 011/004 |
| Neighborhood: | OLYMPIC CANAL TRACTS | Map ID: | |
| Neighborhood CD: | 1250 |
Owner |
| Name: | PATRICIA J AUSTIN | Owner ID: | 113847 |
| Mailing Address: | 6400 CHICO WAY NW BREMERTON, WA 98312-1156 | % Ownership: | 100.0000000000% |
| | | Exemptions: | |
Pay Tax Due
There is currently No Amount Due on this property.
Taxes and Assessment Details
Property Tax Information as of
03/11/2026
Click on "Statement Details" to expand or collapse a tax statement.
* Please enter a valid date ** Please enter a valid date *
Statement Details |
| | TOTAL: | $0.00 | $0.00 | $0.00 | $0.00 | $0.00 | $0.00 |
|
| | $0.00 | $0.00 | $0.00 | $0.00 | $0.00 | $0.00 |
Values
| (+) Improvement Homesite Value: | + | $0 | |
| (+) Improvement Non-Homesite Value: | + | $0 | |
| (+) Land Homesite Value: | + | $0 | |
| (+) Land Non-Homesite Value: | + | $12,049 | |
| (+) Curr Use (HS): | + | $0 | $0 |
| (+) Curr Use (NHS): | + | $0 | $0 |
| | | -------------------------- | |
| (=) Market Value: | = | $12,049 | |
| (–) Productivity Loss: | – | $0 | |
| | | -------------------------- | |
| (=) Subtotal: | = | $12,049 | |
| (+) Senior Appraised Value: | + | $0 | |
| (+) Non-Senior Appraised Value: | + | $12,049 | |
| | | -------------------------- | |
| (=) Total Appraised Value: | = | $12,049 | |
| (–) Senior Exemption Loss: | – | $0 | |
| (–) Exemption Loss: | – | $0 | |
| | | -------------------------- | |
| (=) Taxable Value: | = | $12,049 | |
Taxing Jurisdiction
| Owner: | PATRICIA J AUSTIN | | |
| % Ownership: | 100.0000000000% | | |
| Total Value: | $12,049 | | |
| Tax Area: | 0441 - 1-46F4E4H2C1L1P2 |
| CE | COUNTY CURRENT EXPENSE | 0.9034619479 | $12,049 | $12,049 | $10.89 | | |
| CNTYDD | DEVELOPMENTAL DISABILITIES | 0.0052121823 | $12,049 | $12,049 | $0.06 | | |
| CNTYVET | VETERANS RELIEF | 0.0052777810 | $12,049 | $12,049 | $0.06 | | |
| MENTAL | MENTAL HEALTH | 0.0052121823 | $12,049 | $12,049 | $0.06 | | |
| ROADS | COUNTY ROADS | 0.7415066410 | $12,049 | $12,049 | $8.93 | | |
| ROADSCU | COUNTY ROADS TO CUR EXP | 0.0000000000 | $12,049 | $12,049 | $0.00 | | |
| HOSP2CASH | HOSP DIST #2 GENERAL | 0.0536075306 | $12,049 | $12,049 | $0.65 | | |
| SCH46MO | SCHOOL DIST #46 EP & O | 0.6890207067 | $12,049 | $12,049 | $8.30 | | |
| CEM1 | CEMETERY DIST #1 GENERAL | 0.0107168292 | $12,049 | $12,049 | $0.13 | | |
| CONSERVE | CONSERVATION FUTURES | 0.0275621078 | $12,049 | $12,049 | $0.33 | | |
| EMS4 | FIRE DIST #4 EMS | 0.4644216158 | $12,049 | $12,049 | $5.60 | | |
| FD4 | FIRE DIST #4 GENERAL | 1.3939598390 | $12,049 | $12,049 | $16.80 | | |
| FD4BOND | FIRE DIST #4 BOND 2019 | 0.2748466981 | $12,049 | $12,049 | $3.31 | | |
| LIB1 | LIBRARY DIST #1 GENERAL | 0.2868827388 | $12,049 | $12,049 | $3.46 | | |
| PORTPT | PORT OF PT GENERAL | 0.1134941229 | $12,049 | $12,049 | $1.37 | | |
| PORTPTIDD | PORT OF PT IDD 2019 | 0.2577346692 | $12,049 | $12,049 | $3.11 | | |
| PUD1 | PUD #1 GENERAL | 0.0597888892 | $12,049 | $12,049 | $0.72 | | |
| STATE | STATE SCHOOL PART 1 | 1.4940692947 | $12,049 | $12,049 | $18.00 | | |
| STATE2 | STATE SCHOOL PART 2 | 0.8050170049 | $12,049 | $12,049 | $9.70 | | |
| | Total Tax Rate: | 7.5917927814 | | | | | |
| | | | | Taxes w/Current Exemptions: | $91.48 | | |
| | | | | Taxes w/o Exemptions: | $91.48 | | |
Improvement / Building
Sketch
| No sketches available for this property. |
Property Image
Land
| 1 | 1250-1165L | Fair to Avg Lots or Lots w/access to beach | 0.0000 | 0.00 | 0.00 | 0.00 | 1.00 | $12,049 | $0 |
Roll Value History
| 2026 | N/A | N/A | N/A | N/A | N/A |
| 2025 | $0 | $12,049 | $0 | $12,049 | $12,049 |
| 2024 | $0 | $8,925 | $0 | $8,925 | $8,925 |
| 2023 | $0 | $8,925 | $0 | $8,925 | $8,925 |
| 2022 | $0 | $8,925 | $0 | $8,925 | $8,925 |
Deed and Sales History
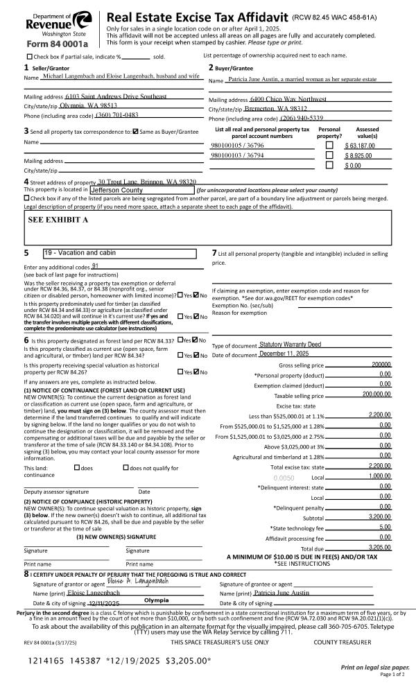
| 1 | 12/11/2025 | SWD | Statutory Warranty Deed | MICHAEL G LANGENBACH | PATRICIA J AUSTIN | | | $200,000.00 | 145387 | |
|   | |
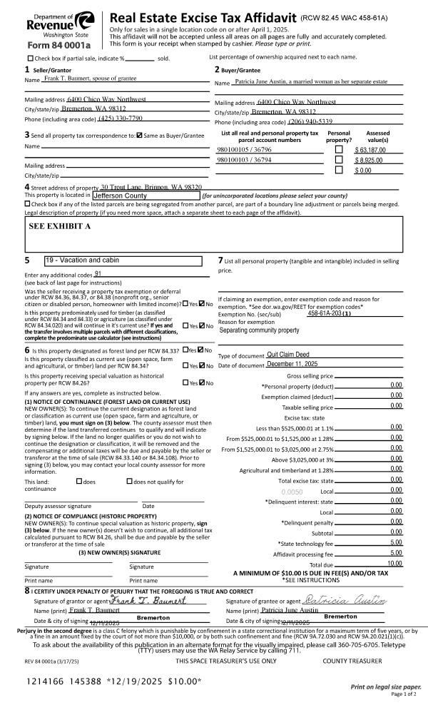
| 2 | 01/09/2004 | QCD | Quit Claim Deed | SICKEL, GEORGE/KAREN | LANGENBACH, MICHAEL/ELOISE | 0 | 0 | $4,800.00 | 99244 | 0 |
| 3 | 01/08/2004 | SWD | Statutory Warranty Deed | SICKEL, GEORGE Z & KAREN | LANGENBACH, MICHAEL & ELOISE | 0 | 0 | $7,000.00 | 99251 | 0 |
| 4 | 05/30/1997 | SWD | Statutory Warranty Deed | SUNDERLAND, DOROTHY | SICKEL, GEORGE Z/KAREN | 0 | 0 | $7,700.00 | 82072 | 0 |
| 5 | 11/07/1994 | QCD | Quit Claim Deed | JETT, ROBERT/EST | SUNDERLAND, DOROTHY | 0 | 0 | $0.00 | 75573 | 0 |
Payout Agreement
| No payout information available.. |