Property
Account |
| Property ID: | 36804 | Abbreviated Legal Description: | OLYMPIC CANAL ADDITION 1 BLK 2 LOT 8 |
| Parcel # / Geo ID: | 980100208 | Agent Code: | |
| Type: | Real | | |
| Tax Area: | 0441 - 1-46F4E4H2C1L1P2 | Land Use Code | 19 |
| Open Space: | N | DFL | N |
| Historic Property: | N | Remodel Property: | N |
| Multi-Family Redevelopment: | N | | |
| Township: | 25N | Section: | 21 |
| Range: | 2W |
Location |
| Address: | 84 CANAL LANE BRINNON, WA 98320 | Mapsco: | 011/013 |
| Neighborhood: | OLYMPIC CANAL TRACTS | Map ID: | |
| Neighborhood CD: | 1250 |
Owner |
| Name: | ROBERT W & SUSAN MARSHALL | Owner ID: | 21647 |
| Mailing Address: | 91 CANAL LANE BRINNON, WA 98320-9511 | % Ownership: | 100.0000000000% |
| | | Exemptions: | |
Pay Tax Due
Select the appropriate checkbox next to the year to be paid. Multiple years may be selected.
*Convenience Fee not included
Taxes and Assessment Details
Property Tax Information as of
03/11/2026
Click on "Statement Details" to expand or collapse a tax statement.
* Please enter a valid date ** Please enter a valid date *
Statement Details |
| 2026 | 26020 | STATE - STATE LEVY (SCHOOL) | $29.42 | $29.41 | $0.00 | $0.00 | $0.00 | $58.83 |
| 2026 | 26020 | COUNTY - COUNTY LEVIES (CE, DD, VET, MH) | $11.77 | $11.75 | $0.00 | $0.00 | $0.00 | $23.52 |
| 2026 | 26020 | CONSERVE - CONSERVATION FUTURES | $0.36 | $0.35 | $0.00 | $0.00 | $0.00 | $0.71 |
| 2026 | 26020 | COROADS - COUNTY ROADS (ROADS, DIV TO CE) | $9.49 | $9.49 | $0.00 | $0.00 | $0.00 | $18.98 |
| 2026 | 26020 | PORTPT - PORT DISTRICT | $4.75 | $4.75 | $0.00 | $0.00 | $0.00 | $9.50 |
| 2026 | 26020 | PUD1 - PUD #1 | $0.77 | $0.76 | $0.00 | $0.00 | $0.00 | $1.53 |
| 2026 | 26020 | LIB1 - LIBRARY DIST #1 | $3.67 | $3.67 | $0.00 | $0.00 | $0.00 | $7.34 |
| 2026 | 26020 | HD2 - HOSP DIST #2 | $0.69 | $0.68 | $0.00 | $0.00 | $0.00 | $1.37 |
| 2026 | 26020 | SD46 - SCHOOL DIST #46 | $8.82 | $8.81 | $0.00 | $0.00 | $0.00 | $17.63 |
| 2026 | 26020 | FD4 - FIRE DISTRICT #4 | $21.36 | $21.34 | $0.00 | $0.00 | $0.00 | $42.70 |
| 2026 | 26020 | EMS4 - FIRE DIST #4 EMS | $5.95 | $5.94 | $0.00 | $0.00 | $0.00 | $11.89 |
| 2026 | 26020 | CEM1 - CEMETERY DIST #1 | $0.14 | $0.13 | $0.00 | $0.00 | $0.00 | $0.27 |
| 2026 | 26020 | FP - DNR Forest Fire Protection Assmt | $8.50 | $8.50 | $0.00 | $0.00 | $0.00 | $17.00 |
| 2026 | 26020 | FPLCA - DNR Landowner Contingency Assmt | $3.00 | $3.00 | $0.00 | $0.00 | $0.00 | $6.00 |
| 2026 | 26020 | JCCD - JC Conservation District | $2.55 | $2.55 | $0.00 | $0.00 | $0.00 | $5.10 |
| 2026 | 26020 | NWA - Noxious Weed Assessment | $2.98 | $2.97 | $0.00 | $0.00 | $0.00 | $5.95 |
| 2026 | 26020 | WAT - Clean Water District | $13.00 | $13.00 | $0.00 | $0.00 | $0.00 | $26.00 |
| 2026 | 26020 | FP ADMIN - FP ADMIN | $0.50 | $0.00 | $0.00 | $0.00 | $0.00 | $0.50 |
| 2026 | 26020 | TOTAL: | $127.72 | $127.10 | $0.00 | $0.00 | $0.00 | $254.82 |
|
| 2026 | 26020 | $127.72 | $127.10 | $0.00 | $0.00 | $0.00 | $254.82 |
Statement Details |
| 2025 | 26088 | STATE - STATE LEVY (SCHOOL) | $24.44 | $24.43 | $0.00 | $0.00 | $48.87 | $0.00 |
| 2025 | 26088 | COUNTY - COUNTY LEVIES (CE, DD, VET, MH) | $9.63 | $9.59 | $0.00 | $0.00 | $19.22 | $0.00 |
| 2025 | 26088 | CONSERVE - CONSERVATION FUTURES | $0.29 | $0.29 | $0.00 | $0.00 | $0.58 | $0.00 |
| 2025 | 26088 | COROADS - COUNTY ROADS (ROADS, DIV TO CE) | $7.70 | $7.69 | $0.00 | $0.00 | $15.39 | $0.00 |
| 2025 | 26088 | PORTPT - PORT DISTRICT | $3.93 | $3.91 | $0.00 | $0.00 | $7.84 | $0.00 |
| 2025 | 26088 | PUD1 - PUD #1 | $0.63 | $0.63 | $0.00 | $0.00 | $1.26 | $0.00 |
| 2025 | 26088 | LIB1 - LIBRARY DIST #1 | $2.98 | $2.98 | $0.00 | $0.00 | $5.96 | $0.00 |
| 2025 | 26088 | HD2 - HOSP DIST #2 | $0.56 | $0.56 | $0.00 | $0.00 | $1.12 | $0.00 |
| 2025 | 26088 | SD46 - SCHOOL DIST #46 | $6.46 | $6.46 | $0.00 | $0.00 | $12.92 | $0.00 |
| 2025 | 26088 | FD4 - FIRE DISTRICT #4 | $17.91 | $17.89 | $0.00 | $0.00 | $35.80 | $0.00 |
| 2025 | 26088 | EMS4 - FIRE DIST #4 EMS | $4.97 | $4.96 | $0.00 | $0.00 | $9.93 | $0.00 |
| 2025 | 26088 | CEM1 - CEMETERY DIST #1 | $0.12 | $0.11 | $0.00 | $0.00 | $0.23 | $0.00 |
| 2025 | 26088 | FP - DNR Forest Fire Protection Assmt | $8.50 | $8.50 | $0.00 | $0.00 | $17.00 | $0.00 |
| 2025 | 26088 | FPLCA - DNR Landowner Contingency Assmt | $3.00 | $3.00 | $0.00 | $0.00 | $6.00 | $0.00 |
| 2025 | 26088 | JCCD - JC Conservation District | $2.55 | $2.55 | $0.00 | $0.00 | $5.10 | $0.00 |
| 2025 | 26088 | NWA - Noxious Weed Assessment | $2.15 | $2.15 | $0.00 | $0.00 | $4.30 | $0.00 |
| 2025 | 26088 | WAT - Clean Water District | $13.00 | $13.00 | $0.00 | $0.00 | $26.00 | $0.00 |
| 2025 | 26088 | FP ADMIN - FP ADMIN | $0.50 | $0.00 | $0.00 | $0.00 | $0.50 | $0.00 |
| 2025 | 26088 | TOTAL: | $109.32 | $108.70 | $0.00 | $0.00 | $218.02 | $0.00 |
|
| 2025 | 26088 | $109.32 | $108.70 | $0.00 | $0.00 | $218.02 | $0.00 |
Statement Details |
| 2024 | 26139 | STATE - STATE LEVY (SCHOOL) | $23.58 | $23.57 | $0.00 | $0.00 | $47.15 | $0.00 |
| 2024 | 26139 | COUNTY - COUNTY LEVIES (CE, DD, VET, MH) | $10.10 | $10.07 | $0.00 | $0.00 | $20.17 | $0.00 |
| 2024 | 26139 | CONSERVE - CONSERVATION FUTURES | $0.30 | $0.30 | $0.00 | $0.00 | $0.60 | $0.00 |
| 2024 | 26139 | COROADS - COUNTY ROADS (ROADS, DIV TO CE) | $8.12 | $8.11 | $0.00 | $0.00 | $16.23 | $0.00 |
| 2024 | 26139 | PORTPT - PORT DISTRICT | $4.17 | $4.16 | $0.00 | $0.00 | $8.33 | $0.00 |
| 2024 | 26139 | PUD1 - PUD #1 | $0.67 | $0.66 | $0.00 | $0.00 | $1.33 | $0.00 |
| 2024 | 26139 | LIB1 - LIBRARY DIST #1 | $3.14 | $3.14 | $0.00 | $0.00 | $6.28 | $0.00 |
| 2024 | 26139 | HD2 - HOSP DIST #2 | $0.59 | $0.59 | $0.00 | $0.00 | $1.18 | $0.00 |
| 2024 | 26139 | SD46 - SCHOOL DIST #46 | $7.08 | $7.07 | $0.00 | $0.00 | $14.15 | $0.00 |
| 2024 | 26139 | FD4 - FIRE DISTRICT #4 | $18.29 | $18.27 | $0.00 | $0.00 | $36.56 | $0.00 |
| 2024 | 26139 | EMS4 - FIRE DIST #4 EMS | $5.10 | $5.09 | $0.00 | $0.00 | $10.19 | $0.00 |
| 2024 | 26139 | CEM1 - CEMETERY DIST #1 | $0.12 | $0.12 | $0.00 | $0.00 | $0.24 | $0.00 |
| 2024 | 26139 | FP - DNR Forest Fire Protection Assmt | $8.50 | $8.50 | $0.00 | $0.00 | $17.00 | $0.00 |
| 2024 | 26139 | FPLCA - DNR Landowner Contingency Assmt | $3.00 | $3.00 | $0.00 | $0.00 | $6.00 | $0.00 |
| 2024 | 26139 | JCCD - JC Conservation District | $2.55 | $2.55 | $0.00 | $0.00 | $5.10 | $0.00 |
| 2024 | 26139 | NWA - Noxious Weed Assessment | $2.15 | $2.15 | $0.00 | $0.00 | $4.30 | $0.00 |
| 2024 | 26139 | WAT - Clean Water District | $12.50 | $12.50 | $0.00 | $0.00 | $25.00 | $0.00 |
| 2024 | 26139 | FP ADMIN - FP ADMIN | $0.50 | $0.00 | $0.00 | $0.00 | $0.50 | $0.00 |
| 2024 | 26139 | TOTAL: | $110.46 | $109.85 | $0.00 | $0.00 | $220.31 | $0.00 |
|
| 2024 | 26139 | $110.46 | $109.85 | $0.00 | $0.00 | $220.31 | $0.00 |
Statement Details |
| 2023 | 26180 | STATE - STATE LEVY (SCHOOL) | $23.84 | $23.84 | $0.00 | $0.00 | $47.68 | $0.00 |
| 2023 | 26180 | COUNTY - COUNTY LEVIES (CE, DD, VET, MH) | $10.41 | $10.40 | $0.00 | $0.00 | $20.81 | $0.00 |
| 2023 | 26180 | CONSERVE - CONSERVATION FUTURES | $0.31 | $0.31 | $0.00 | $0.00 | $0.62 | $0.00 |
| 2023 | 26180 | COROADS - COUNTY ROADS (ROADS, DIV TO CE) | $8.42 | $8.41 | $0.00 | $0.00 | $16.83 | $0.00 |
| 2023 | 26180 | PORTPT - PORT DISTRICT | $4.39 | $4.38 | $0.00 | $0.00 | $8.77 | $0.00 |
| 2023 | 26180 | PUD1 - PUD #1 | $0.69 | $0.69 | $0.00 | $0.00 | $1.38 | $0.00 |
| 2023 | 26180 | LIB1 - LIBRARY DIST #1 | $3.26 | $3.25 | $0.00 | $0.00 | $6.51 | $0.00 |
| 2023 | 26180 | HD2 - HOSP DIST #2 | $0.61 | $0.60 | $0.00 | $0.00 | $1.21 | $0.00 |
| 2023 | 26180 | SD46 - SCHOOL DIST #46 | $7.78 | $7.78 | $0.00 | $0.00 | $15.56 | $0.00 |
| 2023 | 26180 | FD4 - FIRE DISTRICT #4 | $12.94 | $12.93 | $0.00 | $0.00 | $25.87 | $0.00 |
| 2023 | 26180 | EMS4 - FIRE DIST #4 EMS | $3.68 | $3.68 | $0.00 | $0.00 | $7.36 | $0.00 |
| 2023 | 26180 | CEM1 - CEMETERY DIST #1 | $0.13 | $0.13 | $0.00 | $0.00 | $0.26 | $0.00 |
| 2023 | 26180 | FP - DNR Forest Fire Protection Assmt | $8.50 | $8.50 | $0.00 | $0.00 | $17.00 | $0.00 |
| 2023 | 26180 | FPLCA - DNR Landowner Contingency Assmt | $3.00 | $3.00 | $0.00 | $0.00 | $6.00 | $0.00 |
| 2023 | 26180 | JCCD - JC Conservation District | $2.55 | $2.55 | $0.00 | $0.00 | $5.10 | $0.00 |
| 2023 | 26180 | NWA - Noxious Weed Assessment | $2.15 | $2.15 | $0.00 | $0.00 | $4.30 | $0.00 |
| 2023 | 26180 | WAT - Clean Water District | $12.00 | $12.00 | $0.00 | $0.00 | $24.00 | $0.00 |
| 2023 | 26180 | FP ADMIN - FP ADMIN | $0.50 | $0.00 | $0.00 | $0.00 | $0.50 | $0.00 |
| 2023 | 26180 | TOTAL: | $105.16 | $104.60 | $0.00 | $0.00 | $209.76 | $0.00 |
|
| 2023 | 26180 | $105.16 | $104.60 | $0.00 | $0.00 | $209.76 | $0.00 |
Values
| (+) Improvement Homesite Value: | + | $0 | |
| (+) Improvement Non-Homesite Value: | + | $1,441 | |
| (+) Land Homesite Value: | + | $0 | |
| (+) Land Non-Homesite Value: | + | $24,150 | |
| (+) Curr Use (HS): | + | $0 | $0 |
| (+) Curr Use (NHS): | + | $0 | $0 |
| | | -------------------------- | |
| (=) Market Value: | = | $25,591 | |
| (–) Productivity Loss: | – | $0 | |
| | | -------------------------- | |
| (=) Subtotal: | = | $25,591 | |
| (+) Senior Appraised Value: | + | $0 | |
| (+) Non-Senior Appraised Value: | + | $25,591 | |
| | | -------------------------- | |
| (=) Total Appraised Value: | = | $25,591 | |
| (–) Senior Exemption Loss: | – | $0 | |
| (–) Exemption Loss: | – | $0 | |
| | | -------------------------- | |
| (=) Taxable Value: | = | $25,591 | |
Taxing Jurisdiction
| Owner: | ROBERT W & SUSAN MARSHALL | | |
| % Ownership: | 100.0000000000% | | |
| Total Value: | $25,591 | | |
| Tax Area: | 0441 - 1-46F4E4H2C1L1P2 |
| CE | COUNTY CURRENT EXPENSE | 0.9034619479 | $25,591 | $25,591 | $23.12 | | |
| CNTYDD | DEVELOPMENTAL DISABILITIES | 0.0052121823 | $25,591 | $25,591 | $0.13 | | |
| CNTYVET | VETERANS RELIEF | 0.0052777810 | $25,591 | $25,591 | $0.14 | | |
| MENTAL | MENTAL HEALTH | 0.0052121823 | $25,591 | $25,591 | $0.13 | | |
| ROADS | COUNTY ROADS | 0.7415066410 | $25,591 | $25,591 | $18.98 | | |
| ROADSCU | COUNTY ROADS TO CUR EXP | 0.0000000000 | $25,591 | $25,591 | $0.00 | | |
| HOSP2CASH | HOSP DIST #2 GENERAL | 0.0536075306 | $25,591 | $25,591 | $1.37 | | |
| SCH46MO | SCHOOL DIST #46 EP & O | 0.6890207067 | $25,591 | $25,591 | $17.63 | | |
| CEM1 | CEMETERY DIST #1 GENERAL | 0.0107168292 | $25,591 | $25,591 | $0.27 | | |
| CONSERVE | CONSERVATION FUTURES | 0.0275621078 | $25,591 | $25,591 | $0.71 | | |
| EMS4 | FIRE DIST #4 EMS | 0.4644216158 | $25,591 | $25,591 | $11.89 | | |
| FD4 | FIRE DIST #4 GENERAL | 1.3939598390 | $25,591 | $25,591 | $35.67 | | |
| FD4BOND | FIRE DIST #4 BOND 2019 | 0.2748466981 | $25,591 | $25,591 | $7.03 | | |
| LIB1 | LIBRARY DIST #1 GENERAL | 0.2868827388 | $25,591 | $25,591 | $7.34 | | |
| PORTPT | PORT OF PT GENERAL | 0.1134941229 | $25,591 | $25,591 | $2.90 | | |
| PORTPTIDD | PORT OF PT IDD 2019 | 0.2577346692 | $25,591 | $25,591 | $6.60 | | |
| PUD1 | PUD #1 GENERAL | 0.0597888892 | $25,591 | $25,591 | $1.53 | | |
| STATE | STATE SCHOOL PART 1 | 1.4940692947 | $25,591 | $25,591 | $38.23 | | |
| STATE2 | STATE SCHOOL PART 2 | 0.8050170049 | $25,591 | $25,591 | $20.60 | | |
| | Total Tax Rate: | 7.5917927814 | | | | | |
| | | | | Taxes w/Current Exemptions: | $194.27 | | |
| | | | | Taxes w/o Exemptions: | $194.27 | | |
Improvement / Building
| Improvement #1: | Residential Bldg | State Code: | 19 | 0.0 sqft | Value: | $1,441 |
Sketch
| No sketches available for this property. |
Property Image
Land
| 1 | 1250-1153L | | 0.0000 | 0.00 | 0.00 | 0.00 | 1.00 | $24,150 | $0 |
Roll Value History
| 2026 | N/A | N/A | N/A | N/A | N/A |
| 2025 | $1,441 | $24,150 | $0 | $25,591 | $25,591 |
| 2024 | $1,378 | $19,000 | $0 | $20,378 | $20,378 |
| 2023 | $1,378 | $19,000 | $0 | $20,378 | $20,378 |
| 2022 | $1,253 | $19,000 | $0 | $20,253 | $20,253 |
Deed and Sales History
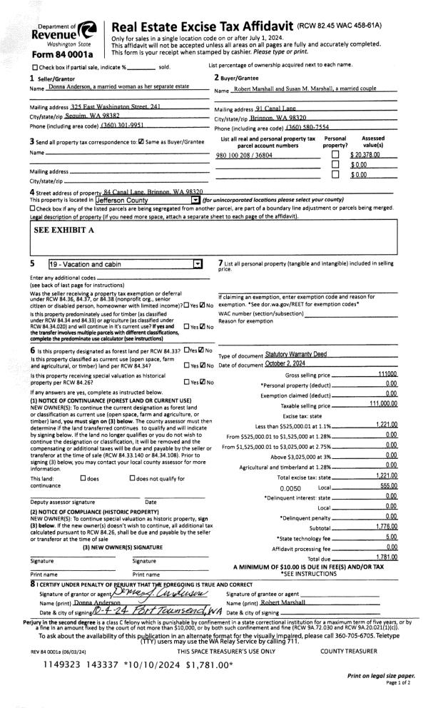
| 1 | 10/02/2024 | SWD | Statutory Warranty Deed | DONNA ANDERSON | ROBERT W & SUSAN MARSHALL | | | $111,000.00 | 143337 | |
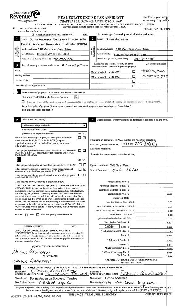
| 2 | 04/06/2020 | QCD | Quit Claim Deed | | | | | | 134247 | |
| 3 | 12/07/2017 | QCD | Quit Claim Deed | | | | | | 129478 | |
| 4 | 03/18/1998 | QCD | Quit Claim Deed | BROWNE, MERVYN WILLIAM | ANDERSON-BROWNE, DONNA | 0 | 0 | $0.00 | 84062 | 0 |
| 5 | 02/24/1998 | SWD | Statutory Warranty Deed | CASTLE, ALAN R/SHIRLEY J | ANDERSON, DONNA/DAVID | 0 | 0 | $20,000.00 | 84061 | 0 |
| 6 | 07/29/1997 | SWD | Statutory Warranty Deed | CALLANTINE, JEAN MARIE | CASTLE, ALAN R/SR & SHIRLEY J | 0 | 0 | $8,500.00 | 82493 | 0 |
Payout Agreement
| No payout information available.. |