Property
Account |
| Property ID: | 36824 | Abbreviated Legal Description: | OLYMPIC CANAL ADDITION 1 BLK 3 LOT 19 TGTH WITH COMMUNITY TIDELAND TR FRTGING SUBJ/DECL REST COV'T #486480 |
| Parcel # / Geo ID: | 980100317 | Agent Code: | |
| Type: | Real | | |
| Tax Area: | 0441 - 1-46F4E4H2C1L1P2 | Land Use Code | 18 |
| Open Space: | N | DFL | N |
| Historic Property: | N | Remodel Property: | N |
| Multi-Family Redevelopment: | N | | |
| Township: | 25N | Section: | 21 |
| Range: | 2W |
Location |
| Address: | 81 CANAL LN BRINNON, WA 98320 | Mapsco: | 011/035 |
| Neighborhood: | OLYMPIC CANAL TRACTS | Map ID: | |
| Neighborhood CD: | 1250 |
Owner |
| Name: | STARR MARSHALL LIVING TRUST | Owner ID: | 103386 |
| Mailing Address: | DAVID S MARSHALL TRUSTEE VICTORIA STARR MARSHALL 81 CANAL LN BRINNON, WA 98320-9511 | % Ownership: | 100.0000000000% |
| | | Exemptions: | |
Pay Tax Due
Select the appropriate checkbox next to the year to be paid. Multiple years may be selected.
*Convenience Fee not included
Taxes and Assessment Details
Property Tax Information as of
03/10/2026
Click on "Statement Details" to expand or collapse a tax statement.
* Please enter a valid date ** Please enter a valid date *
Statement Details |
| 2026 | 26040 | STATE - STATE LEVY (SCHOOL) | $572.94 | $572.93 | $0.00 | $0.00 | $0.00 | $1145.87 |
| 2026 | 26040 | COUNTY - COUNTY LEVIES (CE, DD, VET, MH) | $229.07 | $229.05 | $0.00 | $0.00 | $0.00 | $458.12 |
| 2026 | 26040 | CONSERVE - CONSERVATION FUTURES | $6.87 | $6.87 | $0.00 | $0.00 | $0.00 | $13.74 |
| 2026 | 26040 | COROADS - COUNTY ROADS (ROADS, DIV TO CE) | $184.79 | $184.78 | $0.00 | $0.00 | $0.00 | $369.57 |
| 2026 | 26040 | PORTPT - PORT DISTRICT | $92.52 | $92.51 | $0.00 | $0.00 | $0.00 | $185.03 |
| 2026 | 26040 | PUD1 - PUD #1 | $14.90 | $14.90 | $0.00 | $0.00 | $0.00 | $29.80 |
| 2026 | 26040 | LIB1 - LIBRARY DIST #1 | $71.49 | $71.49 | $0.00 | $0.00 | $0.00 | $142.98 |
| 2026 | 26040 | HD2 - HOSP DIST #2 | $13.36 | $13.36 | $0.00 | $0.00 | $0.00 | $26.72 |
| 2026 | 26040 | SD46 - SCHOOL DIST #46 | $171.71 | $171.70 | $0.00 | $0.00 | $0.00 | $343.41 |
| 2026 | 26040 | FD4 - FIRE DISTRICT #4 | $415.87 | $415.87 | $0.00 | $0.00 | $0.00 | $831.74 |
| 2026 | 26040 | EMS4 - FIRE DIST #4 EMS | $115.74 | $115.73 | $0.00 | $0.00 | $0.00 | $231.47 |
| 2026 | 26040 | CEM1 - CEMETERY DIST #1 | $2.67 | $2.67 | $0.00 | $0.00 | $0.00 | $5.34 |
| 2026 | 26040 | JCCD - JC Conservation District | $2.53 | $2.53 | $0.00 | $0.00 | $0.00 | $5.06 |
| 2026 | 26040 | NWA - Noxious Weed Assessment | $2.98 | $2.97 | $0.00 | $0.00 | $0.00 | $5.95 |
| 2026 | 26040 | OSS - On Site Septic | $23.10 | $23.10 | $0.00 | $0.00 | $0.00 | $46.20 |
| 2026 | 26040 | WAT - Clean Water District | $13.00 | $13.00 | $0.00 | $0.00 | $0.00 | $26.00 |
| 2026 | 26040 | TOTAL: | $1933.54 | $1933.46 | $0.00 | $0.00 | $0.00 | $3867.00 |
|
| 2026 | 26040 | $1933.54 | $1933.46 | $0.00 | $0.00 | $0.00 | $3867.00 |
Statement Details |
| 2025 | 26108 | STATE - STATE LEVY (SCHOOL) | $570.80 | $570.78 | $0.00 | $0.00 | $1141.58 | $0.00 |
| 2025 | 26108 | COUNTY - COUNTY LEVIES (CE, DD, VET, MH) | $224.47 | $224.45 | $0.00 | $0.00 | $448.92 | $0.00 |
| 2025 | 26108 | CONSERVE - CONSERVATION FUTURES | $6.73 | $6.73 | $0.00 | $0.00 | $13.46 | $0.00 |
| 2025 | 26108 | COROADS - COUNTY ROADS (ROADS, DIV TO CE) | $179.84 | $179.82 | $0.00 | $0.00 | $359.66 | $0.00 |
| 2025 | 26108 | PORTPT - PORT DISTRICT | $91.60 | $91.58 | $0.00 | $0.00 | $183.18 | $0.00 |
| 2025 | 26108 | PUD1 - PUD #1 | $14.69 | $14.68 | $0.00 | $0.00 | $29.37 | $0.00 |
| 2025 | 26108 | LIB1 - LIBRARY DIST #1 | $69.58 | $69.57 | $0.00 | $0.00 | $139.15 | $0.00 |
| 2025 | 26108 | HD2 - HOSP DIST #2 | $13.10 | $13.09 | $0.00 | $0.00 | $26.19 | $0.00 |
| 2025 | 26108 | SD46 - SCHOOL DIST #46 | $150.86 | $150.86 | $0.00 | $0.00 | $301.72 | $0.00 |
| 2025 | 26108 | FD4 - FIRE DISTRICT #4 | $418.10 | $418.10 | $0.00 | $0.00 | $836.20 | $0.00 |
| 2025 | 26108 | EMS4 - FIRE DIST #4 EMS | $116.00 | $116.00 | $0.00 | $0.00 | $232.00 | $0.00 |
| 2025 | 26108 | CEM1 - CEMETERY DIST #1 | $2.69 | $2.68 | $0.00 | $0.00 | $5.37 | $0.00 |
| 2025 | 26108 | JCCD - JC Conservation District | $2.55 | $2.55 | $0.00 | $0.00 | $5.10 | $0.00 |
| 2025 | 26108 | NWA - Noxious Weed Assessment | $2.15 | $2.15 | $0.00 | $0.00 | $4.30 | $0.00 |
| 2025 | 26108 | WAT - Clean Water District | $13.00 | $13.00 | $0.00 | $0.00 | $26.00 | $0.00 |
| 2025 | 26108 | TOTAL: | $1876.16 | $1876.04 | $0.00 | $0.00 | $3752.20 | $0.00 |
|
| 2025 | 26108 | $1876.16 | $1876.04 | $0.00 | $0.00 | $3752.20 | $0.00 |
Statement Details |
| 2024 | 26159 | STATE - STATE LEVY (SCHOOL) | $544.91 | $544.91 | $0.00 | $0.00 | $1089.82 | $0.00 |
| 2024 | 26159 | COUNTY - COUNTY LEVIES (CE, DD, VET, MH) | $233.19 | $233.15 | $0.00 | $0.00 | $466.34 | $0.00 |
| 2024 | 26159 | CONSERVE - CONSERVATION FUTURES | $6.99 | $6.99 | $0.00 | $0.00 | $13.98 | $0.00 |
| 2024 | 26159 | COROADS - COUNTY ROADS (ROADS, DIV TO CE) | $187.63 | $187.62 | $0.00 | $0.00 | $375.25 | $0.00 |
| 2024 | 26159 | PORTPT - PORT DISTRICT | $96.31 | $96.31 | $0.00 | $0.00 | $192.62 | $0.00 |
| 2024 | 26159 | PUD1 - PUD #1 | $15.32 | $15.31 | $0.00 | $0.00 | $30.63 | $0.00 |
| 2024 | 26159 | LIB1 - LIBRARY DIST #1 | $72.59 | $72.59 | $0.00 | $0.00 | $145.18 | $0.00 |
| 2024 | 26159 | HD2 - HOSP DIST #2 | $13.61 | $13.60 | $0.00 | $0.00 | $27.21 | $0.00 |
| 2024 | 26159 | SD46 - SCHOOL DIST #46 | $163.59 | $163.58 | $0.00 | $0.00 | $327.17 | $0.00 |
| 2024 | 26159 | FD4 - FIRE DISTRICT #4 | $422.58 | $422.57 | $0.00 | $0.00 | $845.15 | $0.00 |
| 2024 | 26159 | EMS4 - FIRE DIST #4 EMS | $117.76 | $117.76 | $0.00 | $0.00 | $235.52 | $0.00 |
| 2024 | 26159 | CEM1 - CEMETERY DIST #1 | $2.76 | $2.75 | $0.00 | $0.00 | $5.51 | $0.00 |
| 2024 | 26159 | JCCD - JC Conservation District | $2.55 | $2.55 | $0.00 | $0.00 | $5.10 | $0.00 |
| 2024 | 26159 | NWA - Noxious Weed Assessment | $2.15 | $2.15 | $0.00 | $0.00 | $4.30 | $0.00 |
| 2024 | 26159 | WAT - Clean Water District | $12.50 | $12.50 | $0.00 | $0.00 | $25.00 | $0.00 |
| 2024 | 26159 | TOTAL: | $1894.44 | $1894.34 | $0.00 | $0.00 | $3788.78 | $0.00 |
|
| 2024 | 26159 | $1894.44 | $1894.34 | $0.00 | $0.00 | $3788.78 | $0.00 |
Statement Details |
| 2023 | 26200 | STATE - STATE LEVY (SCHOOL) | $514.54 | $514.52 | $0.00 | $0.00 | $1029.06 | $0.00 |
| 2023 | 26200 | COUNTY - COUNTY LEVIES (CE, DD, VET, MH) | $224.54 | $224.51 | $0.00 | $0.00 | $449.05 | $0.00 |
| 2023 | 26200 | CONSERVE - CONSERVATION FUTURES | $6.74 | $6.73 | $0.00 | $0.00 | $13.47 | $0.00 |
| 2023 | 26200 | COROADS - COUNTY ROADS (ROADS, DIV TO CE) | $181.66 | $181.65 | $0.00 | $0.00 | $363.31 | $0.00 |
| 2023 | 26200 | PORTPT - PORT DISTRICT | $94.59 | $94.58 | $0.00 | $0.00 | $189.17 | $0.00 |
| 2023 | 26200 | PUD1 - PUD #1 | $14.89 | $14.88 | $0.00 | $0.00 | $29.77 | $0.00 |
| 2023 | 26200 | LIB1 - LIBRARY DIST #1 | $70.28 | $70.28 | $0.00 | $0.00 | $140.56 | $0.00 |
| 2023 | 26200 | HD2 - HOSP DIST #2 | $13.10 | $13.10 | $0.00 | $0.00 | $26.20 | $0.00 |
| 2023 | 26200 | SD46 - SCHOOL DIST #46 | $167.94 | $167.93 | $0.00 | $0.00 | $335.87 | $0.00 |
| 2023 | 26200 | FD4 - FIRE DISTRICT #4 | $279.24 | $279.24 | $0.00 | $0.00 | $558.48 | $0.00 |
| 2023 | 26200 | EMS4 - FIRE DIST #4 EMS | $79.42 | $79.41 | $0.00 | $0.00 | $158.83 | $0.00 |
| 2023 | 26200 | CEM1 - CEMETERY DIST #1 | $2.81 | $2.81 | $0.00 | $0.00 | $5.62 | $0.00 |
| 2023 | 26200 | JCCD - JC Conservation District | $2.55 | $2.55 | $0.00 | $0.00 | $5.10 | $0.00 |
| 2023 | 26200 | NWA - Noxious Weed Assessment | $2.15 | $2.15 | $0.00 | $0.00 | $4.30 | $0.00 |
| 2023 | 26200 | WAT - Clean Water District | $12.00 | $12.00 | $0.00 | $0.00 | $24.00 | $0.00 |
| 2023 | 26200 | TOTAL: | $1666.45 | $1666.34 | $0.00 | $0.00 | $3332.79 | $0.00 |
|
| 2023 | 26200 | $1666.45 | $1666.34 | $0.00 | $0.00 | $3332.79 | $0.00 |
Values
| (+) Improvement Homesite Value: | + | $0 | |
| (+) Improvement Non-Homesite Value: | + | $332,636 | |
| (+) Land Homesite Value: | + | $0 | |
| (+) Land Non-Homesite Value: | + | $165,769 | |
| (+) Curr Use (HS): | + | $0 | $0 |
| (+) Curr Use (NHS): | + | $0 | $0 |
| | | -------------------------- | |
| (=) Market Value: | = | $498,405 | |
| (–) Productivity Loss: | – | $0 | |
| | | -------------------------- | |
| (=) Subtotal: | = | $498,405 | |
| (+) Senior Appraised Value: | + | $0 | |
| (+) Non-Senior Appraised Value: | + | $498,405 | |
| | | -------------------------- | |
| (=) Total Appraised Value: | = | $498,405 | |
| (–) Senior Exemption Loss: | – | $0 | |
| (–) Exemption Loss: | – | $0 | |
| | | -------------------------- | |
| (=) Taxable Value: | = | $498,405 | |
Taxing Jurisdiction
| Owner: | STARR MARSHALL LIVING TRUST | | |
| % Ownership: | 100.0000000000% | | |
| Total Value: | $498,405 | | |
| Tax Area: | 0441 - 1-46F4E4H2C1L1P2 |
| CE | COUNTY CURRENT EXPENSE | 0.9034619479 | $498,405 | $498,405 | $450.29 | | |
| CNTYDD | DEVELOPMENTAL DISABILITIES | 0.0052121823 | $498,405 | $498,405 | $2.60 | | |
| CNTYVET | VETERANS RELIEF | 0.0052777810 | $498,405 | $498,405 | $2.63 | | |
| MENTAL | MENTAL HEALTH | 0.0052121823 | $498,405 | $498,405 | $2.60 | | |
| ROADS | COUNTY ROADS | 0.7415066410 | $498,405 | $498,405 | $369.57 | | |
| ROADSCU | COUNTY ROADS TO CUR EXP | 0.0000000000 | $498,405 | $498,405 | $0.00 | | |
| HOSP2CASH | HOSP DIST #2 GENERAL | 0.0536075306 | $498,405 | $498,405 | $26.72 | | |
| SCH46MO | SCHOOL DIST #46 EP & O | 0.6890207067 | $498,405 | $498,405 | $343.41 | | |
| CEM1 | CEMETERY DIST #1 GENERAL | 0.0107168292 | $498,405 | $498,405 | $5.34 | | |
| CONSERVE | CONSERVATION FUTURES | 0.0275621078 | $498,405 | $498,405 | $13.74 | | |
| EMS4 | FIRE DIST #4 EMS | 0.4644216158 | $498,405 | $498,405 | $231.47 | | |
| FD4 | FIRE DIST #4 GENERAL | 1.3939598390 | $498,405 | $498,405 | $694.76 | | |
| FD4BOND | FIRE DIST #4 BOND 2019 | 0.2748466981 | $498,405 | $498,405 | $136.98 | | |
| LIB1 | LIBRARY DIST #1 GENERAL | 0.2868827388 | $498,405 | $498,405 | $142.98 | | |
| PORTPT | PORT OF PT GENERAL | 0.1134941229 | $498,405 | $498,405 | $56.57 | | |
| PORTPTIDD | PORT OF PT IDD 2019 | 0.2577346692 | $498,405 | $498,405 | $128.46 | | |
| PUD1 | PUD #1 GENERAL | 0.0597888892 | $498,405 | $498,405 | $29.80 | | |
| STATE | STATE SCHOOL PART 1 | 1.4940692947 | $498,405 | $498,405 | $744.65 | | |
| STATE2 | STATE SCHOOL PART 2 | 0.8050170049 | $498,405 | $498,405 | $401.22 | | |
| | Total Tax Rate: | 7.5917927814 | | | | | |
| | | | | Taxes w/Current Exemptions: | $3,783.79 | | |
| | | | | Taxes w/o Exemptions: | $3,783.79 | | |
Improvement / Building
| Improvement #1: | Residential Bldg | State Code: | 11 | 1296.0 sqft | Value: | $332,636 |
| Bathrooms (#): | 2 (FULL) | Bedrooms (#): | 2 | | Exterior Wall: | SI/ST | Fireplace: | WD ST-GOOD | | Floor Construction: | FRAME | Foundation: | CONPR | | Heating/Cooling: | F/A | Inside Verify: | YES | | Roof Cover: | METAL |   |   |
|
| | Type | Description | Class CD | Sub Class CD | Year Built | Area |
| | MA | Main Area | 4 | 15SF | 2007 | 1296.0 |
| | HLOFT | House Loft | 4 | 15SF | 2007 | 506.0 |
| | BSMTU | House basement unfinished | 2 | 15SF | 2007 | 592.0 |
| | HWPOR | House Wood Porch | 4 | 15SF | 2007 | 124.0 |
| | HDECK | House Deck | 4 | 15SF | 2007 | 760.0 |
| | PATIO | House Patio | 4 | 15SF | 2007 | 200.0 |
Sketch
Property Image
Land
| 1 | 9301F | | 0.0000 | 0.00 | 0.00 | 0.00 | 0.00 | $1,444 | $0 |
| 2 | 1250-1115F | | 0.0000 | 0.00 | 0.00 | 0.00 | 0.00 | $164,325 | $0 |
Roll Value History
| 2026 | N/A | N/A | N/A | N/A | N/A |
| 2025 | $332,636 | $165,769 | $0 | $498,405 | $498,405 |
| 2024 | $318,174 | $157,875 | $0 | $476,049 | $476,049 |
| 2023 | $318,174 | $152,875 | $0 | $471,049 | $471,049 |
| 2022 | $289,249 | $147,875 | $0 | $437,124 | $437,124 |
Deed and Sales History
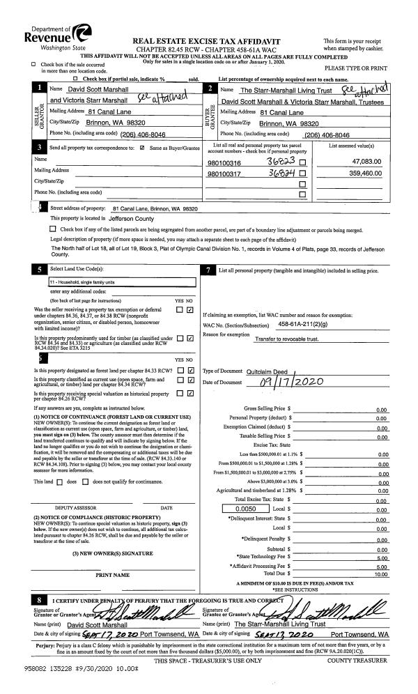
| 1 | 09/17/2020 | QCD | Quit Claim Deed | DAVID SCOTT MARSHALL | STARR MARSHALL LIVING TRUST | | | | 135228 | |
| 2 | 07/06/2007 | QCD | Quit Claim Deed | MARSHALL, DAVID SCOTT | MARSHALL, DAVID S/VICTORIA S | | | $0.00 | 109659 | 0 |
| 3 | 12/31/2002 | SWD | Statutory Warranty Deed | ANDRESEN & KAISER | MARSHALL, DAVID S | 0 | 0 | $0.00 | 96341 | 0 |
Payout Agreement
| No payout information available.. |