Property
Account |
| Property ID: | 36828 | Abbreviated Legal Description: | OLYMPIC CANAL ADDITION 1 BLK 3 LOT 23 TGTH WITH COMMUNITY TIDELAND TR FRTGING |
| Parcel # / Geo ID: | 980100321 | Agent Code: | |
| Type: | Real | | |
| Tax Area: | 0441 - 1-46F4E4H2C1L1P2 | Land Use Code | 11 |
| Open Space: | N | DFL | N |
| Historic Property: | N | Remodel Property: | N |
| Multi-Family Redevelopment: | N | | |
| Township: | 25N | Section: | 21 |
| Range: | 2W |
Location |
| Address: | 41 CANAL LN BRINNON, WA 98320 | Mapsco: | 011/039 |
| Neighborhood: | OLYMPIC CANAL TRACTS | Map ID: | |
| Neighborhood CD: | 1250 |
Owner |
| Name: | HOOD CANAL BEACH HOUSE PROPERTY LLC | Owner ID: | 105397 |
| Mailing Address: | 8735 22ND AVE NW SEATTLE, WA 98117-3715 | % Ownership: | 100.0000000000% |
| | | Exemptions: | |
Pay Tax Due
Select the appropriate checkbox next to the year to be paid. Multiple years may be selected.
*Convenience Fee not included
Taxes and Assessment Details
Property Tax Information as of
03/11/2026
Click on "Statement Details" to expand or collapse a tax statement.
* Please enter a valid date ** Please enter a valid date *
Statement Details |
| 2026 | 26044 | STATE - STATE LEVY (SCHOOL) | $374.82 | $374.81 | $0.00 | $0.00 | $0.00 | $749.63 |
| 2026 | 26044 | COUNTY - COUNTY LEVIES (CE, DD, VET, MH) | $149.85 | $149.85 | $0.00 | $0.00 | $0.00 | $299.70 |
| 2026 | 26044 | CONSERVE - CONSERVATION FUTURES | $4.50 | $4.49 | $0.00 | $0.00 | $0.00 | $8.99 |
| 2026 | 26044 | COROADS - COUNTY ROADS (ROADS, DIV TO CE) | $120.89 | $120.88 | $0.00 | $0.00 | $0.00 | $241.77 |
| 2026 | 26044 | PORTPT - PORT DISTRICT | $60.53 | $60.52 | $0.00 | $0.00 | $0.00 | $121.05 |
| 2026 | 26044 | PUD1 - PUD #1 | $9.75 | $9.74 | $0.00 | $0.00 | $0.00 | $19.49 |
| 2026 | 26044 | LIB1 - LIBRARY DIST #1 | $46.77 | $46.77 | $0.00 | $0.00 | $0.00 | $93.54 |
| 2026 | 26044 | HD2 - HOSP DIST #2 | $8.74 | $8.74 | $0.00 | $0.00 | $0.00 | $17.48 |
| 2026 | 26044 | SD46 - SCHOOL DIST #46 | $112.33 | $112.33 | $0.00 | $0.00 | $0.00 | $224.66 |
| 2026 | 26044 | FD4 - FIRE DISTRICT #4 | $272.07 | $272.06 | $0.00 | $0.00 | $0.00 | $544.13 |
| 2026 | 26044 | EMS4 - FIRE DIST #4 EMS | $75.72 | $75.71 | $0.00 | $0.00 | $0.00 | $151.43 |
| 2026 | 26044 | CEM1 - CEMETERY DIST #1 | $1.75 | $1.74 | $0.00 | $0.00 | $0.00 | $3.49 |
| 2026 | 26044 | JCCD - JC Conservation District | $2.55 | $2.55 | $0.00 | $0.00 | $0.00 | $5.10 |
| 2026 | 26044 | NWA - Noxious Weed Assessment | $2.98 | $2.97 | $0.00 | $0.00 | $0.00 | $5.95 |
| 2026 | 26044 | OSS - On Site Septic | $23.10 | $23.10 | $0.00 | $0.00 | $0.00 | $46.20 |
| 2026 | 26044 | WAT - Clean Water District | $13.00 | $13.00 | $0.00 | $0.00 | $0.00 | $26.00 |
| 2026 | 26044 | TOTAL: | $1279.35 | $1279.26 | $0.00 | $0.00 | $0.00 | $2558.61 |
|
| 2026 | 26044 | $1279.35 | $1279.26 | $0.00 | $0.00 | $0.00 | $2558.61 |
Statement Details |
| 2025 | 26112 | STATE - STATE LEVY (SCHOOL) | $373.13 | $373.12 | $0.00 | $0.00 | $746.25 | $0.00 |
| 2025 | 26112 | COUNTY - COUNTY LEVIES (CE, DD, VET, MH) | $146.73 | $146.73 | $0.00 | $0.00 | $293.46 | $0.00 |
| 2025 | 26112 | CONSERVE - CONSERVATION FUTURES | $4.40 | $4.40 | $0.00 | $0.00 | $8.80 | $0.00 |
| 2025 | 26112 | COROADS - COUNTY ROADS (ROADS, DIV TO CE) | $117.56 | $117.55 | $0.00 | $0.00 | $235.11 | $0.00 |
| 2025 | 26112 | PORTPT - PORT DISTRICT | $59.88 | $59.86 | $0.00 | $0.00 | $119.74 | $0.00 |
| 2025 | 26112 | PUD1 - PUD #1 | $9.60 | $9.60 | $0.00 | $0.00 | $19.20 | $0.00 |
| 2025 | 26112 | LIB1 - LIBRARY DIST #1 | $45.48 | $45.48 | $0.00 | $0.00 | $90.96 | $0.00 |
| 2025 | 26112 | HD2 - HOSP DIST #2 | $8.56 | $8.56 | $0.00 | $0.00 | $17.12 | $0.00 |
| 2025 | 26112 | SD46 - SCHOOL DIST #46 | $98.62 | $98.62 | $0.00 | $0.00 | $197.24 | $0.00 |
| 2025 | 26112 | FD4 - FIRE DISTRICT #4 | $273.31 | $273.31 | $0.00 | $0.00 | $546.62 | $0.00 |
| 2025 | 26112 | EMS4 - FIRE DIST #4 EMS | $75.83 | $75.83 | $0.00 | $0.00 | $151.66 | $0.00 |
| 2025 | 26112 | CEM1 - CEMETERY DIST #1 | $1.76 | $1.75 | $0.00 | $0.00 | $3.51 | $0.00 |
| 2025 | 26112 | JCCD - JC Conservation District | $2.55 | $2.55 | $0.00 | $0.00 | $5.10 | $0.00 |
| 2025 | 26112 | NWA - Noxious Weed Assessment | $2.15 | $2.15 | $0.00 | $0.00 | $4.30 | $0.00 |
| 2025 | 26112 | OSS - On Site Septic | $21.50 | $21.50 | $0.00 | $0.00 | $43.00 | $0.00 |
| 2025 | 26112 | WAT - Clean Water District | $13.00 | $13.00 | $0.00 | $0.00 | $26.00 | $0.00 |
| 2025 | 26112 | TOTAL: | $1254.06 | $1254.01 | $0.00 | $0.00 | $2508.07 | $0.00 |
|
| 2025 | 26112 | $1254.06 | $1254.01 | $0.00 | $0.00 | $2508.07 | $0.00 |
Statement Details |
| 2024 | 26163 | STATE - STATE LEVY (SCHOOL) | $354.21 | $354.21 | $0.00 | $0.00 | $708.42 | $0.00 |
| 2024 | 26163 | COUNTY - COUNTY LEVIES (CE, DD, VET, MH) | $151.58 | $151.55 | $0.00 | $0.00 | $303.13 | $0.00 |
| 2024 | 26163 | CONSERVE - CONSERVATION FUTURES | $4.55 | $4.54 | $0.00 | $0.00 | $9.09 | $0.00 |
| 2024 | 26163 | COROADS - COUNTY ROADS (ROADS, DIV TO CE) | $121.96 | $121.96 | $0.00 | $0.00 | $243.92 | $0.00 |
| 2024 | 26163 | PORTPT - PORT DISTRICT | $62.61 | $62.60 | $0.00 | $0.00 | $125.21 | $0.00 |
| 2024 | 26163 | PUD1 - PUD #1 | $9.96 | $9.95 | $0.00 | $0.00 | $19.91 | $0.00 |
| 2024 | 26163 | LIB1 - LIBRARY DIST #1 | $47.19 | $47.18 | $0.00 | $0.00 | $94.37 | $0.00 |
| 2024 | 26163 | HD2 - HOSP DIST #2 | $8.85 | $8.84 | $0.00 | $0.00 | $17.69 | $0.00 |
| 2024 | 26163 | SD46 - SCHOOL DIST #46 | $106.34 | $106.33 | $0.00 | $0.00 | $212.67 | $0.00 |
| 2024 | 26163 | FD4 - FIRE DISTRICT #4 | $274.69 | $274.68 | $0.00 | $0.00 | $549.37 | $0.00 |
| 2024 | 26163 | EMS4 - FIRE DIST #4 EMS | $76.55 | $76.55 | $0.00 | $0.00 | $153.10 | $0.00 |
| 2024 | 26163 | CEM1 - CEMETERY DIST #1 | $1.79 | $1.79 | $0.00 | $0.00 | $3.58 | $0.00 |
| 2024 | 26163 | JCCD - JC Conservation District | $2.55 | $2.55 | $0.00 | $0.00 | $5.10 | $0.00 |
| 2024 | 26163 | NWA - Noxious Weed Assessment | $2.15 | $2.15 | $0.00 | $0.00 | $4.30 | $0.00 |
| 2024 | 26163 | OSS - On Site Septic | $21.00 | $21.00 | $0.00 | $0.00 | $42.00 | $0.00 |
| 2024 | 26163 | WAT - Clean Water District | $12.50 | $12.50 | $0.00 | $0.00 | $25.00 | $0.00 |
| 2024 | 26163 | TOTAL: | $1258.48 | $1258.38 | $0.00 | $0.00 | $2516.86 | $0.00 |
|
| 2024 | 26163 | $1258.48 | $1258.38 | $0.00 | $0.00 | $2516.86 | $0.00 |
Statement Details |
| 2023 | 26204 | STATE - STATE LEVY (SCHOOL) | $338.13 | $338.12 | $0.00 | $0.00 | $676.25 | $0.00 |
| 2023 | 26204 | COUNTY - COUNTY LEVIES (CE, DD, VET, MH) | $147.56 | $147.55 | $0.00 | $0.00 | $295.11 | $0.00 |
| 2023 | 26204 | CONSERVE - CONSERVATION FUTURES | $4.43 | $4.42 | $0.00 | $0.00 | $8.85 | $0.00 |
| 2023 | 26204 | COROADS - COUNTY ROADS (ROADS, DIV TO CE) | $119.38 | $119.37 | $0.00 | $0.00 | $238.75 | $0.00 |
| 2023 | 26204 | PORTPT - PORT DISTRICT | $62.16 | $62.15 | $0.00 | $0.00 | $124.31 | $0.00 |
| 2023 | 26204 | PUD1 - PUD #1 | $9.78 | $9.78 | $0.00 | $0.00 | $19.56 | $0.00 |
| 2023 | 26204 | LIB1 - LIBRARY DIST #1 | $46.19 | $46.18 | $0.00 | $0.00 | $92.37 | $0.00 |
| 2023 | 26204 | HD2 - HOSP DIST #2 | $8.61 | $8.61 | $0.00 | $0.00 | $17.22 | $0.00 |
| 2023 | 26204 | SD46 - SCHOOL DIST #46 | $110.36 | $110.36 | $0.00 | $0.00 | $220.72 | $0.00 |
| 2023 | 26204 | FD4 - FIRE DISTRICT #4 | $183.51 | $183.50 | $0.00 | $0.00 | $367.01 | $0.00 |
| 2023 | 26204 | EMS4 - FIRE DIST #4 EMS | $52.19 | $52.18 | $0.00 | $0.00 | $104.37 | $0.00 |
| 2023 | 26204 | CEM1 - CEMETERY DIST #1 | $1.85 | $1.84 | $0.00 | $0.00 | $3.69 | $0.00 |
| 2023 | 26204 | JCCD - JC Conservation District | $2.55 | $2.55 | $0.00 | $0.00 | $5.10 | $0.00 |
| 2023 | 26204 | NWA - Noxious Weed Assessment | $2.15 | $2.15 | $0.00 | $0.00 | $4.30 | $0.00 |
| 2023 | 26204 | OSS - On Site Septic | $20.50 | $20.50 | $0.00 | $0.00 | $41.00 | $0.00 |
| 2023 | 26204 | WAT - Clean Water District | $12.00 | $12.00 | $0.00 | $0.00 | $24.00 | $0.00 |
| 2023 | 26204 | TOTAL: | $1121.35 | $1121.26 | $0.00 | $0.00 | $2242.61 | $0.00 |
|
| 2023 | 26204 | $1121.35 | $1121.26 | $0.00 | $0.00 | $2242.61 | $0.00 |
Values
| (+) Improvement Homesite Value: | + | $0 | |
| (+) Improvement Non-Homesite Value: | + | $160,289 | |
| (+) Land Homesite Value: | + | $0 | |
| (+) Land Non-Homesite Value: | + | $165,769 | |
| (+) Curr Use (HS): | + | $0 | $0 |
| (+) Curr Use (NHS): | + | $0 | $0 |
| | | -------------------------- | |
| (=) Market Value: | = | $326,058 | |
| (–) Productivity Loss: | – | $0 | |
| | | -------------------------- | |
| (=) Subtotal: | = | $326,058 | |
| (+) Senior Appraised Value: | + | $0 | |
| (+) Non-Senior Appraised Value: | + | $326,058 | |
| | | -------------------------- | |
| (=) Total Appraised Value: | = | $326,058 | |
| (–) Senior Exemption Loss: | – | $0 | |
| (–) Exemption Loss: | – | $0 | |
| | | -------------------------- | |
| (=) Taxable Value: | = | $326,058 | |
Taxing Jurisdiction
| Owner: | HOOD CANAL BEACH HOUSE PROPERTY LLC | | |
| % Ownership: | 100.0000000000% | | |
| Total Value: | $326,058 | | |
| Tax Area: | 0441 - 1-46F4E4H2C1L1P2 |
| CE | COUNTY CURRENT EXPENSE | 0.9034619479 | $326,058 | $326,058 | $294.58 | | |
| CNTYDD | DEVELOPMENTAL DISABILITIES | 0.0052121823 | $326,058 | $326,058 | $1.70 | | |
| CNTYVET | VETERANS RELIEF | 0.0052777810 | $326,058 | $326,058 | $1.72 | | |
| MENTAL | MENTAL HEALTH | 0.0052121823 | $326,058 | $326,058 | $1.70 | | |
| ROADS | COUNTY ROADS | 0.7415066410 | $326,058 | $326,058 | $241.77 | | |
| ROADSCU | COUNTY ROADS TO CUR EXP | 0.0000000000 | $326,058 | $326,058 | $0.00 | | |
| HOSP2CASH | HOSP DIST #2 GENERAL | 0.0536075306 | $326,058 | $326,058 | $17.48 | | |
| SCH46MO | SCHOOL DIST #46 EP & O | 0.6890207067 | $326,058 | $326,058 | $224.66 | | |
| CEM1 | CEMETERY DIST #1 GENERAL | 0.0107168292 | $326,058 | $326,058 | $3.49 | | |
| CONSERVE | CONSERVATION FUTURES | 0.0275621078 | $326,058 | $326,058 | $8.99 | | |
| EMS4 | FIRE DIST #4 EMS | 0.4644216158 | $326,058 | $326,058 | $151.43 | | |
| FD4 | FIRE DIST #4 GENERAL | 1.3939598390 | $326,058 | $326,058 | $454.51 | | |
| FD4BOND | FIRE DIST #4 BOND 2019 | 0.2748466981 | $326,058 | $326,058 | $89.62 | | |
| LIB1 | LIBRARY DIST #1 GENERAL | 0.2868827388 | $326,058 | $326,058 | $93.54 | | |
| PORTPT | PORT OF PT GENERAL | 0.1134941229 | $326,058 | $326,058 | $37.01 | | |
| PORTPTIDD | PORT OF PT IDD 2019 | 0.2577346692 | $326,058 | $326,058 | $84.04 | | |
| PUD1 | PUD #1 GENERAL | 0.0597888892 | $326,058 | $326,058 | $19.49 | | |
| STATE | STATE SCHOOL PART 1 | 1.4940692947 | $326,058 | $326,058 | $487.15 | | |
| STATE2 | STATE SCHOOL PART 2 | 0.8050170049 | $326,058 | $326,058 | $262.48 | | |
| | Total Tax Rate: | 7.5917927814 | | | | | |
| | | | | Taxes w/Current Exemptions: | $2,475.36 | | |
| | | | | Taxes w/o Exemptions: | $2,475.36 | | |
Improvement / Building
| Improvement #1: | Residential Bldg | State Code: | 11 | 864.0 sqft | Value: | $160,289 |
| Bathrooms (#): | 1 (FULL) | Bedrooms (#): | 1 | | Exterior Wall: | PL/T1 | Fireplace: | WD ST-GOOD | | Floor Construction: | FRAME | Foundation: | CONPR | | Heating/Cooling: | ELBB | Inside Verify: | NO | | Roof Cover: | COMP |   |   |
|
| | Type | Description | Class CD | Sub Class CD | Year Built | Area |
| | MA | Main Area | 3 | 15SF | 1978 | 864.0 |
| | HWPOR | House Wood Porch | 3 | 15SF | 1978 | 308.0 |
| | HDECK | House Deck | 3 | 15SF | 1978 | 192.0 |
| | HLOFT | House Loft | 3 | 15SF | 1978 | 448.0 |
Sketch
Property Image
Land
| 1 | 9301F | | 0.0000 | 0.00 | 0.00 | 0.00 | 0.00 | $1,444 | $0 |
| 2 | 1250-1115F | | 0.0000 | 0.00 | 0.00 | 0.00 | 0.00 | $164,325 | $0 |
Roll Value History
| 2026 | N/A | N/A | N/A | N/A | N/A |
| 2025 | $160,289 | $165,769 | $0 | $326,058 | $326,058 |
| 2024 | $153,320 | $157,875 | $0 | $311,195 | $311,195 |
| 2023 | $153,320 | $152,875 | $0 | $306,195 | $306,195 |
| 2022 | $139,382 | $147,875 | $0 | $287,257 | $287,257 |
Deed and Sales History
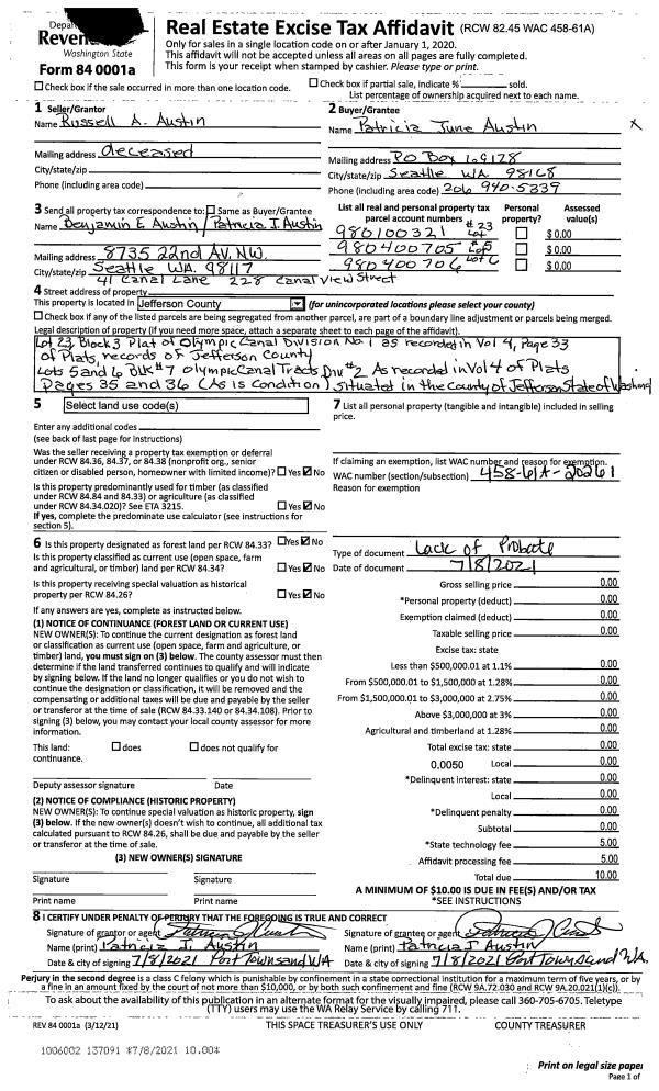
| 1 | 07/08/2021 | QCD | Quit Claim Deed | PATRICIA J AUSTIN | HOOD CANAL BEACH HOUSE PROPERTY LLC | | | | 137432 | |
| 2 | 07/08/2021 | LOP | Lack of Probate | RUSSELL A AUSTIN | PATRICIA J AUSTIN | | | | 137091 | |
Payout Agreement
| No payout information available.. |