Property
Account |
| Property ID: | 36843 | Abbreviated Legal Description: | OLYMPIC CANAL ADDITION 2 BLK 7 LOT 7 |
| Parcel # / Geo ID: | 980400707 | Agent Code: | |
| Type: | Real | | |
| Tax Area: | 0441 - 1-46F4E4H2C1L1P2 | Land Use Code | 11 |
| Open Space: | N | DFL | N |
| Historic Property: | N | Remodel Property: | N |
| Multi-Family Redevelopment: | N | | |
| Township: | 25N | Section: | 21 |
| Range: | 2W |
Location |
| Address: | 230 CANAL VIEW ST BRINNON, WA 98320 | Mapsco: | 012/013 |
| Neighborhood: | OLYMPIC CANAL TRACTS | Map ID: | |
| Neighborhood CD: | 1250 |
Owner |
| Name: | AMBER LITZ | Owner ID: | 110996 |
| Mailing Address: | 230 CANAL VIEW ST BRINNON, WA 98320-9510 | % Ownership: | 100.0000000000% |
| | | Exemptions: | |
Pay Tax Due
Select the appropriate checkbox next to the year to be paid. Multiple years may be selected.
*Convenience Fee not included
Taxes and Assessment Details
Property Tax Information as of
03/13/2026
Click on "Statement Details" to expand or collapse a tax statement.
* Please enter a valid date ** Please enter a valid date *
Statement Details |
| 2026 | 26058 | STATE - STATE LEVY (SCHOOL) | $252.89 | $252.89 | $0.00 | $0.00 | $0.00 | $505.78 |
| 2026 | 26058 | COUNTY - COUNTY LEVIES (CE, DD, VET, MH) | $101.12 | $101.09 | $0.00 | $0.00 | $0.00 | $202.21 |
| 2026 | 26058 | CONSERVE - CONSERVATION FUTURES | $3.03 | $3.03 | $0.00 | $0.00 | $0.00 | $6.06 |
| 2026 | 26058 | COROADS - COUNTY ROADS (ROADS, DIV TO CE) | $81.56 | $81.56 | $0.00 | $0.00 | $0.00 | $163.12 |
| 2026 | 26058 | PORTPT - PORT DISTRICT | $40.84 | $40.83 | $0.00 | $0.00 | $0.00 | $81.67 |
| 2026 | 26058 | PUD1 - PUD #1 | $6.58 | $6.57 | $0.00 | $0.00 | $0.00 | $13.15 |
| 2026 | 26058 | LIB1 - LIBRARY DIST #1 | $31.56 | $31.55 | $0.00 | $0.00 | $0.00 | $63.11 |
| 2026 | 26058 | HD2 - HOSP DIST #2 | $5.90 | $5.89 | $0.00 | $0.00 | $0.00 | $11.79 |
| 2026 | 26058 | SD46 - SCHOOL DIST #46 | $75.79 | $75.79 | $0.00 | $0.00 | $0.00 | $151.58 |
| 2026 | 26058 | FD4 - FIRE DISTRICT #4 | $183.56 | $183.56 | $0.00 | $0.00 | $0.00 | $367.12 |
| 2026 | 26058 | EMS4 - FIRE DIST #4 EMS | $51.09 | $51.08 | $0.00 | $0.00 | $0.00 | $102.17 |
| 2026 | 26058 | CEM1 - CEMETERY DIST #1 | $1.18 | $1.18 | $0.00 | $0.00 | $0.00 | $2.36 |
| 2026 | 26058 | JCCD - JC Conservation District | $2.55 | $2.55 | $0.00 | $0.00 | $0.00 | $5.10 |
| 2026 | 26058 | NWA - Noxious Weed Assessment | $2.98 | $2.97 | $0.00 | $0.00 | $0.00 | $5.95 |
| 2026 | 26058 | OSS - On Site Septic | $23.10 | $23.10 | $0.00 | $0.00 | $0.00 | $46.20 |
| 2026 | 26058 | WAT - Clean Water District | $13.00 | $13.00 | $0.00 | $0.00 | $0.00 | $26.00 |
| 2026 | 26058 | TOTAL: | $876.73 | $876.64 | $0.00 | $0.00 | $0.00 | $1753.37 |
|
| 2026 | 26058 | $876.73 | $876.64 | $0.00 | $0.00 | $0.00 | $1753.37 |
Statement Details |
| 2025 | 26126 | STATE - STATE LEVY (SCHOOL) | $252.07 | $252.07 | $0.00 | $0.00 | $504.14 | $0.00 |
| 2025 | 26126 | COUNTY - COUNTY LEVIES (CE, DD, VET, MH) | $99.13 | $99.12 | $0.00 | $0.00 | $198.25 | $0.00 |
| 2025 | 26126 | CONSERVE - CONSERVATION FUTURES | $2.97 | $2.97 | $0.00 | $0.00 | $5.94 | $0.00 |
| 2025 | 26126 | COROADS - COUNTY ROADS (ROADS, DIV TO CE) | $79.42 | $79.41 | $0.00 | $0.00 | $158.83 | $0.00 |
| 2025 | 26126 | PORTPT - PORT DISTRICT | $40.45 | $40.45 | $0.00 | $0.00 | $80.90 | $0.00 |
| 2025 | 26126 | PUD1 - PUD #1 | $6.49 | $6.48 | $0.00 | $0.00 | $12.97 | $0.00 |
| 2025 | 26126 | LIB1 - LIBRARY DIST #1 | $30.73 | $30.72 | $0.00 | $0.00 | $61.45 | $0.00 |
| 2025 | 26126 | HD2 - HOSP DIST #2 | $5.79 | $5.78 | $0.00 | $0.00 | $11.57 | $0.00 |
| 2025 | 26126 | SD46 - SCHOOL DIST #46 | $66.63 | $66.62 | $0.00 | $0.00 | $133.25 | $0.00 |
| 2025 | 26126 | FD4 - FIRE DISTRICT #4 | $184.65 | $184.64 | $0.00 | $0.00 | $369.29 | $0.00 |
| 2025 | 26126 | EMS4 - FIRE DIST #4 EMS | $51.23 | $51.23 | $0.00 | $0.00 | $102.46 | $0.00 |
| 2025 | 26126 | CEM1 - CEMETERY DIST #1 | $1.19 | $1.18 | $0.00 | $0.00 | $2.37 | $0.00 |
| 2025 | 26126 | JCCD - JC Conservation District | $2.55 | $2.55 | $0.00 | $0.00 | $5.10 | $0.00 |
| 2025 | 26126 | NWA - Noxious Weed Assessment | $2.15 | $2.15 | $0.00 | $0.00 | $4.30 | $0.00 |
| 2025 | 26126 | OSS - On Site Septic | $21.50 | $21.50 | $0.00 | $0.00 | $43.00 | $0.00 |
| 2025 | 26126 | WAT - Clean Water District | $13.00 | $13.00 | $0.00 | $0.00 | $26.00 | $0.00 |
| 2025 | 26126 | TOTAL: | $859.95 | $859.87 | $0.00 | $0.00 | $1719.82 | $0.00 |
|
| 2025 | 26126 | $859.95 | $859.87 | $0.00 | $0.00 | $1719.82 | $0.00 |
Statement Details |
| 2024 | 26177 | STATE - STATE LEVY (SCHOOL) | $237.42 | $237.41 | $0.00 | $0.00 | $474.83 | $0.00 |
| 2024 | 26177 | COUNTY - COUNTY LEVIES (CE, DD, VET, MH) | $101.61 | $101.58 | $0.00 | $0.00 | $203.19 | $0.00 |
| 2024 | 26177 | CONSERVE - CONSERVATION FUTURES | $3.05 | $3.04 | $0.00 | $0.00 | $6.09 | $0.00 |
| 2024 | 26177 | COROADS - COUNTY ROADS (ROADS, DIV TO CE) | $81.75 | $81.75 | $0.00 | $0.00 | $163.50 | $0.00 |
| 2024 | 26177 | PORTPT - PORT DISTRICT | $41.97 | $41.96 | $0.00 | $0.00 | $83.93 | $0.00 |
| 2024 | 26177 | PUD1 - PUD #1 | $6.68 | $6.67 | $0.00 | $0.00 | $13.35 | $0.00 |
| 2024 | 26177 | LIB1 - LIBRARY DIST #1 | $31.63 | $31.62 | $0.00 | $0.00 | $63.25 | $0.00 |
| 2024 | 26177 | HD2 - HOSP DIST #2 | $5.93 | $5.93 | $0.00 | $0.00 | $11.86 | $0.00 |
| 2024 | 26177 | SD46 - SCHOOL DIST #46 | $71.28 | $71.27 | $0.00 | $0.00 | $142.55 | $0.00 |
| 2024 | 26177 | FD4 - FIRE DISTRICT #4 | $184.12 | $184.11 | $0.00 | $0.00 | $368.23 | $0.00 |
| 2024 | 26177 | EMS4 - FIRE DIST #4 EMS | $51.31 | $51.31 | $0.00 | $0.00 | $102.62 | $0.00 |
| 2024 | 26177 | CEM1 - CEMETERY DIST #1 | $1.20 | $1.20 | $0.00 | $0.00 | $2.40 | $0.00 |
| 2024 | 26177 | JCCD - JC Conservation District | $2.55 | $2.55 | $0.00 | $0.00 | $5.10 | $0.00 |
| 2024 | 26177 | NWA - Noxious Weed Assessment | $2.15 | $2.15 | $0.00 | $0.00 | $4.30 | $0.00 |
| 2024 | 26177 | OSS - On Site Septic | $21.00 | $21.00 | $0.00 | $0.00 | $42.00 | $0.00 |
| 2024 | 26177 | WAT - Clean Water District | $12.50 | $12.50 | $0.00 | $0.00 | $25.00 | $0.00 |
| 2024 | 26177 | TOTAL: | $856.15 | $856.05 | $0.00 | $0.00 | $1712.20 | $0.00 |
|
| 2024 | 26177 | $856.15 | $856.05 | $0.00 | $0.00 | $1712.20 | $0.00 |
Statement Details |
| 2023 | 26218 | STATE - STATE LEVY (SCHOOL) | $217.91 | $217.90 | $0.00 | $0.00 | $435.81 | $0.00 |
| 2023 | 26218 | COUNTY - COUNTY LEVIES (CE, DD, VET, MH) | $95.09 | $95.08 | $0.00 | $0.00 | $190.17 | $0.00 |
| 2023 | 26218 | CONSERVE - CONSERVATION FUTURES | $2.85 | $2.85 | $0.00 | $0.00 | $5.70 | $0.00 |
| 2023 | 26218 | COROADS - COUNTY ROADS (ROADS, DIV TO CE) | $76.94 | $76.92 | $0.00 | $0.00 | $153.86 | $0.00 |
| 2023 | 26218 | PORTPT - PORT DISTRICT | $40.06 | $40.05 | $0.00 | $0.00 | $80.11 | $0.00 |
| 2023 | 26218 | PUD1 - PUD #1 | $6.31 | $6.30 | $0.00 | $0.00 | $12.61 | $0.00 |
| 2023 | 26218 | LIB1 - LIBRARY DIST #1 | $29.77 | $29.76 | $0.00 | $0.00 | $59.53 | $0.00 |
| 2023 | 26218 | HD2 - HOSP DIST #2 | $5.55 | $5.54 | $0.00 | $0.00 | $11.09 | $0.00 |
| 2023 | 26218 | SD46 - SCHOOL DIST #46 | $71.12 | $71.12 | $0.00 | $0.00 | $142.24 | $0.00 |
| 2023 | 26218 | FD4 - FIRE DISTRICT #4 | $118.26 | $118.25 | $0.00 | $0.00 | $236.51 | $0.00 |
| 2023 | 26218 | EMS4 - FIRE DIST #4 EMS | $33.63 | $33.63 | $0.00 | $0.00 | $67.26 | $0.00 |
| 2023 | 26218 | CEM1 - CEMETERY DIST #1 | $1.19 | $1.19 | $0.00 | $0.00 | $2.38 | $0.00 |
| 2023 | 26218 | JCCD - JC Conservation District | $2.55 | $2.55 | $0.00 | $0.00 | $5.10 | $0.00 |
| 2023 | 26218 | NWA - Noxious Weed Assessment | $2.15 | $2.15 | $0.00 | $0.00 | $4.30 | $0.00 |
| 2023 | 26218 | OSS - On Site Septic | $20.50 | $20.50 | $0.00 | $0.00 | $41.00 | $0.00 |
| 2023 | 26218 | WAT - Clean Water District | $12.00 | $12.00 | $0.00 | $0.00 | $24.00 | $0.00 |
| 2023 | 26218 | TOTAL: | $735.88 | $735.79 | $0.00 | $0.00 | $1471.67 | $0.00 |
|
| 2023 | 26218 | $735.88 | $735.79 | $0.00 | $0.00 | $1471.67 | $0.00 |
Values
| (+) Improvement Homesite Value: | + | $0 | |
| (+) Improvement Non-Homesite Value: | + | $185,842 | |
| (+) Land Homesite Value: | + | $0 | |
| (+) Land Non-Homesite Value: | + | $48,300 | |
| (+) Curr Use (HS): | + | $0 | $0 |
| (+) Curr Use (NHS): | + | $0 | $0 |
| | | -------------------------- | |
| (=) Market Value: | = | $234,142 | |
| (–) Productivity Loss: | – | $0 | |
| | | -------------------------- | |
| (=) Subtotal: | = | $234,142 | |
| (+) Senior Appraised Value: | + | $0 | |
| (+) Non-Senior Appraised Value: | + | $234,142 | |
| | | -------------------------- | |
| (=) Total Appraised Value: | = | $234,142 | |
| (–) Senior Exemption Loss: | – | $0 | |
| (–) Exemption Loss: | – | $0 | |
| | | -------------------------- | |
| (=) Taxable Value: | = | $234,142 | |
Taxing Jurisdiction
| Owner: | AMBER LITZ | | |
| % Ownership: | 100.0000000000% | | |
| Total Value: | N/A | | |
| Tax Area: | 0441 - 1-46F4E4H2C1L1P2 |
| CE | COUNTY CURRENT EXPENSE | N/A | N/A | N/A | N/A | | |
| CNTYDD | DEVELOPMENTAL DISABILITIES | N/A | N/A | N/A | N/A | | |
| CNTYVET | VETERANS RELIEF | N/A | N/A | N/A | N/A | | |
| MENTAL | MENTAL HEALTH | N/A | N/A | N/A | N/A | | |
| ROADS | COUNTY ROADS | N/A | N/A | N/A | N/A | | |
| HOSP2CASH | HOSP DIST #2 GENERAL | N/A | N/A | N/A | N/A | | |
| SCH46MO | SCHOOL DIST #46 EP & O | N/A | N/A | N/A | N/A | | |
| CEM1 | CEMETERY DIST #1 GENERAL | N/A | N/A | N/A | N/A | | |
| CONSERVE | CONSERVATION FUTURES | N/A | N/A | N/A | N/A | | |
| EMS4 | FIRE DIST #4 EMS | N/A | N/A | N/A | N/A | | |
| FD4 | FIRE DIST #4 GENERAL | N/A | N/A | N/A | N/A | | |
| FD4BOND | FIRE DIST #4 BOND 2019 | N/A | N/A | N/A | N/A | | |
| LIB1 | LIBRARY DIST #1 GENERAL | N/A | N/A | N/A | N/A | | |
| PORTPT | PORT OF PT GENERAL | N/A | N/A | N/A | N/A | | |
| PORTPTIDD | PORT OF PT IDD 2019 | N/A | N/A | N/A | N/A | | |
| PUD1 | PUD #1 GENERAL | N/A | N/A | N/A | N/A | | |
| STATE | STATE SCHOOL PART 1 | N/A | N/A | N/A | N/A | | |
| STATE2 | STATE SCHOOL PART 2 | N/A | N/A | N/A | N/A | | |
| | Total Tax Rate: | N/A | | | | | |
| | | | | Taxes w/Current Exemptions: | N/A | | |
| | | | | Taxes w/o Exemptions: | N/A | | |
Improvement / Building
| Improvement #1: | Residential Bldg | State Code: | 11 | 1320.0 sqft | Value: | $185,842 |
| Bathrooms (#): | 1 (FULL) | Bedrooms (#): | 2 | | Exterior Wall: | PL/T1 | Fireplace: | WD ST-GOOD | | Floor Construction: | FRAME | Foundation: | CONPR | | Heating/Cooling: | ELBB | Inside Verify: | NO | | Roof Cover: | COMP |   |   |
|
| | Type | Description | Class CD | Sub Class CD | Year Built | Area |
| | MA | Main Area | 3 | 15SF | 1970 | 960.0 |
| | MA2 | Second Floor Main Area | 3 | 15SF | 1970 | 360.0 |
| | HWPOR | House Wood Porch | 3 | 15SF | 1970 | 160.0 |
| | SHED | Shed (Table Not Dep) | 3 | 15SF | 1970 | 238.0 |
Sketch
Property Image
Land
| 1 | 1250-1185L | | 0.0000 | 0.00 | 0.00 | 0.00 | 1.00 | $48,300 | $0 |
Roll Value History
| 2026 | N/A | N/A | N/A | N/A | N/A |
| 2025 | $173,790 | $46,200 | $0 | $219,990 | $219,990 |
| 2024 | $166,234 | $44,000 | $0 | $210,234 | $210,234 |
| 2023 | $166,234 | $39,000 | $0 | $205,234 | $205,234 |
| 2022 | $151,122 | $34,000 | $0 | $185,122 | $185,122 |
Deed and Sales History
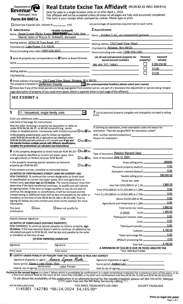
| 1 | 06/12/2024 | SWD | Statutory Warranty Deed | WAYNE E SCHLAEFLI | AMBER LITZ | | | $260,000.00 | 142780 | |
| 2 | 05/16/2013 | QCD | Quit Claim Deed | ROSALIE SCHLAEFLI | WAYNE E SCHLAEFLI | | | | 119305 | |
| 3 | 05/22/2013 | SWD | Statutory Warranty Deed | EARL G THOMPSON | WAYNE E SCHLAEFLI | | | $120,000.00 | 119304 | |
| 4 | 11/03/2008 | QCD | Quit Claim Deed | DEUTSCHE BANK NATIONAL TR | DEUTSCHE BANK NATIONAL TRUSTEE | 0 | 0 | $0.00 | 112128 | 0 |
| 5 | 11/03/2008 | WD | Warranty Deed | DEUTSCHE BANK NATIONAL TR | THOMPSON, EARL G/NANCY J | 0 | 0 | $70,000.00 | 112129 | 0 |
| 6 | 03/26/2008 | WD | Warranty Deed | NORTHWEST TRUSTEE SERVICE | DEUTSCHE BANK NATIONAL TRUST | 0 | 0 | $0.00 | 111010 | 0 |
| 7 | 08/16/2006 | SWD | Statutory Warranty Deed | DAVIS, JOCELYN | AUDETTE, DAWN E | 0 | 0 | $160,000.00 | 107396 | 0 |
| 8 | 05/05/2005 | SWD | Statutory Warranty Deed | KEAY, MICHELE L | DAVIS, JOCELYN | | | $115,000.00 | 103450 | 0 |
| 9 | 06/05/2002 | SWD | Statutory Warranty Deed | DEBRA LYNN ROBBINS | MICHELE L KEAY | 0 | 0 | $84,000.00 | 94831 | 0 |
|   | |
| 10 | 06/13/1995 | SWD | Statutory Warranty Deed | SCHEUFFELE, BERNICE | ROBBINS, DEBRA LYNN | 0 | 0 | $58,000.00 | 77146 | 0 |
|   | |
Payout Agreement
| No payout information available.. |